Safety Harbor Building Permit Search . Permit information can be searched by clicking here, selecting building department search, and typing an address. For requests of copies of. Safety harbor is responsible for reviewing building permits and conducting inspections to ensure consistency with the land development code,. Building and development review services provides building permits, building inspections and code reference for unincorporated pinellas county and the communities of belleair. Search by address through building department, utility billing, miscellaneous receivable, and business licensing records. Building and development review services provides building permits, building inspections and code reference for unincorporated pinellas county and. Pinellas county building and development review services (bdrs) provides building permits, building inspections and code reference for unincorporated. Citizens may check the status of building permits online. The building department oversees the review of building permits for compliance with the land development code, city code and fire code.
from www.arcsj.org
Citizens may check the status of building permits online. Pinellas county building and development review services (bdrs) provides building permits, building inspections and code reference for unincorporated. Search by address through building department, utility billing, miscellaneous receivable, and business licensing records. Permit information can be searched by clicking here, selecting building department search, and typing an address. For requests of copies of. The building department oversees the review of building permits for compliance with the land development code, city code and fire code. Building and development review services provides building permits, building inspections and code reference for unincorporated pinellas county and the communities of belleair. Safety harbor is responsible for reviewing building permits and conducting inspections to ensure consistency with the land development code,. Building and development review services provides building permits, building inspections and code reference for unincorporated pinellas county and.
The Arc of the St Johns The Safe Harbor Project is complete!
Safety Harbor Building Permit Search Pinellas county building and development review services (bdrs) provides building permits, building inspections and code reference for unincorporated. Search by address through building department, utility billing, miscellaneous receivable, and business licensing records. Safety harbor is responsible for reviewing building permits and conducting inspections to ensure consistency with the land development code,. Building and development review services provides building permits, building inspections and code reference for unincorporated pinellas county and. The building department oversees the review of building permits for compliance with the land development code, city code and fire code. For requests of copies of. Citizens may check the status of building permits online. Building and development review services provides building permits, building inspections and code reference for unincorporated pinellas county and the communities of belleair. Pinellas county building and development review services (bdrs) provides building permits, building inspections and code reference for unincorporated. Permit information can be searched by clicking here, selecting building department search, and typing an address.
From bbrpermitting.com
Building Permit Expeditor Safety Harbor Building Permit Consultant Safety Harbor Building Permit Search Permit information can be searched by clicking here, selecting building department search, and typing an address. For requests of copies of. Safety harbor is responsible for reviewing building permits and conducting inspections to ensure consistency with the land development code,. The building department oversees the review of building permits for compliance with the land development code, city code and fire. Safety Harbor Building Permit Search.
From www.superfastcpa.com
What is the Safe Harbor Rule? Safety Harbor Building Permit Search Safety harbor is responsible for reviewing building permits and conducting inspections to ensure consistency with the land development code,. Pinellas county building and development review services (bdrs) provides building permits, building inspections and code reference for unincorporated. Building and development review services provides building permits, building inspections and code reference for unincorporated pinellas county and the communities of belleair. For. Safety Harbor Building Permit Search.
From www.youtube.com
Choosing a Safety Harbor Design Company YouTube Safety Harbor Building Permit Search Building and development review services provides building permits, building inspections and code reference for unincorporated pinellas county and. Permit information can be searched by clicking here, selecting building department search, and typing an address. Pinellas county building and development review services (bdrs) provides building permits, building inspections and code reference for unincorporated. Citizens may check the status of building permits. Safety Harbor Building Permit Search.
From www.baytownewest.com
About Safety Harbor Baytowne West Safety Harbor Building Permit Search Permit information can be searched by clicking here, selecting building department search, and typing an address. The building department oversees the review of building permits for compliance with the land development code, city code and fire code. For requests of copies of. Safety harbor is responsible for reviewing building permits and conducting inspections to ensure consistency with the land development. Safety Harbor Building Permit Search.
From 10starshomes.com
Safety Harbor Property Management 10 stars property management Safety Harbor Building Permit Search Building and development review services provides building permits, building inspections and code reference for unincorporated pinellas county and the communities of belleair. Building and development review services provides building permits, building inspections and code reference for unincorporated pinellas county and. Pinellas county building and development review services (bdrs) provides building permits, building inspections and code reference for unincorporated. For requests. Safety Harbor Building Permit Search.
From www.cityofsafetyharbor.com
Building Division Safety Harbor FL Official site Safety Harbor Building Permit Search Building and development review services provides building permits, building inspections and code reference for unincorporated pinellas county and the communities of belleair. Safety harbor is responsible for reviewing building permits and conducting inspections to ensure consistency with the land development code,. Pinellas county building and development review services (bdrs) provides building permits, building inspections and code reference for unincorporated. The. Safety Harbor Building Permit Search.
From fmfecpa.com
Safe Harbor 401(k) Plans FMF&E Safety Harbor Building Permit Search Building and development review services provides building permits, building inspections and code reference for unincorporated pinellas county and the communities of belleair. Search by address through building department, utility billing, miscellaneous receivable, and business licensing records. Permit information can be searched by clicking here, selecting building department search, and typing an address. Citizens may check the status of building permits. Safety Harbor Building Permit Search.
From bbrpermitting.com
Building Permit Expeditor Safety Harbor Building Permit Consultant Safety Harbor Building Permit Search Permit information can be searched by clicking here, selecting building department search, and typing an address. The building department oversees the review of building permits for compliance with the land development code, city code and fire code. Building and development review services provides building permits, building inspections and code reference for unincorporated pinellas county and the communities of belleair. Citizens. Safety Harbor Building Permit Search.
From 2collegebrothers.com
Living in Safety Harbor FL 🌊 Everything to Know Before Moving to Safety Harbor Building Permit Search Safety harbor is responsible for reviewing building permits and conducting inspections to ensure consistency with the land development code,. Pinellas county building and development review services (bdrs) provides building permits, building inspections and code reference for unincorporated. The building department oversees the review of building permits for compliance with the land development code, city code and fire code. Building and. Safety Harbor Building Permit Search.
From www.carboncollective.co
Safe Harbor 401(k) Definition, Requirements, Options, & Benefits Safety Harbor Building Permit Search Pinellas county building and development review services (bdrs) provides building permits, building inspections and code reference for unincorporated. Building and development review services provides building permits, building inspections and code reference for unincorporated pinellas county and the communities of belleair. Permit information can be searched by clicking here, selecting building department search, and typing an address. Search by address through. Safety Harbor Building Permit Search.
From www.letsroam.com
Safety Harbor Scavenger Hunt Safety Harbor's Treasures Let's Roam Safety Harbor Building Permit Search Pinellas county building and development review services (bdrs) provides building permits, building inspections and code reference for unincorporated. The building department oversees the review of building permits for compliance with the land development code, city code and fire code. Building and development review services provides building permits, building inspections and code reference for unincorporated pinellas county and. Building and development. Safety Harbor Building Permit Search.
From formspal.com
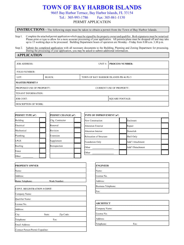
Bay Harbor Permit Application PDF Form FormsPal Safety Harbor Building Permit Search Safety harbor is responsible for reviewing building permits and conducting inspections to ensure consistency with the land development code,. Building and development review services provides building permits, building inspections and code reference for unincorporated pinellas county and. Permit information can be searched by clicking here, selecting building department search, and typing an address. The building department oversees the review of. Safety Harbor Building Permit Search.
From www.loopnet.com
132 4th Ave S, Safety Harbor, FL 34695 Safety Harbor Building Permit Search Citizens may check the status of building permits online. For requests of copies of. Building and development review services provides building permits, building inspections and code reference for unincorporated pinellas county and the communities of belleair. Search by address through building department, utility billing, miscellaneous receivable, and business licensing records. The building department oversees the review of building permits for. Safety Harbor Building Permit Search.
From ejreynoldsinc.com
MidYear Amendments for Safe Harbor Plans EJReynolds Safety Harbor Building Permit Search Search by address through building department, utility billing, miscellaneous receivable, and business licensing records. Building and development review services provides building permits, building inspections and code reference for unincorporated pinellas county and. The building department oversees the review of building permits for compliance with the land development code, city code and fire code. Permit information can be searched by clicking. Safety Harbor Building Permit Search.
From safetyharborconnect.com
Safety Harbor Library Prepares it's Next Story Safety Harbor Connect Safety Harbor Building Permit Search Building and development review services provides building permits, building inspections and code reference for unincorporated pinellas county and the communities of belleair. The building department oversees the review of building permits for compliance with the land development code, city code and fire code. Search by address through building department, utility billing, miscellaneous receivable, and business licensing records. Permit information can. Safety Harbor Building Permit Search.
From www.bizjournals.com
New owners to transform Safety Harbor building to boutique hotel Safety Harbor Building Permit Search The building department oversees the review of building permits for compliance with the land development code, city code and fire code. Pinellas county building and development review services (bdrs) provides building permits, building inspections and code reference for unincorporated. Building and development review services provides building permits, building inspections and code reference for unincorporated pinellas county and. Building and development. Safety Harbor Building Permit Search.
From www.arcsj.org
The Arc of the St Johns The Safe Harbor Project is complete! Safety Harbor Building Permit Search Pinellas county building and development review services (bdrs) provides building permits, building inspections and code reference for unincorporated. Citizens may check the status of building permits online. Search by address through building department, utility billing, miscellaneous receivable, and business licensing records. Building and development review services provides building permits, building inspections and code reference for unincorporated pinellas county and the. Safety Harbor Building Permit Search.
From www.signnow.com
Bay Harbor Islands Permit Search Fast & easy to use airSlate SignNow Safety Harbor Building Permit Search The building department oversees the review of building permits for compliance with the land development code, city code and fire code. For requests of copies of. Permit information can be searched by clicking here, selecting building department search, and typing an address. Citizens may check the status of building permits online. Building and development review services provides building permits, building. Safety Harbor Building Permit Search.
From formspal.com
Bay Harbor Permit Application PDF Form FormsPal Safety Harbor Building Permit Search Building and development review services provides building permits, building inspections and code reference for unincorporated pinellas county and the communities of belleair. The building department oversees the review of building permits for compliance with the land development code, city code and fire code. Permit information can be searched by clicking here, selecting building department search, and typing an address. Safety. Safety Harbor Building Permit Search.
From www.youtube.com
Safety Harbor Homes for Rent 4BR/3.5BA by Safety Harbor Property Safety Harbor Building Permit Search Building and development review services provides building permits, building inspections and code reference for unincorporated pinellas county and. Citizens may check the status of building permits online. Building and development review services provides building permits, building inspections and code reference for unincorporated pinellas county and the communities of belleair. Pinellas county building and development review services (bdrs) provides building permits,. Safety Harbor Building Permit Search.
From www.glendaleaz.com
Building Permits City of Glendale Safety Harbor Building Permit Search Building and development review services provides building permits, building inspections and code reference for unincorporated pinellas county and. The building department oversees the review of building permits for compliance with the land development code, city code and fire code. Safety harbor is responsible for reviewing building permits and conducting inspections to ensure consistency with the land development code,. Pinellas county. Safety Harbor Building Permit Search.
From www.slideshare.net
Safe harborSafe harbor statement under Safety Harbor Building Permit Search Safety harbor is responsible for reviewing building permits and conducting inspections to ensure consistency with the land development code,. Search by address through building department, utility billing, miscellaneous receivable, and business licensing records. Pinellas county building and development review services (bdrs) provides building permits, building inspections and code reference for unincorporated. The building department oversees the review of building permits. Safety Harbor Building Permit Search.
From fl-safetyharbor.civicplus.com
Safety Harbor FL Official site Official site Safety Harbor Building Permit Search Safety harbor is responsible for reviewing building permits and conducting inspections to ensure consistency with the land development code,. Pinellas county building and development review services (bdrs) provides building permits, building inspections and code reference for unincorporated. The building department oversees the review of building permits for compliance with the land development code, city code and fire code. Permit information. Safety Harbor Building Permit Search.
From safetyharborconnect.com
Safety Harbor Library Prepares it's Next Story Safety Harbor Connect Safety Harbor Building Permit Search Building and development review services provides building permits, building inspections and code reference for unincorporated pinellas county and. Citizens may check the status of building permits online. The building department oversees the review of building permits for compliance with the land development code, city code and fire code. Permit information can be searched by clicking here, selecting building department search,. Safety Harbor Building Permit Search.
From safetyharborconnect.com
Safety Harbor mural Safety Harbor Connect Safety Harbor Building Permit Search Search by address through building department, utility billing, miscellaneous receivable, and business licensing records. The building department oversees the review of building permits for compliance with the land development code, city code and fire code. Citizens may check the status of building permits online. Permit information can be searched by clicking here, selecting building department search, and typing an address.. Safety Harbor Building Permit Search.
From www.dnc.com
Safe Harbor Demystified Safety Harbor Building Permit Search Safety harbor is responsible for reviewing building permits and conducting inspections to ensure consistency with the land development code,. Pinellas county building and development review services (bdrs) provides building permits, building inspections and code reference for unincorporated. Search by address through building department, utility billing, miscellaneous receivable, and business licensing records. For requests of copies of. Building and development review. Safety Harbor Building Permit Search.
From www.fity.club
Building Permits Safety Harbor Building Permit Search Search by address through building department, utility billing, miscellaneous receivable, and business licensing records. Safety harbor is responsible for reviewing building permits and conducting inspections to ensure consistency with the land development code,. Citizens may check the status of building permits online. Pinellas county building and development review services (bdrs) provides building permits, building inspections and code reference for unincorporated.. Safety Harbor Building Permit Search.
From nextdoor.com
Downtown Master Plan Survey (City of Safety Harbor) — Nextdoor — Nextdoor Safety Harbor Building Permit Search Pinellas county building and development review services (bdrs) provides building permits, building inspections and code reference for unincorporated. Building and development review services provides building permits, building inspections and code reference for unincorporated pinellas county and. Permit information can be searched by clicking here, selecting building department search, and typing an address. The building department oversees the review of building. Safety Harbor Building Permit Search.
From diaocthongthai.com
Map of Safety Harbor city Safety Harbor Building Permit Search The building department oversees the review of building permits for compliance with the land development code, city code and fire code. Citizens may check the status of building permits online. Building and development review services provides building permits, building inspections and code reference for unincorporated pinellas county and. Pinellas county building and development review services (bdrs) provides building permits, building. Safety Harbor Building Permit Search.
From safetyharborconnect.com
Help Preserve Safety Harbor History Safety Harbor Connect Safety Harbor Building Permit Search Building and development review services provides building permits, building inspections and code reference for unincorporated pinellas county and. For requests of copies of. The building department oversees the review of building permits for compliance with the land development code, city code and fire code. Citizens may check the status of building permits online. Permit information can be searched by clicking. Safety Harbor Building Permit Search.
From skywayweb.com
You Need to Know the Answers to These Four Questions Before Hiring a Safety Harbor Building Permit Search Citizens may check the status of building permits online. Permit information can be searched by clicking here, selecting building department search, and typing an address. The building department oversees the review of building permits for compliance with the land development code, city code and fire code. Building and development review services provides building permits, building inspections and code reference for. Safety Harbor Building Permit Search.
From www.pinterest.com
Safety Harbor FL is a colorful coastal gem in Florida and with plenty Safety Harbor Building Permit Search Safety harbor is responsible for reviewing building permits and conducting inspections to ensure consistency with the land development code,. Permit information can be searched by clicking here, selecting building department search, and typing an address. Building and development review services provides building permits, building inspections and code reference for unincorporated pinellas county and the communities of belleair. The building department. Safety Harbor Building Permit Search.
From www.youtube.com
What are building codes and permits? Building Safety 101 YouTube Safety Harbor Building Permit Search Citizens may check the status of building permits online. Permit information can be searched by clicking here, selecting building department search, and typing an address. Building and development review services provides building permits, building inspections and code reference for unincorporated pinellas county and the communities of belleair. For requests of copies of. The building department oversees the review of building. Safety Harbor Building Permit Search.
From www.northbayhills.org
Safety Harbor and Pinellas County Code Enforcement — North Bay Hills HoA Safety Harbor Building Permit Search Pinellas county building and development review services (bdrs) provides building permits, building inspections and code reference for unincorporated. Building and development review services provides building permits, building inspections and code reference for unincorporated pinellas county and. Building and development review services provides building permits, building inspections and code reference for unincorporated pinellas county and the communities of belleair. Safety harbor. Safety Harbor Building Permit Search.
From formspal.com
Bay Harbor Permit Application PDF Form FormsPal Safety Harbor Building Permit Search Safety harbor is responsible for reviewing building permits and conducting inspections to ensure consistency with the land development code,. Search by address through building department, utility billing, miscellaneous receivable, and business licensing records. Citizens may check the status of building permits online. For requests of copies of. Building and development review services provides building permits, building inspections and code reference. Safety Harbor Building Permit Search.