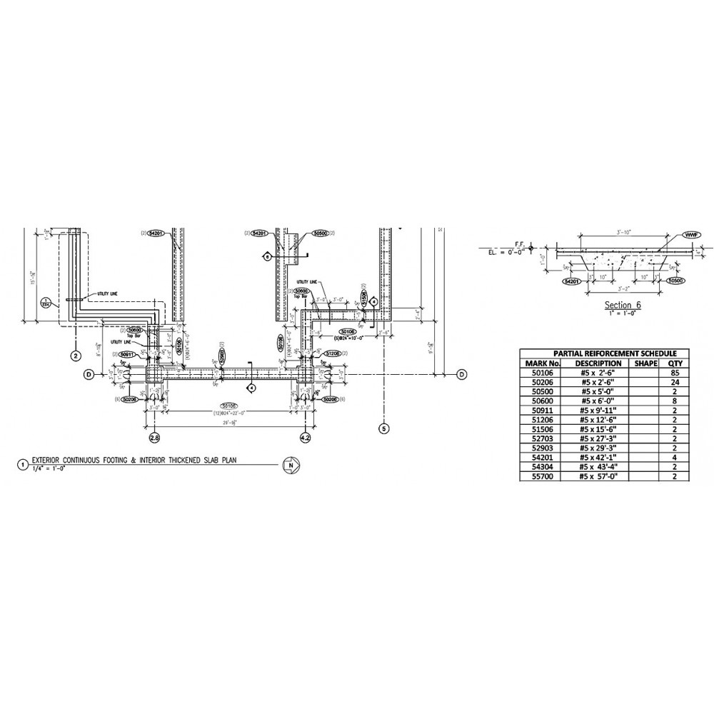
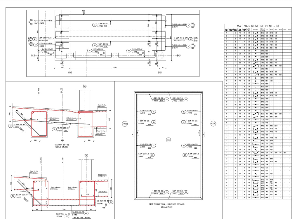
What Is Rebar Shop Drawings . These will show types and size of rebar (usually in. Qualified and experienced rebar detailers are required to do rebar detailing. Rebar detailing is a detailed construction engineering process, usually done by the rebar fabricators, structural engineering consultants or the contractors to prepare a rebar placing drawing and a bar bending schedule. Reading rebar (reinforcing bar) drawings is straightforward with all the information required in a brief, simple encoded format that is easy to get the hang of quickly. Rebar shop drawings are highly detailed drawings that specifically focus on the placement and configuration of reinforcement steel within a structure. Rebar detailing is the process of creating detailed drawings and schedules to ensure the accurate placement of reinforcing bar (rebar) to strengthen a concrete. Here’s our guide on how to read rebar drawings. Rebar is short for reinforcing bar. It is the component of reinforced concrete that is necessary to pick up all of the tensile loads in. Rebar detailing involves creating detailed shop drawings that specify the size, quantity, placement, and configuration of reinforcing steel bars (rebar) within concrete structures.
from mungfali.com
Rebar detailing involves creating detailed shop drawings that specify the size, quantity, placement, and configuration of reinforcing steel bars (rebar) within concrete structures. Qualified and experienced rebar detailers are required to do rebar detailing. It is the component of reinforced concrete that is necessary to pick up all of the tensile loads in. Rebar shop drawings are highly detailed drawings that specifically focus on the placement and configuration of reinforcement steel within a structure. Rebar is short for reinforcing bar. Rebar detailing is the process of creating detailed drawings and schedules to ensure the accurate placement of reinforcing bar (rebar) to strengthen a concrete. These will show types and size of rebar (usually in. Rebar detailing is a detailed construction engineering process, usually done by the rebar fabricators, structural engineering consultants or the contractors to prepare a rebar placing drawing and a bar bending schedule. Here’s our guide on how to read rebar drawings. Reading rebar (reinforcing bar) drawings is straightforward with all the information required in a brief, simple encoded format that is easy to get the hang of quickly.
Rebar Shop Drawings Sample
What Is Rebar Shop Drawings Qualified and experienced rebar detailers are required to do rebar detailing. Qualified and experienced rebar detailers are required to do rebar detailing. Rebar detailing involves creating detailed shop drawings that specify the size, quantity, placement, and configuration of reinforcing steel bars (rebar) within concrete structures. Rebar is short for reinforcing bar. Rebar detailing is the process of creating detailed drawings and schedules to ensure the accurate placement of reinforcing bar (rebar) to strengthen a concrete. These will show types and size of rebar (usually in. Rebar detailing is a detailed construction engineering process, usually done by the rebar fabricators, structural engineering consultants or the contractors to prepare a rebar placing drawing and a bar bending schedule. Reading rebar (reinforcing bar) drawings is straightforward with all the information required in a brief, simple encoded format that is easy to get the hang of quickly. It is the component of reinforced concrete that is necessary to pick up all of the tensile loads in. Rebar shop drawings are highly detailed drawings that specifically focus on the placement and configuration of reinforcement steel within a structure. Here’s our guide on how to read rebar drawings.
From www.engineeringclicks.com
A Guide to Rebar Sizes an overview of steel reinforcement bars What Is Rebar Shop Drawings Rebar shop drawings are highly detailed drawings that specifically focus on the placement and configuration of reinforcement steel within a structure. Here’s our guide on how to read rebar drawings. Reading rebar (reinforcing bar) drawings is straightforward with all the information required in a brief, simple encoded format that is easy to get the hang of quickly. Rebar detailing is. What Is Rebar Shop Drawings.
From www.upwork.com
Detailed rebar shop drawings and BBS / rebar takeoff Upwork What Is Rebar Shop Drawings Qualified and experienced rebar detailers are required to do rebar detailing. It is the component of reinforced concrete that is necessary to pick up all of the tensile loads in. Rebar shop drawings are highly detailed drawings that specifically focus on the placement and configuration of reinforcement steel within a structure. Rebar detailing is the process of creating detailed drawings. What Is Rebar Shop Drawings.
From biddingenterprise.com
Rebar Shop Drawings Service Rebar DetailingBidding Enterprise What Is Rebar Shop Drawings Rebar detailing is the process of creating detailed drawings and schedules to ensure the accurate placement of reinforcing bar (rebar) to strengthen a concrete. Rebar detailing is a detailed construction engineering process, usually done by the rebar fabricators, structural engineering consultants or the contractors to prepare a rebar placing drawing and a bar bending schedule. Rebar is short for reinforcing. What Is Rebar Shop Drawings.
From suvivaarla.com
What Are Rebar Shop Drawings Warehouse of Ideas What Is Rebar Shop Drawings Rebar detailing is the process of creating detailed drawings and schedules to ensure the accurate placement of reinforcing bar (rebar) to strengthen a concrete. Rebar shop drawings are highly detailed drawings that specifically focus on the placement and configuration of reinforcement steel within a structure. These will show types and size of rebar (usually in. Rebar is short for reinforcing. What Is Rebar Shop Drawings.
From www.cadcrowd.com
Rebar shop drawings Service Mexico Steel Construction Detailing What Is Rebar Shop Drawings These will show types and size of rebar (usually in. Reading rebar (reinforcing bar) drawings is straightforward with all the information required in a brief, simple encoded format that is easy to get the hang of quickly. Rebar shop drawings are highly detailed drawings that specifically focus on the placement and configuration of reinforcement steel within a structure. Qualified and. What Is Rebar Shop Drawings.
From drawing.rjuuc.edu.np
How To Read Rebar Shop Drawings Drawing.rjuuc.edu.np What Is Rebar Shop Drawings Rebar detailing is a detailed construction engineering process, usually done by the rebar fabricators, structural engineering consultants or the contractors to prepare a rebar placing drawing and a bar bending schedule. Rebar is short for reinforcing bar. Rebar detailing involves creating detailed shop drawings that specify the size, quantity, placement, and configuration of reinforcing steel bars (rebar) within concrete structures.. What Is Rebar Shop Drawings.
From www.qebimservices.com
Rebar Detailing Services Rebar Shop Drawings QeBIM What Is Rebar Shop Drawings It is the component of reinforced concrete that is necessary to pick up all of the tensile loads in. These will show types and size of rebar (usually in. Rebar is short for reinforcing bar. Rebar detailing is the process of creating detailed drawings and schedules to ensure the accurate placement of reinforcing bar (rebar) to strengthen a concrete. Reading. What Is Rebar Shop Drawings.
From www.upwork.com
Detailed rebar shop drawings and BBS / rebar takeoff Upwork What Is Rebar Shop Drawings Rebar shop drawings are highly detailed drawings that specifically focus on the placement and configuration of reinforcement steel within a structure. These will show types and size of rebar (usually in. Rebar detailing involves creating detailed shop drawings that specify the size, quantity, placement, and configuration of reinforcing steel bars (rebar) within concrete structures. Rebar detailing is a detailed construction. What Is Rebar Shop Drawings.
From www.vrogue.co
Rebar Drawing Symbols vrogue.co What Is Rebar Shop Drawings Reading rebar (reinforcing bar) drawings is straightforward with all the information required in a brief, simple encoded format that is easy to get the hang of quickly. Rebar shop drawings are highly detailed drawings that specifically focus on the placement and configuration of reinforcement steel within a structure. Rebar detailing is a detailed construction engineering process, usually done by the. What Is Rebar Shop Drawings.
From bilag.xxl.no
Rebar Drawings What Is Rebar Shop Drawings Rebar shop drawings are highly detailed drawings that specifically focus on the placement and configuration of reinforcement steel within a structure. Reading rebar (reinforcing bar) drawings is straightforward with all the information required in a brief, simple encoded format that is easy to get the hang of quickly. Here’s our guide on how to read rebar drawings. Qualified and experienced. What Is Rebar Shop Drawings.
From www.youtube.com
02.How to Shop drawing Beam rebar with Revit Structure Part 01 YouTube What Is Rebar Shop Drawings It is the component of reinforced concrete that is necessary to pick up all of the tensile loads in. Rebar detailing is a detailed construction engineering process, usually done by the rebar fabricators, structural engineering consultants or the contractors to prepare a rebar placing drawing and a bar bending schedule. Rebar detailing involves creating detailed shop drawings that specify the. What Is Rebar Shop Drawings.
From www.researchgate.net
A typical precast girder shop drawing. Note the detailed rebar schedule What Is Rebar Shop Drawings Rebar detailing is a detailed construction engineering process, usually done by the rebar fabricators, structural engineering consultants or the contractors to prepare a rebar placing drawing and a bar bending schedule. Rebar detailing involves creating detailed shop drawings that specify the size, quantity, placement, and configuration of reinforcing steel bars (rebar) within concrete structures. Rebar detailing is the process of. What Is Rebar Shop Drawings.
From howtohangcurtainsproperlylivingroom.blogspot.com
rebar detailing sample drawings howtohangcurtainsproperlylivingroom What Is Rebar Shop Drawings Rebar detailing is a detailed construction engineering process, usually done by the rebar fabricators, structural engineering consultants or the contractors to prepare a rebar placing drawing and a bar bending schedule. Rebar shop drawings are highly detailed drawings that specifically focus on the placement and configuration of reinforcement steel within a structure. These will show types and size of rebar. What Is Rebar Shop Drawings.
From www.urbantechusa.com
FABRICATION DRAWINGS — UrbanTech What Is Rebar Shop Drawings Rebar detailing involves creating detailed shop drawings that specify the size, quantity, placement, and configuration of reinforcing steel bars (rebar) within concrete structures. Rebar detailing is a detailed construction engineering process, usually done by the rebar fabricators, structural engineering consultants or the contractors to prepare a rebar placing drawing and a bar bending schedule. Qualified and experienced rebar detailers are. What Is Rebar Shop Drawings.
From biddingenterprise.com
Rebar Shop Drawings Service Rebar DetailingBidding Enterprise What Is Rebar Shop Drawings Rebar is short for reinforcing bar. It is the component of reinforced concrete that is necessary to pick up all of the tensile loads in. These will show types and size of rebar (usually in. Reading rebar (reinforcing bar) drawings is straightforward with all the information required in a brief, simple encoded format that is easy to get the hang. What Is Rebar Shop Drawings.
From drawing99.netlify.app
Rebar shop drawing abbreviations home screen wallpaper DRAWING 99 What Is Rebar Shop Drawings Rebar is short for reinforcing bar. Rebar detailing involves creating detailed shop drawings that specify the size, quantity, placement, and configuration of reinforcing steel bars (rebar) within concrete structures. Qualified and experienced rebar detailers are required to do rebar detailing. Reading rebar (reinforcing bar) drawings is straightforward with all the information required in a brief, simple encoded format that is. What Is Rebar Shop Drawings.
From suvivaarla.com
What Are Rebar Shop Drawings Warehouse of Ideas What Is Rebar Shop Drawings Rebar detailing is the process of creating detailed drawings and schedules to ensure the accurate placement of reinforcing bar (rebar) to strengthen a concrete. Rebar is short for reinforcing bar. Here’s our guide on how to read rebar drawings. Reading rebar (reinforcing bar) drawings is straightforward with all the information required in a brief, simple encoded format that is easy. What Is Rebar Shop Drawings.
From suvivaarla.com
What Are Rebar Shop Drawings Warehouse of Ideas What Is Rebar Shop Drawings These will show types and size of rebar (usually in. Reading rebar (reinforcing bar) drawings is straightforward with all the information required in a brief, simple encoded format that is easy to get the hang of quickly. Rebar detailing is a detailed construction engineering process, usually done by the rebar fabricators, structural engineering consultants or the contractors to prepare a. What Is Rebar Shop Drawings.
From suvivaarla.com
What Are Rebar Shop Drawings Warehouse of Ideas What Is Rebar Shop Drawings Here’s our guide on how to read rebar drawings. Rebar detailing is the process of creating detailed drawings and schedules to ensure the accurate placement of reinforcing bar (rebar) to strengthen a concrete. Rebar shop drawings are highly detailed drawings that specifically focus on the placement and configuration of reinforcement steel within a structure. Reading rebar (reinforcing bar) drawings is. What Is Rebar Shop Drawings.
From www.idrawpro.com
Rebar shop drawings needed for this project What Is Rebar Shop Drawings Rebar detailing involves creating detailed shop drawings that specify the size, quantity, placement, and configuration of reinforcing steel bars (rebar) within concrete structures. Reading rebar (reinforcing bar) drawings is straightforward with all the information required in a brief, simple encoded format that is easy to get the hang of quickly. Rebar detailing is a detailed construction engineering process, usually done. What Is Rebar Shop Drawings.
From mungfali.com
Rebar Shop Drawings Sample What Is Rebar Shop Drawings Reading rebar (reinforcing bar) drawings is straightforward with all the information required in a brief, simple encoded format that is easy to get the hang of quickly. Here’s our guide on how to read rebar drawings. Rebar shop drawings are highly detailed drawings that specifically focus on the placement and configuration of reinforcement steel within a structure. It is the. What Is Rebar Shop Drawings.
From www.idrawpro.com
Rebar Shop Drawings needed for a small project, ASAP What Is Rebar Shop Drawings Qualified and experienced rebar detailers are required to do rebar detailing. Rebar detailing is a detailed construction engineering process, usually done by the rebar fabricators, structural engineering consultants or the contractors to prepare a rebar placing drawing and a bar bending schedule. It is the component of reinforced concrete that is necessary to pick up all of the tensile loads. What Is Rebar Shop Drawings.
From www.upwork.com
Detailed Rebar Drawings with Bar Bending Schedule (BBS) and Takeoffs What Is Rebar Shop Drawings Rebar detailing is a detailed construction engineering process, usually done by the rebar fabricators, structural engineering consultants or the contractors to prepare a rebar placing drawing and a bar bending schedule. Rebar is short for reinforcing bar. Rebar detailing involves creating detailed shop drawings that specify the size, quantity, placement, and configuration of reinforcing steel bars (rebar) within concrete structures.. What Is Rebar Shop Drawings.
From www.artofit.org
Rebar detailing services rebar shop drawings estimating services Artofit What Is Rebar Shop Drawings Rebar detailing involves creating detailed shop drawings that specify the size, quantity, placement, and configuration of reinforcing steel bars (rebar) within concrete structures. Rebar detailing is the process of creating detailed drawings and schedules to ensure the accurate placement of reinforcing bar (rebar) to strengthen a concrete. Here’s our guide on how to read rebar drawings. These will show types. What Is Rebar Shop Drawings.
From www.structuraldraftingindia.com
Rebar Detailing & Reinforced Bar Estimating Drawings Service What Is Rebar Shop Drawings Rebar detailing involves creating detailed shop drawings that specify the size, quantity, placement, and configuration of reinforcing steel bars (rebar) within concrete structures. These will show types and size of rebar (usually in. It is the component of reinforced concrete that is necessary to pick up all of the tensile loads in. Here’s our guide on how to read rebar. What Is Rebar Shop Drawings.
From biddingenterprise.com
Rebar Shop Drawings Service Rebar DetailingBidding Enterprise What Is Rebar Shop Drawings Rebar detailing involves creating detailed shop drawings that specify the size, quantity, placement, and configuration of reinforcing steel bars (rebar) within concrete structures. Here’s our guide on how to read rebar drawings. Rebar detailing is a detailed construction engineering process, usually done by the rebar fabricators, structural engineering consultants or the contractors to prepare a rebar placing drawing and a. What Is Rebar Shop Drawings.
From mechcivdesigners.com
Rebar Detailing & Rebar Shop Drawings Services MechCiv Designers What Is Rebar Shop Drawings Qualified and experienced rebar detailers are required to do rebar detailing. Rebar detailing is the process of creating detailed drawings and schedules to ensure the accurate placement of reinforcing bar (rebar) to strengthen a concrete. Reading rebar (reinforcing bar) drawings is straightforward with all the information required in a brief, simple encoded format that is easy to get the hang. What Is Rebar Shop Drawings.
From hamiltonbeach18quartroasteroven.blogspot.com
rebar detailing sample drawings hamiltonbeach18quartroasteroven What Is Rebar Shop Drawings Rebar shop drawings are highly detailed drawings that specifically focus on the placement and configuration of reinforcement steel within a structure. Reading rebar (reinforcing bar) drawings is straightforward with all the information required in a brief, simple encoded format that is easy to get the hang of quickly. These will show types and size of rebar (usually in. It is. What Is Rebar Shop Drawings.
From biddingenterprise.com
Rebar Shop Drawings Service Rebar DetailingBidding Enterprise What Is Rebar Shop Drawings Rebar detailing involves creating detailed shop drawings that specify the size, quantity, placement, and configuration of reinforcing steel bars (rebar) within concrete structures. Here’s our guide on how to read rebar drawings. Reading rebar (reinforcing bar) drawings is straightforward with all the information required in a brief, simple encoded format that is easy to get the hang of quickly. It. What Is Rebar Shop Drawings.
From www.steelstructuralconsultant.com
Steel Shop Drawing Services Construction Shop Drawings Australia USA What Is Rebar Shop Drawings Rebar detailing involves creating detailed shop drawings that specify the size, quantity, placement, and configuration of reinforcing steel bars (rebar) within concrete structures. Rebar detailing is the process of creating detailed drawings and schedules to ensure the accurate placement of reinforcing bar (rebar) to strengthen a concrete. Rebar is short for reinforcing bar. Qualified and experienced rebar detailers are required. What Is Rebar Shop Drawings.
From www.youtube.com
Rebar shop drawing for beam by Tekla YouTube What Is Rebar Shop Drawings Rebar shop drawings are highly detailed drawings that specifically focus on the placement and configuration of reinforcement steel within a structure. Qualified and experienced rebar detailers are required to do rebar detailing. Rebar is short for reinforcing bar. Rebar detailing is the process of creating detailed drawings and schedules to ensure the accurate placement of reinforcing bar (rebar) to strengthen. What Is Rebar Shop Drawings.
From www.rebardetailingservice.com
Samples Rebar Detailing, rebar shop drawings What Is Rebar Shop Drawings Qualified and experienced rebar detailers are required to do rebar detailing. It is the component of reinforced concrete that is necessary to pick up all of the tensile loads in. Here’s our guide on how to read rebar drawings. Rebar shop drawings are highly detailed drawings that specifically focus on the placement and configuration of reinforcement steel within a structure.. What Is Rebar Shop Drawings.
From www.idrawpro.com
Rebar shop drawings needed for this project What Is Rebar Shop Drawings These will show types and size of rebar (usually in. Rebar shop drawings are highly detailed drawings that specifically focus on the placement and configuration of reinforcement steel within a structure. Rebar detailing involves creating detailed shop drawings that specify the size, quantity, placement, and configuration of reinforcing steel bars (rebar) within concrete structures. Rebar detailing is the process of. What Is Rebar Shop Drawings.
From mungfali.com
Rebar Drawings What Is Rebar Shop Drawings Here’s our guide on how to read rebar drawings. Rebar shop drawings are highly detailed drawings that specifically focus on the placement and configuration of reinforcement steel within a structure. Rebar detailing is a detailed construction engineering process, usually done by the rebar fabricators, structural engineering consultants or the contractors to prepare a rebar placing drawing and a bar bending. What Is Rebar Shop Drawings.
From www.revit.news
Shop Drawings and Rebar Schedules in Autodesk Revit 2015 Revit news What Is Rebar Shop Drawings Rebar detailing is a detailed construction engineering process, usually done by the rebar fabricators, structural engineering consultants or the contractors to prepare a rebar placing drawing and a bar bending schedule. Qualified and experienced rebar detailers are required to do rebar detailing. Reading rebar (reinforcing bar) drawings is straightforward with all the information required in a brief, simple encoded format. What Is Rebar Shop Drawings.