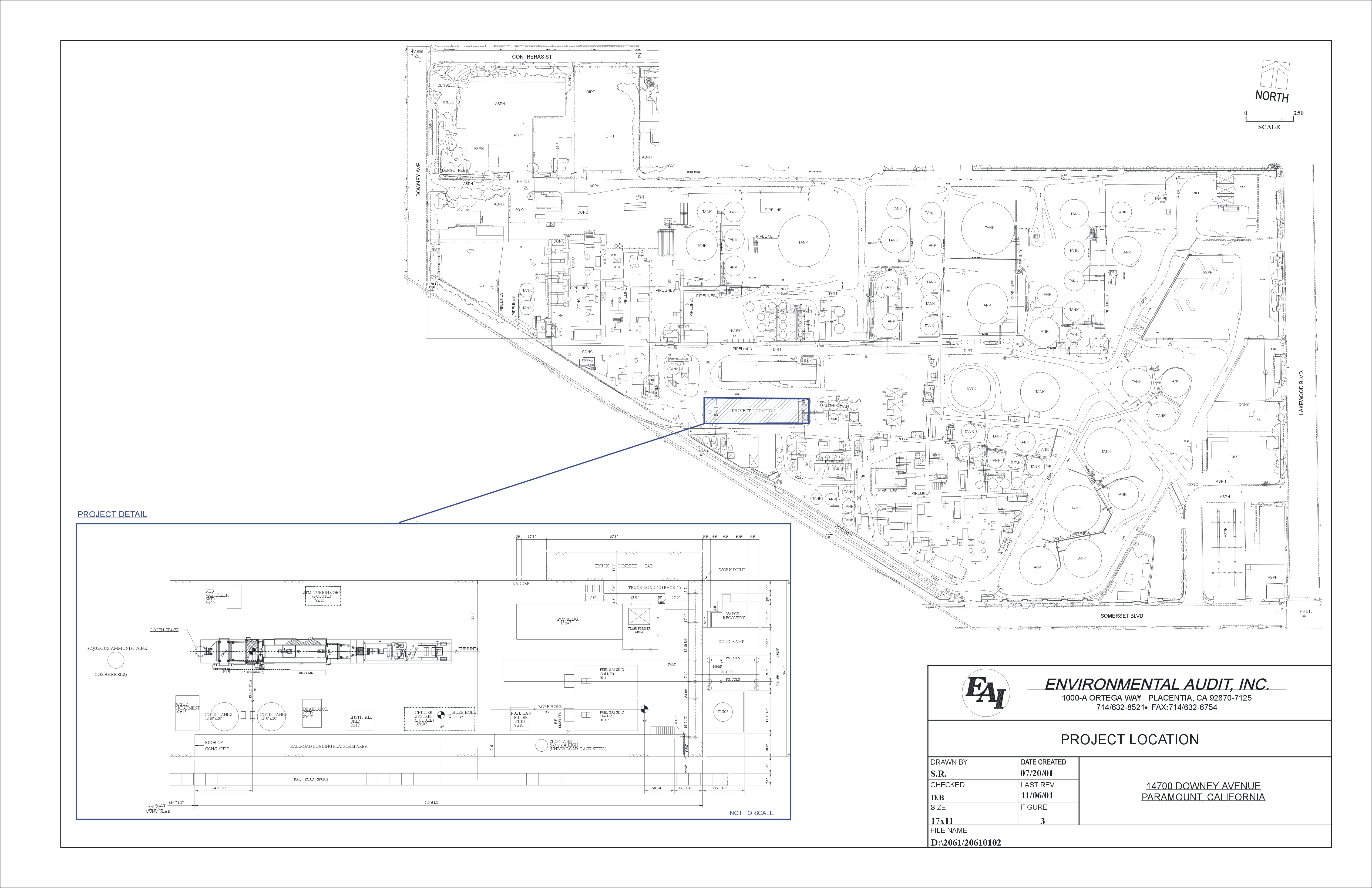
Paramount Ca Refinery . World energy acquired the former paramount petroleum facility in 2018. In 2018, world energy purchased altair and the paramount refinery, and altair became a wholly owned subsidiary of world energy. To deliver technology to further improve environmental performance of production processes at subsidiary altair. The company said on friday it will boost the paramount facility’s output to 340 million gallons per year. World energy is renovating its sustainable fuel refinery in paramount, california, which upon completion in 2025 will massively increase its output. World energy llc has let a contract to bechtel corp. The paramount refinery is located on 66 acres in paramount. Apd) announced today that it is teaming up with world energy to build a new $2 billion major expansion project at world energy’s sustainable aviation. By 2050, it will produce fuels that would displace more than 76 million tonnes of carbon dioxide (co2), world energy calculates. The location is bounded by lakewood boulevard, somerset boulevard, downey. Instead of refining petroleum and asphalt, we are transforming the facility into one that produces clean, renewable.
from www.youtube.com
Instead of refining petroleum and asphalt, we are transforming the facility into one that produces clean, renewable. By 2050, it will produce fuels that would displace more than 76 million tonnes of carbon dioxide (co2), world energy calculates. World energy llc has let a contract to bechtel corp. Apd) announced today that it is teaming up with world energy to build a new $2 billion major expansion project at world energy’s sustainable aviation. The company said on friday it will boost the paramount facility’s output to 340 million gallons per year. World energy acquired the former paramount petroleum facility in 2018. World energy is renovating its sustainable fuel refinery in paramount, california, which upon completion in 2025 will massively increase its output. The location is bounded by lakewood boulevard, somerset boulevard, downey. To deliver technology to further improve environmental performance of production processes at subsidiary altair. The paramount refinery is located on 66 acres in paramount.
Refinery Fire / Paramount RAW FOOTAGE YouTube
Paramount Ca Refinery To deliver technology to further improve environmental performance of production processes at subsidiary altair. World energy is renovating its sustainable fuel refinery in paramount, california, which upon completion in 2025 will massively increase its output. World energy acquired the former paramount petroleum facility in 2018. Instead of refining petroleum and asphalt, we are transforming the facility into one that produces clean, renewable. In 2018, world energy purchased altair and the paramount refinery, and altair became a wholly owned subsidiary of world energy. World energy llc has let a contract to bechtel corp. The location is bounded by lakewood boulevard, somerset boulevard, downey. Apd) announced today that it is teaming up with world energy to build a new $2 billion major expansion project at world energy’s sustainable aviation. The paramount refinery is located on 66 acres in paramount. To deliver technology to further improve environmental performance of production processes at subsidiary altair. By 2050, it will produce fuels that would displace more than 76 million tonnes of carbon dioxide (co2), world energy calculates. The company said on friday it will boost the paramount facility’s output to 340 million gallons per year.
From www.alamy.com
aerial view above oil refinery components Chevron Richmond California Paramount Ca Refinery By 2050, it will produce fuels that would displace more than 76 million tonnes of carbon dioxide (co2), world energy calculates. The location is bounded by lakewood boulevard, somerset boulevard, downey. Instead of refining petroleum and asphalt, we are transforming the facility into one that produces clean, renewable. World energy is renovating its sustainable fuel refinery in paramount, california, which. Paramount Ca Refinery.
From aviationweek.com
World Energy To Further Boost U.S. SAF Production Aviation Week Network Paramount Ca Refinery The company said on friday it will boost the paramount facility’s output to 340 million gallons per year. World energy acquired the former paramount petroleum facility in 2018. World energy is renovating its sustainable fuel refinery in paramount, california, which upon completion in 2025 will massively increase its output. To deliver technology to further improve environmental performance of production processes. Paramount Ca Refinery.
From www.ogj.com
AltAir Paramount advances California renewable fuels refinery plan Paramount Ca Refinery Instead of refining petroleum and asphalt, we are transforming the facility into one that produces clean, renewable. World energy llc has let a contract to bechtel corp. Apd) announced today that it is teaming up with world energy to build a new $2 billion major expansion project at world energy’s sustainable aviation. The location is bounded by lakewood boulevard, somerset. Paramount Ca Refinery.
From attwaterhulkhulk.blogspot.com
Paramount Petroleum Refinery INDUSTRIAL LW 50 Paramount Ca Refinery To deliver technology to further improve environmental performance of production processes at subsidiary altair. World energy llc has let a contract to bechtel corp. World energy acquired the former paramount petroleum facility in 2018. The location is bounded by lakewood boulevard, somerset boulevard, downey. World energy is renovating its sustainable fuel refinery in paramount, california, which upon completion in 2025. Paramount Ca Refinery.
From www.alamy.com
Oil refinery in Martinez, California Stock Photo Alamy Paramount Ca Refinery The location is bounded by lakewood boulevard, somerset boulevard, downey. To deliver technology to further improve environmental performance of production processes at subsidiary altair. The company said on friday it will boost the paramount facility’s output to 340 million gallons per year. By 2050, it will produce fuels that would displace more than 76 million tonnes of carbon dioxide (co2),. Paramount Ca Refinery.
From edition.cnn.com
A Northern California refinery fire has been contained after sending Paramount Ca Refinery In 2018, world energy purchased altair and the paramount refinery, and altair became a wholly owned subsidiary of world energy. By 2050, it will produce fuels that would displace more than 76 million tonnes of carbon dioxide (co2), world energy calculates. World energy is renovating its sustainable fuel refinery in paramount, california, which upon completion in 2025 will massively increase. Paramount Ca Refinery.
From www.metro.us
Troubled California oil refinery puts PBF’s turnaround skills to the Paramount Ca Refinery To deliver technology to further improve environmental performance of production processes at subsidiary altair. Apd) announced today that it is teaming up with world energy to build a new $2 billion major expansion project at world energy’s sustainable aviation. World energy acquired the former paramount petroleum facility in 2018. The paramount refinery is located on 66 acres in paramount. World. Paramount Ca Refinery.
From www.houstonchronicle.com
Phillips 66 to reconfigure San Francisco refinery for renewable fuels Paramount Ca Refinery World energy is renovating its sustainable fuel refinery in paramount, california, which upon completion in 2025 will massively increase its output. In 2018, world energy purchased altair and the paramount refinery, and altair became a wholly owned subsidiary of world energy. Instead of refining petroleum and asphalt, we are transforming the facility into one that produces clean, renewable. To deliver. Paramount Ca Refinery.
From www.trendradars.com
Refinery outages contributed to California’s gas price spike. So why do Paramount Ca Refinery Apd) announced today that it is teaming up with world energy to build a new $2 billion major expansion project at world energy’s sustainable aviation. In 2018, world energy purchased altair and the paramount refinery, and altair became a wholly owned subsidiary of world energy. World energy llc has let a contract to bechtel corp. By 2050, it will produce. Paramount Ca Refinery.
From www.youtube.com
Refinery Fire / Paramount RAW FOOTAGE YouTube Paramount Ca Refinery The paramount refinery is located on 66 acres in paramount. World energy is renovating its sustainable fuel refinery in paramount, california, which upon completion in 2025 will massively increase its output. World energy llc has let a contract to bechtel corp. The company said on friday it will boost the paramount facility’s output to 340 million gallons per year. Apd). Paramount Ca Refinery.
From www.sbsun.com
Climatefriendlier flights are taking off from Southern California Paramount Ca Refinery Instead of refining petroleum and asphalt, we are transforming the facility into one that produces clean, renewable. In 2018, world energy purchased altair and the paramount refinery, and altair became a wholly owned subsidiary of world energy. World energy acquired the former paramount petroleum facility in 2018. By 2050, it will produce fuels that would displace more than 76 million. Paramount Ca Refinery.
From www.nbclosangeles.com
Explosion Rips Through Torrance Refinery, Shakes South Bay NBC Los Paramount Ca Refinery By 2050, it will produce fuels that would displace more than 76 million tonnes of carbon dioxide (co2), world energy calculates. The location is bounded by lakewood boulevard, somerset boulevard, downey. World energy is renovating its sustainable fuel refinery in paramount, california, which upon completion in 2025 will massively increase its output. Instead of refining petroleum and asphalt, we are. Paramount Ca Refinery.
From www.aqmd.gov
Final ND for Paramount Petroleum Refinery Cogeneration Plant Paramount Ca Refinery By 2050, it will produce fuels that would displace more than 76 million tonnes of carbon dioxide (co2), world energy calculates. World energy llc has let a contract to bechtel corp. The company said on friday it will boost the paramount facility’s output to 340 million gallons per year. Apd) announced today that it is teaming up with world energy. Paramount Ca Refinery.
From www.insulators.org
Transition to renewable fuels proposed for Phillips 66 CA Refinery Paramount Ca Refinery In 2018, world energy purchased altair and the paramount refinery, and altair became a wholly owned subsidiary of world energy. Instead of refining petroleum and asphalt, we are transforming the facility into one that produces clean, renewable. The company said on friday it will boost the paramount facility’s output to 340 million gallons per year. To deliver technology to further. Paramount Ca Refinery.
From www.alamy.com
Paramount petroleum refinery hires stock photography and images Alamy Paramount Ca Refinery By 2050, it will produce fuels that would displace more than 76 million tonnes of carbon dioxide (co2), world energy calculates. World energy llc has let a contract to bechtel corp. Apd) announced today that it is teaming up with world energy to build a new $2 billion major expansion project at world energy’s sustainable aviation. To deliver technology to. Paramount Ca Refinery.
From www.alamy.com
Chevron Refinery in Richmond, CA from above aerial Stock Photo Paramount Ca Refinery World energy is renovating its sustainable fuel refinery in paramount, california, which upon completion in 2025 will massively increase its output. World energy llc has let a contract to bechtel corp. The paramount refinery is located on 66 acres in paramount. The company said on friday it will boost the paramount facility’s output to 340 million gallons per year. By. Paramount Ca Refinery.
From www.dailybreeze.com
A proposal to ban a potentially lethal chemical might change or close Paramount Ca Refinery World energy llc has let a contract to bechtel corp. The location is bounded by lakewood boulevard, somerset boulevard, downey. Instead of refining petroleum and asphalt, we are transforming the facility into one that produces clean, renewable. The paramount refinery is located on 66 acres in paramount. The company said on friday it will boost the paramount facility’s output to. Paramount Ca Refinery.
From www.eastbaytimes.com
Shell to sell Martinez refinery for 1 billion Paramount Ca Refinery To deliver technology to further improve environmental performance of production processes at subsidiary altair. World energy is renovating its sustainable fuel refinery in paramount, california, which upon completion in 2025 will massively increase its output. Apd) announced today that it is teaming up with world energy to build a new $2 billion major expansion project at world energy’s sustainable aviation.. Paramount Ca Refinery.
From www.aqmd.gov
Final ND for Paramount Petroleum Refinery Cogeneration Plant Paramount Ca Refinery The location is bounded by lakewood boulevard, somerset boulevard, downey. World energy acquired the former paramount petroleum facility in 2018. The company said on friday it will boost the paramount facility’s output to 340 million gallons per year. Apd) announced today that it is teaming up with world energy to build a new $2 billion major expansion project at world. Paramount Ca Refinery.
From www.aqmd.gov
Final ND for Paramount Petroleum Refinery Cogeneration Plant Paramount Ca Refinery In 2018, world energy purchased altair and the paramount refinery, and altair became a wholly owned subsidiary of world energy. To deliver technology to further improve environmental performance of production processes at subsidiary altair. Apd) announced today that it is teaming up with world energy to build a new $2 billion major expansion project at world energy’s sustainable aviation. The. Paramount Ca Refinery.
From www.aqmd.gov
Final ND for Paramount Petroleum Refinery Cogeneration Plant Paramount Ca Refinery In 2018, world energy purchased altair and the paramount refinery, and altair became a wholly owned subsidiary of world energy. The location is bounded by lakewood boulevard, somerset boulevard, downey. World energy llc has let a contract to bechtel corp. The paramount refinery is located on 66 acres in paramount. World energy acquired the former paramount petroleum facility in 2018.. Paramount Ca Refinery.
From www.youtube.com
Marathon Oil Refinery, Carson, Los Angeles County, California, USA Paramount Ca Refinery To deliver technology to further improve environmental performance of production processes at subsidiary altair. In 2018, world energy purchased altair and the paramount refinery, and altair became a wholly owned subsidiary of world energy. The company said on friday it will boost the paramount facility’s output to 340 million gallons per year. World energy llc has let a contract to. Paramount Ca Refinery.
From www.valero.com
Wilmington Oil Refinery Locations Valero Paramount Ca Refinery To deliver technology to further improve environmental performance of production processes at subsidiary altair. World energy is renovating its sustainable fuel refinery in paramount, california, which upon completion in 2025 will massively increase its output. The company said on friday it will boost the paramount facility’s output to 340 million gallons per year. By 2050, it will produce fuels that. Paramount Ca Refinery.
From www.alamy.com
Oct 18, 2004; Long Beach, CA, USA; The Conoco philips Oil Refinery at Paramount Ca Refinery World energy llc has let a contract to bechtel corp. The location is bounded by lakewood boulevard, somerset boulevard, downey. To deliver technology to further improve environmental performance of production processes at subsidiary altair. World energy is renovating its sustainable fuel refinery in paramount, california, which upon completion in 2025 will massively increase its output. The paramount refinery is located. Paramount Ca Refinery.
From www.ogj.com
AltAir Paramount advances California renewable fuels refinery plan Paramount Ca Refinery Instead of refining petroleum and asphalt, we are transforming the facility into one that produces clean, renewable. By 2050, it will produce fuels that would displace more than 76 million tonnes of carbon dioxide (co2), world energy calculates. To deliver technology to further improve environmental performance of production processes at subsidiary altair. The company said on friday it will boost. Paramount Ca Refinery.
From www.aqmd.gov
Final ND for Paramount Petroleum Refinery Cogeneration Plant Paramount Ca Refinery World energy llc has let a contract to bechtel corp. Instead of refining petroleum and asphalt, we are transforming the facility into one that produces clean, renewable. World energy acquired the former paramount petroleum facility in 2018. World energy is renovating its sustainable fuel refinery in paramount, california, which upon completion in 2025 will massively increase its output. The location. Paramount Ca Refinery.
From dokumen.tips
(PDF) Paramount Refinery, Paramount, California; Petition to · The Paramount Ca Refinery By 2050, it will produce fuels that would displace more than 76 million tonnes of carbon dioxide (co2), world energy calculates. World energy llc has let a contract to bechtel corp. In 2018, world energy purchased altair and the paramount refinery, and altair became a wholly owned subsidiary of world energy. The location is bounded by lakewood boulevard, somerset boulevard,. Paramount Ca Refinery.
From www.theguardian.com
‘No time for inaction’ how a California refinery disaster created a Paramount Ca Refinery Apd) announced today that it is teaming up with world energy to build a new $2 billion major expansion project at world energy’s sustainable aviation. The location is bounded by lakewood boulevard, somerset boulevard, downey. Instead of refining petroleum and asphalt, we are transforming the facility into one that produces clean, renewable. By 2050, it will produce fuels that would. Paramount Ca Refinery.
From www.reuters.com
California diesel, jet prices rise on Chevron hydrotreater outage Paramount Ca Refinery Apd) announced today that it is teaming up with world energy to build a new $2 billion major expansion project at world energy’s sustainable aviation. To deliver technology to further improve environmental performance of production processes at subsidiary altair. The company said on friday it will boost the paramount facility’s output to 340 million gallons per year. World energy llc. Paramount Ca Refinery.
From www.youtube.com
Special Planning Commission Meeting AltAir Paramount, LLC Refinery Paramount Ca Refinery The location is bounded by lakewood boulevard, somerset boulevard, downey. The company said on friday it will boost the paramount facility’s output to 340 million gallons per year. World energy acquired the former paramount petroleum facility in 2018. World energy llc has let a contract to bechtel corp. Instead of refining petroleum and asphalt, we are transforming the facility into. Paramount Ca Refinery.
From mavink.com
Refinery Locations Map Paramount Ca Refinery The company said on friday it will boost the paramount facility’s output to 340 million gallons per year. World energy llc has let a contract to bechtel corp. World energy is renovating its sustainable fuel refinery in paramount, california, which upon completion in 2025 will massively increase its output. By 2050, it will produce fuels that would displace more than. Paramount Ca Refinery.
From www.stockaerialphotos.com
Aerial Photo Oil Refinery Paramount Ca Refinery In 2018, world energy purchased altair and the paramount refinery, and altair became a wholly owned subsidiary of world energy. The paramount refinery is located on 66 acres in paramount. Instead of refining petroleum and asphalt, we are transforming the facility into one that produces clean, renewable. World energy acquired the former paramount petroleum facility in 2018. Apd) announced today. Paramount Ca Refinery.
From www.aqmd.gov
Final ND for Paramount Petroleum Refinery Cogeneration Plant Paramount Ca Refinery In 2018, world energy purchased altair and the paramount refinery, and altair became a wholly owned subsidiary of world energy. The company said on friday it will boost the paramount facility’s output to 340 million gallons per year. The location is bounded by lakewood boulevard, somerset boulevard, downey. To deliver technology to further improve environmental performance of production processes at. Paramount Ca Refinery.
From www.alamy.com
aerial above Torrance CA refinery at sunset Stock Photo Alamy Paramount Ca Refinery To deliver technology to further improve environmental performance of production processes at subsidiary altair. The company said on friday it will boost the paramount facility’s output to 340 million gallons per year. Instead of refining petroleum and asphalt, we are transforming the facility into one that produces clean, renewable. The location is bounded by lakewood boulevard, somerset boulevard, downey. By. Paramount Ca Refinery.
From www.chemtero.com
Current and Future California SAF Pathways & Supply ChemTero Consultants Paramount Ca Refinery The company said on friday it will boost the paramount facility’s output to 340 million gallons per year. Instead of refining petroleum and asphalt, we are transforming the facility into one that produces clean, renewable. In 2018, world energy purchased altair and the paramount refinery, and altair became a wholly owned subsidiary of world energy. By 2050, it will produce. Paramount Ca Refinery.