Washington Real Estate Excise Tax Calculator . Washington real estate excise tax calculator is a tax imposed on the sale of real property in the state of washington. The highest tax rate of 3.0% now applies to real estate sales of $3,025,001 and above, up from $3,000,001 and above previously. Per the washington state legislature, the department of revenue is required to adjust the selling price thresholds for real estate excise tax. Tax calculator for state reet tax. The state of washington levies a real estate excise tax (reet) upon most sales of real property. New graduated real estate excise tax. In washington, all real estate sales are subject to a transfer tax known as a real estate excise tax, or reet. The tax is calculated based on the full. This tool can calculate the transfer/excise taxes for a sale or reverse the calculation to estimate the sales price.
from www.katrinaeileen.com
The highest tax rate of 3.0% now applies to real estate sales of $3,025,001 and above, up from $3,000,001 and above previously. In washington, all real estate sales are subject to a transfer tax known as a real estate excise tax, or reet. This tool can calculate the transfer/excise taxes for a sale or reverse the calculation to estimate the sales price. Tax calculator for state reet tax. New graduated real estate excise tax. The state of washington levies a real estate excise tax (reet) upon most sales of real property. The tax is calculated based on the full. Per the washington state legislature, the department of revenue is required to adjust the selling price thresholds for real estate excise tax. Washington real estate excise tax calculator is a tax imposed on the sale of real property in the state of washington.
Washington State Real Excise Tax Calculator — Katrina Eileen Real Estate
Washington Real Estate Excise Tax Calculator The highest tax rate of 3.0% now applies to real estate sales of $3,025,001 and above, up from $3,000,001 and above previously. New graduated real estate excise tax. Tax calculator for state reet tax. In washington, all real estate sales are subject to a transfer tax known as a real estate excise tax, or reet. The tax is calculated based on the full. The state of washington levies a real estate excise tax (reet) upon most sales of real property. This tool can calculate the transfer/excise taxes for a sale or reverse the calculation to estimate the sales price. Per the washington state legislature, the department of revenue is required to adjust the selling price thresholds for real estate excise tax. The highest tax rate of 3.0% now applies to real estate sales of $3,025,001 and above, up from $3,000,001 and above previously. Washington real estate excise tax calculator is a tax imposed on the sale of real property in the state of washington.
From www.accesshomeclosing.com
Changes updated for real estate excise tax calculations Washington Real Estate Excise Tax Calculator Washington real estate excise tax calculator is a tax imposed on the sale of real property in the state of washington. The state of washington levies a real estate excise tax (reet) upon most sales of real property. The tax is calculated based on the full. Tax calculator for state reet tax. Per the washington state legislature, the department of. Washington Real Estate Excise Tax Calculator.
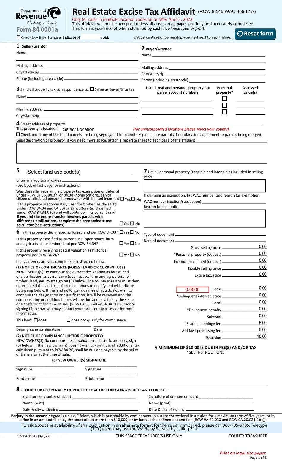
From www.templateroller.com
Form REV84 0004E Download Fillable PDF or Fill Online Real Estate Washington Real Estate Excise Tax Calculator Per the washington state legislature, the department of revenue is required to adjust the selling price thresholds for real estate excise tax. This tool can calculate the transfer/excise taxes for a sale or reverse the calculation to estimate the sales price. The state of washington levies a real estate excise tax (reet) upon most sales of real property. The tax. Washington Real Estate Excise Tax Calculator.
From www.pdffiller.com
Fillable Online Washington State Law requires that a Real Estate Excise Washington Real Estate Excise Tax Calculator Washington real estate excise tax calculator is a tax imposed on the sale of real property in the state of washington. New graduated real estate excise tax. The highest tax rate of 3.0% now applies to real estate sales of $3,025,001 and above, up from $3,000,001 and above previously. In washington, all real estate sales are subject to a transfer. Washington Real Estate Excise Tax Calculator.
From www.templateroller.com
Form REV84 0001BE Download Fillable PDF or Fill Online Real Estate Washington Real Estate Excise Tax Calculator The tax is calculated based on the full. Tax calculator for state reet tax. The highest tax rate of 3.0% now applies to real estate sales of $3,025,001 and above, up from $3,000,001 and above previously. Washington real estate excise tax calculator is a tax imposed on the sale of real property in the state of washington. The state of. Washington Real Estate Excise Tax Calculator.
From www.youtube.com
What is the Washington Real Estate Excise Tax YouTube Washington Real Estate Excise Tax Calculator This tool can calculate the transfer/excise taxes for a sale or reverse the calculation to estimate the sales price. New graduated real estate excise tax. The tax is calculated based on the full. In washington, all real estate sales are subject to a transfer tax known as a real estate excise tax, or reet. The highest tax rate of 3.0%. Washington Real Estate Excise Tax Calculator.
From www.templateroller.com
Form REV84 0005E1 Download Fillable PDF or Fill Online Real Estate Washington Real Estate Excise Tax Calculator In washington, all real estate sales are subject to a transfer tax known as a real estate excise tax, or reet. New graduated real estate excise tax. Washington real estate excise tax calculator is a tax imposed on the sale of real property in the state of washington. This tool can calculate the transfer/excise taxes for a sale or reverse. Washington Real Estate Excise Tax Calculator.
From myticor.com
Ticor Tech Tip Washington State Real Estate Excise Tax MyTicor Washington Real Estate Excise Tax Calculator Tax calculator for state reet tax. New graduated real estate excise tax. The tax is calculated based on the full. This tool can calculate the transfer/excise taxes for a sale or reverse the calculation to estimate the sales price. Washington real estate excise tax calculator is a tax imposed on the sale of real property in the state of washington.. Washington Real Estate Excise Tax Calculator.
From www.pdffiller.com
Real Estate Excise Tax (REET) King County, Washington Doc Template Washington Real Estate Excise Tax Calculator Per the washington state legislature, the department of revenue is required to adjust the selling price thresholds for real estate excise tax. New graduated real estate excise tax. The state of washington levies a real estate excise tax (reet) upon most sales of real property. The highest tax rate of 3.0% now applies to real estate sales of $3,025,001 and. Washington Real Estate Excise Tax Calculator.
From www.templateroller.com
Form REV84 0001A Fill Out, Sign Online and Download Fillable PDF Washington Real Estate Excise Tax Calculator Washington real estate excise tax calculator is a tax imposed on the sale of real property in the state of washington. This tool can calculate the transfer/excise taxes for a sale or reverse the calculation to estimate the sales price. The highest tax rate of 3.0% now applies to real estate sales of $3,025,001 and above, up from $3,000,001 and. Washington Real Estate Excise Tax Calculator.
From www.getgomezhomes.com
NEW Real Estate Excise Tax Rates Beginning in 2020 Washington Real Estate Excise Tax Calculator Per the washington state legislature, the department of revenue is required to adjust the selling price thresholds for real estate excise tax. The tax is calculated based on the full. New graduated real estate excise tax. The highest tax rate of 3.0% now applies to real estate sales of $3,025,001 and above, up from $3,000,001 and above previously. In washington,. Washington Real Estate Excise Tax Calculator.
From www.templateroller.com
Form REV84 0005E Fill Out, Sign Online and Download Fillable PDF Washington Real Estate Excise Tax Calculator New graduated real estate excise tax. In washington, all real estate sales are subject to a transfer tax known as a real estate excise tax, or reet. Washington real estate excise tax calculator is a tax imposed on the sale of real property in the state of washington. Tax calculator for state reet tax. The state of washington levies a. Washington Real Estate Excise Tax Calculator.
From kingcounty.gov
Real Estate Excise Tax (REET) King County, Washington Washington Real Estate Excise Tax Calculator The state of washington levies a real estate excise tax (reet) upon most sales of real property. The highest tax rate of 3.0% now applies to real estate sales of $3,025,001 and above, up from $3,000,001 and above previously. New graduated real estate excise tax. In washington, all real estate sales are subject to a transfer tax known as a. Washington Real Estate Excise Tax Calculator.
From jennywetzelhomes.com
WA State Real Estate Excise Tax January 2020 Changes Jenny Wetzel Homes Washington Real Estate Excise Tax Calculator This tool can calculate the transfer/excise taxes for a sale or reverse the calculation to estimate the sales price. The state of washington levies a real estate excise tax (reet) upon most sales of real property. Washington real estate excise tax calculator is a tax imposed on the sale of real property in the state of washington. The tax is. Washington Real Estate Excise Tax Calculator.
From www.clark.wa.gov
Real Estate Excise Taxes Clark County Washington Real Estate Excise Tax Calculator The highest tax rate of 3.0% now applies to real estate sales of $3,025,001 and above, up from $3,000,001 and above previously. This tool can calculate the transfer/excise taxes for a sale or reverse the calculation to estimate the sales price. In washington, all real estate sales are subject to a transfer tax known as a real estate excise tax,. Washington Real Estate Excise Tax Calculator.
From www.accesshomeclosing.com
Changes updated for real estate excise tax calculations Washington Real Estate Excise Tax Calculator In washington, all real estate sales are subject to a transfer tax known as a real estate excise tax, or reet. Per the washington state legislature, the department of revenue is required to adjust the selling price thresholds for real estate excise tax. New graduated real estate excise tax. The highest tax rate of 3.0% now applies to real estate. Washington Real Estate Excise Tax Calculator.
From www.signnow.com
Washington Real Estate Excise Tax 20222024 Form Fill Out and Sign Washington Real Estate Excise Tax Calculator New graduated real estate excise tax. Washington real estate excise tax calculator is a tax imposed on the sale of real property in the state of washington. The state of washington levies a real estate excise tax (reet) upon most sales of real property. This tool can calculate the transfer/excise taxes for a sale or reverse the calculation to estimate. Washington Real Estate Excise Tax Calculator.
From www.pdffiller.com
Fillable Online dor wa REAL ESTATE EXCISE TAX AFFIDAVIT Fax Email Print Washington Real Estate Excise Tax Calculator Washington real estate excise tax calculator is a tax imposed on the sale of real property in the state of washington. Per the washington state legislature, the department of revenue is required to adjust the selling price thresholds for real estate excise tax. The tax is calculated based on the full. New graduated real estate excise tax. Tax calculator for. Washington Real Estate Excise Tax Calculator.
From www.templateroller.com
Form REV84 0002EA Download Fillable PDF or Fill Online Real Estate Washington Real Estate Excise Tax Calculator In washington, all real estate sales are subject to a transfer tax known as a real estate excise tax, or reet. Tax calculator for state reet tax. This tool can calculate the transfer/excise taxes for a sale or reverse the calculation to estimate the sales price. The tax is calculated based on the full. Washington real estate excise tax calculator. Washington Real Estate Excise Tax Calculator.
From www.printableaffidavitform.com
Wa Real Estate Excise Tax Affidavit Forms 2023 Washington Real Estate Excise Tax Calculator The highest tax rate of 3.0% now applies to real estate sales of $3,025,001 and above, up from $3,000,001 and above previously. This tool can calculate the transfer/excise taxes for a sale or reverse the calculation to estimate the sales price. In washington, all real estate sales are subject to a transfer tax known as a real estate excise tax,. Washington Real Estate Excise Tax Calculator.
From willspringerrealtor.com
Washington State Introducing New Real Estate Excise Tax Rates on Washington Real Estate Excise Tax Calculator The highest tax rate of 3.0% now applies to real estate sales of $3,025,001 and above, up from $3,000,001 and above previously. In washington, all real estate sales are subject to a transfer tax known as a real estate excise tax, or reet. Washington real estate excise tax calculator is a tax imposed on the sale of real property in. Washington Real Estate Excise Tax Calculator.
From formspal.com
Washington Real Estate Excise Tax Affidavit [Fillable PDF] Washington Real Estate Excise Tax Calculator Per the washington state legislature, the department of revenue is required to adjust the selling price thresholds for real estate excise tax. Tax calculator for state reet tax. This tool can calculate the transfer/excise taxes for a sale or reverse the calculation to estimate the sales price. The state of washington levies a real estate excise tax (reet) upon most. Washington Real Estate Excise Tax Calculator.
From www.templateroller.com
Form REV84 0001A Download Printable PDF or Fill Online Real Estate Washington Real Estate Excise Tax Calculator Per the washington state legislature, the department of revenue is required to adjust the selling price thresholds for real estate excise tax. New graduated real estate excise tax. Washington real estate excise tax calculator is a tax imposed on the sale of real property in the state of washington. This tool can calculate the transfer/excise taxes for a sale or. Washington Real Estate Excise Tax Calculator.
From exylllkbn.blob.core.windows.net
Washington State Real Estate Excise Tax Rates at Matthew Shuler blog Washington Real Estate Excise Tax Calculator Washington real estate excise tax calculator is a tax imposed on the sale of real property in the state of washington. Tax calculator for state reet tax. The tax is calculated based on the full. This tool can calculate the transfer/excise taxes for a sale or reverse the calculation to estimate the sales price. In washington, all real estate sales. Washington Real Estate Excise Tax Calculator.
From juliebillett.com
New Formula for Real Estate Excise Tax Julie Billett Washington Real Estate Excise Tax Calculator New graduated real estate excise tax. In washington, all real estate sales are subject to a transfer tax known as a real estate excise tax, or reet. The tax is calculated based on the full. Washington real estate excise tax calculator is a tax imposed on the sale of real property in the state of washington. Per the washington state. Washington Real Estate Excise Tax Calculator.
From www.templateroller.com
Form REV84 0002EA Download Fillable PDF or Fill Online Real Estate Washington Real Estate Excise Tax Calculator The highest tax rate of 3.0% now applies to real estate sales of $3,025,001 and above, up from $3,000,001 and above previously. The tax is calculated based on the full. Tax calculator for state reet tax. New graduated real estate excise tax. The state of washington levies a real estate excise tax (reet) upon most sales of real property. Washington. Washington Real Estate Excise Tax Calculator.
From myticor.com
Ticor Tech Tip Washington State Real Estate Excise Tax MyTicor Washington Real Estate Excise Tax Calculator Washington real estate excise tax calculator is a tax imposed on the sale of real property in the state of washington. The highest tax rate of 3.0% now applies to real estate sales of $3,025,001 and above, up from $3,000,001 and above previously. In washington, all real estate sales are subject to a transfer tax known as a real estate. Washington Real Estate Excise Tax Calculator.
From www.krem.com
How the new Washington state budget will affect your taxes Washington Real Estate Excise Tax Calculator The tax is calculated based on the full. New graduated real estate excise tax. Tax calculator for state reet tax. The state of washington levies a real estate excise tax (reet) upon most sales of real property. Per the washington state legislature, the department of revenue is required to adjust the selling price thresholds for real estate excise tax. This. Washington Real Estate Excise Tax Calculator.
From www.katrinaeileen.com
Washington State Real Excise Tax Calculator — Katrina Eileen Real Estate Washington Real Estate Excise Tax Calculator This tool can calculate the transfer/excise taxes for a sale or reverse the calculation to estimate the sales price. Washington real estate excise tax calculator is a tax imposed on the sale of real property in the state of washington. Tax calculator for state reet tax. In washington, all real estate sales are subject to a transfer tax known as. Washington Real Estate Excise Tax Calculator.
From www.printableaffidavitform.com
Wa Real Estate Excise Tax Affidavit Forms 2023 Washington Real Estate Excise Tax Calculator This tool can calculate the transfer/excise taxes for a sale or reverse the calculation to estimate the sales price. Per the washington state legislature, the department of revenue is required to adjust the selling price thresholds for real estate excise tax. The highest tax rate of 3.0% now applies to real estate sales of $3,025,001 and above, up from $3,000,001. Washington Real Estate Excise Tax Calculator.
From www.templateroller.com
Form REV84 0001A Fill Out, Sign Online and Download Fillable PDF Washington Real Estate Excise Tax Calculator Washington real estate excise tax calculator is a tax imposed on the sale of real property in the state of washington. The tax is calculated based on the full. The highest tax rate of 3.0% now applies to real estate sales of $3,025,001 and above, up from $3,000,001 and above previously. Per the washington state legislature, the department of revenue. Washington Real Estate Excise Tax Calculator.
From itep.org
Washington Who Pays? 7th Edition ITEP Washington Real Estate Excise Tax Calculator In washington, all real estate sales are subject to a transfer tax known as a real estate excise tax, or reet. This tool can calculate the transfer/excise taxes for a sale or reverse the calculation to estimate the sales price. New graduated real estate excise tax. Per the washington state legislature, the department of revenue is required to adjust the. Washington Real Estate Excise Tax Calculator.
From www.pdffiller.com
Fillable Online Real estate excise tax forms Washington Department of Washington Real Estate Excise Tax Calculator The tax is calculated based on the full. Washington real estate excise tax calculator is a tax imposed on the sale of real property in the state of washington. The state of washington levies a real estate excise tax (reet) upon most sales of real property. Per the washington state legislature, the department of revenue is required to adjust the. Washington Real Estate Excise Tax Calculator.
From www.templateroller.com
Form REV84 0018 Download Fillable PDF or Fill Online Real Estate Excise Washington Real Estate Excise Tax Calculator In washington, all real estate sales are subject to a transfer tax known as a real estate excise tax, or reet. New graduated real estate excise tax. Per the washington state legislature, the department of revenue is required to adjust the selling price thresholds for real estate excise tax. The highest tax rate of 3.0% now applies to real estate. Washington Real Estate Excise Tax Calculator.
From www.templateroller.com
Form REV84 0001A Fill Out, Sign Online and Download Fillable PDF Washington Real Estate Excise Tax Calculator Tax calculator for state reet tax. The state of washington levies a real estate excise tax (reet) upon most sales of real property. Washington real estate excise tax calculator is a tax imposed on the sale of real property in the state of washington. The highest tax rate of 3.0% now applies to real estate sales of $3,025,001 and above,. Washington Real Estate Excise Tax Calculator.
From www.youtube.com
How To Calculate Excise Tax On Real Estate? YouTube Washington Real Estate Excise Tax Calculator Washington real estate excise tax calculator is a tax imposed on the sale of real property in the state of washington. This tool can calculate the transfer/excise taxes for a sale or reverse the calculation to estimate the sales price. Tax calculator for state reet tax. Per the washington state legislature, the department of revenue is required to adjust the. Washington Real Estate Excise Tax Calculator.