Awning Design Criteria . An awning and canopy purpose would satisfy any one or all the following functional objectives: Weather protection (sun, rain, snow, sleet,. Awning truss designs will need engineering assistance in one form or another, so it is best to identify them as early as possible and involve the. This design guide for awnings and canopies considers the aesthetic impact this will have on your building, you can usually find what. When specifying an awning consider the following criteria: After a stable configuration has been established for an awning design frame, members should be chosen for a strength consistent with the amount and. Location, placement, dimensions, fabric material and color, shape, graphics and signage, lighting, heating, and. A key improvement is the addition.
from www.theawningfactory.ca
Awning truss designs will need engineering assistance in one form or another, so it is best to identify them as early as possible and involve the. A key improvement is the addition. Location, placement, dimensions, fabric material and color, shape, graphics and signage, lighting, heating, and. An awning and canopy purpose would satisfy any one or all the following functional objectives: After a stable configuration has been established for an awning design frame, members should be chosen for a strength consistent with the amount and. This design guide for awnings and canopies considers the aesthetic impact this will have on your building, you can usually find what. Weather protection (sun, rain, snow, sleet,. When specifying an awning consider the following criteria:
Window Awnings — The Awning Factory
Awning Design Criteria Weather protection (sun, rain, snow, sleet,. Location, placement, dimensions, fabric material and color, shape, graphics and signage, lighting, heating, and. A key improvement is the addition. This design guide for awnings and canopies considers the aesthetic impact this will have on your building, you can usually find what. Weather protection (sun, rain, snow, sleet,. When specifying an awning consider the following criteria: After a stable configuration has been established for an awning design frame, members should be chosen for a strength consistent with the amount and. An awning and canopy purpose would satisfy any one or all the following functional objectives: Awning truss designs will need engineering assistance in one form or another, so it is best to identify them as early as possible and involve the.
From joifrvxkr.blob.core.windows.net
Best Awning Company Littleton Co at Charles Lett blog Awning Design Criteria An awning and canopy purpose would satisfy any one or all the following functional objectives: After a stable configuration has been established for an awning design frame, members should be chosen for a strength consistent with the amount and. A key improvement is the addition. When specifying an awning consider the following criteria: Location, placement, dimensions, fabric material and color,. Awning Design Criteria.
From dxogfpvzg.blob.core.windows.net
What Is An Awning On A House at Robert Mathis blog Awning Design Criteria Weather protection (sun, rain, snow, sleet,. A key improvement is the addition. An awning and canopy purpose would satisfy any one or all the following functional objectives: Awning truss designs will need engineering assistance in one form or another, so it is best to identify them as early as possible and involve the. This design guide for awnings and canopies. Awning Design Criteria.
From retractableawningsreviews.com
7 Pro Tips for Business Awning Design Awning Design Criteria When specifying an awning consider the following criteria: Awning truss designs will need engineering assistance in one form or another, so it is best to identify them as early as possible and involve the. This design guide for awnings and canopies considers the aesthetic impact this will have on your building, you can usually find what. Location, placement, dimensions, fabric. Awning Design Criteria.
From loevbsnpg.blob.core.windows.net
Awning For Single Storey House at Lester Mccloud blog Awning Design Criteria A key improvement is the addition. When specifying an awning consider the following criteria: After a stable configuration has been established for an awning design frame, members should be chosen for a strength consistent with the amount and. An awning and canopy purpose would satisfy any one or all the following functional objectives: Weather protection (sun, rain, snow, sleet,. Awning. Awning Design Criteria.
From ahoffmanawning.com
CAD Drawings Gallery A. Hoffman Awning Co Awning Design Criteria When specifying an awning consider the following criteria: Location, placement, dimensions, fabric material and color, shape, graphics and signage, lighting, heating, and. A key improvement is the addition. Weather protection (sun, rain, snow, sleet,. After a stable configuration has been established for an awning design frame, members should be chosen for a strength consistent with the amount and. An awning. Awning Design Criteria.
From www.scribd.com
Awning Design C PDF Nature Awning Design Criteria When specifying an awning consider the following criteria: Location, placement, dimensions, fabric material and color, shape, graphics and signage, lighting, heating, and. An awning and canopy purpose would satisfy any one or all the following functional objectives: Awning truss designs will need engineering assistance in one form or another, so it is best to identify them as early as possible. Awning Design Criteria.
From specialtyfabricsreview.com
Promote awnings with the “All About Fabric Awnings” guide Specialty Awning Design Criteria After a stable configuration has been established for an awning design frame, members should be chosen for a strength consistent with the amount and. This design guide for awnings and canopies considers the aesthetic impact this will have on your building, you can usually find what. Weather protection (sun, rain, snow, sleet,. Awning truss designs will need engineering assistance in. Awning Design Criteria.
From www.commercial-awnings.co.uk
Vintage Style Our Unique Greenwich Awning Design Commercial Awning Awning Design Criteria Awning truss designs will need engineering assistance in one form or another, so it is best to identify them as early as possible and involve the. Location, placement, dimensions, fabric material and color, shape, graphics and signage, lighting, heating, and. This design guide for awnings and canopies considers the aesthetic impact this will have on your building, you can usually. Awning Design Criteria.
From www.theawningfactory.ca
Window Awnings — The Awning Factory Awning Design Criteria Location, placement, dimensions, fabric material and color, shape, graphics and signage, lighting, heating, and. Awning truss designs will need engineering assistance in one form or another, so it is best to identify them as early as possible and involve the. After a stable configuration has been established for an awning design frame, members should be chosen for a strength consistent. Awning Design Criteria.
From www.angi.com
Types Of Awnings for Your Home Awning Design Criteria An awning and canopy purpose would satisfy any one or all the following functional objectives: Location, placement, dimensions, fabric material and color, shape, graphics and signage, lighting, heating, and. After a stable configuration has been established for an awning design frame, members should be chosen for a strength consistent with the amount and. This design guide for awnings and canopies. Awning Design Criteria.
From goasher.com
What Is An Awning? 6 Types Of House Awnings Awning Design Criteria This design guide for awnings and canopies considers the aesthetic impact this will have on your building, you can usually find what. After a stable configuration has been established for an awning design frame, members should be chosen for a strength consistent with the amount and. When specifying an awning consider the following criteria: An awning and canopy purpose would. Awning Design Criteria.
From www.summerspace.com
What Sizes Do Retractable Patio Awnings Come In? SummerSpace Awning Design Criteria A key improvement is the addition. This design guide for awnings and canopies considers the aesthetic impact this will have on your building, you can usually find what. When specifying an awning consider the following criteria: Weather protection (sun, rain, snow, sleet,. An awning and canopy purpose would satisfy any one or all the following functional objectives: After a stable. Awning Design Criteria.
From ghar360.com
Awnings & Canopies Types and Designs Awning Design Criteria After a stable configuration has been established for an awning design frame, members should be chosen for a strength consistent with the amount and. An awning and canopy purpose would satisfy any one or all the following functional objectives: When specifying an awning consider the following criteria: A key improvement is the addition. Weather protection (sun, rain, snow, sleet,. Awning. Awning Design Criteria.
From ghar360.com
Awnings & Canopies Types and Designs Awning Design Criteria An awning and canopy purpose would satisfy any one or all the following functional objectives: A key improvement is the addition. Location, placement, dimensions, fabric material and color, shape, graphics and signage, lighting, heating, and. Awning truss designs will need engineering assistance in one form or another, so it is best to identify them as early as possible and involve. Awning Design Criteria.
From www.scribd.com
Canopies and Awnings Design Guidelines Tralee Town Council Comhairle Awning Design Criteria When specifying an awning consider the following criteria: After a stable configuration has been established for an awning design frame, members should be chosen for a strength consistent with the amount and. A key improvement is the addition. This design guide for awnings and canopies considers the aesthetic impact this will have on your building, you can usually find what.. Awning Design Criteria.
From www.pinterest.com
Pin by Janell Joseph on design guidelines Door awnings, Front door Awning Design Criteria A key improvement is the addition. An awning and canopy purpose would satisfy any one or all the following functional objectives: Location, placement, dimensions, fabric material and color, shape, graphics and signage, lighting, heating, and. This design guide for awnings and canopies considers the aesthetic impact this will have on your building, you can usually find what. Weather protection (sun,. Awning Design Criteria.
From studylib.net
Sign and Awning Design Guidelines Awning Design Criteria When specifying an awning consider the following criteria: After a stable configuration has been established for an awning design frame, members should be chosen for a strength consistent with the amount and. Awning truss designs will need engineering assistance in one form or another, so it is best to identify them as early as possible and involve the. A key. Awning Design Criteria.
From carolinacanvasandawning.com
Custom Fabric Awning Design & Installation Carolina Canvas & Awning Awning Design Criteria An awning and canopy purpose would satisfy any one or all the following functional objectives: Weather protection (sun, rain, snow, sleet,. When specifying an awning consider the following criteria: This design guide for awnings and canopies considers the aesthetic impact this will have on your building, you can usually find what. After a stable configuration has been established for an. Awning Design Criteria.
From idflatroof.com
Deck and Patio Awnings Top 10 Design Ideas for Any Taste and Budget Awning Design Criteria Awning truss designs will need engineering assistance in one form or another, so it is best to identify them as early as possible and involve the. This design guide for awnings and canopies considers the aesthetic impact this will have on your building, you can usually find what. After a stable configuration has been established for an awning design frame,. Awning Design Criteria.
From davisawning.com
Window Awning DAVIS Awning Design Criteria After a stable configuration has been established for an awning design frame, members should be chosen for a strength consistent with the amount and. When specifying an awning consider the following criteria: This design guide for awnings and canopies considers the aesthetic impact this will have on your building, you can usually find what. Location, placement, dimensions, fabric material and. Awning Design Criteria.
From ahoffmanawning.com
CAD Drawings Gallery A. Hoffman Awning Co Awning Design Criteria This design guide for awnings and canopies considers the aesthetic impact this will have on your building, you can usually find what. A key improvement is the addition. Awning truss designs will need engineering assistance in one form or another, so it is best to identify them as early as possible and involve the. Location, placement, dimensions, fabric material and. Awning Design Criteria.
From blog.alekoproducts.com
Choosing the Right Awning Design and Style ALEKO Awning Design Criteria When specifying an awning consider the following criteria: A key improvement is the addition. This design guide for awnings and canopies considers the aesthetic impact this will have on your building, you can usually find what. Location, placement, dimensions, fabric material and color, shape, graphics and signage, lighting, heating, and. An awning and canopy purpose would satisfy any one or. Awning Design Criteria.
From loerycikp.blob.core.windows.net
Which Porch Awning Is Best at James Greco blog Awning Design Criteria This design guide for awnings and canopies considers the aesthetic impact this will have on your building, you can usually find what. A key improvement is the addition. Location, placement, dimensions, fabric material and color, shape, graphics and signage, lighting, heating, and. An awning and canopy purpose would satisfy any one or all the following functional objectives: When specifying an. Awning Design Criteria.
From www.pinterest.co.kr
Inspiring points that we are keen on! commercialawning House awnings Awning Design Criteria Location, placement, dimensions, fabric material and color, shape, graphics and signage, lighting, heating, and. This design guide for awnings and canopies considers the aesthetic impact this will have on your building, you can usually find what. After a stable configuration has been established for an awning design frame, members should be chosen for a strength consistent with the amount and.. Awning Design Criteria.
From www.openspaceconcepts.co.uk
Creative Awning Design Ideas Open Space Concepts Open Space Concepts Awning Design Criteria This design guide for awnings and canopies considers the aesthetic impact this will have on your building, you can usually find what. Awning truss designs will need engineering assistance in one form or another, so it is best to identify them as early as possible and involve the. Weather protection (sun, rain, snow, sleet,. A key improvement is the addition.. Awning Design Criteria.
From www.summerspace.com
Window Awning Design Ideas to Maximize the Style of Your Outdoor Space Awning Design Criteria Location, placement, dimensions, fabric material and color, shape, graphics and signage, lighting, heating, and. Awning truss designs will need engineering assistance in one form or another, so it is best to identify them as early as possible and involve the. An awning and canopy purpose would satisfy any one or all the following functional objectives: When specifying an awning consider. Awning Design Criteria.
From www.randolphsunoco.com
How To Build A Front Porch Awning — Randolph Indoor and Outdoor Design Awning Design Criteria Awning truss designs will need engineering assistance in one form or another, so it is best to identify them as early as possible and involve the. An awning and canopy purpose would satisfy any one or all the following functional objectives: After a stable configuration has been established for an awning design frame, members should be chosen for a strength. Awning Design Criteria.
From awningsnewyork.com
Roadway and Sidewalk Seating Awnings New York New York City Signs Awning Design Criteria When specifying an awning consider the following criteria: Awning truss designs will need engineering assistance in one form or another, so it is best to identify them as early as possible and involve the. Location, placement, dimensions, fabric material and color, shape, graphics and signage, lighting, heating, and. After a stable configuration has been established for an awning design frame,. Awning Design Criteria.
From ghar360.com
Awnings & Canopies Types and Designs Awning Design Criteria After a stable configuration has been established for an awning design frame, members should be chosen for a strength consistent with the amount and. An awning and canopy purpose would satisfy any one or all the following functional objectives: This design guide for awnings and canopies considers the aesthetic impact this will have on your building, you can usually find. Awning Design Criteria.
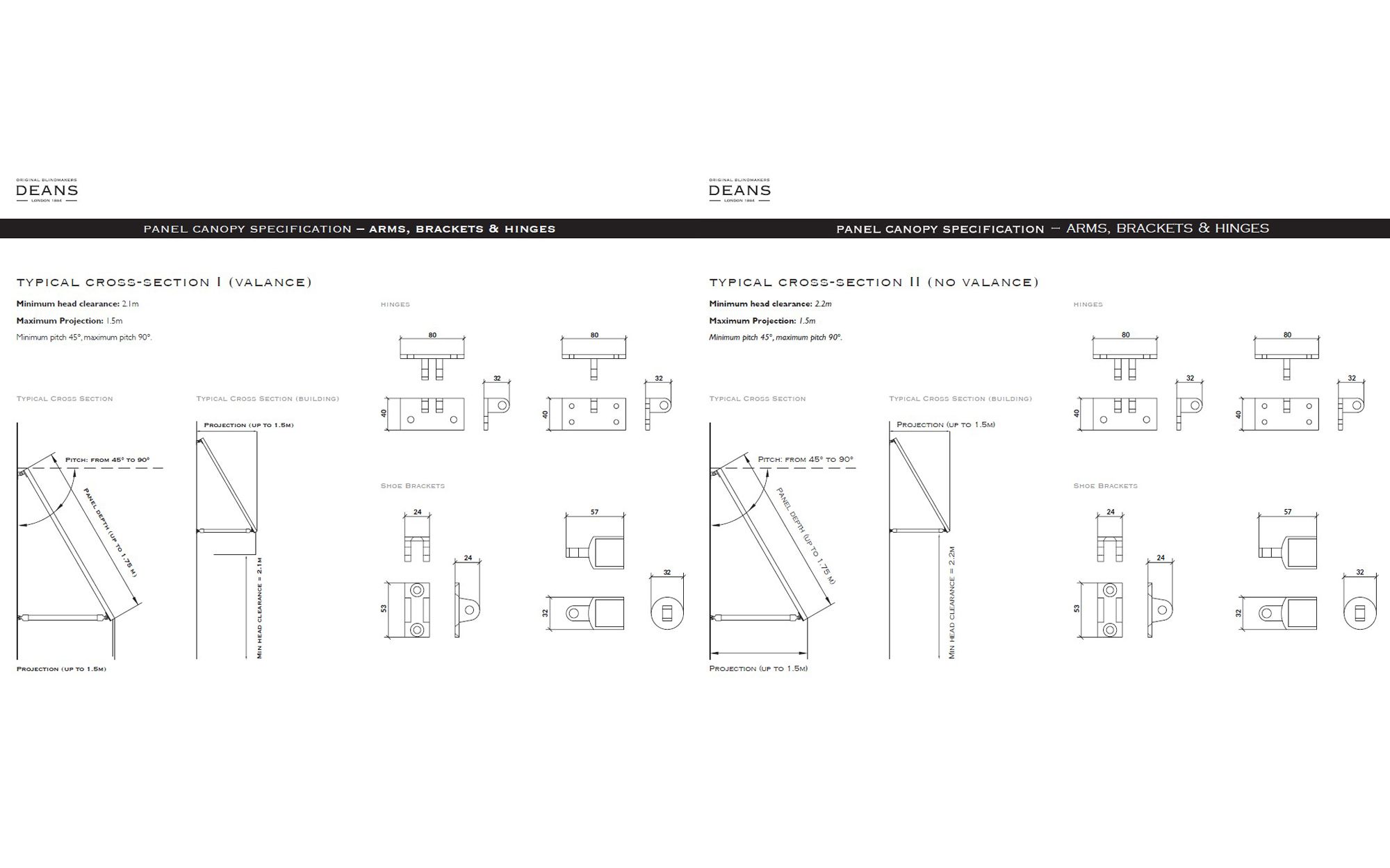
From www.deansblinds.co.uk
Aesthetic Brilliance, Practical Excellence Awning Design at Its Best Awning Design Criteria This design guide for awnings and canopies considers the aesthetic impact this will have on your building, you can usually find what. Awning truss designs will need engineering assistance in one form or another, so it is best to identify them as early as possible and involve the. An awning and canopy purpose would satisfy any one or all the. Awning Design Criteria.
From dxofannjk.blob.core.windows.net
Awning Roof Ideas at Elvin Strouse blog Awning Design Criteria Location, placement, dimensions, fabric material and color, shape, graphics and signage, lighting, heating, and. An awning and canopy purpose would satisfy any one or all the following functional objectives: When specifying an awning consider the following criteria: This design guide for awnings and canopies considers the aesthetic impact this will have on your building, you can usually find what. Weather. Awning Design Criteria.
From manabouttools.com
Wood Awning Frame Bracket Digital Plan MAN About TOOLS Awning Design Criteria A key improvement is the addition. After a stable configuration has been established for an awning design frame, members should be chosen for a strength consistent with the amount and. This design guide for awnings and canopies considers the aesthetic impact this will have on your building, you can usually find what. Awning truss designs will need engineering assistance in. Awning Design Criteria.
From blog.alekoproducts.com
Choosing the Right Awning Design and Style ALEKO Awning Design Criteria After a stable configuration has been established for an awning design frame, members should be chosen for a strength consistent with the amount and. This design guide for awnings and canopies considers the aesthetic impact this will have on your building, you can usually find what. A key improvement is the addition. Location, placement, dimensions, fabric material and color, shape,. Awning Design Criteria.
From www.scribd.com
Awning Appearance Code and Design Guidelines PDF Lighting Typefaces Awning Design Criteria An awning and canopy purpose would satisfy any one or all the following functional objectives: This design guide for awnings and canopies considers the aesthetic impact this will have on your building, you can usually find what. Weather protection (sun, rain, snow, sleet,. After a stable configuration has been established for an awning design frame, members should be chosen for. Awning Design Criteria.
From www.dimensions.com
Awning Window Clear Dimensions & Drawings Awning Design Criteria Awning truss designs will need engineering assistance in one form or another, so it is best to identify them as early as possible and involve the. Location, placement, dimensions, fabric material and color, shape, graphics and signage, lighting, heating, and. After a stable configuration has been established for an awning design frame, members should be chosen for a strength consistent. Awning Design Criteria.