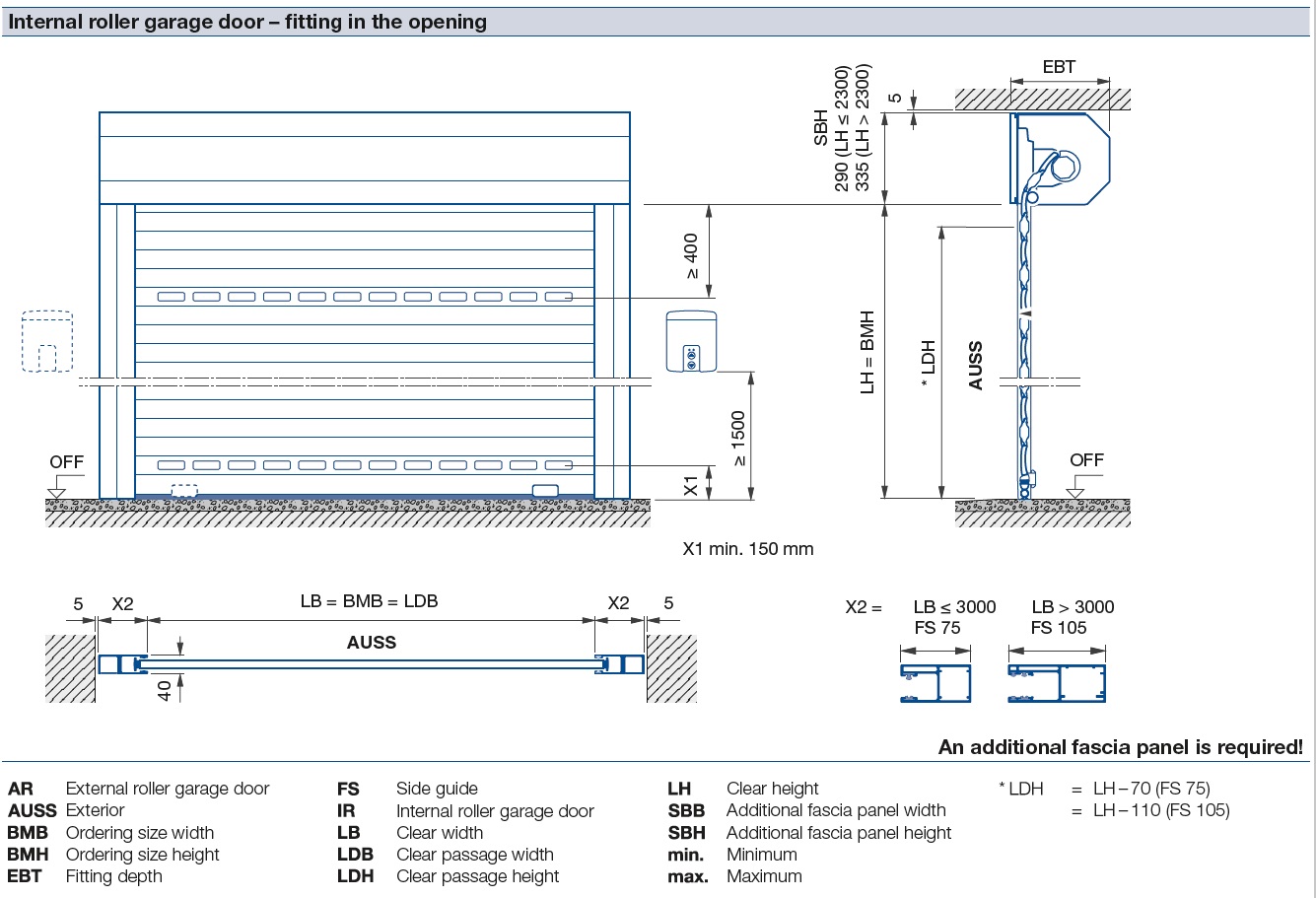
How To Adjust Height On Roller Door . A quick demonstration on how to set the travel limits of your gliderol roller door opener. To adjust • set door to manual operation using the manual release lever (refer image 4).4 • remove the cam gear cover on the drive unit to gain access to the internal cams • loosen cam. If you are face fixing your roller door, ensure that the guide height is at least 50mm above the structural opening in order to maximise the. The merlin roller door openers can fit to the left or right hand side of your garage door, depending upon space. I have a novorol roller garage door system. The whole rooler door managed to come off its rollers. Check all fixing points on the guides. Here at rollerdor ltd, we have put together a number of garage door videos, tutorials, and guides to help you with your new garage door. I have fixed back but when i open the.
from www.youtube.com
To adjust • set door to manual operation using the manual release lever (refer image 4).4 • remove the cam gear cover on the drive unit to gain access to the internal cams • loosen cam. If you are face fixing your roller door, ensure that the guide height is at least 50mm above the structural opening in order to maximise the. A quick demonstration on how to set the travel limits of your gliderol roller door opener. The whole rooler door managed to come off its rollers. Here at rollerdor ltd, we have put together a number of garage door videos, tutorials, and guides to help you with your new garage door. I have a novorol roller garage door system. Check all fixing points on the guides. The merlin roller door openers can fit to the left or right hand side of your garage door, depending upon space. I have fixed back but when i open the.
How To Replace the Rollers on a Premium Wood Sliding Patio Door YouTube
How To Adjust Height On Roller Door The merlin roller door openers can fit to the left or right hand side of your garage door, depending upon space. The whole rooler door managed to come off its rollers. If you are face fixing your roller door, ensure that the guide height is at least 50mm above the structural opening in order to maximise the. Check all fixing points on the guides. Here at rollerdor ltd, we have put together a number of garage door videos, tutorials, and guides to help you with your new garage door. I have a novorol roller garage door system. A quick demonstration on how to set the travel limits of your gliderol roller door opener. The merlin roller door openers can fit to the left or right hand side of your garage door, depending upon space. I have fixed back but when i open the. To adjust • set door to manual operation using the manual release lever (refer image 4).4 • remove the cam gear cover on the drive unit to gain access to the internal cams • loosen cam.
From www.youtube.com
How To Replace and Adjust Rollers on Andersen® Gliding Patio Doors How To Adjust Height On Roller Door A quick demonstration on how to set the travel limits of your gliderol roller door opener. I have fixed back but when i open the. The whole rooler door managed to come off its rollers. I have a novorol roller garage door system. Check all fixing points on the guides. To adjust • set door to manual operation using the. How To Adjust Height On Roller Door.
From www.samsondoors.co.uk
Rollmatic Tubular Drive Colour Finish Roller Garage Doors How To Adjust Height On Roller Door I have fixed back but when i open the. I have a novorol roller garage door system. To adjust • set door to manual operation using the manual release lever (refer image 4).4 • remove the cam gear cover on the drive unit to gain access to the internal cams • loosen cam. The merlin roller door openers can fit. How To Adjust Height On Roller Door.
From klazknozu.blob.core.windows.net
How To Put A Sliding Door On Track at Dennis Blankenship blog How To Adjust Height On Roller Door The merlin roller door openers can fit to the left or right hand side of your garage door, depending upon space. A quick demonstration on how to set the travel limits of your gliderol roller door opener. I have a novorol roller garage door system. I have fixed back but when i open the. Check all fixing points on the. How To Adjust Height On Roller Door.
From joiklewkp.blob.core.windows.net
How To Change Rollers In A Sliding Glass Door at Kevin Macintyre blog How To Adjust Height On Roller Door A quick demonstration on how to set the travel limits of your gliderol roller door opener. Check all fixing points on the guides. The merlin roller door openers can fit to the left or right hand side of your garage door, depending upon space. I have fixed back but when i open the. Here at rollerdor ltd, we have put. How To Adjust Height On Roller Door.
From www.samsondoors.co.uk
Gliderol Roller Garage Door Measuring and Ordering Roller Door How To Adjust Height On Roller Door The merlin roller door openers can fit to the left or right hand side of your garage door, depending upon space. Check all fixing points on the guides. To adjust • set door to manual operation using the manual release lever (refer image 4).4 • remove the cam gear cover on the drive unit to gain access to the internal. How To Adjust Height On Roller Door.
From www.samsondoors.co.uk
Rollmatic Tubular Drive Colour Finish Roller Garage Doors How To Adjust Height On Roller Door I have fixed back but when i open the. A quick demonstration on how to set the travel limits of your gliderol roller door opener. If you are face fixing your roller door, ensure that the guide height is at least 50mm above the structural opening in order to maximise the. The whole rooler door managed to come off its. How To Adjust Height On Roller Door.
From rollerdor.net
Common Roller Garage Door Sizes Rollerdor Ltd How To Adjust Height On Roller Door The merlin roller door openers can fit to the left or right hand side of your garage door, depending upon space. Here at rollerdor ltd, we have put together a number of garage door videos, tutorials, and guides to help you with your new garage door. I have fixed back but when i open the. The whole rooler door managed. How To Adjust Height On Roller Door.
From glassandoor.com
How To Adjust Rollers On Sliding Glass Door Glass Door Ideas How To Adjust Height On Roller Door I have a novorol roller garage door system. The merlin roller door openers can fit to the left or right hand side of your garage door, depending upon space. To adjust • set door to manual operation using the manual release lever (refer image 4).4 • remove the cam gear cover on the drive unit to gain access to the. How To Adjust Height On Roller Door.
From www.perthgaragedoorshowroom.com.au
Roller Doors for Sale in Perth — Perth Garage Door Showroom How To Adjust Height On Roller Door The merlin roller door openers can fit to the left or right hand side of your garage door, depending upon space. A quick demonstration on how to set the travel limits of your gliderol roller door opener. If you are face fixing your roller door, ensure that the guide height is at least 50mm above the structural opening in order. How To Adjust Height On Roller Door.
From arridgegaragedoors.co.uk
How to correctly measure for a new roller shutter garage door How To Adjust Height On Roller Door I have a novorol roller garage door system. The merlin roller door openers can fit to the left or right hand side of your garage door, depending upon space. The whole rooler door managed to come off its rollers. To adjust • set door to manual operation using the manual release lever (refer image 4).4 • remove the cam gear. How To Adjust Height On Roller Door.
From www.samsondoors.co.uk
Seceuroglide Roller Door Measuring and Ordering Samson Doors UK How To Adjust Height On Roller Door The merlin roller door openers can fit to the left or right hand side of your garage door, depending upon space. A quick demonstration on how to set the travel limits of your gliderol roller door opener. I have fixed back but when i open the. Here at rollerdor ltd, we have put together a number of garage door videos,. How To Adjust Height On Roller Door.
From www.wikihow.com
3 Ways to Adjust Sliding Glass Door Rollers wikiHow How To Adjust Height On Roller Door Here at rollerdor ltd, we have put together a number of garage door videos, tutorials, and guides to help you with your new garage door. A quick demonstration on how to set the travel limits of your gliderol roller door opener. The whole rooler door managed to come off its rollers. I have fixed back but when i open the.. How To Adjust Height On Roller Door.
From ceuxcejg.blob.core.windows.net
How To Adjust Sliding Doors Rollers at Mandy Garrett blog How To Adjust Height On Roller Door The merlin roller door openers can fit to the left or right hand side of your garage door, depending upon space. Check all fixing points on the guides. I have fixed back but when i open the. Here at rollerdor ltd, we have put together a number of garage door videos, tutorials, and guides to help you with your new. How To Adjust Height On Roller Door.
From www.youtube.com
How to adjust a screen door roller YouTube How To Adjust Height On Roller Door Check all fixing points on the guides. Here at rollerdor ltd, we have put together a number of garage door videos, tutorials, and guides to help you with your new garage door. If you are face fixing your roller door, ensure that the guide height is at least 50mm above the structural opening in order to maximise the. The whole. How To Adjust Height On Roller Door.
From nictutor.blogspot.com
How To Adjust Sliding Glass Door Height How To Adjust Height On Roller Door I have fixed back but when i open the. If you are face fixing your roller door, ensure that the guide height is at least 50mm above the structural opening in order to maximise the. To adjust • set door to manual operation using the manual release lever (refer image 4).4 • remove the cam gear cover on the drive. How To Adjust Height On Roller Door.
From www.youtube.com
Adjusting Pocket door rollers [pocket door 101] amazon link YouTube How To Adjust Height On Roller Door A quick demonstration on how to set the travel limits of your gliderol roller door opener. If you are face fixing your roller door, ensure that the guide height is at least 50mm above the structural opening in order to maximise the. Here at rollerdor ltd, we have put together a number of garage door videos, tutorials, and guides to. How To Adjust Height On Roller Door.
From threesinha.lk
Roller Doors Three Sinha How To Adjust Height On Roller Door I have a novorol roller garage door system. To adjust • set door to manual operation using the manual release lever (refer image 4).4 • remove the cam gear cover on the drive unit to gain access to the internal cams • loosen cam. If you are face fixing your roller door, ensure that the guide height is at least. How To Adjust Height On Roller Door.
From easyfitgaragedoor.co.uk
Roller Garage Door Fitting EasyFit Garage Doors How To Adjust Height On Roller Door If you are face fixing your roller door, ensure that the guide height is at least 50mm above the structural opening in order to maximise the. The whole rooler door managed to come off its rollers. I have fixed back but when i open the. I have a novorol roller garage door system. To adjust • set door to manual. How To Adjust Height On Roller Door.
From ceuxcejg.blob.core.windows.net
How To Adjust Sliding Doors Rollers at Mandy Garrett blog How To Adjust Height On Roller Door Check all fixing points on the guides. If you are face fixing your roller door, ensure that the guide height is at least 50mm above the structural opening in order to maximise the. The whole rooler door managed to come off its rollers. Here at rollerdor ltd, we have put together a number of garage door videos, tutorials, and guides. How To Adjust Height On Roller Door.
From www.auto-roll.com
Insulated Roller Garage Doors Autoroll online quote How To Adjust Height On Roller Door I have fixed back but when i open the. The merlin roller door openers can fit to the left or right hand side of your garage door, depending upon space. I have a novorol roller garage door system. A quick demonstration on how to set the travel limits of your gliderol roller door opener. If you are face fixing your. How To Adjust Height On Roller Door.
From www.garagedoorsonline.co.uk
Measuring for Roller Doors Buy Online Garage Roller Doors in the UK How To Adjust Height On Roller Door If you are face fixing your roller door, ensure that the guide height is at least 50mm above the structural opening in order to maximise the. I have fixed back but when i open the. Here at rollerdor ltd, we have put together a number of garage door videos, tutorials, and guides to help you with your new garage door.. How To Adjust Height On Roller Door.
From www.youtube.com
How to Adjust a Patio Door Roller YouTube How To Adjust Height On Roller Door I have a novorol roller garage door system. The whole rooler door managed to come off its rollers. A quick demonstration on how to set the travel limits of your gliderol roller door opener. Here at rollerdor ltd, we have put together a number of garage door videos, tutorials, and guides to help you with your new garage door. Check. How To Adjust Height On Roller Door.
From ceuxcejg.blob.core.windows.net
How To Adjust Sliding Doors Rollers at Mandy Garrett blog How To Adjust Height On Roller Door If you are face fixing your roller door, ensure that the guide height is at least 50mm above the structural opening in order to maximise the. Here at rollerdor ltd, we have put together a number of garage door videos, tutorials, and guides to help you with your new garage door. Check all fixing points on the guides. The whole. How To Adjust Height On Roller Door.
From www.youtube.com
Adjusting the Rollers on Your Anlin Sliding Patio Door Anlin Windows How To Adjust Height On Roller Door I have a novorol roller garage door system. Here at rollerdor ltd, we have put together a number of garage door videos, tutorials, and guides to help you with your new garage door. The merlin roller door openers can fit to the left or right hand side of your garage door, depending upon space. The whole rooler door managed to. How To Adjust Height On Roller Door.
From www.wikihow.com
3 Ways to Adjust Sliding Glass Door Rollers wikiHow How To Adjust Height On Roller Door The whole rooler door managed to come off its rollers. To adjust • set door to manual operation using the manual release lever (refer image 4).4 • remove the cam gear cover on the drive unit to gain access to the internal cams • loosen cam. Check all fixing points on the guides. I have fixed back but when i. How To Adjust Height On Roller Door.
From www.garagedoorsonline.co.uk
Roller Door Sizes and Prices Guide Purpose Made Roller Doors Garage How To Adjust Height On Roller Door Check all fixing points on the guides. Here at rollerdor ltd, we have put together a number of garage door videos, tutorials, and guides to help you with your new garage door. If you are face fixing your roller door, ensure that the guide height is at least 50mm above the structural opening in order to maximise the. I have. How To Adjust Height On Roller Door.
From slidingdoorsexpress.com
How To Repair a Sliding Door. The Full Guide to DIY Sliding Door Repair How To Adjust Height On Roller Door I have a novorol roller garage door system. Check all fixing points on the guides. Here at rollerdor ltd, we have put together a number of garage door videos, tutorials, and guides to help you with your new garage door. To adjust • set door to manual operation using the manual release lever (refer image 4).4 • remove the cam. How To Adjust Height On Roller Door.
From www.pinterest.com
Garage Door Garage Roller Door Sizes For Perfect Home Design Within How To Adjust Height On Roller Door To adjust • set door to manual operation using the manual release lever (refer image 4).4 • remove the cam gear cover on the drive unit to gain access to the internal cams • loosen cam. If you are face fixing your roller door, ensure that the guide height is at least 50mm above the structural opening in order to. How To Adjust Height On Roller Door.
From www.youtube.com
How to Adjust the Roller Catches on Your Iron Door YouTube How To Adjust Height On Roller Door The merlin roller door openers can fit to the left or right hand side of your garage door, depending upon space. A quick demonstration on how to set the travel limits of your gliderol roller door opener. Here at rollerdor ltd, we have put together a number of garage door videos, tutorials, and guides to help you with your new. How To Adjust Height On Roller Door.
From arridgegaragedoors.co.uk
How to correctly measure for a new roller shutter garage door How To Adjust Height On Roller Door Check all fixing points on the guides. I have a novorol roller garage door system. Here at rollerdor ltd, we have put together a number of garage door videos, tutorials, and guides to help you with your new garage door. The whole rooler door managed to come off its rollers. To adjust • set door to manual operation using the. How To Adjust Height On Roller Door.
From www.youtube.com
Adjusting the Rollers on Your Anlin Sliding Patio Screen Door Anlin How To Adjust Height On Roller Door I have a novorol roller garage door system. The merlin roller door openers can fit to the left or right hand side of your garage door, depending upon space. If you are face fixing your roller door, ensure that the guide height is at least 50mm above the structural opening in order to maximise the. I have fixed back but. How To Adjust Height On Roller Door.
From www.garagedoorsonline.co.uk
Roller Door Sizes and Prices Guide Purpose Made Roller Doors Garage How To Adjust Height On Roller Door Check all fixing points on the guides. The whole rooler door managed to come off its rollers. I have a novorol roller garage door system. The merlin roller door openers can fit to the left or right hand side of your garage door, depending upon space. A quick demonstration on how to set the travel limits of your gliderol roller. How To Adjust Height On Roller Door.
From ceuxcejg.blob.core.windows.net
How To Adjust Sliding Doors Rollers at Mandy Garrett blog How To Adjust Height On Roller Door A quick demonstration on how to set the travel limits of your gliderol roller door opener. The merlin roller door openers can fit to the left or right hand side of your garage door, depending upon space. To adjust • set door to manual operation using the manual release lever (refer image 4).4 • remove the cam gear cover on. How To Adjust Height On Roller Door.
From www.youtube.com
How to adjust a mortice roller bolt catch for an internal door YouTube How To Adjust Height On Roller Door Check all fixing points on the guides. If you are face fixing your roller door, ensure that the guide height is at least 50mm above the structural opening in order to maximise the. The whole rooler door managed to come off its rollers. The merlin roller door openers can fit to the left or right hand side of your garage. How To Adjust Height On Roller Door.
From www.youtube.com
How To Replace the Rollers on a Premium Wood Sliding Patio Door YouTube How To Adjust Height On Roller Door A quick demonstration on how to set the travel limits of your gliderol roller door opener. The merlin roller door openers can fit to the left or right hand side of your garage door, depending upon space. If you are face fixing your roller door, ensure that the guide height is at least 50mm above the structural opening in order. How To Adjust Height On Roller Door.