R Panel Valley Flashing . You need to address the lower pitches first (although they appear too low pitch for the types of metal roofing i have used). In either case, the installer should be. Where possible, flashing edges should be hemmed to strengthen the edge and protect the cut edge from exposure. 7/8 corrugated, r panel, and 7.2 panel. Learn how to cut the valley trim for the eave and ridge, overlapping, and fastening. This video is for an exposed fastener panel such as: Proper installation prevents water leakage and enhances the building’s aesthetics. You need pitch change flashing at the. Transition flashing ensures durability and protection against extreme weather.
from www.pinterest.co.uk
7/8 corrugated, r panel, and 7.2 panel. Transition flashing ensures durability and protection against extreme weather. Learn how to cut the valley trim for the eave and ridge, overlapping, and fastening. Proper installation prevents water leakage and enhances the building’s aesthetics. In either case, the installer should be. You need pitch change flashing at the. Where possible, flashing edges should be hemmed to strengthen the edge and protect the cut edge from exposure. This video is for an exposed fastener panel such as: You need to address the lower pitches first (although they appear too low pitch for the types of metal roofing i have used).
SW valley on house. Metal roof installation, Roof cladding, Roof
R Panel Valley Flashing 7/8 corrugated, r panel, and 7.2 panel. Transition flashing ensures durability and protection against extreme weather. You need to address the lower pitches first (although they appear too low pitch for the types of metal roofing i have used). Where possible, flashing edges should be hemmed to strengthen the edge and protect the cut edge from exposure. This video is for an exposed fastener panel such as: 7/8 corrugated, r panel, and 7.2 panel. Learn how to cut the valley trim for the eave and ridge, overlapping, and fastening. In either case, the installer should be. You need pitch change flashing at the. Proper installation prevents water leakage and enhances the building’s aesthetics.
From www.youtube.com
How to install a metal roof valley for Union's MasterRib panel. YouTube R Panel Valley Flashing Proper installation prevents water leakage and enhances the building’s aesthetics. Learn how to cut the valley trim for the eave and ridge, overlapping, and fastening. Where possible, flashing edges should be hemmed to strengthen the edge and protect the cut edge from exposure. You need pitch change flashing at the. You need to address the lower pitches first (although they. R Panel Valley Flashing.
From www.finehomebuilding.com
Metal roof valley Fine Homebuilding R Panel Valley Flashing Transition flashing ensures durability and protection against extreme weather. In either case, the installer should be. You need pitch change flashing at the. Learn how to cut the valley trim for the eave and ridge, overlapping, and fastening. 7/8 corrugated, r panel, and 7.2 panel. Proper installation prevents water leakage and enhances the building’s aesthetics. Where possible, flashing edges should. R Panel Valley Flashing.
From mac-cladding.com
Flashing Mac Cladding R Panel Valley Flashing This video is for an exposed fastener panel such as: Learn how to cut the valley trim for the eave and ridge, overlapping, and fastening. Transition flashing ensures durability and protection against extreme weather. Where possible, flashing edges should be hemmed to strengthen the edge and protect the cut edge from exposure. Proper installation prevents water leakage and enhances the. R Panel Valley Flashing.
From www.westernstatesmetalroofing.com
Standard Valley Trim Part WS24 Corrugated Metal Roofing R Panel Valley Flashing Proper installation prevents water leakage and enhances the building’s aesthetics. Where possible, flashing edges should be hemmed to strengthen the edge and protect the cut edge from exposure. You need pitch change flashing at the. You need to address the lower pitches first (although they appear too low pitch for the types of metal roofing i have used). 7/8 corrugated,. R Panel Valley Flashing.
From www.westernstatesmetalroofing.com
How To Install Endwall Flashing For A Metal Roof. Step By Step Guide R Panel Valley Flashing Learn how to cut the valley trim for the eave and ridge, overlapping, and fastening. Proper installation prevents water leakage and enhances the building’s aesthetics. 7/8 corrugated, r panel, and 7.2 panel. You need pitch change flashing at the. Transition flashing ensures durability and protection against extreme weather. This video is for an exposed fastener panel such as: In either. R Panel Valley Flashing.
From litespeedconstruction.com
Aldo Coat for Leaking R Panel in Knoxville, TN R Panel Valley Flashing This video is for an exposed fastener panel such as: Where possible, flashing edges should be hemmed to strengthen the edge and protect the cut edge from exposure. Proper installation prevents water leakage and enhances the building’s aesthetics. You need to address the lower pitches first (although they appear too low pitch for the types of metal roofing i have. R Panel Valley Flashing.
From fauxstonesheets.com
RPanel Wainscot Trim Sample FauxStoneSheets Fauxstonesheets R Panel Valley Flashing You need to address the lower pitches first (although they appear too low pitch for the types of metal roofing i have used). Where possible, flashing edges should be hemmed to strengthen the edge and protect the cut edge from exposure. Learn how to cut the valley trim for the eave and ridge, overlapping, and fastening. Proper installation prevents water. R Panel Valley Flashing.
From www.finehomebuilding.com
Metal roof valley Fine Homebuilding R Panel Valley Flashing You need to address the lower pitches first (although they appear too low pitch for the types of metal roofing i have used). This video is for an exposed fastener panel such as: 7/8 corrugated, r panel, and 7.2 panel. Learn how to cut the valley trim for the eave and ridge, overlapping, and fastening. You need pitch change flashing. R Panel Valley Flashing.
From angelesmaher.blogspot.com
end wall flashing menards Angeles Maher R Panel Valley Flashing Proper installation prevents water leakage and enhances the building’s aesthetics. This video is for an exposed fastener panel such as: You need to address the lower pitches first (although they appear too low pitch for the types of metal roofing i have used). Learn how to cut the valley trim for the eave and ridge, overlapping, and fastening. 7/8 corrugated,. R Panel Valley Flashing.
From www.metalroofing.com
Valley cap? "I don't know a lot about metal roof installation. There R Panel Valley Flashing In either case, the installer should be. Transition flashing ensures durability and protection against extreme weather. Where possible, flashing edges should be hemmed to strengthen the edge and protect the cut edge from exposure. This video is for an exposed fastener panel such as: You need pitch change flashing at the. You need to address the lower pitches first (although. R Panel Valley Flashing.
From www.westernstatesmetalroofing.com
Part WS299 Cricket Flashing Custom Trim for PBR Panel & R Panel R Panel Valley Flashing Learn how to cut the valley trim for the eave and ridge, overlapping, and fastening. In either case, the installer should be. Where possible, flashing edges should be hemmed to strengthen the edge and protect the cut edge from exposure. You need pitch change flashing at the. Transition flashing ensures durability and protection against extreme weather. You need to address. R Panel Valley Flashing.
From www.kmsheetmetal.com
Roof Edge Metal & Masonry Flashing Metal Custom Profiles R Panel Valley Flashing Proper installation prevents water leakage and enhances the building’s aesthetics. You need to address the lower pitches first (although they appear too low pitch for the types of metal roofing i have used). You need pitch change flashing at the. 7/8 corrugated, r panel, and 7.2 panel. This video is for an exposed fastener panel such as: Where possible, flashing. R Panel Valley Flashing.
From www.youtube.com
How to Install Valley Flashing for a Flat Tile Roof YouTube R Panel Valley Flashing In either case, the installer should be. 7/8 corrugated, r panel, and 7.2 panel. You need pitch change flashing at the. This video is for an exposed fastener panel such as: Proper installation prevents water leakage and enhances the building’s aesthetics. Where possible, flashing edges should be hemmed to strengthen the edge and protect the cut edge from exposure. Transition. R Panel Valley Flashing.
From modernize.com
How to Check and Maintain Roof Flashing Modernize R Panel Valley Flashing In either case, the installer should be. Where possible, flashing edges should be hemmed to strengthen the edge and protect the cut edge from exposure. You need pitch change flashing at the. Proper installation prevents water leakage and enhances the building’s aesthetics. Learn how to cut the valley trim for the eave and ridge, overlapping, and fastening. You need to. R Panel Valley Flashing.
From newroofaz.com
RPanel & Corrugated Metal Roofing Craven Construction Apache R Panel Valley Flashing You need pitch change flashing at the. 7/8 corrugated, r panel, and 7.2 panel. Transition flashing ensures durability and protection against extreme weather. This video is for an exposed fastener panel such as: In either case, the installer should be. Proper installation prevents water leakage and enhances the building’s aesthetics. Learn how to cut the valley trim for the eave. R Panel Valley Flashing.
From www.westernstatesmetalroofing.com
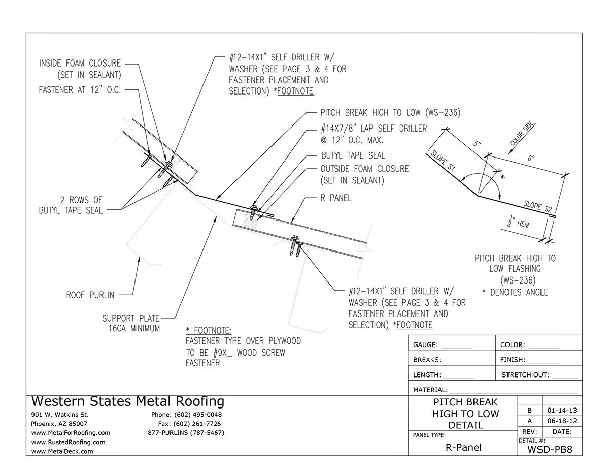
Part WS236 Pitch Break High to Low Trim for PBR Panel and R Panel R Panel Valley Flashing You need pitch change flashing at the. 7/8 corrugated, r panel, and 7.2 panel. Transition flashing ensures durability and protection against extreme weather. You need to address the lower pitches first (although they appear too low pitch for the types of metal roofing i have used). Proper installation prevents water leakage and enhances the building’s aesthetics. This video is for. R Panel Valley Flashing.
From www.youtube.com
How to install sidewall trim for Union's MasterRib panel. YouTube R Panel Valley Flashing This video is for an exposed fastener panel such as: 7/8 corrugated, r panel, and 7.2 panel. Transition flashing ensures durability and protection against extreme weather. Where possible, flashing edges should be hemmed to strengthen the edge and protect the cut edge from exposure. You need to address the lower pitches first (although they appear too low pitch for the. R Panel Valley Flashing.
From spenglerindustries.com
Valley Flashing Spengler Industries R Panel Valley Flashing 7/8 corrugated, r panel, and 7.2 panel. Learn how to cut the valley trim for the eave and ridge, overlapping, and fastening. Transition flashing ensures durability and protection against extreme weather. Where possible, flashing edges should be hemmed to strengthen the edge and protect the cut edge from exposure. This video is for an exposed fastener panel such as: You. R Panel Valley Flashing.
From www.youtube.com
Valley Flashing Installation YouTube R Panel Valley Flashing 7/8 corrugated, r panel, and 7.2 panel. Where possible, flashing edges should be hemmed to strengthen the edge and protect the cut edge from exposure. Proper installation prevents water leakage and enhances the building’s aesthetics. Transition flashing ensures durability and protection against extreme weather. You need pitch change flashing at the. Learn how to cut the valley trim for the. R Panel Valley Flashing.
From www.pinterest.co.uk
8 best Sheet Metal Joints images on Pinterest Sheet metal, Sheet R Panel Valley Flashing In either case, the installer should be. Transition flashing ensures durability and protection against extreme weather. This video is for an exposed fastener panel such as: You need to address the lower pitches first (although they appear too low pitch for the types of metal roofing i have used). Proper installation prevents water leakage and enhances the building’s aesthetics. 7/8. R Panel Valley Flashing.
From buildings.metals2go.com
Die Formed Flashing Metals 2 Go R Panel Valley Flashing Proper installation prevents water leakage and enhances the building’s aesthetics. Transition flashing ensures durability and protection against extreme weather. You need pitch change flashing at the. Where possible, flashing edges should be hemmed to strengthen the edge and protect the cut edge from exposure. In either case, the installer should be. Learn how to cut the valley trim for the. R Panel Valley Flashing.
From www.westernstatesmetalroofing.com
How To Install Sidewall Flashing For A Metal Roof. Step By Step Guide R Panel Valley Flashing Where possible, flashing edges should be hemmed to strengthen the edge and protect the cut edge from exposure. 7/8 corrugated, r panel, and 7.2 panel. You need to address the lower pitches first (although they appear too low pitch for the types of metal roofing i have used). Transition flashing ensures durability and protection against extreme weather. Proper installation prevents. R Panel Valley Flashing.
From www.westernstatesmetalroofing.com
Open Valley Trim Installation On A Metal Roof For An Exposed Fastener Panel R Panel Valley Flashing Transition flashing ensures durability and protection against extreme weather. You need pitch change flashing at the. Where possible, flashing edges should be hemmed to strengthen the edge and protect the cut edge from exposure. In either case, the installer should be. 7/8 corrugated, r panel, and 7.2 panel. You need to address the lower pitches first (although they appear too. R Panel Valley Flashing.
From ar.inspiredpencil.com
Roof Flashing Details R Panel Valley Flashing This video is for an exposed fastener panel such as: 7/8 corrugated, r panel, and 7.2 panel. Proper installation prevents water leakage and enhances the building’s aesthetics. In either case, the installer should be. You need to address the lower pitches first (although they appear too low pitch for the types of metal roofing i have used). Transition flashing ensures. R Panel Valley Flashing.
From www.pinterest.co.uk
SW valley on house. Metal roof installation, Roof cladding, Roof R Panel Valley Flashing Where possible, flashing edges should be hemmed to strengthen the edge and protect the cut edge from exposure. You need pitch change flashing at the. This video is for an exposed fastener panel such as: Transition flashing ensures durability and protection against extreme weather. Learn how to cut the valley trim for the eave and ridge, overlapping, and fastening. 7/8. R Panel Valley Flashing.
From www.westernstatesmetalroofing.com
Extended Valley Trim Part WS225 PBR Panel R Panel R Panel Valley Flashing Where possible, flashing edges should be hemmed to strengthen the edge and protect the cut edge from exposure. Learn how to cut the valley trim for the eave and ridge, overlapping, and fastening. In either case, the installer should be. You need to address the lower pitches first (although they appear too low pitch for the types of metal roofing. R Panel Valley Flashing.
From www.pioneermetalsga.com
Metal Roofing Trim and Accessories Pioneer Metals R Panel Valley Flashing 7/8 corrugated, r panel, and 7.2 panel. Where possible, flashing edges should be hemmed to strengthen the edge and protect the cut edge from exposure. This video is for an exposed fastener panel such as: Proper installation prevents water leakage and enhances the building’s aesthetics. Learn how to cut the valley trim for the eave and ridge, overlapping, and fastening.. R Panel Valley Flashing.
From www.youtube.com
R Panel Roofing, Siding, & Fencing [Pros and Cons + Cost] Is PBR Panel R Panel Valley Flashing Transition flashing ensures durability and protection against extreme weather. Where possible, flashing edges should be hemmed to strengthen the edge and protect the cut edge from exposure. You need to address the lower pitches first (although they appear too low pitch for the types of metal roofing i have used). In either case, the installer should be. This video is. R Panel Valley Flashing.
From www.westernstatesmetalroofing.com
Part WS207 Sidewall Flashing for PBR Panel and R Panel R Panel Valley Flashing Transition flashing ensures durability and protection against extreme weather. Proper installation prevents water leakage and enhances the building’s aesthetics. In either case, the installer should be. This video is for an exposed fastener panel such as: You need to address the lower pitches first (although they appear too low pitch for the types of metal roofing i have used). You. R Panel Valley Flashing.
From www.pinterest.com
Pin on Cool ideas R Panel Valley Flashing You need to address the lower pitches first (although they appear too low pitch for the types of metal roofing i have used). Where possible, flashing edges should be hemmed to strengthen the edge and protect the cut edge from exposure. You need pitch change flashing at the. 7/8 corrugated, r panel, and 7.2 panel. Learn how to cut the. R Panel Valley Flashing.
From www.westernstatesmetalroofing.com
Fixed Valley Flashing For Standing Seam Metal Roofing R Panel Valley Flashing Learn how to cut the valley trim for the eave and ridge, overlapping, and fastening. You need to address the lower pitches first (although they appear too low pitch for the types of metal roofing i have used). This video is for an exposed fastener panel such as: Transition flashing ensures durability and protection against extreme weather. In either case,. R Panel Valley Flashing.
From www.metalroofaccessories.com
Roof Valley Flashing Zhongtuo Metal Roof Accessories Factory R Panel Valley Flashing Where possible, flashing edges should be hemmed to strengthen the edge and protect the cut edge from exposure. You need to address the lower pitches first (although they appear too low pitch for the types of metal roofing i have used). Learn how to cut the valley trim for the eave and ridge, overlapping, and fastening. You need pitch change. R Panel Valley Flashing.
From inspectapedia.com
Flashing for Exposed Fastener Metal Roof Systems metal roofs for R Panel Valley Flashing 7/8 corrugated, r panel, and 7.2 panel. You need to address the lower pitches first (although they appear too low pitch for the types of metal roofing i have used). This video is for an exposed fastener panel such as: You need pitch change flashing at the. Proper installation prevents water leakage and enhances the building’s aesthetics. Learn how to. R Panel Valley Flashing.
From www.youtube.com
Chimney flashing on a metal roof. YouTube R Panel Valley Flashing You need to address the lower pitches first (although they appear too low pitch for the types of metal roofing i have used). Where possible, flashing edges should be hemmed to strengthen the edge and protect the cut edge from exposure. Transition flashing ensures durability and protection against extreme weather. This video is for an exposed fastener panel such as:. R Panel Valley Flashing.
From 216.117.159.139
PBR, R, and IR Panel Trim Metal Roofing Trim Guide Union Corrugating R Panel Valley Flashing Learn how to cut the valley trim for the eave and ridge, overlapping, and fastening. Proper installation prevents water leakage and enhances the building’s aesthetics. You need to address the lower pitches first (although they appear too low pitch for the types of metal roofing i have used). Where possible, flashing edges should be hemmed to strengthen the edge and. R Panel Valley Flashing.