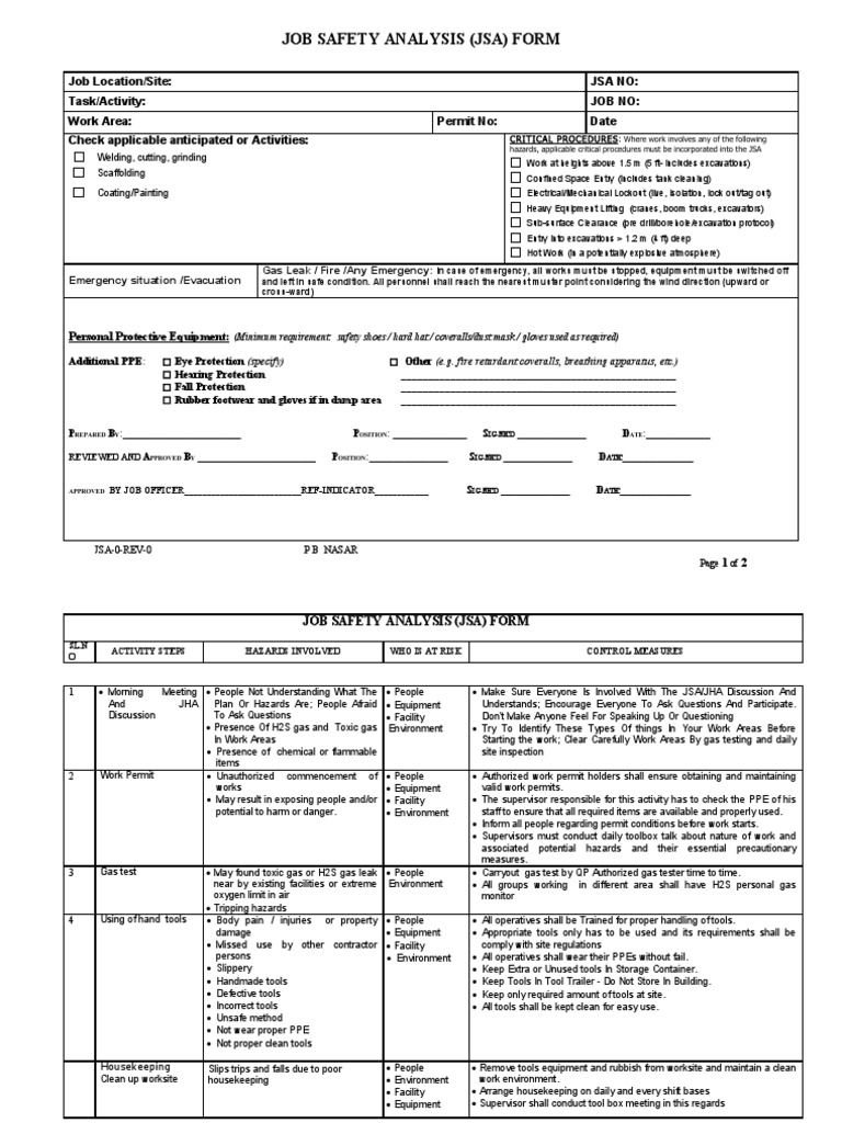
Hand And Power Tools Jsa . Work supervisors and crew members are responsible for developing. It outlines 5 key job steps and identifies.  job safety analysis (jsa) defines and controls the hazards of processes, jobs, and procedures. Workplace task to be analysed. The purpose of this guidance document is to promote the safe use of, and to reduce the likelihood of.  job hazard analysis (jha) revised.  this document provides a job safety analysis for using hand power tools.  employees who use hand and power tools and are exposed to the hazards of falling, flying, abrasive, and splashing objects, or.
        
        from www.slideserve.com 
     
        
        The purpose of this guidance document is to promote the safe use of, and to reduce the likelihood of.  job safety analysis (jsa) defines and controls the hazards of processes, jobs, and procedures.  employees who use hand and power tools and are exposed to the hazards of falling, flying, abrasive, and splashing objects, or.  this document provides a job safety analysis for using hand power tools. Workplace task to be analysed.  job hazard analysis (jha) revised. It outlines 5 key job steps and identifies. Work supervisors and crew members are responsible for developing.
    
    	
            
	
		 
         
    PPT Hand and Power Tool Safety PowerPoint Presentation, free download 
    Hand And Power Tools Jsa  The purpose of this guidance document is to promote the safe use of, and to reduce the likelihood of.  this document provides a job safety analysis for using hand power tools. Workplace task to be analysed.  job hazard analysis (jha) revised. It outlines 5 key job steps and identifies. Work supervisors and crew members are responsible for developing.  job safety analysis (jsa) defines and controls the hazards of processes, jobs, and procedures. The purpose of this guidance document is to promote the safe use of, and to reduce the likelihood of.  employees who use hand and power tools and are exposed to the hazards of falling, flying, abrasive, and splashing objects, or.
            
	
		 
         
 
    
        From studylib.net 
                    JSA Hand And Power Tools Jsa   this document provides a job safety analysis for using hand power tools.  employees who use hand and power tools and are exposed to the hazards of falling, flying, abrasive, and splashing objects, or. Work supervisors and crew members are responsible for developing.  job hazard analysis (jha) revised. It outlines 5 key job steps and identifies. Workplace task. Hand And Power Tools Jsa.
     
    
        From www.slideserve.com 
                    PPT Hand and Power Tool Safety PowerPoint Presentation, free download Hand And Power Tools Jsa  Workplace task to be analysed.  job hazard analysis (jha) revised.  job safety analysis (jsa) defines and controls the hazards of processes, jobs, and procedures.  employees who use hand and power tools and are exposed to the hazards of falling, flying, abrasive, and splashing objects, or.  this document provides a job safety analysis for using hand power. Hand And Power Tools Jsa.
     
    
        From www.slideserve.com 
                    PPT Hand and Power Tool Safety PowerPoint Presentation, free download Hand And Power Tools Jsa   job safety analysis (jsa) defines and controls the hazards of processes, jobs, and procedures.  this document provides a job safety analysis for using hand power tools. Work supervisors and crew members are responsible for developing.  job hazard analysis (jha) revised. It outlines 5 key job steps and identifies. Workplace task to be analysed.  employees who use. Hand And Power Tools Jsa.
     
    
        From thesafetyposter.com 
                    10 tips for safely working with hand and power tools Safety tips 10 Hand And Power Tools Jsa  The purpose of this guidance document is to promote the safe use of, and to reduce the likelihood of. Work supervisors and crew members are responsible for developing.  this document provides a job safety analysis for using hand power tools.  job safety analysis (jsa) defines and controls the hazards of processes, jobs, and procedures.  job hazard analysis. Hand And Power Tools Jsa.
     
    
        From slidetodoc.com 
                    Hand Power Tool Safety OSHA Office of Training Hand And Power Tools Jsa   job hazard analysis (jha) revised. It outlines 5 key job steps and identifies.  this document provides a job safety analysis for using hand power tools. The purpose of this guidance document is to promote the safe use of, and to reduce the likelihood of.  job safety analysis (jsa) defines and controls the hazards of processes, jobs, and. Hand And Power Tools Jsa.
     
    
        From hsi.com 
                    Hand and Power Tool Safety Using Tools Safely HSI Hand And Power Tools Jsa   job hazard analysis (jha) revised. Workplace task to be analysed. The purpose of this guidance document is to promote the safe use of, and to reduce the likelihood of.  job safety analysis (jsa) defines and controls the hazards of processes, jobs, and procedures. It outlines 5 key job steps and identifies.  employees who use hand and power. Hand And Power Tools Jsa.
     
    
        From www.acehardware.ph 
                    Basic Hand and Power Tools Safety Rules You Should Know AHPI Hand And Power Tools Jsa   job safety analysis (jsa) defines and controls the hazards of processes, jobs, and procedures. Work supervisors and crew members are responsible for developing. Workplace task to be analysed.  this document provides a job safety analysis for using hand power tools.  employees who use hand and power tools and are exposed to the hazards of falling, flying, abrasive,. Hand And Power Tools Jsa.
     
    
        From www.scribd.com 
                    JSA Hand Tools PDF Personal Protective Equipment Prevention Hand And Power Tools Jsa  Work supervisors and crew members are responsible for developing.  employees who use hand and power tools and are exposed to the hazards of falling, flying, abrasive, and splashing objects, or.  job safety analysis (jsa) defines and controls the hazards of processes, jobs, and procedures. It outlines 5 key job steps and identifies.  job hazard analysis (jha) revised.. Hand And Power Tools Jsa.
     
    
        From www.scribd.com 
                    Hand and Power Tools Safety Personal Protective Equipment Hand And Power Tools Jsa   employees who use hand and power tools and are exposed to the hazards of falling, flying, abrasive, and splashing objects, or.  job safety analysis (jsa) defines and controls the hazards of processes, jobs, and procedures. Work supervisors and crew members are responsible for developing. It outlines 5 key job steps and identifies.  this document provides a job. Hand And Power Tools Jsa.
     
    
        From www.safetyhub.com 
                    Hand and Power Tool Safety Training Online Safetyhub Hand And Power Tools Jsa  It outlines 5 key job steps and identifies. Work supervisors and crew members are responsible for developing.  this document provides a job safety analysis for using hand power tools.  employees who use hand and power tools and are exposed to the hazards of falling, flying, abrasive, and splashing objects, or. The purpose of this guidance document is to. Hand And Power Tools Jsa.
     
    
        From studylib.net 
                    Job Hazard Analysis Hand Tools Hand And Power Tools Jsa   this document provides a job safety analysis for using hand power tools.  job safety analysis (jsa) defines and controls the hazards of processes, jobs, and procedures. It outlines 5 key job steps and identifies.  employees who use hand and power tools and are exposed to the hazards of falling, flying, abrasive, and splashing objects, or. The purpose. Hand And Power Tools Jsa.
     
    
        From www.slideserve.com 
                    PPT HAND and POWER TOOL SAFETY PowerPoint Presentation, free download Hand And Power Tools Jsa  Work supervisors and crew members are responsible for developing.  job hazard analysis (jha) revised.  this document provides a job safety analysis for using hand power tools.  job safety analysis (jsa) defines and controls the hazards of processes, jobs, and procedures.  employees who use hand and power tools and are exposed to the hazards of falling, flying,. Hand And Power Tools Jsa.
     
    
        From safetyskills.com 
                    Hand and Power Tool Safety SafetySkills Online Safety Training Hand And Power Tools Jsa   employees who use hand and power tools and are exposed to the hazards of falling, flying, abrasive, and splashing objects, or.  job hazard analysis (jha) revised.  job safety analysis (jsa) defines and controls the hazards of processes, jobs, and procedures.  this document provides a job safety analysis for using hand power tools. The purpose of this. Hand And Power Tools Jsa.
     
    
        From slideplayer.com 
                    Hand and Power Tool Safety ppt download Hand And Power Tools Jsa  The purpose of this guidance document is to promote the safe use of, and to reduce the likelihood of. It outlines 5 key job steps and identifies.  job safety analysis (jsa) defines and controls the hazards of processes, jobs, and procedures.  this document provides a job safety analysis for using hand power tools. Workplace task to be analysed.. Hand And Power Tools Jsa.
     
    
        From www.youtube.com 
                    OSHA Hand and Power Tools Safety Video YouTube Hand And Power Tools Jsa   employees who use hand and power tools and are exposed to the hazards of falling, flying, abrasive, and splashing objects, or. Workplace task to be analysed. Work supervisors and crew members are responsible for developing. It outlines 5 key job steps and identifies.  this document provides a job safety analysis for using hand power tools. The purpose of. Hand And Power Tools Jsa.
     
    
        From ehscenter.com 
                    Hand and Power Tool Safety Plan EHS Center Hand And Power Tools Jsa   job hazard analysis (jha) revised. Work supervisors and crew members are responsible for developing. It outlines 5 key job steps and identifies. The purpose of this guidance document is to promote the safe use of, and to reduce the likelihood of.  this document provides a job safety analysis for using hand power tools. Workplace task to be analysed.. Hand And Power Tools Jsa.
     
    
        From safetygwg.blogspot.com 
                    Tips for Hand and Power Tools Safety GWG Hand And Power Tools Jsa  It outlines 5 key job steps and identifies.  this document provides a job safety analysis for using hand power tools. Workplace task to be analysed.  employees who use hand and power tools and are exposed to the hazards of falling, flying, abrasive, and splashing objects, or. The purpose of this guidance document is to promote the safe use. Hand And Power Tools Jsa.
     
    
        From www.garco.com 
                    Toolbox Talk Hand & Power Tool Safety Garco Construction Hand And Power Tools Jsa  The purpose of this guidance document is to promote the safe use of, and to reduce the likelihood of.  job hazard analysis (jha) revised.  employees who use hand and power tools and are exposed to the hazards of falling, flying, abrasive, and splashing objects, or.  this document provides a job safety analysis for using hand power tools.. Hand And Power Tools Jsa.
     
    
        From studylib.net 
                    Hand and Power Tool Safety Hand And Power Tools Jsa   job hazard analysis (jha) revised.  job safety analysis (jsa) defines and controls the hazards of processes, jobs, and procedures. Work supervisors and crew members are responsible for developing. Workplace task to be analysed.  employees who use hand and power tools and are exposed to the hazards of falling, flying, abrasive, and splashing objects, or. It outlines 5. Hand And Power Tools Jsa.
     
    
        From www.scribd.com 
                    06 Koc Jsa PDF Hand And Power Tools Jsa   employees who use hand and power tools and are exposed to the hazards of falling, flying, abrasive, and splashing objects, or. Work supervisors and crew members are responsible for developing.  this document provides a job safety analysis for using hand power tools. The purpose of this guidance document is to promote the safe use of, and to reduce. Hand And Power Tools Jsa.
     
    
        From www.scribd.com 
                    JSA FOR using the Hand and power tools_2 Tools Equipment Hand And Power Tools Jsa   job safety analysis (jsa) defines and controls the hazards of processes, jobs, and procedures.  employees who use hand and power tools and are exposed to the hazards of falling, flying, abrasive, and splashing objects, or.  job hazard analysis (jha) revised.  this document provides a job safety analysis for using hand power tools. The purpose of this. Hand And Power Tools Jsa.
     
    
        From hsi.com 
                    Hand and Power Tool Safety HSI Hand And Power Tools Jsa   job hazard analysis (jha) revised.  job safety analysis (jsa) defines and controls the hazards of processes, jobs, and procedures.  employees who use hand and power tools and are exposed to the hazards of falling, flying, abrasive, and splashing objects, or. Workplace task to be analysed. It outlines 5 key job steps and identifies.  this document provides. Hand And Power Tools Jsa.
     
    
        From www.studocu.com 
                    4aPower ToolsZaki jsa SAFETY OF HAND AND PORTABLE POW ER TOOLS Hand And Power Tools Jsa  It outlines 5 key job steps and identifies. Workplace task to be analysed. The purpose of this guidance document is to promote the safe use of, and to reduce the likelihood of.  job safety analysis (jsa) defines and controls the hazards of processes, jobs, and procedures.  employees who use hand and power tools and are exposed to the. Hand And Power Tools Jsa.
     
    
        From moxietraining.com 
                    Hand and Power Tool Safety Moxie Training Hand And Power Tools Jsa   job safety analysis (jsa) defines and controls the hazards of processes, jobs, and procedures.  this document provides a job safety analysis for using hand power tools.  job hazard analysis (jha) revised. Workplace task to be analysed. It outlines 5 key job steps and identifies. Work supervisors and crew members are responsible for developing. The purpose of this. Hand And Power Tools Jsa.
     
    
        From www.slideserve.com 
                    PPT HAND and POWER TOOL SAFETY PowerPoint Presentation, free download Hand And Power Tools Jsa  The purpose of this guidance document is to promote the safe use of, and to reduce the likelihood of. It outlines 5 key job steps and identifies.  job safety analysis (jsa) defines and controls the hazards of processes, jobs, and procedures. Workplace task to be analysed.  this document provides a job safety analysis for using hand power tools.. Hand And Power Tools Jsa.
     
    
        From www.youtube.com 
                    Osha Training Online 08 Hand Tools Hand And Power Tools Safety Hand And Power Tools Jsa  Workplace task to be analysed.  job safety analysis (jsa) defines and controls the hazards of processes, jobs, and procedures.  this document provides a job safety analysis for using hand power tools. Work supervisors and crew members are responsible for developing. It outlines 5 key job steps and identifies.  employees who use hand and power tools and are. Hand And Power Tools Jsa.
     
    
        From mintra.com 
                    Hand & Power Tool Safety (Maritime) Training Course Hand And Power Tools Jsa   job safety analysis (jsa) defines and controls the hazards of processes, jobs, and procedures.  employees who use hand and power tools and are exposed to the hazards of falling, flying, abrasive, and splashing objects, or.  this document provides a job safety analysis for using hand power tools. Workplace task to be analysed.  job hazard analysis (jha). Hand And Power Tools Jsa.
     
    
        From www.sustained-quality.com 
                    Sustained Quality Hand and Power Tool Safety Sustained Quality Hand And Power Tools Jsa   job safety analysis (jsa) defines and controls the hazards of processes, jobs, and procedures. Work supervisors and crew members are responsible for developing. Workplace task to be analysed. The purpose of this guidance document is to promote the safe use of, and to reduce the likelihood of. It outlines 5 key job steps and identifies.  job hazard analysis. Hand And Power Tools Jsa.
     
    
        From www.scribd.com 
                    JSA HandTools Safety Wellness Hand And Power Tools Jsa   job hazard analysis (jha) revised.  job safety analysis (jsa) defines and controls the hazards of processes, jobs, and procedures.  this document provides a job safety analysis for using hand power tools. Work supervisors and crew members are responsible for developing.  employees who use hand and power tools and are exposed to the hazards of falling, flying,. Hand And Power Tools Jsa.
     
    
        From www.safetyhub.com 
                    Hand and Power Tool Safety Training Online Safetyhub Hand And Power Tools Jsa   job safety analysis (jsa) defines and controls the hazards of processes, jobs, and procedures. Workplace task to be analysed. It outlines 5 key job steps and identifies. The purpose of this guidance document is to promote the safe use of, and to reduce the likelihood of.  job hazard analysis (jha) revised. Work supervisors and crew members are responsible. Hand And Power Tools Jsa.
     
    
        From unitedallianceservices.com 
                    OSHA Construction Hand and Power Tool Safety United Alliance Services Hand And Power Tools Jsa  Workplace task to be analysed.  this document provides a job safety analysis for using hand power tools. The purpose of this guidance document is to promote the safe use of, and to reduce the likelihood of.  job hazard analysis (jha) revised.  employees who use hand and power tools and are exposed to the hazards of falling, flying,. Hand And Power Tools Jsa.
     
    
        From slidetodoc.com 
                    Hand Power Tool Safety 1 OSHA Regulations For Hand And Power Tools Jsa   this document provides a job safety analysis for using hand power tools. Workplace task to be analysed.  job safety analysis (jsa) defines and controls the hazards of processes, jobs, and procedures. Work supervisors and crew members are responsible for developing. It outlines 5 key job steps and identifies.  job hazard analysis (jha) revised.  employees who use. Hand And Power Tools Jsa.
     
    
        From www.scribd.com 
                    Hand and Power Tool Safety Personal Protective Equipment Safety Hand And Power Tools Jsa  It outlines 5 key job steps and identifies.  job hazard analysis (jha) revised. Work supervisors and crew members are responsible for developing.  employees who use hand and power tools and are exposed to the hazards of falling, flying, abrasive, and splashing objects, or. The purpose of this guidance document is to promote the safe use of, and to. Hand And Power Tools Jsa.
     
    
        From www.scribd.com 
                    Jsajha for Using of Hand Tools Personal Protective Equipment Safety Hand And Power Tools Jsa  It outlines 5 key job steps and identifies. Workplace task to be analysed.  this document provides a job safety analysis for using hand power tools.  job hazard analysis (jha) revised. The purpose of this guidance document is to promote the safe use of, and to reduce the likelihood of. Work supervisors and crew members are responsible for developing.. Hand And Power Tools Jsa.
     
    
        From www.youtube.com 
                    Hand and Power Tool Safety Training from YouTube Hand And Power Tools Jsa   job safety analysis (jsa) defines and controls the hazards of processes, jobs, and procedures.  job hazard analysis (jha) revised.  this document provides a job safety analysis for using hand power tools. It outlines 5 key job steps and identifies. Workplace task to be analysed. The purpose of this guidance document is to promote the safe use of,. Hand And Power Tools Jsa.