Safety Shower Dimensions . Find out the key requirements for location, flow, operation, water. Learn how to comply with osha and ansi standards for emergency safety showers and eye wash stations. As a result, it is essential to look beyond the use of safe work procedures or personal protective equipment. Find out the key factors to consider for location, visibility, product. The key elements of osha safety shower requirements include the design and location of safety showers for easy accessibility, the use. Emergency showers and eyewash stations are necessary. Learn about the importance, law, specifications and maintenance of emergency showers and eyewash stations for workplace safety.
from www.access-board.gov
Find out the key requirements for location, flow, operation, water. Emergency showers and eyewash stations are necessary. The key elements of osha safety shower requirements include the design and location of safety showers for easy accessibility, the use. As a result, it is essential to look beyond the use of safe work procedures or personal protective equipment. Learn how to comply with osha and ansi standards for emergency safety showers and eye wash stations. Find out the key factors to consider for location, visibility, product. Learn about the importance, law, specifications and maintenance of emergency showers and eyewash stations for workplace safety.
Chapter 6 Bathing Rooms
Safety Shower Dimensions Find out the key factors to consider for location, visibility, product. Emergency showers and eyewash stations are necessary. As a result, it is essential to look beyond the use of safe work procedures or personal protective equipment. Find out the key requirements for location, flow, operation, water. Learn about the importance, law, specifications and maintenance of emergency showers and eyewash stations for workplace safety. Learn how to comply with osha and ansi standards for emergency safety showers and eye wash stations. The key elements of osha safety shower requirements include the design and location of safety showers for easy accessibility, the use. Find out the key factors to consider for location, visibility, product.
From www.hughes-safety.com
Laboratory Shower with Eye/Face Wash Hughes Safety Showers Safety Shower Dimensions Find out the key factors to consider for location, visibility, product. Find out the key requirements for location, flow, operation, water. Learn about the importance, law, specifications and maintenance of emergency showers and eyewash stations for workplace safety. Learn how to comply with osha and ansi standards for emergency safety showers and eye wash stations. As a result, it is. Safety Shower Dimensions.
From www.eyewashdirect.com
Guardian G1950 Safety Shower with Eye/Face Wash Station, Stainless Safety Shower Dimensions As a result, it is essential to look beyond the use of safe work procedures or personal protective equipment. Find out the key factors to consider for location, visibility, product. Learn about the importance, law, specifications and maintenance of emergency showers and eyewash stations for workplace safety. Emergency showers and eyewash stations are necessary. Learn how to comply with osha. Safety Shower Dimensions.
From www.dolphinsolutions.co.uk
Size of a commercial shower Dolphin Solutions Safety Shower Dimensions Find out the key requirements for location, flow, operation, water. Emergency showers and eyewash stations are necessary. As a result, it is essential to look beyond the use of safe work procedures or personal protective equipment. The key elements of osha safety shower requirements include the design and location of safety showers for easy accessibility, the use. Learn about the. Safety Shower Dimensions.
From www.justrite.com
CustomEngineered Hughes Safety Showers Justrite Safety Shower Dimensions Learn how to comply with osha and ansi standards for emergency safety showers and eye wash stations. Find out the key requirements for location, flow, operation, water. Find out the key factors to consider for location, visibility, product. Learn about the importance, law, specifications and maintenance of emergency showers and eyewash stations for workplace safety. As a result, it is. Safety Shower Dimensions.
From buildsearch.com.au
Standard Shower Sizes for Australian homes BuildSearch Safety Shower Dimensions Learn how to comply with osha and ansi standards for emergency safety showers and eye wash stations. The key elements of osha safety shower requirements include the design and location of safety showers for easy accessibility, the use. Learn about the importance, law, specifications and maintenance of emergency showers and eyewash stations for workplace safety. As a result, it is. Safety Shower Dimensions.
From showertype.com
Shower Stall Dimensions Understanding The Basics Shower Ideas Safety Shower Dimensions Learn how to comply with osha and ansi standards for emergency safety showers and eye wash stations. Learn about the importance, law, specifications and maintenance of emergency showers and eyewash stations for workplace safety. As a result, it is essential to look beyond the use of safe work procedures or personal protective equipment. Emergency showers and eyewash stations are necessary.. Safety Shower Dimensions.
From industrial.bentons.com.au
COMBINATION EMERGENCY SHOWERS AND EYE WASH HAND/FOOT OPERATED (ECE090) Safety Shower Dimensions The key elements of osha safety shower requirements include the design and location of safety showers for easy accessibility, the use. Find out the key factors to consider for location, visibility, product. Learn about the importance, law, specifications and maintenance of emergency showers and eyewash stations for workplace safety. As a result, it is essential to look beyond the use. Safety Shower Dimensions.
From www.plumbingsupply.com
Shower systems for handicapped or mobility impaired by Speakman Safety Shower Dimensions Find out the key factors to consider for location, visibility, product. As a result, it is essential to look beyond the use of safe work procedures or personal protective equipment. Emergency showers and eyewash stations are necessary. Find out the key requirements for location, flow, operation, water. Learn about the importance, law, specifications and maintenance of emergency showers and eyewash. Safety Shower Dimensions.
From www.glassgenius.com
Walk in Shower Dimensions Walk in Shower Size Glass Genius Safety Shower Dimensions Learn about the importance, law, specifications and maintenance of emergency showers and eyewash stations for workplace safety. As a result, it is essential to look beyond the use of safe work procedures or personal protective equipment. The key elements of osha safety shower requirements include the design and location of safety showers for easy accessibility, the use. Learn how to. Safety Shower Dimensions.
From www.reece.com.au
Wolfen Freestanding Safety Shower & Eye Wash with Foot Pedal Polished Safety Shower Dimensions As a result, it is essential to look beyond the use of safe work procedures or personal protective equipment. Find out the key factors to consider for location, visibility, product. Find out the key requirements for location, flow, operation, water. Learn how to comply with osha and ansi standards for emergency safety showers and eye wash stations. The key elements. Safety Shower Dimensions.
From www.marlbo.net
Emergency Protection Safety Shower Marlbo Trading Company Safety Shower Dimensions Learn about the importance, law, specifications and maintenance of emergency showers and eyewash stations for workplace safety. Find out the key requirements for location, flow, operation, water. Learn how to comply with osha and ansi standards for emergency safety showers and eye wash stations. As a result, it is essential to look beyond the use of safe work procedures or. Safety Shower Dimensions.
From buildingcodetrainer.com
Minimum Shower Size and Clearances Explained! Building Code Trainer Safety Shower Dimensions As a result, it is essential to look beyond the use of safe work procedures or personal protective equipment. The key elements of osha safety shower requirements include the design and location of safety showers for easy accessibility, the use. Find out the key factors to consider for location, visibility, product. Emergency showers and eyewash stations are necessary. Find out. Safety Shower Dimensions.
From www.harborcitysupply.com
ADA Design Solutions For Multiple Shower And Dressing Compartments Safety Shower Dimensions Learn about the importance, law, specifications and maintenance of emergency showers and eyewash stations for workplace safety. As a result, it is essential to look beyond the use of safe work procedures or personal protective equipment. Emergency showers and eyewash stations are necessary. Learn how to comply with osha and ansi standards for emergency safety showers and eye wash stations.. Safety Shower Dimensions.
From www.homeadvisor.com
Standard Shower Sizes HomeAdvisor Safety Shower Dimensions Emergency showers and eyewash stations are necessary. As a result, it is essential to look beyond the use of safe work procedures or personal protective equipment. Learn about the importance, law, specifications and maintenance of emergency showers and eyewash stations for workplace safety. Learn how to comply with osha and ansi standards for emergency safety showers and eye wash stations.. Safety Shower Dimensions.
From www.mcclurgteam.com
Shower Grab Bars 101 A Professional's Guide to Safety Rails Safety Shower Dimensions Learn how to comply with osha and ansi standards for emergency safety showers and eye wash stations. Learn about the importance, law, specifications and maintenance of emergency showers and eyewash stations for workplace safety. Find out the key factors to consider for location, visibility, product. Emergency showers and eyewash stations are necessary. As a result, it is essential to look. Safety Shower Dimensions.
From www7.mississauga.ca
City of Mississauga Facility Accessibility Design Standards Safety Shower Dimensions The key elements of osha safety shower requirements include the design and location of safety showers for easy accessibility, the use. Learn about the importance, law, specifications and maintenance of emergency showers and eyewash stations for workplace safety. Find out the key factors to consider for location, visibility, product. Learn how to comply with osha and ansi standards for emergency. Safety Shower Dimensions.
From www.access-board.gov
Chapter 6 Bathing Rooms Safety Shower Dimensions As a result, it is essential to look beyond the use of safe work procedures or personal protective equipment. Find out the key requirements for location, flow, operation, water. Find out the key factors to consider for location, visibility, product. Learn about the importance, law, specifications and maintenance of emergency showers and eyewash stations for workplace safety. Learn how to. Safety Shower Dimensions.
From www.pinterest.com
MODEL LCS6333A75B ADA Compliant Roll In Shower Ada shower, Roll in Safety Shower Dimensions Learn how to comply with osha and ansi standards for emergency safety showers and eye wash stations. Find out the key requirements for location, flow, operation, water. As a result, it is essential to look beyond the use of safe work procedures or personal protective equipment. Find out the key factors to consider for location, visibility, product. The key elements. Safety Shower Dimensions.
From www.enware.com.au
Emergency Stainless Steel Combination Shower with Hand Operated Eye Safety Shower Dimensions Learn about the importance, law, specifications and maintenance of emergency showers and eyewash stations for workplace safety. Find out the key factors to consider for location, visibility, product. The key elements of osha safety shower requirements include the design and location of safety showers for easy accessibility, the use. Find out the key requirements for location, flow, operation, water. Learn. Safety Shower Dimensions.
From closetsnmore.blogspot.com
Ada Shower Requirements Closets N More Safety Shower Dimensions As a result, it is essential to look beyond the use of safe work procedures or personal protective equipment. Find out the key requirements for location, flow, operation, water. Emergency showers and eyewash stations are necessary. The key elements of osha safety shower requirements include the design and location of safety showers for easy accessibility, the use. Learn about the. Safety Shower Dimensions.
From lovehomedesigns.com
Bathtub Dimensions and What They Mean for Your Bathroom Love Home Designs Safety Shower Dimensions The key elements of osha safety shower requirements include the design and location of safety showers for easy accessibility, the use. Emergency showers and eyewash stations are necessary. Learn about the importance, law, specifications and maintenance of emergency showers and eyewash stations for workplace safety. Find out the key factors to consider for location, visibility, product. Find out the key. Safety Shower Dimensions.
From safertitu.blogspot.com
Must Know Safety Shower Clearance Requirements Article SAFERTITU Safety Shower Dimensions Learn how to comply with osha and ansi standards for emergency safety showers and eye wash stations. As a result, it is essential to look beyond the use of safe work procedures or personal protective equipment. Emergency showers and eyewash stations are necessary. Find out the key requirements for location, flow, operation, water. Learn about the importance, law, specifications and. Safety Shower Dimensions.
From www.pinterest.com
Doorless Walk In Shower Dimensions Shower dimensions, Walk in shower Safety Shower Dimensions Find out the key factors to consider for location, visibility, product. Emergency showers and eyewash stations are necessary. Learn how to comply with osha and ansi standards for emergency safety showers and eye wash stations. Learn about the importance, law, specifications and maintenance of emergency showers and eyewash stations for workplace safety. Find out the key requirements for location, flow,. Safety Shower Dimensions.
From zlinekitchen.com
ZLINE Bliss Shower System (BLSSHS) ZLINE Kitchen and Bath Safety Shower Dimensions The key elements of osha safety shower requirements include the design and location of safety showers for easy accessibility, the use. Find out the key factors to consider for location, visibility, product. Learn about the importance, law, specifications and maintenance of emergency showers and eyewash stations for workplace safety. Find out the key requirements for location, flow, operation, water. Learn. Safety Shower Dimensions.
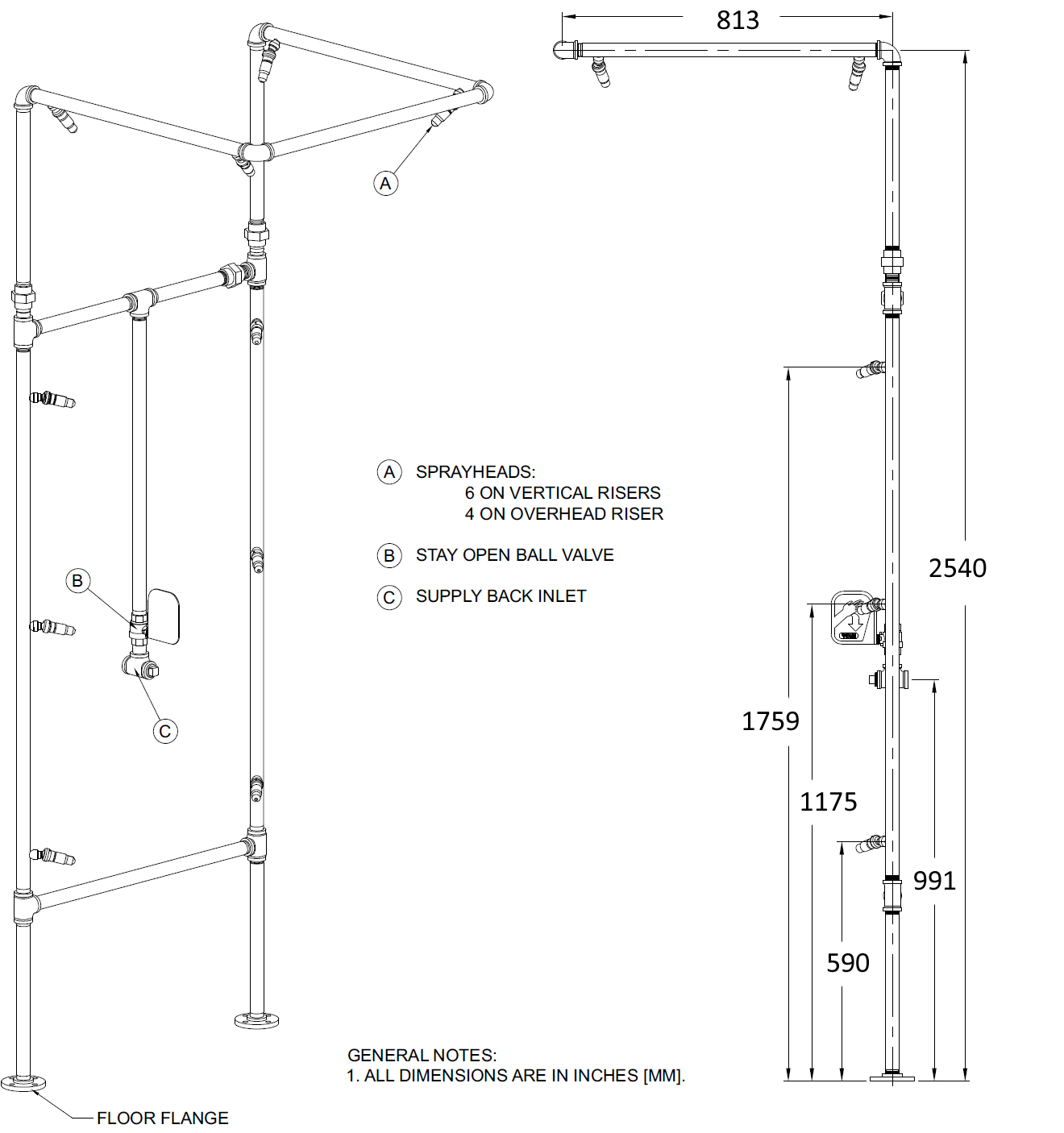
From www.acornthorn.co.uk
Decontamination Shower With 10 Spray Heads Safety Shower Dimensions Find out the key factors to consider for location, visibility, product. Find out the key requirements for location, flow, operation, water. As a result, it is essential to look beyond the use of safe work procedures or personal protective equipment. Learn about the importance, law, specifications and maintenance of emergency showers and eyewash stations for workplace safety. The key elements. Safety Shower Dimensions.
From www.saferack.com
Safety Showers and Eye Wash Stations SafeRack Safety Shower Dimensions Find out the key requirements for location, flow, operation, water. The key elements of osha safety shower requirements include the design and location of safety showers for easy accessibility, the use. Find out the key factors to consider for location, visibility, product. Emergency showers and eyewash stations are necessary. Learn how to comply with osha and ansi standards for emergency. Safety Shower Dimensions.
From www.tradewashrooms.co.uk
Emergency Safety Shower and Eyewash Station Delabie 9203 Safety Shower Dimensions Emergency showers and eyewash stations are necessary. Find out the key requirements for location, flow, operation, water. Learn about the importance, law, specifications and maintenance of emergency showers and eyewash stations for workplace safety. Learn how to comply with osha and ansi standards for emergency safety showers and eye wash stations. As a result, it is essential to look beyond. Safety Shower Dimensions.
From www.pinterest.co.uk
ideal shower niche size and placement guide chart safesearch.norton Safety Shower Dimensions Emergency showers and eyewash stations are necessary. Learn how to comply with osha and ansi standards for emergency safety showers and eye wash stations. Learn about the importance, law, specifications and maintenance of emergency showers and eyewash stations for workplace safety. As a result, it is essential to look beyond the use of safe work procedures or personal protective equipment.. Safety Shower Dimensions.
From freecadfloorplans.com
Emergency Shower and Eyewash Station, AutoCAD Block Free Cad Floor Plans Safety Shower Dimensions As a result, it is essential to look beyond the use of safe work procedures or personal protective equipment. Learn about the importance, law, specifications and maintenance of emergency showers and eyewash stations for workplace safety. Emergency showers and eyewash stations are necessary. Learn how to comply with osha and ansi standards for emergency safety showers and eye wash stations.. Safety Shower Dimensions.
From www.terrauniversal.com
Enclosed Laboratory Safety Shower Safety Shower Dimensions Learn how to comply with osha and ansi standards for emergency safety showers and eye wash stations. Find out the key factors to consider for location, visibility, product. Learn about the importance, law, specifications and maintenance of emergency showers and eyewash stations for workplace safety. Find out the key requirements for location, flow, operation, water. The key elements of osha. Safety Shower Dimensions.
From www.gesafety.com
Guardian Equipment ANSI Standards Safety Shower Dimensions Find out the key factors to consider for location, visibility, product. Learn about the importance, law, specifications and maintenance of emergency showers and eyewash stations for workplace safety. The key elements of osha safety shower requirements include the design and location of safety showers for easy accessibility, the use. Find out the key requirements for location, flow, operation, water. Emergency. Safety Shower Dimensions.
From www.reece.co.nz
Wolfen Freestanding Safety Shower & Eye Wash Hand Operated Polished Safety Shower Dimensions The key elements of osha safety shower requirements include the design and location of safety showers for easy accessibility, the use. Emergency showers and eyewash stations are necessary. Find out the key requirements for location, flow, operation, water. Learn about the importance, law, specifications and maintenance of emergency showers and eyewash stations for workplace safety. Learn how to comply with. Safety Shower Dimensions.
From www.sylprotec.com
Wallmounted emergency safety shower, with horizontal water supply. Safety Shower Dimensions Learn how to comply with osha and ansi standards for emergency safety showers and eye wash stations. Emergency showers and eyewash stations are necessary. Learn about the importance, law, specifications and maintenance of emergency showers and eyewash stations for workplace safety. Find out the key factors to consider for location, visibility, product. The key elements of osha safety shower requirements. Safety Shower Dimensions.
From blog.mykukun.com
Master Shower Dimensions A Goto Guide for Beginners Safety Shower Dimensions Find out the key factors to consider for location, visibility, product. Emergency showers and eyewash stations are necessary. As a result, it is essential to look beyond the use of safe work procedures or personal protective equipment. Find out the key requirements for location, flow, operation, water. Learn about the importance, law, specifications and maintenance of emergency showers and eyewash. Safety Shower Dimensions.
From www.bathroommountain.co.uk
Understanding Bathroom Mountain Shower Enclosures Bathroom Mountain Safety Shower Dimensions As a result, it is essential to look beyond the use of safe work procedures or personal protective equipment. Find out the key requirements for location, flow, operation, water. Find out the key factors to consider for location, visibility, product. Learn about the importance, law, specifications and maintenance of emergency showers and eyewash stations for workplace safety. The key elements. Safety Shower Dimensions.