Bow String Girder . The robs are of about 21.25m width, and span lengths of 52m, 58m and 64m c/c expansion joints. harpreet singh, chief project manager, b&sec, share the technical and construction features of three bowstring girder robs, recently constructed under package i & iii of purvanchal expressway in the state of uttar pradesh; drawings of 42m clear span for nhai two lane one way (four lane), bow string girder has been revised due to revision in irc. bow string girder assembly and launching by pull method. 410 mt weight & 54 m span bow string girder was successfully.
from www.youtube.com
drawings of 42m clear span for nhai two lane one way (four lane), bow string girder has been revised due to revision in irc. The robs are of about 21.25m width, and span lengths of 52m, 58m and 64m c/c expansion joints. 410 mt weight & 54 m span bow string girder was successfully. bow string girder assembly and launching by pull method. harpreet singh, chief project manager, b&sec, share the technical and construction features of three bowstring girder robs, recently constructed under package i & iii of purvanchal expressway in the state of uttar pradesh;
Launching of 42 mtr Bow String Girder NH53 Ch302 ROB bridge YouTube
Bow String Girder bow string girder assembly and launching by pull method. drawings of 42m clear span for nhai two lane one way (four lane), bow string girder has been revised due to revision in irc. 410 mt weight & 54 m span bow string girder was successfully. bow string girder assembly and launching by pull method. The robs are of about 21.25m width, and span lengths of 52m, 58m and 64m c/c expansion joints. harpreet singh, chief project manager, b&sec, share the technical and construction features of three bowstring girder robs, recently constructed under package i & iii of purvanchal expressway in the state of uttar pradesh;
From www.indiamart.com
Fixed Heavy Bow String Girder, For Construction at best price in New Delhi Bow String Girder bow string girder assembly and launching by pull method. harpreet singh, chief project manager, b&sec, share the technical and construction features of three bowstring girder robs, recently constructed under package i & iii of purvanchal expressway in the state of uttar pradesh; 410 mt weight & 54 m span bow string girder was successfully. The robs are. Bow String Girder.
From www.steelfabricat.com
Steel Through Bow String Steel Girder Bridge Fabrication Tub H Welded Bow String Girder The robs are of about 21.25m width, and span lengths of 52m, 58m and 64m c/c expansion joints. bow string girder assembly and launching by pull method. 410 mt weight & 54 m span bow string girder was successfully. harpreet singh, chief project manager, b&sec, share the technical and construction features of three bowstring girder robs, recently. Bow String Girder.
From pragativadi.com
60 Meters Long Bow String Girder Launched At Sambalpur By ECoR Bow String Girder 410 mt weight & 54 m span bow string girder was successfully. harpreet singh, chief project manager, b&sec, share the technical and construction features of three bowstring girder robs, recently constructed under package i & iii of purvanchal expressway in the state of uttar pradesh; The robs are of about 21.25m width, and span lengths of 52m, 58m. Bow String Girder.
From www.steelworks.in
Bow String Girder Steel works Bow String Girder 410 mt weight & 54 m span bow string girder was successfully. The robs are of about 21.25m width, and span lengths of 52m, 58m and 64m c/c expansion joints. harpreet singh, chief project manager, b&sec, share the technical and construction features of three bowstring girder robs, recently constructed under package i & iii of purvanchal expressway in. Bow String Girder.
From www.scribd.com
Bowstring Girder Design & Construction Aspects Track (Rail Bow String Girder 410 mt weight & 54 m span bow string girder was successfully. bow string girder assembly and launching by pull method. The robs are of about 21.25m width, and span lengths of 52m, 58m and 64m c/c expansion joints. harpreet singh, chief project manager, b&sec, share the technical and construction features of three bowstring girder robs, recently. Bow String Girder.
From www.scribd.com
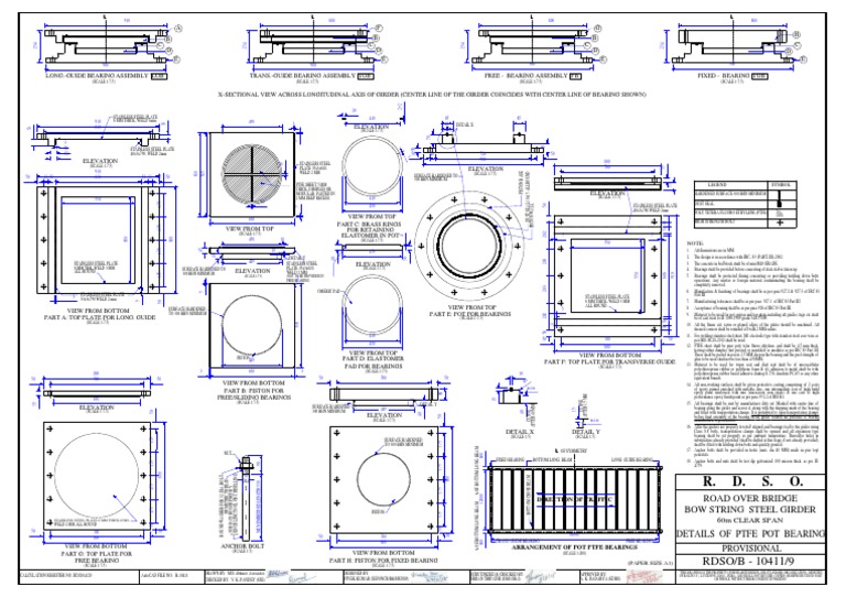
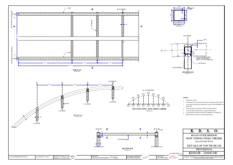
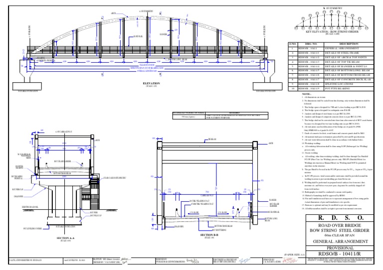
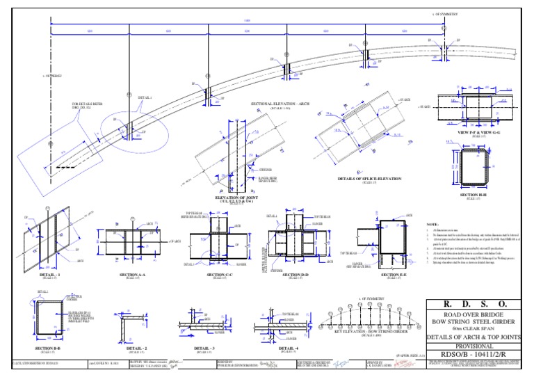
42 M Bow String Girder104083R PDF PDF Beam (Structure Bow String Girder harpreet singh, chief project manager, b&sec, share the technical and construction features of three bowstring girder robs, recently constructed under package i & iii of purvanchal expressway in the state of uttar pradesh; The robs are of about 21.25m width, and span lengths of 52m, 58m and 64m c/c expansion joints. bow string girder assembly and launching by. Bow String Girder.
From asengineers.net
Fabrication & Launching of Bow String Girders AS Engineers Bow String Girder bow string girder assembly and launching by pull method. 410 mt weight & 54 m span bow string girder was successfully. The robs are of about 21.25m width, and span lengths of 52m, 58m and 64m c/c expansion joints. harpreet singh, chief project manager, b&sec, share the technical and construction features of three bowstring girder robs, recently. Bow String Girder.
From www.steelfabricat.com
Steel Through Bow String Steel Girder Bridge Fabrication Tub H Welded Bow String Girder drawings of 42m clear span for nhai two lane one way (four lane), bow string girder has been revised due to revision in irc. The robs are of about 21.25m width, and span lengths of 52m, 58m and 64m c/c expansion joints. bow string girder assembly and launching by pull method. harpreet singh, chief project manager, b&sec,. Bow String Girder.
From www.youtube.com
Launching of the 60 m Bow String Girder at Road Over Bridge (ROB)/NH2 Bow String Girder drawings of 42m clear span for nhai two lane one way (four lane), bow string girder has been revised due to revision in irc. harpreet singh, chief project manager, b&sec, share the technical and construction features of three bowstring girder robs, recently constructed under package i & iii of purvanchal expressway in the state of uttar pradesh; . Bow String Girder.
From www.youtube.com
Bow String Girder for ROB 163 successfully launched YouTube Bow String Girder harpreet singh, chief project manager, b&sec, share the technical and construction features of three bowstring girder robs, recently constructed under package i & iii of purvanchal expressway in the state of uttar pradesh; bow string girder assembly and launching by pull method. The robs are of about 21.25m width, and span lengths of 52m, 58m and 64m c/c. Bow String Girder.
From www.scribd.com
Rdso Bow String Girder104119 PDF Stainless Steel Welding Bow String Girder 410 mt weight & 54 m span bow string girder was successfully. drawings of 42m clear span for nhai two lane one way (four lane), bow string girder has been revised due to revision in irc. bow string girder assembly and launching by pull method. harpreet singh, chief project manager, b&sec, share the technical and construction. Bow String Girder.
From www.youtube.com
BOWSTRING GIRDER YouTube Bow String Girder The robs are of about 21.25m width, and span lengths of 52m, 58m and 64m c/c expansion joints. drawings of 42m clear span for nhai two lane one way (four lane), bow string girder has been revised due to revision in irc. bow string girder assembly and launching by pull method. 410 mt weight & 54 m. Bow String Girder.
From asengineers.net
Fabrication & Launching of Bow String Girders AS Engineers Bow String Girder 410 mt weight & 54 m span bow string girder was successfully. The robs are of about 21.25m width, and span lengths of 52m, 58m and 64m c/c expansion joints. bow string girder assembly and launching by pull method. drawings of 42m clear span for nhai two lane one way (four lane), bow string girder has been. Bow String Girder.
From www.youtube.com
BOW STRING GIRDER LAUNCHING ( NORTH WESTERN RAILWAYS ) YouTube Bow String Girder drawings of 42m clear span for nhai two lane one way (four lane), bow string girder has been revised due to revision in irc. bow string girder assembly and launching by pull method. The robs are of about 21.25m width, and span lengths of 52m, 58m and 64m c/c expansion joints. 410 mt weight & 54 m. Bow String Girder.
From www.youtube.com
Bow string girder basic components YouTube Bow String Girder drawings of 42m clear span for nhai two lane one way (four lane), bow string girder has been revised due to revision in irc. bow string girder assembly and launching by pull method. harpreet singh, chief project manager, b&sec, share the technical and construction features of three bowstring girder robs, recently constructed under package i & iii. Bow String Girder.
From www.linkedin.com
Bow String Girder Bow String Girder drawings of 42m clear span for nhai two lane one way (four lane), bow string girder has been revised due to revision in irc. harpreet singh, chief project manager, b&sec, share the technical and construction features of three bowstring girder robs, recently constructed under package i & iii of purvanchal expressway in the state of uttar pradesh; The. Bow String Girder.
From www.youtube.com
Launching bowstring girder YouTube Bow String Girder bow string girder assembly and launching by pull method. harpreet singh, chief project manager, b&sec, share the technical and construction features of three bowstring girder robs, recently constructed under package i & iii of purvanchal expressway in the state of uttar pradesh; 410 mt weight & 54 m span bow string girder was successfully. drawings of. Bow String Girder.
From www.youtube.com
Bow String Girder for ROB launched at LC142 on 03.01.2023. YouTube Bow String Girder bow string girder assembly and launching by pull method. 410 mt weight & 54 m span bow string girder was successfully. The robs are of about 21.25m width, and span lengths of 52m, 58m and 64m c/c expansion joints. drawings of 42m clear span for nhai two lane one way (four lane), bow string girder has been. Bow String Girder.
From www.scribd.com
All RDSO Bow String Girder of Span 6072 M Metal Fabrication Bow String Girder drawings of 42m clear span for nhai two lane one way (four lane), bow string girder has been revised due to revision in irc. harpreet singh, chief project manager, b&sec, share the technical and construction features of three bowstring girder robs, recently constructed under package i & iii of purvanchal expressway in the state of uttar pradesh; . Bow String Girder.
From asengineers.net
Fabrication & Launching of Bow String Girders AS Engineers Bow String Girder The robs are of about 21.25m width, and span lengths of 52m, 58m and 64m c/c expansion joints. bow string girder assembly and launching by pull method. 410 mt weight & 54 m span bow string girder was successfully. harpreet singh, chief project manager, b&sec, share the technical and construction features of three bowstring girder robs, recently. Bow String Girder.
From asengineers.net
Erection of Structure steel works for Bow String Girder ROBDanapur Bow String Girder drawings of 42m clear span for nhai two lane one way (four lane), bow string girder has been revised due to revision in irc. 410 mt weight & 54 m span bow string girder was successfully. The robs are of about 21.25m width, and span lengths of 52m, 58m and 64m c/c expansion joints. bow string girder. Bow String Girder.
From www.youtube.com
Bow string girder YouTube Bow String Girder 410 mt weight & 54 m span bow string girder was successfully. drawings of 42m clear span for nhai two lane one way (four lane), bow string girder has been revised due to revision in irc. bow string girder assembly and launching by pull method. harpreet singh, chief project manager, b&sec, share the technical and construction. Bow String Girder.
From asengineers.net
Fabrication & Launching of Bow String Girders AS Engineers Bow String Girder 410 mt weight & 54 m span bow string girder was successfully. drawings of 42m clear span for nhai two lane one way (four lane), bow string girder has been revised due to revision in irc. bow string girder assembly and launching by pull method. harpreet singh, chief project manager, b&sec, share the technical and construction. Bow String Girder.
From www.indiamart.com
Electric Hoist Bow String Girder Manufacturer from Bhilai Bow String Girder drawings of 42m clear span for nhai two lane one way (four lane), bow string girder has been revised due to revision in irc. The robs are of about 21.25m width, and span lengths of 52m, 58m and 64m c/c expansion joints. harpreet singh, chief project manager, b&sec, share the technical and construction features of three bowstring girder. Bow String Girder.
From www.scribd.com
Bow String Girder 72 M 6 Lane (17M) RDSOB10425 PDF Bow String Girder The robs are of about 21.25m width, and span lengths of 52m, 58m and 64m c/c expansion joints. drawings of 42m clear span for nhai two lane one way (four lane), bow string girder has been revised due to revision in irc. harpreet singh, chief project manager, b&sec, share the technical and construction features of three bowstring girder. Bow String Girder.
From www.scribd.com
60_M.BOW_STRING_GIRDER10411R Welding Materials Bow String Girder harpreet singh, chief project manager, b&sec, share the technical and construction features of three bowstring girder robs, recently constructed under package i & iii of purvanchal expressway in the state of uttar pradesh; drawings of 42m clear span for nhai two lane one way (four lane), bow string girder has been revised due to revision in irc. . Bow String Girder.
From www.indiamart.com
Bow String Steel Girder Fabrication Service at best price in Meerut Bow String Girder bow string girder assembly and launching by pull method. 410 mt weight & 54 m span bow string girder was successfully. The robs are of about 21.25m width, and span lengths of 52m, 58m and 64m c/c expansion joints. drawings of 42m clear span for nhai two lane one way (four lane), bow string girder has been. Bow String Girder.
From www.steelfabricat.com
Steel Through Bow String Steel Girder Bridge Fabrication Tub H Welded Bow String Girder harpreet singh, chief project manager, b&sec, share the technical and construction features of three bowstring girder robs, recently constructed under package i & iii of purvanchal expressway in the state of uttar pradesh; drawings of 42m clear span for nhai two lane one way (four lane), bow string girder has been revised due to revision in irc. . Bow String Girder.
From www.scribd.com
42 M Bow String Girder104081R PDF Metals Structural Engineering Bow String Girder bow string girder assembly and launching by pull method. 410 mt weight & 54 m span bow string girder was successfully. drawings of 42m clear span for nhai two lane one way (four lane), bow string girder has been revised due to revision in irc. The robs are of about 21.25m width, and span lengths of 52m,. Bow String Girder.
From www.youtube.com
BOW String Girder Bottam Long Beam Erection YouTube Bow String Girder The robs are of about 21.25m width, and span lengths of 52m, 58m and 64m c/c expansion joints. drawings of 42m clear span for nhai two lane one way (four lane), bow string girder has been revised due to revision in irc. harpreet singh, chief project manager, b&sec, share the technical and construction features of three bowstring girder. Bow String Girder.
From www.scribd.com
60 M.bow String Girder104114R PDF Beam (Structure) Economic Bow String Girder 410 mt weight & 54 m span bow string girder was successfully. The robs are of about 21.25m width, and span lengths of 52m, 58m and 64m c/c expansion joints. harpreet singh, chief project manager, b&sec, share the technical and construction features of three bowstring girder robs, recently constructed under package i & iii of purvanchal expressway in. Bow String Girder.
From www.youtube.com
Launching of 42 mtr Bow String Girder NH53 Ch302 ROB bridge YouTube Bow String Girder bow string girder assembly and launching by pull method. The robs are of about 21.25m width, and span lengths of 52m, 58m and 64m c/c expansion joints. 410 mt weight & 54 m span bow string girder was successfully. harpreet singh, chief project manager, b&sec, share the technical and construction features of three bowstring girder robs, recently. Bow String Girder.
From www.scribd.com
60 M.bow String Girder104118R1 PDF Civil Engineering Economic Bow String Girder bow string girder assembly and launching by pull method. The robs are of about 21.25m width, and span lengths of 52m, 58m and 64m c/c expansion joints. 410 mt weight & 54 m span bow string girder was successfully. drawings of 42m clear span for nhai two lane one way (four lane), bow string girder has been. Bow String Girder.
From www.youtube.com
Bow Girder What, Why and How YouTube Bow String Girder bow string girder assembly and launching by pull method. 410 mt weight & 54 m span bow string girder was successfully. harpreet singh, chief project manager, b&sec, share the technical and construction features of three bowstring girder robs, recently constructed under package i & iii of purvanchal expressway in the state of uttar pradesh; drawings of. Bow String Girder.
From www.scribd.com
60 M.bow String Girder 10411 2 R PDF Steel Mechanical Engineering Bow String Girder The robs are of about 21.25m width, and span lengths of 52m, 58m and 64m c/c expansion joints. harpreet singh, chief project manager, b&sec, share the technical and construction features of three bowstring girder robs, recently constructed under package i & iii of purvanchal expressway in the state of uttar pradesh; bow string girder assembly and launching by. Bow String Girder.