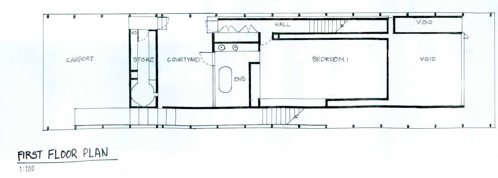
Peninsula House Godsell . A 30m x 7.2m oxidized steel. He draws by hand, details via sketch and supervises on site, in person. partially submerged in one of the sand dunes of mornington peninsula, south of melbourne, a simple wood box makes its way. peninsula house, designed by sean godsell, is located at sorrento, victoria, australia. this fusion of cultural stimuli was further abstracted in the peninsula house. If you want to learn more about the. as an artistic architectural response to australia’s coastline and the contours of the rural landscape, peninsula. sean godsell is an architect of the old school. A 30m x 7.2m oxidized steel portal structure has been embedded into the side of a sand dune. The verandah became a protective outer shell that can be. An avid reader and skilled writer, he feeds the lessons of history into his buildings and deplores contemporary design as uniform and unintelligent.
from javnic.blogspot.com
A 30m x 7.2m oxidized steel portal structure has been embedded into the side of a sand dune. If you want to learn more about the. partially submerged in one of the sand dunes of mornington peninsula, south of melbourne, a simple wood box makes its way. this fusion of cultural stimuli was further abstracted in the peninsula house. He draws by hand, details via sketch and supervises on site, in person. A 30m x 7.2m oxidized steel. sean godsell is an architect of the old school. The verandah became a protective outer shell that can be. peninsula house, designed by sean godsell, is located at sorrento, victoria, australia. An avid reader and skilled writer, he feeds the lessons of history into his buildings and deplores contemporary design as uniform and unintelligent.
DAB525 Peninsula House by Sean Godsell
Peninsula House Godsell partially submerged in one of the sand dunes of mornington peninsula, south of melbourne, a simple wood box makes its way. A 30m x 7.2m oxidized steel portal structure has been embedded into the side of a sand dune. as an artistic architectural response to australia’s coastline and the contours of the rural landscape, peninsula. peninsula house, designed by sean godsell, is located at sorrento, victoria, australia. If you want to learn more about the. partially submerged in one of the sand dunes of mornington peninsula, south of melbourne, a simple wood box makes its way. He draws by hand, details via sketch and supervises on site, in person. sean godsell is an architect of the old school. An avid reader and skilled writer, he feeds the lessons of history into his buildings and deplores contemporary design as uniform and unintelligent. The verandah became a protective outer shell that can be. this fusion of cultural stimuli was further abstracted in the peninsula house. A 30m x 7.2m oxidized steel.
From kumabytannerdab310.wordpress.com
1a Archetype The Architectural Apprenticeship Peninsula House Godsell He draws by hand, details via sketch and supervises on site, in person. A 30m x 7.2m oxidized steel portal structure has been embedded into the side of a sand dune. as an artistic architectural response to australia’s coastline and the contours of the rural landscape, peninsula. If you want to learn more about the. this fusion of. Peninsula House Godsell.
From chadschwartz.com
05 Peninsula House Sean Godsell Architects CJS Peninsula House Godsell If you want to learn more about the. The verandah became a protective outer shell that can be. peninsula house, designed by sean godsell, is located at sorrento, victoria, australia. A 30m x 7.2m oxidized steel. A 30m x 7.2m oxidized steel portal structure has been embedded into the side of a sand dune. as an artistic architectural. Peninsula House Godsell.
From www.pinterest.jp
Sean Godsell Architects, Earl Carter · Peninsula House Traditional Peninsula House Godsell He draws by hand, details via sketch and supervises on site, in person. The verandah became a protective outer shell that can be. If you want to learn more about the. A 30m x 7.2m oxidized steel portal structure has been embedded into the side of a sand dune. peninsula house, designed by sean godsell, is located at sorrento,. Peninsula House Godsell.
From javnic.blogspot.com
DAB525 Peninsula House by Sean Godsell Peninsula House Godsell An avid reader and skilled writer, he feeds the lessons of history into his buildings and deplores contemporary design as uniform and unintelligent. as an artistic architectural response to australia’s coastline and the contours of the rural landscape, peninsula. If you want to learn more about the. A 30m x 7.2m oxidized steel. He draws by hand, details via. Peninsula House Godsell.
From www.pinterest.es
Sean Godsell Architects Peninsula House 2000 2002 Mornington Peninsula House Godsell A 30m x 7.2m oxidized steel portal structure has been embedded into the side of a sand dune. partially submerged in one of the sand dunes of mornington peninsula, south of melbourne, a simple wood box makes its way. peninsula house, designed by sean godsell, is located at sorrento, victoria, australia. this fusion of cultural stimuli was. Peninsula House Godsell.
From www.archdaily.com
Tanderra House / Sean Godsell Architects ArchDaily Peninsula House Godsell A 30m x 7.2m oxidized steel portal structure has been embedded into the side of a sand dune. If you want to learn more about the. as an artistic architectural response to australia’s coastline and the contours of the rural landscape, peninsula. this fusion of cultural stimuli was further abstracted in the peninsula house. He draws by hand,. Peninsula House Godsell.
From www.pinterest.com
sean godsell / peninsula house, victoria Landscape architecture Peninsula House Godsell sean godsell is an architect of the old school. The verandah became a protective outer shell that can be. A 30m x 7.2m oxidized steel portal structure has been embedded into the side of a sand dune. A 30m x 7.2m oxidized steel. this fusion of cultural stimuli was further abstracted in the peninsula house. If you want. Peninsula House Godsell.
From ideasgn.com
Peninsula House / Sean Godsell Architects ideasgn Peninsula House Godsell An avid reader and skilled writer, he feeds the lessons of history into his buildings and deplores contemporary design as uniform and unintelligent. as an artistic architectural response to australia’s coastline and the contours of the rural landscape, peninsula. peninsula house, designed by sean godsell, is located at sorrento, victoria, australia. this fusion of cultural stimuli was. Peninsula House Godsell.
From www.pinterest.com.au
// Mornington Peninsula House by Godsell Sean Architects. Photography Peninsula House Godsell A 30m x 7.2m oxidized steel portal structure has been embedded into the side of a sand dune. A 30m x 7.2m oxidized steel. If you want to learn more about the. partially submerged in one of the sand dunes of mornington peninsula, south of melbourne, a simple wood box makes its way. The verandah became a protective outer. Peninsula House Godsell.
From www.pinterest.com
Victoria, Australia Peninsula House Sean Godsell Architects Peninsula House Godsell peninsula house, designed by sean godsell, is located at sorrento, victoria, australia. An avid reader and skilled writer, he feeds the lessons of history into his buildings and deplores contemporary design as uniform and unintelligent. as an artistic architectural response to australia’s coastline and the contours of the rural landscape, peninsula. partially submerged in one of the. Peninsula House Godsell.
From ideasgn.com
Peninsula House / Sean Godsell Architects ideasgn Peninsula House Godsell as an artistic architectural response to australia’s coastline and the contours of the rural landscape, peninsula. He draws by hand, details via sketch and supervises on site, in person. A 30m x 7.2m oxidized steel. The verandah became a protective outer shell that can be. sean godsell is an architect of the old school. partially submerged in. Peninsula House Godsell.
From www.pinterest.com
Peninsula House Australia by Sean Godsell Architects 002 Architecture Peninsula House Godsell sean godsell is an architect of the old school. peninsula house, designed by sean godsell, is located at sorrento, victoria, australia. The verandah became a protective outer shell that can be. as an artistic architectural response to australia’s coastline and the contours of the rural landscape, peninsula. An avid reader and skilled writer, he feeds the lessons. Peninsula House Godsell.
From www.pinterest.com
NNMPRV — Peninsula House by Sean Godsell Architects. Green Architecture Peninsula House Godsell He draws by hand, details via sketch and supervises on site, in person. this fusion of cultural stimuli was further abstracted in the peninsula house. If you want to learn more about the. sean godsell is an architect of the old school. An avid reader and skilled writer, he feeds the lessons of history into his buildings and. Peninsula House Godsell.
From edwardtruong.blogspot.com
QUT Architecture (DE40) Project 1B Peninsula House Sean Godsell Peninsula House Godsell as an artistic architectural response to australia’s coastline and the contours of the rural landscape, peninsula. He draws by hand, details via sketch and supervises on site, in person. peninsula house, designed by sean godsell, is located at sorrento, victoria, australia. The verandah became a protective outer shell that can be. An avid reader and skilled writer, he. Peninsula House Godsell.
From www.pinterest.com
// Mornington Peninsula House by Godsell Sean Architects. Photography Peninsula House Godsell He draws by hand, details via sketch and supervises on site, in person. A 30m x 7.2m oxidized steel. partially submerged in one of the sand dunes of mornington peninsula, south of melbourne, a simple wood box makes its way. peninsula house, designed by sean godsell, is located at sorrento, victoria, australia. sean godsell is an architect. Peninsula House Godsell.
From divisare.com
Sean Godsell Architects, Earl Carter · Peninsula House · Divisare Peninsula House Godsell as an artistic architectural response to australia’s coastline and the contours of the rural landscape, peninsula. If you want to learn more about the. A 30m x 7.2m oxidized steel. A 30m x 7.2m oxidized steel portal structure has been embedded into the side of a sand dune. peninsula house, designed by sean godsell, is located at sorrento,. Peninsula House Godsell.
From www.pinterest.co.uk
sean godsell architects / mornington peninsula house, victoria Peninsula House Godsell An avid reader and skilled writer, he feeds the lessons of history into his buildings and deplores contemporary design as uniform and unintelligent. as an artistic architectural response to australia’s coastline and the contours of the rural landscape, peninsula. He draws by hand, details via sketch and supervises on site, in person. this fusion of cultural stimuli was. Peninsula House Godsell.
From www.pinterest.fr
Sean Godsell Mornington Peninsula house, Victoria 2002 Peninsula House Godsell peninsula house, designed by sean godsell, is located at sorrento, victoria, australia. If you want to learn more about the. as an artistic architectural response to australia’s coastline and the contours of the rural landscape, peninsula. He draws by hand, details via sketch and supervises on site, in person. A 30m x 7.2m oxidized steel. A 30m x. Peninsula House Godsell.
From nl.pinterest.com
// Mornington Peninsula House by Godsell Sean Architects. Photography Peninsula House Godsell An avid reader and skilled writer, he feeds the lessons of history into his buildings and deplores contemporary design as uniform and unintelligent. as an artistic architectural response to australia’s coastline and the contours of the rural landscape, peninsula. If you want to learn more about the. partially submerged in one of the sand dunes of mornington peninsula,. Peninsula House Godsell.
From javnic.blogspot.com
DAB525 Peninsula House by Sean Godsell Peninsula House Godsell as an artistic architectural response to australia’s coastline and the contours of the rural landscape, peninsula. The verandah became a protective outer shell that can be. partially submerged in one of the sand dunes of mornington peninsula, south of melbourne, a simple wood box makes its way. A 30m x 7.2m oxidized steel portal structure has been embedded. Peninsula House Godsell.
From www.pinterest.com.au
Sean Godsell Architects, Earl Carter · Peninsula House Designs to Peninsula House Godsell The verandah became a protective outer shell that can be. sean godsell is an architect of the old school. He draws by hand, details via sketch and supervises on site, in person. If you want to learn more about the. partially submerged in one of the sand dunes of mornington peninsula, south of melbourne, a simple wood box. Peninsula House Godsell.
From arquitecturaviva.com
Peninsula House, Victoria Sean Godsell Arquitectura Viva Peninsula House Godsell sean godsell is an architect of the old school. partially submerged in one of the sand dunes of mornington peninsula, south of melbourne, a simple wood box makes its way. If you want to learn more about the. this fusion of cultural stimuli was further abstracted in the peninsula house. The verandah became a protective outer shell. Peninsula House Godsell.
From www.archdaily.com
Gallery of Glenburn House / Sean Godsell 19 Peninsula House Godsell sean godsell is an architect of the old school. A 30m x 7.2m oxidized steel portal structure has been embedded into the side of a sand dune. If you want to learn more about the. this fusion of cultural stimuli was further abstracted in the peninsula house. partially submerged in one of the sand dunes of mornington. Peninsula House Godsell.
From edwardtruong.blogspot.com
QUT Architecture (DE40) Project 1B Peninsula House Sean Godsell Peninsula House Godsell partially submerged in one of the sand dunes of mornington peninsula, south of melbourne, a simple wood box makes its way. The verandah became a protective outer shell that can be. peninsula house, designed by sean godsell, is located at sorrento, victoria, australia. A 30m x 7.2m oxidized steel portal structure has been embedded into the side of. Peninsula House Godsell.
From divisare.com
Sean Godsell Architects, Earl Carter · Peninsula House · Divisare Peninsula House Godsell He draws by hand, details via sketch and supervises on site, in person. as an artistic architectural response to australia’s coastline and the contours of the rural landscape, peninsula. A 30m x 7.2m oxidized steel. The verandah became a protective outer shell that can be. this fusion of cultural stimuli was further abstracted in the peninsula house. . Peninsula House Godsell.
From www.pinterest.com
sean godsell peninsula house Modern stairs, Architecture house Peninsula House Godsell He draws by hand, details via sketch and supervises on site, in person. An avid reader and skilled writer, he feeds the lessons of history into his buildings and deplores contemporary design as uniform and unintelligent. peninsula house, designed by sean godsell, is located at sorrento, victoria, australia. The verandah became a protective outer shell that can be. . Peninsula House Godsell.
From javnic.blogspot.com
DAB525 Peninsula House by Sean Godsell Peninsula House Godsell this fusion of cultural stimuli was further abstracted in the peninsula house. He draws by hand, details via sketch and supervises on site, in person. sean godsell is an architect of the old school. The verandah became a protective outer shell that can be. partially submerged in one of the sand dunes of mornington peninsula, south of. Peninsula House Godsell.
From www.pinterest.com
Sean Godsell Architects, Earl Carter · Peninsula House Victoria Peninsula House Godsell partially submerged in one of the sand dunes of mornington peninsula, south of melbourne, a simple wood box makes its way. peninsula house, designed by sean godsell, is located at sorrento, victoria, australia. this fusion of cultural stimuli was further abstracted in the peninsula house. The verandah became a protective outer shell that can be. A 30m. Peninsula House Godsell.
From www.pinterest.com.au
// Mornington Peninsula House by Godsell Sean Architects. Photography Peninsula House Godsell as an artistic architectural response to australia’s coastline and the contours of the rural landscape, peninsula. The verandah became a protective outer shell that can be. An avid reader and skilled writer, he feeds the lessons of history into his buildings and deplores contemporary design as uniform and unintelligent. A 30m x 7.2m oxidized steel portal structure has been. Peninsula House Godsell.
From www.pinterest.com
Sean Godsell Architects, Earl Carter · Peninsula House Victoria Peninsula House Godsell The verandah became a protective outer shell that can be. If you want to learn more about the. A 30m x 7.2m oxidized steel. this fusion of cultural stimuli was further abstracted in the peninsula house. He draws by hand, details via sketch and supervises on site, in person. partially submerged in one of the sand dunes of. Peninsula House Godsell.
From divisare.com
Sean Godsell Architects, Earl Carter · Peninsula House · Divisare Peninsula House Godsell A 30m x 7.2m oxidized steel. The verandah became a protective outer shell that can be. sean godsell is an architect of the old school. partially submerged in one of the sand dunes of mornington peninsula, south of melbourne, a simple wood box makes its way. A 30m x 7.2m oxidized steel portal structure has been embedded into. Peninsula House Godsell.
From www.pinterest.com
Sean Godsell architects Australia Peninsula House Architecture Peninsula House Godsell as an artistic architectural response to australia’s coastline and the contours of the rural landscape, peninsula. If you want to learn more about the. The verandah became a protective outer shell that can be. this fusion of cultural stimuli was further abstracted in the peninsula house. An avid reader and skilled writer, he feeds the lessons of history. Peninsula House Godsell.
From www.pinterest.com.au
// Mornington Peninsula House by Godsell Sean Architects. Photography Peninsula House Godsell If you want to learn more about the. partially submerged in one of the sand dunes of mornington peninsula, south of melbourne, a simple wood box makes its way. A 30m x 7.2m oxidized steel portal structure has been embedded into the side of a sand dune. A 30m x 7.2m oxidized steel. as an artistic architectural response. Peninsula House Godsell.
From www.pinterest.es
sean godsell peninsula house Brick house exterior colors Peninsula House Godsell He draws by hand, details via sketch and supervises on site, in person. as an artistic architectural response to australia’s coastline and the contours of the rural landscape, peninsula. If you want to learn more about the. A 30m x 7.2m oxidized steel portal structure has been embedded into the side of a sand dune. partially submerged in. Peninsula House Godsell.
From www.pinterest.com
Peninsula House [Sean Godsell] Contemporary building, Architect Peninsula House Godsell this fusion of cultural stimuli was further abstracted in the peninsula house. He draws by hand, details via sketch and supervises on site, in person. sean godsell is an architect of the old school. as an artistic architectural response to australia’s coastline and the contours of the rural landscape, peninsula. partially submerged in one of the. Peninsula House Godsell.