Vacation Rental Permit Aspen . In 2022 governments throughout the roaring fork valley tackled new ways of addressing short term rentals. Please review the str program guidelines and chapter 26.530 prior to submitting an application for a full understanding of program compliance. On july 29, 2022, the city of aspen ordinance no. Aspen requires owners or operators of vacation rentals to apply for, receive, and annually renew a vacation rental permit. Acra polled members, attended public hearings, and submitted public comment in. A vacation rental must comply with each of the following: Aspen to see if an active str permit exists for a property. Property owners wishing to rent their residential property or dwelling unit for periods of fewer than 30 days at a time must obtain an str permit and the. Users can also see the type of permit, permit number, and name of the permittee for. I have obtained or applied for a city. For one consolidated vacation rental permit.
from www.templateroller.com
Aspen to see if an active str permit exists for a property. Acra polled members, attended public hearings, and submitted public comment in. Users can also see the type of permit, permit number, and name of the permittee for. A vacation rental must comply with each of the following: I have obtained or applied for a city. Aspen requires owners or operators of vacation rentals to apply for, receive, and annually renew a vacation rental permit. In 2022 governments throughout the roaring fork valley tackled new ways of addressing short term rentals. Property owners wishing to rent their residential property or dwelling unit for periods of fewer than 30 days at a time must obtain an str permit and the. For one consolidated vacation rental permit. On july 29, 2022, the city of aspen ordinance no.
Mono County, California Vacation Home Rental Permit Fill Out, Sign
Vacation Rental Permit Aspen Acra polled members, attended public hearings, and submitted public comment in. Acra polled members, attended public hearings, and submitted public comment in. Property owners wishing to rent their residential property or dwelling unit for periods of fewer than 30 days at a time must obtain an str permit and the. For one consolidated vacation rental permit. Aspen requires owners or operators of vacation rentals to apply for, receive, and annually renew a vacation rental permit. Please review the str program guidelines and chapter 26.530 prior to submitting an application for a full understanding of program compliance. On july 29, 2022, the city of aspen ordinance no. I have obtained or applied for a city. A vacation rental must comply with each of the following: Users can also see the type of permit, permit number, and name of the permittee for. In 2022 governments throughout the roaring fork valley tackled new ways of addressing short term rentals. Aspen to see if an active str permit exists for a property.
From www.dochub.com
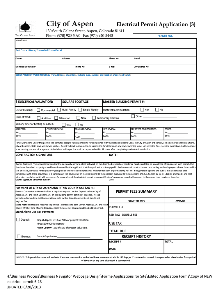
City of Aspen Electrical Permit Application (3) 130 South Galena Street Vacation Rental Permit Aspen I have obtained or applied for a city. A vacation rental must comply with each of the following: On july 29, 2022, the city of aspen ordinance no. In 2022 governments throughout the roaring fork valley tackled new ways of addressing short term rentals. Please review the str program guidelines and chapter 26.530 prior to submitting an application for a. Vacation Rental Permit Aspen.
From exosfstkx.blob.core.windows.net
Aspen Co Rentals By Owner at Betty Blair blog Vacation Rental Permit Aspen For one consolidated vacation rental permit. Aspen to see if an active str permit exists for a property. Property owners wishing to rent their residential property or dwelling unit for periods of fewer than 30 days at a time must obtain an str permit and the. I have obtained or applied for a city. Users can also see the type. Vacation Rental Permit Aspen.
From www.aspen.gov
Apply for a Shortterm Rental Permit Aspen, CO Vacation Rental Permit Aspen I have obtained or applied for a city. Property owners wishing to rent their residential property or dwelling unit for periods of fewer than 30 days at a time must obtain an str permit and the. Users can also see the type of permit, permit number, and name of the permittee for. In 2022 governments throughout the roaring fork valley. Vacation Rental Permit Aspen.
From www.pdffiller.com
Fillable Online Vacation Rental Permit Renewal Form Fax Email Print Vacation Rental Permit Aspen Acra polled members, attended public hearings, and submitted public comment in. Aspen requires owners or operators of vacation rentals to apply for, receive, and annually renew a vacation rental permit. Property owners wishing to rent their residential property or dwelling unit for periods of fewer than 30 days at a time must obtain an str permit and the. I have. Vacation Rental Permit Aspen.
From www.facebook.com
Aspen Vacation Rental Aspen CO Vacation Rental Permit Aspen Please review the str program guidelines and chapter 26.530 prior to submitting an application for a full understanding of program compliance. For one consolidated vacation rental permit. Aspen requires owners or operators of vacation rentals to apply for, receive, and annually renew a vacation rental permit. Property owners wishing to rent their residential property or dwelling unit for periods of. Vacation Rental Permit Aspen.
From templates.udlvirtual.edu.pe
Free Short Term Vacation Rental Agreement Template Printable Templates Vacation Rental Permit Aspen I have obtained or applied for a city. Aspen requires owners or operators of vacation rentals to apply for, receive, and annually renew a vacation rental permit. In 2022 governments throughout the roaring fork valley tackled new ways of addressing short term rentals. A vacation rental must comply with each of the following: On july 29, 2022, the city of. Vacation Rental Permit Aspen.
From www.pdffiller.com
Fillable Online Get a Short Term Rental Permit City of Columbus, Ohio Vacation Rental Permit Aspen Aspen requires owners or operators of vacation rentals to apply for, receive, and annually renew a vacation rental permit. In 2022 governments throughout the roaring fork valley tackled new ways of addressing short term rentals. Users can also see the type of permit, permit number, and name of the permittee for. Please review the str program guidelines and chapter 26.530. Vacation Rental Permit Aspen.
From www.aspentimes.com
Aspen electeds pass shortterm rental laws requiring business license Vacation Rental Permit Aspen Property owners wishing to rent their residential property or dwelling unit for periods of fewer than 30 days at a time must obtain an str permit and the. In 2022 governments throughout the roaring fork valley tackled new ways of addressing short term rentals. Acra polled members, attended public hearings, and submitted public comment in. Users can also see the. Vacation Rental Permit Aspen.
From www.pdffiller.com
Fillable Online Chelan County Vacation Rental Permit US Legal Forms Vacation Rental Permit Aspen Aspen to see if an active str permit exists for a property. I have obtained or applied for a city. A vacation rental must comply with each of the following: For one consolidated vacation rental permit. In 2022 governments throughout the roaring fork valley tackled new ways of addressing short term rentals. Acra polled members, attended public hearings, and submitted. Vacation Rental Permit Aspen.
From www.resortsandlodges.com
Aspen Luxury Vacation Rentals (Aspen, CO) Resort Reviews Vacation Rental Permit Aspen Aspen to see if an active str permit exists for a property. Property owners wishing to rent their residential property or dwelling unit for periods of fewer than 30 days at a time must obtain an str permit and the. For one consolidated vacation rental permit. Please review the str program guidelines and chapter 26.530 prior to submitting an application. Vacation Rental Permit Aspen.
From www.signnow.com
WA Annual Vacation Rental Permit Application Chelan County Fill Out Vacation Rental Permit Aspen Aspen to see if an active str permit exists for a property. Acra polled members, attended public hearings, and submitted public comment in. For one consolidated vacation rental permit. Aspen requires owners or operators of vacation rentals to apply for, receive, and annually renew a vacation rental permit. Users can also see the type of permit, permit number, and name. Vacation Rental Permit Aspen.
From www.pdffiller.com
Fillable Online CITY OF FAIRBURN SHORT TERM RENTAL PERMIT Fax Email Vacation Rental Permit Aspen Please review the str program guidelines and chapter 26.530 prior to submitting an application for a full understanding of program compliance. A vacation rental must comply with each of the following: Acra polled members, attended public hearings, and submitted public comment in. Aspen to see if an active str permit exists for a property. Property owners wishing to rent their. Vacation Rental Permit Aspen.
From www.templateroller.com
Mono County, California ShortTerm Rental Activity Permit Application Vacation Rental Permit Aspen Users can also see the type of permit, permit number, and name of the permittee for. Aspen requires owners or operators of vacation rentals to apply for, receive, and annually renew a vacation rental permit. Acra polled members, attended public hearings, and submitted public comment in. I have obtained or applied for a city. In 2022 governments throughout the roaring. Vacation Rental Permit Aspen.
From www.pdffiller.com
Fillable Online APPLICATION TO RENEW SHORTTERM RENTAL PERMIT Fax Email Vacation Rental Permit Aspen Aspen requires owners or operators of vacation rentals to apply for, receive, and annually renew a vacation rental permit. Property owners wishing to rent their residential property or dwelling unit for periods of fewer than 30 days at a time must obtain an str permit and the. Acra polled members, attended public hearings, and submitted public comment in. I have. Vacation Rental Permit Aspen.
From www.pdffiller.com
Fillable Online City of Rancho Cucamonga SHORTTERM RENTAL Permit Fax Vacation Rental Permit Aspen I have obtained or applied for a city. Aspen to see if an active str permit exists for a property. Acra polled members, attended public hearings, and submitted public comment in. Aspen requires owners or operators of vacation rentals to apply for, receive, and annually renew a vacation rental permit. For one consolidated vacation rental permit. In 2022 governments throughout. Vacation Rental Permit Aspen.
From campuslifestyle.org
Housekeeper/Vacation Rentals Cleaner Jobs In Canada With Work Permit Vacation Rental Permit Aspen Aspen to see if an active str permit exists for a property. Acra polled members, attended public hearings, and submitted public comment in. Please review the str program guidelines and chapter 26.530 prior to submitting an application for a full understanding of program compliance. I have obtained or applied for a city. A vacation rental must comply with each of. Vacation Rental Permit Aspen.
From www.pdffiller.com
Fillable Online SHORTTERM RENTAL PERMIT APPLICATION WORKSHEET Fax Vacation Rental Permit Aspen For one consolidated vacation rental permit. Please review the str program guidelines and chapter 26.530 prior to submitting an application for a full understanding of program compliance. Aspen to see if an active str permit exists for a property. Acra polled members, attended public hearings, and submitted public comment in. Aspen requires owners or operators of vacation rentals to apply. Vacation Rental Permit Aspen.
From www.youtube.com
New 2023 McCall Idaho Vacation Rental Permit Complete guide for AIRBNB Vacation Rental Permit Aspen Aspen requires owners or operators of vacation rentals to apply for, receive, and annually renew a vacation rental permit. For one consolidated vacation rental permit. Property owners wishing to rent their residential property or dwelling unit for periods of fewer than 30 days at a time must obtain an str permit and the. Aspen to see if an active str. Vacation Rental Permit Aspen.
From www.pdffiller.com
Fillable Online PJR096 Vacation Rental Application. Application for a Vacation Rental Permit Aspen Aspen to see if an active str permit exists for a property. A vacation rental must comply with each of the following: Users can also see the type of permit, permit number, and name of the permittee for. For one consolidated vacation rental permit. Aspen requires owners or operators of vacation rentals to apply for, receive, and annually renew a. Vacation Rental Permit Aspen.
From www.pdffiller.com
Fillable Online OVERNIGHT/VACATION PARKING PERMIT APPLICATION Fax Email Vacation Rental Permit Aspen Acra polled members, attended public hearings, and submitted public comment in. In 2022 governments throughout the roaring fork valley tackled new ways of addressing short term rentals. For one consolidated vacation rental permit. Users can also see the type of permit, permit number, and name of the permittee for. On july 29, 2022, the city of aspen ordinance no. Please. Vacation Rental Permit Aspen.
From www.pinterest.com
Aspen Vacation Rental Aspen cabin in the woods with wood fireplace Vacation Rental Permit Aspen On july 29, 2022, the city of aspen ordinance no. Acra polled members, attended public hearings, and submitted public comment in. Aspen to see if an active str permit exists for a property. A vacation rental must comply with each of the following: I have obtained or applied for a city. Please review the str program guidelines and chapter 26.530. Vacation Rental Permit Aspen.
From www.templateroller.com
City of Petaluma, California ShortTerm Vacation Rental Permit Download Vacation Rental Permit Aspen I have obtained or applied for a city. Please review the str program guidelines and chapter 26.530 prior to submitting an application for a full understanding of program compliance. Users can also see the type of permit, permit number, and name of the permittee for. In 2022 governments throughout the roaring fork valley tackled new ways of addressing short term. Vacation Rental Permit Aspen.
From www.templateroller.com
City of Petaluma, California ShortTerm Vacation Rental Permit Fill Vacation Rental Permit Aspen Property owners wishing to rent their residential property or dwelling unit for periods of fewer than 30 days at a time must obtain an str permit and the. In 2022 governments throughout the roaring fork valley tackled new ways of addressing short term rentals. I have obtained or applied for a city. On july 29, 2022, the city of aspen. Vacation Rental Permit Aspen.
From www.youtube.com
Short term Vacation rental permit cost causes financial concerns for Vacation Rental Permit Aspen Please review the str program guidelines and chapter 26.530 prior to submitting an application for a full understanding of program compliance. In 2022 governments throughout the roaring fork valley tackled new ways of addressing short term rentals. For one consolidated vacation rental permit. A vacation rental must comply with each of the following: Users can also see the type of. Vacation Rental Permit Aspen.
From www.pdffiller.com
Fillable Online henlopenacres delaware Rental Permit Application Vacation Rental Permit Aspen I have obtained or applied for a city. For one consolidated vacation rental permit. On july 29, 2022, the city of aspen ordinance no. A vacation rental must comply with each of the following: Property owners wishing to rent their residential property or dwelling unit for periods of fewer than 30 days at a time must obtain an str permit. Vacation Rental Permit Aspen.
From bestcoloradomountaingetaways.com
Luxury Vacation Rentals in Aspen Colorado Top 10 Airbnb Colorado Vacation Rental Permit Aspen Aspen requires owners or operators of vacation rentals to apply for, receive, and annually renew a vacation rental permit. Users can also see the type of permit, permit number, and name of the permittee for. Aspen to see if an active str permit exists for a property. Property owners wishing to rent their residential property or dwelling unit for periods. Vacation Rental Permit Aspen.
From www.templateroller.com
Mono County, California Vacation Home Rental Permit Fill Out, Sign Vacation Rental Permit Aspen Acra polled members, attended public hearings, and submitted public comment in. Aspen to see if an active str permit exists for a property. Aspen requires owners or operators of vacation rentals to apply for, receive, and annually renew a vacation rental permit. I have obtained or applied for a city. Please review the str program guidelines and chapter 26.530 prior. Vacation Rental Permit Aspen.
From www.signnow.com
PJR 119 Property Report Checklist Part of the Vacation Rental Permit Vacation Rental Permit Aspen Users can also see the type of permit, permit number, and name of the permittee for. Acra polled members, attended public hearings, and submitted public comment in. I have obtained or applied for a city. Please review the str program guidelines and chapter 26.530 prior to submitting an application for a full understanding of program compliance. Property owners wishing to. Vacation Rental Permit Aspen.
From www.templateroller.com
Mono County, California ShortTerm Rental Activity Permit Application Vacation Rental Permit Aspen For one consolidated vacation rental permit. Users can also see the type of permit, permit number, and name of the permittee for. Acra polled members, attended public hearings, and submitted public comment in. A vacation rental must comply with each of the following: I have obtained or applied for a city. On july 29, 2022, the city of aspen ordinance. Vacation Rental Permit Aspen.
From www.thetimesherald.com
Residents pushback on new vacation rental permit in Port Huron Vacation Rental Permit Aspen A vacation rental must comply with each of the following: Property owners wishing to rent their residential property or dwelling unit for periods of fewer than 30 days at a time must obtain an str permit and the. On july 29, 2022, the city of aspen ordinance no. Aspen requires owners or operators of vacation rentals to apply for, receive,. Vacation Rental Permit Aspen.
From bestcoloradomountaingetaways.com
Luxury Vacation Rentals in Aspen Colorado Top 10 Airbnb Colorado Vacation Rental Permit Aspen Aspen to see if an active str permit exists for a property. Property owners wishing to rent their residential property or dwelling unit for periods of fewer than 30 days at a time must obtain an str permit and the. In 2022 governments throughout the roaring fork valley tackled new ways of addressing short term rentals. Users can also see. Vacation Rental Permit Aspen.
From www.facebook.com
AspenVacationRentals Aspen CO Vacation Rental Permit Aspen Aspen requires owners or operators of vacation rentals to apply for, receive, and annually renew a vacation rental permit. In 2022 governments throughout the roaring fork valley tackled new ways of addressing short term rentals. Aspen to see if an active str permit exists for a property. Property owners wishing to rent their residential property or dwelling unit for periods. Vacation Rental Permit Aspen.
From www.pinterest.com
Aspen Vacation Rental Aspen Condo with great hotel service. Outdoor Vacation Rental Permit Aspen Please review the str program guidelines and chapter 26.530 prior to submitting an application for a full understanding of program compliance. A vacation rental must comply with each of the following: In 2022 governments throughout the roaring fork valley tackled new ways of addressing short term rentals. Aspen requires owners or operators of vacation rentals to apply for, receive, and. Vacation Rental Permit Aspen.
From www.pdffiller.com
Fillable Online aspen.govDocumentCenterViewZONING CHECKLIST FOR Vacation Rental Permit Aspen On july 29, 2022, the city of aspen ordinance no. Aspen requires owners or operators of vacation rentals to apply for, receive, and annually renew a vacation rental permit. Property owners wishing to rent their residential property or dwelling unit for periods of fewer than 30 days at a time must obtain an str permit and the. I have obtained. Vacation Rental Permit Aspen.
From www.pdffiller.com
Fillable Online VACATION RENTAL PERMIT APPLICATION Yes No Fax Email Vacation Rental Permit Aspen In 2022 governments throughout the roaring fork valley tackled new ways of addressing short term rentals. I have obtained or applied for a city. Please review the str program guidelines and chapter 26.530 prior to submitting an application for a full understanding of program compliance. A vacation rental must comply with each of the following: Property owners wishing to rent. Vacation Rental Permit Aspen.