Bulk Bag Lifting Crane . the conquip bulk bag lifting frame, or bulk bag carrier, is a crane lifting frame designed for the safe and easy movement of ‘tonne bags’ and other bulk bags. the cbh crane slung bulk bag lifter is a cross or cruciform shaped frame with a central swivel lifting eye and bag retaining hooks. bulk bag lifters offer exceptional utility, serving as a pivotal attachment for both forklifts and crane operations. the 1097 big bag lifting frame is a universal piece of equipment for use with either a crane or forklift truck. Rated 4.8 / 5 based on 471 reviews. The frame has one central lifting point for connecting to a crane or other lifting apparatus. the conquip bulk bag lifting frame, or bulk bag carrier, is designed for the safe and easy movement of ‘tonne bags’ and other bulk bags of materials or waste around a site. 2000kg camlok ttb big bag lifter. Our collection includes a wide range of attachments, including. the crane mounted bulk bag lifter is specifically designed for the safe movement of sacks, ballast or similar by hooping. The ttb big bag handlers are a crane attachment designed to lift and transport large bags.
from www.stepsandstillages.co.uk
the crane mounted bulk bag lifter is specifically designed for the safe movement of sacks, ballast or similar by hooping. the 1097 big bag lifting frame is a universal piece of equipment for use with either a crane or forklift truck. the cbh crane slung bulk bag lifter is a cross or cruciform shaped frame with a central swivel lifting eye and bag retaining hooks. The frame has one central lifting point for connecting to a crane or other lifting apparatus. bulk bag lifters offer exceptional utility, serving as a pivotal attachment for both forklifts and crane operations. the conquip bulk bag lifting frame, or bulk bag carrier, is designed for the safe and easy movement of ‘tonne bags’ and other bulk bags of materials or waste around a site. 2000kg camlok ttb big bag lifter. Our collection includes a wide range of attachments, including. the conquip bulk bag lifting frame, or bulk bag carrier, is a crane lifting frame designed for the safe and easy movement of ‘tonne bags’ and other bulk bags. Rated 4.8 / 5 based on 471 reviews.
Bulk bag Lifting Crane Jib BBF4 Steps and Stillages
Bulk Bag Lifting Crane The frame has one central lifting point for connecting to a crane or other lifting apparatus. the 1097 big bag lifting frame is a universal piece of equipment for use with either a crane or forklift truck. The ttb big bag handlers are a crane attachment designed to lift and transport large bags. Rated 4.8 / 5 based on 471 reviews. bulk bag lifters offer exceptional utility, serving as a pivotal attachment for both forklifts and crane operations. the crane mounted bulk bag lifter is specifically designed for the safe movement of sacks, ballast or similar by hooping. the conquip bulk bag lifting frame, or bulk bag carrier, is designed for the safe and easy movement of ‘tonne bags’ and other bulk bags of materials or waste around a site. 2000kg camlok ttb big bag lifter. the conquip bulk bag lifting frame, or bulk bag carrier, is a crane lifting frame designed for the safe and easy movement of ‘tonne bags’ and other bulk bags. the cbh crane slung bulk bag lifter is a cross or cruciform shaped frame with a central swivel lifting eye and bag retaining hooks. Our collection includes a wide range of attachments, including. The frame has one central lifting point for connecting to a crane or other lifting apparatus.
From www.dreamstime.com
Overhead Crane Lift Jumbo Bags of Tapioca Using Spread Bar in Storage Bulk Bag Lifting Crane the cbh crane slung bulk bag lifter is a cross or cruciform shaped frame with a central swivel lifting eye and bag retaining hooks. Rated 4.8 / 5 based on 471 reviews. Our collection includes a wide range of attachments, including. the 1097 big bag lifting frame is a universal piece of equipment for use with either a. Bulk Bag Lifting Crane.
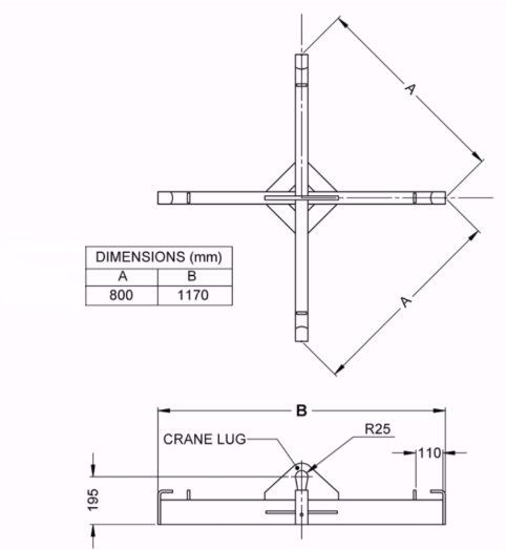
From www.bremco.com.au
BMP069C2T Crane Bulk Bag Lifter Bulk Bag Lifting Crane the 1097 big bag lifting frame is a universal piece of equipment for use with either a crane or forklift truck. the conquip bulk bag lifting frame, or bulk bag carrier, is a crane lifting frame designed for the safe and easy movement of ‘tonne bags’ and other bulk bags. Rated 4.8 / 5 based on 471 reviews.. Bulk Bag Lifting Crane.
From www.dreamstime.com
Overhead Crane Lift Jumbo Bags of Tapioca Using Spread Bar in Storage Bulk Bag Lifting Crane The ttb big bag handlers are a crane attachment designed to lift and transport large bags. the conquip bulk bag lifting frame, or bulk bag carrier, is a crane lifting frame designed for the safe and easy movement of ‘tonne bags’ and other bulk bags. the crane mounted bulk bag lifter is specifically designed for the safe movement. Bulk Bag Lifting Crane.
From longhe-attachments.en.made-in-china.com
Material Handling Equipment, Bulk Bag Lifter for Overhead Crane China Bulk Bag Lifting Crane The ttb big bag handlers are a crane attachment designed to lift and transport large bags. the conquip bulk bag lifting frame, or bulk bag carrier, is a crane lifting frame designed for the safe and easy movement of ‘tonne bags’ and other bulk bags. 2000kg camlok ttb big bag lifter. the 1097 big bag lifting frame. Bulk Bag Lifting Crane.
From www.globalindustrial.com
Forklifts & Attachments Cranes & Hooks Vestil Forklift or Hoist Bulk Bag Lifting Crane The frame has one central lifting point for connecting to a crane or other lifting apparatus. Our collection includes a wide range of attachments, including. The ttb big bag handlers are a crane attachment designed to lift and transport large bags. the cbh crane slung bulk bag lifter is a cross or cruciform shaped frame with a central swivel. Bulk Bag Lifting Crane.
From www.arbilrail.co.uk
Arbil Ballast Bag Lifting Frame with Swivel Hooks Arbil Rail Bulk Bag Lifting Crane the cbh crane slung bulk bag lifter is a cross or cruciform shaped frame with a central swivel lifting eye and bag retaining hooks. the crane mounted bulk bag lifter is specifically designed for the safe movement of sacks, ballast or similar by hooping. Rated 4.8 / 5 based on 471 reviews. the conquip bulk bag lifting. Bulk Bag Lifting Crane.
From www.dreamstime.com
Overhead Crane Lift Jumbo Bags of Tapioca Using Spread Bar in Storage Bulk Bag Lifting Crane the conquip bulk bag lifting frame, or bulk bag carrier, is a crane lifting frame designed for the safe and easy movement of ‘tonne bags’ and other bulk bags. Rated 4.8 / 5 based on 471 reviews. the conquip bulk bag lifting frame, or bulk bag carrier, is designed for the safe and easy movement of ‘tonne bags’. Bulk Bag Lifting Crane.
From metalcagesandpallets.co.uk
Bulk Bag Lifting Jib For Forklift. £99+VAT. Buy Now. Made In Britain Bulk Bag Lifting Crane the cbh crane slung bulk bag lifter is a cross or cruciform shaped frame with a central swivel lifting eye and bag retaining hooks. Rated 4.8 / 5 based on 471 reviews. the crane mounted bulk bag lifter is specifically designed for the safe movement of sacks, ballast or similar by hooping. The frame has one central lifting. Bulk Bag Lifting Crane.
From www.liftshift.co.za
Bulk Bag Lifting Frame Bulk Bag Lifting Crane bulk bag lifters offer exceptional utility, serving as a pivotal attachment for both forklifts and crane operations. the conquip bulk bag lifting frame, or bulk bag carrier, is designed for the safe and easy movement of ‘tonne bags’ and other bulk bags of materials or waste around a site. the conquip bulk bag lifting frame, or bulk. Bulk Bag Lifting Crane.
From www.safetyliftingear.com
1000kg Crane Slung Bulk Bag Carrier (HSSBC1000RS) SafetyLiftinGear Bulk Bag Lifting Crane the conquip bulk bag lifting frame, or bulk bag carrier, is a crane lifting frame designed for the safe and easy movement of ‘tonne bags’ and other bulk bags. Our collection includes a wide range of attachments, including. The ttb big bag handlers are a crane attachment designed to lift and transport large bags. bulk bag lifters offer. Bulk Bag Lifting Crane.
From www.materialshandling.com.au
Lifting Frames Bulk Bag Handling Materials Handling Bulk Bag Lifting Crane 2000kg camlok ttb big bag lifter. the conquip bulk bag lifting frame, or bulk bag carrier, is a crane lifting frame designed for the safe and easy movement of ‘tonne bags’ and other bulk bags. the crane mounted bulk bag lifter is specifically designed for the safe movement of sacks, ballast or similar by hooping. Our collection. Bulk Bag Lifting Crane.
From www.hoistandwinch.co.uk
Big Bag Lifting Frame Bulk Bag Lifting Crane the conquip bulk bag lifting frame, or bulk bag carrier, is a crane lifting frame designed for the safe and easy movement of ‘tonne bags’ and other bulk bags. the conquip bulk bag lifting frame, or bulk bag carrier, is designed for the safe and easy movement of ‘tonne bags’ and other bulk bags of materials or waste. Bulk Bag Lifting Crane.
From formpakinc.com
Crane Adapter, Bulk Bag Lifting Adapters Bulk Bag Lifting Crane Our collection includes a wide range of attachments, including. the crane mounted bulk bag lifter is specifically designed for the safe movement of sacks, ballast or similar by hooping. the 1097 big bag lifting frame is a universal piece of equipment for use with either a crane or forklift truck. the cbh crane slung bulk bag lifter. Bulk Bag Lifting Crane.
From invicta-attachments.co.uk
Crane Mounted Bulk Bag Carrier Invicta Forks & Attachments Bulk Bag Lifting Crane the crane mounted bulk bag lifter is specifically designed for the safe movement of sacks, ballast or similar by hooping. the conquip bulk bag lifting frame, or bulk bag carrier, is designed for the safe and easy movement of ‘tonne bags’ and other bulk bags of materials or waste around a site. Rated 4.8 / 5 based on. Bulk Bag Lifting Crane.
From www.stratalign.co.nz
stratalign_bulk_bag_jib_crane_2.jpg.jpg Bulk Bag Lifting Crane the cbh crane slung bulk bag lifter is a cross or cruciform shaped frame with a central swivel lifting eye and bag retaining hooks. the conquip bulk bag lifting frame, or bulk bag carrier, is a crane lifting frame designed for the safe and easy movement of ‘tonne bags’ and other bulk bags. the conquip bulk bag. Bulk Bag Lifting Crane.
From www.liftinggeardirect.co.uk
Crane Slung Bulk Bag Lifter CBH Lifting Gear Direct Bulk Bag Lifting Crane Our collection includes a wide range of attachments, including. the 1097 big bag lifting frame is a universal piece of equipment for use with either a crane or forklift truck. the cbh crane slung bulk bag lifter is a cross or cruciform shaped frame with a central swivel lifting eye and bag retaining hooks. bulk bag lifters. Bulk Bag Lifting Crane.
From www.mhaproducts.com.au
2.0 Tonne Bulk Bag Crane Jib MHA Products Bulk Bag Lifting Crane bulk bag lifters offer exceptional utility, serving as a pivotal attachment for both forklifts and crane operations. The ttb big bag handlers are a crane attachment designed to lift and transport large bags. the crane mounted bulk bag lifter is specifically designed for the safe movement of sacks, ballast or similar by hooping. Our collection includes a wide. Bulk Bag Lifting Crane.
From www.materialshandling.com.au
Lifting Frames Bulk Bag Handling Materials Handling Bulk Bag Lifting Crane The frame has one central lifting point for connecting to a crane or other lifting apparatus. Our collection includes a wide range of attachments, including. the conquip bulk bag lifting frame, or bulk bag carrier, is a crane lifting frame designed for the safe and easy movement of ‘tonne bags’ and other bulk bags. The ttb big bag handlers. Bulk Bag Lifting Crane.
From www.globalindustrial.com
Forklifts & Attachments Cranes & Hooks Vestil Forklift or Hoist Bulk Bag Lifting Crane the conquip bulk bag lifting frame, or bulk bag carrier, is a crane lifting frame designed for the safe and easy movement of ‘tonne bags’ and other bulk bags. Rated 4.8 / 5 based on 471 reviews. the cbh crane slung bulk bag lifter is a cross or cruciform shaped frame with a central swivel lifting eye and. Bulk Bag Lifting Crane.
From www.mhaproducts.com.au
2.0 Tonne Bulk Bag Fork Jib MHA PRODUCTS Bulk Bag Lifting Crane Rated 4.8 / 5 based on 471 reviews. the conquip bulk bag lifting frame, or bulk bag carrier, is designed for the safe and easy movement of ‘tonne bags’ and other bulk bags of materials or waste around a site. the cbh crane slung bulk bag lifter is a cross or cruciform shaped frame with a central swivel. Bulk Bag Lifting Crane.
From www.stepsandstillages.co.uk
Bulk bag Lifting Crane Jib BBF4 Steps and Stillages Bulk Bag Lifting Crane bulk bag lifters offer exceptional utility, serving as a pivotal attachment for both forklifts and crane operations. the conquip bulk bag lifting frame, or bulk bag carrier, is a crane lifting frame designed for the safe and easy movement of ‘tonne bags’ and other bulk bags. 2000kg camlok ttb big bag lifter. the cbh crane slung. Bulk Bag Lifting Crane.
From www.cranecages.com.au
Crane Lifting Bulk Bag Jib 2000Kg SWL Perth Crane Cages Crane Man Bulk Bag Lifting Crane Rated 4.8 / 5 based on 471 reviews. the crane mounted bulk bag lifter is specifically designed for the safe movement of sacks, ballast or similar by hooping. the conquip bulk bag lifting frame, or bulk bag carrier, is designed for the safe and easy movement of ‘tonne bags’ and other bulk bags of materials or waste around. Bulk Bag Lifting Crane.
From formpakinc.com
BagLift 100CALH Crane Adapter from FormPak, Inc. Bulk Bag Lifting Crane the crane mounted bulk bag lifter is specifically designed for the safe movement of sacks, ballast or similar by hooping. the conquip bulk bag lifting frame, or bulk bag carrier, is a crane lifting frame designed for the safe and easy movement of ‘tonne bags’ and other bulk bags. The frame has one central lifting point for connecting. Bulk Bag Lifting Crane.
From www.hasemermaterialshandling.com.au
Standard & Custom Electric Hoists & Crane Kits Bulk Bag Lifting Crane bulk bag lifters offer exceptional utility, serving as a pivotal attachment for both forklifts and crane operations. the conquip bulk bag lifting frame, or bulk bag carrier, is a crane lifting frame designed for the safe and easy movement of ‘tonne bags’ and other bulk bags. the conquip bulk bag lifting frame, or bulk bag carrier, is. Bulk Bag Lifting Crane.
From www.materialshandling.com.au
Forklift Jib / Lifting Frame Bulk Bag Materials Handling Bulk Bag Lifting Crane the 1097 big bag lifting frame is a universal piece of equipment for use with either a crane or forklift truck. the conquip bulk bag lifting frame, or bulk bag carrier, is a crane lifting frame designed for the safe and easy movement of ‘tonne bags’ and other bulk bags. The ttb big bag handlers are a crane. Bulk Bag Lifting Crane.
From hookup-solutions.com
Hook lift and carry crawler handler lifting tonne bulk bag, safer than Bulk Bag Lifting Crane bulk bag lifters offer exceptional utility, serving as a pivotal attachment for both forklifts and crane operations. the conquip bulk bag lifting frame, or bulk bag carrier, is designed for the safe and easy movement of ‘tonne bags’ and other bulk bags of materials or waste around a site. the cbh crane slung bulk bag lifter is. Bulk Bag Lifting Crane.
From dexters.co.nz
Bulk bag crane jib, 2000kg rated Dexters Bulk Bag Lifting Crane the conquip bulk bag lifting frame, or bulk bag carrier, is designed for the safe and easy movement of ‘tonne bags’ and other bulk bags of materials or waste around a site. the conquip bulk bag lifting frame, or bulk bag carrier, is a crane lifting frame designed for the safe and easy movement of ‘tonne bags’ and. Bulk Bag Lifting Crane.
From formpakinc.com
Crane Adapter, Bulk Bag Lifting Adapters Bulk Bag Lifting Crane Our collection includes a wide range of attachments, including. the 1097 big bag lifting frame is a universal piece of equipment for use with either a crane or forklift truck. The frame has one central lifting point for connecting to a crane or other lifting apparatus. the crane mounted bulk bag lifter is specifically designed for the safe. Bulk Bag Lifting Crane.
From www.stepsandstillages.co.uk
Bulk bag Lifting Crane Jib BBF4 Steps and Stillages Bulk Bag Lifting Crane Our collection includes a wide range of attachments, including. bulk bag lifters offer exceptional utility, serving as a pivotal attachment for both forklifts and crane operations. the conquip bulk bag lifting frame, or bulk bag carrier, is designed for the safe and easy movement of ‘tonne bags’ and other bulk bags of materials or waste around a site.. Bulk Bag Lifting Crane.
From www.hawklifting.co.uk
Bulk Bag Lifting Frame Beam Made by Hawk Lifting Bulk Bag Lifting Crane The ttb big bag handlers are a crane attachment designed to lift and transport large bags. the conquip bulk bag lifting frame, or bulk bag carrier, is a crane lifting frame designed for the safe and easy movement of ‘tonne bags’ and other bulk bags. 2000kg camlok ttb big bag lifter. the crane mounted bulk bag lifter. Bulk Bag Lifting Crane.
From abcpolymerindustries.com
Bulk Bags Lifting Guidelines ABC Polymer Industries Bulk Bag Lifting Crane The frame has one central lifting point for connecting to a crane or other lifting apparatus. the 1097 big bag lifting frame is a universal piece of equipment for use with either a crane or forklift truck. Rated 4.8 / 5 based on 471 reviews. the conquip bulk bag lifting frame, or bulk bag carrier, is a crane. Bulk Bag Lifting Crane.
From www.dreamstime.com
Overhead Crane Lift Jumbo Bags of Tapioca Using Spread Bar in Storage Bulk Bag Lifting Crane the conquip bulk bag lifting frame, or bulk bag carrier, is designed for the safe and easy movement of ‘tonne bags’ and other bulk bags of materials or waste around a site. 2000kg camlok ttb big bag lifter. the cbh crane slung bulk bag lifter is a cross or cruciform shaped frame with a central swivel lifting. Bulk Bag Lifting Crane.
From www.dreamstime.com
Cargo Crane Lifts Two Large Bags of Ammonium Nitrate. Big Yellow Gantry Bulk Bag Lifting Crane 2000kg camlok ttb big bag lifter. The ttb big bag handlers are a crane attachment designed to lift and transport large bags. the cbh crane slung bulk bag lifter is a cross or cruciform shaped frame with a central swivel lifting eye and bag retaining hooks. the conquip bulk bag lifting frame, or bulk bag carrier, is. Bulk Bag Lifting Crane.
From mgf.co.uk
Bulk Bag Lifter MGF Bulk Bag Lifting Crane the conquip bulk bag lifting frame, or bulk bag carrier, is a crane lifting frame designed for the safe and easy movement of ‘tonne bags’ and other bulk bags. the conquip bulk bag lifting frame, or bulk bag carrier, is designed for the safe and easy movement of ‘tonne bags’ and other bulk bags of materials or waste. Bulk Bag Lifting Crane.
From formpakinc.com
Crane Adapter, Bulk Bag Lifting Adapters Bulk Bag Lifting Crane The frame has one central lifting point for connecting to a crane or other lifting apparatus. Our collection includes a wide range of attachments, including. the 1097 big bag lifting frame is a universal piece of equipment for use with either a crane or forklift truck. the cbh crane slung bulk bag lifter is a cross or cruciform. Bulk Bag Lifting Crane.