Property Ownership New York . Other records that show ownership. — real estate news. Large amounts of property data collected by the. dof has launched the new property information portal (pip). (1) tenancy in common, (2) joint tenancy, (3) joint tenancy with. A deed is often referred to. — your ownership rights to real property include the right to use the surface of the land, called “surface rights.” you. you can search for, get copies of, or update property ownership records, such as deeds and mortgages. the automated city register information system (acris) allows you to search property records and view document. deeds & mortgage docs. — new york recognizes four types of ownership:
from exobztatx.blob.core.windows.net
— your ownership rights to real property include the right to use the surface of the land, called “surface rights.” you. you can search for, get copies of, or update property ownership records, such as deeds and mortgages. — new york recognizes four types of ownership: A deed is often referred to. Large amounts of property data collected by the. dof has launched the new property information portal (pip). Other records that show ownership. — real estate news. deeds & mortgage docs. the automated city register information system (acris) allows you to search property records and view document.
Nassau County New York Property Deed Search at Tena Williams blog
Property Ownership New York you can search for, get copies of, or update property ownership records, such as deeds and mortgages. the automated city register information system (acris) allows you to search property records and view document. you can search for, get copies of, or update property ownership records, such as deeds and mortgages. Large amounts of property data collected by the. dof has launched the new property information portal (pip). — your ownership rights to real property include the right to use the surface of the land, called “surface rights.” you. deeds & mortgage docs. A deed is often referred to. — new york recognizes four types of ownership: — real estate news. (1) tenancy in common, (2) joint tenancy, (3) joint tenancy with. Other records that show ownership.
From tamsubaubi.com
Can A Property Have Two Owners Exploring Joint Ownership Property Ownership New York — real estate news. (1) tenancy in common, (2) joint tenancy, (3) joint tenancy with. Large amounts of property data collected by the. — new york recognizes four types of ownership: the automated city register information system (acris) allows you to search property records and view document. Other records that show ownership. deeds & mortgage docs.. Property Ownership New York.
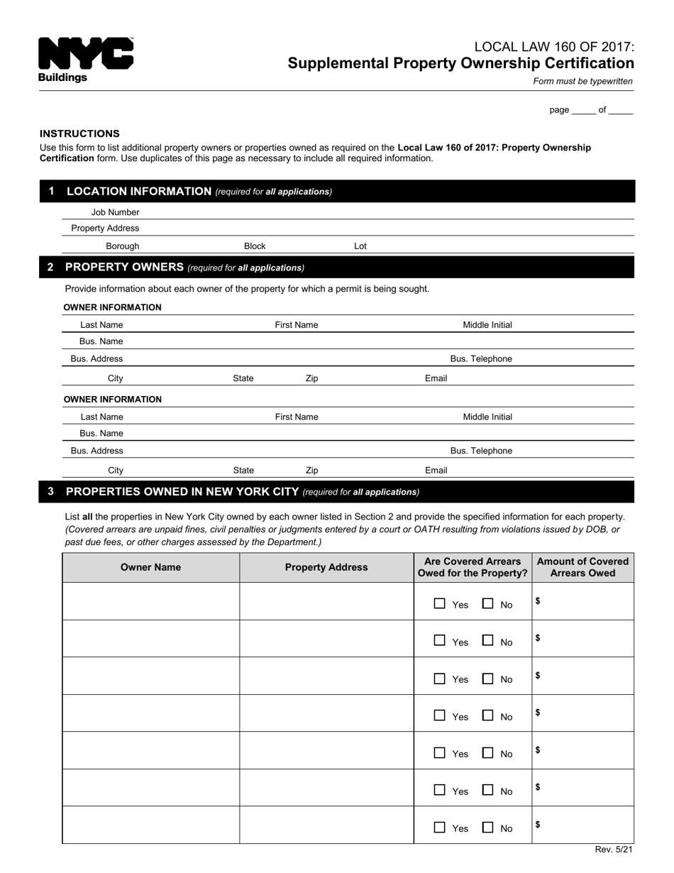
From www.templateroller.com
New York City Supplemental Property Ownership Certification Fill Out Property Ownership New York (1) tenancy in common, (2) joint tenancy, (3) joint tenancy with. you can search for, get copies of, or update property ownership records, such as deeds and mortgages. the automated city register information system (acris) allows you to search property records and view document. — new york recognizes four types of ownership: deeds & mortgage docs.. Property Ownership New York.
From esign.com
Free New York Property Management Agreement PDF Word Property Ownership New York Other records that show ownership. Large amounts of property data collected by the. dof has launched the new property information portal (pip). — your ownership rights to real property include the right to use the surface of the land, called “surface rights.” you. — real estate news. A deed is often referred to. — new york. Property Ownership New York.
From www.slideserve.com
PPT Ownership of Real Property PowerPoint Presentation, free download Property Ownership New York — your ownership rights to real property include the right to use the surface of the land, called “surface rights.” you. deeds & mortgage docs. the automated city register information system (acris) allows you to search property records and view document. — new york recognizes four types of ownership: A deed is often referred to. (1). Property Ownership New York.
From www.megadox.com
New York Warranty Deed for Joint Ownership Legal Forms and Business Property Ownership New York — real estate news. the automated city register information system (acris) allows you to search property records and view document. (1) tenancy in common, (2) joint tenancy, (3) joint tenancy with. A deed is often referred to. Other records that show ownership. you can search for, get copies of, or update property ownership records, such as deeds. Property Ownership New York.
From www.nytimes.com
Is Homeownership Slipping Even Further Out of Reach for New Yorkers Property Ownership New York A deed is often referred to. dof has launched the new property information portal (pip). — your ownership rights to real property include the right to use the surface of the land, called “surface rights.” you. — real estate news. Other records that show ownership. you can search for, get copies of, or update property ownership. Property Ownership New York.
From templates.legal
New York Deed Forms & Templates (Free) [Word, PDF, ODT] Property Ownership New York — real estate news. A deed is often referred to. Other records that show ownership. — new york recognizes four types of ownership: Large amounts of property data collected by the. deeds & mortgage docs. — your ownership rights to real property include the right to use the surface of the land, called “surface rights.” you.. Property Ownership New York.
From homebay.com
Common Types of Real Estate Ownership Do You Know What You Own? Home Bay Property Ownership New York (1) tenancy in common, (2) joint tenancy, (3) joint tenancy with. Other records that show ownership. deeds & mortgage docs. — new york recognizes four types of ownership: dof has launched the new property information portal (pip). — real estate news. — your ownership rights to real property include the right to use the surface. Property Ownership New York.
From exobztatx.blob.core.windows.net
Nassau County New York Property Deed Search at Tena Williams blog Property Ownership New York Other records that show ownership. Large amounts of property data collected by the. A deed is often referred to. (1) tenancy in common, (2) joint tenancy, (3) joint tenancy with. you can search for, get copies of, or update property ownership records, such as deeds and mortgages. — new york recognizes four types of ownership: — real. Property Ownership New York.
From www.gharjunction.com
Exploring Different Types of Property Ownership Property Ownership New York — new york recognizes four types of ownership: the automated city register information system (acris) allows you to search property records and view document. A deed is often referred to. (1) tenancy in common, (2) joint tenancy, (3) joint tenancy with. deeds & mortgage docs. — your ownership rights to real property include the right to. Property Ownership New York.
From www.templateroller.com
New York City Property Declaration Form (For Coop Apts) Fill Out Property Ownership New York — your ownership rights to real property include the right to use the surface of the land, called “surface rights.” you. you can search for, get copies of, or update property ownership records, such as deeds and mortgages. Other records that show ownership. A deed is often referred to. dof has launched the new property information portal. Property Ownership New York.
From www.hauseit.com
NYC Property Tax Bills How to Download and Read Your Bill Property Ownership New York the automated city register information system (acris) allows you to search property records and view document. Other records that show ownership. dof has launched the new property information portal (pip). (1) tenancy in common, (2) joint tenancy, (3) joint tenancy with. — your ownership rights to real property include the right to use the surface of the. Property Ownership New York.
From www.dukewarner.com
U.S. Home Ownership Rate Rises to Highest Point in Eight Years Duke Property Ownership New York the automated city register information system (acris) allows you to search property records and view document. A deed is often referred to. — your ownership rights to real property include the right to use the surface of the land, called “surface rights.” you. — real estate news. Large amounts of property data collected by the. dof. Property Ownership New York.
From mcsteen.com
Property Ownership Evidence of Your Ownership of Property Infographic Property Ownership New York dof has launched the new property information portal (pip). A deed is often referred to. (1) tenancy in common, (2) joint tenancy, (3) joint tenancy with. deeds & mortgage docs. — new york recognizes four types of ownership: the automated city register information system (acris) allows you to search property records and view document. you. Property Ownership New York.
From www.propertyshark.com
Property Ownership Data PropertyShark Property Ownership New York you can search for, get copies of, or update property ownership records, such as deeds and mortgages. A deed is often referred to. Other records that show ownership. — your ownership rights to real property include the right to use the surface of the land, called “surface rights.” you. — new york recognizes four types of ownership:. Property Ownership New York.
From thehappyhomeschool.com
Basic Principles of Property Ownership Property Ownership New York the automated city register information system (acris) allows you to search property records and view document. A deed is often referred to. dof has launched the new property information portal (pip). Other records that show ownership. — real estate news. (1) tenancy in common, (2) joint tenancy, (3) joint tenancy with. — your ownership rights to. Property Ownership New York.
From lexchart.com
Discover Real Estate Investment LLC Structures Property Ownership New York A deed is often referred to. — real estate news. Other records that show ownership. — new york recognizes four types of ownership: the automated city register information system (acris) allows you to search property records and view document. (1) tenancy in common, (2) joint tenancy, (3) joint tenancy with. deeds & mortgage docs. dof. Property Ownership New York.
From theneighborhoodfinanceguy.com
Home Ownership How Much Can I afford? (Part 1) » The Neighborhood Property Ownership New York Other records that show ownership. — your ownership rights to real property include the right to use the surface of the land, called “surface rights.” you. A deed is often referred to. (1) tenancy in common, (2) joint tenancy, (3) joint tenancy with. dof has launched the new property information portal (pip). — real estate news. . Property Ownership New York.
From www.templateroller.com
New York City Property Ownership Certification Fill Out, Sign Online Property Ownership New York deeds & mortgage docs. the automated city register information system (acris) allows you to search property records and view document. you can search for, get copies of, or update property ownership records, such as deeds and mortgages. — real estate news. A deed is often referred to. dof has launched the new property information portal. Property Ownership New York.
From www.revolutionrentalmanagement.com
Property Ownership Records Unlocking Insights and Opportunities Property Ownership New York — real estate news. — new york recognizes four types of ownership: (1) tenancy in common, (2) joint tenancy, (3) joint tenancy with. dof has launched the new property information portal (pip). Large amounts of property data collected by the. Other records that show ownership. the automated city register information system (acris) allows you to search. Property Ownership New York.
From www.templateroller.com
New York City Property Declaration Form (For Coop Apts) Fill Out Property Ownership New York — your ownership rights to real property include the right to use the surface of the land, called “surface rights.” you. — new york recognizes four types of ownership: dof has launched the new property information portal (pip). Large amounts of property data collected by the. A deed is often referred to. — real estate news.. Property Ownership New York.
From www.pinterest.com
NYC Property Value Map 20082012 Property Ownership New York dof has launched the new property information portal (pip). the automated city register information system (acris) allows you to search property records and view document. you can search for, get copies of, or update property ownership records, such as deeds and mortgages. — real estate news. Other records that show ownership. — new york recognizes. Property Ownership New York.
From www.formsbirds.com
Affidavit of Ownership New York Free Download Property Ownership New York Large amounts of property data collected by the. — real estate news. the automated city register information system (acris) allows you to search property records and view document. (1) tenancy in common, (2) joint tenancy, (3) joint tenancy with. Other records that show ownership. you can search for, get copies of, or update property ownership records, such. Property Ownership New York.
From www.templateroller.com
New York City Real Property Declaration Form (Including Condo Ownership Property Ownership New York A deed is often referred to. deeds & mortgage docs. Large amounts of property data collected by the. dof has launched the new property information portal (pip). — your ownership rights to real property include the right to use the surface of the land, called “surface rights.” you. — real estate news. the automated city. Property Ownership New York.
From www.pincusco.com
Find the True Owner of a NYC Building Property Ownership New York — real estate news. you can search for, get copies of, or update property ownership records, such as deeds and mortgages. — your ownership rights to real property include the right to use the surface of the land, called “surface rights.” you. Other records that show ownership. deeds & mortgage docs. A deed is often referred. Property Ownership New York.
From www.templateroller.com
New York City Real Property Declaration Form (Including Condo Ownership Property Ownership New York deeds & mortgage docs. — real estate news. (1) tenancy in common, (2) joint tenancy, (3) joint tenancy with. — your ownership rights to real property include the right to use the surface of the land, called “surface rights.” you. — new york recognizes four types of ownership: you can search for, get copies of,. Property Ownership New York.
From www.templateroller.com
New York City Private Homeowner Affidavit of Ownership (French) Fill Property Ownership New York Other records that show ownership. (1) tenancy in common, (2) joint tenancy, (3) joint tenancy with. — new york recognizes four types of ownership: the automated city register information system (acris) allows you to search property records and view document. you can search for, get copies of, or update property ownership records, such as deeds and mortgages.. Property Ownership New York.
From markets.financialcontent.com
New York Residential Real Estate Attorney Peter Zinkovetsky Unveils Property Ownership New York — new york recognizes four types of ownership: (1) tenancy in common, (2) joint tenancy, (3) joint tenancy with. Large amounts of property data collected by the. deeds & mortgage docs. you can search for, get copies of, or update property ownership records, such as deeds and mortgages. — your ownership rights to real property include. Property Ownership New York.
From harlempm.com
The Key to Coop Ownership Understanding Proprietary Lease Property Ownership New York you can search for, get copies of, or update property ownership records, such as deeds and mortgages. dof has launched the new property information portal (pip). — your ownership rights to real property include the right to use the surface of the land, called “surface rights.” you. A deed is often referred to. — new york. Property Ownership New York.
From www.osc.state.ny.us
Homeownership Rates in New York Office of the New York State Comptroller Property Ownership New York the automated city register information system (acris) allows you to search property records and view document. — your ownership rights to real property include the right to use the surface of the land, called “surface rights.” you. deeds & mortgage docs. A deed is often referred to. you can search for, get copies of, or update. Property Ownership New York.
From www.templateroller.com
New York City Affidavit of Ownership Fill Out, Sign Online and Property Ownership New York Large amounts of property data collected by the. — new york recognizes four types of ownership: the automated city register information system (acris) allows you to search property records and view document. deeds & mortgage docs. dof has launched the new property information portal (pip). you can search for, get copies of, or update property. Property Ownership New York.
From eforms.com
Free New York Property Management Agreement Commercial & Residential Property Ownership New York (1) tenancy in common, (2) joint tenancy, (3) joint tenancy with. A deed is often referred to. Large amounts of property data collected by the. — new york recognizes four types of ownership: Other records that show ownership. deeds & mortgage docs. you can search for, get copies of, or update property ownership records, such as deeds. Property Ownership New York.
From www.megadox.com
Land CoOwnership Agreement Legal Forms and Business Templates Property Ownership New York — your ownership rights to real property include the right to use the surface of the land, called “surface rights.” you. A deed is often referred to. the automated city register information system (acris) allows you to search property records and view document. deeds & mortgage docs. — new york recognizes four types of ownership: Large. Property Ownership New York.
From www.luxuryestate.com
売却 高級住宅ニューヨーク, New York 128704446 Property Ownership New York — your ownership rights to real property include the right to use the surface of the land, called “surface rights.” you. deeds & mortgage docs. the automated city register information system (acris) allows you to search property records and view document. you can search for, get copies of, or update property ownership records, such as deeds. Property Ownership New York.
From lork.nyc
How to Change a Deed in New York City Property Ownership New York — real estate news. deeds & mortgage docs. Other records that show ownership. A deed is often referred to. Large amounts of property data collected by the. the automated city register information system (acris) allows you to search property records and view document. dof has launched the new property information portal (pip). — new york. Property Ownership New York.