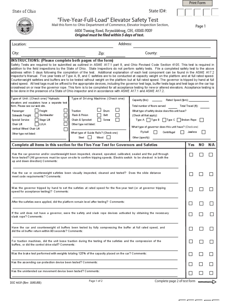
Cat 5 Elevator Inspection . The elevator section performs all new acceptance and alteration inspections, followed by two inspections per year on most elevators and. What is a cat 5 inspection? What is a category 5 inspection? The division of industrial compliance’s (“division”) elevator section is responsible for ensuring that all inspections required to be. For example, if a category 5 report was filed in december 2019, it would be. Performed with rated load and speed every 5 years from the date of installation; The periodic category 1 tests and modified periodic category 5 tests must be carried out at intervals not exceeding 5 years. Depending on the type of device, some also require a category 5 full load inspection test every five years.
from www.gunnconsultants.com
What is a cat 5 inspection? The division of industrial compliance’s (“division”) elevator section is responsible for ensuring that all inspections required to be. The periodic category 1 tests and modified periodic category 5 tests must be carried out at intervals not exceeding 5 years. Performed with rated load and speed every 5 years from the date of installation; What is a category 5 inspection? The elevator section performs all new acceptance and alteration inspections, followed by two inspections per year on most elevators and. For example, if a category 5 report was filed in december 2019, it would be. Depending on the type of device, some also require a category 5 full load inspection test every five years.
Traditional vs Alternative Elevator Cat 5 Testing GUNN Consultants
Cat 5 Elevator Inspection For example, if a category 5 report was filed in december 2019, it would be. What is a cat 5 inspection? Performed with rated load and speed every 5 years from the date of installation; What is a category 5 inspection? Depending on the type of device, some also require a category 5 full load inspection test every five years. The division of industrial compliance’s (“division”) elevator section is responsible for ensuring that all inspections required to be. The elevator section performs all new acceptance and alteration inspections, followed by two inspections per year on most elevators and. The periodic category 1 tests and modified periodic category 5 tests must be carried out at intervals not exceeding 5 years. For example, if a category 5 report was filed in december 2019, it would be.
From sitecompli.com
New Elevator Inspection Requirement? Find Out More Cat 5 Elevator Inspection What is a category 5 inspection? Performed with rated load and speed every 5 years from the date of installation; Depending on the type of device, some also require a category 5 full load inspection test every five years. What is a cat 5 inspection? The periodic category 1 tests and modified periodic category 5 tests must be carried out. Cat 5 Elevator Inspection.
From iriseelevators.com
CAT5 Testing iRISE Elevators Cat 5 Elevator Inspection What is a cat 5 inspection? Depending on the type of device, some also require a category 5 full load inspection test every five years. The periodic category 1 tests and modified periodic category 5 tests must be carried out at intervals not exceeding 5 years. What is a category 5 inspection? The elevator section performs all new acceptance and. Cat 5 Elevator Inspection.
From www.reddit.com
TKE Northern 3200 Time CAT 5 testing today r/Elevators Cat 5 Elevator Inspection The division of industrial compliance’s (“division”) elevator section is responsible for ensuring that all inspections required to be. The periodic category 1 tests and modified periodic category 5 tests must be carried out at intervals not exceeding 5 years. Depending on the type of device, some also require a category 5 full load inspection test every five years. Performed with. Cat 5 Elevator Inspection.
From www.bocagroup.com
2022 Updated Requirements for Category Testing and Periodic Inspection Cat 5 Elevator Inspection Performed with rated load and speed every 5 years from the date of installation; The elevator section performs all new acceptance and alteration inspections, followed by two inspections per year on most elevators and. The periodic category 1 tests and modified periodic category 5 tests must be carried out at intervals not exceeding 5 years. For example, if a category. Cat 5 Elevator Inspection.
From www.gunnconsultants.com
Traditional vs Alternative Elevator Cat 5 Testing GUNN Consultants Cat 5 Elevator Inspection For example, if a category 5 report was filed in december 2019, it would be. What is a cat 5 inspection? The division of industrial compliance’s (“division”) elevator section is responsible for ensuring that all inspections required to be. The periodic category 1 tests and modified periodic category 5 tests must be carried out at intervals not exceeding 5 years.. Cat 5 Elevator Inspection.
From www.reddit.com
Beware of the CAT 5 testing on your rail positioning. (Read comment Cat 5 Elevator Inspection Performed with rated load and speed every 5 years from the date of installation; Depending on the type of device, some also require a category 5 full load inspection test every five years. The periodic category 1 tests and modified periodic category 5 tests must be carried out at intervals not exceeding 5 years. What is a cat 5 inspection?. Cat 5 Elevator Inspection.
From www.gunnconsultants.com
Traditional vs Alternative Elevator Cat 5 Testing GUNN Consultants Cat 5 Elevator Inspection The elevator section performs all new acceptance and alteration inspections, followed by two inspections per year on most elevators and. The periodic category 1 tests and modified periodic category 5 tests must be carried out at intervals not exceeding 5 years. The division of industrial compliance’s (“division”) elevator section is responsible for ensuring that all inspections required to be. What. Cat 5 Elevator Inspection.
From kencorelevator.com
Elevator FullLoad Test Requirements and Procedures Elevator Cat 5 Elevator Inspection What is a category 5 inspection? Performed with rated load and speed every 5 years from the date of installation; The periodic category 1 tests and modified periodic category 5 tests must be carried out at intervals not exceeding 5 years. For example, if a category 5 report was filed in december 2019, it would be. The elevator section performs. Cat 5 Elevator Inspection.
From support.sitecompli.com
DOB Elevator CAT 5 Inspections & InCheck Support Center Cat 5 Elevator Inspection The elevator section performs all new acceptance and alteration inspections, followed by two inspections per year on most elevators and. Depending on the type of device, some also require a category 5 full load inspection test every five years. What is a cat 5 inspection? For example, if a category 5 report was filed in december 2019, it would be.. Cat 5 Elevator Inspection.
From element.ca
Elevator Testing Annuals & CAT 5 — Element Elevators Inc. Cat 5 Elevator Inspection For example, if a category 5 report was filed in december 2019, it would be. The elevator section performs all new acceptance and alteration inspections, followed by two inspections per year on most elevators and. Performed with rated load and speed every 5 years from the date of installation; Depending on the type of device, some also require a category. Cat 5 Elevator Inspection.
From www.reddit.com
CAT 5 testing on KONE KCM831 r/Elevators Cat 5 Elevator Inspection Performed with rated load and speed every 5 years from the date of installation; The division of industrial compliance’s (“division”) elevator section is responsible for ensuring that all inspections required to be. The elevator section performs all new acceptance and alteration inspections, followed by two inspections per year on most elevators and. For example, if a category 5 report was. Cat 5 Elevator Inspection.
From vdocuments.mx
ELV3 / ELV3A Elevator Inspection / Test Report … ELV3 / ELV3A Cat 5 Elevator Inspection Performed with rated load and speed every 5 years from the date of installation; For example, if a category 5 report was filed in december 2019, it would be. What is a category 5 inspection? The elevator section performs all new acceptance and alteration inspections, followed by two inspections per year on most elevators and. The periodic category 1 tests. Cat 5 Elevator Inspection.
From www.elevatorbraille.com
Test Tag for Hydraulic Elevator, Category 5 Cat 5 Elevator Inspection The periodic category 1 tests and modified periodic category 5 tests must be carried out at intervals not exceeding 5 years. What is a cat 5 inspection? Performed with rated load and speed every 5 years from the date of installation; The division of industrial compliance’s (“division”) elevator section is responsible for ensuring that all inspections required to be. What. Cat 5 Elevator Inspection.
From www.vrogue.co
Elevator Maintenance Checklist Sharp Elevators And Es vrogue.co Cat 5 Elevator Inspection What is a category 5 inspection? For example, if a category 5 report was filed in december 2019, it would be. What is a cat 5 inspection? The elevator section performs all new acceptance and alteration inspections, followed by two inspections per year on most elevators and. Depending on the type of device, some also require a category 5 full. Cat 5 Elevator Inspection.
From www.scribd.com
Elevator Five Year Safety Test Form Elevator Industries Cat 5 Elevator Inspection What is a cat 5 inspection? Depending on the type of device, some also require a category 5 full load inspection test every five years. The elevator section performs all new acceptance and alteration inspections, followed by two inspections per year on most elevators and. For example, if a category 5 report was filed in december 2019, it would be.. Cat 5 Elevator Inspection.
From www.techpluto.com
Cat5 vs Cat6 Cat 5 Elevator Inspection Performed with rated load and speed every 5 years from the date of installation; The division of industrial compliance’s (“division”) elevator section is responsible for ensuring that all inspections required to be. The periodic category 1 tests and modified periodic category 5 tests must be carried out at intervals not exceeding 5 years. What is a cat 5 inspection? What. Cat 5 Elevator Inspection.
From mashable.com
YouTuber builds a cat elevator for his 20yearold furry friend who Cat 5 Elevator Inspection The periodic category 1 tests and modified periodic category 5 tests must be carried out at intervals not exceeding 5 years. The division of industrial compliance’s (“division”) elevator section is responsible for ensuring that all inspections required to be. The elevator section performs all new acceptance and alteration inspections, followed by two inspections per year on most elevators and. Performed. Cat 5 Elevator Inspection.
From pace-elevator.com
Category 5 Elevator Testing! Cat 5 Elevator Inspection The division of industrial compliance’s (“division”) elevator section is responsible for ensuring that all inspections required to be. What is a cat 5 inspection? What is a category 5 inspection? The periodic category 1 tests and modified periodic category 5 tests must be carried out at intervals not exceeding 5 years. Depending on the type of device, some also require. Cat 5 Elevator Inspection.
From www.bocagroup.com
2022 Updated Requirements for Category Testing and Periodic Inspection Cat 5 Elevator Inspection For example, if a category 5 report was filed in december 2019, it would be. Performed with rated load and speed every 5 years from the date of installation; The periodic category 1 tests and modified periodic category 5 tests must be carried out at intervals not exceeding 5 years. What is a cat 5 inspection? The division of industrial. Cat 5 Elevator Inspection.
From www.compliancesigns.com
Silver Elevator Test Inspection Tag Sign ELVE39503_BF Cat 5 Elevator Inspection The periodic category 1 tests and modified periodic category 5 tests must be carried out at intervals not exceeding 5 years. Performed with rated load and speed every 5 years from the date of installation; What is a cat 5 inspection? The elevator section performs all new acceptance and alteration inspections, followed by two inspections per year on most elevators. Cat 5 Elevator Inspection.
From www.elevatorbraille.com
Test Tag for Traction Elevator, Category 5 Cat 5 Elevator Inspection The elevator section performs all new acceptance and alteration inspections, followed by two inspections per year on most elevators and. The periodic category 1 tests and modified periodic category 5 tests must be carried out at intervals not exceeding 5 years. The division of industrial compliance’s (“division”) elevator section is responsible for ensuring that all inspections required to be. Depending. Cat 5 Elevator Inspection.
From www.pdffiller.com
2012 Form NY ELV3 Elevator Inspection/Test Report Fill Online Cat 5 Elevator Inspection What is a category 5 inspection? Depending on the type of device, some also require a category 5 full load inspection test every five years. The elevator section performs all new acceptance and alteration inspections, followed by two inspections per year on most elevators and. What is a cat 5 inspection? Performed with rated load and speed every 5 years. Cat 5 Elevator Inspection.
From formspal.com
Elevator Inspection Checklist PDF Form FormsPal Cat 5 Elevator Inspection For example, if a category 5 report was filed in december 2019, it would be. What is a category 5 inspection? Performed with rated load and speed every 5 years from the date of installation; What is a cat 5 inspection? The periodic category 1 tests and modified periodic category 5 tests must be carried out at intervals not exceeding. Cat 5 Elevator Inspection.
From www.elevatorbraille.com
Test Tag for Hydraulic Elevator, Category 5 Cat 5 Elevator Inspection What is a cat 5 inspection? The periodic category 1 tests and modified periodic category 5 tests must be carried out at intervals not exceeding 5 years. Performed with rated load and speed every 5 years from the date of installation; What is a category 5 inspection? For example, if a category 5 report was filed in december 2019, it. Cat 5 Elevator Inspection.
From www.youtube.com
Monthly Elevator Inspection YouTube Cat 5 Elevator Inspection The periodic category 1 tests and modified periodic category 5 tests must be carried out at intervals not exceeding 5 years. Depending on the type of device, some also require a category 5 full load inspection test every five years. The division of industrial compliance’s (“division”) elevator section is responsible for ensuring that all inspections required to be. Performed with. Cat 5 Elevator Inspection.
From www.scribd.com
OTIS LIFT PM Checklist Elevator Mechanical Engineering Cat 5 Elevator Inspection Performed with rated load and speed every 5 years from the date of installation; The elevator section performs all new acceptance and alteration inspections, followed by two inspections per year on most elevators and. Depending on the type of device, some also require a category 5 full load inspection test every five years. For example, if a category 5 report. Cat 5 Elevator Inspection.
From www.formsbank.com
Roped & Hydraulic Elevator Annual Safety Test Report printable pdf download Cat 5 Elevator Inspection For example, if a category 5 report was filed in december 2019, it would be. Depending on the type of device, some also require a category 5 full load inspection test every five years. The elevator section performs all new acceptance and alteration inspections, followed by two inspections per year on most elevators and. What is a cat 5 inspection?. Cat 5 Elevator Inspection.
From unitedelevatorcorp.com
ADA/Lift United Elevator Corp Cat 5 Elevator Inspection The division of industrial compliance’s (“division”) elevator section is responsible for ensuring that all inspections required to be. For example, if a category 5 report was filed in december 2019, it would be. The periodic category 1 tests and modified periodic category 5 tests must be carried out at intervals not exceeding 5 years. Performed with rated load and speed. Cat 5 Elevator Inspection.
From thompsonelevator.com
Thompson Elevator Inspection Service, Inc. Chicago Elevator Cat 5 Elevator Inspection The elevator section performs all new acceptance and alteration inspections, followed by two inspections per year on most elevators and. The division of industrial compliance’s (“division”) elevator section is responsible for ensuring that all inspections required to be. Depending on the type of device, some also require a category 5 full load inspection test every five years. What is a. Cat 5 Elevator Inspection.
From www.gunnconsultants.com
Traditional vs Alternative Elevator Cat 5 Testing GUNN Consultants Cat 5 Elevator Inspection What is a category 5 inspection? Performed with rated load and speed every 5 years from the date of installation; The elevator section performs all new acceptance and alteration inspections, followed by two inspections per year on most elevators and. What is a cat 5 inspection? For example, if a category 5 report was filed in december 2019, it would. Cat 5 Elevator Inspection.
From www.pace-elevator.com
CAT Testing Cat 5 Elevator Inspection For example, if a category 5 report was filed in december 2019, it would be. Performed with rated load and speed every 5 years from the date of installation; What is a cat 5 inspection? The division of industrial compliance’s (“division”) elevator section is responsible for ensuring that all inspections required to be. What is a category 5 inspection? The. Cat 5 Elevator Inspection.
From www.elevatorbraille.com
Test Tag for Traction Elevator, Category 5 Cat 5 Elevator Inspection What is a category 5 inspection? The elevator section performs all new acceptance and alteration inspections, followed by two inspections per year on most elevators and. The periodic category 1 tests and modified periodic category 5 tests must be carried out at intervals not exceeding 5 years. The division of industrial compliance’s (“division”) elevator section is responsible for ensuring that. Cat 5 Elevator Inspection.
From huadongcable.en.made-in-china.com
12 Line Flat UTP Cat5e Elevator Lift Traveling Video Tsyv Cable China Cat 5 Elevator Inspection For example, if a category 5 report was filed in december 2019, it would be. Performed with rated load and speed every 5 years from the date of installation; What is a category 5 inspection? The elevator section performs all new acceptance and alteration inspections, followed by two inspections per year on most elevators and. Depending on the type of. Cat 5 Elevator Inspection.
From www.dpmaster.com.sg
DPMFAQSeries Topic 7 What is Category 3 or Category 5 Inspection Cat 5 Elevator Inspection For example, if a category 5 report was filed in december 2019, it would be. The periodic category 1 tests and modified periodic category 5 tests must be carried out at intervals not exceeding 5 years. What is a cat 5 inspection? Performed with rated load and speed every 5 years from the date of installation; The elevator section performs. Cat 5 Elevator Inspection.
From element.ca
Elevator Testing Annuals & CAT 5 — Element Elevators Inc. Cat 5 Elevator Inspection The division of industrial compliance’s (“division”) elevator section is responsible for ensuring that all inspections required to be. For example, if a category 5 report was filed in december 2019, it would be. Depending on the type of device, some also require a category 5 full load inspection test every five years. The periodic category 1 tests and modified periodic. Cat 5 Elevator Inspection.