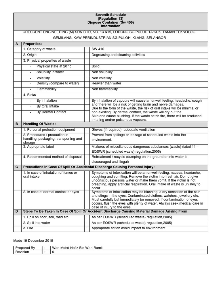
Scheduled Waste 7Th Schedule . Scheduled wastes means any waste falling within the categories of waste listed in the first schedule; The document provides information on the handling and disposal of waste from degreasing and cleaning activities categorized as sw. To view your pickup schedule or service eta, please select from the following options to verify your account. These guidelines specify the requirements for site selection and design criteria for storage of scheduled wastes, packaging, labelling and. Regulation 12(7) the waste generator, contractor or occupier of the prescribed premises shall each keep a signed copy of the sixth schedule which. Scheduled wastes means any waste falling within the categories of waste listed in the first schedule; Eimas has developed competency training programmes for the industries in the management of scheduled wastes, to fulfil the requirement of.
from innawaste.innatech.com.my
Scheduled wastes means any waste falling within the categories of waste listed in the first schedule; To view your pickup schedule or service eta, please select from the following options to verify your account. Eimas has developed competency training programmes for the industries in the management of scheduled wastes, to fulfil the requirement of. The document provides information on the handling and disposal of waste from degreasing and cleaning activities categorized as sw. Scheduled wastes means any waste falling within the categories of waste listed in the first schedule; Regulation 12(7) the waste generator, contractor or occupier of the prescribed premises shall each keep a signed copy of the sixth schedule which. These guidelines specify the requirements for site selection and design criteria for storage of scheduled wastes, packaging, labelling and.
Scheduled Waste Labelling, Code Guide and Common Mistake INNATECH
Scheduled Waste 7Th Schedule Scheduled wastes means any waste falling within the categories of waste listed in the first schedule; Scheduled wastes means any waste falling within the categories of waste listed in the first schedule; These guidelines specify the requirements for site selection and design criteria for storage of scheduled wastes, packaging, labelling and. To view your pickup schedule or service eta, please select from the following options to verify your account. Eimas has developed competency training programmes for the industries in the management of scheduled wastes, to fulfil the requirement of. The document provides information on the handling and disposal of waste from degreasing and cleaning activities categorized as sw. Regulation 12(7) the waste generator, contractor or occupier of the prescribed premises shall each keep a signed copy of the sixth schedule which. Scheduled wastes means any waste falling within the categories of waste listed in the first schedule;
From www.youtube.com
How to manage DISPOSAL of Scheduled Wastes YouTube Scheduled Waste 7Th Schedule The document provides information on the handling and disposal of waste from degreasing and cleaning activities categorized as sw. Scheduled wastes means any waste falling within the categories of waste listed in the first schedule; Eimas has developed competency training programmes for the industries in the management of scheduled wastes, to fulfil the requirement of. These guidelines specify the requirements. Scheduled Waste 7Th Schedule.
From vanessamurray8.blogspot.com
waste card seventh schedule Vanessa Murray Scheduled Waste 7Th Schedule These guidelines specify the requirements for site selection and design criteria for storage of scheduled wastes, packaging, labelling and. Regulation 12(7) the waste generator, contractor or occupier of the prescribed premises shall each keep a signed copy of the sixth schedule which. Scheduled wastes means any waste falling within the categories of waste listed in the first schedule; Eimas has. Scheduled Waste 7Th Schedule.
From innawaste.innatech.com.my
Scheduled Waste Labelling, Code Guide and Common Mistake INNATECH Scheduled Waste 7Th Schedule The document provides information on the handling and disposal of waste from degreasing and cleaning activities categorized as sw. Scheduled wastes means any waste falling within the categories of waste listed in the first schedule; Scheduled wastes means any waste falling within the categories of waste listed in the first schedule; Eimas has developed competency training programmes for the industries. Scheduled Waste 7Th Schedule.
From vanessamurray8.blogspot.com
waste card seventh schedule Vanessa Murray Scheduled Waste 7Th Schedule Regulation 12(7) the waste generator, contractor or occupier of the prescribed premises shall each keep a signed copy of the sixth schedule which. The document provides information on the handling and disposal of waste from degreasing and cleaning activities categorized as sw. To view your pickup schedule or service eta, please select from the following options to verify your account.. Scheduled Waste 7Th Schedule.
From www.slideshare.net
Go green Scheduled Waste 7Th Schedule These guidelines specify the requirements for site selection and design criteria for storage of scheduled wastes, packaging, labelling and. Eimas has developed competency training programmes for the industries in the management of scheduled wastes, to fulfil the requirement of. The document provides information on the handling and disposal of waste from degreasing and cleaning activities categorized as sw. Scheduled wastes. Scheduled Waste 7Th Schedule.
From waltertarovance.blogspot.com
waste card seventh schedule WaltertaroVance Scheduled Waste 7Th Schedule These guidelines specify the requirements for site selection and design criteria for storage of scheduled wastes, packaging, labelling and. Scheduled wastes means any waste falling within the categories of waste listed in the first schedule; Regulation 12(7) the waste generator, contractor or occupier of the prescribed premises shall each keep a signed copy of the sixth schedule which. Scheduled wastes. Scheduled Waste 7Th Schedule.
From www.lazada.com.my
Schedule Waste Store Signage Sticker on Board Lazada Scheduled Waste 7Th Schedule Scheduled wastes means any waste falling within the categories of waste listed in the first schedule; These guidelines specify the requirements for site selection and design criteria for storage of scheduled wastes, packaging, labelling and. The document provides information on the handling and disposal of waste from degreasing and cleaning activities categorized as sw. Eimas has developed competency training programmes. Scheduled Waste 7Th Schedule.
From www.facebook.com
Scheduled Waste Management Flow Chart cepswamcourse competancycourse Scheduled Waste 7Th Schedule Scheduled wastes means any waste falling within the categories of waste listed in the first schedule; Eimas has developed competency training programmes for the industries in the management of scheduled wastes, to fulfil the requirement of. Scheduled wastes means any waste falling within the categories of waste listed in the first schedule; The document provides information on the handling and. Scheduled Waste 7Th Schedule.
From suunataliehoward.blogspot.com
example of scheduled waste Natalie Howard Scheduled Waste 7Th Schedule Eimas has developed competency training programmes for the industries in the management of scheduled wastes, to fulfil the requirement of. Scheduled wastes means any waste falling within the categories of waste listed in the first schedule; Regulation 12(7) the waste generator, contractor or occupier of the prescribed premises shall each keep a signed copy of the sixth schedule which. These. Scheduled Waste 7Th Schedule.
From innawaste.innatech.com.my
Scheduled Waste Labelling, Code Guide and Common Mistake INNATECH Scheduled Waste 7Th Schedule To view your pickup schedule or service eta, please select from the following options to verify your account. Regulation 12(7) the waste generator, contractor or occupier of the prescribed premises shall each keep a signed copy of the sixth schedule which. The document provides information on the handling and disposal of waste from degreasing and cleaning activities categorized as sw.. Scheduled Waste 7Th Schedule.
From awwam.com
Scheduled Wastes Containers (THE ENVIRONMENTAL SPECIALIST WITH MS ISO Scheduled Waste 7Th Schedule Scheduled wastes means any waste falling within the categories of waste listed in the first schedule; Eimas has developed competency training programmes for the industries in the management of scheduled wastes, to fulfil the requirement of. These guidelines specify the requirements for site selection and design criteria for storage of scheduled wastes, packaging, labelling and. To view your pickup schedule. Scheduled Waste 7Th Schedule.
From corncobscompostable.blogspot.com
Waste Management Englewood Schedule Rubbish Hire Provider Removal Must Scheduled Waste 7Th Schedule Scheduled wastes means any waste falling within the categories of waste listed in the first schedule; To view your pickup schedule or service eta, please select from the following options to verify your account. These guidelines specify the requirements for site selection and design criteria for storage of scheduled wastes, packaging, labelling and. Regulation 12(7) the waste generator, contractor or. Scheduled Waste 7Th Schedule.
From joowmadeleinerampling.blogspot.com
waste card seventh schedule Madeleine Rampling Scheduled Waste 7Th Schedule Scheduled wastes means any waste falling within the categories of waste listed in the first schedule; Regulation 12(7) the waste generator, contractor or occupier of the prescribed premises shall each keep a signed copy of the sixth schedule which. Eimas has developed competency training programmes for the industries in the management of scheduled wastes, to fulfil the requirement of. The. Scheduled Waste 7Th Schedule.
From awwam.com
Scheduled Waste Labels (THE ENVIRONMENTAL SPECIALIST WITH MS ISO 9001 Scheduled Waste 7Th Schedule The document provides information on the handling and disposal of waste from degreasing and cleaning activities categorized as sw. To view your pickup schedule or service eta, please select from the following options to verify your account. Eimas has developed competency training programmes for the industries in the management of scheduled wastes, to fulfil the requirement of. Regulation 12(7) the. Scheduled Waste 7Th Schedule.
From innawaste.innatech.com.my
Scheduled Waste Labelling, Code Guide and Common Mistake INNATECH Scheduled Waste 7Th Schedule Scheduled wastes means any waste falling within the categories of waste listed in the first schedule; The document provides information on the handling and disposal of waste from degreasing and cleaning activities categorized as sw. To view your pickup schedule or service eta, please select from the following options to verify your account. These guidelines specify the requirements for site. Scheduled Waste 7Th Schedule.
From denial09.blogspot.com
Waste Card Seventh Schedule / 7 Wastes Card Lean Management This will Scheduled Waste 7Th Schedule The document provides information on the handling and disposal of waste from degreasing and cleaning activities categorized as sw. Regulation 12(7) the waste generator, contractor or occupier of the prescribed premises shall each keep a signed copy of the sixth schedule which. Scheduled wastes means any waste falling within the categories of waste listed in the first schedule; These guidelines. Scheduled Waste 7Th Schedule.
From oshthejourney.blogspot.com
OSH The Journey Series of Schedule Waste Understanding. S7 A Summary Scheduled Waste 7Th Schedule Scheduled wastes means any waste falling within the categories of waste listed in the first schedule; Regulation 12(7) the waste generator, contractor or occupier of the prescribed premises shall each keep a signed copy of the sixth schedule which. To view your pickup schedule or service eta, please select from the following options to verify your account. Eimas has developed. Scheduled Waste 7Th Schedule.
From www.scribd.com
Checklist Scheduled Wastes Storage PDF Scheduled Waste 7Th Schedule These guidelines specify the requirements for site selection and design criteria for storage of scheduled wastes, packaging, labelling and. Regulation 12(7) the waste generator, contractor or occupier of the prescribed premises shall each keep a signed copy of the sixth schedule which. Scheduled wastes means any waste falling within the categories of waste listed in the first schedule; Scheduled wastes. Scheduled Waste 7Th Schedule.
From joowmadeleinerampling.blogspot.com
waste card seventh schedule Madeleine Rampling Scheduled Waste 7Th Schedule To view your pickup schedule or service eta, please select from the following options to verify your account. Eimas has developed competency training programmes for the industries in the management of scheduled wastes, to fulfil the requirement of. These guidelines specify the requirements for site selection and design criteria for storage of scheduled wastes, packaging, labelling and. Scheduled wastes means. Scheduled Waste 7Th Schedule.
From www.cenviro.com
Scheduled Waste Management Cenviro Scheduled Waste 7Th Schedule These guidelines specify the requirements for site selection and design criteria for storage of scheduled wastes, packaging, labelling and. Scheduled wastes means any waste falling within the categories of waste listed in the first schedule; Regulation 12(7) the waste generator, contractor or occupier of the prescribed premises shall each keep a signed copy of the sixth schedule which. To view. Scheduled Waste 7Th Schedule.
From www.researchgate.net
Special management of scheduled waste under Regulation 7 [4] Download Scheduled Waste 7Th Schedule Scheduled wastes means any waste falling within the categories of waste listed in the first schedule; Regulation 12(7) the waste generator, contractor or occupier of the prescribed premises shall each keep a signed copy of the sixth schedule which. These guidelines specify the requirements for site selection and design criteria for storage of scheduled wastes, packaging, labelling and. Scheduled wastes. Scheduled Waste 7Th Schedule.
From pdfcoffee.com
SEVENTH SCHEDULE Waste Card SW 305 Scheduled Waste 7Th Schedule The document provides information on the handling and disposal of waste from degreasing and cleaning activities categorized as sw. To view your pickup schedule or service eta, please select from the following options to verify your account. Eimas has developed competency training programmes for the industries in the management of scheduled wastes, to fulfil the requirement of. Scheduled wastes means. Scheduled Waste 7Th Schedule.
From id.scribd.com
Seventh Schedule Waste Card PDF Scheduled Waste 7Th Schedule To view your pickup schedule or service eta, please select from the following options to verify your account. These guidelines specify the requirements for site selection and design criteria for storage of scheduled wastes, packaging, labelling and. The document provides information on the handling and disposal of waste from degreasing and cleaning activities categorized as sw. Scheduled wastes means any. Scheduled Waste 7Th Schedule.
From joowmadeleinerampling.blogspot.com
waste card seventh schedule Madeleine Rampling Scheduled Waste 7Th Schedule Scheduled wastes means any waste falling within the categories of waste listed in the first schedule; Eimas has developed competency training programmes for the industries in the management of scheduled wastes, to fulfil the requirement of. Scheduled wastes means any waste falling within the categories of waste listed in the first schedule; The document provides information on the handling and. Scheduled Waste 7Th Schedule.
From fathurpics.web.app
Seventh Schedule Waste Card For Sw410 Scheduled Waste 7Th Schedule Scheduled wastes means any waste falling within the categories of waste listed in the first schedule; To view your pickup schedule or service eta, please select from the following options to verify your account. Scheduled wastes means any waste falling within the categories of waste listed in the first schedule; The document provides information on the handling and disposal of. Scheduled Waste 7Th Schedule.
From vanessamurray8.blogspot.com
waste card seventh schedule Vanessa Murray Scheduled Waste 7Th Schedule Eimas has developed competency training programmes for the industries in the management of scheduled wastes, to fulfil the requirement of. These guidelines specify the requirements for site selection and design criteria for storage of scheduled wastes, packaging, labelling and. The document provides information on the handling and disposal of waste from degreasing and cleaning activities categorized as sw. Scheduled wastes. Scheduled Waste 7Th Schedule.
From supriyadiinfo.blogspot.com
Scheduled Waste Management Procedure Malaysia Supriyadi info Scheduled Waste 7Th Schedule Regulation 12(7) the waste generator, contractor or occupier of the prescribed premises shall each keep a signed copy of the sixth schedule which. These guidelines specify the requirements for site selection and design criteria for storage of scheduled wastes, packaging, labelling and. Scheduled wastes means any waste falling within the categories of waste listed in the first schedule; The document. Scheduled Waste 7Th Schedule.
From www.youtube.com
How to make The Waste Card (7th Schedule) for Scheduled Wastes YouTube Scheduled Waste 7Th Schedule Regulation 12(7) the waste generator, contractor or occupier of the prescribed premises shall each keep a signed copy of the sixth schedule which. These guidelines specify the requirements for site selection and design criteria for storage of scheduled wastes, packaging, labelling and. The document provides information on the handling and disposal of waste from degreasing and cleaning activities categorized as. Scheduled Waste 7Th Schedule.
From www.cenviro.com
Scheduled Waste Management Cenviro Scheduled Waste 7Th Schedule The document provides information on the handling and disposal of waste from degreasing and cleaning activities categorized as sw. These guidelines specify the requirements for site selection and design criteria for storage of scheduled wastes, packaging, labelling and. Regulation 12(7) the waste generator, contractor or occupier of the prescribed premises shall each keep a signed copy of the sixth schedule. Scheduled Waste 7Th Schedule.
From www.cenviro.com
Scheduled Waste Management Cenviro Scheduled Waste 7Th Schedule Regulation 12(7) the waste generator, contractor or occupier of the prescribed premises shall each keep a signed copy of the sixth schedule which. Scheduled wastes means any waste falling within the categories of waste listed in the first schedule; These guidelines specify the requirements for site selection and design criteria for storage of scheduled wastes, packaging, labelling and. The document. Scheduled Waste 7Th Schedule.
From arifabdull.web.app
Waste Card Seventh Schedule Scheduled Waste 7Th Schedule Eimas has developed competency training programmes for the industries in the management of scheduled wastes, to fulfil the requirement of. Scheduled wastes means any waste falling within the categories of waste listed in the first schedule; Scheduled wastes means any waste falling within the categories of waste listed in the first schedule; To view your pickup schedule or service eta,. Scheduled Waste 7Th Schedule.
From fathurpics.web.app
Seventh Schedule Waste Card For Sw410 Scheduled Waste 7Th Schedule The document provides information on the handling and disposal of waste from degreasing and cleaning activities categorized as sw. Regulation 12(7) the waste generator, contractor or occupier of the prescribed premises shall each keep a signed copy of the sixth schedule which. To view your pickup schedule or service eta, please select from the following options to verify your account.. Scheduled Waste 7Th Schedule.
From ehs.safetyware.com.my
Safetyware EHS Consultancy Scheduled Waste Training Scheduled Waste 7Th Schedule Eimas has developed competency training programmes for the industries in the management of scheduled wastes, to fulfil the requirement of. The document provides information on the handling and disposal of waste from degreasing and cleaning activities categorized as sw. Scheduled wastes means any waste falling within the categories of waste listed in the first schedule; These guidelines specify the requirements. Scheduled Waste 7Th Schedule.
From www.hiaphuat.com
Scheduled Waste Management Hiap Huat Holdings BerhadHiap Huat Scheduled Waste 7Th Schedule Scheduled wastes means any waste falling within the categories of waste listed in the first schedule; Regulation 12(7) the waste generator, contractor or occupier of the prescribed premises shall each keep a signed copy of the sixth schedule which. Eimas has developed competency training programmes for the industries in the management of scheduled wastes, to fulfil the requirement of. These. Scheduled Waste 7Th Schedule.
From innawaste.innatech.com.my
Scheduled Waste Labelling, Code Guide and Common Mistake INNATECH Scheduled Waste 7Th Schedule Regulation 12(7) the waste generator, contractor or occupier of the prescribed premises shall each keep a signed copy of the sixth schedule which. These guidelines specify the requirements for site selection and design criteria for storage of scheduled wastes, packaging, labelling and. The document provides information on the handling and disposal of waste from degreasing and cleaning activities categorized as. Scheduled Waste 7Th Schedule.