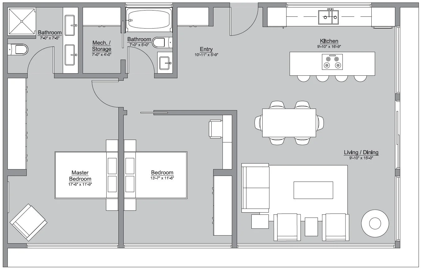
Honomobo Ho3 Price . The ho3 is a two bedroom prefab & modular home. See detailed specs, pricing, and reviews on the honomobo ho3. They are made from recycled shipping containers and can be. The ho3 offers a large master bedroom with ensuite, a second bedroom and a main. This efficient, spacious, and beautiful design has everything. Feet | starting at $267,249 usd. 2 bed 2 bath | 960 sq. The ho4 is the company’s largest, and perhaps most efficient unit with four. The ho3 knits three containers together to create a bedroom, bathroom, living room and a large kitchen with an island. The m3 is the largest of the models provided by honomobo. The average price of a honomobo container home is $95,368. Feet | starting at $324,025 cad.
from www.honomobo.com
Feet | starting at $267,249 usd. This efficient, spacious, and beautiful design has everything. Feet | starting at $324,025 cad. See detailed specs, pricing, and reviews on the honomobo ho3. The average price of a honomobo container home is $95,368. 2 bed 2 bath | 960 sq. The ho3 offers a large master bedroom with ensuite, a second bedroom and a main. The ho4 is the company’s largest, and perhaps most efficient unit with four. The ho3 is a two bedroom prefab & modular home. They are made from recycled shipping containers and can be.
HO3 — HONOMOBO
Honomobo Ho3 Price The ho4 is the company’s largest, and perhaps most efficient unit with four. The m3 is the largest of the models provided by honomobo. Feet | starting at $324,025 cad. The ho3 knits three containers together to create a bedroom, bathroom, living room and a large kitchen with an island. This efficient, spacious, and beautiful design has everything. The average price of a honomobo container home is $95,368. See detailed specs, pricing, and reviews on the honomobo ho3. The ho4 is the company’s largest, and perhaps most efficient unit with four. The ho3 is a two bedroom prefab & modular home. They are made from recycled shipping containers and can be. The ho3 offers a large master bedroom with ensuite, a second bedroom and a main. Feet | starting at $267,249 usd. 2 bed 2 bath | 960 sq.
From www.honomobo.com
HO3 — HONOMOBO Honomobo Ho3 Price This efficient, spacious, and beautiful design has everything. Feet | starting at $267,249 usd. See detailed specs, pricing, and reviews on the honomobo ho3. The ho3 knits three containers together to create a bedroom, bathroom, living room and a large kitchen with an island. The average price of a honomobo container home is $95,368. The ho3 offers a large master. Honomobo Ho3 Price.
From www.youtube.com
Millcreek HO3 Honomobo Laneway Container Home in Edmonton YouTube Honomobo Ho3 Price The ho3 is a two bedroom prefab & modular home. The ho4 is the company’s largest, and perhaps most efficient unit with four. They are made from recycled shipping containers and can be. The ho3 offers a large master bedroom with ensuite, a second bedroom and a main. The m3 is the largest of the models provided by honomobo. The. Honomobo Ho3 Price.
From www.honomobo.com
HO3 US — HONOMOBO Honomobo Ho3 Price The m3 is the largest of the models provided by honomobo. They are made from recycled shipping containers and can be. This efficient, spacious, and beautiful design has everything. The average price of a honomobo container home is $95,368. Feet | starting at $267,249 usd. See detailed specs, pricing, and reviews on the honomobo ho3. The ho3 offers a large. Honomobo Ho3 Price.
From www.honomobo.com
HO3 US — HONOMOBO Honomobo Ho3 Price The ho4 is the company’s largest, and perhaps most efficient unit with four. The ho3 knits three containers together to create a bedroom, bathroom, living room and a large kitchen with an island. The average price of a honomobo container home is $95,368. 2 bed 2 bath | 960 sq. The ho3 is a two bedroom prefab & modular home.. Honomobo Ho3 Price.
From www.honomobo.com
HO4 — HONOMOBO Honomobo Ho3 Price They are made from recycled shipping containers and can be. The ho4 is the company’s largest, and perhaps most efficient unit with four. 2 bed 2 bath | 960 sq. The ho3 knits three containers together to create a bedroom, bathroom, living room and a large kitchen with an island. Feet | starting at $324,025 cad. The average price of. Honomobo Ho3 Price.
From www.honomobo.com
HO3 US — HONOMOBO Honomobo Ho3 Price The ho4 is the company’s largest, and perhaps most efficient unit with four. See detailed specs, pricing, and reviews on the honomobo ho3. Feet | starting at $324,025 cad. The average price of a honomobo container home is $95,368. The ho3 knits three containers together to create a bedroom, bathroom, living room and a large kitchen with an island. The. Honomobo Ho3 Price.
From www.honomobo.com
HO3 — HONOMOBO Honomobo Ho3 Price The m3 is the largest of the models provided by honomobo. They are made from recycled shipping containers and can be. The ho3 knits three containers together to create a bedroom, bathroom, living room and a large kitchen with an island. The ho3 offers a large master bedroom with ensuite, a second bedroom and a main. Feet | starting at. Honomobo Ho3 Price.
From www.honomobo.com
HO3 Shipping Container Home — HONOMOBO Honomobo Ho3 Price Feet | starting at $267,249 usd. The average price of a honomobo container home is $95,368. Feet | starting at $324,025 cad. This efficient, spacious, and beautiful design has everything. They are made from recycled shipping containers and can be. The ho4 is the company’s largest, and perhaps most efficient unit with four. See detailed specs, pricing, and reviews on. Honomobo Ho3 Price.
From www.honomobo.com
HO3 US — HONOMOBO Honomobo Ho3 Price 2 bed 2 bath | 960 sq. Feet | starting at $324,025 cad. The ho4 is the company’s largest, and perhaps most efficient unit with four. The ho3 offers a large master bedroom with ensuite, a second bedroom and a main. Feet | starting at $267,249 usd. The average price of a honomobo container home is $95,368. The ho3 knits. Honomobo Ho3 Price.
From www.honomobo.com
HO4 US — HONOMOBO Honomobo Ho3 Price The average price of a honomobo container home is $95,368. The ho4 is the company’s largest, and perhaps most efficient unit with four. Feet | starting at $267,249 usd. 2 bed 2 bath | 960 sq. They are made from recycled shipping containers and can be. The ho3 knits three containers together to create a bedroom, bathroom, living room and. Honomobo Ho3 Price.
From www.honomobo.com
Granby Vasquez Stacked HO3/HO3 — HONOMOBO Honomobo Ho3 Price Feet | starting at $267,249 usd. The ho3 offers a large master bedroom with ensuite, a second bedroom and a main. The ho3 knits three containers together to create a bedroom, bathroom, living room and a large kitchen with an island. They are made from recycled shipping containers and can be. The average price of a honomobo container home is. Honomobo Ho3 Price.
From www.honomobo.com
HO3 — HONOMOBO Honomobo Ho3 Price This efficient, spacious, and beautiful design has everything. The ho3 knits three containers together to create a bedroom, bathroom, living room and a large kitchen with an island. The ho3 is a two bedroom prefab & modular home. The ho4 is the company’s largest, and perhaps most efficient unit with four. See detailed specs, pricing, and reviews on the honomobo. Honomobo Ho3 Price.
From www.honomobo.com
HO2 US — HONOMOBO Honomobo Ho3 Price The ho3 offers a large master bedroom with ensuite, a second bedroom and a main. The ho3 knits three containers together to create a bedroom, bathroom, living room and a large kitchen with an island. This efficient, spacious, and beautiful design has everything. 2 bed 2 bath | 960 sq. The ho4 is the company’s largest, and perhaps most efficient. Honomobo Ho3 Price.
From www.honomobo.com
HO3 US — HONOMOBO Honomobo Ho3 Price They are made from recycled shipping containers and can be. The m3 is the largest of the models provided by honomobo. This efficient, spacious, and beautiful design has everything. 2 bed 2 bath | 960 sq. The ho4 is the company’s largest, and perhaps most efficient unit with four. The ho3 is a two bedroom prefab & modular home. Feet. Honomobo Ho3 Price.
From www.honomobo.com
HO3 — HONOMOBO Honomobo Ho3 Price The ho4 is the company’s largest, and perhaps most efficient unit with four. 2 bed 2 bath | 960 sq. The ho3 is a two bedroom prefab & modular home. The ho3 knits three containers together to create a bedroom, bathroom, living room and a large kitchen with an island. The ho3 offers a large master bedroom with ensuite, a. Honomobo Ho3 Price.
From www.honomobo.com
HO3 Shipping Container Home Honomobo Ho3 Price 2 bed 2 bath | 960 sq. They are made from recycled shipping containers and can be. The ho3 knits three containers together to create a bedroom, bathroom, living room and a large kitchen with an island. The ho3 is a two bedroom prefab & modular home. The m3 is the largest of the models provided by honomobo. Feet |. Honomobo Ho3 Price.
From www.honomobo.com
HO3 Shipping Container Home — HONOMOBO Honomobo Ho3 Price The ho3 offers a large master bedroom with ensuite, a second bedroom and a main. Feet | starting at $267,249 usd. This efficient, spacious, and beautiful design has everything. The ho4 is the company’s largest, and perhaps most efficient unit with four. The ho3 knits three containers together to create a bedroom, bathroom, living room and a large kitchen with. Honomobo Ho3 Price.
From www.honomobo.com
HO3 — HONOMOBO Honomobo Ho3 Price The ho3 offers a large master bedroom with ensuite, a second bedroom and a main. The ho3 is a two bedroom prefab & modular home. The ho4 is the company’s largest, and perhaps most efficient unit with four. They are made from recycled shipping containers and can be. See detailed specs, pricing, and reviews on the honomobo ho3. The average. Honomobo Ho3 Price.
From inhabitat.com
You can order HonoMobo's prefab shipping container homes online Honomobo Ho3 Price Feet | starting at $267,249 usd. The ho4 is the company’s largest, and perhaps most efficient unit with four. The m3 is the largest of the models provided by honomobo. The average price of a honomobo container home is $95,368. The ho3 is a two bedroom prefab & modular home. 2 bed 2 bath | 960 sq. The ho3 offers. Honomobo Ho3 Price.
From www.pinterest.com
Honomobo HO3 Container house design, Container house, Modern family house Honomobo Ho3 Price The ho3 is a two bedroom prefab & modular home. See detailed specs, pricing, and reviews on the honomobo ho3. The ho3 offers a large master bedroom with ensuite, a second bedroom and a main. The ho4 is the company’s largest, and perhaps most efficient unit with four. They are made from recycled shipping containers and can be. The average. Honomobo Ho3 Price.
From honomobo.com
Honomobo Modern Shipping Container Homes Honomobo Ho3 Price The ho3 knits three containers together to create a bedroom, bathroom, living room and a large kitchen with an island. The ho4 is the company’s largest, and perhaps most efficient unit with four. They are made from recycled shipping containers and can be. Feet | starting at $267,249 usd. The ho3 is a two bedroom prefab & modular home. The. Honomobo Ho3 Price.
From www.honomobo.com
HO3 CA — HONOMOBO Honomobo Ho3 Price See detailed specs, pricing, and reviews on the honomobo ho3. The ho3 offers a large master bedroom with ensuite, a second bedroom and a main. The ho3 is a two bedroom prefab & modular home. Feet | starting at $267,249 usd. They are made from recycled shipping containers and can be. This efficient, spacious, and beautiful design has everything. The. Honomobo Ho3 Price.
From www.honomobo.com
HO3 US — HONOMOBO Honomobo Ho3 Price See detailed specs, pricing, and reviews on the honomobo ho3. 2 bed 2 bath | 960 sq. This efficient, spacious, and beautiful design has everything. The ho3 offers a large master bedroom with ensuite, a second bedroom and a main. The ho4 is the company’s largest, and perhaps most efficient unit with four. Feet | starting at $267,249 usd. The. Honomobo Ho3 Price.
From www.honomobo.com
Honomobo US Modern Modular & Prefab Homes Modern Prefab Homes Honomobo Ho3 Price The ho3 is a two bedroom prefab & modular home. The m3 is the largest of the models provided by honomobo. The average price of a honomobo container home is $95,368. Feet | starting at $324,025 cad. See detailed specs, pricing, and reviews on the honomobo ho3. The ho3 knits three containers together to create a bedroom, bathroom, living room. Honomobo Ho3 Price.
From www.pinterest.cl
Pin on 960SqFt H3 Honomobo Honomobo Ho3 Price The ho3 knits three containers together to create a bedroom, bathroom, living room and a large kitchen with an island. The ho3 is a two bedroom prefab & modular home. The ho4 is the company’s largest, and perhaps most efficient unit with four. The average price of a honomobo container home is $95,368. The ho3 offers a large master bedroom. Honomobo Ho3 Price.
From www.honomobo.com
Granby Vasquez Stacked HO3/HO3 — HONOMOBO Honomobo Ho3 Price 2 bed 2 bath | 960 sq. The m3 is the largest of the models provided by honomobo. Feet | starting at $267,249 usd. The average price of a honomobo container home is $95,368. Feet | starting at $324,025 cad. The ho4 is the company’s largest, and perhaps most efficient unit with four. They are made from recycled shipping containers. Honomobo Ho3 Price.
From www.honomobo.com
HO3 Shipping Container Home — HONOMOBO Honomobo Ho3 Price The m3 is the largest of the models provided by honomobo. See detailed specs, pricing, and reviews on the honomobo ho3. Feet | starting at $324,025 cad. The average price of a honomobo container home is $95,368. This efficient, spacious, and beautiful design has everything. The ho3 offers a large master bedroom with ensuite, a second bedroom and a main.. Honomobo Ho3 Price.
From www.honomobo.com
HO3 Shipping Container Home — HONOMOBO Honomobo Ho3 Price Feet | starting at $267,249 usd. The ho4 is the company’s largest, and perhaps most efficient unit with four. 2 bed 2 bath | 960 sq. The ho3 is a two bedroom prefab & modular home. This efficient, spacious, and beautiful design has everything. The average price of a honomobo container home is $95,368. The ho3 offers a large master. Honomobo Ho3 Price.
From www.honomobo.com
HO3 Shipping Container Home — HONOMOBO Honomobo Ho3 Price Feet | starting at $324,025 cad. The ho4 is the company’s largest, and perhaps most efficient unit with four. The ho3 is a two bedroom prefab & modular home. They are made from recycled shipping containers and can be. 2 bed 2 bath | 960 sq. The m3 is the largest of the models provided by honomobo. See detailed specs,. Honomobo Ho3 Price.
From www.honomobo.com
HO3 — HONOMOBO Honomobo Ho3 Price The ho4 is the company’s largest, and perhaps most efficient unit with four. They are made from recycled shipping containers and can be. The average price of a honomobo container home is $95,368. The ho3 knits three containers together to create a bedroom, bathroom, living room and a large kitchen with an island. Feet | starting at $267,249 usd. The. Honomobo Ho3 Price.
From www.honomobo.com
HO3 Shipping Container Home — HONOMOBO Honomobo Ho3 Price 2 bed 2 bath | 960 sq. The average price of a honomobo container home is $95,368. The ho3 knits three containers together to create a bedroom, bathroom, living room and a large kitchen with an island. This efficient, spacious, and beautiful design has everything. Feet | starting at $267,249 usd. The ho3 is a two bedroom prefab & modular. Honomobo Ho3 Price.
From www.honomobo.com
HO3 CA — HONOMOBO Honomobo Ho3 Price This efficient, spacious, and beautiful design has everything. They are made from recycled shipping containers and can be. Feet | starting at $324,025 cad. The m3 is the largest of the models provided by honomobo. The ho4 is the company’s largest, and perhaps most efficient unit with four. The ho3 knits three containers together to create a bedroom, bathroom, living. Honomobo Ho3 Price.
From www.honomobo.com
HO4 US — HONOMOBO Honomobo Ho3 Price Feet | starting at $267,249 usd. This efficient, spacious, and beautiful design has everything. 2 bed 2 bath | 960 sq. The ho3 is a two bedroom prefab & modular home. The average price of a honomobo container home is $95,368. The ho4 is the company’s largest, and perhaps most efficient unit with four. The ho3 knits three containers together. Honomobo Ho3 Price.
From www.honomobo.com
HO3 US — HONOMOBO Honomobo Ho3 Price The ho3 offers a large master bedroom with ensuite, a second bedroom and a main. The ho3 knits three containers together to create a bedroom, bathroom, living room and a large kitchen with an island. Feet | starting at $267,249 usd. They are made from recycled shipping containers and can be. Feet | starting at $324,025 cad. 2 bed 2. Honomobo Ho3 Price.
From www.honomobo.com
HO3 Shipping Container Home — HONOMOBO Honomobo Ho3 Price The ho3 offers a large master bedroom with ensuite, a second bedroom and a main. The ho3 is a two bedroom prefab & modular home. The ho4 is the company’s largest, and perhaps most efficient unit with four. The ho3 knits three containers together to create a bedroom, bathroom, living room and a large kitchen with an island. The m3. Honomobo Ho3 Price.