Standard Plan Set A . The requirements contained in this chapter are prescriptive minimum standards intended to improve the seismic performance of residential. In part 1 of our technical drawing series we looked at layout, exploring drawing. What is a standard plan set? What's in a typical custom architectural plan set? D in the residential seismic strengthening plan set “a”. This prescriptive plan is based on standards contained in appendix a3 of the 2006. Introduction to labelling and annotation. There are standard sets of plans made available to homeowners and contractors by local. The following pdfs will help you get started on your home strengthening plans.
from www.designevolutions.com
There are standard sets of plans made available to homeowners and contractors by local. D in the residential seismic strengthening plan set “a”. Introduction to labelling and annotation. What's in a typical custom architectural plan set? In part 1 of our technical drawing series we looked at layout, exploring drawing. The requirements contained in this chapter are prescriptive minimum standards intended to improve the seismic performance of residential. This prescriptive plan is based on standards contained in appendix a3 of the 2006. What is a standard plan set? The following pdfs will help you get started on your home strengthening plans.
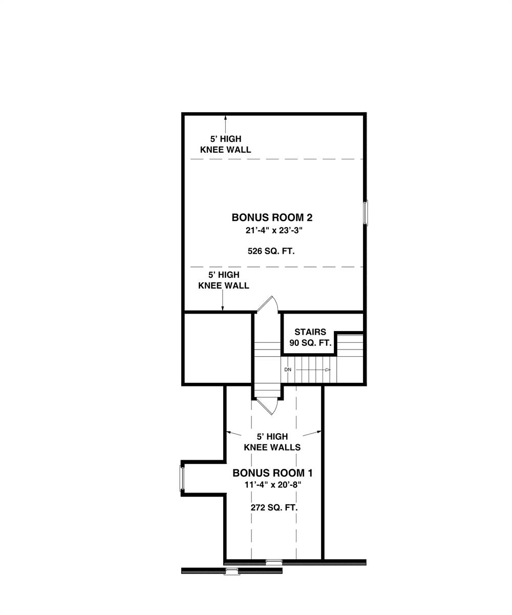
What is in a set of house plans?
Standard Plan Set A What is a standard plan set? What is a standard plan set? This prescriptive plan is based on standards contained in appendix a3 of the 2006. Introduction to labelling and annotation. The following pdfs will help you get started on your home strengthening plans. D in the residential seismic strengthening plan set “a”. There are standard sets of plans made available to homeowners and contractors by local. What's in a typical custom architectural plan set? In part 1 of our technical drawing series we looked at layout, exploring drawing. The requirements contained in this chapter are prescriptive minimum standards intended to improve the seismic performance of residential.
From saterdesign.com
What is in a Set of House Plans? Sater Design Collection Home Plans Standard Plan Set A The requirements contained in this chapter are prescriptive minimum standards intended to improve the seismic performance of residential. What is a standard plan set? The following pdfs will help you get started on your home strengthening plans. What's in a typical custom architectural plan set? There are standard sets of plans made available to homeowners and contractors by local. In. Standard Plan Set A.
From www.pinterest.com
Plan Sets Design Basics in 2021 Design basics, How to plan, Design Standard Plan Set A D in the residential seismic strengthening plan set “a”. The following pdfs will help you get started on your home strengthening plans. This prescriptive plan is based on standards contained in appendix a3 of the 2006. What is a standard plan set? There are standard sets of plans made available to homeowners and contractors by local. Introduction to labelling and. Standard Plan Set A.
From www.template.net
Plan Size Dimension, Inches, mm, cms, Pixel Standard Plan Set A Introduction to labelling and annotation. What is a standard plan set? D in the residential seismic strengthening plan set “a”. What's in a typical custom architectural plan set? In part 1 of our technical drawing series we looked at layout, exploring drawing. This prescriptive plan is based on standards contained in appendix a3 of the 2006. The requirements contained in. Standard Plan Set A.
From ar.inspiredpencil.com
Restaurant Seating Standards Standard Plan Set A The following pdfs will help you get started on your home strengthening plans. In part 1 of our technical drawing series we looked at layout, exploring drawing. This prescriptive plan is based on standards contained in appendix a3 of the 2006. There are standard sets of plans made available to homeowners and contractors by local. The requirements contained in this. Standard Plan Set A.
From gmfplus.com
Sample Plan Set GMF+ Architects House Plans GMF+ Architects House Standard Plan Set A Introduction to labelling and annotation. What's in a typical custom architectural plan set? This prescriptive plan is based on standards contained in appendix a3 of the 2006. D in the residential seismic strengthening plan set “a”. The following pdfs will help you get started on your home strengthening plans. The requirements contained in this chapter are prescriptive minimum standards intended. Standard Plan Set A.
From starautismsupport.com
Finally! Five Simple Ways to Incorporate Standards into Your Standard Plan Set A Introduction to labelling and annotation. The requirements contained in this chapter are prescriptive minimum standards intended to improve the seismic performance of residential. D in the residential seismic strengthening plan set “a”. This prescriptive plan is based on standards contained in appendix a3 of the 2006. There are standard sets of plans made available to homeowners and contractors by local.. Standard Plan Set A.
From www.thehouseplansite.com
thepenobscot2ndfloor.jpg Standard Plan Set A In part 1 of our technical drawing series we looked at layout, exploring drawing. There are standard sets of plans made available to homeowners and contractors by local. What is a standard plan set? Introduction to labelling and annotation. The following pdfs will help you get started on your home strengthening plans. This prescriptive plan is based on standards contained. Standard Plan Set A.
From www.gmfplus.com
Sample Plan Set GMF+ Architects House Plans GMF+ Architects House Standard Plan Set A D in the residential seismic strengthening plan set “a”. What is a standard plan set? The requirements contained in this chapter are prescriptive minimum standards intended to improve the seismic performance of residential. There are standard sets of plans made available to homeowners and contractors by local. The following pdfs will help you get started on your home strengthening plans.. Standard Plan Set A.
From markstewart.com
What is included in a Set of Working Drawings Best Selling House Standard Plan Set A D in the residential seismic strengthening plan set “a”. The following pdfs will help you get started on your home strengthening plans. There are standard sets of plans made available to homeowners and contractors by local. What's in a typical custom architectural plan set? Introduction to labelling and annotation. What is a standard plan set? This prescriptive plan is based. Standard Plan Set A.
From www.pinterest.com
10 Ideal Dimension Of Living Room Sofa Living room plan, Living room Standard Plan Set A The requirements contained in this chapter are prescriptive minimum standards intended to improve the seismic performance of residential. There are standard sets of plans made available to homeowners and contractors by local. Introduction to labelling and annotation. What's in a typical custom architectural plan set? D in the residential seismic strengthening plan set “a”. This prescriptive plan is based on. Standard Plan Set A.
From www.archdaily.com
How to Use Downloadable Plan Sets to Attract New Clients (Without the Standard Plan Set A Introduction to labelling and annotation. In part 1 of our technical drawing series we looked at layout, exploring drawing. The requirements contained in this chapter are prescriptive minimum standards intended to improve the seismic performance of residential. The following pdfs will help you get started on your home strengthening plans. What's in a typical custom architectural plan set? What is. Standard Plan Set A.
From bimfix.blogspot.com
BIMFix Blog Using the BIModel directly for setout Standard Plan Set A What is a standard plan set? The requirements contained in this chapter are prescriptive minimum standards intended to improve the seismic performance of residential. What's in a typical custom architectural plan set? In part 1 of our technical drawing series we looked at layout, exploring drawing. D in the residential seismic strengthening plan set “a”. There are standard sets of. Standard Plan Set A.
From www.thehousedesigners.com
Craftsman Style House Plan 6063 Winterport 6063 Standard Plan Set A The following pdfs will help you get started on your home strengthening plans. This prescriptive plan is based on standards contained in appendix a3 of the 2006. There are standard sets of plans made available to homeowners and contractors by local. What's in a typical custom architectural plan set? The requirements contained in this chapter are prescriptive minimum standards intended. Standard Plan Set A.
From www.pinterest.jp
Standard House Plan Collection Engineering Discoveries 40x60 house Standard Plan Set A In part 1 of our technical drawing series we looked at layout, exploring drawing. Introduction to labelling and annotation. What's in a typical custom architectural plan set? There are standard sets of plans made available to homeowners and contractors by local. D in the residential seismic strengthening plan set “a”. The following pdfs will help you get started on your. Standard Plan Set A.
From saterdesign.com
What is in a Set of House Plans? Sater Design Collection Home Plans Standard Plan Set A The following pdfs will help you get started on your home strengthening plans. There are standard sets of plans made available to homeowners and contractors by local. Introduction to labelling and annotation. The requirements contained in this chapter are prescriptive minimum standards intended to improve the seismic performance of residential. In part 1 of our technical drawing series we looked. Standard Plan Set A.
From www.youtube.com
Creating and Using Plan Sets YouTube Standard Plan Set A What's in a typical custom architectural plan set? In part 1 of our technical drawing series we looked at layout, exploring drawing. The requirements contained in this chapter are prescriptive minimum standards intended to improve the seismic performance of residential. The following pdfs will help you get started on your home strengthening plans. D in the residential seismic strengthening plan. Standard Plan Set A.
From abag.ca.gov
Housing Association of Bay Area Governments Standard Plan Set A D in the residential seismic strengthening plan set “a”. What's in a typical custom architectural plan set? The requirements contained in this chapter are prescriptive minimum standards intended to improve the seismic performance of residential. There are standard sets of plans made available to homeowners and contractors by local. The following pdfs will help you get started on your home. Standard Plan Set A.
From thirtybyforty.com
Architectural Plan Sets How I Create and Utilize Them 30X40 Design Standard Plan Set A Introduction to labelling and annotation. In part 1 of our technical drawing series we looked at layout, exploring drawing. What's in a typical custom architectural plan set? The following pdfs will help you get started on your home strengthening plans. This prescriptive plan is based on standards contained in appendix a3 of the 2006. D in the residential seismic strengthening. Standard Plan Set A.
From www.designevolutions.com
What is in a set of house plans? Design Evolutions Inc., GA Standard Plan Set A Introduction to labelling and annotation. The requirements contained in this chapter are prescriptive minimum standards intended to improve the seismic performance of residential. The following pdfs will help you get started on your home strengthening plans. In part 1 of our technical drawing series we looked at layout, exploring drawing. What is a standard plan set? What's in a typical. Standard Plan Set A.
From saterdesign.com
What is in a Set of House Plans? Sater Design Collection Home Plans Standard Plan Set A There are standard sets of plans made available to homeowners and contractors by local. Introduction to labelling and annotation. What is a standard plan set? In part 1 of our technical drawing series we looked at layout, exploring drawing. The requirements contained in this chapter are prescriptive minimum standards intended to improve the seismic performance of residential. The following pdfs. Standard Plan Set A.
From www.lifeofanarchitect.com
Architectural Graphic Standards Life of an Architect Standard Plan Set A What's in a typical custom architectural plan set? The following pdfs will help you get started on your home strengthening plans. Introduction to labelling and annotation. This prescriptive plan is based on standards contained in appendix a3 of the 2006. There are standard sets of plans made available to homeowners and contractors by local. In part 1 of our technical. Standard Plan Set A.
From houseplanbuilder.blogspot.com
Amazing Ideas! Complete Set Of House Plans PDF, New Concept! Standard Plan Set A Introduction to labelling and annotation. There are standard sets of plans made available to homeowners and contractors by local. In part 1 of our technical drawing series we looked at layout, exploring drawing. The requirements contained in this chapter are prescriptive minimum standards intended to improve the seismic performance of residential. D in the residential seismic strengthening plan set “a”.. Standard Plan Set A.
From solarplansets.com
100 Accurate Solar Plan Sets for Installers Solar Plansets LLC Standard Plan Set A The following pdfs will help you get started on your home strengthening plans. D in the residential seismic strengthening plan set “a”. What's in a typical custom architectural plan set? Introduction to labelling and annotation. In part 1 of our technical drawing series we looked at layout, exploring drawing. There are standard sets of plans made available to homeowners and. Standard Plan Set A.
From www.youtube.com
16 Plan Sets YouTube Standard Plan Set A In part 1 of our technical drawing series we looked at layout, exploring drawing. What is a standard plan set? This prescriptive plan is based on standards contained in appendix a3 of the 2006. The following pdfs will help you get started on your home strengthening plans. There are standard sets of plans made available to homeowners and contractors by. Standard Plan Set A.
From www.dfdhouseplans.com
Southern House Plan with 3 Bedrooms and 2.5 Baths Plan 6923 Standard Plan Set A There are standard sets of plans made available to homeowners and contractors by local. What's in a typical custom architectural plan set? The following pdfs will help you get started on your home strengthening plans. Introduction to labelling and annotation. What is a standard plan set? In part 1 of our technical drawing series we looked at layout, exploring drawing.. Standard Plan Set A.
From www.youtube.com
Plans Sets A how to video YouTube Standard Plan Set A The requirements contained in this chapter are prescriptive minimum standards intended to improve the seismic performance of residential. There are standard sets of plans made available to homeowners and contractors by local. D in the residential seismic strengthening plan set “a”. Introduction to labelling and annotation. This prescriptive plan is based on standards contained in appendix a3 of the 2006.. Standard Plan Set A.
From 61custom.com
Casita Plan Small Modern House Plan 61custom Contemporary & Modern Standard Plan Set A What's in a typical custom architectural plan set? D in the residential seismic strengthening plan set “a”. The requirements contained in this chapter are prescriptive minimum standards intended to improve the seismic performance of residential. There are standard sets of plans made available to homeowners and contractors by local. The following pdfs will help you get started on your home. Standard Plan Set A.
From www.designbasics.com
Builder Plan Sets Multiple Elevation Builder Plan Set Design Basics Standard Plan Set A The requirements contained in this chapter are prescriptive minimum standards intended to improve the seismic performance of residential. What's in a typical custom architectural plan set? In part 1 of our technical drawing series we looked at layout, exploring drawing. The following pdfs will help you get started on your home strengthening plans. This prescriptive plan is based on standards. Standard Plan Set A.
From www.thehousedesigners.com
Briarfield 62894 6868 2 Bedrooms and 2 Baths The House Designers Standard Plan Set A There are standard sets of plans made available to homeowners and contractors by local. In part 1 of our technical drawing series we looked at layout, exploring drawing. What's in a typical custom architectural plan set? Introduction to labelling and annotation. This prescriptive plan is based on standards contained in appendix a3 of the 2006. The following pdfs will help. Standard Plan Set A.
From www.lbiw.com
SPPWC 2021 STANDARD PLANS Long Beach Iron Works Standard Plan Set A The requirements contained in this chapter are prescriptive minimum standards intended to improve the seismic performance of residential. In part 1 of our technical drawing series we looked at layout, exploring drawing. There are standard sets of plans made available to homeowners and contractors by local. What is a standard plan set? D in the residential seismic strengthening plan set. Standard Plan Set A.
From floorplans.click
Floor Plan Drawing Standards floorplans.click Standard Plan Set A What is a standard plan set? D in the residential seismic strengthening plan set “a”. The following pdfs will help you get started on your home strengthening plans. In part 1 of our technical drawing series we looked at layout, exploring drawing. Introduction to labelling and annotation. What's in a typical custom architectural plan set? There are standard sets of. Standard Plan Set A.
From teachargument.com
The Lesson Plan Template You've Been Looking For Standard Plan Set A D in the residential seismic strengthening plan set “a”. What is a standard plan set? There are standard sets of plans made available to homeowners and contractors by local. This prescriptive plan is based on standards contained in appendix a3 of the 2006. What's in a typical custom architectural plan set? The requirements contained in this chapter are prescriptive minimum. Standard Plan Set A.
From www.pinterest.co.kr
Standard Sofa Dimensions Furniture dimensions, Sofa dimension, Living Standard Plan Set A The requirements contained in this chapter are prescriptive minimum standards intended to improve the seismic performance of residential. What is a standard plan set? In part 1 of our technical drawing series we looked at layout, exploring drawing. What's in a typical custom architectural plan set? This prescriptive plan is based on standards contained in appendix a3 of the 2006.. Standard Plan Set A.
From www.designevolutions.com
What is in a set of house plans? Standard Plan Set A Introduction to labelling and annotation. D in the residential seismic strengthening plan set “a”. This prescriptive plan is based on standards contained in appendix a3 of the 2006. The following pdfs will help you get started on your home strengthening plans. The requirements contained in this chapter are prescriptive minimum standards intended to improve the seismic performance of residential. What. Standard Plan Set A.
From www.rnrdesigns.net
SAMPLE MASTER SETS RNR Designs Standard Plan Set A There are standard sets of plans made available to homeowners and contractors by local. What's in a typical custom architectural plan set? The requirements contained in this chapter are prescriptive minimum standards intended to improve the seismic performance of residential. This prescriptive plan is based on standards contained in appendix a3 of the 2006. What is a standard plan set?. Standard Plan Set A.