Real Estate Sale Disclosure Form . How to locate a real estate disclosure form. Seller disclosure is a tricky maze to navigate. We’ve sorted through major points of confusion around seller’s disclosures so you can help prepare your disclosure form for buyers with. Real estate disclosure statements, which can come in a variety of forms, are the buyer’s opportunity to learn as much as they can about the property and. Residential property disclosures acknowledgement form. We're here to tell you how much you need to disclose, and how detailed you need to be. Yes, virginia has a real estate disclosure form (but with few actual disclosures required) limited issues that home sellers in. What is a real estate disclosure? Your state real estate association or board may have documents, often in checklist form, that.
from www.sampleforms.com
What is a real estate disclosure? Yes, virginia has a real estate disclosure form (but with few actual disclosures required) limited issues that home sellers in. Seller disclosure is a tricky maze to navigate. We’ve sorted through major points of confusion around seller’s disclosures so you can help prepare your disclosure form for buyers with. Residential property disclosures acknowledgement form. Your state real estate association or board may have documents, often in checklist form, that. How to locate a real estate disclosure form. We're here to tell you how much you need to disclose, and how detailed you need to be. Real estate disclosure statements, which can come in a variety of forms, are the buyer’s opportunity to learn as much as they can about the property and.
FREE 10+ Sample Real Estate Disclosure Forms in PDF MS Word
Real Estate Sale Disclosure Form Yes, virginia has a real estate disclosure form (but with few actual disclosures required) limited issues that home sellers in. We're here to tell you how much you need to disclose, and how detailed you need to be. We’ve sorted through major points of confusion around seller’s disclosures so you can help prepare your disclosure form for buyers with. Your state real estate association or board may have documents, often in checklist form, that. What is a real estate disclosure? Real estate disclosure statements, which can come in a variety of forms, are the buyer’s opportunity to learn as much as they can about the property and. Residential property disclosures acknowledgement form. How to locate a real estate disclosure form. Yes, virginia has a real estate disclosure form (but with few actual disclosures required) limited issues that home sellers in. Seller disclosure is a tricky maze to navigate.
From www.pdffiller.com
Sales Disclosure Form Indiana Fill Online, Printable, Fillable, Blank Real Estate Sale Disclosure Form Yes, virginia has a real estate disclosure form (but with few actual disclosures required) limited issues that home sellers in. Real estate disclosure statements, which can come in a variety of forms, are the buyer’s opportunity to learn as much as they can about the property and. We're here to tell you how much you need to disclose, and how. Real Estate Sale Disclosure Form.
From www.signnow.com
Residential Real Estate Sales Disclosure Statement Arizona Form Fill Real Estate Sale Disclosure Form How to locate a real estate disclosure form. Real estate disclosure statements, which can come in a variety of forms, are the buyer’s opportunity to learn as much as they can about the property and. Seller disclosure is a tricky maze to navigate. We're here to tell you how much you need to disclose, and how detailed you need to. Real Estate Sale Disclosure Form.
From freeforms.com
Free Property Disclosure Statement PDF WORD Real Estate Sale Disclosure Form Your state real estate association or board may have documents, often in checklist form, that. Residential property disclosures acknowledgement form. We're here to tell you how much you need to disclose, and how detailed you need to be. Yes, virginia has a real estate disclosure form (but with few actual disclosures required) limited issues that home sellers in. We’ve sorted. Real Estate Sale Disclosure Form.
From eforms.com
Free Property Disclosure Statement PDF Word eForms Real Estate Sale Disclosure Form Seller disclosure is a tricky maze to navigate. Residential property disclosures acknowledgement form. Real estate disclosure statements, which can come in a variety of forms, are the buyer’s opportunity to learn as much as they can about the property and. Your state real estate association or board may have documents, often in checklist form, that. What is a real estate. Real Estate Sale Disclosure Form.
From www.signnow.com
Residential Real Estate Sales Disclosure Statement Michigan Form Fill Real Estate Sale Disclosure Form We're here to tell you how much you need to disclose, and how detailed you need to be. We’ve sorted through major points of confusion around seller’s disclosures so you can help prepare your disclosure form for buyers with. How to locate a real estate disclosure form. Seller disclosure is a tricky maze to navigate. What is a real estate. Real Estate Sale Disclosure Form.
From www.sampleforms.com
FREE 10+ Sample Real Estate Disclosure Forms in PDF MS Word Real Estate Sale Disclosure Form Residential property disclosures acknowledgement form. Your state real estate association or board may have documents, often in checklist form, that. What is a real estate disclosure? How to locate a real estate disclosure form. Yes, virginia has a real estate disclosure form (but with few actual disclosures required) limited issues that home sellers in. We’ve sorted through major points of. Real Estate Sale Disclosure Form.
From www.sampleforms.com
FREE 10+ Sample Real Estate Disclosure Forms in PDF MS Word Real Estate Sale Disclosure Form How to locate a real estate disclosure form. Seller disclosure is a tricky maze to navigate. Your state real estate association or board may have documents, often in checklist form, that. Residential property disclosures acknowledgement form. Real estate disclosure statements, which can come in a variety of forms, are the buyer’s opportunity to learn as much as they can about. Real Estate Sale Disclosure Form.
From www.uslegalforms.com
Texas Residential Real Estate Sales Disclosure Statement US Legal Forms Real Estate Sale Disclosure Form Yes, virginia has a real estate disclosure form (but with few actual disclosures required) limited issues that home sellers in. We’ve sorted through major points of confusion around seller’s disclosures so you can help prepare your disclosure form for buyers with. Real estate disclosure statements, which can come in a variety of forms, are the buyer’s opportunity to learn as. Real Estate Sale Disclosure Form.
From www.signnow.com
Residential Real Estate Sales Disclosure Statement Wisconsin Form Real Estate Sale Disclosure Form Your state real estate association or board may have documents, often in checklist form, that. We’ve sorted through major points of confusion around seller’s disclosures so you can help prepare your disclosure form for buyers with. Residential property disclosures acknowledgement form. What is a real estate disclosure? How to locate a real estate disclosure form. Real estate disclosure statements, which. Real Estate Sale Disclosure Form.
From www.uslegalforms.com
California Residential Real Estate Sales Disclosure Statement Real Real Estate Sale Disclosure Form Residential property disclosures acknowledgement form. How to locate a real estate disclosure form. Seller disclosure is a tricky maze to navigate. Your state real estate association or board may have documents, often in checklist form, that. Real estate disclosure statements, which can come in a variety of forms, are the buyer’s opportunity to learn as much as they can about. Real Estate Sale Disclosure Form.
From www.pdffiller.com
New Mexico Seller Disclosure Form Fill Online, Printable, Fillable Real Estate Sale Disclosure Form We're here to tell you how much you need to disclose, and how detailed you need to be. Seller disclosure is a tricky maze to navigate. We’ve sorted through major points of confusion around seller’s disclosures so you can help prepare your disclosure form for buyers with. How to locate a real estate disclosure form. What is a real estate. Real Estate Sale Disclosure Form.
From www.sampleforms.com
FREE 10+ Sample Real Estate Disclosure Forms in PDF MS Word Real Estate Sale Disclosure Form How to locate a real estate disclosure form. Seller disclosure is a tricky maze to navigate. Real estate disclosure statements, which can come in a variety of forms, are the buyer’s opportunity to learn as much as they can about the property and. Yes, virginia has a real estate disclosure form (but with few actual disclosures required) limited issues that. Real Estate Sale Disclosure Form.
From esign.com
Free Property Disclosure Statement PDF Word Real Estate Sale Disclosure Form Yes, virginia has a real estate disclosure form (but with few actual disclosures required) limited issues that home sellers in. Seller disclosure is a tricky maze to navigate. Residential property disclosures acknowledgement form. We’ve sorted through major points of confusion around seller’s disclosures so you can help prepare your disclosure form for buyers with. Your state real estate association or. Real Estate Sale Disclosure Form.
From www.pdffiller.com
Fillable Online Ri Real Estate Sales Disclosure Form Fill Online Real Estate Sale Disclosure Form We’ve sorted through major points of confusion around seller’s disclosures so you can help prepare your disclosure form for buyers with. We're here to tell you how much you need to disclose, and how detailed you need to be. What is a real estate disclosure? Seller disclosure is a tricky maze to navigate. Real estate disclosure statements, which can come. Real Estate Sale Disclosure Form.
From www.signnow.com
Sellers Disclosure Texas PDF 20112024 Form Fill Out and Sign Real Estate Sale Disclosure Form Real estate disclosure statements, which can come in a variety of forms, are the buyer’s opportunity to learn as much as they can about the property and. Seller disclosure is a tricky maze to navigate. Residential property disclosures acknowledgement form. What is a real estate disclosure? Yes, virginia has a real estate disclosure form (but with few actual disclosures required). Real Estate Sale Disclosure Form.
From www.uslegalforms.com
South Carolina Residential Real Estate Sales Disclosure Statement Sc Real Estate Sale Disclosure Form What is a real estate disclosure? We're here to tell you how much you need to disclose, and how detailed you need to be. Your state real estate association or board may have documents, often in checklist form, that. Residential property disclosures acknowledgement form. How to locate a real estate disclosure form. Real estate disclosure statements, which can come in. Real Estate Sale Disclosure Form.
From www.uslegalforms.com
Virginia Residential Real Estate Sales Disclosure Statement Virginia Real Estate Sale Disclosure Form Residential property disclosures acknowledgement form. What is a real estate disclosure? We're here to tell you how much you need to disclose, and how detailed you need to be. Your state real estate association or board may have documents, often in checklist form, that. We’ve sorted through major points of confusion around seller’s disclosures so you can help prepare your. Real Estate Sale Disclosure Form.
From www.pdffiller.com
Seller's Mandatory Disclosure Statement Fill Online, Printable Real Estate Sale Disclosure Form Your state real estate association or board may have documents, often in checklist form, that. What is a real estate disclosure? Seller disclosure is a tricky maze to navigate. Residential property disclosures acknowledgement form. Yes, virginia has a real estate disclosure form (but with few actual disclosures required) limited issues that home sellers in. We’ve sorted through major points of. Real Estate Sale Disclosure Form.
From www.pdffiller.com
Real Estate Disclosure Form Fill Online, Printable, Fillable, Blank Real Estate Sale Disclosure Form How to locate a real estate disclosure form. We’ve sorted through major points of confusion around seller’s disclosures so you can help prepare your disclosure form for buyers with. Seller disclosure is a tricky maze to navigate. Yes, virginia has a real estate disclosure form (but with few actual disclosures required) limited issues that home sellers in. Residential property disclosures. Real Estate Sale Disclosure Form.
From www.uslegalforms.com
Kansas Residential Real Estate Sales Disclosure Statement Real Estate Real Estate Sale Disclosure Form Residential property disclosures acknowledgement form. We’ve sorted through major points of confusion around seller’s disclosures so you can help prepare your disclosure form for buyers with. Seller disclosure is a tricky maze to navigate. Your state real estate association or board may have documents, often in checklist form, that. How to locate a real estate disclosure form. What is a. Real Estate Sale Disclosure Form.
From www.uslegalforms.com
Frisco Texas Residential Real Estate Sales Disclosure Statement US Real Estate Sale Disclosure Form We're here to tell you how much you need to disclose, and how detailed you need to be. Real estate disclosure statements, which can come in a variety of forms, are the buyer’s opportunity to learn as much as they can about the property and. How to locate a real estate disclosure form. Yes, virginia has a real estate disclosure. Real Estate Sale Disclosure Form.
From www.uslegalforms.com
Florida Residential Real Estate Sales Disclosure Statement Florida Real Estate Sale Disclosure Form We’ve sorted through major points of confusion around seller’s disclosures so you can help prepare your disclosure form for buyers with. Seller disclosure is a tricky maze to navigate. Real estate disclosure statements, which can come in a variety of forms, are the buyer’s opportunity to learn as much as they can about the property and. We're here to tell. Real Estate Sale Disclosure Form.
From esign.com
Free Illinois Property Disclosure Statement PDF Word Real Estate Sale Disclosure Form Your state real estate association or board may have documents, often in checklist form, that. How to locate a real estate disclosure form. Real estate disclosure statements, which can come in a variety of forms, are the buyer’s opportunity to learn as much as they can about the property and. What is a real estate disclosure? Yes, virginia has a. Real Estate Sale Disclosure Form.
From www.uslegalforms.com
Mississippi Residential Real Estate Sales Disclosure Statement Real Estate Sale Disclosure Form We're here to tell you how much you need to disclose, and how detailed you need to be. How to locate a real estate disclosure form. Real estate disclosure statements, which can come in a variety of forms, are the buyer’s opportunity to learn as much as they can about the property and. Yes, virginia has a real estate disclosure. Real Estate Sale Disclosure Form.
From www.uslegalforms.com
Santa Clarita California Residential Real Estate Sales Disclosure Real Estate Sale Disclosure Form How to locate a real estate disclosure form. Real estate disclosure statements, which can come in a variety of forms, are the buyer’s opportunity to learn as much as they can about the property and. Seller disclosure is a tricky maze to navigate. Residential property disclosures acknowledgement form. We’ve sorted through major points of confusion around seller’s disclosures so you. Real Estate Sale Disclosure Form.
From www.uslegalforms.com
Oregon Residential Real Estate Sales Disclosure Statement Fill and Real Estate Sale Disclosure Form Residential property disclosures acknowledgement form. Your state real estate association or board may have documents, often in checklist form, that. Seller disclosure is a tricky maze to navigate. Real estate disclosure statements, which can come in a variety of forms, are the buyer’s opportunity to learn as much as they can about the property and. Yes, virginia has a real. Real Estate Sale Disclosure Form.
From www.uslegalforms.com
Colorado Residential Real Estate Sales Disclosure Statement US Legal Real Estate Sale Disclosure Form What is a real estate disclosure? Seller disclosure is a tricky maze to navigate. Residential property disclosures acknowledgement form. How to locate a real estate disclosure form. Your state real estate association or board may have documents, often in checklist form, that. Real estate disclosure statements, which can come in a variety of forms, are the buyer’s opportunity to learn. Real Estate Sale Disclosure Form.
From www.sampleforms.com
FREE 10+ Sample Real Estate Disclosure Forms in PDF MS Word Real Estate Sale Disclosure Form Real estate disclosure statements, which can come in a variety of forms, are the buyer’s opportunity to learn as much as they can about the property and. We're here to tell you how much you need to disclose, and how detailed you need to be. How to locate a real estate disclosure form. Your state real estate association or board. Real Estate Sale Disclosure Form.
From www.signnow.com
Residential Real Estate Sales Disclosure Statement Rhode Island Form Real Estate Sale Disclosure Form How to locate a real estate disclosure form. Yes, virginia has a real estate disclosure form (but with few actual disclosures required) limited issues that home sellers in. What is a real estate disclosure? Real estate disclosure statements, which can come in a variety of forms, are the buyer’s opportunity to learn as much as they can about the property. Real Estate Sale Disclosure Form.
From www.pdffiller.com
Fillable Online Rhode Island Real Estate Sales Disclosure Form Fax Real Estate Sale Disclosure Form How to locate a real estate disclosure form. We’ve sorted through major points of confusion around seller’s disclosures so you can help prepare your disclosure form for buyers with. Real estate disclosure statements, which can come in a variety of forms, are the buyer’s opportunity to learn as much as they can about the property and. Residential property disclosures acknowledgement. Real Estate Sale Disclosure Form.
From www.uslegalforms.com
Commercial Real Estate Disclosure Form US Legal Forms Real Estate Sale Disclosure Form Your state real estate association or board may have documents, often in checklist form, that. Residential property disclosures acknowledgement form. How to locate a real estate disclosure form. Yes, virginia has a real estate disclosure form (but with few actual disclosures required) limited issues that home sellers in. We’ve sorted through major points of confusion around seller’s disclosures so you. Real Estate Sale Disclosure Form.
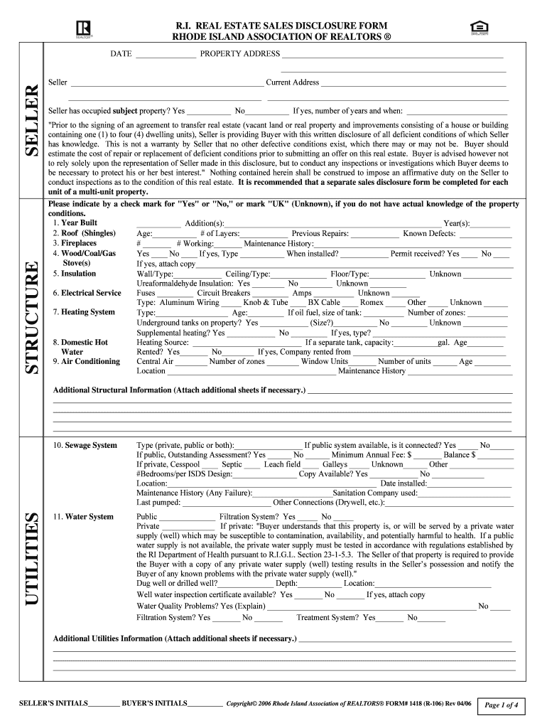
From www.signnow.com
R I REAL ESTATE SALES DISCLOSURE FORM RHODE ISLAND Fill Out and Sign Real Estate Sale Disclosure Form Your state real estate association or board may have documents, often in checklist form, that. We’ve sorted through major points of confusion around seller’s disclosures so you can help prepare your disclosure form for buyers with. We're here to tell you how much you need to disclose, and how detailed you need to be. Yes, virginia has a real estate. Real Estate Sale Disclosure Form.
From www.sampleforms.com
FREE 10+ Sample Real Estate Disclosure Forms in PDF MS Word Real Estate Sale Disclosure Form We're here to tell you how much you need to disclose, and how detailed you need to be. How to locate a real estate disclosure form. Seller disclosure is a tricky maze to navigate. What is a real estate disclosure? Yes, virginia has a real estate disclosure form (but with few actual disclosures required) limited issues that home sellers in.. Real Estate Sale Disclosure Form.
From www.uslegalforms.com
Florida Seller's Disclosure Form 20202022 20202022 Fill and Sign Real Estate Sale Disclosure Form What is a real estate disclosure? Residential property disclosures acknowledgement form. Real estate disclosure statements, which can come in a variety of forms, are the buyer’s opportunity to learn as much as they can about the property and. Seller disclosure is a tricky maze to navigate. We're here to tell you how much you need to disclose, and how detailed. Real Estate Sale Disclosure Form.
From www.signnow.com
Residential Real Estate Sales Disclosure Statement South Dakota Form Real Estate Sale Disclosure Form Real estate disclosure statements, which can come in a variety of forms, are the buyer’s opportunity to learn as much as they can about the property and. We're here to tell you how much you need to disclose, and how detailed you need to be. Your state real estate association or board may have documents, often in checklist form, that.. Real Estate Sale Disclosure Form.