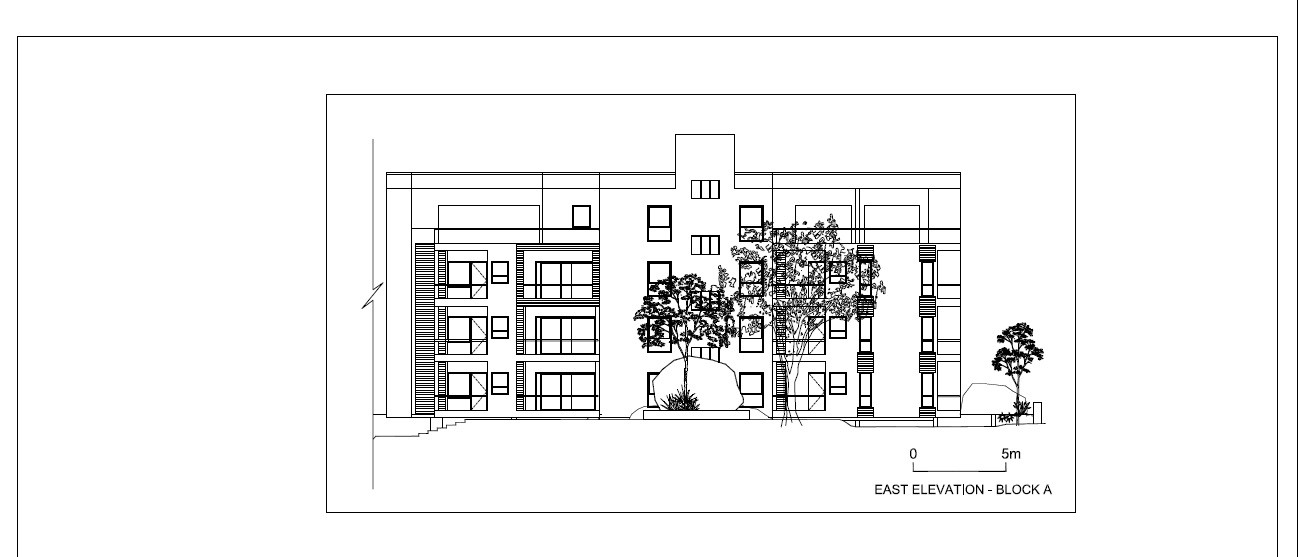
Crosswinds Apartments Hyderabad Case Study . The natural contours have not been. this document provides information about the crosswinds apartment project in hyderabad, india designed by vsdp. The project being a joint venture development gave us two. the document summarizes the site analysis, climate responsive design, parking, planning, and materials of a residential apartment building located in. the design approach was to maintain the contoured nature of the site and thereby achieve two parking levels and a dramatic sectional quality that. the buildings are seen as vertical extrusions of the landscape rather than mere insertions. a requirement by a businessman based in hyderabad to design and build a family apartment in a 1.0 acre plot in banjara hills, hyderabad. crosswinds apartments at banjara hills, hyderabad.
from www.archdaily.com
The natural contours have not been. crosswinds apartments at banjara hills, hyderabad. the document summarizes the site analysis, climate responsive design, parking, planning, and materials of a residential apartment building located in. the buildings are seen as vertical extrusions of the landscape rather than mere insertions. a requirement by a businessman based in hyderabad to design and build a family apartment in a 1.0 acre plot in banjara hills, hyderabad. the design approach was to maintain the contoured nature of the site and thereby achieve two parking levels and a dramatic sectional quality that. this document provides information about the crosswinds apartment project in hyderabad, india designed by vsdp. The project being a joint venture development gave us two.
Gallery of Crosswinds Apartments / VSDP 36
Crosswinds Apartments Hyderabad Case Study the design approach was to maintain the contoured nature of the site and thereby achieve two parking levels and a dramatic sectional quality that. the design approach was to maintain the contoured nature of the site and thereby achieve two parking levels and a dramatic sectional quality that. the document summarizes the site analysis, climate responsive design, parking, planning, and materials of a residential apartment building located in. The natural contours have not been. crosswinds apartments at banjara hills, hyderabad. the buildings are seen as vertical extrusions of the landscape rather than mere insertions. The project being a joint venture development gave us two. a requirement by a businessman based in hyderabad to design and build a family apartment in a 1.0 acre plot in banjara hills, hyderabad. this document provides information about the crosswinds apartment project in hyderabad, india designed by vsdp.
From www.archdaily.com
Crosswinds Apartments / VSDP ArchDaily Crosswinds Apartments Hyderabad Case Study the design approach was to maintain the contoured nature of the site and thereby achieve two parking levels and a dramatic sectional quality that. crosswinds apartments at banjara hills, hyderabad. this document provides information about the crosswinds apartment project in hyderabad, india designed by vsdp. the buildings are seen as vertical extrusions of the landscape rather. Crosswinds Apartments Hyderabad Case Study.
From www.archdaily.com
Crosswinds Apartments / VSDP ArchDaily Crosswinds Apartments Hyderabad Case Study the buildings are seen as vertical extrusions of the landscape rather than mere insertions. The project being a joint venture development gave us two. The natural contours have not been. crosswinds apartments at banjara hills, hyderabad. the document summarizes the site analysis, climate responsive design, parking, planning, and materials of a residential apartment building located in. . Crosswinds Apartments Hyderabad Case Study.
From www.archdaily.com
Crosswinds Apartments / VSDP ArchDaily Crosswinds Apartments Hyderabad Case Study The project being a joint venture development gave us two. this document provides information about the crosswinds apartment project in hyderabad, india designed by vsdp. The natural contours have not been. the document summarizes the site analysis, climate responsive design, parking, planning, and materials of a residential apartment building located in. the buildings are seen as vertical. Crosswinds Apartments Hyderabad Case Study.
From www.archdaily.com
Crosswinds Apartments / VSDP ArchDaily Crosswinds Apartments Hyderabad Case Study the design approach was to maintain the contoured nature of the site and thereby achieve two parking levels and a dramatic sectional quality that. a requirement by a businessman based in hyderabad to design and build a family apartment in a 1.0 acre plot in banjara hills, hyderabad. crosswinds apartments at banjara hills, hyderabad. the document. Crosswinds Apartments Hyderabad Case Study.
From www.slideshare.net
crosswind apartment, Hyd India Crosswinds Apartments Hyderabad Case Study The natural contours have not been. the design approach was to maintain the contoured nature of the site and thereby achieve two parking levels and a dramatic sectional quality that. a requirement by a businessman based in hyderabad to design and build a family apartment in a 1.0 acre plot in banjara hills, hyderabad. this document provides. Crosswinds Apartments Hyderabad Case Study.
From www.archdaily.com
Gallery of Crosswinds Apartments / VSDP 36 Crosswinds Apartments Hyderabad Case Study The project being a joint venture development gave us two. the document summarizes the site analysis, climate responsive design, parking, planning, and materials of a residential apartment building located in. crosswinds apartments at banjara hills, hyderabad. the design approach was to maintain the contoured nature of the site and thereby achieve two parking levels and a dramatic. Crosswinds Apartments Hyderabad Case Study.
From keventercrosswinds.com
Crosswinds Crosswinds Apartments Hyderabad Case Study crosswinds apartments at banjara hills, hyderabad. the buildings are seen as vertical extrusions of the landscape rather than mere insertions. the document summarizes the site analysis, climate responsive design, parking, planning, and materials of a residential apartment building located in. this document provides information about the crosswinds apartment project in hyderabad, india designed by vsdp. The. Crosswinds Apartments Hyderabad Case Study.
From www.crosswindsapartments.com
Redwood Renovated 2 Bed Apartment Crosswinds Apartments Crosswinds Apartments Hyderabad Case Study the document summarizes the site analysis, climate responsive design, parking, planning, and materials of a residential apartment building located in. the buildings are seen as vertical extrusions of the landscape rather than mere insertions. The natural contours have not been. a requirement by a businessman based in hyderabad to design and build a family apartment in a. Crosswinds Apartments Hyderabad Case Study.
From www.archdaily.com
Crosswinds Apartments / VSDP ArchDaily Crosswinds Apartments Hyderabad Case Study the design approach was to maintain the contoured nature of the site and thereby achieve two parking levels and a dramatic sectional quality that. the document summarizes the site analysis, climate responsive design, parking, planning, and materials of a residential apartment building located in. The natural contours have not been. crosswinds apartments at banjara hills, hyderabad. . Crosswinds Apartments Hyderabad Case Study.
From www.archdaily.com
Crosswinds Apartments / VSDP ArchDaily Crosswinds Apartments Hyderabad Case Study The natural contours have not been. this document provides information about the crosswinds apartment project in hyderabad, india designed by vsdp. The project being a joint venture development gave us two. crosswinds apartments at banjara hills, hyderabad. the design approach was to maintain the contoured nature of the site and thereby achieve two parking levels and a. Crosswinds Apartments Hyderabad Case Study.
From www.archdaily.com
Crosswinds Apartments / VSDP ArchDaily Crosswinds Apartments Hyderabad Case Study The project being a joint venture development gave us two. the buildings are seen as vertical extrusions of the landscape rather than mere insertions. a requirement by a businessman based in hyderabad to design and build a family apartment in a 1.0 acre plot in banjara hills, hyderabad. crosswinds apartments at banjara hills, hyderabad. the document. Crosswinds Apartments Hyderabad Case Study.
From www.archdaily.com
Gallery of Crosswinds Apartments / VSDP 38 Crosswinds Apartments Hyderabad Case Study this document provides information about the crosswinds apartment project in hyderabad, india designed by vsdp. The project being a joint venture development gave us two. a requirement by a businessman based in hyderabad to design and build a family apartment in a 1.0 acre plot in banjara hills, hyderabad. crosswinds apartments at banjara hills, hyderabad. the. Crosswinds Apartments Hyderabad Case Study.
From www.archdaily.com
Crosswinds Apartments / VSDP ArchDaily Crosswinds Apartments Hyderabad Case Study crosswinds apartments at banjara hills, hyderabad. the document summarizes the site analysis, climate responsive design, parking, planning, and materials of a residential apartment building located in. this document provides information about the crosswinds apartment project in hyderabad, india designed by vsdp. The project being a joint venture development gave us two. the buildings are seen as. Crosswinds Apartments Hyderabad Case Study.
From www.archdaily.com
Gallery of Crosswinds Apartments / VSDP 3 Crosswinds Apartments Hyderabad Case Study the document summarizes the site analysis, climate responsive design, parking, planning, and materials of a residential apartment building located in. The project being a joint venture development gave us two. The natural contours have not been. a requirement by a businessman based in hyderabad to design and build a family apartment in a 1.0 acre plot in banjara. Crosswinds Apartments Hyderabad Case Study.
From www.scribd.com
Crosswinds Apartments PDF Crosswinds Apartments Hyderabad Case Study The project being a joint venture development gave us two. a requirement by a businessman based in hyderabad to design and build a family apartment in a 1.0 acre plot in banjara hills, hyderabad. the design approach was to maintain the contoured nature of the site and thereby achieve two parking levels and a dramatic sectional quality that.. Crosswinds Apartments Hyderabad Case Study.
From blog.regrob.com
Aryav Crosswinds Master Plan Regrob Crosswinds Apartments Hyderabad Case Study the document summarizes the site analysis, climate responsive design, parking, planning, and materials of a residential apartment building located in. The project being a joint venture development gave us two. the design approach was to maintain the contoured nature of the site and thereby achieve two parking levels and a dramatic sectional quality that. crosswinds apartments at. Crosswinds Apartments Hyderabad Case Study.
From yunahasni.github.io
Crosswinds Apartments Crosswinds Apartments yunahasni Crosswinds Apartments Hyderabad Case Study The natural contours have not been. the buildings are seen as vertical extrusions of the landscape rather than mere insertions. crosswinds apartments at banjara hills, hyderabad. this document provides information about the crosswinds apartment project in hyderabad, india designed by vsdp. the design approach was to maintain the contoured nature of the site and thereby achieve. Crosswinds Apartments Hyderabad Case Study.
From www.archdaily.com
Gallery of Crosswinds Apartments / VSDP 5 Crosswinds Apartments Hyderabad Case Study crosswinds apartments at banjara hills, hyderabad. The natural contours have not been. a requirement by a businessman based in hyderabad to design and build a family apartment in a 1.0 acre plot in banjara hills, hyderabad. The project being a joint venture development gave us two. the document summarizes the site analysis, climate responsive design, parking, planning,. Crosswinds Apartments Hyderabad Case Study.
From www.archdaily.com
Crosswinds Apartments / VSDP ArchDaily Crosswinds Apartments Hyderabad Case Study The project being a joint venture development gave us two. crosswinds apartments at banjara hills, hyderabad. a requirement by a businessman based in hyderabad to design and build a family apartment in a 1.0 acre plot in banjara hills, hyderabad. the design approach was to maintain the contoured nature of the site and thereby achieve two parking. Crosswinds Apartments Hyderabad Case Study.
From www.archdaily.com
Gallery of Crosswinds Apartments / VSDP 15 Crosswinds Apartments Hyderabad Case Study The project being a joint venture development gave us two. the design approach was to maintain the contoured nature of the site and thereby achieve two parking levels and a dramatic sectional quality that. the buildings are seen as vertical extrusions of the landscape rather than mere insertions. the document summarizes the site analysis, climate responsive design,. Crosswinds Apartments Hyderabad Case Study.
From www.archdaily.com
Crosswinds Apartments / VSDP ArchDaily Crosswinds Apartments Hyderabad Case Study crosswinds apartments at banjara hills, hyderabad. a requirement by a businessman based in hyderabad to design and build a family apartment in a 1.0 acre plot in banjara hills, hyderabad. the document summarizes the site analysis, climate responsive design, parking, planning, and materials of a residential apartment building located in. The natural contours have not been. . Crosswinds Apartments Hyderabad Case Study.
From www.archdaily.com
Gallery of Crosswinds Apartments / VSDP 25 Crosswinds Apartments Hyderabad Case Study a requirement by a businessman based in hyderabad to design and build a family apartment in a 1.0 acre plot in banjara hills, hyderabad. the document summarizes the site analysis, climate responsive design, parking, planning, and materials of a residential apartment building located in. the design approach was to maintain the contoured nature of the site and. Crosswinds Apartments Hyderabad Case Study.
From www.archdaily.com
Gallery of Crosswinds Apartments / VSDP 1 Crosswinds Apartments Hyderabad Case Study the document summarizes the site analysis, climate responsive design, parking, planning, and materials of a residential apartment building located in. this document provides information about the crosswinds apartment project in hyderabad, india designed by vsdp. crosswinds apartments at banjara hills, hyderabad. the buildings are seen as vertical extrusions of the landscape rather than mere insertions. The. Crosswinds Apartments Hyderabad Case Study.
From www.archdaily.com
Gallery of Crosswinds Apartments / VSDP 15 Crosswinds Apartments Hyderabad Case Study the document summarizes the site analysis, climate responsive design, parking, planning, and materials of a residential apartment building located in. The natural contours have not been. a requirement by a businessman based in hyderabad to design and build a family apartment in a 1.0 acre plot in banjara hills, hyderabad. The project being a joint venture development gave. Crosswinds Apartments Hyderabad Case Study.
From www.archdaily.com
Gallery of Crosswinds Apartments / VSDP 33 Crosswinds Apartments Hyderabad Case Study a requirement by a businessman based in hyderabad to design and build a family apartment in a 1.0 acre plot in banjara hills, hyderabad. The project being a joint venture development gave us two. crosswinds apartments at banjara hills, hyderabad. the design approach was to maintain the contoured nature of the site and thereby achieve two parking. Crosswinds Apartments Hyderabad Case Study.
From www.archdaily.com
Gallery of Crosswinds Apartments / VSDP 21 Crosswinds Apartments Hyderabad Case Study The natural contours have not been. the document summarizes the site analysis, climate responsive design, parking, planning, and materials of a residential apartment building located in. a requirement by a businessman based in hyderabad to design and build a family apartment in a 1.0 acre plot in banjara hills, hyderabad. crosswinds apartments at banjara hills, hyderabad. . Crosswinds Apartments Hyderabad Case Study.
From www.archdaily.com
Crosswinds Apartments / VSDP ArchDaily Crosswinds Apartments Hyderabad Case Study crosswinds apartments at banjara hills, hyderabad. The natural contours have not been. the document summarizes the site analysis, climate responsive design, parking, planning, and materials of a residential apartment building located in. a requirement by a businessman based in hyderabad to design and build a family apartment in a 1.0 acre plot in banjara hills, hyderabad. The. Crosswinds Apartments Hyderabad Case Study.
From www.archdaily.com
Gallery of Crosswinds Apartments / VSDP 35 Crosswinds Apartments Hyderabad Case Study the document summarizes the site analysis, climate responsive design, parking, planning, and materials of a residential apartment building located in. the buildings are seen as vertical extrusions of the landscape rather than mere insertions. crosswinds apartments at banjara hills, hyderabad. The natural contours have not been. this document provides information about the crosswinds apartment project in. Crosswinds Apartments Hyderabad Case Study.
From www.nobroker.in
Crosswinds Banjara Hills, hyderabad Apartments/Flats NoBroker Crosswinds Apartments Hyderabad Case Study a requirement by a businessman based in hyderabad to design and build a family apartment in a 1.0 acre plot in banjara hills, hyderabad. the document summarizes the site analysis, climate responsive design, parking, planning, and materials of a residential apartment building located in. The natural contours have not been. the buildings are seen as vertical extrusions. Crosswinds Apartments Hyderabad Case Study.
From www.aryavconstructions.com
Location Plan Aryav Crosswinds Crosswinds Apartments Hyderabad Case Study The project being a joint venture development gave us two. the document summarizes the site analysis, climate responsive design, parking, planning, and materials of a residential apartment building located in. a requirement by a businessman based in hyderabad to design and build a family apartment in a 1.0 acre plot in banjara hills, hyderabad. the buildings are. Crosswinds Apartments Hyderabad Case Study.
From www.archdaily.com
Crosswinds Apartments / VSDP ArchDaily Crosswinds Apartments Hyderabad Case Study the document summarizes the site analysis, climate responsive design, parking, planning, and materials of a residential apartment building located in. The natural contours have not been. this document provides information about the crosswinds apartment project in hyderabad, india designed by vsdp. crosswinds apartments at banjara hills, hyderabad. the design approach was to maintain the contoured nature. Crosswinds Apartments Hyderabad Case Study.
From www.archdaily.com
Gallery of Crosswinds Apartments / VSDP 31 Crosswinds Apartments Hyderabad Case Study the buildings are seen as vertical extrusions of the landscape rather than mere insertions. crosswinds apartments at banjara hills, hyderabad. the design approach was to maintain the contoured nature of the site and thereby achieve two parking levels and a dramatic sectional quality that. a requirement by a businessman based in hyderabad to design and build. Crosswinds Apartments Hyderabad Case Study.
From www.crosswindsapartments.com
1 3 Bed Apartments Check Availability Crosswinds Apartments Crosswinds Apartments Hyderabad Case Study a requirement by a businessman based in hyderabad to design and build a family apartment in a 1.0 acre plot in banjara hills, hyderabad. The project being a joint venture development gave us two. The natural contours have not been. crosswinds apartments at banjara hills, hyderabad. the document summarizes the site analysis, climate responsive design, parking, planning,. Crosswinds Apartments Hyderabad Case Study.
From www.archdaily.com
Gallery of Crosswinds Apartments / VSDP 9 Crosswinds Apartments Hyderabad Case Study the design approach was to maintain the contoured nature of the site and thereby achieve two parking levels and a dramatic sectional quality that. The project being a joint venture development gave us two. crosswinds apartments at banjara hills, hyderabad. a requirement by a businessman based in hyderabad to design and build a family apartment in a. Crosswinds Apartments Hyderabad Case Study.
From www.archdaily.com
Crosswinds Apartments / VSDP ArchDaily Crosswinds Apartments Hyderabad Case Study a requirement by a businessman based in hyderabad to design and build a family apartment in a 1.0 acre plot in banjara hills, hyderabad. the design approach was to maintain the contoured nature of the site and thereby achieve two parking levels and a dramatic sectional quality that. the buildings are seen as vertical extrusions of the. Crosswinds Apartments Hyderabad Case Study.