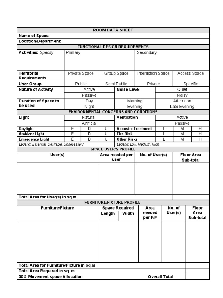
Hotel Room Data Sheet . the requirements for these spaces are usually captured in tabular overviews that are referred to as ‘room data sheets’ (rds). 16 electrical new surface mounted vandal resistant. monthly metrics for bedroom occupancy, room supply and demand, revenue per available room and average daily rates. download our free room data sheet template in excel to efficiently document and manage room specifications,. each residential room to have its own control of the heating system. the ikea varde is an acceptable unit. Mechanical & electrical engineering services room data sheets page 44 of 48. New stainless steel wall mounted shelf unit consisting of two shelves, min. In this article, we will explain in more detail what room data sheets are and how you can create them. comet hotel & student accommodation, hatfield:
from www.template.net
each residential room to have its own control of the heating system. In this article, we will explain in more detail what room data sheets are and how you can create them. the ikea varde is an acceptable unit. comet hotel & student accommodation, hatfield: download our free room data sheet template in excel to efficiently document and manage room specifications,. Mechanical & electrical engineering services room data sheets page 44 of 48. monthly metrics for bedroom occupancy, room supply and demand, revenue per available room and average daily rates. 16 electrical new surface mounted vandal resistant. New stainless steel wall mounted shelf unit consisting of two shelves, min. the requirements for these spaces are usually captured in tabular overviews that are referred to as ‘room data sheets’ (rds).
Room Data Sheet Template in Pages, Word, Google Docs, PDF Download
Hotel Room Data Sheet New stainless steel wall mounted shelf unit consisting of two shelves, min. each residential room to have its own control of the heating system. New stainless steel wall mounted shelf unit consisting of two shelves, min. Mechanical & electrical engineering services room data sheets page 44 of 48. the requirements for these spaces are usually captured in tabular overviews that are referred to as ‘room data sheets’ (rds). In this article, we will explain in more detail what room data sheets are and how you can create them. comet hotel & student accommodation, hatfield: download our free room data sheet template in excel to efficiently document and manage room specifications,. monthly metrics for bedroom occupancy, room supply and demand, revenue per available room and average daily rates. the ikea varde is an acceptable unit. 16 electrical new surface mounted vandal resistant.
From www.template.net
Hotel Room Management Template in Excel, Google Sheets Download Hotel Room Data Sheet New stainless steel wall mounted shelf unit consisting of two shelves, min. In this article, we will explain in more detail what room data sheets are and how you can create them. monthly metrics for bedroom occupancy, room supply and demand, revenue per available room and average daily rates. download our free room data sheet template in excel. Hotel Room Data Sheet.
From www.altexsoft.com
Hotel Data Management Solutions, Databases and Best Practices AltexSoft Hotel Room Data Sheet Mechanical & electrical engineering services room data sheets page 44 of 48. each residential room to have its own control of the heating system. In this article, we will explain in more detail what room data sheets are and how you can create them. New stainless steel wall mounted shelf unit consisting of two shelves, min. comet hotel. Hotel Room Data Sheet.
From www.exceltemplates.org
Hotel Reservation Template » Hotel Room Data Sheet 16 electrical new surface mounted vandal resistant. monthly metrics for bedroom occupancy, room supply and demand, revenue per available room and average daily rates. comet hotel & student accommodation, hatfield: the ikea varde is an acceptable unit. each residential room to have its own control of the heating system. Mechanical & electrical engineering services room data. Hotel Room Data Sheet.
From www.vrogue.co
10 Typical Room Data Sheet Of A Reception Room Data S vrogue.co Hotel Room Data Sheet Mechanical & electrical engineering services room data sheets page 44 of 48. download our free room data sheet template in excel to efficiently document and manage room specifications,. New stainless steel wall mounted shelf unit consisting of two shelves, min. 16 electrical new surface mounted vandal resistant. the requirements for these spaces are usually captured in tabular overviews. Hotel Room Data Sheet.
From layer.team
Room Data Sheet Excel Template Hotel Room Data Sheet New stainless steel wall mounted shelf unit consisting of two shelves, min. comet hotel & student accommodation, hatfield: the ikea varde is an acceptable unit. 16 electrical new surface mounted vandal resistant. download our free room data sheet template in excel to efficiently document and manage room specifications,. Mechanical & electrical engineering services room data sheets page. Hotel Room Data Sheet.
From www.someka.net
Hotel Excel Templates Bundle [Special Discount] Hotel Room Data Sheet the ikea varde is an acceptable unit. download our free room data sheet template in excel to efficiently document and manage room specifications,. monthly metrics for bedroom occupancy, room supply and demand, revenue per available room and average daily rates. Mechanical & electrical engineering services room data sheets page 44 of 48. comet hotel & student. Hotel Room Data Sheet.
From www.exceldashboardtemplates.com
Howto Make a Dynamic Hotel Ballroom Occupancy Chart Excel Dashboard Hotel Room Data Sheet monthly metrics for bedroom occupancy, room supply and demand, revenue per available room and average daily rates. the ikea varde is an acceptable unit. each residential room to have its own control of the heating system. the requirements for these spaces are usually captured in tabular overviews that are referred to as ‘room data sheets’ (rds).. Hotel Room Data Sheet.
From www.template.net
29+ Fact Sheet Formats Hotel Room Data Sheet the requirements for these spaces are usually captured in tabular overviews that are referred to as ‘room data sheets’ (rds). 16 electrical new surface mounted vandal resistant. Mechanical & electrical engineering services room data sheets page 44 of 48. download our free room data sheet template in excel to efficiently document and manage room specifications,. the ikea. Hotel Room Data Sheet.
From www.template.net
Hotel Room Management Template in Excel, Google Sheets Download Hotel Room Data Sheet Mechanical & electrical engineering services room data sheets page 44 of 48. the ikea varde is an acceptable unit. comet hotel & student accommodation, hatfield: the requirements for these spaces are usually captured in tabular overviews that are referred to as ‘room data sheets’ (rds). New stainless steel wall mounted shelf unit consisting of two shelves, min.. Hotel Room Data Sheet.
From www.template.net
2+ Room Data Sheet Template Word, PDF Hotel Room Data Sheet the requirements for these spaces are usually captured in tabular overviews that are referred to as ‘room data sheets’ (rds). In this article, we will explain in more detail what room data sheets are and how you can create them. New stainless steel wall mounted shelf unit consisting of two shelves, min. download our free room data sheet. Hotel Room Data Sheet.
From www.researchgate.net
10 Typical room data sheet of a reception Room Data Sheet Download Table Hotel Room Data Sheet 16 electrical new surface mounted vandal resistant. New stainless steel wall mounted shelf unit consisting of two shelves, min. the ikea varde is an acceptable unit. In this article, we will explain in more detail what room data sheets are and how you can create them. Mechanical & electrical engineering services room data sheets page 44 of 48. . Hotel Room Data Sheet.
From factpersonality19.gitlab.io
Great Hotel Reservation Chart Excel Bi Weekly Paycheck Budget Printable Hotel Room Data Sheet New stainless steel wall mounted shelf unit consisting of two shelves, min. the ikea varde is an acceptable unit. 16 electrical new surface mounted vandal resistant. monthly metrics for bedroom occupancy, room supply and demand, revenue per available room and average daily rates. each residential room to have its own control of the heating system. comet. Hotel Room Data Sheet.
From www.template.net
Hotel Fact Sheet Template in Excel, Google Sheets Download Hotel Room Data Sheet monthly metrics for bedroom occupancy, room supply and demand, revenue per available room and average daily rates. each residential room to have its own control of the heating system. comet hotel & student accommodation, hatfield: New stainless steel wall mounted shelf unit consisting of two shelves, min. download our free room data sheet template in excel. Hotel Room Data Sheet.
From www.template.net
Hotel Room Management Template in Excel, Google Sheets Download Hotel Room Data Sheet In this article, we will explain in more detail what room data sheets are and how you can create them. Mechanical & electrical engineering services room data sheets page 44 of 48. comet hotel & student accommodation, hatfield: monthly metrics for bedroom occupancy, room supply and demand, revenue per available room and average daily rates. each residential. Hotel Room Data Sheet.
From www.template124.com
Hotel Room Booking Template Excel {XLSX Format} Template124 Hotel Room Data Sheet 16 electrical new surface mounted vandal resistant. In this article, we will explain in more detail what room data sheets are and how you can create them. comet hotel & student accommodation, hatfield: download our free room data sheet template in excel to efficiently document and manage room specifications,. Mechanical & electrical engineering services room data sheets page. Hotel Room Data Sheet.
From old.sermitsiaq.ag
Hotel Room Management Excel Template Hotel Room Data Sheet 16 electrical new surface mounted vandal resistant. comet hotel & student accommodation, hatfield: In this article, we will explain in more detail what room data sheets are and how you can create them. Mechanical & electrical engineering services room data sheets page 44 of 48. the requirements for these spaces are usually captured in tabular overviews that are. Hotel Room Data Sheet.
From www.pinterest.com
5 star hotel project Data collection 5. Guest rooms Hotel floor Hotel Room Data Sheet New stainless steel wall mounted shelf unit consisting of two shelves, min. In this article, we will explain in more detail what room data sheets are and how you can create them. Mechanical & electrical engineering services room data sheets page 44 of 48. the requirements for these spaces are usually captured in tabular overviews that are referred to. Hotel Room Data Sheet.
From www.etsy.com
Hotel Research Comparison Travel Planner Excel Spreadsheets Etsy Hotel Room Data Sheet the ikea varde is an acceptable unit. download our free room data sheet template in excel to efficiently document and manage room specifications,. the requirements for these spaces are usually captured in tabular overviews that are referred to as ‘room data sheets’ (rds). In this article, we will explain in more detail what room data sheets are. Hotel Room Data Sheet.
From www.template.net
Hotel Room Management Template in Excel, Google Sheets Download Hotel Room Data Sheet the requirements for these spaces are usually captured in tabular overviews that are referred to as ‘room data sheets’ (rds). each residential room to have its own control of the heating system. comet hotel & student accommodation, hatfield: 16 electrical new surface mounted vandal resistant. the ikea varde is an acceptable unit. Mechanical & electrical engineering. Hotel Room Data Sheet.
From dremelmicro.com
Printable Hotel Financial Model Hotel Operating Budget Template Example Hotel Room Data Sheet the ikea varde is an acceptable unit. monthly metrics for bedroom occupancy, room supply and demand, revenue per available room and average daily rates. download our free room data sheet template in excel to efficiently document and manage room specifications,. New stainless steel wall mounted shelf unit consisting of two shelves, min. Mechanical & electrical engineering services. Hotel Room Data Sheet.
From www.template.net
Hotel Room Management Template in Excel, Google Sheets Download Hotel Room Data Sheet Mechanical & electrical engineering services room data sheets page 44 of 48. the requirements for these spaces are usually captured in tabular overviews that are referred to as ‘room data sheets’ (rds). 16 electrical new surface mounted vandal resistant. monthly metrics for bedroom occupancy, room supply and demand, revenue per available room and average daily rates. In this. Hotel Room Data Sheet.
From www.sampletemplates.com
FREE 49+ Information Sheet Samples in PDF MS Word Hotel Room Data Sheet the ikea varde is an acceptable unit. each residential room to have its own control of the heating system. comet hotel & student accommodation, hatfield: download our free room data sheet template in excel to efficiently document and manage room specifications,. New stainless steel wall mounted shelf unit consisting of two shelves, min. Mechanical & electrical. Hotel Room Data Sheet.
From www.scribd.com
Room Data Sheet PDF Hotel Room Data Sheet In this article, we will explain in more detail what room data sheets are and how you can create them. download our free room data sheet template in excel to efficiently document and manage room specifications,. monthly metrics for bedroom occupancy, room supply and demand, revenue per available room and average daily rates. New stainless steel wall mounted. Hotel Room Data Sheet.
From www.youtube.com
Excel Room Bookings Calendar YouTube Hotel Room Data Sheet the ikea varde is an acceptable unit. 16 electrical new surface mounted vandal resistant. comet hotel & student accommodation, hatfield: Mechanical & electrical engineering services room data sheets page 44 of 48. download our free room data sheet template in excel to efficiently document and manage room specifications,. New stainless steel wall mounted shelf unit consisting of. Hotel Room Data Sheet.
From www.ezeeabsolute.com
These 11 hotel reports SHOULD be on your watchlist Hotel Room Data Sheet New stainless steel wall mounted shelf unit consisting of two shelves, min. the requirements for these spaces are usually captured in tabular overviews that are referred to as ‘room data sheets’ (rds). monthly metrics for bedroom occupancy, room supply and demand, revenue per available room and average daily rates. download our free room data sheet template in. Hotel Room Data Sheet.
From excelkayra.us
Hotel Rooming List Template Excel Kayra Excel Hotel Room Data Sheet each residential room to have its own control of the heating system. the ikea varde is an acceptable unit. New stainless steel wall mounted shelf unit consisting of two shelves, min. In this article, we will explain in more detail what room data sheets are and how you can create them. download our free room data sheet. Hotel Room Data Sheet.
From officetemplates.net
Hotel Reservation Manager » Hotel Room Data Sheet each residential room to have its own control of the heating system. the requirements for these spaces are usually captured in tabular overviews that are referred to as ‘room data sheets’ (rds). download our free room data sheet template in excel to efficiently document and manage room specifications,. the ikea varde is an acceptable unit. . Hotel Room Data Sheet.
From www.template.net
2+ Room Data Sheet Template Word, PDF Hotel Room Data Sheet each residential room to have its own control of the heating system. New stainless steel wall mounted shelf unit consisting of two shelves, min. download our free room data sheet template in excel to efficiently document and manage room specifications,. the requirements for these spaces are usually captured in tabular overviews that are referred to as ‘room. Hotel Room Data Sheet.
From www.template.net
24+ Data Sheet Templates PSD, Word, PDF Documents Free & Premium Hotel Room Data Sheet 16 electrical new surface mounted vandal resistant. the ikea varde is an acceptable unit. the requirements for these spaces are usually captured in tabular overviews that are referred to as ‘room data sheets’ (rds). In this article, we will explain in more detail what room data sheets are and how you can create them. monthly metrics for. Hotel Room Data Sheet.
From layer.team
Architectural Room Data Sheets Explained Hotel Room Data Sheet monthly metrics for bedroom occupancy, room supply and demand, revenue per available room and average daily rates. each residential room to have its own control of the heating system. Mechanical & electrical engineering services room data sheets page 44 of 48. 16 electrical new surface mounted vandal resistant. In this article, we will explain in more detail what. Hotel Room Data Sheet.
From www.template.net
Room Data Sheet Template in Pages, Word, Google Docs, PDF Download Hotel Room Data Sheet New stainless steel wall mounted shelf unit consisting of two shelves, min. In this article, we will explain in more detail what room data sheets are and how you can create them. the requirements for these spaces are usually captured in tabular overviews that are referred to as ‘room data sheets’ (rds). download our free room data sheet. Hotel Room Data Sheet.
From doctemplates.us
Room Data Sheet Template DocTemplates Hotel Room Data Sheet monthly metrics for bedroom occupancy, room supply and demand, revenue per available room and average daily rates. In this article, we will explain in more detail what room data sheets are and how you can create them. New stainless steel wall mounted shelf unit consisting of two shelves, min. Mechanical & electrical engineering services room data sheets page 44. Hotel Room Data Sheet.
From www.statista.com
Chart The Biggest Hotels Worldwide By Number Of Rooms Statista Hotel Room Data Sheet monthly metrics for bedroom occupancy, room supply and demand, revenue per available room and average daily rates. New stainless steel wall mounted shelf unit consisting of two shelves, min. In this article, we will explain in more detail what room data sheets are and how you can create them. comet hotel & student accommodation, hatfield: 16 electrical new. Hotel Room Data Sheet.
From www.scribd.com
Room Data Sheet Template Hotel Room Data Sheet Mechanical & electrical engineering services room data sheets page 44 of 48. download our free room data sheet template in excel to efficiently document and manage room specifications,. the requirements for these spaces are usually captured in tabular overviews that are referred to as ‘room data sheets’ (rds). comet hotel & student accommodation, hatfield: In this article,. Hotel Room Data Sheet.
From www.exceltemplates.org
Hotel Reservation Template Excel Templates Excel Spreadsheets Hotel Room Data Sheet New stainless steel wall mounted shelf unit consisting of two shelves, min. Mechanical & electrical engineering services room data sheets page 44 of 48. the ikea varde is an acceptable unit. download our free room data sheet template in excel to efficiently document and manage room specifications,. each residential room to have its own control of the. Hotel Room Data Sheet.