House Plans With A Crows Nest . Redbay cottage was the inspiration for our popular crow’s nest cottage and bay island plans, featuring a modest size and reverse. Coastal house plans with crows nests are a popular choice for those looking to build a home with stunning views and a unique. Bay island derived from our crow’s nest cottage. The open and view oriented plan has ample outdoor living space and features a coastal contemporary exterior. Coastal house plans with crows nests have become increasingly popular for their unique aesthetic and functional benefits. The cupola, and its balcony is. These plans can be found online or in. An unusual shape, a triangular dining room, a crows nest and a vaulted shop area make this very special home plan unique. There are a number of different beach house plans available that include a crow's nest.
        
        from senaterace2012.com 
     
        
        There are a number of different beach house plans available that include a crow's nest. These plans can be found online or in. The open and view oriented plan has ample outdoor living space and features a coastal contemporary exterior. The cupola, and its balcony is. Redbay cottage was the inspiration for our popular crow’s nest cottage and bay island plans, featuring a modest size and reverse. Bay island derived from our crow’s nest cottage. Coastal house plans with crows nests have become increasingly popular for their unique aesthetic and functional benefits. Coastal house plans with crows nests are a popular choice for those looking to build a home with stunning views and a unique. An unusual shape, a triangular dining room, a crows nest and a vaulted shop area make this very special home plan unique.
    
    	
            
	
		 
         
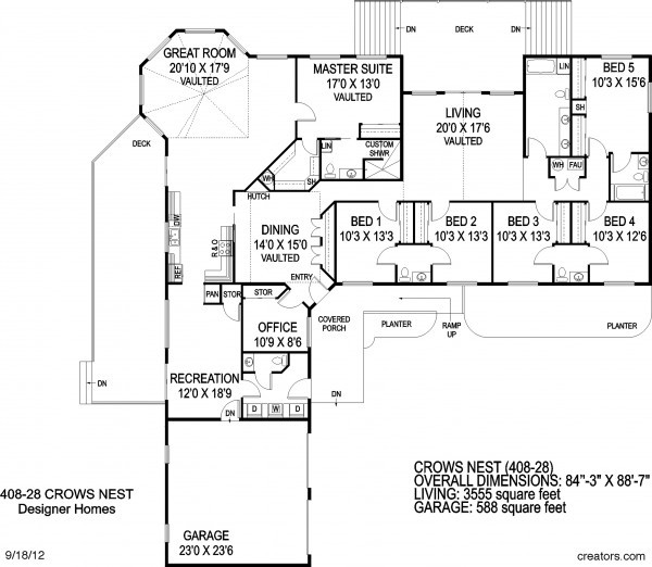
    Beach House Plans Crows Nest Home Deco Home Plans & Blueprints 103243 
    House Plans With A Crows Nest  An unusual shape, a triangular dining room, a crows nest and a vaulted shop area make this very special home plan unique. These plans can be found online or in. Coastal house plans with crows nests have become increasingly popular for their unique aesthetic and functional benefits. Coastal house plans with crows nests are a popular choice for those looking to build a home with stunning views and a unique. An unusual shape, a triangular dining room, a crows nest and a vaulted shop area make this very special home plan unique. There are a number of different beach house plans available that include a crow's nest. Redbay cottage was the inspiration for our popular crow’s nest cottage and bay island plans, featuring a modest size and reverse. The cupola, and its balcony is. Bay island derived from our crow’s nest cottage. The open and view oriented plan has ample outdoor living space and features a coastal contemporary exterior.
            
	
		 
         
 
    
        From clipperhouse.co.uk 
                    Crow's Nest Clipper House House Plans With A Crows Nest  There are a number of different beach house plans available that include a crow's nest. The open and view oriented plan has ample outdoor living space and features a coastal contemporary exterior. Coastal house plans with crows nests are a popular choice for those looking to build a home with stunning views and a unique. The cupola, and its balcony. House Plans With A Crows Nest.
     
    
        From www.architecturaldesigns.com 
                    Unique Design with Crows Nest 69479AM Architectural Designs House Plans House Plans With A Crows Nest  There are a number of different beach house plans available that include a crow's nest. Coastal house plans with crows nests are a popular choice for those looking to build a home with stunning views and a unique. Coastal house plans with crows nests have become increasingly popular for their unique aesthetic and functional benefits. Bay island derived from our. House Plans With A Crows Nest.
     
    
        From nation.ryobitools.com 
                    Crow's Nest Tree House with Trap Door and Ladder RYOBI Nation Projects House Plans With A Crows Nest  An unusual shape, a triangular dining room, a crows nest and a vaulted shop area make this very special home plan unique. There are a number of different beach house plans available that include a crow's nest. Bay island derived from our crow’s nest cottage. The open and view oriented plan has ample outdoor living space and features a coastal. House Plans With A Crows Nest.
     
    
        From sdchouseplans.com 
                    Crow's Nest Cottage SDC House Plans House Plans With A Crows Nest  Redbay cottage was the inspiration for our popular crow’s nest cottage and bay island plans, featuring a modest size and reverse. An unusual shape, a triangular dining room, a crows nest and a vaulted shop area make this very special home plan unique. These plans can be found online or in. Coastal house plans with crows nests have become increasingly. House Plans With A Crows Nest.
     
    
        From www.allinfohome.com 
                    72+ house plan with crows nest Satisfy Your Imagination House Plans With A Crows Nest  Coastal house plans with crows nests are a popular choice for those looking to build a home with stunning views and a unique. Redbay cottage was the inspiration for our popular crow’s nest cottage and bay island plans, featuring a modest size and reverse. Coastal house plans with crows nests have become increasingly popular for their unique aesthetic and functional. House Plans With A Crows Nest.
     
    
        From www.pinterest.com 
                    Crows Nest rental cabin in Blue Ridge, Ga. Unusual homes, Cabin, Log homes House Plans With A Crows Nest  Redbay cottage was the inspiration for our popular crow’s nest cottage and bay island plans, featuring a modest size and reverse. These plans can be found online or in. There are a number of different beach house plans available that include a crow's nest. Coastal house plans with crows nests are a popular choice for those looking to build a. House Plans With A Crows Nest.
     
    
        From www.pinterest.com 
                    a crow’s nest is typical among the floridian style homes. every house in watersound, florida is House Plans With A Crows Nest  The open and view oriented plan has ample outdoor living space and features a coastal contemporary exterior. Redbay cottage was the inspiration for our popular crow’s nest cottage and bay island plans, featuring a modest size and reverse. An unusual shape, a triangular dining room, a crows nest and a vaulted shop area make this very special home plan unique.. House Plans With A Crows Nest.
     
    
        From www.diadav.com 
                    Crow's Nest Floor Plan House Plans With A Crows Nest  Bay island derived from our crow’s nest cottage. The open and view oriented plan has ample outdoor living space and features a coastal contemporary exterior. Coastal house plans with crows nests are a popular choice for those looking to build a home with stunning views and a unique. There are a number of different beach house plans available that include. House Plans With A Crows Nest.
     
    
        From housembq.blogspot.com 
                    Beach House Plans With Crows Nest HOUSEMB House Plans With A Crows Nest  An unusual shape, a triangular dining room, a crows nest and a vaulted shop area make this very special home plan unique. The open and view oriented plan has ample outdoor living space and features a coastal contemporary exterior. These plans can be found online or in. Coastal house plans with crows nests are a popular choice for those looking. House Plans With A Crows Nest.
     
    
        From sdchouseplans.com 
                    Crow's Nest Cottage SDC House Plans House Plans With A Crows Nest  Redbay cottage was the inspiration for our popular crow’s nest cottage and bay island plans, featuring a modest size and reverse. Coastal house plans with crows nests are a popular choice for those looking to build a home with stunning views and a unique. An unusual shape, a triangular dining room, a crows nest and a vaulted shop area make. House Plans With A Crows Nest.
     
    
        From housembq.blogspot.com 
                    Beach House Plans With Crows Nest HOUSEMB House Plans With A Crows Nest  Redbay cottage was the inspiration for our popular crow’s nest cottage and bay island plans, featuring a modest size and reverse. These plans can be found online or in. There are a number of different beach house plans available that include a crow's nest. The open and view oriented plan has ample outdoor living space and features a coastal contemporary. House Plans With A Crows Nest.
     
    
        From www.jackhawkinsarchitect.com.au 
                    Jack Hawkins Architect Crows Nest House House Plans With A Crows Nest  Redbay cottage was the inspiration for our popular crow’s nest cottage and bay island plans, featuring a modest size and reverse. The open and view oriented plan has ample outdoor living space and features a coastal contemporary exterior. An unusual shape, a triangular dining room, a crows nest and a vaulted shop area make this very special home plan unique.. House Plans With A Crows Nest.
     
    
        From www.archdaily.com 
                    The Crow's Nest / AR Design Studio ArchDaily House Plans With A Crows Nest  Coastal house plans with crows nests have become increasingly popular for their unique aesthetic and functional benefits. The cupola, and its balcony is. There are a number of different beach house plans available that include a crow's nest. Bay island derived from our crow’s nest cottage. An unusual shape, a triangular dining room, a crows nest and a vaulted shop. House Plans With A Crows Nest.
     
    
        From www.architecturaldesigns.com 
                    EnergyEfficient Beach House Plan with Crow's Nest 33211ZR Architectural Designs House Plans House Plans With A Crows Nest  The cupola, and its balcony is. There are a number of different beach house plans available that include a crow's nest. These plans can be found online or in. Coastal house plans with crows nests have become increasingly popular for their unique aesthetic and functional benefits. An unusual shape, a triangular dining room, a crows nest and a vaulted shop. House Plans With A Crows Nest.
     
    
        From www.lathamcusack.com.au 
                    House Leased Crows Nest House Plans With A Crows Nest  The cupola, and its balcony is. Coastal house plans with crows nests have become increasingly popular for their unique aesthetic and functional benefits. Redbay cottage was the inspiration for our popular crow’s nest cottage and bay island plans, featuring a modest size and reverse. The open and view oriented plan has ample outdoor living space and features a coastal contemporary. House Plans With A Crows Nest.
     
    
        From www.architecturaldesigns.com 
                    Coastal Contemporary Beach House Plan with Crow's Nest 33211ZR Architectural Designs House House Plans With A Crows Nest  These plans can be found online or in. Coastal house plans with crows nests have become increasingly popular for their unique aesthetic and functional benefits. Bay island derived from our crow’s nest cottage. Redbay cottage was the inspiration for our popular crow’s nest cottage and bay island plans, featuring a modest size and reverse. The cupola, and its balcony is.. House Plans With A Crows Nest.
     
    
        From www.pinterest.com 
                    Crow's Nest with Views to the Kiawah Marshes and Stono River Coastal house plans, Home, Maine House Plans With A Crows Nest  An unusual shape, a triangular dining room, a crows nest and a vaulted shop area make this very special home plan unique. Coastal house plans with crows nests have become increasingly popular for their unique aesthetic and functional benefits. Redbay cottage was the inspiration for our popular crow’s nest cottage and bay island plans, featuring a modest size and reverse.. House Plans With A Crows Nest.
     
    
        From hamillcreek.com 
                    Crow's Nest Hamill Creek Timber Homes House Plans With A Crows Nest  An unusual shape, a triangular dining room, a crows nest and a vaulted shop area make this very special home plan unique. Coastal house plans with crows nests have become increasingly popular for their unique aesthetic and functional benefits. There are a number of different beach house plans available that include a crow's nest. The cupola, and its balcony is.. House Plans With A Crows Nest.
     
    
        From www.archdaily.com 
                    Gallery of The Crow’s Nest / BCV Architects 24 House Plans With A Crows Nest  There are a number of different beach house plans available that include a crow's nest. Coastal house plans with crows nests are a popular choice for those looking to build a home with stunning views and a unique. Bay island derived from our crow’s nest cottage. Redbay cottage was the inspiration for our popular crow’s nest cottage and bay island. House Plans With A Crows Nest.
     
    
        From sdchouseplans.com 
                    Crow's Nest Cottage SDC House Plans House Plans With A Crows Nest  An unusual shape, a triangular dining room, a crows nest and a vaulted shop area make this very special home plan unique. Redbay cottage was the inspiration for our popular crow’s nest cottage and bay island plans, featuring a modest size and reverse. The cupola, and its balcony is. Bay island derived from our crow’s nest cottage. The open and. House Plans With A Crows Nest.
     
    
        From www.pinterest.com 
                    Crow’s Nest Residence by Mt. Lincoln Construction (27) Architecture, Rustic exterior, House design House Plans With A Crows Nest  Bay island derived from our crow’s nest cottage. These plans can be found online or in. Redbay cottage was the inspiration for our popular crow’s nest cottage and bay island plans, featuring a modest size and reverse. An unusual shape, a triangular dining room, a crows nest and a vaulted shop area make this very special home plan unique. There. House Plans With A Crows Nest.
     
    
        From siouxcityjournal.com 
                    Enter into the Crow's Nest Home and Garden House Plans With A Crows Nest  Coastal house plans with crows nests are a popular choice for those looking to build a home with stunning views and a unique. There are a number of different beach house plans available that include a crow's nest. These plans can be found online or in. An unusual shape, a triangular dining room, a crows nest and a vaulted shop. House Plans With A Crows Nest.
     
    
        From www.pinterest.com 
                    Gallery of The Crow’s Nest / BCV Architects 24 House Plans With A Crows Nest  The cupola, and its balcony is. There are a number of different beach house plans available that include a crow's nest. Coastal house plans with crows nests have become increasingly popular for their unique aesthetic and functional benefits. These plans can be found online or in. Redbay cottage was the inspiration for our popular crow’s nest cottage and bay island. House Plans With A Crows Nest.
     
    
        From www.pinterest.com.au 
                    Crows nest Beach style house plans, Rooftop patio design, Colonial house exteriors House Plans With A Crows Nest  An unusual shape, a triangular dining room, a crows nest and a vaulted shop area make this very special home plan unique. Bay island derived from our crow’s nest cottage. These plans can be found online or in. There are a number of different beach house plans available that include a crow's nest. The open and view oriented plan has. House Plans With A Crows Nest.
     
    
        From senaterace2012.com 
                    Beach House Plans Crows Nest Home Deco Home Plans & Blueprints 103243 House Plans With A Crows Nest  Coastal house plans with crows nests have become increasingly popular for their unique aesthetic and functional benefits. An unusual shape, a triangular dining room, a crows nest and a vaulted shop area make this very special home plan unique. Redbay cottage was the inspiration for our popular crow’s nest cottage and bay island plans, featuring a modest size and reverse.. House Plans With A Crows Nest.
     
    
        From www.architecturaldesigns.com 
                    Unique Design with Crows Nest 69479AM Architectural Designs House Plans House Plans With A Crows Nest  The cupola, and its balcony is. These plans can be found online or in. There are a number of different beach house plans available that include a crow's nest. Coastal house plans with crows nests are a popular choice for those looking to build a home with stunning views and a unique. An unusual shape, a triangular dining room, a. House Plans With A Crows Nest.
     
    
        From sdchouseplans.com 
                    Crow's Nest Cottage SDC House Plans House Plans With A Crows Nest  Redbay cottage was the inspiration for our popular crow’s nest cottage and bay island plans, featuring a modest size and reverse. The cupola, and its balcony is. These plans can be found online or in. An unusual shape, a triangular dining room, a crows nest and a vaulted shop area make this very special home plan unique. Coastal house plans. House Plans With A Crows Nest.
     
    
        From www.pinterest.com 
                    crow's nest on top of house Google Search Crow's nest, Unique house plans, Cabin House Plans With A Crows Nest  These plans can be found online or in. An unusual shape, a triangular dining room, a crows nest and a vaulted shop area make this very special home plan unique. Bay island derived from our crow’s nest cottage. There are a number of different beach house plans available that include a crow's nest. Redbay cottage was the inspiration for our. House Plans With A Crows Nest.
     
    
        From www.architecturaldesigns.com 
                    Coastal Contemporary Beach House Plan with Crow's Nest 33211ZR Architectural Designs House House Plans With A Crows Nest  These plans can be found online or in. The open and view oriented plan has ample outdoor living space and features a coastal contemporary exterior. Coastal house plans with crows nests have become increasingly popular for their unique aesthetic and functional benefits. Coastal house plans with crows nests are a popular choice for those looking to build a home with. House Plans With A Crows Nest.
     
    
        From www.architecturaldesigns.com 
                    Unique Design with Crows Nest 69479AM Architectural Designs House Plans House Plans With A Crows Nest  An unusual shape, a triangular dining room, a crows nest and a vaulted shop area make this very special home plan unique. The open and view oriented plan has ample outdoor living space and features a coastal contemporary exterior. Coastal house plans with crows nests are a popular choice for those looking to build a home with stunning views and. House Plans With A Crows Nest.
     
    
        From www.houzz.com 
                    Crows Nest Houzz House Plans With A Crows Nest  Coastal house plans with crows nests are a popular choice for those looking to build a home with stunning views and a unique. An unusual shape, a triangular dining room, a crows nest and a vaulted shop area make this very special home plan unique. The open and view oriented plan has ample outdoor living space and features a coastal. House Plans With A Crows Nest.
     
    
        From sketchfab.com 
                    Crows Nest Cottage 3D model by SDC House Plans [84d51ed] Sketchfab House Plans With A Crows Nest  Redbay cottage was the inspiration for our popular crow’s nest cottage and bay island plans, featuring a modest size and reverse. These plans can be found online or in. The cupola, and its balcony is. Coastal house plans with crows nests are a popular choice for those looking to build a home with stunning views and a unique. Coastal house. House Plans With A Crows Nest.
     
    
        From www.architecturaldesigns.com 
                    Unique Design with Crows Nest 69479AM Architectural Designs House Plans House Plans With A Crows Nest  Redbay cottage was the inspiration for our popular crow’s nest cottage and bay island plans, featuring a modest size and reverse. Coastal house plans with crows nests have become increasingly popular for their unique aesthetic and functional benefits. The open and view oriented plan has ample outdoor living space and features a coastal contemporary exterior. Bay island derived from our. House Plans With A Crows Nest.
     
    
        From deltacoves.com 
                    Plan 7 Crow's Nest Options Delta Coves House Plans With A Crows Nest  Coastal house plans with crows nests have become increasingly popular for their unique aesthetic and functional benefits. The open and view oriented plan has ample outdoor living space and features a coastal contemporary exterior. There are a number of different beach house plans available that include a crow's nest. Coastal house plans with crows nests are a popular choice for. House Plans With A Crows Nest.
     
    
        From www.belleproperty.com 
                    85 West Street, Crows Nest NSW 2065 House Plans With A Crows Nest  There are a number of different beach house plans available that include a crow's nest. The cupola, and its balcony is. Coastal house plans with crows nests have become increasingly popular for their unique aesthetic and functional benefits. Coastal house plans with crows nests are a popular choice for those looking to build a home with stunning views and a. House Plans With A Crows Nest.