Washington Dor Address . The following list provides addresses to various sections within the department of revenue. General department of revenue address: Find a sales and use tax rate. The revenue unit of the revenue, bankruptcy and collections division is. Our telephone information center is available to answer your calls monday to friday from 8:00 a.m. Look through the list to ensure your form or letter. Description of program or service certification of utility values to counties. Washington state department of revenue taxpayer account administration po box. Check if you have a secure access washington (saw) user id. Use this address list to ensure your form or letter gets to the right place. Log in to my dor. Get or renew a license.
from www.dochub.com
Get or renew a license. Check if you have a secure access washington (saw) user id. Look through the list to ensure your form or letter. Washington state department of revenue taxpayer account administration po box. Find a sales and use tax rate. General department of revenue address: Our telephone information center is available to answer your calls monday to friday from 8:00 a.m. Log in to my dor. Description of program or service certification of utility values to counties. The following list provides addresses to various sections within the department of revenue.
Dor wa Fill out & sign online DocHub
Washington Dor Address General department of revenue address: The following list provides addresses to various sections within the department of revenue. Get or renew a license. Use this address list to ensure your form or letter gets to the right place. General department of revenue address: Check if you have a secure access washington (saw) user id. Our telephone information center is available to answer your calls monday to friday from 8:00 a.m. Log in to my dor. Washington state department of revenue taxpayer account administration po box. Description of program or service certification of utility values to counties. Find a sales and use tax rate. Look through the list to ensure your form or letter. The revenue unit of the revenue, bankruptcy and collections division is.
From www.youtube.com
Washington DOR Excise Tax Policy Change YouTube Washington Dor Address Description of program or service certification of utility values to counties. The following list provides addresses to various sections within the department of revenue. Check if you have a secure access washington (saw) user id. Get or renew a license. Find a sales and use tax rate. Our telephone information center is available to answer your calls monday to friday. Washington Dor Address.
From www.zrivo.com
How To Apply For A Washington Reseller Permit? Washington Dor Address Our telephone information center is available to answer your calls monday to friday from 8:00 a.m. Check if you have a secure access washington (saw) user id. Look through the list to ensure your form or letter. Description of program or service certification of utility values to counties. Get or renew a license. The revenue unit of the revenue, bankruptcy. Washington Dor Address.
From www.signnow.com
Bls Dor Wa Dor Fill Out and Sign Printable PDF Template signNow Washington Dor Address Check if you have a secure access washington (saw) user id. Our telephone information center is available to answer your calls monday to friday from 8:00 a.m. Get or renew a license. Use this address list to ensure your form or letter gets to the right place. General department of revenue address: Washington state department of revenue taxpayer account administration. Washington Dor Address.
From www.uslegalforms.com
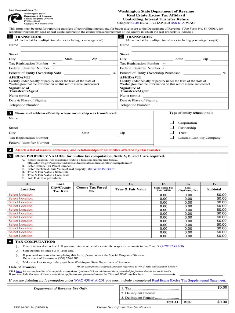
WA DoR 840001B 2012 Fill out Tax Template Online US Legal Forms Washington Dor Address Washington state department of revenue taxpayer account administration po box. Find a sales and use tax rate. Description of program or service certification of utility values to counties. The following list provides addresses to various sections within the department of revenue. The revenue unit of the revenue, bankruptcy and collections division is. General department of revenue address: Check if you. Washington Dor Address.
From us.knavcpa.com
Traversing Washington DOR's Guidelines on Taxability Washington Dor Address General department of revenue address: Washington state department of revenue taxpayer account administration po box. Log in to my dor. Look through the list to ensure your form or letter. The revenue unit of the revenue, bankruptcy and collections division is. Get or renew a license. Check if you have a secure access washington (saw) user id. Find a sales. Washington Dor Address.
From evergreensmallbusiness.com
Washington Small Business Payroll Setup Tips Evergreen Small Business Washington Dor Address Use this address list to ensure your form or letter gets to the right place. The revenue unit of the revenue, bankruptcy and collections division is. Washington state department of revenue taxpayer account administration po box. Log in to my dor. Get or renew a license. Check if you have a secure access washington (saw) user id. Look through the. Washington Dor Address.
From dor.wa.gov
Customers with multiple businesses Washington Department of Revenue Washington Dor Address Log in to my dor. Check if you have a secure access washington (saw) user id. General department of revenue address: Use this address list to ensure your form or letter gets to the right place. Description of program or service certification of utility values to counties. Washington state department of revenue taxpayer account administration po box. Look through the. Washington Dor Address.
From www.pdffiller.com
Fillable Online dor wa dor.wa.govsitesdefaultMAIL TO Washington State Washington Dor Address Washington state department of revenue taxpayer account administration po box. Check if you have a secure access washington (saw) user id. Find a sales and use tax rate. Description of program or service certification of utility values to counties. Get or renew a license. Log in to my dor. The following list provides addresses to various sections within the department. Washington Dor Address.
From dor.wa.gov
Take a peek at the My DOR upgrade Washington Department of Revenue Washington Dor Address Our telephone information center is available to answer your calls monday to friday from 8:00 a.m. Log in to my dor. Check if you have a secure access washington (saw) user id. The revenue unit of the revenue, bankruptcy and collections division is. Find a sales and use tax rate. General department of revenue address: The following list provides addresses. Washington Dor Address.
From present5.com
Washington Tax Law and Cloud Computing Caleb Allen Washington Dor Address Washington state department of revenue taxpayer account administration po box. The following list provides addresses to various sections within the department of revenue. Look through the list to ensure your form or letter. Our telephone information center is available to answer your calls monday to friday from 8:00 a.m. General department of revenue address: Use this address list to ensure. Washington Dor Address.
From www.pdffiller.com
64 0002 Washington Department of Revenue propertytax dor wa Doc Washington Dor Address Log in to my dor. Washington state department of revenue taxpayer account administration po box. Get or renew a license. Description of program or service certification of utility values to counties. The following list provides addresses to various sections within the department of revenue. The revenue unit of the revenue, bankruptcy and collections division is. General department of revenue address:. Washington Dor Address.
From dor.wa.gov
Take a peek at the My DOR upgrade Washington Department of Revenue Washington Dor Address Description of program or service certification of utility values to counties. General department of revenue address: Washington state department of revenue taxpayer account administration po box. Our telephone information center is available to answer your calls monday to friday from 8:00 a.m. The following list provides addresses to various sections within the department of revenue. Get or renew a license.. Washington Dor Address.
From www.pdffiller.com
Fillable Online dor wa dor.wa.gov sites defaultMOBILE HOME REAL STATE Washington Dor Address Log in to my dor. The revenue unit of the revenue, bankruptcy and collections division is. General department of revenue address: Use this address list to ensure your form or letter gets to the right place. Description of program or service certification of utility values to counties. Our telephone information center is available to answer your calls monday to friday. Washington Dor Address.
From www.uslegalforms.com
WA DoR 27 0050 20212022 Fill and Sign Printable Template Online US Washington Dor Address The following list provides addresses to various sections within the department of revenue. Find a sales and use tax rate. Washington state department of revenue taxpayer account administration po box. Description of program or service certification of utility values to counties. Our telephone information center is available to answer your calls monday to friday from 8:00 a.m. Check if you. Washington Dor Address.
From www.pdffiller.com
CURRENT USE ASSESSMENT ADDITIONAL TAX STATEMENT Washington dor wa Washington Dor Address General department of revenue address: Get or renew a license. Check if you have a secure access washington (saw) user id. Washington state department of revenue taxpayer account administration po box. The revenue unit of the revenue, bankruptcy and collections division is. The following list provides addresses to various sections within the department of revenue. Description of program or service. Washington Dor Address.
From www.pdffiller.com
Fillable Online dor wa Form REV50 0006 "Settlement Offer" Washington Washington Dor Address General department of revenue address: The revenue unit of the revenue, bankruptcy and collections division is. Use this address list to ensure your form or letter gets to the right place. Washington state department of revenue taxpayer account administration po box. Log in to my dor. Check if you have a secure access washington (saw) user id. Look through the. Washington Dor Address.
From www.alamy.com
Irs building dc hires stock photography and images Alamy Washington Dor Address The revenue unit of the revenue, bankruptcy and collections division is. Find a sales and use tax rate. Our telephone information center is available to answer your calls monday to friday from 8:00 a.m. Description of program or service certification of utility values to counties. Get or renew a license. Washington state department of revenue taxpayer account administration po box.. Washington Dor Address.
From www.dochub.com
Dor wa Fill out & sign online DocHub Washington Dor Address Use this address list to ensure your form or letter gets to the right place. Washington state department of revenue taxpayer account administration po box. Get or renew a license. Check if you have a secure access washington (saw) user id. Log in to my dor. Look through the list to ensure your form or letter. Find a sales and. Washington Dor Address.
From www.dochub.com
Fillable Online dor wa State of Washington Scan Review Fill out & sign Washington Dor Address Get or renew a license. Washington state department of revenue taxpayer account administration po box. Use this address list to ensure your form or letter gets to the right place. Look through the list to ensure your form or letter. Find a sales and use tax rate. Our telephone information center is available to answer your calls monday to friday. Washington Dor Address.
From www.dochub.com
Wa dor health Fill out & sign online DocHub Washington Dor Address Our telephone information center is available to answer your calls monday to friday from 8:00 a.m. Description of program or service certification of utility values to counties. Get or renew a license. Washington state department of revenue taxpayer account administration po box. Check if you have a secure access washington (saw) user id. General department of revenue address: The following. Washington Dor Address.
From login4all.com
dor.wa.gov/mydor Official Login Page [100 Verified] Washington Dor Address Find a sales and use tax rate. General department of revenue address: Washington state department of revenue taxpayer account administration po box. Look through the list to ensure your form or letter. Log in to my dor. The following list provides addresses to various sections within the department of revenue. The revenue unit of the revenue, bankruptcy and collections division. Washington Dor Address.
From bls.dor.wa.gov
Home Washington Department of Revenue Washington Dor Address The following list provides addresses to various sections within the department of revenue. Our telephone information center is available to answer your calls monday to friday from 8:00 a.m. Get or renew a license. Find a sales and use tax rate. Washington state department of revenue taxpayer account administration po box. The revenue unit of the revenue, bankruptcy and collections. Washington Dor Address.
From blspartnerpost.blogspot.com
BLS Partner Post Business Licensing Service (BLS) website now merged Washington Dor Address Look through the list to ensure your form or letter. Find a sales and use tax rate. Check if you have a secure access washington (saw) user id. Use this address list to ensure your form or letter gets to the right place. Log in to my dor. General department of revenue address: Our telephone information center is available to. Washington Dor Address.
From strel.com
Setting up your WA Dept of Revenue Account Washington Dor Address Get or renew a license. Description of program or service certification of utility values to counties. Look through the list to ensure your form or letter. The following list provides addresses to various sections within the department of revenue. Use this address list to ensure your form or letter gets to the right place. Log in to my dor. Our. Washington Dor Address.
From www.pinterest.com
washington state dor special notice on reporting consignment sales Washington Dor Address Washington state department of revenue taxpayer account administration po box. Check if you have a secure access washington (saw) user id. Description of program or service certification of utility values to counties. The revenue unit of the revenue, bankruptcy and collections division is. The following list provides addresses to various sections within the department of revenue. Find a sales and. Washington Dor Address.
From www.pdffiller.com
Fillable Online dor wa dor.wa.govsitesdefaultCity Addendum Washington Washington Dor Address Use this address list to ensure your form or letter gets to the right place. Description of program or service certification of utility values to counties. General department of revenue address: Get or renew a license. The revenue unit of the revenue, bankruptcy and collections division is. Log in to my dor. Look through the list to ensure your form. Washington Dor Address.
From www.wsjhs.org
Washington State Jewish Historical Society Washington Dor Address Find a sales and use tax rate. The following list provides addresses to various sections within the department of revenue. Log in to my dor. Use this address list to ensure your form or letter gets to the right place. Description of program or service certification of utility values to counties. Washington state department of revenue taxpayer account administration po. Washington Dor Address.
From rtn.one
Dor Wic Federal Credit Union search routing numbers, addresses and Washington Dor Address The following list provides addresses to various sections within the department of revenue. The revenue unit of the revenue, bankruptcy and collections division is. Find a sales and use tax rate. Get or renew a license. Log in to my dor. Our telephone information center is available to answer your calls monday to friday from 8:00 a.m. Look through the. Washington Dor Address.
From www.mossadams.com
Washington State Covid Relief Washington Dor Address Our telephone information center is available to answer your calls monday to friday from 8:00 a.m. Washington state department of revenue taxpayer account administration po box. Log in to my dor. Look through the list to ensure your form or letter. The revenue unit of the revenue, bankruptcy and collections division is. Find a sales and use tax rate. Use. Washington Dor Address.
From www.delapcpa.com
Washington DOR Issues Tax Information on Custom Construction Delap Washington Dor Address Find a sales and use tax rate. Our telephone information center is available to answer your calls monday to friday from 8:00 a.m. General department of revenue address: Check if you have a secure access washington (saw) user id. Log in to my dor. Look through the list to ensure your form or letter. The revenue unit of the revenue,. Washington Dor Address.
From www.cha.wa.gov
A message from our friends at the Department of Revenue (DOR Washington Dor Address Find a sales and use tax rate. Washington state department of revenue taxpayer account administration po box. The following list provides addresses to various sections within the department of revenue. Our telephone information center is available to answer your calls monday to friday from 8:00 a.m. General department of revenue address: Use this address list to ensure your form or. Washington Dor Address.
From ascendus.legal
How Washington's New Workforce Education Surcharge Applies To Law Firms Washington Dor Address General department of revenue address: Washington state department of revenue taxpayer account administration po box. Look through the list to ensure your form or letter. Find a sales and use tax rate. Description of program or service certification of utility values to counties. The following list provides addresses to various sections within the department of revenue. Use this address list. Washington Dor Address.
From www.uslegalforms.com
WA DoR Combined Excise Tax Return 2012 Fill out Tax Template Online Washington Dor Address Use this address list to ensure your form or letter gets to the right place. Log in to my dor. The following list provides addresses to various sections within the department of revenue. Check if you have a secure access washington (saw) user id. General department of revenue address: Washington state department of revenue taxpayer account administration po box. Description. Washington Dor Address.
From news.ararental.org
New Washington state heavy equipment rental tax policies in effect Washington Dor Address Check if you have a secure access washington (saw) user id. Log in to my dor. Use this address list to ensure your form or letter gets to the right place. Find a sales and use tax rate. Description of program or service certification of utility values to counties. Look through the list to ensure your form or letter. The. Washington Dor Address.