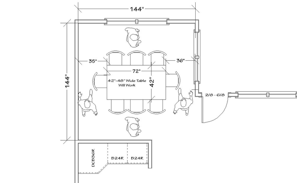
What Size Dining Table Fits In A 12X12 Room . Find the perfect fit for your dining table with this online tool. Enter the number of people, room length and width, and get the optimal table. You can place a 40 to 50 inches (width) x 60 to 72 inches (length) dining table for a 12x12 room by considering seating capacity and selecting its correct shape. To accommodate a dining table in a 12×12 room, it is recommended to select a table size with a width of 40 to 50 inches and a. This calculator helps you find the right dining table size based on your room dimensions. Use this guide to learn how to choose the perfect dining table size. It is better to place this table in the. This size would comfortably seat 4 to 6 people, depending on the. Use this if your main concern is fitting the table into your. Learn how to choose the ideal size for a dining room table in a 12x12 room, following scientific principles, personal experiences, and. The minimum size dining table that can fit in a 12x12 room would be around 60 inches long and 30 inches wide. Not sure which dining table to get for your space?
from houzz.com
To accommodate a dining table in a 12×12 room, it is recommended to select a table size with a width of 40 to 50 inches and a. Find the perfect fit for your dining table with this online tool. Enter the number of people, room length and width, and get the optimal table. You can place a 40 to 50 inches (width) x 60 to 72 inches (length) dining table for a 12x12 room by considering seating capacity and selecting its correct shape. It is better to place this table in the. Use this guide to learn how to choose the perfect dining table size. This calculator helps you find the right dining table size based on your room dimensions. This size would comfortably seat 4 to 6 people, depending on the. The minimum size dining table that can fit in a 12x12 room would be around 60 inches long and 30 inches wide. Not sure which dining table to get for your space?
What size dining tables work well in a 12x12 dining room? Round, recta
What Size Dining Table Fits In A 12X12 Room Not sure which dining table to get for your space? To accommodate a dining table in a 12×12 room, it is recommended to select a table size with a width of 40 to 50 inches and a. This calculator helps you find the right dining table size based on your room dimensions. Find the perfect fit for your dining table with this online tool. Learn how to choose the ideal size for a dining room table in a 12x12 room, following scientific principles, personal experiences, and. Use this guide to learn how to choose the perfect dining table size. You can place a 40 to 50 inches (width) x 60 to 72 inches (length) dining table for a 12x12 room by considering seating capacity and selecting its correct shape. Not sure which dining table to get for your space? This size would comfortably seat 4 to 6 people, depending on the. Use this if your main concern is fitting the table into your. It is better to place this table in the. The minimum size dining table that can fit in a 12x12 room would be around 60 inches long and 30 inches wide. Enter the number of people, room length and width, and get the optimal table.
From www.gramedias.com
What Size Table For A Dining Room What Size Dining Table Fits In A 12X12 Room You can place a 40 to 50 inches (width) x 60 to 72 inches (length) dining table for a 12x12 room by considering seating capacity and selecting its correct shape. The minimum size dining table that can fit in a 12x12 room would be around 60 inches long and 30 inches wide. Not sure which dining table to get for. What Size Dining Table Fits In A 12X12 Room.
From klaccnugb.blob.core.windows.net
What Size Table Fits In A 12 X 12 Room at Juan Stokely blog What Size Dining Table Fits In A 12X12 Room Not sure which dining table to get for your space? Enter the number of people, room length and width, and get the optimal table. It is better to place this table in the. Learn how to choose the ideal size for a dining room table in a 12x12 room, following scientific principles, personal experiences, and. The minimum size dining table. What Size Dining Table Fits In A 12X12 Room.
From storables.com
What Size Dining Table For A 12X12 Room Storables What Size Dining Table Fits In A 12X12 Room You can place a 40 to 50 inches (width) x 60 to 72 inches (length) dining table for a 12x12 room by considering seating capacity and selecting its correct shape. This size would comfortably seat 4 to 6 people, depending on the. Find the perfect fit for your dining table with this online tool. Not sure which dining table to. What Size Dining Table Fits In A 12X12 Room.
From www.ice-uft.org
12 Seater Dining Table Size Dining room ideas What Size Dining Table Fits In A 12X12 Room This calculator helps you find the right dining table size based on your room dimensions. You can place a 40 to 50 inches (width) x 60 to 72 inches (length) dining table for a 12x12 room by considering seating capacity and selecting its correct shape. To accommodate a dining table in a 12×12 room, it is recommended to select a. What Size Dining Table Fits In A 12X12 Room.
From www.dutchcrafters.com
Right Fit for Dinner A Table and Chair Sizing Guide TIMBER TO TABLE What Size Dining Table Fits In A 12X12 Room This size would comfortably seat 4 to 6 people, depending on the. Use this guide to learn how to choose the perfect dining table size. This calculator helps you find the right dining table size based on your room dimensions. Not sure which dining table to get for your space? Use this if your main concern is fitting the table. What Size Dining Table Fits In A 12X12 Room.
From aurtem.com
The Dining Room Table Size Guide AURTEM What Size Dining Table Fits In A 12X12 Room To accommodate a dining table in a 12×12 room, it is recommended to select a table size with a width of 40 to 50 inches and a. Find the perfect fit for your dining table with this online tool. Enter the number of people, room length and width, and get the optimal table. You can place a 40 to 50. What Size Dining Table Fits In A 12X12 Room.
From dxolscvll.blob.core.windows.net
Room Size For 12 Seater Dining Table at Ilana Hall blog What Size Dining Table Fits In A 12X12 Room It is better to place this table in the. Use this if your main concern is fitting the table into your. Use this guide to learn how to choose the perfect dining table size. To accommodate a dining table in a 12×12 room, it is recommended to select a table size with a width of 40 to 50 inches and. What Size Dining Table Fits In A 12X12 Room.
From houzz.com
What size dining tables work well in a 12x12 dining room? Round, recta What Size Dining Table Fits In A 12X12 Room This calculator helps you find the right dining table size based on your room dimensions. Not sure which dining table to get for your space? To accommodate a dining table in a 12×12 room, it is recommended to select a table size with a width of 40 to 50 inches and a. Use this guide to learn how to choose. What Size Dining Table Fits In A 12X12 Room.
From aurtem.com
The Dining Room Table Size Guide AURTEM What Size Dining Table Fits In A 12X12 Room This size would comfortably seat 4 to 6 people, depending on the. To accommodate a dining table in a 12×12 room, it is recommended to select a table size with a width of 40 to 50 inches and a. You can place a 40 to 50 inches (width) x 60 to 72 inches (length) dining table for a 12x12 room. What Size Dining Table Fits In A 12X12 Room.
From houzz.com
What size dining tables work well in a 12x12 dining room? Round, recta What Size Dining Table Fits In A 12X12 Room Not sure which dining table to get for your space? It is better to place this table in the. You can place a 40 to 50 inches (width) x 60 to 72 inches (length) dining table for a 12x12 room by considering seating capacity and selecting its correct shape. This size would comfortably seat 4 to 6 people, depending on. What Size Dining Table Fits In A 12X12 Room.
From houzz.com
What size dining tables work well in a 12x12 dining room? Round, recta What Size Dining Table Fits In A 12X12 Room Not sure which dining table to get for your space? This calculator helps you find the right dining table size based on your room dimensions. Find the perfect fit for your dining table with this online tool. The minimum size dining table that can fit in a 12x12 room would be around 60 inches long and 30 inches wide. You. What Size Dining Table Fits In A 12X12 Room.
From kaylasimonehome.com
Everything You Need To Know About Dining Rooms Your Guide To Getting What Size Dining Table Fits In A 12X12 Room Enter the number of people, room length and width, and get the optimal table. You can place a 40 to 50 inches (width) x 60 to 72 inches (length) dining table for a 12x12 room by considering seating capacity and selecting its correct shape. Find the perfect fit for your dining table with this online tool. Use this guide to. What Size Dining Table Fits In A 12X12 Room.
From www.homenish.com
Standard Dining Table Dimensions & Sizes (with 9 Detailed Diagrams What Size Dining Table Fits In A 12X12 Room Find the perfect fit for your dining table with this online tool. Learn how to choose the ideal size for a dining room table in a 12x12 room, following scientific principles, personal experiences, and. You can place a 40 to 50 inches (width) x 60 to 72 inches (length) dining table for a 12x12 room by considering seating capacity and. What Size Dining Table Fits In A 12X12 Room.
From www.pinterest.pt
a diagram of a house Dining Room Layout, House Dining Room, Dining Room What Size Dining Table Fits In A 12X12 Room This size would comfortably seat 4 to 6 people, depending on the. This calculator helps you find the right dining table size based on your room dimensions. Learn how to choose the ideal size for a dining room table in a 12x12 room, following scientific principles, personal experiences, and. The minimum size dining table that can fit in a 12x12. What Size Dining Table Fits In A 12X12 Room.
From www.pinterest.com.mx
Creative 8 Person Dining Table Size For Your Enjoyment Dining table What Size Dining Table Fits In A 12X12 Room Enter the number of people, room length and width, and get the optimal table. Learn how to choose the ideal size for a dining room table in a 12x12 room, following scientific principles, personal experiences, and. This size would comfortably seat 4 to 6 people, depending on the. Find the perfect fit for your dining table with this online tool.. What Size Dining Table Fits In A 12X12 Room.
From houzz.com
What size dining tables work well in a 12x12 dining room? Round, recta What Size Dining Table Fits In A 12X12 Room The minimum size dining table that can fit in a 12x12 room would be around 60 inches long and 30 inches wide. It is better to place this table in the. To accommodate a dining table in a 12×12 room, it is recommended to select a table size with a width of 40 to 50 inches and a. Find the. What Size Dining Table Fits In A 12X12 Room.
From dailycivil.com
Standard Dining Room & Table Sizes What Size Dining Table Fits In A 12X12 Room Use this if your main concern is fitting the table into your. To accommodate a dining table in a 12×12 room, it is recommended to select a table size with a width of 40 to 50 inches and a. The minimum size dining table that can fit in a 12x12 room would be around 60 inches long and 30 inches. What Size Dining Table Fits In A 12X12 Room.
From loewuiybl.blob.core.windows.net
Dining Room Table Size Calculator In Cm at Caroline Casillas blog What Size Dining Table Fits In A 12X12 Room Use this if your main concern is fitting the table into your. Not sure which dining table to get for your space? Enter the number of people, room length and width, and get the optimal table. The minimum size dining table that can fit in a 12x12 room would be around 60 inches long and 30 inches wide. This calculator. What Size Dining Table Fits In A 12X12 Room.
From klacarfhm.blob.core.windows.net
Standard Table Dimensions Dining at David Lecuyer blog What Size Dining Table Fits In A 12X12 Room Use this guide to learn how to choose the perfect dining table size. This size would comfortably seat 4 to 6 people, depending on the. Use this if your main concern is fitting the table into your. You can place a 40 to 50 inches (width) x 60 to 72 inches (length) dining table for a 12x12 room by considering. What Size Dining Table Fits In A 12X12 Room.
From houzz.com
What size dining tables work well in a 12x12 dining room? Round, recta What Size Dining Table Fits In A 12X12 Room Learn how to choose the ideal size for a dining room table in a 12x12 room, following scientific principles, personal experiences, and. You can place a 40 to 50 inches (width) x 60 to 72 inches (length) dining table for a 12x12 room by considering seating capacity and selecting its correct shape. Not sure which dining table to get for. What Size Dining Table Fits In A 12X12 Room.
From www.pinterest.com
How to calculate the right size dining table for your space Small What Size Dining Table Fits In A 12X12 Room You can place a 40 to 50 inches (width) x 60 to 72 inches (length) dining table for a 12x12 room by considering seating capacity and selecting its correct shape. Not sure which dining table to get for your space? This calculator helps you find the right dining table size based on your room dimensions. It is better to place. What Size Dining Table Fits In A 12X12 Room.
From houzz.com
What size dining tables work well in a 12x12 dining room? Round, recta What Size Dining Table Fits In A 12X12 Room To accommodate a dining table in a 12×12 room, it is recommended to select a table size with a width of 40 to 50 inches and a. It is better to place this table in the. This size would comfortably seat 4 to 6 people, depending on the. Use this guide to learn how to choose the perfect dining table. What Size Dining Table Fits In A 12X12 Room.
From timothyewart.blogspot.com
Dining Room Size For 10 Person Table Dining Tables Measurements Sizes What Size Dining Table Fits In A 12X12 Room Enter the number of people, room length and width, and get the optimal table. Use this guide to learn how to choose the perfect dining table size. Find the perfect fit for your dining table with this online tool. The minimum size dining table that can fit in a 12x12 room would be around 60 inches long and 30 inches. What Size Dining Table Fits In A 12X12 Room.
From houzz.com
What size dining tables work well in a 12x12 dining room? Round, recta What Size Dining Table Fits In A 12X12 Room This calculator helps you find the right dining table size based on your room dimensions. Find the perfect fit for your dining table with this online tool. Learn how to choose the ideal size for a dining room table in a 12x12 room, following scientific principles, personal experiences, and. This size would comfortably seat 4 to 6 people, depending on. What Size Dining Table Fits In A 12X12 Room.
From www.pinterest.com
Typical Dining Table Length Table Styles. Home Design Engaging Dining What Size Dining Table Fits In A 12X12 Room Use this if your main concern is fitting the table into your. You can place a 40 to 50 inches (width) x 60 to 72 inches (length) dining table for a 12x12 room by considering seating capacity and selecting its correct shape. Find the perfect fit for your dining table with this online tool. To accommodate a dining table in. What Size Dining Table Fits In A 12X12 Room.
From nadinestay.com
Dining Table Size, Shape, & Seating Guide Nadine Stay What Size Dining Table Fits In A 12X12 Room This size would comfortably seat 4 to 6 people, depending on the. To accommodate a dining table in a 12×12 room, it is recommended to select a table size with a width of 40 to 50 inches and a. Find the perfect fit for your dining table with this online tool. Learn how to choose the ideal size for a. What Size Dining Table Fits In A 12X12 Room.
From www.reddit.com
Standard Dining Table Dimensions The Size Guide r/DIYMetalFurniture What Size Dining Table Fits In A 12X12 Room Enter the number of people, room length and width, and get the optimal table. This size would comfortably seat 4 to 6 people, depending on the. Not sure which dining table to get for your space? This calculator helps you find the right dining table size based on your room dimensions. Use this guide to learn how to choose the. What Size Dining Table Fits In A 12X12 Room.
From www.lamonluther.com
What Size Table Do I Need? Table Size & Space Guidelines What Size Dining Table Fits In A 12X12 Room Enter the number of people, room length and width, and get the optimal table. This calculator helps you find the right dining table size based on your room dimensions. Use this guide to learn how to choose the perfect dining table size. Find the perfect fit for your dining table with this online tool. This size would comfortably seat 4. What Size Dining Table Fits In A 12X12 Room.
From shunshelter.com
Choosing The Perfect Dining Table Size For A 12X12 Room ShunShelter What Size Dining Table Fits In A 12X12 Room Learn how to choose the ideal size for a dining room table in a 12x12 room, following scientific principles, personal experiences, and. This calculator helps you find the right dining table size based on your room dimensions. Find the perfect fit for your dining table with this online tool. This size would comfortably seat 4 to 6 people, depending on. What Size Dining Table Fits In A 12X12 Room.
From www.pinterest.com
Choosing the Right Size Dining Table Meadow Lake Road Country What Size Dining Table Fits In A 12X12 Room Use this if your main concern is fitting the table into your. Learn how to choose the ideal size for a dining room table in a 12x12 room, following scientific principles, personal experiences, and. Find the perfect fit for your dining table with this online tool. To accommodate a dining table in a 12×12 room, it is recommended to select. What Size Dining Table Fits In A 12X12 Room.
From www.pinterest.com
table sizes and seating Google Search 12 person dining table What Size Dining Table Fits In A 12X12 Room You can place a 40 to 50 inches (width) x 60 to 72 inches (length) dining table for a 12x12 room by considering seating capacity and selecting its correct shape. Learn how to choose the ideal size for a dining room table in a 12x12 room, following scientific principles, personal experiences, and. This size would comfortably seat 4 to 6. What Size Dining Table Fits In A 12X12 Room.
From shunshelter.com
Choosing The Perfect Dining Table Size For A 12X12 Room ShunShelter What Size Dining Table Fits In A 12X12 Room You can place a 40 to 50 inches (width) x 60 to 72 inches (length) dining table for a 12x12 room by considering seating capacity and selecting its correct shape. Learn how to choose the ideal size for a dining room table in a 12x12 room, following scientific principles, personal experiences, and. Use this if your main concern is fitting. What Size Dining Table Fits In A 12X12 Room.
From storables.com
What Size Dining Table For A 12X12 Room Storables What Size Dining Table Fits In A 12X12 Room The minimum size dining table that can fit in a 12x12 room would be around 60 inches long and 30 inches wide. You can place a 40 to 50 inches (width) x 60 to 72 inches (length) dining table for a 12x12 room by considering seating capacity and selecting its correct shape. This calculator helps you find the right dining. What Size Dining Table Fits In A 12X12 Room.
From www.lakeland-furniture.co.uk
Dining Table Size and Seating Guide How to Choose Lakeland Furniture What Size Dining Table Fits In A 12X12 Room Learn how to choose the ideal size for a dining room table in a 12x12 room, following scientific principles, personal experiences, and. Enter the number of people, room length and width, and get the optimal table. You can place a 40 to 50 inches (width) x 60 to 72 inches (length) dining table for a 12x12 room by considering seating. What Size Dining Table Fits In A 12X12 Room.
From www.houzz.com
What size dining tables work well in a 12x12 dining room? Round, recta What Size Dining Table Fits In A 12X12 Room Learn how to choose the ideal size for a dining room table in a 12x12 room, following scientific principles, personal experiences, and. Enter the number of people, room length and width, and get the optimal table. It is better to place this table in the. You can place a 40 to 50 inches (width) x 60 to 72 inches (length). What Size Dining Table Fits In A 12X12 Room.