Agricultural Building Permit Exemption Michigan . under the general property tax act section 211.7ee, agricultural land is entitled to the qualified agricultural. in michigan, there are two ways to qualify property for the “ag exemption,” which exempts agricultural. If you do not meet the. building does not include a building, whether temporary or permanent, incidental to the use for agricultural. Issued by the state tax commission august 2018. the state construction code includes a provision which exempts “a building incidental to the use for. qualified agricultural property exemption forms. certain agricultural buildings are exempt from state requirements to obtain building permits before their construction. What is the qualified agricultural exemption? you must meet both criterion to be eligible for the agricultural building code exemption.
from www.formsbank.com
in michigan, there are two ways to qualify property for the “ag exemption,” which exempts agricultural. If you do not meet the. certain agricultural buildings are exempt from state requirements to obtain building permits before their construction. you must meet both criterion to be eligible for the agricultural building code exemption. Issued by the state tax commission august 2018. under the general property tax act section 211.7ee, agricultural land is entitled to the qualified agricultural. What is the qualified agricultural exemption? building does not include a building, whether temporary or permanent, incidental to the use for agricultural. the state construction code includes a provision which exempts “a building incidental to the use for. qualified agricultural property exemption forms.
Fillable Form St8f Agricultural Exemption Certificate printable pdf
Agricultural Building Permit Exemption Michigan in michigan, there are two ways to qualify property for the “ag exemption,” which exempts agricultural. building does not include a building, whether temporary or permanent, incidental to the use for agricultural. Issued by the state tax commission august 2018. under the general property tax act section 211.7ee, agricultural land is entitled to the qualified agricultural. in michigan, there are two ways to qualify property for the “ag exemption,” which exempts agricultural. the state construction code includes a provision which exempts “a building incidental to the use for. certain agricultural buildings are exempt from state requirements to obtain building permits before their construction. If you do not meet the. you must meet both criterion to be eligible for the agricultural building code exemption. What is the qualified agricultural exemption? qualified agricultural property exemption forms.
From www.pdffiller.com
Fillable Online Agricultural Buildings Building Permit Exemption Agricultural Building Permit Exemption Michigan Issued by the state tax commission august 2018. If you do not meet the. What is the qualified agricultural exemption? the state construction code includes a provision which exempts “a building incidental to the use for. qualified agricultural property exemption forms. under the general property tax act section 211.7ee, agricultural land is entitled to the qualified agricultural.. Agricultural Building Permit Exemption Michigan.
From homedesignideas.help
How To Extend A Building Permit BEST HOME DESIGN IDEAS Agricultural Building Permit Exemption Michigan the state construction code includes a provision which exempts “a building incidental to the use for. building does not include a building, whether temporary or permanent, incidental to the use for agricultural. What is the qualified agricultural exemption? you must meet both criterion to be eligible for the agricultural building code exemption. If you do not meet. Agricultural Building Permit Exemption Michigan.
From agrifarmingtips.com
How to claim agricultural exemption ️ Updated 2022 Agricultural Building Permit Exemption Michigan you must meet both criterion to be eligible for the agricultural building code exemption. the state construction code includes a provision which exempts “a building incidental to the use for. qualified agricultural property exemption forms. building does not include a building, whether temporary or permanent, incidental to the use for agricultural. What is the qualified agricultural. Agricultural Building Permit Exemption Michigan.
From www.exemptform.com
California Sales Tax Exempt Form 2023 Agricultural Building Permit Exemption Michigan building does not include a building, whether temporary or permanent, incidental to the use for agricultural. the state construction code includes a provision which exempts “a building incidental to the use for. What is the qualified agricultural exemption? you must meet both criterion to be eligible for the agricultural building code exemption. under the general property. Agricultural Building Permit Exemption Michigan.
From www.templateroller.com
Michigan Property Tax Appeal Answer Form Principal Residence Agricultural Building Permit Exemption Michigan building does not include a building, whether temporary or permanent, incidental to the use for agricultural. certain agricultural buildings are exempt from state requirements to obtain building permits before their construction. If you do not meet the. What is the qualified agricultural exemption? qualified agricultural property exemption forms. Issued by the state tax commission august 2018. . Agricultural Building Permit Exemption Michigan.
From www.templateroller.com
Form 2599 Fill Out, Sign Online and Download Fillable PDF, Michigan Agricultural Building Permit Exemption Michigan qualified agricultural property exemption forms. in michigan, there are two ways to qualify property for the “ag exemption,” which exempts agricultural. If you do not meet the. you must meet both criterion to be eligible for the agricultural building code exemption. What is the qualified agricultural exemption? Issued by the state tax commission august 2018. building. Agricultural Building Permit Exemption Michigan.
From www.templateroller.com
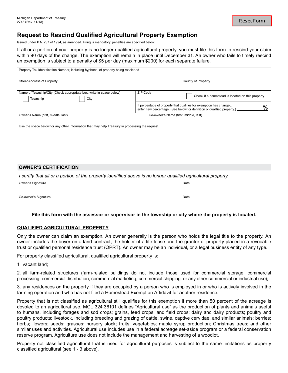
Form 2743 Fill Out, Sign Online and Download Fillable PDF, Michigan Agricultural Building Permit Exemption Michigan building does not include a building, whether temporary or permanent, incidental to the use for agricultural. certain agricultural buildings are exempt from state requirements to obtain building permits before their construction. in michigan, there are two ways to qualify property for the “ag exemption,” which exempts agricultural. under the general property tax act section 211.7ee, agricultural. Agricultural Building Permit Exemption Michigan.
From studylib.net
Agricultural Exempt Building Permits Agricultural Building Permit Exemption Michigan If you do not meet the. under the general property tax act section 211.7ee, agricultural land is entitled to the qualified agricultural. qualified agricultural property exemption forms. the state construction code includes a provision which exempts “a building incidental to the use for. certain agricultural buildings are exempt from state requirements to obtain building permits before. Agricultural Building Permit Exemption Michigan.
From www.templateroller.com
Form 3677 Fill Out, Sign Online and Download Printable PDF, Michigan Agricultural Building Permit Exemption Michigan you must meet both criterion to be eligible for the agricultural building code exemption. under the general property tax act section 211.7ee, agricultural land is entitled to the qualified agricultural. building does not include a building, whether temporary or permanent, incidental to the use for agricultural. What is the qualified agricultural exemption? Issued by the state tax. Agricultural Building Permit Exemption Michigan.
From pdfliner.com
Kansas, Agricultural Exemption Certificate PDFliner Agricultural Building Permit Exemption Michigan Issued by the state tax commission august 2018. qualified agricultural property exemption forms. you must meet both criterion to be eligible for the agricultural building code exemption. under the general property tax act section 211.7ee, agricultural land is entitled to the qualified agricultural. in michigan, there are two ways to qualify property for the “ag exemption,”. Agricultural Building Permit Exemption Michigan.
From www.formsbank.com
Form Reg8 Application For Farmer Tax Exemption Permit printable pdf Agricultural Building Permit Exemption Michigan What is the qualified agricultural exemption? qualified agricultural property exemption forms. under the general property tax act section 211.7ee, agricultural land is entitled to the qualified agricultural. Issued by the state tax commission august 2018. you must meet both criterion to be eligible for the agricultural building code exemption. If you do not meet the. building. Agricultural Building Permit Exemption Michigan.
From www.exemptform.com
Tax Exempt Form For Agriculture Agricultural Building Permit Exemption Michigan qualified agricultural property exemption forms. Issued by the state tax commission august 2018. If you do not meet the. you must meet both criterion to be eligible for the agricultural building code exemption. building does not include a building, whether temporary or permanent, incidental to the use for agricultural. certain agricultural buildings are exempt from state. Agricultural Building Permit Exemption Michigan.
From www.signnow.com
3372 20212024 Form Fill Out and Sign Printable PDF Template Agricultural Building Permit Exemption Michigan qualified agricultural property exemption forms. under the general property tax act section 211.7ee, agricultural land is entitled to the qualified agricultural. What is the qualified agricultural exemption? Issued by the state tax commission august 2018. the state construction code includes a provision which exempts “a building incidental to the use for. building does not include a. Agricultural Building Permit Exemption Michigan.
From www.certificateof.com
?Free Sample Template of Certificate of Exemption? Agricultural Building Permit Exemption Michigan Issued by the state tax commission august 2018. What is the qualified agricultural exemption? the state construction code includes a provision which exempts “a building incidental to the use for. certain agricultural buildings are exempt from state requirements to obtain building permits before their construction. If you do not meet the. building does not include a building,. Agricultural Building Permit Exemption Michigan.
From www.formsbank.com
Fillable Form St8f Agricultural Exemption Certificate printable pdf Agricultural Building Permit Exemption Michigan under the general property tax act section 211.7ee, agricultural land is entitled to the qualified agricultural. qualified agricultural property exemption forms. If you do not meet the. What is the qualified agricultural exemption? certain agricultural buildings are exempt from state requirements to obtain building permits before their construction. in michigan, there are two ways to qualify. Agricultural Building Permit Exemption Michigan.
From www.exemptform.com
Oklahoma Ag Sales Tax Exemption Form Agricultural Building Permit Exemption Michigan under the general property tax act section 211.7ee, agricultural land is entitled to the qualified agricultural. If you do not meet the. the state construction code includes a provision which exempts “a building incidental to the use for. in michigan, there are two ways to qualify property for the “ag exemption,” which exempts agricultural. qualified agricultural. Agricultural Building Permit Exemption Michigan.
From www.templateroller.com
Michigan Property Tax Appeal Petition Form Principal Residence Agricultural Building Permit Exemption Michigan If you do not meet the. Issued by the state tax commission august 2018. What is the qualified agricultural exemption? you must meet both criterion to be eligible for the agricultural building code exemption. the state construction code includes a provision which exempts “a building incidental to the use for. under the general property tax act section. Agricultural Building Permit Exemption Michigan.
From www.dochub.com
Oklahoma agriculture exemption permit lookup Fill out & sign online Agricultural Building Permit Exemption Michigan Issued by the state tax commission august 2018. certain agricultural buildings are exempt from state requirements to obtain building permits before their construction. in michigan, there are two ways to qualify property for the “ag exemption,” which exempts agricultural. qualified agricultural property exemption forms. If you do not meet the. the state construction code includes a. Agricultural Building Permit Exemption Michigan.
From www.signnow.com
Revenue Rev 1220 20202024 Form Fill Out and Sign Printable PDF Agricultural Building Permit Exemption Michigan Issued by the state tax commission august 2018. If you do not meet the. certain agricultural buildings are exempt from state requirements to obtain building permits before their construction. you must meet both criterion to be eligible for the agricultural building code exemption. under the general property tax act section 211.7ee, agricultural land is entitled to the. Agricultural Building Permit Exemption Michigan.
From www.signnow.com
Resale Certificate Michigan Form Fill Out and Sign Printable PDF Agricultural Building Permit Exemption Michigan in michigan, there are two ways to qualify property for the “ag exemption,” which exempts agricultural. If you do not meet the. qualified agricultural property exemption forms. under the general property tax act section 211.7ee, agricultural land is entitled to the qualified agricultural. you must meet both criterion to be eligible for the agricultural building code. Agricultural Building Permit Exemption Michigan.
From www.pinterest.com
Taxes Qualified Agricultural Property Tax Exemption FAQs Property Agricultural Building Permit Exemption Michigan If you do not meet the. What is the qualified agricultural exemption? building does not include a building, whether temporary or permanent, incidental to the use for agricultural. in michigan, there are two ways to qualify property for the “ag exemption,” which exempts agricultural. you must meet both criterion to be eligible for the agricultural building code. Agricultural Building Permit Exemption Michigan.
From www.exemptform.com
Florida Agricultural Tax Exempt Form Agricultural Building Permit Exemption Michigan in michigan, there are two ways to qualify property for the “ag exemption,” which exempts agricultural. the state construction code includes a provision which exempts “a building incidental to the use for. building does not include a building, whether temporary or permanent, incidental to the use for agricultural. Issued by the state tax commission august 2018. If. Agricultural Building Permit Exemption Michigan.
From www.formsbank.com
Planning And Building Department Agricultural Exempt Building Permit Agricultural Building Permit Exemption Michigan What is the qualified agricultural exemption? Issued by the state tax commission august 2018. qualified agricultural property exemption forms. under the general property tax act section 211.7ee, agricultural land is entitled to the qualified agricultural. you must meet both criterion to be eligible for the agricultural building code exemption. building does not include a building, whether. Agricultural Building Permit Exemption Michigan.
From www.exemptform.com
Fillable Oklahoma Tax Commission Application For Agriculture Exemption Agricultural Building Permit Exemption Michigan in michigan, there are two ways to qualify property for the “ag exemption,” which exempts agricultural. Issued by the state tax commission august 2018. If you do not meet the. the state construction code includes a provision which exempts “a building incidental to the use for. you must meet both criterion to be eligible for the agricultural. Agricultural Building Permit Exemption Michigan.
From www.dochub.com
Ag exemption Fill out & sign online DocHub Agricultural Building Permit Exemption Michigan you must meet both criterion to be eligible for the agricultural building code exemption. the state construction code includes a provision which exempts “a building incidental to the use for. If you do not meet the. What is the qualified agricultural exemption? in michigan, there are two ways to qualify property for the “ag exemption,” which exempts. Agricultural Building Permit Exemption Michigan.
From www.formsbank.com
Farm Exemption Certificate printable pdf download Agricultural Building Permit Exemption Michigan you must meet both criterion to be eligible for the agricultural building code exemption. certain agricultural buildings are exempt from state requirements to obtain building permits before their construction. building does not include a building, whether temporary or permanent, incidental to the use for agricultural. qualified agricultural property exemption forms. in michigan, there are two. Agricultural Building Permit Exemption Michigan.
From www.exemptform.com
Agricultural Tax Exempt Form Nys Agricultural Building Permit Exemption Michigan under the general property tax act section 211.7ee, agricultural land is entitled to the qualified agricultural. What is the qualified agricultural exemption? the state construction code includes a provision which exempts “a building incidental to the use for. qualified agricultural property exemption forms. Issued by the state tax commission august 2018. building does not include a. Agricultural Building Permit Exemption Michigan.
From www.templateroller.com
OTC Form 1379 Fill Out, Sign Online and Download Fillable PDF Agricultural Building Permit Exemption Michigan What is the qualified agricultural exemption? you must meet both criterion to be eligible for the agricultural building code exemption. under the general property tax act section 211.7ee, agricultural land is entitled to the qualified agricultural. in michigan, there are two ways to qualify property for the “ag exemption,” which exempts agricultural. certain agricultural buildings are. Agricultural Building Permit Exemption Michigan.
From www.salestaxhandbook.com
Printable Michigan Sales Tax Exemption Certificates Agricultural Building Permit Exemption Michigan If you do not meet the. under the general property tax act section 211.7ee, agricultural land is entitled to the qualified agricultural. Issued by the state tax commission august 2018. qualified agricultural property exemption forms. in michigan, there are two ways to qualify property for the “ag exemption,” which exempts agricultural. the state construction code includes. Agricultural Building Permit Exemption Michigan.
From www.templateroller.com
Michigan Property Tax Appeal Petition Form Principal Residence Agricultural Building Permit Exemption Michigan under the general property tax act section 211.7ee, agricultural land is entitled to the qualified agricultural. What is the qualified agricultural exemption? the state construction code includes a provision which exempts “a building incidental to the use for. certain agricultural buildings are exempt from state requirements to obtain building permits before their construction. in michigan, there. Agricultural Building Permit Exemption Michigan.
From www.signnow.com
Building Permit Template Fast & easy to use airSlate SignNow Agricultural Building Permit Exemption Michigan certain agricultural buildings are exempt from state requirements to obtain building permits before their construction. building does not include a building, whether temporary or permanent, incidental to the use for agricultural. Issued by the state tax commission august 2018. If you do not meet the. What is the qualified agricultural exemption? under the general property tax act. Agricultural Building Permit Exemption Michigan.
From www.exemptform.com
Form St 8f Agricultural Exemption Certificate Printable Pdf Download Agricultural Building Permit Exemption Michigan certain agricultural buildings are exempt from state requirements to obtain building permits before their construction. you must meet both criterion to be eligible for the agricultural building code exemption. Issued by the state tax commission august 2018. qualified agricultural property exemption forms. What is the qualified agricultural exemption? under the general property tax act section 211.7ee,. Agricultural Building Permit Exemption Michigan.
From www.signnow.com
Oklahoma Farm Tax Exemption Online Application airSlate SignNow Agricultural Building Permit Exemption Michigan you must meet both criterion to be eligible for the agricultural building code exemption. certain agricultural buildings are exempt from state requirements to obtain building permits before their construction. Issued by the state tax commission august 2018. under the general property tax act section 211.7ee, agricultural land is entitled to the qualified agricultural. the state construction. Agricultural Building Permit Exemption Michigan.
From www.pdffiller.com
Fillable Online Agricultural Building Permit Exemption Handout Fax Agricultural Building Permit Exemption Michigan certain agricultural buildings are exempt from state requirements to obtain building permits before their construction. If you do not meet the. under the general property tax act section 211.7ee, agricultural land is entitled to the qualified agricultural. qualified agricultural property exemption forms. the state construction code includes a provision which exempts “a building incidental to the. Agricultural Building Permit Exemption Michigan.
From www.dochub.com
St120 form Fill out & sign online DocHub Agricultural Building Permit Exemption Michigan the state construction code includes a provision which exempts “a building incidental to the use for. you must meet both criterion to be eligible for the agricultural building code exemption. What is the qualified agricultural exemption? certain agricultural buildings are exempt from state requirements to obtain building permits before their construction. building does not include a. Agricultural Building Permit Exemption Michigan.