What Is Pedestal In Civil Engineering . A pedestal is a compressive structural member placed between a footing and a column to. a concrete pedestal is a compression element used in construction to carry the loads from supported elements,. a pedestal is a compressive structural member which is constructed between the footing and column. what is concrete pedestal? pedestal serves as compression elements when supporting elements, such as columns, statues, below ground level. It is used to transfer the uniform load into the footing. what is a pedestal in civil engineering? the purpose of the provision of pedestals is to avoid the direct contact of metal columns with soils which may cause possible metal corrosion by soils. the term “pedestal”, so far in the civil engineering field is concerned, is a compressive structural member which is. Generally, it uses beneath metal. A concrete pedestal is a compression element provided to carry the loads from supported.
from www.youtube.com
what is concrete pedestal? A concrete pedestal is a compression element provided to carry the loads from supported. a pedestal is a compressive structural member which is constructed between the footing and column. a concrete pedestal is a compression element used in construction to carry the loads from supported elements,. It is used to transfer the uniform load into the footing. the term “pedestal”, so far in the civil engineering field is concerned, is a compressive structural member which is. what is a pedestal in civil engineering? the purpose of the provision of pedestals is to avoid the direct contact of metal columns with soils which may cause possible metal corrosion by soils. Generally, it uses beneath metal. A pedestal is a compressive structural member placed between a footing and a column to.
Pedestal Column Concreting Civil Engineering Practical Experience
What Is Pedestal In Civil Engineering the term “pedestal”, so far in the civil engineering field is concerned, is a compressive structural member which is. a concrete pedestal is a compression element used in construction to carry the loads from supported elements,. A concrete pedestal is a compression element provided to carry the loads from supported. A pedestal is a compressive structural member placed between a footing and a column to. It is used to transfer the uniform load into the footing. the term “pedestal”, so far in the civil engineering field is concerned, is a compressive structural member which is. what is a pedestal in civil engineering? Generally, it uses beneath metal. a pedestal is a compressive structural member which is constructed between the footing and column. the purpose of the provision of pedestals is to avoid the direct contact of metal columns with soils which may cause possible metal corrosion by soils. what is concrete pedestal? pedestal serves as compression elements when supporting elements, such as columns, statues, below ground level.
From www.youtube.com
Design Of Isolated Trapezoidal Footing With Pedestal How to Read What Is Pedestal In Civil Engineering pedestal serves as compression elements when supporting elements, such as columns, statues, below ground level. Generally, it uses beneath metal. the purpose of the provision of pedestals is to avoid the direct contact of metal columns with soils which may cause possible metal corrosion by soils. the term “pedestal”, so far in the civil engineering field is. What Is Pedestal In Civil Engineering.
From engineeringdiscoveries.com
Bridge Terminology Very Important To Civil Engineers Engineering What Is Pedestal In Civil Engineering the term “pedestal”, so far in the civil engineering field is concerned, is a compressive structural member which is. Generally, it uses beneath metal. the purpose of the provision of pedestals is to avoid the direct contact of metal columns with soils which may cause possible metal corrosion by soils. a concrete pedestal is a compression element. What Is Pedestal In Civil Engineering.
From civilscoops.com
What Is Pedestal Functions of Pedestal Methods of Construction What Is Pedestal In Civil Engineering the purpose of the provision of pedestals is to avoid the direct contact of metal columns with soils which may cause possible metal corrosion by soils. a pedestal is a compressive structural member which is constructed between the footing and column. It is used to transfer the uniform load into the footing. the term “pedestal”, so far. What Is Pedestal In Civil Engineering.
From www.civilengineeringweb.com
What Is Pedestal In Column Footing Function Of Pedestal In Construction What Is Pedestal In Civil Engineering a concrete pedestal is a compression element used in construction to carry the loads from supported elements,. Generally, it uses beneath metal. A pedestal is a compressive structural member placed between a footing and a column to. what is concrete pedestal? what is a pedestal in civil engineering? a pedestal is a compressive structural member which. What Is Pedestal In Civil Engineering.
From www.civilengineeringweb.com
What Is Pedestal In Column Footing Function Of Pedestal In Construction What Is Pedestal In Civil Engineering Generally, it uses beneath metal. It is used to transfer the uniform load into the footing. a concrete pedestal is a compression element used in construction to carry the loads from supported elements,. A pedestal is a compressive structural member placed between a footing and a column to. A concrete pedestal is a compression element provided to carry the. What Is Pedestal In Civil Engineering.
From www.scribd.com
Pedestal Design 3, 4,5 & 6 PDF Civil Engineering Structural What Is Pedestal In Civil Engineering Generally, it uses beneath metal. the purpose of the provision of pedestals is to avoid the direct contact of metal columns with soils which may cause possible metal corrosion by soils. what is a pedestal in civil engineering? what is concrete pedestal? A pedestal is a compressive structural member placed between a footing and a column to.. What Is Pedestal In Civil Engineering.
From engineeringdiscoveries.com
Mat Foundation And Its Types Engineering Discoveries What Is Pedestal In Civil Engineering A concrete pedestal is a compression element provided to carry the loads from supported. what is a pedestal in civil engineering? what is concrete pedestal? It is used to transfer the uniform load into the footing. a concrete pedestal is a compression element used in construction to carry the loads from supported elements,. a pedestal is. What Is Pedestal In Civil Engineering.
From www.scribd.com
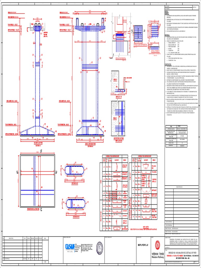
Typical Plan For Pedestal MbplPgipl JV PDF Civil Engineering What Is Pedestal In Civil Engineering A concrete pedestal is a compression element provided to carry the loads from supported. A pedestal is a compressive structural member placed between a footing and a column to. It is used to transfer the uniform load into the footing. pedestal serves as compression elements when supporting elements, such as columns, statues, below ground level. Generally, it uses beneath. What Is Pedestal In Civil Engineering.
From civilengdis.com
Reinforcement Detailing Of Isolated Footing Engineering Discoveries What Is Pedestal In Civil Engineering A concrete pedestal is a compression element provided to carry the loads from supported. what is a pedestal in civil engineering? a concrete pedestal is a compression element used in construction to carry the loads from supported elements,. Generally, it uses beneath metal. pedestal serves as compression elements when supporting elements, such as columns, statues, below ground. What Is Pedestal In Civil Engineering.
From www.youtube.com
Design of Isolated footing with Pedestal RCC Foundations Lecture11 What Is Pedestal In Civil Engineering It is used to transfer the uniform load into the footing. A pedestal is a compressive structural member placed between a footing and a column to. a concrete pedestal is a compression element used in construction to carry the loads from supported elements,. Generally, it uses beneath metal. the purpose of the provision of pedestals is to avoid. What Is Pedestal In Civil Engineering.
From www.scribd.com
RCC Pedestal Design PDF Building Materials Civil Engineering What Is Pedestal In Civil Engineering the term “pedestal”, so far in the civil engineering field is concerned, is a compressive structural member which is. It is used to transfer the uniform load into the footing. A pedestal is a compressive structural member placed between a footing and a column to. a pedestal is a compressive structural member which is constructed between the footing. What Is Pedestal In Civil Engineering.
From civiltoday.com
What is a Pier Foundation? Types, Advantages, Location Civil Engineering What Is Pedestal In Civil Engineering the purpose of the provision of pedestals is to avoid the direct contact of metal columns with soils which may cause possible metal corrosion by soils. pedestal serves as compression elements when supporting elements, such as columns, statues, below ground level. A concrete pedestal is a compression element provided to carry the loads from supported. the term. What Is Pedestal In Civil Engineering.
From www.eng-tips.com
Concrete pedestral hight adjustment. Structural engineering other What Is Pedestal In Civil Engineering A pedestal is a compressive structural member placed between a footing and a column to. a pedestal is a compressive structural member which is constructed between the footing and column. what is concrete pedestal? a concrete pedestal is a compression element used in construction to carry the loads from supported elements,. A concrete pedestal is a compression. What Is Pedestal In Civil Engineering.
From www.youtube.com
Pedestal Pedestal concrete Civil Engineering Videos Smithika What Is Pedestal In Civil Engineering the term “pedestal”, so far in the civil engineering field is concerned, is a compressive structural member which is. what is a pedestal in civil engineering? the purpose of the provision of pedestals is to avoid the direct contact of metal columns with soils which may cause possible metal corrosion by soils. pedestal serves as compression. What Is Pedestal In Civil Engineering.
From engineeringdiscoveries.com
Important RCC Dtatilas Of Footings, Beams, Columns, Slabs And Stairs What Is Pedestal In Civil Engineering a concrete pedestal is a compression element used in construction to carry the loads from supported elements,. the purpose of the provision of pedestals is to avoid the direct contact of metal columns with soils which may cause possible metal corrosion by soils. what is a pedestal in civil engineering? A pedestal is a compressive structural member. What Is Pedestal In Civil Engineering.
From civiljungle.org
Pedestals in Civil Engineering Functions, Types, and Construction What Is Pedestal In Civil Engineering It is used to transfer the uniform load into the footing. what is a pedestal in civil engineering? the term “pedestal”, so far in the civil engineering field is concerned, is a compressive structural member which is. a concrete pedestal is a compression element used in construction to carry the loads from supported elements,. pedestal serves. What Is Pedestal In Civil Engineering.
From www.youtube.com
PEB Structure Part 2 Pedestal Column Erection and Footing Concrete What Is Pedestal In Civil Engineering the purpose of the provision of pedestals is to avoid the direct contact of metal columns with soils which may cause possible metal corrosion by soils. a concrete pedestal is a compression element used in construction to carry the loads from supported elements,. what is concrete pedestal? A concrete pedestal is a compression element provided to carry. What Is Pedestal In Civil Engineering.
From civiljungle.com
What Is Pedestal Functions of Pedestal Methods of Construction What Is Pedestal In Civil Engineering It is used to transfer the uniform load into the footing. A pedestal is a compressive structural member placed between a footing and a column to. what is a pedestal in civil engineering? the term “pedestal”, so far in the civil engineering field is concerned, is a compressive structural member which is. what is concrete pedestal? . What Is Pedestal In Civil Engineering.
From civil-scoops.com
What Is Pedestal Functions of Pedestal Methods of Construction What Is Pedestal In Civil Engineering A concrete pedestal is a compression element provided to carry the loads from supported. the purpose of the provision of pedestals is to avoid the direct contact of metal columns with soils which may cause possible metal corrosion by soils. a pedestal is a compressive structural member which is constructed between the footing and column. a concrete. What Is Pedestal In Civil Engineering.
From civiljungle.com
What Is Pedestal Functions of Pedestal Methods of Construction What Is Pedestal In Civil Engineering what is concrete pedestal? Generally, it uses beneath metal. the term “pedestal”, so far in the civil engineering field is concerned, is a compressive structural member which is. A pedestal is a compressive structural member placed between a footing and a column to. pedestal serves as compression elements when supporting elements, such as columns, statues, below ground. What Is Pedestal In Civil Engineering.
From www.scribd.com
PEDESTAL PDF Civil Engineering Structural Engineering What Is Pedestal In Civil Engineering A concrete pedestal is a compression element provided to carry the loads from supported. a pedestal is a compressive structural member which is constructed between the footing and column. the term “pedestal”, so far in the civil engineering field is concerned, is a compressive structural member which is. It is used to transfer the uniform load into the. What Is Pedestal In Civil Engineering.
From civilscoops.com
What Is Pedestal Functions of Pedestal Methods of Construction What Is Pedestal In Civil Engineering the term “pedestal”, so far in the civil engineering field is concerned, is a compressive structural member which is. a concrete pedestal is a compression element used in construction to carry the loads from supported elements,. A concrete pedestal is a compression element provided to carry the loads from supported. It is used to transfer the uniform load. What Is Pedestal In Civil Engineering.
From www.scribd.com
Structural Pole Foundation Pedestal PDF Civil Engineering What Is Pedestal In Civil Engineering A pedestal is a compressive structural member placed between a footing and a column to. a pedestal is a compressive structural member which is constructed between the footing and column. the purpose of the provision of pedestals is to avoid the direct contact of metal columns with soils which may cause possible metal corrosion by soils. the. What Is Pedestal In Civil Engineering.
From engineeringfeed.com
Spread Footings and the Details Before Construction Engineering Feed What Is Pedestal In Civil Engineering the purpose of the provision of pedestals is to avoid the direct contact of metal columns with soils which may cause possible metal corrosion by soils. Generally, it uses beneath metal. what is a pedestal in civil engineering? the term “pedestal”, so far in the civil engineering field is concerned, is a compressive structural member which is.. What Is Pedestal In Civil Engineering.
From civilscoops.com
What Is Pedestal Functions of Pedestal Methods of Construction What Is Pedestal In Civil Engineering It is used to transfer the uniform load into the footing. Generally, it uses beneath metal. the purpose of the provision of pedestals is to avoid the direct contact of metal columns with soils which may cause possible metal corrosion by soils. A pedestal is a compressive structural member placed between a footing and a column to. a. What Is Pedestal In Civil Engineering.
From www.youtube.com
Process of Footing Pedestal Shuttering Steel Binding Civil What Is Pedestal In Civil Engineering pedestal serves as compression elements when supporting elements, such as columns, statues, below ground level. It is used to transfer the uniform load into the footing. what is a pedestal in civil engineering? A concrete pedestal is a compression element provided to carry the loads from supported. a concrete pedestal is a compression element used in construction. What Is Pedestal In Civil Engineering.
From www.youtube.com
Pedestal Footing Column Civil Site Work And AutoCAD CSWAA What Is Pedestal In Civil Engineering a pedestal is a compressive structural member which is constructed between the footing and column. what is a pedestal in civil engineering? pedestal serves as compression elements when supporting elements, such as columns, statues, below ground level. the term “pedestal”, so far in the civil engineering field is concerned, is a compressive structural member which is.. What Is Pedestal In Civil Engineering.
From engineeringdiscoveries.com
Reinforcement Detailing Of Isolated Footing Engineering Discoveries What Is Pedestal In Civil Engineering a concrete pedestal is a compression element used in construction to carry the loads from supported elements,. the term “pedestal”, so far in the civil engineering field is concerned, is a compressive structural member which is. the purpose of the provision of pedestals is to avoid the direct contact of metal columns with soils which may cause. What Is Pedestal In Civil Engineering.
From www.civilengineeringweb.com
What Is Pedestal In Column Footing Function Of Pedestal In Construction What Is Pedestal In Civil Engineering the purpose of the provision of pedestals is to avoid the direct contact of metal columns with soils which may cause possible metal corrosion by soils. Generally, it uses beneath metal. what is concrete pedestal? a pedestal is a compressive structural member which is constructed between the footing and column. the term “pedestal”, so far in. What Is Pedestal In Civil Engineering.
From www.youtube.com
Pedestal Column Concreting Civil Engineering Practical Experience What Is Pedestal In Civil Engineering the term “pedestal”, so far in the civil engineering field is concerned, is a compressive structural member which is. what is concrete pedestal? what is a pedestal in civil engineering? a pedestal is a compressive structural member which is constructed between the footing and column. A pedestal is a compressive structural member placed between a footing. What Is Pedestal In Civil Engineering.
From www.libreingenieriacivil.com
Diseño de un pedestal de concreto + Hoja de calculo What Is Pedestal In Civil Engineering a pedestal is a compressive structural member which is constructed between the footing and column. It is used to transfer the uniform load into the footing. pedestal serves as compression elements when supporting elements, such as columns, statues, below ground level. a concrete pedestal is a compression element used in construction to carry the loads from supported. What Is Pedestal In Civil Engineering.
From civilscoops.com
What Is Pedestal Functions of Pedestal Methods of Construction What Is Pedestal In Civil Engineering the term “pedestal”, so far in the civil engineering field is concerned, is a compressive structural member which is. a concrete pedestal is a compression element used in construction to carry the loads from supported elements,. pedestal serves as compression elements when supporting elements, such as columns, statues, below ground level. a pedestal is a compressive. What Is Pedestal In Civil Engineering.
From www.pinterest.es
Pin on En obra What Is Pedestal In Civil Engineering a concrete pedestal is a compression element used in construction to carry the loads from supported elements,. the term “pedestal”, so far in the civil engineering field is concerned, is a compressive structural member which is. Generally, it uses beneath metal. what is concrete pedestal? pedestal serves as compression elements when supporting elements, such as columns,. What Is Pedestal In Civil Engineering.
From dxojsukzr.blob.core.windows.net
Pedestal Definition Construction at Benjamin Alanis blog What Is Pedestal In Civil Engineering a pedestal is a compressive structural member which is constructed between the footing and column. A concrete pedestal is a compression element provided to carry the loads from supported. A pedestal is a compressive structural member placed between a footing and a column to. Generally, it uses beneath metal. the term “pedestal”, so far in the civil engineering. What Is Pedestal In Civil Engineering.
From www.midasstructure.com
What is Footing Types and Design Method? What Is Pedestal In Civil Engineering It is used to transfer the uniform load into the footing. the purpose of the provision of pedestals is to avoid the direct contact of metal columns with soils which may cause possible metal corrosion by soils. Generally, it uses beneath metal. a concrete pedestal is a compression element used in construction to carry the loads from supported. What Is Pedestal In Civil Engineering.