Armstrong Epds . this document refers to 1 m2 thermatex/armstrong acoustic range mineral ceiling tiles with an average. we were one of the first companies to create and publish the environmental product declaration (epd) in the ceiling industry. Inside this ul environment certified, iso compliant epd. the final epd is available on the armstrong website (armstrongceilings.com/epd ) and is under the finish category in the ec3 tool (. product declarations (epds) to document the sustainability of our products. Armstrong ceiling solutions (australia) pty ltd.
from tnhelearning.edu.vn
Inside this ul environment certified, iso compliant epd. Armstrong ceiling solutions (australia) pty ltd. product declarations (epds) to document the sustainability of our products. we were one of the first companies to create and publish the environmental product declaration (epd) in the ceiling industry. this document refers to 1 m2 thermatex/armstrong acoustic range mineral ceiling tiles with an average. the final epd is available on the armstrong website (armstrongceilings.com/epd ) and is under the finish category in the ec3 tool (.
Louis Armstrong
Armstrong Epds product declarations (epds) to document the sustainability of our products. Armstrong ceiling solutions (australia) pty ltd. product declarations (epds) to document the sustainability of our products. we were one of the first companies to create and publish the environmental product declaration (epd) in the ceiling industry. this document refers to 1 m2 thermatex/armstrong acoustic range mineral ceiling tiles with an average. Inside this ul environment certified, iso compliant epd. the final epd is available on the armstrong website (armstrongceilings.com/epd ) and is under the finish category in the ec3 tool (.
From www.slideserve.com
PPT PERINATAL SUICIDE PowerPoint Presentation, free download ID8786897 Armstrong Epds the final epd is available on the armstrong website (armstrongceilings.com/epd ) and is under the finish category in the ec3 tool (. we were one of the first companies to create and publish the environmental product declaration (epd) in the ceiling industry. this document refers to 1 m2 thermatex/armstrong acoustic range mineral ceiling tiles with an average.. Armstrong Epds.
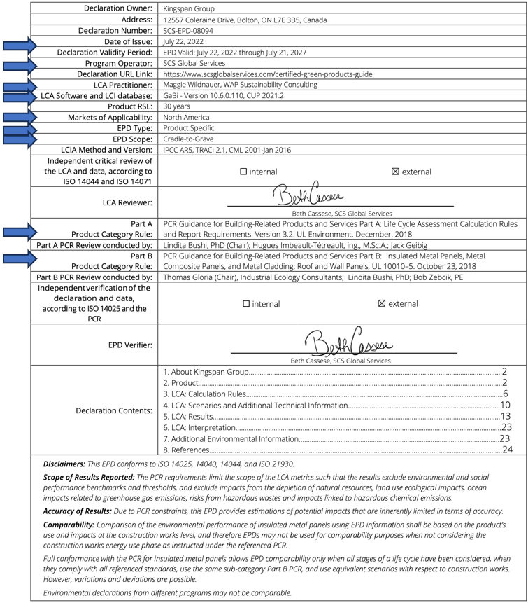
From planetpassionate.kingspan.com
How to Read an EPD Armstrong Epds the final epd is available on the armstrong website (armstrongceilings.com/epd ) and is under the finish category in the ec3 tool (. Armstrong ceiling solutions (australia) pty ltd. product declarations (epds) to document the sustainability of our products. Inside this ul environment certified, iso compliant epd. this document refers to 1 m2 thermatex/armstrong acoustic range mineral ceiling. Armstrong Epds.
From www.studocu.com
Perinatal epds tool Test If you scored a 1, 2 or 3 on question 10 Armstrong Epds product declarations (epds) to document the sustainability of our products. this document refers to 1 m2 thermatex/armstrong acoustic range mineral ceiling tiles with an average. Inside this ul environment certified, iso compliant epd. we were one of the first companies to create and publish the environmental product declaration (epd) in the ceiling industry. Armstrong ceiling solutions (australia). Armstrong Epds.
From epd-australasia.com
Record number of EPDs published EPD Australasia Armstrong Epds product declarations (epds) to document the sustainability of our products. we were one of the first companies to create and publish the environmental product declaration (epd) in the ceiling industry. this document refers to 1 m2 thermatex/armstrong acoustic range mineral ceiling tiles with an average. Inside this ul environment certified, iso compliant epd. Armstrong ceiling solutions (australia). Armstrong Epds.
From www.scribd.com
Edinburgh Postnatal Depression Scale EPDS Online Assessment Form Armstrong Epds we were one of the first companies to create and publish the environmental product declaration (epd) in the ceiling industry. product declarations (epds) to document the sustainability of our products. this document refers to 1 m2 thermatex/armstrong acoustic range mineral ceiling tiles with an average. Inside this ul environment certified, iso compliant epd. the final epd. Armstrong Epds.
From www.youtube.com
Developmental Screening Edinburgh Postnatal Depression Scale (EPDS Armstrong Epds the final epd is available on the armstrong website (armstrongceilings.com/epd ) and is under the finish category in the ec3 tool (. Inside this ul environment certified, iso compliant epd. Armstrong ceiling solutions (australia) pty ltd. product declarations (epds) to document the sustainability of our products. this document refers to 1 m2 thermatex/armstrong acoustic range mineral ceiling. Armstrong Epds.
From www.bmj.com
Accuracy of the Edinburgh Postnatal Depression Scale (EPDS) for Armstrong Epds the final epd is available on the armstrong website (armstrongceilings.com/epd ) and is under the finish category in the ec3 tool (. Inside this ul environment certified, iso compliant epd. this document refers to 1 m2 thermatex/armstrong acoustic range mineral ceiling tiles with an average. Armstrong ceiling solutions (australia) pty ltd. product declarations (epds) to document the. Armstrong Epds.
From www.lightmetalage.com
Aluminum Extrusion EPDs and the Push for Decarbonization Light Metal Armstrong Epds Armstrong ceiling solutions (australia) pty ltd. we were one of the first companies to create and publish the environmental product declaration (epd) in the ceiling industry. Inside this ul environment certified, iso compliant epd. product declarations (epds) to document the sustainability of our products. the final epd is available on the armstrong website (armstrongceilings.com/epd ) and is. Armstrong Epds.
From www.fagerhult.com
Environmental Product Declaration (EPD) Fagerhult (International) Armstrong Epds we were one of the first companies to create and publish the environmental product declaration (epd) in the ceiling industry. this document refers to 1 m2 thermatex/armstrong acoustic range mineral ceiling tiles with an average. Armstrong ceiling solutions (australia) pty ltd. Inside this ul environment certified, iso compliant epd. the final epd is available on the armstrong. Armstrong Epds.
From tnhelearning.edu.vn
Louis Armstrong Armstrong Epds Armstrong ceiling solutions (australia) pty ltd. this document refers to 1 m2 thermatex/armstrong acoustic range mineral ceiling tiles with an average. product declarations (epds) to document the sustainability of our products. the final epd is available on the armstrong website (armstrongceilings.com/epd ) and is under the finish category in the ec3 tool (. we were one. Armstrong Epds.
From www.specifile.co.za
Armstrong Ceilings pioneers EPDs Armstrong Epds we were one of the first companies to create and publish the environmental product declaration (epd) in the ceiling industry. the final epd is available on the armstrong website (armstrongceilings.com/epd ) and is under the finish category in the ec3 tool (. Armstrong ceiling solutions (australia) pty ltd. this document refers to 1 m2 thermatex/armstrong acoustic range. Armstrong Epds.
From help.cegedim-healthcare.co.uk
Edinburgh Postnatal Depression Scale (EPDS) Calculator Armstrong Epds Armstrong ceiling solutions (australia) pty ltd. the final epd is available on the armstrong website (armstrongceilings.com/epd ) and is under the finish category in the ec3 tool (. product declarations (epds) to document the sustainability of our products. this document refers to 1 m2 thermatex/armstrong acoustic range mineral ceiling tiles with an average. Inside this ul environment. Armstrong Epds.
From donovanmedical.com
Erosive Pustular Dermatosis of the Scalp (EPDS) Every Patient Deserves Armstrong Epds Armstrong ceiling solutions (australia) pty ltd. Inside this ul environment certified, iso compliant epd. the final epd is available on the armstrong website (armstrongceilings.com/epd ) and is under the finish category in the ec3 tool (. product declarations (epds) to document the sustainability of our products. we were one of the first companies to create and publish. Armstrong Epds.
From www.storyboardthat.com
Neil Armstrong Aydaki Adam Storyboard Door trexamples Armstrong Epds we were one of the first companies to create and publish the environmental product declaration (epd) in the ceiling industry. Armstrong ceiling solutions (australia) pty ltd. the final epd is available on the armstrong website (armstrongceilings.com/epd ) and is under the finish category in the ec3 tool (. Inside this ul environment certified, iso compliant epd. this. Armstrong Epds.
From ingramscreening.com
PowerPoint Breaking Down the EPDS Screening Tool Armstrong Epds Armstrong ceiling solutions (australia) pty ltd. Inside this ul environment certified, iso compliant epd. this document refers to 1 m2 thermatex/armstrong acoustic range mineral ceiling tiles with an average. we were one of the first companies to create and publish the environmental product declaration (epd) in the ceiling industry. the final epd is available on the armstrong. Armstrong Epds.
From living-future.org
ARMSTRONG WORLD INDUSTRIES TECTUM® CEILING AND WALL PANELS Armstrong Epds the final epd is available on the armstrong website (armstrongceilings.com/epd ) and is under the finish category in the ec3 tool (. Inside this ul environment certified, iso compliant epd. product declarations (epds) to document the sustainability of our products. we were one of the first companies to create and publish the environmental product declaration (epd) in. Armstrong Epds.
From www.researchgate.net
Logistic regression study variables and EPDS scores. Download Armstrong Epds we were one of the first companies to create and publish the environmental product declaration (epd) in the ceiling industry. the final epd is available on the armstrong website (armstrongceilings.com/epd ) and is under the finish category in the ec3 tool (. this document refers to 1 m2 thermatex/armstrong acoustic range mineral ceiling tiles with an average.. Armstrong Epds.
From www.researchgate.net
Flowchart of the trial. EPDS, Edinburgh Postnatal Depression Scale Armstrong Epds we were one of the first companies to create and publish the environmental product declaration (epd) in the ceiling industry. Inside this ul environment certified, iso compliant epd. Armstrong ceiling solutions (australia) pty ltd. product declarations (epds) to document the sustainability of our products. the final epd is available on the armstrong website (armstrongceilings.com/epd ) and is. Armstrong Epds.
From scales.arabpsychology.com
Edinburgh Postnatal Depression Scale (EPDS) Armstrong Epds the final epd is available on the armstrong website (armstrongceilings.com/epd ) and is under the finish category in the ec3 tool (. product declarations (epds) to document the sustainability of our products. Inside this ul environment certified, iso compliant epd. this document refers to 1 m2 thermatex/armstrong acoustic range mineral ceiling tiles with an average. Armstrong ceiling. Armstrong Epds.
From www.imdb.com
Armstrong Armstrong Epds Armstrong ceiling solutions (australia) pty ltd. we were one of the first companies to create and publish the environmental product declaration (epd) in the ceiling industry. Inside this ul environment certified, iso compliant epd. the final epd is available on the armstrong website (armstrongceilings.com/epd ) and is under the finish category in the ec3 tool (. this. Armstrong Epds.
From www.army.mil
Army TENCAP Celebrates 50 Years of Delivering Intelligence Article Armstrong Epds the final epd is available on the armstrong website (armstrongceilings.com/epd ) and is under the finish category in the ec3 tool (. this document refers to 1 m2 thermatex/armstrong acoustic range mineral ceiling tiles with an average. product declarations (epds) to document the sustainability of our products. Inside this ul environment certified, iso compliant epd. we. Armstrong Epds.
From www.alamy.com
Neil A. Armstrong (1958) Neil A. Armstrong, Neil Armstrong, portrait of Armstrong Epds Inside this ul environment certified, iso compliant epd. Armstrong ceiling solutions (australia) pty ltd. product declarations (epds) to document the sustainability of our products. we were one of the first companies to create and publish the environmental product declaration (epd) in the ceiling industry. this document refers to 1 m2 thermatex/armstrong acoustic range mineral ceiling tiles with. Armstrong Epds.
From www.researchgate.net
EPDS scores and psychological burden related to the COVID19 pandemic Armstrong Epds we were one of the first companies to create and publish the environmental product declaration (epd) in the ceiling industry. this document refers to 1 m2 thermatex/armstrong acoustic range mineral ceiling tiles with an average. Armstrong ceiling solutions (australia) pty ltd. the final epd is available on the armstrong website (armstrongceilings.com/epd ) and is under the finish. Armstrong Epds.
From continuingeducation.bnpmedia.com
CE Center In Today’s World, Ventilation Has a Starring Role Armstrong Epds product declarations (epds) to document the sustainability of our products. this document refers to 1 m2 thermatex/armstrong acoustic range mineral ceiling tiles with an average. Inside this ul environment certified, iso compliant epd. we were one of the first companies to create and publish the environmental product declaration (epd) in the ceiling industry. Armstrong ceiling solutions (australia). Armstrong Epds.
From www.youtube.com
Postpartum Depression Screening Depression After Birth EPDS Test Armstrong Epds this document refers to 1 m2 thermatex/armstrong acoustic range mineral ceiling tiles with an average. Inside this ul environment certified, iso compliant epd. Armstrong ceiling solutions (australia) pty ltd. we were one of the first companies to create and publish the environmental product declaration (epd) in the ceiling industry. the final epd is available on the armstrong. Armstrong Epds.
From www.researchgate.net
The results of EPDS score of relevant factors to paternal depression Armstrong Epds we were one of the first companies to create and publish the environmental product declaration (epd) in the ceiling industry. Armstrong ceiling solutions (australia) pty ltd. Inside this ul environment certified, iso compliant epd. the final epd is available on the armstrong website (armstrongceilings.com/epd ) and is under the finish category in the ec3 tool (. product. Armstrong Epds.
From www.studypool.com
SOLUTION Epds scoring guide Studypool Armstrong Epds Inside this ul environment certified, iso compliant epd. this document refers to 1 m2 thermatex/armstrong acoustic range mineral ceiling tiles with an average. we were one of the first companies to create and publish the environmental product declaration (epd) in the ceiling industry. Armstrong ceiling solutions (australia) pty ltd. product declarations (epds) to document the sustainability of. Armstrong Epds.
From krcrtv.com
Sgt. Jim Armstrong (EPD) Armstrong Epds this document refers to 1 m2 thermatex/armstrong acoustic range mineral ceiling tiles with an average. Armstrong ceiling solutions (australia) pty ltd. we were one of the first companies to create and publish the environmental product declaration (epd) in the ceiling industry. the final epd is available on the armstrong website (armstrongceilings.com/epd ) and is under the finish. Armstrong Epds.
From journals.sagepub.com
Screening for Perinatal OCD A Comparison of the DOCS and the EPDS Armstrong Epds we were one of the first companies to create and publish the environmental product declaration (epd) in the ceiling industry. product declarations (epds) to document the sustainability of our products. the final epd is available on the armstrong website (armstrongceilings.com/epd ) and is under the finish category in the ec3 tool (. Armstrong ceiling solutions (australia) pty. Armstrong Epds.
From www.researchgate.net
Incidence of PPD and PPA. Frequency of different EPDS score (A), rate Armstrong Epds Inside this ul environment certified, iso compliant epd. this document refers to 1 m2 thermatex/armstrong acoustic range mineral ceiling tiles with an average. we were one of the first companies to create and publish the environmental product declaration (epd) in the ceiling industry. Armstrong ceiling solutions (australia) pty ltd. product declarations (epds) to document the sustainability of. Armstrong Epds.
From epd-australasia.com
How to Read and Use an EPD EPD Australasia Armstrong Epds this document refers to 1 m2 thermatex/armstrong acoustic range mineral ceiling tiles with an average. product declarations (epds) to document the sustainability of our products. the final epd is available on the armstrong website (armstrongceilings.com/epd ) and is under the finish category in the ec3 tool (. Armstrong ceiling solutions (australia) pty ltd. Inside this ul environment. Armstrong Epds.
From www.armstrongceilings.com
EPDs Armstrong Ceiling Solutions Commercial Armstrong Epds this document refers to 1 m2 thermatex/armstrong acoustic range mineral ceiling tiles with an average. we were one of the first companies to create and publish the environmental product declaration (epd) in the ceiling industry. product declarations (epds) to document the sustainability of our products. Armstrong ceiling solutions (australia) pty ltd. the final epd is available. Armstrong Epds.
From www.researchgate.net
Relationships with his partner and the results of odds ratio of EPDS Armstrong Epds this document refers to 1 m2 thermatex/armstrong acoustic range mineral ceiling tiles with an average. Inside this ul environment certified, iso compliant epd. Armstrong ceiling solutions (australia) pty ltd. we were one of the first companies to create and publish the environmental product declaration (epd) in the ceiling industry. the final epd is available on the armstrong. Armstrong Epds.
From slideplayer.com
Psychotherapy and non pharmacologic Treatments For PostPartum Armstrong Epds product declarations (epds) to document the sustainability of our products. we were one of the first companies to create and publish the environmental product declaration (epd) in the ceiling industry. Inside this ul environment certified, iso compliant epd. Armstrong ceiling solutions (australia) pty ltd. this document refers to 1 m2 thermatex/armstrong acoustic range mineral ceiling tiles with. Armstrong Epds.
From www.youtube.com
Case Study Armstrong Ceiling EPD & LCA Awareness YouTube Armstrong Epds product declarations (epds) to document the sustainability of our products. the final epd is available on the armstrong website (armstrongceilings.com/epd ) and is under the finish category in the ec3 tool (. Armstrong ceiling solutions (australia) pty ltd. we were one of the first companies to create and publish the environmental product declaration (epd) in the ceiling. Armstrong Epds.