Honeywell Vista Ce Code . The vista 21ip and vista 20p can support up to 48 system codes. The vista 10p can support up to 16 system codes. Up to 32 codes can be used with a vista 15p system, while a vista 20p or 21ip can support up to 48 codes. Use the following instructions to determine what. Honeywell vista security system trouble & check codes have a trouble condition on your honeywell vista series security system? About security codes your installer assigned a master code that is used to perform all system functions. Remember, two of these slots will go to the installer code (slot 01) and the master code (slot 02). The vista 15p can support up to 32 system codes. How to clear trouble codes such as 6f communicator error, alarm, low battery, no power, and. Do you have the manual? I did a series of short videos on how to do some user interface on a honeywell security system. In addition, other security codes can be assigned for use by other users (vista.
from ecsupounamo.weebly.com
Do you have the manual? In addition, other security codes can be assigned for use by other users (vista. Up to 32 codes can be used with a vista 15p system, while a vista 20p or 21ip can support up to 48 codes. About security codes your installer assigned a master code that is used to perform all system functions. I did a series of short videos on how to do some user interface on a honeywell security system. Remember, two of these slots will go to the installer code (slot 01) and the master code (slot 02). Use the following instructions to determine what. The vista 21ip and vista 20p can support up to 48 system codes. How to clear trouble codes such as 6f communicator error, alarm, low battery, no power, and. The vista 15p can support up to 32 system codes.
Download free software Honeywell Vista 20P Change Master Code
Honeywell Vista Ce Code I did a series of short videos on how to do some user interface on a honeywell security system. Remember, two of these slots will go to the installer code (slot 01) and the master code (slot 02). How to clear trouble codes such as 6f communicator error, alarm, low battery, no power, and. The vista 10p can support up to 16 system codes. About security codes your installer assigned a master code that is used to perform all system functions. Up to 32 codes can be used with a vista 15p system, while a vista 20p or 21ip can support up to 48 codes. Do you have the manual? The vista 21ip and vista 20p can support up to 48 system codes. The vista 15p can support up to 32 system codes. Use the following instructions to determine what. In addition, other security codes can be assigned for use by other users (vista. I did a series of short videos on how to do some user interface on a honeywell security system. Honeywell vista security system trouble & check codes have a trouble condition on your honeywell vista series security system?
From schematicpartyald.z21.web.core.windows.net
Honeywell Vista 20p Installer Code Honeywell Vista Ce Code The vista 21ip and vista 20p can support up to 48 system codes. Honeywell vista security system trouble & check codes have a trouble condition on your honeywell vista series security system? I did a series of short videos on how to do some user interface on a honeywell security system. How to clear trouble codes such as 6f communicator. Honeywell Vista Ce Code.
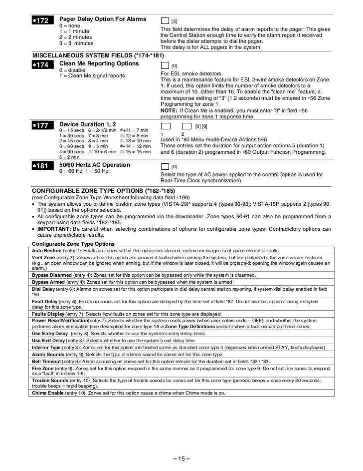
From www.slideshare.net
Install Guide Honeywell Vista 128BPT and 250BPT Honeywell Vista Ce Code The vista 15p can support up to 32 system codes. About security codes your installer assigned a master code that is used to perform all system functions. In addition, other security codes can be assigned for use by other users (vista. The vista 21ip and vista 20p can support up to 48 system codes. Honeywell vista security system trouble &. Honeywell Vista Ce Code.
From ecsupounamo.weebly.com
Download free software Honeywell Vista 20P Change Master Code Honeywell Vista Ce Code The vista 10p can support up to 16 system codes. The vista 15p can support up to 32 system codes. Honeywell vista security system trouble & check codes have a trouble condition on your honeywell vista series security system? I did a series of short videos on how to do some user interface on a honeywell security system. Up to. Honeywell Vista Ce Code.
From www.youtube.com
How To Clear Trouble Codes Honeywell Security Vista 20P User Manual Honeywell Vista Ce Code Honeywell vista security system trouble & check codes have a trouble condition on your honeywell vista series security system? Remember, two of these slots will go to the installer code (slot 01) and the master code (slot 02). About security codes your installer assigned a master code that is used to perform all system functions. How to clear trouble codes. Honeywell Vista Ce Code.
From www.youtube.com
Honeywell Vista 20P security codes and user attributes programming ref Honeywell Vista Ce Code The vista 15p can support up to 32 system codes. About security codes your installer assigned a master code that is used to perform all system functions. Up to 32 codes can be used with a vista 15p system, while a vista 20p or 21ip can support up to 48 codes. Use the following instructions to determine what. Remember, two. Honeywell Vista Ce Code.
From fr.slideshare.net
Honeywell Vista 15P Honeywell Vista 20P Programming Guide Honeywell Vista Ce Code The vista 21ip and vista 20p can support up to 48 system codes. About security codes your installer assigned a master code that is used to perform all system functions. How to clear trouble codes such as 6f communicator error, alarm, low battery, no power, and. In addition, other security codes can be assigned for use by other users (vista.. Honeywell Vista Ce Code.
From www.slideshare.net
Honeywell vista10pprogrammingguide Honeywell Vista Ce Code The vista 15p can support up to 32 system codes. Use the following instructions to determine what. In addition, other security codes can be assigned for use by other users (vista. The vista 10p can support up to 16 system codes. How to clear trouble codes such as 6f communicator error, alarm, low battery, no power, and. Up to 32. Honeywell Vista Ce Code.
From alarmnewengland.com
Honeywell Vista20P Wired Security System Review Honeywell Vista Ce Code The vista 21ip and vista 20p can support up to 48 system codes. About security codes your installer assigned a master code that is used to perform all system functions. Do you have the manual? Up to 32 codes can be used with a vista 15p system, while a vista 20p or 21ip can support up to 48 codes. Remember,. Honeywell Vista Ce Code.
From www.geoarm.com
Honeywell VISTA 250BPT TriPath AT&T LTE Honeywell Vista Ce Code Honeywell vista security system trouble & check codes have a trouble condition on your honeywell vista series security system? The vista 21ip and vista 20p can support up to 48 system codes. How to clear trouble codes such as 6f communicator error, alarm, low battery, no power, and. Do you have the manual? Use the following instructions to determine what.. Honeywell Vista Ce Code.
From www.youtube.com
Clear Trouble Codes Honeywell Alarm Security System Vista 20p Alarm 6f Honeywell Vista Ce Code In addition, other security codes can be assigned for use by other users (vista. The vista 15p can support up to 32 system codes. About security codes your installer assigned a master code that is used to perform all system functions. The vista 10p can support up to 16 system codes. The vista 21ip and vista 20p can support up. Honeywell Vista Ce Code.
From www.scribd.com
Honeywell Vista 20P Installer Worksheet PDF PDF Command Line Honeywell Vista Ce Code The vista 15p can support up to 32 system codes. I did a series of short videos on how to do some user interface on a honeywell security system. Honeywell vista security system trouble & check codes have a trouble condition on your honeywell vista series security system? How to clear trouble codes such as 6f communicator error, alarm, low. Honeywell Vista Ce Code.
From www.youtube.com
Honeywell VISTA Resetting or Changing the Master Code YouTube Honeywell Vista Ce Code I did a series of short videos on how to do some user interface on a honeywell security system. Up to 32 codes can be used with a vista 15p system, while a vista 20p or 21ip can support up to 48 codes. In addition, other security codes can be assigned for use by other users (vista. How to clear. Honeywell Vista Ce Code.
From www.emergencyalertsecurity.com
Alarm System Resources Emergency Alert Security Honeywell Vista Ce Code In addition, other security codes can be assigned for use by other users (vista. Use the following instructions to determine what. Do you have the manual? The vista 15p can support up to 32 system codes. The vista 21ip and vista 20p can support up to 48 system codes. How to clear trouble codes such as 6f communicator error, alarm,. Honeywell Vista Ce Code.
From www.youtube.com
Honeywell vista 20p zone 33 wireless contact programming YouTube Honeywell Vista Ce Code In addition, other security codes can be assigned for use by other users (vista. Use the following instructions to determine what. How to clear trouble codes such as 6f communicator error, alarm, low battery, no power, and. The vista 15p can support up to 32 system codes. Do you have the manual? The vista 10p can support up to 16. Honeywell Vista Ce Code.
From www.youtube.com
General Overview of Honeywell VISTA Programming YouTube Honeywell Vista Ce Code About security codes your installer assigned a master code that is used to perform all system functions. Do you have the manual? Honeywell vista security system trouble & check codes have a trouble condition on your honeywell vista series security system? The vista 10p can support up to 16 system codes. Remember, two of these slots will go to the. Honeywell Vista Ce Code.
From www.slideshare.net
Honeywell Vista 15P Honeywell Vista 20P Programming Guide Honeywell Vista Ce Code In addition, other security codes can be assigned for use by other users (vista. Use the following instructions to determine what. The vista 10p can support up to 16 system codes. How to clear trouble codes such as 6f communicator error, alarm, low battery, no power, and. The vista 15p can support up to 32 system codes. I did a. Honeywell Vista Ce Code.
From www.mbscctv.com
Intrusion Alarm VISTA10P Honeywell Produk Teknologi Security Honeywell Vista Ce Code Use the following instructions to determine what. Up to 32 codes can be used with a vista 15p system, while a vista 20p or 21ip can support up to 48 codes. I did a series of short videos on how to do some user interface on a honeywell security system. Honeywell vista security system trouble & check codes have a. Honeywell Vista Ce Code.
From dersnacpasorpmun.weebly.com
Honeywell Vista 20 Ip Muse TECHNOLOGIES Honeywell Vista Ce Code Do you have the manual? Remember, two of these slots will go to the installer code (slot 01) and the master code (slot 02). I did a series of short videos on how to do some user interface on a honeywell security system. Use the following instructions to determine what. The vista 15p can support up to 32 system codes.. Honeywell Vista Ce Code.
From schematicdbuntrodden.z21.web.core.windows.net
Vista 20p Programming Guide Honeywell Vista Ce Code In addition, other security codes can be assigned for use by other users (vista. How to clear trouble codes such as 6f communicator error, alarm, low battery, no power, and. I did a series of short videos on how to do some user interface on a honeywell security system. The vista 10p can support up to 16 system codes. About. Honeywell Vista Ce Code.
From www.slideshare.net
Honeywell Vista 15P Honeywell Vista 20P Programming Guide Honeywell Vista Ce Code The vista 15p can support up to 32 system codes. I did a series of short videos on how to do some user interface on a honeywell security system. Up to 32 codes can be used with a vista 15p system, while a vista 20p or 21ip can support up to 48 codes. The vista 21ip and vista 20p can. Honeywell Vista Ce Code.
From www.slideshare.net
Honeywell vista50pdatasheet Honeywell Vista Ce Code The vista 15p can support up to 32 system codes. I did a series of short videos on how to do some user interface on a honeywell security system. In addition, other security codes can be assigned for use by other users (vista. Honeywell vista security system trouble & check codes have a trouble condition on your honeywell vista series. Honeywell Vista Ce Code.
From www.slideshare.net
Honeywell Vista 15P Honeywell Vista 20P Programming Guide Honeywell Vista Ce Code The vista 10p can support up to 16 system codes. Up to 32 codes can be used with a vista 15p system, while a vista 20p or 21ip can support up to 48 codes. Remember, two of these slots will go to the installer code (slot 01) and the master code (slot 02). About security codes your installer assigned a. Honeywell Vista Ce Code.
From www.doityourself.com
Honeywell Vista 20P Report Code BB Community Forums Honeywell Vista Ce Code In addition, other security codes can be assigned for use by other users (vista. I did a series of short videos on how to do some user interface on a honeywell security system. Do you have the manual? Use the following instructions to determine what. Remember, two of these slots will go to the installer code (slot 01) and the. Honeywell Vista Ce Code.
From www.techairobotic.com
Revolutionize with Honeywell Vista Automation Module (VAM) Honeywell Vista Ce Code The vista 21ip and vista 20p can support up to 48 system codes. In addition, other security codes can be assigned for use by other users (vista. Honeywell vista security system trouble & check codes have a trouble condition on your honeywell vista series security system? Up to 32 codes can be used with a vista 15p system, while a. Honeywell Vista Ce Code.
From www.scribd.com
Honeywell Vista GSM Install Guide Security Alarm General Packet Honeywell Vista Ce Code In addition, other security codes can be assigned for use by other users (vista. Up to 32 codes can be used with a vista 15p system, while a vista 20p or 21ip can support up to 48 codes. Honeywell vista security system trouble & check codes have a trouble condition on your honeywell vista series security system? Remember, two of. Honeywell Vista Ce Code.
From www.youtube.com
Changing the User Code on Partition 2 In a Honeywell VISTA Alarm System Honeywell Vista Ce Code The vista 21ip and vista 20p can support up to 48 system codes. How to clear trouble codes such as 6f communicator error, alarm, low battery, no power, and. Remember, two of these slots will go to the installer code (slot 01) and the master code (slot 02). Do you have the manual? The vista 15p can support up to. Honeywell Vista Ce Code.
From www.slideshare.net
Honeywell vista20pdatasheet Honeywell Vista Ce Code How to clear trouble codes such as 6f communicator error, alarm, low battery, no power, and. Do you have the manual? I did a series of short videos on how to do some user interface on a honeywell security system. The vista 21ip and vista 20p can support up to 48 system codes. Up to 32 codes can be used. Honeywell Vista Ce Code.
From www.youtube.com
Create Duress Panic Code Vista 20p Honeywell Alarm Security Honeywell Vista Ce Code The vista 21ip and vista 20p can support up to 48 system codes. Up to 32 codes can be used with a vista 15p system, while a vista 20p or 21ip can support up to 48 codes. Do you have the manual? I did a series of short videos on how to do some user interface on a honeywell security. Honeywell Vista Ce Code.
From www.slideshare.net
Honeywell Vista 21IP Programming Guide Honeywell Vista Ce Code Do you have the manual? Up to 32 codes can be used with a vista 15p system, while a vista 20p or 21ip can support up to 48 codes. I did a series of short videos on how to do some user interface on a honeywell security system. The vista 10p can support up to 16 system codes. The vista. Honeywell Vista Ce Code.
From www.slideshare.net
Honeywell vista20pdatasheet Honeywell Vista Ce Code Do you have the manual? The vista 15p can support up to 32 system codes. How to clear trouble codes such as 6f communicator error, alarm, low battery, no power, and. Honeywell vista security system trouble & check codes have a trouble condition on your honeywell vista series security system? About security codes your installer assigned a master code that. Honeywell Vista Ce Code.
From www.youtube.com
Honeywell Vista Operations Change Code YouTube Honeywell Vista Ce Code About security codes your installer assigned a master code that is used to perform all system functions. In addition, other security codes can be assigned for use by other users (vista. The vista 21ip and vista 20p can support up to 48 system codes. Do you have the manual? The vista 10p can support up to 16 system codes. Use. Honeywell Vista Ce Code.
From www.slideshare.net
Honeywell Vista 128BPT Datasheet Honeywell Vista Ce Code About security codes your installer assigned a master code that is used to perform all system functions. I did a series of short videos on how to do some user interface on a honeywell security system. The vista 15p can support up to 32 system codes. Do you have the manual? Up to 32 codes can be used with a. Honeywell Vista Ce Code.
From es.scribd.com
Honeywell Vista 15p Honeywell Vista 20p Quick Install Guide Honeywell Vista Ce Code Remember, two of these slots will go to the installer code (slot 01) and the master code (slot 02). The vista 15p can support up to 32 system codes. The vista 21ip and vista 20p can support up to 48 system codes. Do you have the manual? Up to 32 codes can be used with a vista 15p system, while. Honeywell Vista Ce Code.
From www.youtube.com
How to Set the Master and User Codes on your Honeywell 6160 Alarm Honeywell Vista Ce Code Use the following instructions to determine what. Up to 32 codes can be used with a vista 15p system, while a vista 20p or 21ip can support up to 48 codes. In addition, other security codes can be assigned for use by other users (vista. Do you have the manual? Honeywell vista security system trouble & check codes have a. Honeywell Vista Ce Code.
From www.youtube.com
User Manual Instruction Guide To Honeywell Security Alarm Vista 20p Honeywell Vista Ce Code Up to 32 codes can be used with a vista 15p system, while a vista 20p or 21ip can support up to 48 codes. About security codes your installer assigned a master code that is used to perform all system functions. Remember, two of these slots will go to the installer code (slot 01) and the master code (slot 02).. Honeywell Vista Ce Code.