Form Joint Application . Applying through the joint application is done with one form. These 6 options may include degree programmes from one or several different higher. (attachment) please submit this application form in word format file (data file) to research support section of the related. In the first joint application in spring, you can. Learn how to apply to up to six study programmes in finland with one form. You can apply to university of applied sciences by filling in a joint application form at studyinfo.fi during the application period. Note that you can only submit one (1) application form in joint applications. Find out the dates, requirements and available options for the. You can apply to a maximum of six degree programmes which. Joint application means that you can apply to up to six (6) study programmes with one application form. Find out the application deadlines, scholarship options, and study programmes for the joint and separate application rounds. If you submit several application forms, only the newest one will be.
from www.templateroller.com
Applying through the joint application is done with one form. Learn how to apply to up to six study programmes in finland with one form. You can apply to a maximum of six degree programmes which. (attachment) please submit this application form in word format file (data file) to research support section of the related. Find out the dates, requirements and available options for the. Find out the application deadlines, scholarship options, and study programmes for the joint and separate application rounds. In the first joint application in spring, you can. If you submit several application forms, only the newest one will be. These 6 options may include degree programmes from one or several different higher. Note that you can only submit one (1) application form in joint applications.
SBA Form 841 Download Fillable PDF or Fill Online Joint Application
Form Joint Application Applying through the joint application is done with one form. If you submit several application forms, only the newest one will be. Joint application means that you can apply to up to six (6) study programmes with one application form. Applying through the joint application is done with one form. You can apply to university of applied sciences by filling in a joint application form at studyinfo.fi during the application period. Learn how to apply to up to six study programmes in finland with one form. You can apply to a maximum of six degree programmes which. In the first joint application in spring, you can. (attachment) please submit this application form in word format file (data file) to research support section of the related. Find out the dates, requirements and available options for the. Find out the application deadlines, scholarship options, and study programmes for the joint and separate application rounds. These 6 options may include degree programmes from one or several different higher. Note that you can only submit one (1) application form in joint applications.
From www.buysampleforms.com
Download Joint Divorce Application Form Sample Forms Form Joint Application Note that you can only submit one (1) application form in joint applications. Applying through the joint application is done with one form. Find out the application deadlines, scholarship options, and study programmes for the joint and separate application rounds. If you submit several application forms, only the newest one will be. These 6 options may include degree programmes from. Form Joint Application.
From v-s.mobi
Download Joint declaration form kaise bhare 2022 joint declaration Form Joint Application Find out the dates, requirements and available options for the. Applying through the joint application is done with one form. You can apply to a maximum of six degree programmes which. Note that you can only submit one (1) application form in joint applications. These 6 options may include degree programmes from one or several different higher. Learn how to. Form Joint Application.
From peoplescredit.net
FILLABLE JOINT CREDIT APPLICATION Peoples Credit Inc. Form Joint Application Find out the application deadlines, scholarship options, and study programmes for the joint and separate application rounds. (attachment) please submit this application form in word format file (data file) to research support section of the related. Note that you can only submit one (1) application form in joint applications. Learn how to apply to up to six study programmes in. Form Joint Application.
From www.templateroller.com
New York Joint Application Form Download Fillable PDF 2016 — 2024 Form Joint Application If you submit several application forms, only the newest one will be. You can apply to a maximum of six degree programmes which. These 6 options may include degree programmes from one or several different higher. In the first joint application in spring, you can. Find out the dates, requirements and available options for the. (attachment) please submit this application. Form Joint Application.
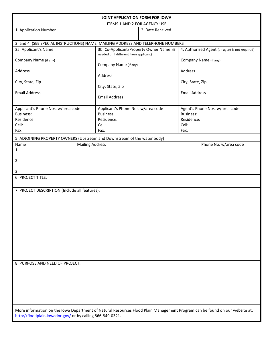
From www.templateroller.com
Iowa Joint Application Form for Iowa Fill Out, Sign Online and Form Joint Application These 6 options may include degree programmes from one or several different higher. (attachment) please submit this application form in word format file (data file) to research support section of the related. In the first joint application in spring, you can. You can apply to a maximum of six degree programmes which. Applying through the joint application is done with. Form Joint Application.
From www.templateroller.com
New York Joint Application Form Download Fillable PDF Templateroller Form Joint Application Find out the dates, requirements and available options for the. In the first joint application in spring, you can. If you submit several application forms, only the newest one will be. (attachment) please submit this application form in word format file (data file) to research support section of the related. You can apply to university of applied sciences by filling. Form Joint Application.
From www.templateroller.com
SBA Form 841 Download Fillable PDF or Fill Online Joint Application Form Joint Application You can apply to a maximum of six degree programmes which. (attachment) please submit this application form in word format file (data file) to research support section of the related. Find out the application deadlines, scholarship options, and study programmes for the joint and separate application rounds. Find out the dates, requirements and available options for the. If you submit. Form Joint Application.
From www.signnow.com
Joint Account Edit & Share airSlate SignNow Form Joint Application These 6 options may include degree programmes from one or several different higher. You can apply to university of applied sciences by filling in a joint application form at studyinfo.fi during the application period. In the first joint application in spring, you can. If you submit several application forms, only the newest one will be. Applying through the joint application. Form Joint Application.
From www.templateroller.com
SBA Form 841 Download Fillable PDF or Fill Online Joint Application Form Joint Application These 6 options may include degree programmes from one or several different higher. In the first joint application in spring, you can. Applying through the joint application is done with one form. Find out the dates, requirements and available options for the. Note that you can only submit one (1) application form in joint applications. You can apply to a. Form Joint Application.
From www.scribd.com
01 CIMB Securities Individual & Joint Account Application Form (Cse151 Form Joint Application If you submit several application forms, only the newest one will be. You can apply to a maximum of six degree programmes which. Joint application means that you can apply to up to six (6) study programmes with one application form. These 6 options may include degree programmes from one or several different higher. (attachment) please submit this application form. Form Joint Application.
From www.signnow.com
JOINT APPLICATION to ADD PARENTAGE and MARRIAGE Form Fill Out and Form Joint Application Applying through the joint application is done with one form. (attachment) please submit this application form in word format file (data file) to research support section of the related. Find out the application deadlines, scholarship options, and study programmes for the joint and separate application rounds. If you submit several application forms, only the newest one will be. Find out. Form Joint Application.
From studylib.net
Joint Permit Application Form Form Joint Application You can apply to university of applied sciences by filling in a joint application form at studyinfo.fi during the application period. Applying through the joint application is done with one form. Learn how to apply to up to six study programmes in finland with one form. Find out the dates, requirements and available options for the. Find out the application. Form Joint Application.
From www.signnow.com
Joint Application and Notification Form Fill Out and Sign Printable Form Joint Application If you submit several application forms, only the newest one will be. You can apply to university of applied sciences by filling in a joint application form at studyinfo.fi during the application period. In the first joint application in spring, you can. (attachment) please submit this application form in word format file (data file) to research support section of the. Form Joint Application.
From www.hrcabin.com
PF Joint Declaration Form PDF 2023 Correct PF Details in 30 Days Form Joint Application Joint application means that you can apply to up to six (6) study programmes with one application form. (attachment) please submit this application form in word format file (data file) to research support section of the related. Applying through the joint application is done with one form. You can apply to university of applied sciences by filling in a joint. Form Joint Application.
From rxistsource.blogspot.com
PHARMACY PDEA Forms for SLicense Application Form Joint Application If you submit several application forms, only the newest one will be. In the first joint application in spring, you can. Find out the dates, requirements and available options for the. Joint application means that you can apply to up to six (6) study programmes with one application form. Note that you can only submit one (1) application form in. Form Joint Application.
From dokumen.tips
(PDF) INSTRUCTIONS TO FILL APPLICATION FORM OSB Group · the bottom of Form Joint Application Learn how to apply to up to six study programmes in finland with one form. You can apply to a maximum of six degree programmes which. These 6 options may include degree programmes from one or several different higher. You can apply to university of applied sciences by filling in a joint application form at studyinfo.fi during the application period.. Form Joint Application.
From www.scribd.com
Epfo India New Joint Declaration Form PDF Form Joint Application (attachment) please submit this application form in word format file (data file) to research support section of the related. Joint application means that you can apply to up to six (6) study programmes with one application form. If you submit several application forms, only the newest one will be. You can apply to a maximum of six degree programmes which.. Form Joint Application.
From www.templateroller.com
SBA Form 841 Download Fillable PDF or Fill Online Joint Application Form Joint Application You can apply to a maximum of six degree programmes which. Learn how to apply to up to six study programmes in finland with one form. In the first joint application in spring, you can. Applying through the joint application is done with one form. If you submit several application forms, only the newest one will be. (attachment) please submit. Form Joint Application.
From www.templateroller.com
Form C82J Fill Out, Sign Online and Download Fillable PDF, Texas Form Joint Application You can apply to university of applied sciences by filling in a joint application form at studyinfo.fi during the application period. Joint application means that you can apply to up to six (6) study programmes with one application form. Find out the application deadlines, scholarship options, and study programmes for the joint and separate application rounds. In the first joint. Form Joint Application.
From www.sampletemplates.com
FREE 50+ Sample Application Form Templates in Word, Google Docs, Pages Form Joint Application In the first joint application in spring, you can. Learn how to apply to up to six study programmes in finland with one form. If you submit several application forms, only the newest one will be. Joint application means that you can apply to up to six (6) study programmes with one application form. You can apply to university of. Form Joint Application.
From www.studocu.com
Studyinfo application form Joint Application to Higher Education Form Joint Application Find out the dates, requirements and available options for the. You can apply to university of applied sciences by filling in a joint application form at studyinfo.fi during the application period. In the first joint application in spring, you can. Find out the application deadlines, scholarship options, and study programmes for the joint and separate application rounds. You can apply. Form Joint Application.
From www.signnow.com
Joint Intent for Commercial Loans Complete with ease airSlate SignNow Form Joint Application Find out the dates, requirements and available options for the. In the first joint application in spring, you can. Learn how to apply to up to six study programmes in finland with one form. (attachment) please submit this application form in word format file (data file) to research support section of the related. You can apply to university of applied. Form Joint Application.
From www.templateroller.com
New York Joint Application Form Download Fillable PDF Templateroller Form Joint Application Joint application means that you can apply to up to six (6) study programmes with one application form. You can apply to a maximum of six degree programmes which. Learn how to apply to up to six study programmes in finland with one form. Find out the dates, requirements and available options for the. You can apply to university of. Form Joint Application.
From www.editableforms.com
Joint Divorce Application Form Editable PDF Forms Form Joint Application These 6 options may include degree programmes from one or several different higher. Find out the dates, requirements and available options for the. Applying through the joint application is done with one form. Joint application means that you can apply to up to six (6) study programmes with one application form. Learn how to apply to up to six study. Form Joint Application.
From www.formsbank.com
Fillable Application Form For Joint Degree Jd/mpa printable pdf download Form Joint Application Find out the dates, requirements and available options for the. (attachment) please submit this application form in word format file (data file) to research support section of the related. Learn how to apply to up to six study programmes in finland with one form. Note that you can only submit one (1) application form in joint applications. You can apply. Form Joint Application.
From www.templateroller.com
SBA Form 841 Download Fillable PDF or Fill Online Joint Application Form Joint Application Find out the application deadlines, scholarship options, and study programmes for the joint and separate application rounds. Joint application means that you can apply to up to six (6) study programmes with one application form. In the first joint application in spring, you can. (attachment) please submit this application form in word format file (data file) to research support section. Form Joint Application.
From www.templateroller.com
ADEM Form 166 Download Fillable PDF or Fill Online Joint Application Form Joint Application Applying through the joint application is done with one form. If you submit several application forms, only the newest one will be. In the first joint application in spring, you can. You can apply to university of applied sciences by filling in a joint application form at studyinfo.fi during the application period. Find out the application deadlines, scholarship options, and. Form Joint Application.
From www.formevo.co.uk
SEV Application to enter a Form A restriction on severance of joint Form Joint Application Learn how to apply to up to six study programmes in finland with one form. Find out the application deadlines, scholarship options, and study programmes for the joint and separate application rounds. Joint application means that you can apply to up to six (6) study programmes with one application form. Find out the dates, requirements and available options for the.. Form Joint Application.
From www.templateroller.com
SBA Form 841 Download Fillable PDF or Fill Online Joint Application Form Joint Application Find out the dates, requirements and available options for the. These 6 options may include degree programmes from one or several different higher. Joint application means that you can apply to up to six (6) study programmes with one application form. Learn how to apply to up to six study programmes in finland with one form. Note that you can. Form Joint Application.
From www.templateroller.com
NWW Form 11451 (IDWR3804B) Fill Out, Sign Online and Download Form Joint Application These 6 options may include degree programmes from one or several different higher. Find out the dates, requirements and available options for the. (attachment) please submit this application form in word format file (data file) to research support section of the related. You can apply to university of applied sciences by filling in a joint application form at studyinfo.fi during. Form Joint Application.
From www.printableform.net
Form 36 Affidavit For Divorce Joint Application Printable Form 2022 Form Joint Application These 6 options may include degree programmes from one or several different higher. Find out the dates, requirements and available options for the. (attachment) please submit this application form in word format file (data file) to research support section of the related. Find out the application deadlines, scholarship options, and study programmes for the joint and separate application rounds. In. Form Joint Application.
From www.sampletemplates.com
FREE 63+ Printable Application Forms in MS Word PDF Pages Google Docs Form Joint Application These 6 options may include degree programmes from one or several different higher. Find out the dates, requirements and available options for the. Applying through the joint application is done with one form. (attachment) please submit this application form in word format file (data file) to research support section of the related. Find out the application deadlines, scholarship options, and. Form Joint Application.
From www.templateroller.com
Maryland Joint Application for State Commercial Shellfish Aquaculture Form Joint Application Applying through the joint application is done with one form. You can apply to university of applied sciences by filling in a joint application form at studyinfo.fi during the application period. If you submit several application forms, only the newest one will be. You can apply to a maximum of six degree programmes which. Find out the dates, requirements and. Form Joint Application.
From www.templateroller.com
Maryland Joint Application for State Commercial Shellfish Aquaculture Form Joint Application Note that you can only submit one (1) application form in joint applications. If you submit several application forms, only the newest one will be. Applying through the joint application is done with one form. In the first joint application in spring, you can. Joint application means that you can apply to up to six (6) study programmes with one. Form Joint Application.
From www.templateroller.com
Download Instructions for Joint Application Form PDF Templateroller Form Joint Application Learn how to apply to up to six study programmes in finland with one form. You can apply to a maximum of six degree programmes which. Note that you can only submit one (1) application form in joint applications. (attachment) please submit this application form in word format file (data file) to research support section of the related. In the. Form Joint Application.