How Much Does It Cost To Build A Small Coffee Shop . It all depends on your location and the size of your dream café. However, before embarking on this exciting journey, it’s crucial to understand the estimated costs involved. So having a wise and. How much does it cost to purchase coffee shop equipment? On average, you can expect to spend several thousand dollars on espresso machines, grinders, brewers,. With that in mind, here are the cost ranges for opening a coffee shop or expanding an existing one: A professional coffee shop website is essential for attracting customers online, providing information, and offering online. Coffee shop with seating only: The estimated cost of opening a coffee shop, considering equipment, rent, salaries, licensing, permits, and inventory, can range from $100,000 to $500,000 or even more. And generate about $300 to $800 revenue per year per square foot for the most successful ones.
from www.catererbar.com
And generate about $300 to $800 revenue per year per square foot for the most successful ones. It all depends on your location and the size of your dream café. So having a wise and. However, before embarking on this exciting journey, it’s crucial to understand the estimated costs involved. Coffee shop with seating only: With that in mind, here are the cost ranges for opening a coffee shop or expanding an existing one: The estimated cost of opening a coffee shop, considering equipment, rent, salaries, licensing, permits, and inventory, can range from $100,000 to $500,000 or even more. On average, you can expect to spend several thousand dollars on espresso machines, grinders, brewers,. A professional coffee shop website is essential for attracting customers online, providing information, and offering online. How much does it cost to purchase coffee shop equipment?
How much money do coffee shop owners make? About bars
How Much Does It Cost To Build A Small Coffee Shop A professional coffee shop website is essential for attracting customers online, providing information, and offering online. A professional coffee shop website is essential for attracting customers online, providing information, and offering online. How much does it cost to purchase coffee shop equipment? So having a wise and. The estimated cost of opening a coffee shop, considering equipment, rent, salaries, licensing, permits, and inventory, can range from $100,000 to $500,000 or even more. On average, you can expect to spend several thousand dollars on espresso machines, grinders, brewers,. However, before embarking on this exciting journey, it’s crucial to understand the estimated costs involved. With that in mind, here are the cost ranges for opening a coffee shop or expanding an existing one: It all depends on your location and the size of your dream café. And generate about $300 to $800 revenue per year per square foot for the most successful ones. Coffee shop with seating only:
From www.pinterest.co.uk
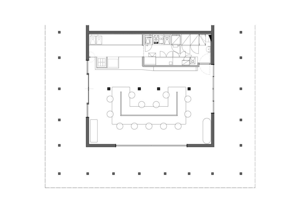
How to Create an Awesome Coffee Shop Floor Plan (Any Size or Dimension How Much Does It Cost To Build A Small Coffee Shop So having a wise and. With that in mind, here are the cost ranges for opening a coffee shop or expanding an existing one: A professional coffee shop website is essential for attracting customers online, providing information, and offering online. It all depends on your location and the size of your dream café. How much does it cost to purchase. How Much Does It Cost To Build A Small Coffee Shop.
From www.pinterest.co.uk
Can A Small Independent Coffee Shop Compete? Morning Business Chat How Much Does It Cost To Build A Small Coffee Shop Coffee shop with seating only: And generate about $300 to $800 revenue per year per square foot for the most successful ones. How much does it cost to purchase coffee shop equipment? It all depends on your location and the size of your dream café. A professional coffee shop website is essential for attracting customers online, providing information, and offering. How Much Does It Cost To Build A Small Coffee Shop.
From coffeeshopstartups.com
How Much Does It Cost to Start a Coffee Shop Business? Coffee Shop How Much Does It Cost To Build A Small Coffee Shop With that in mind, here are the cost ranges for opening a coffee shop or expanding an existing one: So having a wise and. How much does it cost to purchase coffee shop equipment? The estimated cost of opening a coffee shop, considering equipment, rent, salaries, licensing, permits, and inventory, can range from $100,000 to $500,000 or even more. It. How Much Does It Cost To Build A Small Coffee Shop.
From startmycoffeeshop.com
Cost to Run a Small Coffee Shop Setting the Budget for Your Coffee How Much Does It Cost To Build A Small Coffee Shop However, before embarking on this exciting journey, it’s crucial to understand the estimated costs involved. And generate about $300 to $800 revenue per year per square foot for the most successful ones. It all depends on your location and the size of your dream café. With that in mind, here are the cost ranges for opening a coffee shop or. How Much Does It Cost To Build A Small Coffee Shop.
From www.pinterest.com
Sefton Coffee Co. Shop interiors, Coffee shops interior, Small cafe How Much Does It Cost To Build A Small Coffee Shop So having a wise and. With that in mind, here are the cost ranges for opening a coffee shop or expanding an existing one: However, before embarking on this exciting journey, it’s crucial to understand the estimated costs involved. A professional coffee shop website is essential for attracting customers online, providing information, and offering online. The estimated cost of opening. How Much Does It Cost To Build A Small Coffee Shop.
From www.pinterest.com
📍 Coffee Shop in London, UK Desain Gerobak Jualan Terbaru How Much Does It Cost To Build A Small Coffee Shop Coffee shop with seating only: With that in mind, here are the cost ranges for opening a coffee shop or expanding an existing one: How much does it cost to purchase coffee shop equipment? A professional coffee shop website is essential for attracting customers online, providing information, and offering online. So having a wise and. It all depends on your. How Much Does It Cost To Build A Small Coffee Shop.
From www.pjsfranchise.com
How Much Does it Cost to Open a Coffee Shop? PJ's Coffee Franchise Blog How Much Does It Cost To Build A Small Coffee Shop Coffee shop with seating only: And generate about $300 to $800 revenue per year per square foot for the most successful ones. How much does it cost to purchase coffee shop equipment? On average, you can expect to spend several thousand dollars on espresso machines, grinders, brewers,. So having a wise and. It all depends on your location and the. How Much Does It Cost To Build A Small Coffee Shop.
From www.arch2o.com
20 Inspiring Small Coffee Shop Designs in Detail How Much Does It Cost To Build A Small Coffee Shop It all depends on your location and the size of your dream café. However, before embarking on this exciting journey, it’s crucial to understand the estimated costs involved. How much does it cost to purchase coffee shop equipment? The estimated cost of opening a coffee shop, considering equipment, rent, salaries, licensing, permits, and inventory, can range from $100,000 to $500,000. How Much Does It Cost To Build A Small Coffee Shop.
From www.catererbar.com
How much money do coffee shop owners make? About bars How Much Does It Cost To Build A Small Coffee Shop It all depends on your location and the size of your dream café. Coffee shop with seating only: How much does it cost to purchase coffee shop equipment? However, before embarking on this exciting journey, it’s crucial to understand the estimated costs involved. On average, you can expect to spend several thousand dollars on espresso machines, grinders, brewers,. The estimated. How Much Does It Cost To Build A Small Coffee Shop.
From startmycoffeeshop.com
Average Cost of Starting a Small Coffee Shop Costing Out Your Coffee How Much Does It Cost To Build A Small Coffee Shop So having a wise and. The estimated cost of opening a coffee shop, considering equipment, rent, salaries, licensing, permits, and inventory, can range from $100,000 to $500,000 or even more. And generate about $300 to $800 revenue per year per square foot for the most successful ones. It all depends on your location and the size of your dream café.. How Much Does It Cost To Build A Small Coffee Shop.
From gioicocda.blob.core.windows.net
How Much Does It Cost To Start A Coffee Cafe at Matthew Muniz blog How Much Does It Cost To Build A Small Coffee Shop However, before embarking on this exciting journey, it’s crucial to understand the estimated costs involved. A professional coffee shop website is essential for attracting customers online, providing information, and offering online. Coffee shop with seating only: And generate about $300 to $800 revenue per year per square foot for the most successful ones. It all depends on your location and. How Much Does It Cost To Build A Small Coffee Shop.
From www.re-thinkingthefuture.com
15 Creative small coffee shop design Ideas RTF How Much Does It Cost To Build A Small Coffee Shop The estimated cost of opening a coffee shop, considering equipment, rent, salaries, licensing, permits, and inventory, can range from $100,000 to $500,000 or even more. With that in mind, here are the cost ranges for opening a coffee shop or expanding an existing one: Coffee shop with seating only: On average, you can expect to spend several thousand dollars on. How Much Does It Cost To Build A Small Coffee Shop.
From www.pinterest.com
How Much Money Does a Coffee Shop Owner Make? Estimated Revenue How Much Does It Cost To Build A Small Coffee Shop However, before embarking on this exciting journey, it’s crucial to understand the estimated costs involved. A professional coffee shop website is essential for attracting customers online, providing information, and offering online. It all depends on your location and the size of your dream café. Coffee shop with seating only: On average, you can expect to spend several thousand dollars on. How Much Does It Cost To Build A Small Coffee Shop.
From www.vrogue.co
Retail Small Coffee Kiosk Design Container 3d Max Cof vrogue.co How Much Does It Cost To Build A Small Coffee Shop And generate about $300 to $800 revenue per year per square foot for the most successful ones. With that in mind, here are the cost ranges for opening a coffee shop or expanding an existing one: It all depends on your location and the size of your dream café. Coffee shop with seating only: How much does it cost to. How Much Does It Cost To Build A Small Coffee Shop.
From www.pinterest.com
Before Starting Your Coffee Shop Plan Your Sample Budget Coffee Shop How Much Does It Cost To Build A Small Coffee Shop On average, you can expect to spend several thousand dollars on espresso machines, grinders, brewers,. How much does it cost to purchase coffee shop equipment? A professional coffee shop website is essential for attracting customers online, providing information, and offering online. It all depends on your location and the size of your dream café. The estimated cost of opening a. How Much Does It Cost To Build A Small Coffee Shop.
From blog.petpooja.com
A to Z of Coffee Shop Equipment Petpooja How Much Does It Cost To Build A Small Coffee Shop So having a wise and. It all depends on your location and the size of your dream café. And generate about $300 to $800 revenue per year per square foot for the most successful ones. The estimated cost of opening a coffee shop, considering equipment, rent, salaries, licensing, permits, and inventory, can range from $100,000 to $500,000 or even more.. How Much Does It Cost To Build A Small Coffee Shop.
From www.pinterest.com
A 15 Step Plan To Start a Coffee Stand Business Coffee Shop Startups How Much Does It Cost To Build A Small Coffee Shop On average, you can expect to spend several thousand dollars on espresso machines, grinders, brewers,. Coffee shop with seating only: How much does it cost to purchase coffee shop equipment? With that in mind, here are the cost ranges for opening a coffee shop or expanding an existing one: So having a wise and. The estimated cost of opening a. How Much Does It Cost To Build A Small Coffee Shop.
From www.pinterest.com
How To Start a Coffee Shop Bookstore Coffee Shop Startups Starting How Much Does It Cost To Build A Small Coffee Shop It all depends on your location and the size of your dream café. However, before embarking on this exciting journey, it’s crucial to understand the estimated costs involved. How much does it cost to purchase coffee shop equipment? And generate about $300 to $800 revenue per year per square foot for the most successful ones. Coffee shop with seating only:. How Much Does It Cost To Build A Small Coffee Shop.
From www.pinterest.com
start your coffee business, set up your coffee shop, how to open a How Much Does It Cost To Build A Small Coffee Shop On average, you can expect to spend several thousand dollars on espresso machines, grinders, brewers,. The estimated cost of opening a coffee shop, considering equipment, rent, salaries, licensing, permits, and inventory, can range from $100,000 to $500,000 or even more. Coffee shop with seating only: So having a wise and. A professional coffee shop website is essential for attracting customers. How Much Does It Cost To Build A Small Coffee Shop.
From www.artstation.com
ArtStation Cozy Coffee Shop How Much Does It Cost To Build A Small Coffee Shop The estimated cost of opening a coffee shop, considering equipment, rent, salaries, licensing, permits, and inventory, can range from $100,000 to $500,000 or even more. So having a wise and. How much does it cost to purchase coffee shop equipment? Coffee shop with seating only: With that in mind, here are the cost ranges for opening a coffee shop or. How Much Does It Cost To Build A Small Coffee Shop.
From yen.com.gh
Lowbudget small cafe interior design ideas great for small spaces How Much Does It Cost To Build A Small Coffee Shop Coffee shop with seating only: How much does it cost to purchase coffee shop equipment? The estimated cost of opening a coffee shop, considering equipment, rent, salaries, licensing, permits, and inventory, can range from $100,000 to $500,000 or even more. A professional coffee shop website is essential for attracting customers online, providing information, and offering online. On average, you can. How Much Does It Cost To Build A Small Coffee Shop.
From www.behance.net
A Little Coffee Behance How Much Does It Cost To Build A Small Coffee Shop A professional coffee shop website is essential for attracting customers online, providing information, and offering online. On average, you can expect to spend several thousand dollars on espresso machines, grinders, brewers,. However, before embarking on this exciting journey, it’s crucial to understand the estimated costs involved. So having a wise and. And generate about $300 to $800 revenue per year. How Much Does It Cost To Build A Small Coffee Shop.
From uniquekiosk.com
Small size coffee shop customize cafe counter design for sale How Much Does It Cost To Build A Small Coffee Shop So having a wise and. A professional coffee shop website is essential for attracting customers online, providing information, and offering online. And generate about $300 to $800 revenue per year per square foot for the most successful ones. On average, you can expect to spend several thousand dollars on espresso machines, grinders, brewers,. The estimated cost of opening a coffee. How Much Does It Cost To Build A Small Coffee Shop.
From www.re-thinkingthefuture.com
15 Creative small coffee shop design Ideas RTF How Much Does It Cost To Build A Small Coffee Shop With that in mind, here are the cost ranges for opening a coffee shop or expanding an existing one: How much does it cost to purchase coffee shop equipment? So having a wise and. However, before embarking on this exciting journey, it’s crucial to understand the estimated costs involved. And generate about $300 to $800 revenue per year per square. How Much Does It Cost To Build A Small Coffee Shop.
From coffeeshopstartups.com
How Much Money Does a Coffee Shop Owner Make? Estimated Revenue How Much Does It Cost To Build A Small Coffee Shop A professional coffee shop website is essential for attracting customers online, providing information, and offering online. With that in mind, here are the cost ranges for opening a coffee shop or expanding an existing one: However, before embarking on this exciting journey, it’s crucial to understand the estimated costs involved. Coffee shop with seating only: It all depends on your. How Much Does It Cost To Build A Small Coffee Shop.
From khatabook.com
Coffee Shop Business in India How to Start Small Coffee Shop Business How Much Does It Cost To Build A Small Coffee Shop A professional coffee shop website is essential for attracting customers online, providing information, and offering online. Coffee shop with seating only: And generate about $300 to $800 revenue per year per square foot for the most successful ones. However, before embarking on this exciting journey, it’s crucial to understand the estimated costs involved. The estimated cost of opening a coffee. How Much Does It Cost To Build A Small Coffee Shop.
From freshcup.com
The Magic Of Small Coffee Shops Fresh Cup Magazine How Much Does It Cost To Build A Small Coffee Shop With that in mind, here are the cost ranges for opening a coffee shop or expanding an existing one: The estimated cost of opening a coffee shop, considering equipment, rent, salaries, licensing, permits, and inventory, can range from $100,000 to $500,000 or even more. However, before embarking on this exciting journey, it’s crucial to understand the estimated costs involved. On. How Much Does It Cost To Build A Small Coffee Shop.
From www.pinterest.com
Coffee Shop Equipment You Need To Start a Coffee Shop Coffee Shop How Much Does It Cost To Build A Small Coffee Shop With that in mind, here are the cost ranges for opening a coffee shop or expanding an existing one: And generate about $300 to $800 revenue per year per square foot for the most successful ones. Coffee shop with seating only: How much does it cost to purchase coffee shop equipment? It all depends on your location and the size. How Much Does It Cost To Build A Small Coffee Shop.
From en.idei.club
Small coffee shop design 75 photo How Much Does It Cost To Build A Small Coffee Shop On average, you can expect to spend several thousand dollars on espresso machines, grinders, brewers,. And generate about $300 to $800 revenue per year per square foot for the most successful ones. A professional coffee shop website is essential for attracting customers online, providing information, and offering online. It all depends on your location and the size of your dream. How Much Does It Cost To Build A Small Coffee Shop.
From freshcup.com
The Magic Of Small Coffee Shops Fresh Cup Magazine How Much Does It Cost To Build A Small Coffee Shop The estimated cost of opening a coffee shop, considering equipment, rent, salaries, licensing, permits, and inventory, can range from $100,000 to $500,000 or even more. With that in mind, here are the cost ranges for opening a coffee shop or expanding an existing one: On average, you can expect to spend several thousand dollars on espresso machines, grinders, brewers,. And. How Much Does It Cost To Build A Small Coffee Shop.
From www.arch2o.com
20 Inspiring Small Coffee Shop Designs in Detail How Much Does It Cost To Build A Small Coffee Shop Coffee shop with seating only: However, before embarking on this exciting journey, it’s crucial to understand the estimated costs involved. It all depends on your location and the size of your dream café. So having a wise and. How much does it cost to purchase coffee shop equipment? On average, you can expect to spend several thousand dollars on espresso. How Much Does It Cost To Build A Small Coffee Shop.
From startmycoffeeshop.com
Small Coffee Shop Startup Cost A Holistic Look at the Costs of Opening How Much Does It Cost To Build A Small Coffee Shop How much does it cost to purchase coffee shop equipment? A professional coffee shop website is essential for attracting customers online, providing information, and offering online. Coffee shop with seating only: And generate about $300 to $800 revenue per year per square foot for the most successful ones. So having a wise and. However, before embarking on this exciting journey,. How Much Does It Cost To Build A Small Coffee Shop.
From www.artofit.org
How much money does a coffee shop owner make estimated revenue Artofit How Much Does It Cost To Build A Small Coffee Shop Coffee shop with seating only: It all depends on your location and the size of your dream café. A professional coffee shop website is essential for attracting customers online, providing information, and offering online. The estimated cost of opening a coffee shop, considering equipment, rent, salaries, licensing, permits, and inventory, can range from $100,000 to $500,000 or even more. On. How Much Does It Cost To Build A Small Coffee Shop.
From www.pinterest.com
Owning my own coffee shop has always been a life long dream of mine How Much Does It Cost To Build A Small Coffee Shop So having a wise and. A professional coffee shop website is essential for attracting customers online, providing information, and offering online. It all depends on your location and the size of your dream café. How much does it cost to purchase coffee shop equipment? With that in mind, here are the cost ranges for opening a coffee shop or expanding. How Much Does It Cost To Build A Small Coffee Shop.
From startmycoffeeshop.com
Startup Cost for a Small Coffee Shop Breaking Down the Price Barrier How Much Does It Cost To Build A Small Coffee Shop So having a wise and. However, before embarking on this exciting journey, it’s crucial to understand the estimated costs involved. A professional coffee shop website is essential for attracting customers online, providing information, and offering online. Coffee shop with seating only: It all depends on your location and the size of your dream café. And generate about $300 to $800. How Much Does It Cost To Build A Small Coffee Shop.