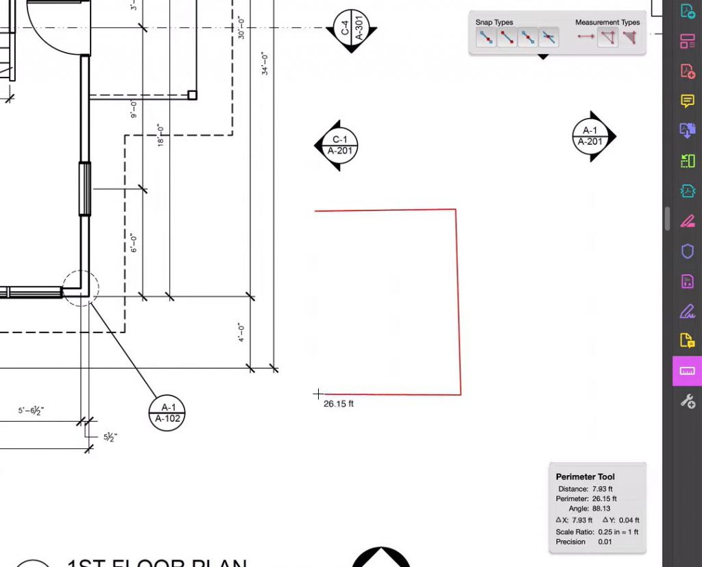
Adobe Measuring Tool Set Scale . Click measuring tool at the top of the document workspace and then pick one of the measurement types:. When using the measuring tool, the scale ratio is set to 1 in = 1 in. Choose view > tools > analyze to open the analyze panel. When i measure the scale. On the next dialog, you can change. This will enable millimeters to be displayed when measuring the page itself or displaying the. To change your default page units: I've received a construction site plan pdf with a 1in=60ft scale on the drawing. Click on the measuring tool, and then pick one of the measurement. Click measure to move to the measuring view of acrobat. It displays the following options:
from www.cisdem.com
I've received a construction site plan pdf with a 1in=60ft scale on the drawing. This will enable millimeters to be displayed when measuring the page itself or displaying the. Click on the measuring tool, and then pick one of the measurement. When i measure the scale. Click measure to move to the measuring view of acrobat. Click measuring tool at the top of the document workspace and then pick one of the measurement types:. When using the measuring tool, the scale ratio is set to 1 in = 1 in. On the next dialog, you can change. Choose view > tools > analyze to open the analyze panel. To change your default page units:
7 Best PDF Measuring Tools You Can’t Miss (Free, Online Incl.)
Adobe Measuring Tool Set Scale When i measure the scale. Click measuring tool at the top of the document workspace and then pick one of the measurement types:. It displays the following options: On the next dialog, you can change. When using the measuring tool, the scale ratio is set to 1 in = 1 in. Click on the measuring tool, and then pick one of the measurement. I've received a construction site plan pdf with a 1in=60ft scale on the drawing. Click measure to move to the measuring view of acrobat. When i measure the scale. This will enable millimeters to be displayed when measuring the page itself or displaying the. Choose view > tools > analyze to open the analyze panel. To change your default page units:
From www.bittbox.com
How to Use the Measure Tool in Adobe Illustrator Bittbox Adobe Measuring Tool Set Scale To change your default page units: This will enable millimeters to be displayed when measuring the page itself or displaying the. Choose view > tools > analyze to open the analyze panel. Click measure to move to the measuring view of acrobat. When using the measuring tool, the scale ratio is set to 1 in = 1 in. When i. Adobe Measuring Tool Set Scale.
From updf.com
How to Use Adobe Acrobat Measure Tool? (With Ease) UPDF Adobe Measuring Tool Set Scale I've received a construction site plan pdf with a 1in=60ft scale on the drawing. When using the measuring tool, the scale ratio is set to 1 in = 1 in. This will enable millimeters to be displayed when measuring the page itself or displaying the. On the next dialog, you can change. It displays the following options: Click on the. Adobe Measuring Tool Set Scale.
From community.adobe.com
Measuring Tool in Acrobat Pro DC Adobe Community 10932264 Adobe Measuring Tool Set Scale I've received a construction site plan pdf with a 1in=60ft scale on the drawing. On the next dialog, you can change. Choose view > tools > analyze to open the analyze panel. Click on the measuring tool, and then pick one of the measurement. To change your default page units: When using the measuring tool, the scale ratio is set. Adobe Measuring Tool Set Scale.
From www.rockymountaintraining.com
Adobe Acrobat Changing the Measurement Scale Rocky Mountain Training Adobe Measuring Tool Set Scale Choose view > tools > analyze to open the analyze panel. When using the measuring tool, the scale ratio is set to 1 in = 1 in. I've received a construction site plan pdf with a 1in=60ft scale on the drawing. Click measure to move to the measuring view of acrobat. When i measure the scale. To change your default. Adobe Measuring Tool Set Scale.
From www.educba.com
Measure Tool in Illustrator Learn How to Use Measure Tool in Illustrator Adobe Measuring Tool Set Scale Click on the measuring tool, and then pick one of the measurement. I've received a construction site plan pdf with a 1in=60ft scale on the drawing. Click measure to move to the measuring view of acrobat. This will enable millimeters to be displayed when measuring the page itself or displaying the. It displays the following options: Choose view > tools. Adobe Measuring Tool Set Scale.
From updf.com
How to Use Adobe Acrobat Measure Tool? (With Ease) UPDF Adobe Measuring Tool Set Scale Click measure to move to the measuring view of acrobat. Choose view > tools > analyze to open the analyze panel. When i measure the scale. Click measuring tool at the top of the document workspace and then pick one of the measurement types:. I've received a construction site plan pdf with a 1in=60ft scale on the drawing. Click on. Adobe Measuring Tool Set Scale.
From community.adobe.com
Measure Tool Precision Adobe Community 10795768 Adobe Measuring Tool Set Scale Click on the measuring tool, and then pick one of the measurement. Click measure to move to the measuring view of acrobat. I've received a construction site plan pdf with a 1in=60ft scale on the drawing. This will enable millimeters to be displayed when measuring the page itself or displaying the. On the next dialog, you can change. When i. Adobe Measuring Tool Set Scale.
From updf.com
How to Use Adobe Acrobat Measure Tool? (With Ease) UPDF Adobe Measuring Tool Set Scale Click measuring tool at the top of the document workspace and then pick one of the measurement types:. On the next dialog, you can change. When using the measuring tool, the scale ratio is set to 1 in = 1 in. It displays the following options: To change your default page units: Choose view > tools > analyze to open. Adobe Measuring Tool Set Scale.
From www.youtube.com
How to change and use scale ratio in Adobe Acrobat Pro YouTube Adobe Measuring Tool Set Scale When using the measuring tool, the scale ratio is set to 1 in = 1 in. When i measure the scale. I've received a construction site plan pdf with a 1in=60ft scale on the drawing. Click on the measuring tool, and then pick one of the measurement. Click measure to move to the measuring view of acrobat. This will enable. Adobe Measuring Tool Set Scale.
From www.youtube.com
How to Use PDF Measuring Tool by using adobe acrobat pro YouTube Adobe Measuring Tool Set Scale This will enable millimeters to be displayed when measuring the page itself or displaying the. Click measuring tool at the top of the document workspace and then pick one of the measurement types:. When i measure the scale. Choose view > tools > analyze to open the analyze panel. On the next dialog, you can change. I've received a construction. Adobe Measuring Tool Set Scale.
From www.cisdem.com
7 Best PDF Measuring Tools You Can’t Miss (Free, Online Incl.) Adobe Measuring Tool Set Scale When using the measuring tool, the scale ratio is set to 1 in = 1 in. It displays the following options: Choose view > tools > analyze to open the analyze panel. When i measure the scale. Click measure to move to the measuring view of acrobat. On the next dialog, you can change. Click on the measuring tool, and. Adobe Measuring Tool Set Scale.
From illustratorhow.com
How to Use Measure Tool in Adobe Illustrator (2 Steps) Adobe Measuring Tool Set Scale I've received a construction site plan pdf with a 1in=60ft scale on the drawing. When i measure the scale. Choose view > tools > analyze to open the analyze panel. Click on the measuring tool, and then pick one of the measurement. On the next dialog, you can change. To change your default page units: When using the measuring tool,. Adobe Measuring Tool Set Scale.
From illustratorhow.com
How to Use Measure Tool in Adobe Illustrator (2 Steps) Adobe Measuring Tool Set Scale When i measure the scale. I've received a construction site plan pdf with a 1in=60ft scale on the drawing. Click measure to move to the measuring view of acrobat. Click on the measuring tool, and then pick one of the measurement. When using the measuring tool, the scale ratio is set to 1 in = 1 in. Choose view >. Adobe Measuring Tool Set Scale.
From community.adobe.com
Solved measuring tool / scale bar Adobe Support Community 8307073 Adobe Measuring Tool Set Scale On the next dialog, you can change. Click on the measuring tool, and then pick one of the measurement. When using the measuring tool, the scale ratio is set to 1 in = 1 in. Click measuring tool at the top of the document workspace and then pick one of the measurement types:. It displays the following options: When i. Adobe Measuring Tool Set Scale.
From community.adobe.com
Solved Measuring Tool Adobe Support Community 8395426 Adobe Measuring Tool Set Scale To change your default page units: I've received a construction site plan pdf with a 1in=60ft scale on the drawing. Click on the measuring tool, and then pick one of the measurement. Click measure to move to the measuring view of acrobat. When using the measuring tool, the scale ratio is set to 1 in = 1 in. It displays. Adobe Measuring Tool Set Scale.
From www.rockymountaintraining.com
Adobe Acrobat Changing the Measurement Scale Rocky Mountain Training Adobe Measuring Tool Set Scale Click on the measuring tool, and then pick one of the measurement. Click measure to move to the measuring view of acrobat. Choose view > tools > analyze to open the analyze panel. When using the measuring tool, the scale ratio is set to 1 in = 1 in. It displays the following options: On the next dialog, you can. Adobe Measuring Tool Set Scale.
From www.youtube.com
how to use measuring tool in pdf document using Adobe Acrobat Pro YouTube Adobe Measuring Tool Set Scale To change your default page units: Click on the measuring tool, and then pick one of the measurement. I've received a construction site plan pdf with a 1in=60ft scale on the drawing. Click measure to move to the measuring view of acrobat. When using the measuring tool, the scale ratio is set to 1 in = 1 in. It displays. Adobe Measuring Tool Set Scale.
From community.adobe.com
Solved Measuring Tool Adobe Community 8395426 Adobe Measuring Tool Set Scale Click on the measuring tool, and then pick one of the measurement. This will enable millimeters to be displayed when measuring the page itself or displaying the. Choose view > tools > analyze to open the analyze panel. To change your default page units: When i measure the scale. Click measure to move to the measuring view of acrobat. I've. Adobe Measuring Tool Set Scale.
From www.cisdem.com
7 Best PDF Measuring Tools You Can’t Miss (Free, Online Incl.) Adobe Measuring Tool Set Scale When using the measuring tool, the scale ratio is set to 1 in = 1 in. Click measuring tool at the top of the document workspace and then pick one of the measurement types:. I've received a construction site plan pdf with a 1in=60ft scale on the drawing. Choose view > tools > analyze to open the analyze panel. On. Adobe Measuring Tool Set Scale.
From updf.com
How to Use Adobe Acrobat Measure Tool? (With Ease) UPDF Adobe Measuring Tool Set Scale To change your default page units: Click measuring tool at the top of the document workspace and then pick one of the measurement types:. When i measure the scale. When using the measuring tool, the scale ratio is set to 1 in = 1 in. On the next dialog, you can change. This will enable millimeters to be displayed when. Adobe Measuring Tool Set Scale.
From updf.com
How to Use Adobe Acrobat Measure Tool? (With Ease) UPDF Adobe Measuring Tool Set Scale Click on the measuring tool, and then pick one of the measurement. Choose view > tools > analyze to open the analyze panel. When i measure the scale. On the next dialog, you can change. Click measuring tool at the top of the document workspace and then pick one of the measurement types:. I've received a construction site plan pdf. Adobe Measuring Tool Set Scale.
From updf.com
How to Use Adobe Acrobat Measure Tool? (With Ease) UPDF Adobe Measuring Tool Set Scale Click measure to move to the measuring view of acrobat. Click on the measuring tool, and then pick one of the measurement. Click measuring tool at the top of the document workspace and then pick one of the measurement types:. To change your default page units: Choose view > tools > analyze to open the analyze panel. When using the. Adobe Measuring Tool Set Scale.
From illustratorhow.com
How to Use Measure Tool in Adobe Illustrator (2 Steps) Adobe Measuring Tool Set Scale Click measure to move to the measuring view of acrobat. It displays the following options: When i measure the scale. On the next dialog, you can change. Click measuring tool at the top of the document workspace and then pick one of the measurement types:. Choose view > tools > analyze to open the analyze panel. Click on the measuring. Adobe Measuring Tool Set Scale.
From updf.com
How to Use Adobe Acrobat Measure Tool? (With Ease) UPDF Adobe Measuring Tool Set Scale Click measuring tool at the top of the document workspace and then pick one of the measurement types:. This will enable millimeters to be displayed when measuring the page itself or displaying the. I've received a construction site plan pdf with a 1in=60ft scale on the drawing. On the next dialog, you can change. When i measure the scale. Click. Adobe Measuring Tool Set Scale.
From community.adobe.com
Solved measuring tool / scale bar Adobe Support Community 8307073 Adobe Measuring Tool Set Scale Choose view > tools > analyze to open the analyze panel. To change your default page units: When i measure the scale. When using the measuring tool, the scale ratio is set to 1 in = 1 in. I've received a construction site plan pdf with a 1in=60ft scale on the drawing. On the next dialog, you can change. Click. Adobe Measuring Tool Set Scale.
From community.adobe.com
Solved measuring tool / scale bar Adobe Support Community 8307073 Adobe Measuring Tool Set Scale It displays the following options: When using the measuring tool, the scale ratio is set to 1 in = 1 in. Click measure to move to the measuring view of acrobat. This will enable millimeters to be displayed when measuring the page itself or displaying the. Choose view > tools > analyze to open the analyze panel. Click on the. Adobe Measuring Tool Set Scale.
From www.youtube.com
How to use Adobe Reader Measuring Tool Basic Measuring YouTube Adobe Measuring Tool Set Scale Click measure to move to the measuring view of acrobat. On the next dialog, you can change. To change your default page units: When using the measuring tool, the scale ratio is set to 1 in = 1 in. This will enable millimeters to be displayed when measuring the page itself or displaying the. Click on the measuring tool, and. Adobe Measuring Tool Set Scale.
From updf.com
How to Use Adobe Acrobat Measure Tool? (With Ease) UPDF Adobe Measuring Tool Set Scale When using the measuring tool, the scale ratio is set to 1 in = 1 in. This will enable millimeters to be displayed when measuring the page itself or displaying the. Choose view > tools > analyze to open the analyze panel. I've received a construction site plan pdf with a 1in=60ft scale on the drawing. When i measure the. Adobe Measuring Tool Set Scale.
From community.adobe.com
Measure Tool Precision Adobe Community 10795768 Adobe Measuring Tool Set Scale I've received a construction site plan pdf with a 1in=60ft scale on the drawing. Click on the measuring tool, and then pick one of the measurement. Click measuring tool at the top of the document workspace and then pick one of the measurement types:. When i measure the scale. When using the measuring tool, the scale ratio is set to. Adobe Measuring Tool Set Scale.
From www.rockymountaintraining.com
Adobe Acrobat DC Measuring Tool Rocky Mountain Training Adobe Measuring Tool Set Scale When i measure the scale. This will enable millimeters to be displayed when measuring the page itself or displaying the. To change your default page units: Choose view > tools > analyze to open the analyze panel. I've received a construction site plan pdf with a 1in=60ft scale on the drawing. On the next dialog, you can change. Click measuring. Adobe Measuring Tool Set Scale.
From community.adobe.com
Solved Measuring Tool Adobe Support Community 8395426 Adobe Measuring Tool Set Scale When using the measuring tool, the scale ratio is set to 1 in = 1 in. I've received a construction site plan pdf with a 1in=60ft scale on the drawing. Click measuring tool at the top of the document workspace and then pick one of the measurement types:. On the next dialog, you can change. When i measure the scale.. Adobe Measuring Tool Set Scale.
From stock.adobe.com
Markup for rulers Vector, Measuring scale, Set of scale. Measuring tool Adobe Measuring Tool Set Scale When i measure the scale. Choose view > tools > analyze to open the analyze panel. This will enable millimeters to be displayed when measuring the page itself or displaying the. On the next dialog, you can change. When using the measuring tool, the scale ratio is set to 1 in = 1 in. I've received a construction site plan. Adobe Measuring Tool Set Scale.
From community.adobe.com
Solved measuring tool / scale bar Adobe Support Community 8307073 Adobe Measuring Tool Set Scale This will enable millimeters to be displayed when measuring the page itself or displaying the. Choose view > tools > analyze to open the analyze panel. I've received a construction site plan pdf with a 1in=60ft scale on the drawing. When i measure the scale. Click on the measuring tool, and then pick one of the measurement. To change your. Adobe Measuring Tool Set Scale.
From updf.com
How to Use Adobe Acrobat Measure Tool? (With Ease) UPDF Adobe Measuring Tool Set Scale On the next dialog, you can change. It displays the following options: Choose view > tools > analyze to open the analyze panel. Click measure to move to the measuring view of acrobat. Click on the measuring tool, and then pick one of the measurement. When i measure the scale. This will enable millimeters to be displayed when measuring the. Adobe Measuring Tool Set Scale.
From stock.adobe.com
Ruler Inch Vector. Inch Metric Imperial Measure Tool. Scale for rulers Adobe Measuring Tool Set Scale To change your default page units: Choose view > tools > analyze to open the analyze panel. Click measuring tool at the top of the document workspace and then pick one of the measurement types:. On the next dialog, you can change. Click on the measuring tool, and then pick one of the measurement. When using the measuring tool, the. Adobe Measuring Tool Set Scale.