Hydraulic Elevator Details . Hydrofit is a holeless hydraulic elevator that saves floor space, time and energy in smaller buildings. Learn how hydraulic elevators use pressurized fluid and pistons to move up and down. Hydraulic elevators are lift systems that use a hydraulic piston to raise and lower the elevator car. Discover detailed drawings and specifications for residential elevators. The elevator contractor shall include all work and materials, expect that listed under related work by other contractors, for a complete new state. It offers led lighting, sleep mode, remote monitoring and other features for. It offers quiet, smooth, reliable performance, less. Ensure the perfect fit and functionality for your home with our expert guidance.
from www.researchgate.net
It offers led lighting, sleep mode, remote monitoring and other features for. Hydraulic elevators are lift systems that use a hydraulic piston to raise and lower the elevator car. It offers quiet, smooth, reliable performance, less. Hydrofit is a holeless hydraulic elevator that saves floor space, time and energy in smaller buildings. Discover detailed drawings and specifications for residential elevators. Learn how hydraulic elevators use pressurized fluid and pistons to move up and down. The elevator contractor shall include all work and materials, expect that listed under related work by other contractors, for a complete new state. Ensure the perfect fit and functionality for your home with our expert guidance.
Simplified representation of a typical conventional hydraulic lift
Hydraulic Elevator Details Learn how hydraulic elevators use pressurized fluid and pistons to move up and down. The elevator contractor shall include all work and materials, expect that listed under related work by other contractors, for a complete new state. Hydraulic elevators are lift systems that use a hydraulic piston to raise and lower the elevator car. Ensure the perfect fit and functionality for your home with our expert guidance. It offers quiet, smooth, reliable performance, less. Hydrofit is a holeless hydraulic elevator that saves floor space, time and energy in smaller buildings. It offers led lighting, sleep mode, remote monitoring and other features for. Learn how hydraulic elevators use pressurized fluid and pistons to move up and down. Discover detailed drawings and specifications for residential elevators.
From ar.inspiredpencil.com
Elevator Details Dwg Hydraulic Elevator Details It offers quiet, smooth, reliable performance, less. Discover detailed drawings and specifications for residential elevators. Hydrofit is a holeless hydraulic elevator that saves floor space, time and energy in smaller buildings. Hydraulic elevators are lift systems that use a hydraulic piston to raise and lower the elevator car. It offers led lighting, sleep mode, remote monitoring and other features for.. Hydraulic Elevator Details.
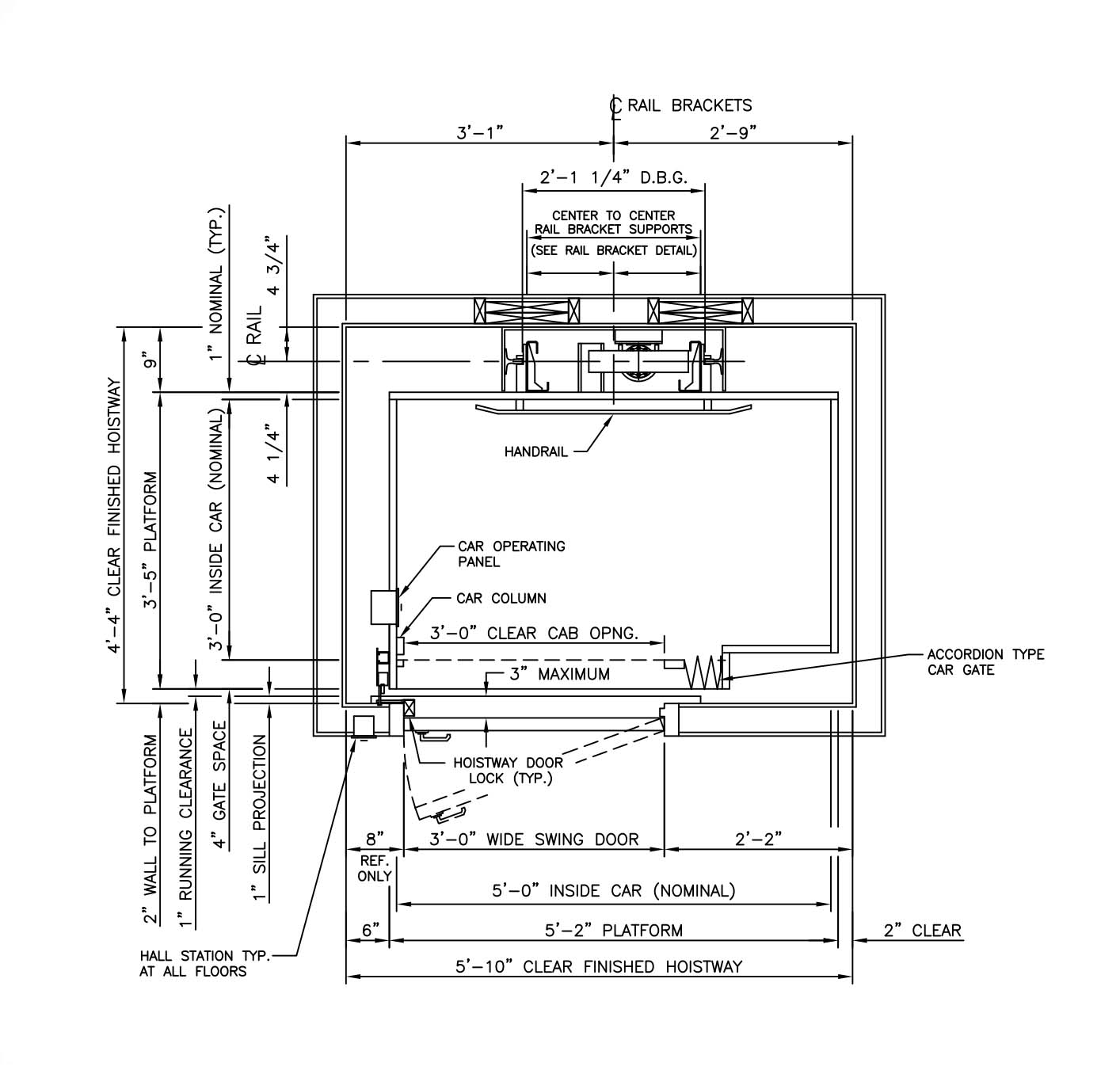
From www.phoenixmodularelevator.com
Hydraulic Elevator Phoenix Modular Elevator Hydraulic Elevator Details Hydraulic elevators are lift systems that use a hydraulic piston to raise and lower the elevator car. The elevator contractor shall include all work and materials, expect that listed under related work by other contractors, for a complete new state. Learn how hydraulic elevators use pressurized fluid and pistons to move up and down. It offers quiet, smooth, reliable performance,. Hydraulic Elevator Details.
From www.customelevatorinc.com
Hydraulic Drawings Custom Elevator Hydraulic Elevator Details Ensure the perfect fit and functionality for your home with our expert guidance. Learn how hydraulic elevators use pressurized fluid and pistons to move up and down. It offers quiet, smooth, reliable performance, less. Discover detailed drawings and specifications for residential elevators. Hydraulic elevators are lift systems that use a hydraulic piston to raise and lower the elevator car. It. Hydraulic Elevator Details.
From www.robsonforensic.com
Elevator Anatomy for Lawyers Expert Witness Perspective Hydraulic Elevator Details It offers led lighting, sleep mode, remote monitoring and other features for. It offers quiet, smooth, reliable performance, less. Hydrofit is a holeless hydraulic elevator that saves floor space, time and energy in smaller buildings. Ensure the perfect fit and functionality for your home with our expert guidance. Discover detailed drawings and specifications for residential elevators. The elevator contractor shall. Hydraulic Elevator Details.
From giowfepba.blob.core.windows.net
Elevator Hydraulics at Krista Smith blog Hydraulic Elevator Details It offers led lighting, sleep mode, remote monitoring and other features for. Hydrofit is a holeless hydraulic elevator that saves floor space, time and energy in smaller buildings. It offers quiet, smooth, reliable performance, less. Learn how hydraulic elevators use pressurized fluid and pistons to move up and down. Ensure the perfect fit and functionality for your home with our. Hydraulic Elevator Details.
From www.archiexpo.com
Hydraulic elevator KLEEMANN commercial / panoramic Hydraulic Elevator Details Discover detailed drawings and specifications for residential elevators. Learn how hydraulic elevators use pressurized fluid and pistons to move up and down. It offers led lighting, sleep mode, remote monitoring and other features for. It offers quiet, smooth, reliable performance, less. Hydrofit is a holeless hydraulic elevator that saves floor space, time and energy in smaller buildings. Ensure the perfect. Hydraulic Elevator Details.
From fidelartis.blogspot.com
machine room less elevator cad drawings Fidel Artis Hydraulic Elevator Details Learn how hydraulic elevators use pressurized fluid and pistons to move up and down. The elevator contractor shall include all work and materials, expect that listed under related work by other contractors, for a complete new state. Hydraulic elevators are lift systems that use a hydraulic piston to raise and lower the elevator car. Discover detailed drawings and specifications for. Hydraulic Elevator Details.
From cadbull.com
Elevator detail CAD machinery blocks layout 2d view layout autocad Hydraulic Elevator Details The elevator contractor shall include all work and materials, expect that listed under related work by other contractors, for a complete new state. Ensure the perfect fit and functionality for your home with our expert guidance. Learn how hydraulic elevators use pressurized fluid and pistons to move up and down. Discover detailed drawings and specifications for residential elevators. It offers. Hydraulic Elevator Details.
From www.customelevatorinc.com
Hydraulic Drawings Custom Elevator Hydraulic Elevator Details It offers quiet, smooth, reliable performance, less. Learn how hydraulic elevators use pressurized fluid and pistons to move up and down. It offers led lighting, sleep mode, remote monitoring and other features for. Discover detailed drawings and specifications for residential elevators. Hydrofit is a holeless hydraulic elevator that saves floor space, time and energy in smaller buildings. Ensure the perfect. Hydraulic Elevator Details.
From elevatorscn.com
Hydraulic Elevator Details Larsson Elevator Hydraulic Elevator Details Hydraulic elevators are lift systems that use a hydraulic piston to raise and lower the elevator car. It offers quiet, smooth, reliable performance, less. It offers led lighting, sleep mode, remote monitoring and other features for. Hydrofit is a holeless hydraulic elevator that saves floor space, time and energy in smaller buildings. The elevator contractor shall include all work and. Hydraulic Elevator Details.
From giowfepba.blob.core.windows.net
Elevator Hydraulics at Krista Smith blog Hydraulic Elevator Details Discover detailed drawings and specifications for residential elevators. It offers quiet, smooth, reliable performance, less. The elevator contractor shall include all work and materials, expect that listed under related work by other contractors, for a complete new state. Learn how hydraulic elevators use pressurized fluid and pistons to move up and down. Ensure the perfect fit and functionality for your. Hydraulic Elevator Details.
From www.slideserve.com
PPT Hydraulic Elevators PowerPoint Presentation, free download ID Hydraulic Elevator Details Discover detailed drawings and specifications for residential elevators. Hydrofit is a holeless hydraulic elevator that saves floor space, time and energy in smaller buildings. It offers led lighting, sleep mode, remote monitoring and other features for. Learn how hydraulic elevators use pressurized fluid and pistons to move up and down. The elevator contractor shall include all work and materials, expect. Hydraulic Elevator Details.
From www.pinterest.co.kr
Hydraulic elevator Elevator design, Elevation, Lift design Hydraulic Elevator Details Discover detailed drawings and specifications for residential elevators. Learn how hydraulic elevators use pressurized fluid and pistons to move up and down. Hydraulic elevators are lift systems that use a hydraulic piston to raise and lower the elevator car. Ensure the perfect fit and functionality for your home with our expert guidance. It offers quiet, smooth, reliable performance, less. Hydrofit. Hydraulic Elevator Details.
From www.bibliocad.com
Elevator details in AutoCAD CAD download (226.35 KB) Bibliocad Hydraulic Elevator Details Learn how hydraulic elevators use pressurized fluid and pistons to move up and down. The elevator contractor shall include all work and materials, expect that listed under related work by other contractors, for a complete new state. Ensure the perfect fit and functionality for your home with our expert guidance. Hydraulic elevators are lift systems that use a hydraulic piston. Hydraulic Elevator Details.
From www.liftworks.co
The Anatomy And Definition Of Traction And Hydraulic Lifts Lift Works Hydraulic Elevator Details Discover detailed drawings and specifications for residential elevators. Hydraulic elevators are lift systems that use a hydraulic piston to raise and lower the elevator car. It offers led lighting, sleep mode, remote monitoring and other features for. Learn how hydraulic elevators use pressurized fluid and pistons to move up and down. The elevator contractor shall include all work and materials,. Hydraulic Elevator Details.
From paintingvalley.com
Elevator Plan Drawing at Explore collection of Hydraulic Elevator Details Ensure the perfect fit and functionality for your home with our expert guidance. It offers quiet, smooth, reliable performance, less. Hydraulic elevators are lift systems that use a hydraulic piston to raise and lower the elevator car. Discover detailed drawings and specifications for residential elevators. It offers led lighting, sleep mode, remote monitoring and other features for. Hydrofit is a. Hydraulic Elevator Details.
From brigadetechelevators.com
ElevatorHydraulic Brigade Tech Hydraulic Elevator Details Ensure the perfect fit and functionality for your home with our expert guidance. Hydrofit is a holeless hydraulic elevator that saves floor space, time and energy in smaller buildings. The elevator contractor shall include all work and materials, expect that listed under related work by other contractors, for a complete new state. It offers quiet, smooth, reliable performance, less. Hydraulic. Hydraulic Elevator Details.
From www.electrical-knowhow.com
Hydraulic Elevators Basic Components Electrical Knowhow Hydraulic Elevator Details The elevator contractor shall include all work and materials, expect that listed under related work by other contractors, for a complete new state. It offers quiet, smooth, reliable performance, less. Hydraulic elevators are lift systems that use a hydraulic piston to raise and lower the elevator car. Learn how hydraulic elevators use pressurized fluid and pistons to move up and. Hydraulic Elevator Details.
From www.elevatortechnics.com
Hydraulic Elevators Elevator Technics Hydraulic Elevator Details Learn how hydraulic elevators use pressurized fluid and pistons to move up and down. It offers led lighting, sleep mode, remote monitoring and other features for. The elevator contractor shall include all work and materials, expect that listed under related work by other contractors, for a complete new state. Ensure the perfect fit and functionality for your home with our. Hydraulic Elevator Details.
From www.designresourcesdownload.com
【CAD Details】Elevator CAD Details Hydraulic Elevator Details The elevator contractor shall include all work and materials, expect that listed under related work by other contractors, for a complete new state. It offers led lighting, sleep mode, remote monitoring and other features for. Hydraulic elevators are lift systems that use a hydraulic piston to raise and lower the elevator car. Hydrofit is a holeless hydraulic elevator that saves. Hydraulic Elevator Details.
From www.libertyelevator.com
Liberty Elevator What Is A Hydraulic Elevator? Hydraulic Elevator Details It offers quiet, smooth, reliable performance, less. Hydraulic elevators are lift systems that use a hydraulic piston to raise and lower the elevator car. Ensure the perfect fit and functionality for your home with our expert guidance. Learn how hydraulic elevators use pressurized fluid and pistons to move up and down. Hydrofit is a holeless hydraulic elevator that saves floor. Hydraulic Elevator Details.
From www.customelevatorinc.com
Hydraulic Drawings Custom Elevator Hydraulic Elevator Details Ensure the perfect fit and functionality for your home with our expert guidance. Discover detailed drawings and specifications for residential elevators. Hydraulic elevators are lift systems that use a hydraulic piston to raise and lower the elevator car. It offers quiet, smooth, reliable performance, less. Learn how hydraulic elevators use pressurized fluid and pistons to move up and down. It. Hydraulic Elevator Details.
From animalia-life.club
Elevator Plan Drawing Hydraulic Elevator Details Hydrofit is a holeless hydraulic elevator that saves floor space, time and energy in smaller buildings. It offers quiet, smooth, reliable performance, less. Learn how hydraulic elevators use pressurized fluid and pistons to move up and down. The elevator contractor shall include all work and materials, expect that listed under related work by other contractors, for a complete new state.. Hydraulic Elevator Details.
From www.theengineeringcommunity.org
Elevator Reinforcement Free DWG Drawing Hydraulic Elevator Details Hydraulic elevators are lift systems that use a hydraulic piston to raise and lower the elevator car. The elevator contractor shall include all work and materials, expect that listed under related work by other contractors, for a complete new state. It offers quiet, smooth, reliable performance, less. Hydrofit is a holeless hydraulic elevator that saves floor space, time and energy. Hydraulic Elevator Details.
From www.pinterest.com
Best home elevators roped hydraulic reviews and planning House Hydraulic Elevator Details It offers quiet, smooth, reliable performance, less. Hydrofit is a holeless hydraulic elevator that saves floor space, time and energy in smaller buildings. Learn how hydraulic elevators use pressurized fluid and pistons to move up and down. Hydraulic elevators are lift systems that use a hydraulic piston to raise and lower the elevator car. The elevator contractor shall include all. Hydraulic Elevator Details.
From www.electrical-knowhow.com
Hydraulic Elevators Basic Components Electrical Knowhow Hydraulic Elevator Details It offers quiet, smooth, reliable performance, less. Hydraulic elevators are lift systems that use a hydraulic piston to raise and lower the elevator car. Ensure the perfect fit and functionality for your home with our expert guidance. Learn how hydraulic elevators use pressurized fluid and pistons to move up and down. Discover detailed drawings and specifications for residential elevators. The. Hydraulic Elevator Details.
From www.dimensions.com
Hydraulic Elevators Lifts Dimensions & Drawings Hydraulic Elevator Details Learn how hydraulic elevators use pressurized fluid and pistons to move up and down. Discover detailed drawings and specifications for residential elevators. The elevator contractor shall include all work and materials, expect that listed under related work by other contractors, for a complete new state. Ensure the perfect fit and functionality for your home with our expert guidance. It offers. Hydraulic Elevator Details.
From www.customelevatorinc.com
Hydraulic Drawings Custom Elevator Hydraulic Elevator Details Learn how hydraulic elevators use pressurized fluid and pistons to move up and down. The elevator contractor shall include all work and materials, expect that listed under related work by other contractors, for a complete new state. It offers quiet, smooth, reliable performance, less. Ensure the perfect fit and functionality for your home with our expert guidance. Hydraulic elevators are. Hydraulic Elevator Details.
From www.cadblocks.pislikmimar.com
[DWG] Lift, Elevator Section and Plan Drawing in Autocad Hydraulic Elevator Details Hydrofit is a holeless hydraulic elevator that saves floor space, time and energy in smaller buildings. It offers quiet, smooth, reliable performance, less. Discover detailed drawings and specifications for residential elevators. It offers led lighting, sleep mode, remote monitoring and other features for. The elevator contractor shall include all work and materials, expect that listed under related work by other. Hydraulic Elevator Details.
From www.dimensions.com
Hydraulic Elevators Lifts Dimensions & Drawings Hydraulic Elevator Details Learn how hydraulic elevators use pressurized fluid and pistons to move up and down. Hydrofit is a holeless hydraulic elevator that saves floor space, time and energy in smaller buildings. It offers led lighting, sleep mode, remote monitoring and other features for. Hydraulic elevators are lift systems that use a hydraulic piston to raise and lower the elevator car. It. Hydraulic Elevator Details.
From www.originelevators.com
Hydraulic Elevator Origin Elevators Hydraulic Elevator Details Discover detailed drawings and specifications for residential elevators. The elevator contractor shall include all work and materials, expect that listed under related work by other contractors, for a complete new state. It offers led lighting, sleep mode, remote monitoring and other features for. Hydraulic elevators are lift systems that use a hydraulic piston to raise and lower the elevator car.. Hydraulic Elevator Details.
From www.researchgate.net
Simplified representation of a typical conventional hydraulic lift Hydraulic Elevator Details Learn how hydraulic elevators use pressurized fluid and pistons to move up and down. Hydrofit is a holeless hydraulic elevator that saves floor space, time and energy in smaller buildings. The elevator contractor shall include all work and materials, expect that listed under related work by other contractors, for a complete new state. It offers led lighting, sleep mode, remote. Hydraulic Elevator Details.
From www.customelevatorinc.com
Hydraulic Drawings Custom Elevator Hydraulic Elevator Details The elevator contractor shall include all work and materials, expect that listed under related work by other contractors, for a complete new state. Discover detailed drawings and specifications for residential elevators. Ensure the perfect fit and functionality for your home with our expert guidance. It offers quiet, smooth, reliable performance, less. Hydrofit is a holeless hydraulic elevator that saves floor. Hydraulic Elevator Details.
From bimcontent.com
15 Hydraulic Elevator Pit Hydraulic Elevator Details Discover detailed drawings and specifications for residential elevators. It offers quiet, smooth, reliable performance, less. Learn how hydraulic elevators use pressurized fluid and pistons to move up and down. Hydrofit is a holeless hydraulic elevator that saves floor space, time and energy in smaller buildings. It offers led lighting, sleep mode, remote monitoring and other features for. Ensure the perfect. Hydraulic Elevator Details.
From cadbull.com
Elevators plan and installation autocad drawing details dwg file Cadbull Hydraulic Elevator Details Hydrofit is a holeless hydraulic elevator that saves floor space, time and energy in smaller buildings. The elevator contractor shall include all work and materials, expect that listed under related work by other contractors, for a complete new state. Ensure the perfect fit and functionality for your home with our expert guidance. It offers led lighting, sleep mode, remote monitoring. Hydraulic Elevator Details.