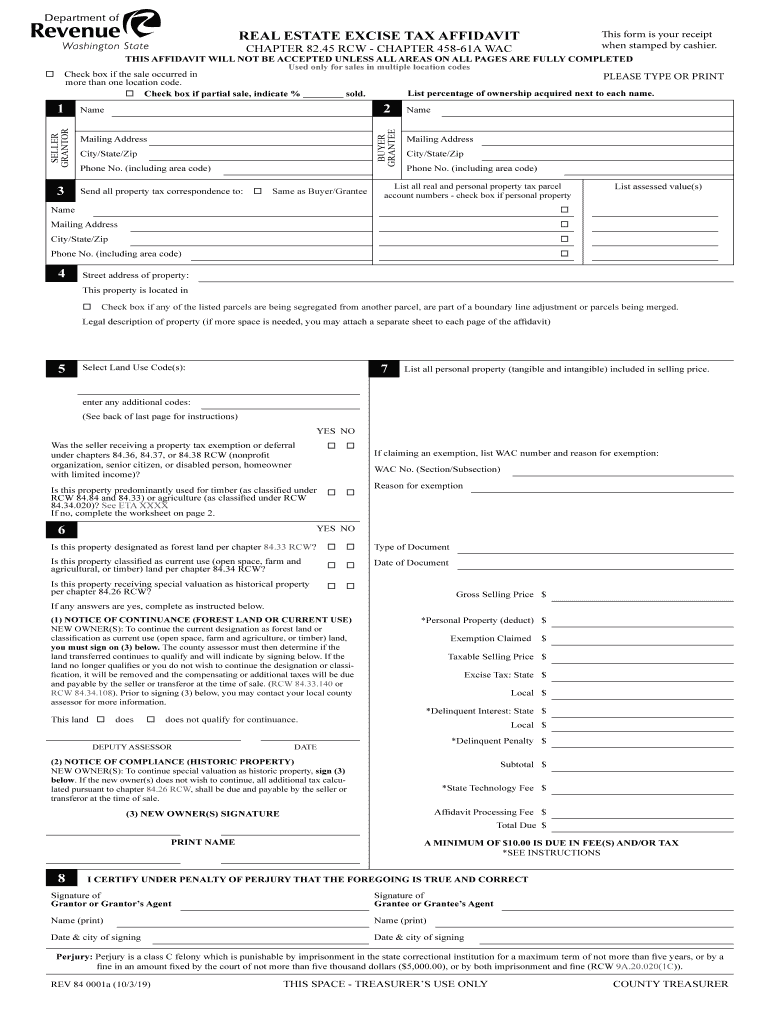
Real Estate Excise Tax Affidavit Clark County . They be printed or can be picked up at the joint lobby of the clark county. This form must be used for reporting transfers of controlling interest and for buyer disclosure to the department of revenue. Real estate excise tax — overview. The clark county treasurer's office serves as an agent of. Real estate excise tax affidavits are required when a deed is recorded. Real estate excise tax (reet) is the tax charged on the sale of real property. The transfer of a used mobile home will be subject to the real estate excise tax (chapter 82.45 rcw) on the following transactions: Graduated real estate excise tax rates — exceptions to graduated rates — tax avoidance. Use this worksheet to calculate state and local real estate excise tax (reet) per county, when the sale includes parcels in two or more location codes.
from www.pdffiller.com
The clark county treasurer's office serves as an agent of. Graduated real estate excise tax rates — exceptions to graduated rates — tax avoidance. Real estate excise tax — overview. This form must be used for reporting transfers of controlling interest and for buyer disclosure to the department of revenue. Real estate excise tax (reet) is the tax charged on the sale of real property. The transfer of a used mobile home will be subject to the real estate excise tax (chapter 82.45 rcw) on the following transactions: They be printed or can be picked up at the joint lobby of the clark county. Use this worksheet to calculate state and local real estate excise tax (reet) per county, when the sale includes parcels in two or more location codes. Real estate excise tax affidavits are required when a deed is recorded.
real estate excise tax affidavit chapter 82.45 rcw Asotin County Doc
Real Estate Excise Tax Affidavit Clark County They be printed or can be picked up at the joint lobby of the clark county. Real estate excise tax — overview. Real estate excise tax (reet) is the tax charged on the sale of real property. The transfer of a used mobile home will be subject to the real estate excise tax (chapter 82.45 rcw) on the following transactions: Graduated real estate excise tax rates — exceptions to graduated rates — tax avoidance. This form must be used for reporting transfers of controlling interest and for buyer disclosure to the department of revenue. Real estate excise tax affidavits are required when a deed is recorded. The clark county treasurer's office serves as an agent of. Use this worksheet to calculate state and local real estate excise tax (reet) per county, when the sale includes parcels in two or more location codes. They be printed or can be picked up at the joint lobby of the clark county.
From www.pdffiller.com
Fillable Online Real Estate Excise Tax Affidavit Wa Fax Email Print Real Estate Excise Tax Affidavit Clark County The transfer of a used mobile home will be subject to the real estate excise tax (chapter 82.45 rcw) on the following transactions: Use this worksheet to calculate state and local real estate excise tax (reet) per county, when the sale includes parcels in two or more location codes. Real estate excise tax — overview. The clark county treasurer's office. Real Estate Excise Tax Affidavit Clark County.
From www.templateroller.com
Form REV84 0001A Download Fillable PDF or Fill Online Real Estate Real Estate Excise Tax Affidavit Clark County Use this worksheet to calculate state and local real estate excise tax (reet) per county, when the sale includes parcels in two or more location codes. Graduated real estate excise tax rates — exceptions to graduated rates — tax avoidance. Real estate excise tax — overview. The transfer of a used mobile home will be subject to the real estate. Real Estate Excise Tax Affidavit Clark County.
From www.dochub.com
Affidavit real estate Fill out & sign online DocHub Real Estate Excise Tax Affidavit Clark County The clark county treasurer's office serves as an agent of. This form must be used for reporting transfers of controlling interest and for buyer disclosure to the department of revenue. They be printed or can be picked up at the joint lobby of the clark county. Real estate excise tax — overview. Real estate excise tax affidavits are required when. Real Estate Excise Tax Affidavit Clark County.
From www.pdffiller.com
Affidavit Consideration Excise Tax Real Fill Online, Printable Real Estate Excise Tax Affidavit Clark County The transfer of a used mobile home will be subject to the real estate excise tax (chapter 82.45 rcw) on the following transactions: The clark county treasurer's office serves as an agent of. Real estate excise tax — overview. This form must be used for reporting transfers of controlling interest and for buyer disclosure to the department of revenue. Graduated. Real Estate Excise Tax Affidavit Clark County.
From www.clark.wa.gov
Real Estate Excise Taxes Clark County Real Estate Excise Tax Affidavit Clark County The transfer of a used mobile home will be subject to the real estate excise tax (chapter 82.45 rcw) on the following transactions: The clark county treasurer's office serves as an agent of. Real estate excise tax — overview. Graduated real estate excise tax rates — exceptions to graduated rates — tax avoidance. They be printed or can be picked. Real Estate Excise Tax Affidavit Clark County.
From www.pdffiller.com
Fillable Online REAL ESTATE EXCISE TAX AFFIDAVIT RETURN FORM 84 0001B Real Estate Excise Tax Affidavit Clark County The transfer of a used mobile home will be subject to the real estate excise tax (chapter 82.45 rcw) on the following transactions: They be printed or can be picked up at the joint lobby of the clark county. This form must be used for reporting transfers of controlling interest and for buyer disclosure to the department of revenue. Real. Real Estate Excise Tax Affidavit Clark County.
From www.pdffiller.com
Fillable Online dor wa REAL ESTATE EXCISE TAX AFFIDAVIT Fax Email Print Real Estate Excise Tax Affidavit Clark County The transfer of a used mobile home will be subject to the real estate excise tax (chapter 82.45 rcw) on the following transactions: The clark county treasurer's office serves as an agent of. Real estate excise tax (reet) is the tax charged on the sale of real property. Graduated real estate excise tax rates — exceptions to graduated rates —. Real Estate Excise Tax Affidavit Clark County.
From www.pdffiller.com
Fillable Online dor.wa.gov sites defaultReal Estate Excise Tax Real Estate Excise Tax Affidavit Clark County Real estate excise tax — overview. Real estate excise tax affidavits are required when a deed is recorded. They be printed or can be picked up at the joint lobby of the clark county. Graduated real estate excise tax rates — exceptions to graduated rates — tax avoidance. Real estate excise tax (reet) is the tax charged on the sale. Real Estate Excise Tax Affidavit Clark County.
From www.pdffiller.com
Fillable Online mobile home real estate excise tax affidavit Fax Email Real Estate Excise Tax Affidavit Clark County The transfer of a used mobile home will be subject to the real estate excise tax (chapter 82.45 rcw) on the following transactions: The clark county treasurer's office serves as an agent of. They be printed or can be picked up at the joint lobby of the clark county. Use this worksheet to calculate state and local real estate excise. Real Estate Excise Tax Affidavit Clark County.
From www.pdffiller.com
Rovement Real Estate Excise Tax Affidavit (RCW 82.45 WAC Doc Real Estate Excise Tax Affidavit Clark County This form must be used for reporting transfers of controlling interest and for buyer disclosure to the department of revenue. Real estate excise tax affidavits are required when a deed is recorded. Graduated real estate excise tax rates — exceptions to graduated rates — tax avoidance. They be printed or can be picked up at the joint lobby of the. Real Estate Excise Tax Affidavit Clark County.
From www.dochub.com
Washington excise tax affidavit Fill out & sign online DocHub Real Estate Excise Tax Affidavit Clark County Real estate excise tax affidavits are required when a deed is recorded. Graduated real estate excise tax rates — exceptions to graduated rates — tax avoidance. Real estate excise tax (reet) is the tax charged on the sale of real property. The clark county treasurer's office serves as an agent of. This form must be used for reporting transfers of. Real Estate Excise Tax Affidavit Clark County.
From www.printableaffidavitform.com
Real Estate Excise Tax Affidavit Form 2024 Real Estate Excise Tax Affidavit Clark County The clark county treasurer's office serves as an agent of. They be printed or can be picked up at the joint lobby of the clark county. Real estate excise tax affidavits are required when a deed is recorded. Real estate excise tax (reet) is the tax charged on the sale of real property. Graduated real estate excise tax rates —. Real Estate Excise Tax Affidavit Clark County.
From www.templateroller.com
Form REV84 0003E Download Fillable PDF or Fill Online Mobile Home Real Real Estate Excise Tax Affidavit Clark County Graduated real estate excise tax rates — exceptions to graduated rates — tax avoidance. Use this worksheet to calculate state and local real estate excise tax (reet) per county, when the sale includes parcels in two or more location codes. They be printed or can be picked up at the joint lobby of the clark county. The transfer of a. Real Estate Excise Tax Affidavit Clark County.
From www.yumpu.com
Online Real Estate Excise Tax Affidavit Helpful San Juan County Real Estate Excise Tax Affidavit Clark County Use this worksheet to calculate state and local real estate excise tax (reet) per county, when the sale includes parcels in two or more location codes. Real estate excise tax affidavits are required when a deed is recorded. They be printed or can be picked up at the joint lobby of the clark county. This form must be used for. Real Estate Excise Tax Affidavit Clark County.
From www.pdffiller.com
Fillable Online Washington State Law requires that a Real Estate Excise Real Estate Excise Tax Affidavit Clark County The clark county treasurer's office serves as an agent of. Real estate excise tax (reet) is the tax charged on the sale of real property. This form must be used for reporting transfers of controlling interest and for buyer disclosure to the department of revenue. They be printed or can be picked up at the joint lobby of the clark. Real Estate Excise Tax Affidavit Clark County.
From www.pdffiller.com
Fillable Online dor wa dor.wa.govsitesdefaultReal Estate Excise Tax Real Estate Excise Tax Affidavit Clark County They be printed or can be picked up at the joint lobby of the clark county. Real estate excise tax affidavits are required when a deed is recorded. Use this worksheet to calculate state and local real estate excise tax (reet) per county, when the sale includes parcels in two or more location codes. Real estate excise tax — overview.. Real Estate Excise Tax Affidavit Clark County.
From www.pdffiller.com
Arkansas Real Property Tax Affidavit Of Compliance Form Fill Online Real Estate Excise Tax Affidavit Clark County Real estate excise tax — overview. They be printed or can be picked up at the joint lobby of the clark county. The clark county treasurer's office serves as an agent of. Graduated real estate excise tax rates — exceptions to graduated rates — tax avoidance. Real estate excise tax (reet) is the tax charged on the sale of real. Real Estate Excise Tax Affidavit Clark County.
From www.printableaffidavitform.com
Pierce County Excise Tax Affidavit Form 2024 Real Estate Excise Tax Affidavit Clark County This form must be used for reporting transfers of controlling interest and for buyer disclosure to the department of revenue. They be printed or can be picked up at the joint lobby of the clark county. The transfer of a used mobile home will be subject to the real estate excise tax (chapter 82.45 rcw) on the following transactions: Real. Real Estate Excise Tax Affidavit Clark County.
From www.pdffiller.com
Fillable Online REAL ESTATE EXCISE TAX AFFIDAVIT RETURN FORM 84 0001B Real Estate Excise Tax Affidavit Clark County They be printed or can be picked up at the joint lobby of the clark county. This form must be used for reporting transfers of controlling interest and for buyer disclosure to the department of revenue. The transfer of a used mobile home will be subject to the real estate excise tax (chapter 82.45 rcw) on the following transactions: Real. Real Estate Excise Tax Affidavit Clark County.
From www.pdffiller.com
Fillable Online Mobile Home Real Estate Excise Tax Affidavit Spokane Real Estate Excise Tax Affidavit Clark County The clark county treasurer's office serves as an agent of. Real estate excise tax — overview. This form must be used for reporting transfers of controlling interest and for buyer disclosure to the department of revenue. Use this worksheet to calculate state and local real estate excise tax (reet) per county, when the sale includes parcels in two or more. Real Estate Excise Tax Affidavit Clark County.
From affidavit-transfer-tax.pdffiller.com
20162020 Form CA DTT Affidavit Fill Online, Printable, Fillable, Blank Real Estate Excise Tax Affidavit Clark County Real estate excise tax (reet) is the tax charged on the sale of real property. Real estate excise tax affidavits are required when a deed is recorded. Real estate excise tax — overview. The clark county treasurer's office serves as an agent of. Use this worksheet to calculate state and local real estate excise tax (reet) per county, when the. Real Estate Excise Tax Affidavit Clark County.
From www.pdffiller.com
Fillable Online dor wa Moblie Home Real Estate Excise Tax Affidavit Real Estate Excise Tax Affidavit Clark County The transfer of a used mobile home will be subject to the real estate excise tax (chapter 82.45 rcw) on the following transactions: Real estate excise tax (reet) is the tax charged on the sale of real property. Real estate excise tax affidavits are required when a deed is recorded. This form must be used for reporting transfers of controlling. Real Estate Excise Tax Affidavit Clark County.
From www.printableaffidavitform.com
Snohomish County Real Estate Excise Tax Affidavit Form 2024 Real Estate Excise Tax Affidavit Clark County Real estate excise tax (reet) is the tax charged on the sale of real property. Real estate excise tax affidavits are required when a deed is recorded. This form must be used for reporting transfers of controlling interest and for buyer disclosure to the department of revenue. The transfer of a used mobile home will be subject to the real. Real Estate Excise Tax Affidavit Clark County.
From www.pdffiller.com
Fillable Online dor.wa.gov sites defaultReal Estate Excise Tax Real Estate Excise Tax Affidavit Clark County They be printed or can be picked up at the joint lobby of the clark county. The clark county treasurer's office serves as an agent of. The transfer of a used mobile home will be subject to the real estate excise tax (chapter 82.45 rcw) on the following transactions: Graduated real estate excise tax rates — exceptions to graduated rates. Real Estate Excise Tax Affidavit Clark County.
From www.pdffiller.com
Fillable Online dor wa kingcounty.govmediaMOBILE HOME REAL STATE XCISE Real Estate Excise Tax Affidavit Clark County This form must be used for reporting transfers of controlling interest and for buyer disclosure to the department of revenue. They be printed or can be picked up at the joint lobby of the clark county. The transfer of a used mobile home will be subject to the real estate excise tax (chapter 82.45 rcw) on the following transactions: The. Real Estate Excise Tax Affidavit Clark County.
From www.printableaffidavitform.com
Pierce County Excise Tax Affidavit Form 2024 Real Estate Excise Tax Affidavit Clark County They be printed or can be picked up at the joint lobby of the clark county. Real estate excise tax (reet) is the tax charged on the sale of real property. This form must be used for reporting transfers of controlling interest and for buyer disclosure to the department of revenue. Real estate excise tax — overview. The transfer of. Real Estate Excise Tax Affidavit Clark County.
From www.pdffiller.com
real estate excise tax affidavit chapter 82.45 rcw Asotin County Doc Real Estate Excise Tax Affidavit Clark County Real estate excise tax — overview. They be printed or can be picked up at the joint lobby of the clark county. Real estate excise tax affidavits are required when a deed is recorded. Graduated real estate excise tax rates — exceptions to graduated rates — tax avoidance. The clark county treasurer's office serves as an agent of. The transfer. Real Estate Excise Tax Affidavit Clark County.
From www.pdffiller.com
Fillable Online Real Estate Excise Tax Affidavit Helpful Hints Fax Real Estate Excise Tax Affidavit Clark County Real estate excise tax (reet) is the tax charged on the sale of real property. This form must be used for reporting transfers of controlling interest and for buyer disclosure to the department of revenue. Real estate excise tax — overview. Use this worksheet to calculate state and local real estate excise tax (reet) per county, when the sale includes. Real Estate Excise Tax Affidavit Clark County.
From www.pdffiller.com
excise tax affidavit cowlitz county Fill Online, Printable, Fillable Real Estate Excise Tax Affidavit Clark County The transfer of a used mobile home will be subject to the real estate excise tax (chapter 82.45 rcw) on the following transactions: Real estate excise tax (reet) is the tax charged on the sale of real property. Real estate excise tax affidavits are required when a deed is recorded. Graduated real estate excise tax rates — exceptions to graduated. Real Estate Excise Tax Affidavit Clark County.
From www.pdffiller.com
Fillable Online REAL ESTATE EXCISE TAX AFFIDAVIT RETURN FORM 84 0001B Real Estate Excise Tax Affidavit Clark County Use this worksheet to calculate state and local real estate excise tax (reet) per county, when the sale includes parcels in two or more location codes. The transfer of a used mobile home will be subject to the real estate excise tax (chapter 82.45 rcw) on the following transactions: Graduated real estate excise tax rates — exceptions to graduated rates. Real Estate Excise Tax Affidavit Clark County.
From www.pdffiller.com
Fillable Online Excise Tax Affidavit State Of Washington Form. Excise Real Estate Excise Tax Affidavit Clark County Use this worksheet to calculate state and local real estate excise tax (reet) per county, when the sale includes parcels in two or more location codes. Real estate excise tax (reet) is the tax charged on the sale of real property. This form must be used for reporting transfers of controlling interest and for buyer disclosure to the department of. Real Estate Excise Tax Affidavit Clark County.
From printableformsfree.com
Real Estate Excise Tax Affidavit Pierce County Fillable Form Real Estate Excise Tax Affidavit Clark County Use this worksheet to calculate state and local real estate excise tax (reet) per county, when the sale includes parcels in two or more location codes. Real estate excise tax — overview. The clark county treasurer's office serves as an agent of. The transfer of a used mobile home will be subject to the real estate excise tax (chapter 82.45. Real Estate Excise Tax Affidavit Clark County.
From www.pdffiller.com
Fillable Online dor wa Mobile Home Real Estate Excise Tax Affidavit Real Estate Excise Tax Affidavit Clark County Graduated real estate excise tax rates — exceptions to graduated rates — tax avoidance. They be printed or can be picked up at the joint lobby of the clark county. Use this worksheet to calculate state and local real estate excise tax (reet) per county, when the sale includes parcels in two or more location codes. Real estate excise tax. Real Estate Excise Tax Affidavit Clark County.
From www.uslegalforms.com
New York Federal Estate Tax Affidavit US Legal Forms Real Estate Excise Tax Affidavit Clark County Real estate excise tax (reet) is the tax charged on the sale of real property. Use this worksheet to calculate state and local real estate excise tax (reet) per county, when the sale includes parcels in two or more location codes. This form must be used for reporting transfers of controlling interest and for buyer disclosure to the department of. Real Estate Excise Tax Affidavit Clark County.
From fyoajppgl.blob.core.windows.net
Pierce County Wa Real Estate Taxes at John Mask blog Real Estate Excise Tax Affidavit Clark County Use this worksheet to calculate state and local real estate excise tax (reet) per county, when the sale includes parcels in two or more location codes. Graduated real estate excise tax rates — exceptions to graduated rates — tax avoidance. This form must be used for reporting transfers of controlling interest and for buyer disclosure to the department of revenue.. Real Estate Excise Tax Affidavit Clark County.