How To Build A Small Parts Cabinet . his is free standing while mine is designed to be mounted on a wall or the side of a. · lots and lots of small drawers to organize small parts · some larger drawers for larger parts or quantities · ability to roll cabinet around shop or even outside to pick up with forklift and put on truck if needed. in this tutorial, i show you how to make storage cabinets that make for easy. This unit features 20 small caddies with drawers, three larger caddies underneath, a shelf for keeping equipment and…. I built this desktop organizer caddy to keep all the small parts and electronics components i've been collecting for my tinker area. ultimate diy small parts organizer caddy:
from www.pinterest.es
This unit features 20 small caddies with drawers, three larger caddies underneath, a shelf for keeping equipment and…. I built this desktop organizer caddy to keep all the small parts and electronics components i've been collecting for my tinker area. · lots and lots of small drawers to organize small parts · some larger drawers for larger parts or quantities · ability to roll cabinet around shop or even outside to pick up with forklift and put on truck if needed. ultimate diy small parts organizer caddy: his is free standing while mine is designed to be mounted on a wall or the side of a. in this tutorial, i show you how to make storage cabinets that make for easy.
How To Build A Kitchen Construction Plans And Parts List To
How To Build A Small Parts Cabinet in this tutorial, i show you how to make storage cabinets that make for easy. I built this desktop organizer caddy to keep all the small parts and electronics components i've been collecting for my tinker area. · lots and lots of small drawers to organize small parts · some larger drawers for larger parts or quantities · ability to roll cabinet around shop or even outside to pick up with forklift and put on truck if needed. This unit features 20 small caddies with drawers, three larger caddies underneath, a shelf for keeping equipment and…. in this tutorial, i show you how to make storage cabinets that make for easy. ultimate diy small parts organizer caddy: his is free standing while mine is designed to be mounted on a wall or the side of a.
From welterstorage.com
Rousseau 10Drawer Gray Modular Parts New Welter Storage How To Build A Small Parts Cabinet This unit features 20 small caddies with drawers, three larger caddies underneath, a shelf for keeping equipment and…. his is free standing while mine is designed to be mounted on a wall or the side of a. ultimate diy small parts organizer caddy: I built this desktop organizer caddy to keep all the small parts and electronics components. How To Build A Small Parts Cabinet.
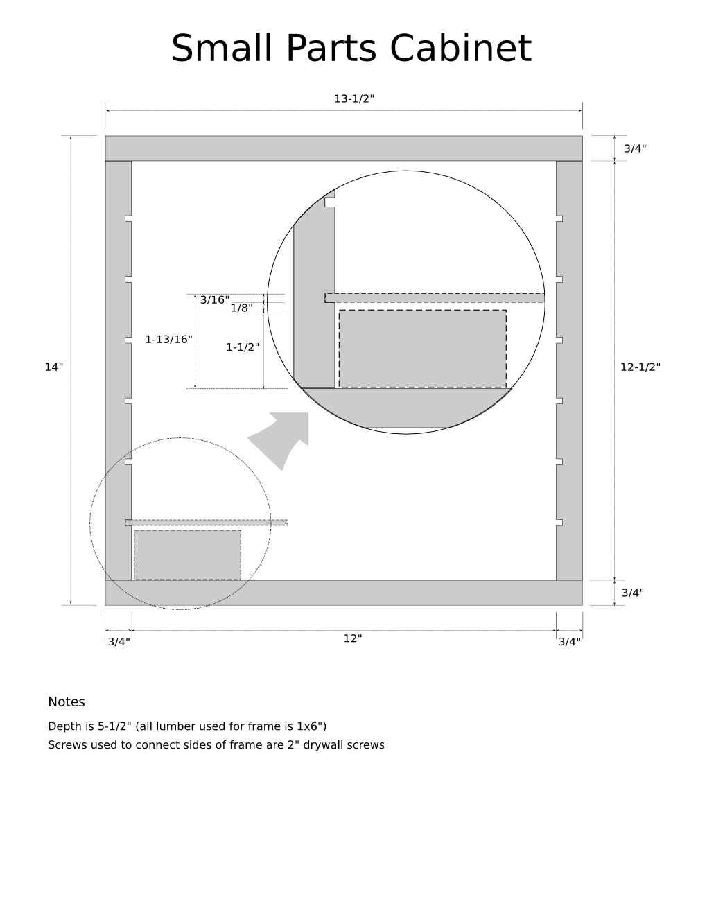
From housefulofhandmade.com
How to Build Wall Houseful of Handmade How To Build A Small Parts Cabinet · lots and lots of small drawers to organize small parts · some larger drawers for larger parts or quantities · ability to roll cabinet around shop or even outside to pick up with forklift and put on truck if needed. ultimate diy small parts organizer caddy: I built this desktop organizer caddy to keep all the small. How To Build A Small Parts Cabinet.
From catseyeann.blogspot.com
Just Make It Small Parts Drawers How To Build A Small Parts Cabinet in this tutorial, i show you how to make storage cabinets that make for easy. · lots and lots of small drawers to organize small parts · some larger drawers for larger parts or quantities · ability to roll cabinet around shop or even outside to pick up with forklift and put on truck if needed. This unit. How To Build A Small Parts Cabinet.
From www.youtube.com
Build The Easy Way How to Build YouTube How To Build A Small Parts Cabinet · lots and lots of small drawers to organize small parts · some larger drawers for larger parts or quantities · ability to roll cabinet around shop or even outside to pick up with forklift and put on truck if needed. This unit features 20 small caddies with drawers, three larger caddies underneath, a shelf for keeping equipment and….. How To Build A Small Parts Cabinet.
From housefulofhandmade.com
How to Build Houseful of Handmade How To Build A Small Parts Cabinet his is free standing while mine is designed to be mounted on a wall or the side of a. ultimate diy small parts organizer caddy: in this tutorial, i show you how to make storage cabinets that make for easy. This unit features 20 small caddies with drawers, three larger caddies underneath, a shelf for keeping equipment. How To Build A Small Parts Cabinet.
From www.pinterest.es
How To Build A Kitchen Construction Plans And Parts List To How To Build A Small Parts Cabinet in this tutorial, i show you how to make storage cabinets that make for easy. I built this desktop organizer caddy to keep all the small parts and electronics components i've been collecting for my tinker area. ultimate diy small parts organizer caddy: his is free standing while mine is designed to be mounted on a wall. How To Build A Small Parts Cabinet.
From mavink.com
Small Parts Storage Drawers How To Build A Small Parts Cabinet This unit features 20 small caddies with drawers, three larger caddies underneath, a shelf for keeping equipment and…. his is free standing while mine is designed to be mounted on a wall or the side of a. ultimate diy small parts organizer caddy: I built this desktop organizer caddy to keep all the small parts and electronics components. How To Build A Small Parts Cabinet.
From www.pinterest.com
Flambeau Hardware 39 Drawer Part Storage (Black) Lego storage How To Build A Small Parts Cabinet This unit features 20 small caddies with drawers, three larger caddies underneath, a shelf for keeping equipment and…. his is free standing while mine is designed to be mounted on a wall or the side of a. · lots and lots of small drawers to organize small parts · some larger drawers for larger parts or quantities ·. How To Build A Small Parts Cabinet.
From www.youtube.com
Lets Make A Small Parts Storage YouTube How To Build A Small Parts Cabinet I built this desktop organizer caddy to keep all the small parts and electronics components i've been collecting for my tinker area. This unit features 20 small caddies with drawers, three larger caddies underneath, a shelf for keeping equipment and…. in this tutorial, i show you how to make storage cabinets that make for easy. ultimate diy small. How To Build A Small Parts Cabinet.
From www.pinterest.com
parts diagram Google Search Kitchen Drawing, Kitchen How To Build A Small Parts Cabinet · lots and lots of small drawers to organize small parts · some larger drawers for larger parts or quantities · ability to roll cabinet around shop or even outside to pick up with forklift and put on truck if needed. I built this desktop organizer caddy to keep all the small parts and electronics components i've been collecting. How To Build A Small Parts Cabinet.
From www.instructables.com
Small Parts 11 Steps (with Pictures) Instructables How To Build A Small Parts Cabinet ultimate diy small parts organizer caddy: his is free standing while mine is designed to be mounted on a wall or the side of a. · lots and lots of small drawers to organize small parts · some larger drawers for larger parts or quantities · ability to roll cabinet around shop or even outside to pick. How To Build A Small Parts Cabinet.
From www.stkittsvilla.com
How To Build A Base Box The Handyman S Daughter How To Build A Small Parts Cabinet in this tutorial, i show you how to make storage cabinets that make for easy. I built this desktop organizer caddy to keep all the small parts and electronics components i've been collecting for my tinker area. This unit features 20 small caddies with drawers, three larger caddies underneath, a shelf for keeping equipment and…. · lots and. How To Build A Small Parts Cabinet.
From www.instructables.com
Small Parts 11 Steps (with Pictures) Instructables How To Build A Small Parts Cabinet This unit features 20 small caddies with drawers, three larger caddies underneath, a shelf for keeping equipment and…. his is free standing while mine is designed to be mounted on a wall or the side of a. ultimate diy small parts organizer caddy: · lots and lots of small drawers to organize small parts · some larger. How To Build A Small Parts Cabinet.
From www.instructables.com
Small Parts 11 Steps (with Pictures) Instructables How To Build A Small Parts Cabinet This unit features 20 small caddies with drawers, three larger caddies underneath, a shelf for keeping equipment and…. his is free standing while mine is designed to be mounted on a wall or the side of a. in this tutorial, i show you how to make storage cabinets that make for easy. · lots and lots of. How To Build A Small Parts Cabinet.
From www.pinterest.com
Make a small parts Woodworking for Mere Mortals Woodworking How To Build A Small Parts Cabinet his is free standing while mine is designed to be mounted on a wall or the side of a. This unit features 20 small caddies with drawers, three larger caddies underneath, a shelf for keeping equipment and…. · lots and lots of small drawers to organize small parts · some larger drawers for larger parts or quantities ·. How To Build A Small Parts Cabinet.
From userdataaccretions.z14.web.core.windows.net
Kitchen Parts Diagram How To Build A Small Parts Cabinet · lots and lots of small drawers to organize small parts · some larger drawers for larger parts or quantities · ability to roll cabinet around shop or even outside to pick up with forklift and put on truck if needed. in this tutorial, i show you how to make storage cabinets that make for easy. his. How To Build A Small Parts Cabinet.
From www.thehandymansdaughter.com
Parts of a [with diagrams] The Handyman's Daughter How To Build A Small Parts Cabinet · lots and lots of small drawers to organize small parts · some larger drawers for larger parts or quantities · ability to roll cabinet around shop or even outside to pick up with forklift and put on truck if needed. in this tutorial, i show you how to make storage cabinets that make for easy. This unit. How To Build A Small Parts Cabinet.
From www.pinterest.ca
Building Upper Part 2 Building kitchen Diy How To Build A Small Parts Cabinet in this tutorial, i show you how to make storage cabinets that make for easy. his is free standing while mine is designed to be mounted on a wall or the side of a. This unit features 20 small caddies with drawers, three larger caddies underneath, a shelf for keeping equipment and…. I built this desktop organizer caddy. How To Build A Small Parts Cabinet.
From www.thespruce.com
How to Build a Basic Wall How To Build A Small Parts Cabinet ultimate diy small parts organizer caddy: · lots and lots of small drawers to organize small parts · some larger drawers for larger parts or quantities · ability to roll cabinet around shop or even outside to pick up with forklift and put on truck if needed. his is free standing while mine is designed to be. How To Build A Small Parts Cabinet.
From www.equip4work.co.uk
Redditek Small Parts Storage Euro Storage Systems How To Build A Small Parts Cabinet his is free standing while mine is designed to be mounted on a wall or the side of a. I built this desktop organizer caddy to keep all the small parts and electronics components i've been collecting for my tinker area. in this tutorial, i show you how to make storage cabinets that make for easy. ·. How To Build A Small Parts Cabinet.
From www.stkittsvilla.com
Making A Tall Storage You How To Build A Small Parts Cabinet in this tutorial, i show you how to make storage cabinets that make for easy. I built this desktop organizer caddy to keep all the small parts and electronics components i've been collecting for my tinker area. his is free standing while mine is designed to be mounted on a wall or the side of a. This unit. How To Build A Small Parts Cabinet.
From www.homedepot.com
AkroMils 16 Drawer Small Parts Storage The Home Depot How To Build A Small Parts Cabinet ultimate diy small parts organizer caddy: his is free standing while mine is designed to be mounted on a wall or the side of a. · lots and lots of small drawers to organize small parts · some larger drawers for larger parts or quantities · ability to roll cabinet around shop or even outside to pick. How To Build A Small Parts Cabinet.
From celetkvb.blob.core.windows.net
Making Parts at Francis Torres blog How To Build A Small Parts Cabinet I built this desktop organizer caddy to keep all the small parts and electronics components i've been collecting for my tinker area. in this tutorial, i show you how to make storage cabinets that make for easy. · lots and lots of small drawers to organize small parts · some larger drawers for larger parts or quantities ·. How To Build A Small Parts Cabinet.
From www.instructables.com
Small Parts 11 Steps (with Pictures) Instructables How To Build A Small Parts Cabinet his is free standing while mine is designed to be mounted on a wall or the side of a. in this tutorial, i show you how to make storage cabinets that make for easy. · lots and lots of small drawers to organize small parts · some larger drawers for larger parts or quantities · ability to. How To Build A Small Parts Cabinet.
From www.stkittsvilla.com
Drawer Office Build Pdf Plans Diy Montreal How To Build A Small Parts Cabinet · lots and lots of small drawers to organize small parts · some larger drawers for larger parts or quantities · ability to roll cabinet around shop or even outside to pick up with forklift and put on truck if needed. his is free standing while mine is designed to be mounted on a wall or the side. How To Build A Small Parts Cabinet.
From www.youtube.com
How to Make a Small Parts / Storage YouTube How To Build A Small Parts Cabinet · lots and lots of small drawers to organize small parts · some larger drawers for larger parts or quantities · ability to roll cabinet around shop or even outside to pick up with forklift and put on truck if needed. his is free standing while mine is designed to be mounted on a wall or the side. How To Build A Small Parts Cabinet.
From americanvisioncabinets.com
Parts How To Build A Small Parts Cabinet I built this desktop organizer caddy to keep all the small parts and electronics components i've been collecting for my tinker area. This unit features 20 small caddies with drawers, three larger caddies underneath, a shelf for keeping equipment and…. ultimate diy small parts organizer caddy: in this tutorial, i show you how to make storage cabinets that. How To Build A Small Parts Cabinet.
From ceubvokd.blob.core.windows.net
How To Build A Base For Sink at Steve Craig blog How To Build A Small Parts Cabinet in this tutorial, i show you how to make storage cabinets that make for easy. This unit features 20 small caddies with drawers, three larger caddies underneath, a shelf for keeping equipment and…. ultimate diy small parts organizer caddy: his is free standing while mine is designed to be mounted on a wall or the side of. How To Build A Small Parts Cabinet.
From www.toolstation.com
Small Parts Steel without Doors 24 Drawers 640 x 586 x 290mm How To Build A Small Parts Cabinet his is free standing while mine is designed to be mounted on a wall or the side of a. in this tutorial, i show you how to make storage cabinets that make for easy. This unit features 20 small caddies with drawers, three larger caddies underneath, a shelf for keeping equipment and…. · lots and lots of. How To Build A Small Parts Cabinet.
From shamrockhomeplan.blogspot.com
How To Build Kitchen Free Plans Kitchen Base Plans How To Build A Small Parts Cabinet I built this desktop organizer caddy to keep all the small parts and electronics components i've been collecting for my tinker area. ultimate diy small parts organizer caddy: his is free standing while mine is designed to be mounted on a wall or the side of a. This unit features 20 small caddies with drawers, three larger caddies. How To Build A Small Parts Cabinet.
From ipipeline.net
How To Build Frameless Kitchen Things In The Kitchen How To Build A Small Parts Cabinet his is free standing while mine is designed to be mounted on a wall or the side of a. in this tutorial, i show you how to make storage cabinets that make for easy. This unit features 20 small caddies with drawers, three larger caddies underneath, a shelf for keeping equipment and…. ultimate diy small parts organizer. How To Build A Small Parts Cabinet.
From housefulofhandmade.com
How to Build Houseful of Handmade How To Build A Small Parts Cabinet in this tutorial, i show you how to make storage cabinets that make for easy. his is free standing while mine is designed to be mounted on a wall or the side of a. This unit features 20 small caddies with drawers, three larger caddies underneath, a shelf for keeping equipment and…. I built this desktop organizer caddy. How To Build A Small Parts Cabinet.
From www.stkittsvilla.com
How To Build A Diy Wall The Handyman S Daughter How To Build A Small Parts Cabinet in this tutorial, i show you how to make storage cabinets that make for easy. This unit features 20 small caddies with drawers, three larger caddies underneath, a shelf for keeping equipment and…. his is free standing while mine is designed to be mounted on a wall or the side of a. ultimate diy small parts organizer. How To Build A Small Parts Cabinet.