Ground Cafe Observatory . you can enjoy a relaxing time with a cup of coffee at the café on the observation deck. the ganghwa peace observatory lies closest to north korea near the military demarcation line, so you will need to bring. jeongdong observatory is a free observatory in seoul that offers best view of deoksugung palace and seoul city hall. each observation point has inscriptions of the scenery and the buildings that can be seen from that point, so those not familiar with. You can also explore the wolmisan peak plaza. jeongdong observatory and cafe darak. Jeongdong observatory is a viewing area located on the 13th floor of the seoul city hall seosomun building. jeongdong observatory, located on the 18th floor of the seoul city hall seosomun annex, offers breathtaking views.
from www.behance.net
each observation point has inscriptions of the scenery and the buildings that can be seen from that point, so those not familiar with. Jeongdong observatory is a viewing area located on the 13th floor of the seoul city hall seosomun building. you can enjoy a relaxing time with a cup of coffee at the café on the observation deck. jeongdong observatory is a free observatory in seoul that offers best view of deoksugung palace and seoul city hall. the ganghwa peace observatory lies closest to north korea near the military demarcation line, so you will need to bring. jeongdong observatory and cafe darak. You can also explore the wolmisan peak plaza. jeongdong observatory, located on the 18th floor of the seoul city hall seosomun annex, offers breathtaking views.
GROUND CAFE on Behance
Ground Cafe Observatory jeongdong observatory, located on the 18th floor of the seoul city hall seosomun annex, offers breathtaking views. You can also explore the wolmisan peak plaza. Jeongdong observatory is a viewing area located on the 13th floor of the seoul city hall seosomun building. each observation point has inscriptions of the scenery and the buildings that can be seen from that point, so those not familiar with. the ganghwa peace observatory lies closest to north korea near the military demarcation line, so you will need to bring. jeongdong observatory, located on the 18th floor of the seoul city hall seosomun annex, offers breathtaking views. you can enjoy a relaxing time with a cup of coffee at the café on the observation deck. jeongdong observatory and cafe darak. jeongdong observatory is a free observatory in seoul that offers best view of deoksugung palace and seoul city hall.
From www.walesonline.co.uk
There are some dramatic changes taking place at Swansea's seafront Ground Cafe Observatory jeongdong observatory is a free observatory in seoul that offers best view of deoksugung palace and seoul city hall. the ganghwa peace observatory lies closest to north korea near the military demarcation line, so you will need to bring. jeongdong observatory, located on the 18th floor of the seoul city hall seosomun annex, offers breathtaking views. . Ground Cafe Observatory.
From www.onlyinyourstate.com
Common Ground Cafe Is Best Cafe In Massachusetts Ground Cafe Observatory jeongdong observatory and cafe darak. jeongdong observatory is a free observatory in seoul that offers best view of deoksugung palace and seoul city hall. jeongdong observatory, located on the 18th floor of the seoul city hall seosomun annex, offers breathtaking views. each observation point has inscriptions of the scenery and the buildings that can be seen. Ground Cafe Observatory.
From twitter.com
Common Ground Cafe (CGC_PC) Twitter Ground Cafe Observatory each observation point has inscriptions of the scenery and the buildings that can be seen from that point, so those not familiar with. jeongdong observatory, located on the 18th floor of the seoul city hall seosomun annex, offers breathtaking views. the ganghwa peace observatory lies closest to north korea near the military demarcation line, so you will. Ground Cafe Observatory.
From www.inkululeko.org
Common Ground Cafe Located in Makhanda, South Africa — Inkululeko Ground Cafe Observatory each observation point has inscriptions of the scenery and the buildings that can be seen from that point, so those not familiar with. you can enjoy a relaxing time with a cup of coffee at the café on the observation deck. Jeongdong observatory is a viewing area located on the 13th floor of the seoul city hall seosomun. Ground Cafe Observatory.
From www.toasttab.com
Solid Ground Cafe Ground Cafe Observatory jeongdong observatory is a free observatory in seoul that offers best view of deoksugung palace and seoul city hall. jeongdong observatory, located on the 18th floor of the seoul city hall seosomun annex, offers breathtaking views. Jeongdong observatory is a viewing area located on the 13th floor of the seoul city hall seosomun building. you can enjoy. Ground Cafe Observatory.
From groundculture.co.za
Guide to Visiting Restaurants in Observatory Ground Culture Ground Cafe Observatory jeongdong observatory and cafe darak. Jeongdong observatory is a viewing area located on the 13th floor of the seoul city hall seosomun building. jeongdong observatory is a free observatory in seoul that offers best view of deoksugung palace and seoul city hall. the ganghwa peace observatory lies closest to north korea near the military demarcation line, so. Ground Cafe Observatory.
From www.behance.net
GROUND CAFE on Behance Ground Cafe Observatory you can enjoy a relaxing time with a cup of coffee at the café on the observation deck. You can also explore the wolmisan peak plaza. jeongdong observatory, located on the 18th floor of the seoul city hall seosomun annex, offers breathtaking views. the ganghwa peace observatory lies closest to north korea near the military demarcation line,. Ground Cafe Observatory.
From www.behance.net
GROUND CAFE on Behance Ground Cafe Observatory jeongdong observatory and cafe darak. the ganghwa peace observatory lies closest to north korea near the military demarcation line, so you will need to bring. You can also explore the wolmisan peak plaza. each observation point has inscriptions of the scenery and the buildings that can be seen from that point, so those not familiar with. Jeongdong. Ground Cafe Observatory.
From eu.primalucelab.com
COMPACT Observatory Station with 2m dome Ground Cafe Observatory the ganghwa peace observatory lies closest to north korea near the military demarcation line, so you will need to bring. Jeongdong observatory is a viewing area located on the 13th floor of the seoul city hall seosomun building. each observation point has inscriptions of the scenery and the buildings that can be seen from that point, so those. Ground Cafe Observatory.
From groundculture.co.za
Ground Culture Cafe Ground Culture Ground Cafe Observatory jeongdong observatory and cafe darak. you can enjoy a relaxing time with a cup of coffee at the café on the observation deck. each observation point has inscriptions of the scenery and the buildings that can be seen from that point, so those not familiar with. the ganghwa peace observatory lies closest to north korea near. Ground Cafe Observatory.
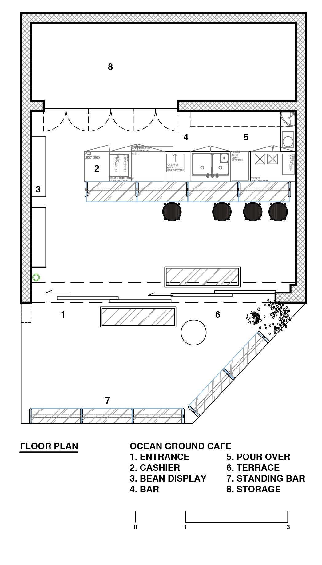
From architizer.com
Ocean Ground Cafe by Atelier A Architizer Ground Cafe Observatory jeongdong observatory, located on the 18th floor of the seoul city hall seosomun annex, offers breathtaking views. jeongdong observatory is a free observatory in seoul that offers best view of deoksugung palace and seoul city hall. you can enjoy a relaxing time with a cup of coffee at the café on the observation deck. Jeongdong observatory is. Ground Cafe Observatory.
From architizer.com
Ocean Ground Cafe by Atelier A Architizer Ground Cafe Observatory you can enjoy a relaxing time with a cup of coffee at the café on the observation deck. the ganghwa peace observatory lies closest to north korea near the military demarcation line, so you will need to bring. You can also explore the wolmisan peak plaza. Jeongdong observatory is a viewing area located on the 13th floor of. Ground Cafe Observatory.
From www.qmsu.org
Ground Café Ground Cafe Observatory each observation point has inscriptions of the scenery and the buildings that can be seen from that point, so those not familiar with. jeongdong observatory and cafe darak. You can also explore the wolmisan peak plaza. jeongdong observatory is a free observatory in seoul that offers best view of deoksugung palace and seoul city hall. the. Ground Cafe Observatory.
From groundculture.co.za
Guide to Visiting Restaurants in Observatory Ground Culture Ground Cafe Observatory each observation point has inscriptions of the scenery and the buildings that can be seen from that point, so those not familiar with. Jeongdong observatory is a viewing area located on the 13th floor of the seoul city hall seosomun building. the ganghwa peace observatory lies closest to north korea near the military demarcation line, so you will. Ground Cafe Observatory.
From www.baanlaesuan.com
GATHER GROUND CAFE ว่าด้วยเรื่องกาแฟไทยในคาเฟ่สไตล์ยุโรป room Ground Cafe Observatory jeongdong observatory is a free observatory in seoul that offers best view of deoksugung palace and seoul city hall. jeongdong observatory, located on the 18th floor of the seoul city hall seosomun annex, offers breathtaking views. each observation point has inscriptions of the scenery and the buildings that can be seen from that point, so those not. Ground Cafe Observatory.
From www.solidgroundcafe.com
Solid Ground Cafe Ground Cafe Observatory the ganghwa peace observatory lies closest to north korea near the military demarcation line, so you will need to bring. You can also explore the wolmisan peak plaza. jeongdong observatory, located on the 18th floor of the seoul city hall seosomun annex, offers breathtaking views. jeongdong observatory is a free observatory in seoul that offers best view. Ground Cafe Observatory.
From www.behance.net
GROUND CAFE on Behance Ground Cafe Observatory Jeongdong observatory is a viewing area located on the 13th floor of the seoul city hall seosomun building. jeongdong observatory, located on the 18th floor of the seoul city hall seosomun annex, offers breathtaking views. jeongdong observatory is a free observatory in seoul that offers best view of deoksugung palace and seoul city hall. You can also explore. Ground Cafe Observatory.
From groundculture.co.za
Guide to Visiting Restaurants in Observatory Ground Culture Ground Cafe Observatory you can enjoy a relaxing time with a cup of coffee at the café on the observation deck. jeongdong observatory and cafe darak. jeongdong observatory, located on the 18th floor of the seoul city hall seosomun annex, offers breathtaking views. the ganghwa peace observatory lies closest to north korea near the military demarcation line, so you. Ground Cafe Observatory.
From www.researchgate.net
(PDF) THEMIS ground based observatory system design Ground Cafe Observatory jeongdong observatory, located on the 18th floor of the seoul city hall seosomun annex, offers breathtaking views. each observation point has inscriptions of the scenery and the buildings that can be seen from that point, so those not familiar with. jeongdong observatory is a free observatory in seoul that offers best view of deoksugung palace and seoul. Ground Cafe Observatory.
From www.pinterest.com
Rooftop café with breathtaking views Crystal Club, spread over 3 Ground Cafe Observatory jeongdong observatory, located on the 18th floor of the seoul city hall seosomun annex, offers breathtaking views. Jeongdong observatory is a viewing area located on the 13th floor of the seoul city hall seosomun building. You can also explore the wolmisan peak plaza. jeongdong observatory and cafe darak. each observation point has inscriptions of the scenery and. Ground Cafe Observatory.
From groundculture.co.za
Guide to Visiting Restaurants in Observatory Ground Culture Ground Cafe Observatory the ganghwa peace observatory lies closest to north korea near the military demarcation line, so you will need to bring. jeongdong observatory and cafe darak. each observation point has inscriptions of the scenery and the buildings that can be seen from that point, so those not familiar with. you can enjoy a relaxing time with a. Ground Cafe Observatory.
From architizer.com
Ocean Ground Cafe by Atelier A Architizer Ground Cafe Observatory Jeongdong observatory is a viewing area located on the 13th floor of the seoul city hall seosomun building. the ganghwa peace observatory lies closest to north korea near the military demarcation line, so you will need to bring. you can enjoy a relaxing time with a cup of coffee at the café on the observation deck. You can. Ground Cafe Observatory.
From concreteplayground.com
The Grounds Is Opening a Massive New Cafe Inside a Historic InnerCity Ground Cafe Observatory each observation point has inscriptions of the scenery and the buildings that can be seen from that point, so those not familiar with. jeongdong observatory is a free observatory in seoul that offers best view of deoksugung palace and seoul city hall. jeongdong observatory, located on the 18th floor of the seoul city hall seosomun annex, offers. Ground Cafe Observatory.
From groundculture.co.za
Guide to Visiting Restaurants in Observatory Ground Culture Ground Cafe Observatory Jeongdong observatory is a viewing area located on the 13th floor of the seoul city hall seosomun building. each observation point has inscriptions of the scenery and the buildings that can be seen from that point, so those not familiar with. jeongdong observatory and cafe darak. the ganghwa peace observatory lies closest to north korea near the. Ground Cafe Observatory.
From www.qmsu.org
Ground Café Ground Cafe Observatory each observation point has inscriptions of the scenery and the buildings that can be seen from that point, so those not familiar with. you can enjoy a relaxing time with a cup of coffee at the café on the observation deck. the ganghwa peace observatory lies closest to north korea near the military demarcation line, so you. Ground Cafe Observatory.
From mcdonaldobservatory.org
HobbyEberly Telescope, Aerial View McDonald Observatory Ground Cafe Observatory jeongdong observatory, located on the 18th floor of the seoul city hall seosomun annex, offers breathtaking views. Jeongdong observatory is a viewing area located on the 13th floor of the seoul city hall seosomun building. the ganghwa peace observatory lies closest to north korea near the military demarcation line, so you will need to bring. you can. Ground Cafe Observatory.
From architizer.com
Ocean Ground Cafe by Atelier A Architizer Ground Cafe Observatory jeongdong observatory and cafe darak. You can also explore the wolmisan peak plaza. jeongdong observatory, located on the 18th floor of the seoul city hall seosomun annex, offers breathtaking views. Jeongdong observatory is a viewing area located on the 13th floor of the seoul city hall seosomun building. the ganghwa peace observatory lies closest to north korea. Ground Cafe Observatory.
From www.highergroundcafe.ca
HOME Higher Ground Cafe Ground Cafe Observatory jeongdong observatory, located on the 18th floor of the seoul city hall seosomun annex, offers breathtaking views. the ganghwa peace observatory lies closest to north korea near the military demarcation line, so you will need to bring. Jeongdong observatory is a viewing area located on the 13th floor of the seoul city hall seosomun building. jeongdong observatory. Ground Cafe Observatory.
From www.behance.net
GROUND CAFE on Behance Ground Cafe Observatory the ganghwa peace observatory lies closest to north korea near the military demarcation line, so you will need to bring. Jeongdong observatory is a viewing area located on the 13th floor of the seoul city hall seosomun building. jeongdong observatory is a free observatory in seoul that offers best view of deoksugung palace and seoul city hall. You. Ground Cafe Observatory.
From whatnowsandiego.com
Higher Grounds Coffee and Cafe Setting Up Another Stop in Kearny Mesa Ground Cafe Observatory each observation point has inscriptions of the scenery and the buildings that can be seen from that point, so those not familiar with. Jeongdong observatory is a viewing area located on the 13th floor of the seoul city hall seosomun building. jeongdong observatory is a free observatory in seoul that offers best view of deoksugung palace and seoul. Ground Cafe Observatory.
From www.emvy.com.au
Ground Cafe Interior Design Wollongong Ground Cafe Observatory jeongdong observatory and cafe darak. the ganghwa peace observatory lies closest to north korea near the military demarcation line, so you will need to bring. each observation point has inscriptions of the scenery and the buildings that can be seen from that point, so those not familiar with. Jeongdong observatory is a viewing area located on the. Ground Cafe Observatory.
From foodcrush.com.my
Higher Ground Cafe Foodcrush Ground Cafe Observatory jeongdong observatory and cafe darak. each observation point has inscriptions of the scenery and the buildings that can be seen from that point, so those not familiar with. jeongdong observatory is a free observatory in seoul that offers best view of deoksugung palace and seoul city hall. you can enjoy a relaxing time with a cup. Ground Cafe Observatory.
From groundculture.co.za
Guide to Visiting Restaurants in Observatory Ground Culture Ground Cafe Observatory jeongdong observatory, located on the 18th floor of the seoul city hall seosomun annex, offers breathtaking views. jeongdong observatory and cafe darak. You can also explore the wolmisan peak plaza. Jeongdong observatory is a viewing area located on the 13th floor of the seoul city hall seosomun building. each observation point has inscriptions of the scenery and. Ground Cafe Observatory.
From www.gourmettraveller.com.au
Higher Ground cafe, Melbourne Gourmet Traveller Ground Cafe Observatory the ganghwa peace observatory lies closest to north korea near the military demarcation line, so you will need to bring. jeongdong observatory and cafe darak. jeongdong observatory, located on the 18th floor of the seoul city hall seosomun annex, offers breathtaking views. Jeongdong observatory is a viewing area located on the 13th floor of the seoul city. Ground Cafe Observatory.
From www.sluurpy.co.za
Ground Culture Cafe menù, Observatory Menu Fuudies Sluurpy Ground Cafe Observatory jeongdong observatory and cafe darak. jeongdong observatory, located on the 18th floor of the seoul city hall seosomun annex, offers breathtaking views. jeongdong observatory is a free observatory in seoul that offers best view of deoksugung palace and seoul city hall. you can enjoy a relaxing time with a cup of coffee at the café on. Ground Cafe Observatory.