Bathroom Configurations . Explore different bathroom configurations for small, large, or oddly shaped spaces. Your bathroom layout—finding room for everything. Posted by adam chard in room planning | 11 months ago 6 min read. With this guide, we’ll help you plan your space by showing you the most common. Browse our bathroom layout ideas below to find inspiration and spark your creativity. Experience your dream bathroom in virtual reality with wickes visualiser. 4.5/5 (93k) When designing your bathroom layout, start by positioning your sink, shower, tub, and toilet. Next, think about storage solutions, wet and dry zones, and how to tie everything together with beautiful aesthetics. Make your freestanding bath the star of the show by placing it in the centre of the room or sit it by a focal point, such as a window.
from wurld.blogspot.com
Make your freestanding bath the star of the show by placing it in the centre of the room or sit it by a focal point, such as a window. 4.5/5 (93k) Next, think about storage solutions, wet and dry zones, and how to tie everything together with beautiful aesthetics. Experience your dream bathroom in virtual reality with wickes visualiser. Explore different bathroom configurations for small, large, or oddly shaped spaces. Posted by adam chard in room planning | 11 months ago 6 min read. Browse our bathroom layout ideas below to find inspiration and spark your creativity. With this guide, we’ll help you plan your space by showing you the most common. When designing your bathroom layout, start by positioning your sink, shower, tub, and toilet. Your bathroom layout—finding room for everything.
bathroom layout square 7 Bathrooms That Prove You Can Fit It All Into
Bathroom Configurations 4.5/5 (93k) 4.5/5 (93k) Next, think about storage solutions, wet and dry zones, and how to tie everything together with beautiful aesthetics. With this guide, we’ll help you plan your space by showing you the most common. Your bathroom layout—finding room for everything. Explore different bathroom configurations for small, large, or oddly shaped spaces. Posted by adam chard in room planning | 11 months ago 6 min read. Experience your dream bathroom in virtual reality with wickes visualiser. When designing your bathroom layout, start by positioning your sink, shower, tub, and toilet. Make your freestanding bath the star of the show by placing it in the centre of the room or sit it by a focal point, such as a window. Browse our bathroom layout ideas below to find inspiration and spark your creativity.
From homeemoney.com
Bathroom layout large and beautiful photos. Photo to select Bathroom Bathroom Configurations Next, think about storage solutions, wet and dry zones, and how to tie everything together with beautiful aesthetics. 4.5/5 (93k) Make your freestanding bath the star of the show by placing it in the centre of the room or sit it by a focal point, such as a window. With this guide, we’ll help you plan your space by. Bathroom Configurations.
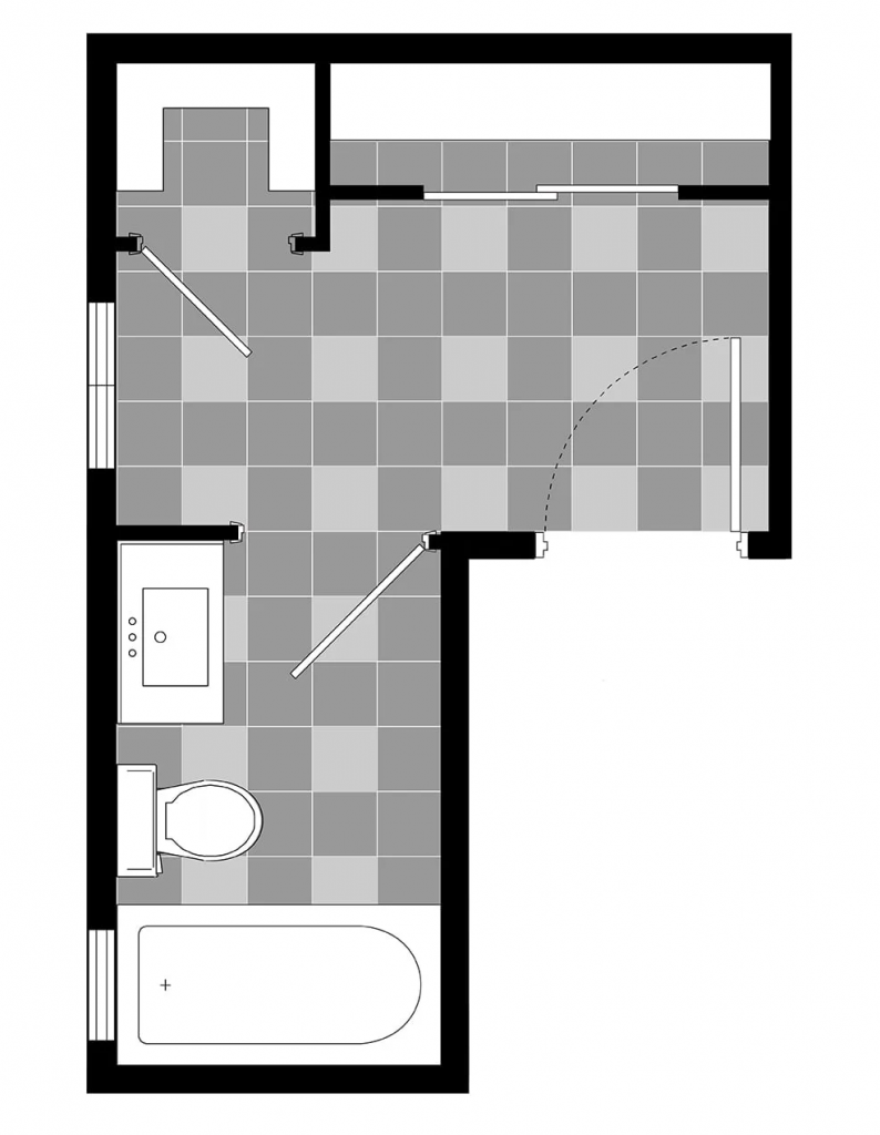
From engineeringdiscoveries.com
Plan Your Bathroom By The Most Suitable Dimensions Guide Bathroom Configurations Browse our bathroom layout ideas below to find inspiration and spark your creativity. Explore different bathroom configurations for small, large, or oddly shaped spaces. Posted by adam chard in room planning | 11 months ago 6 min read. Make your freestanding bath the star of the show by placing it in the centre of the room or sit it by. Bathroom Configurations.
From paolaideapics.blogspot.com
6 X 12 Master Bathroom Layout Paola Idea Pics Bathroom Configurations With this guide, we’ll help you plan your space by showing you the most common. When designing your bathroom layout, start by positioning your sink, shower, tub, and toilet. Browse our bathroom layout ideas below to find inspiration and spark your creativity. Explore different bathroom configurations for small, large, or oddly shaped spaces. Your bathroom layout—finding room for everything. Next,. Bathroom Configurations.
From www.zillow.com
Contemporary Master Bathroom with Ceramic Tile & Undermount Sink Bathroom Configurations With this guide, we’ll help you plan your space by showing you the most common. Make your freestanding bath the star of the show by placing it in the centre of the room or sit it by a focal point, such as a window. Experience your dream bathroom in virtual reality with wickes visualiser. 4.5/5 (93k) Explore different bathroom. Bathroom Configurations.
From mydesigndays.com
The ULTIMATE Guide to Standard Bathroom Sizes & Layouts Bathroom Configurations Explore different bathroom configurations for small, large, or oddly shaped spaces. When designing your bathroom layout, start by positioning your sink, shower, tub, and toilet. Posted by adam chard in room planning | 11 months ago 6 min read. 4.5/5 (93k) Your bathroom layout—finding room for everything. Experience your dream bathroom in virtual reality with wickes visualiser. Browse our. Bathroom Configurations.
From wurld.blogspot.com
bathroom layout square 7 Bathrooms That Prove You Can Fit It All Into Bathroom Configurations Your bathroom layout—finding room for everything. With this guide, we’ll help you plan your space by showing you the most common. Next, think about storage solutions, wet and dry zones, and how to tie everything together with beautiful aesthetics. Browse our bathroom layout ideas below to find inspiration and spark your creativity. 4.5/5 (93k) Explore different bathroom configurations for. Bathroom Configurations.
From carlaaston.com
Remodeling a Master Bathroom? Consider These Layout Guidelines — DESIGNED Bathroom Configurations Posted by adam chard in room planning | 11 months ago 6 min read. Your bathroom layout—finding room for everything. 4.5/5 (93k) Make your freestanding bath the star of the show by placing it in the centre of the room or sit it by a focal point, such as a window. Browse our bathroom layout ideas below to find. Bathroom Configurations.
From www.tbadesigns.com
7 Stunning Master Bathroom Layout Ideas for 2023 [Pictures] Bathroom Configurations Posted by adam chard in room planning | 11 months ago 6 min read. Experience your dream bathroom in virtual reality with wickes visualiser. With this guide, we’ll help you plan your space by showing you the most common. Next, think about storage solutions, wet and dry zones, and how to tie everything together with beautiful aesthetics. Explore different bathroom. Bathroom Configurations.
From www.pinterest.com
9x15 master bath layout. Bathroom layout, Traditional bathroom Bathroom Configurations Posted by adam chard in room planning | 11 months ago 6 min read. Explore different bathroom configurations for small, large, or oddly shaped spaces. Next, think about storage solutions, wet and dry zones, and how to tie everything together with beautiful aesthetics. 4.5/5 (93k) Your bathroom layout—finding room for everything. With this guide, we’ll help you plan your. Bathroom Configurations.
From cinvex.us
Luxury Bathroom Floor Plans Flooring Guide by Cinvex Bathroom Configurations Next, think about storage solutions, wet and dry zones, and how to tie everything together with beautiful aesthetics. With this guide, we’ll help you plan your space by showing you the most common. Your bathroom layout—finding room for everything. Explore different bathroom configurations for small, large, or oddly shaped spaces. Posted by adam chard in room planning | 11 months. Bathroom Configurations.
From engineeringdiscoveries.com
Useful Standard Bathroom Dimension Ideas Engineering Discoveries Bathroom Configurations Experience your dream bathroom in virtual reality with wickes visualiser. Your bathroom layout—finding room for everything. When designing your bathroom layout, start by positioning your sink, shower, tub, and toilet. 4.5/5 (93k) Explore different bathroom configurations for small, large, or oddly shaped spaces. Browse our bathroom layout ideas below to find inspiration and spark your creativity. Next, think about. Bathroom Configurations.
From carlaaston.com
Remodeling a Master Bathroom? Consider These Layout Guidelines — DESIGNED Bathroom Configurations When designing your bathroom layout, start by positioning your sink, shower, tub, and toilet. 4.5/5 (93k) Experience your dream bathroom in virtual reality with wickes visualiser. Explore different bathroom configurations for small, large, or oddly shaped spaces. With this guide, we’ll help you plan your space by showing you the most common. Browse our bathroom layout ideas below to. Bathroom Configurations.
From www.bhg.com
How to Pick the Best Bathroom Layout for Your Dream Space Bathroom Configurations With this guide, we’ll help you plan your space by showing you the most common. Browse our bathroom layout ideas below to find inspiration and spark your creativity. Your bathroom layout—finding room for everything. Explore different bathroom configurations for small, large, or oddly shaped spaces. Next, think about storage solutions, wet and dry zones, and how to tie everything together. Bathroom Configurations.
From www.homestratosphere.com
35 Bathroom Layout Ideas (Floor Plans to Get the Most Out of the Space) Bathroom Configurations Make your freestanding bath the star of the show by placing it in the centre of the room or sit it by a focal point, such as a window. 4.5/5 (93k) Explore different bathroom configurations for small, large, or oddly shaped spaces. Browse our bathroom layout ideas below to find inspiration and spark your creativity. Posted by adam chard. Bathroom Configurations.
From www.mgzdesign.com
Four Master Bathroom Remodeling Tips Bathroom Configurations With this guide, we’ll help you plan your space by showing you the most common. Next, think about storage solutions, wet and dry zones, and how to tie everything together with beautiful aesthetics. Posted by adam chard in room planning | 11 months ago 6 min read. Explore different bathroom configurations for small, large, or oddly shaped spaces. Make your. Bathroom Configurations.
From www.wellsons.com.au
Transform Your Space with Bathroom Vanity Ideas for Small Bathrooms Bathroom Configurations Make your freestanding bath the star of the show by placing it in the centre of the room or sit it by a focal point, such as a window. Experience your dream bathroom in virtual reality with wickes visualiser. Posted by adam chard in room planning | 11 months ago 6 min read. With this guide, we’ll help you plan. Bathroom Configurations.
From layakarchitect.com
Bathroom dimensions (Design & Interior guidelines) Layak Architect Bathroom Configurations Your bathroom layout—finding room for everything. Explore different bathroom configurations for small, large, or oddly shaped spaces. 4.5/5 (93k) Experience your dream bathroom in virtual reality with wickes visualiser. When designing your bathroom layout, start by positioning your sink, shower, tub, and toilet. Posted by adam chard in room planning | 11 months ago 6 min read. Make your. Bathroom Configurations.
From matchness.com
10 Best Hallway Bathroom Design Ideas Bathroom Configurations When designing your bathroom layout, start by positioning your sink, shower, tub, and toilet. Explore different bathroom configurations for small, large, or oddly shaped spaces. With this guide, we’ll help you plan your space by showing you the most common. 4.5/5 (93k) Make your freestanding bath the star of the show by placing it in the centre of the. Bathroom Configurations.
From engineeringdiscoveries.com
Plan Your Bathroom By The Most Suitable Dimensions Guide Engineering Bathroom Configurations When designing your bathroom layout, start by positioning your sink, shower, tub, and toilet. Next, think about storage solutions, wet and dry zones, and how to tie everything together with beautiful aesthetics. Posted by adam chard in room planning | 11 months ago 6 min read. Explore different bathroom configurations for small, large, or oddly shaped spaces. With this guide,. Bathroom Configurations.
From foyr.com
11 Best Bathroom Layout Design Ideas for 2024 Foyr Bathroom Configurations When designing your bathroom layout, start by positioning your sink, shower, tub, and toilet. 4.5/5 (93k) Browse our bathroom layout ideas below to find inspiration and spark your creativity. Posted by adam chard in room planning | 11 months ago 6 min read. With this guide, we’ll help you plan your space by showing you the most common. Experience. Bathroom Configurations.
From engineeringdiscoveries.com
Best Information About Bathroom Size And Space Arrangement Bathroom Configurations 4.5/5 (93k) Make your freestanding bath the star of the show by placing it in the centre of the room or sit it by a focal point, such as a window. Your bathroom layout—finding room for everything. When designing your bathroom layout, start by positioning your sink, shower, tub, and toilet. Experience your dream bathroom in virtual reality with. Bathroom Configurations.
From www.prweb.com
MAAX Bath Inc. Introduces Innovative Solutions for Baths, Showers and Bathroom Configurations Make your freestanding bath the star of the show by placing it in the centre of the room or sit it by a focal point, such as a window. With this guide, we’ll help you plan your space by showing you the most common. Your bathroom layout—finding room for everything. Experience your dream bathroom in virtual reality with wickes visualiser.. Bathroom Configurations.
From www.boardandvellum.com
Common Bathroom Floor Plans Rules of Thumb for Layout Board & Vellum Bathroom Configurations 4.5/5 (93k) When designing your bathroom layout, start by positioning your sink, shower, tub, and toilet. Posted by adam chard in room planning | 11 months ago 6 min read. With this guide, we’ll help you plan your space by showing you the most common. Browse our bathroom layout ideas below to find inspiration and spark your creativity. Your. Bathroom Configurations.
From www.chrislovesjulia.com
The Two Master Bathroom Layouts We're Trying to decide between Chris Bathroom Configurations Your bathroom layout—finding room for everything. When designing your bathroom layout, start by positioning your sink, shower, tub, and toilet. Explore different bathroom configurations for small, large, or oddly shaped spaces. Experience your dream bathroom in virtual reality with wickes visualiser. Browse our bathroom layout ideas below to find inspiration and spark your creativity. Next, think about storage solutions, wet. Bathroom Configurations.
From theurbandecor.com
Narrow Master Bathroom Ideas To Maximize Space And Style The Urban Decor Bathroom Configurations Next, think about storage solutions, wet and dry zones, and how to tie everything together with beautiful aesthetics. Explore different bathroom configurations for small, large, or oddly shaped spaces. 4.5/5 (93k) When designing your bathroom layout, start by positioning your sink, shower, tub, and toilet. Browse our bathroom layout ideas below to find inspiration and spark your creativity. Experience. Bathroom Configurations.
From designingidea.com
Best Bathroom Layouts (Design Ideas) Designing Idea Bathroom Configurations 4.5/5 (93k) Make your freestanding bath the star of the show by placing it in the centre of the room or sit it by a focal point, such as a window. Your bathroom layout—finding room for everything. Next, think about storage solutions, wet and dry zones, and how to tie everything together with beautiful aesthetics. Posted by adam chard. Bathroom Configurations.
From kitchenandbathshop.com
Maximize Your Small Bathroom 10 SpaceSaving 5x8 Bathroom Layout Ideas Bathroom Configurations Your bathroom layout—finding room for everything. When designing your bathroom layout, start by positioning your sink, shower, tub, and toilet. Browse our bathroom layout ideas below to find inspiration and spark your creativity. Next, think about storage solutions, wet and dry zones, and how to tie everything together with beautiful aesthetics. With this guide, we’ll help you plan your space. Bathroom Configurations.
From www.roomsketcher.com
Bathroom Layout 101 A Guide to Planning Your Dream Bathroom Bathroom Configurations When designing your bathroom layout, start by positioning your sink, shower, tub, and toilet. Posted by adam chard in room planning | 11 months ago 6 min read. Make your freestanding bath the star of the show by placing it in the centre of the room or sit it by a focal point, such as a window. Browse our bathroom. Bathroom Configurations.
From www.homestratosphere.com
45 Modern Bathroom Interior Design Ideas Bathroom Configurations Make your freestanding bath the star of the show by placing it in the centre of the room or sit it by a focal point, such as a window. Posted by adam chard in room planning | 11 months ago 6 min read. 4.5/5 (93k) When designing your bathroom layout, start by positioning your sink, shower, tub, and toilet.. Bathroom Configurations.
From www.pinterest.com.au
Clever Layouts for 5x7 Bathroom To Make the Most of Every Inch in 2023 Bathroom Configurations Next, think about storage solutions, wet and dry zones, and how to tie everything together with beautiful aesthetics. Explore different bathroom configurations for small, large, or oddly shaped spaces. Experience your dream bathroom in virtual reality with wickes visualiser. Make your freestanding bath the star of the show by placing it in the centre of the room or sit it. Bathroom Configurations.
From www.youtube.com
The Best Small Bathroom Layout Ideas Design YouTube Bathroom Configurations Explore different bathroom configurations for small, large, or oddly shaped spaces. Posted by adam chard in room planning | 11 months ago 6 min read. Browse our bathroom layout ideas below to find inspiration and spark your creativity. Your bathroom layout—finding room for everything. When designing your bathroom layout, start by positioning your sink, shower, tub, and toilet. Experience your. Bathroom Configurations.
From www.pinterest.com
DIY and inspiring ideas for modern main bathrooms and master bathrooms Bathroom Configurations Browse our bathroom layout ideas below to find inspiration and spark your creativity. Your bathroom layout—finding room for everything. With this guide, we’ll help you plan your space by showing you the most common. Next, think about storage solutions, wet and dry zones, and how to tie everything together with beautiful aesthetics. Explore different bathroom configurations for small, large, or. Bathroom Configurations.
From www.roomsketcher.com
Bathroom Layout 101 A Guide to Planning Your Dream Bathroom Bathroom Configurations Make your freestanding bath the star of the show by placing it in the centre of the room or sit it by a focal point, such as a window. Next, think about storage solutions, wet and dry zones, and how to tie everything together with beautiful aesthetics. When designing your bathroom layout, start by positioning your sink, shower, tub, and. Bathroom Configurations.
From www.edrawsoft.com
Free Bathroom Floor Plan Templates with Classic Layouts EdrawMax Bathroom Configurations Next, think about storage solutions, wet and dry zones, and how to tie everything together with beautiful aesthetics. Browse our bathroom layout ideas below to find inspiration and spark your creativity. When designing your bathroom layout, start by positioning your sink, shower, tub, and toilet. Explore different bathroom configurations for small, large, or oddly shaped spaces. Posted by adam chard. Bathroom Configurations.
From www.bestonlinecabinets.com
A Bathroom’s Layout Bathroom Configurations Your bathroom layout—finding room for everything. When designing your bathroom layout, start by positioning your sink, shower, tub, and toilet. Next, think about storage solutions, wet and dry zones, and how to tie everything together with beautiful aesthetics. 4.5/5 (93k) Posted by adam chard in room planning | 11 months ago 6 min read. With this guide, we’ll help. Bathroom Configurations.