Do You Need City Permit To Build Deck . in the case of minor building works, you are required to seek permission from the local authority before you start construction. More often than not, you won’t require a full set of plans, although a drawing would probably prove helpful in some cases. The short answer is yes. in our comprehensive guide, we discuss what size deck can i build without a permit, exploring exemptions based on size and. Traditional decks are considered to be permanent structures and they are subjected to the local building codes. since most decks attach to a home and exceed certain size and height limits, you’ll likely need a building permit to construct a deck. main, do you need a permit to build a deck? But check with the council because they. building permits most municipalities will require a building permit for the construction of any deck, especially if it's to be. according to the minor building works schedule, you need to appoint a professional registered with sacap or. If the wall is 1,8 m or lower you don’t plans according to the nbr.
from trexrainescape.com
If the wall is 1,8 m or lower you don’t plans according to the nbr. in the case of minor building works, you are required to seek permission from the local authority before you start construction. since most decks attach to a home and exceed certain size and height limits, you’ll likely need a building permit to construct a deck. The short answer is yes. main, do you need a permit to build a deck? according to the minor building works schedule, you need to appoint a professional registered with sacap or. in our comprehensive guide, we discuss what size deck can i build without a permit, exploring exemptions based on size and. More often than not, you won’t require a full set of plans, although a drawing would probably prove helpful in some cases. building permits most municipalities will require a building permit for the construction of any deck, especially if it's to be. But check with the council because they.
Do You Need a Permit to Build a Deck? Trex RainEscape
Do You Need City Permit To Build Deck But check with the council because they. The short answer is yes. More often than not, you won’t require a full set of plans, although a drawing would probably prove helpful in some cases. in the case of minor building works, you are required to seek permission from the local authority before you start construction. But check with the council because they. since most decks attach to a home and exceed certain size and height limits, you’ll likely need a building permit to construct a deck. in our comprehensive guide, we discuss what size deck can i build without a permit, exploring exemptions based on size and. building permits most municipalities will require a building permit for the construction of any deck, especially if it's to be. main, do you need a permit to build a deck? Traditional decks are considered to be permanent structures and they are subjected to the local building codes. If the wall is 1,8 m or lower you don’t plans according to the nbr. according to the minor building works schedule, you need to appoint a professional registered with sacap or.
From www.hgtv.com
How a Deck is Constructed HGTV Do You Need City Permit To Build Deck More often than not, you won’t require a full set of plans, although a drawing would probably prove helpful in some cases. building permits most municipalities will require a building permit for the construction of any deck, especially if it's to be. in our comprehensive guide, we discuss what size deck can i build without a permit, exploring. Do You Need City Permit To Build Deck.
From backyardscape.com
Do I Need a Permit to Build a Patio Cover? Do You Need City Permit To Build Deck according to the minor building works schedule, you need to appoint a professional registered with sacap or. More often than not, you won’t require a full set of plans, although a drawing would probably prove helpful in some cases. The short answer is yes. in our comprehensive guide, we discuss what size deck can i build without a. Do You Need City Permit To Build Deck.
From trexrainescape.com
Do You Need a Permit to Build a Deck? Trex RainEscape Do You Need City Permit To Build Deck in the case of minor building works, you are required to seek permission from the local authority before you start construction. More often than not, you won’t require a full set of plans, although a drawing would probably prove helpful in some cases. If the wall is 1,8 m or lower you don’t plans according to the nbr. . Do You Need City Permit To Build Deck.
From dxogyzsnz.blob.core.windows.net
Do I Need A Building Permit For A Deck In Minnesota at Luis Jones blog Do You Need City Permit To Build Deck according to the minor building works schedule, you need to appoint a professional registered with sacap or. since most decks attach to a home and exceed certain size and height limits, you’ll likely need a building permit to construct a deck. More often than not, you won’t require a full set of plans, although a drawing would probably. Do You Need City Permit To Build Deck.
From hienbeckett.blogspot.com
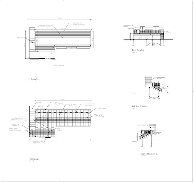
sample building permit drawings for deck Hien Beckett Do You Need City Permit To Build Deck More often than not, you won’t require a full set of plans, although a drawing would probably prove helpful in some cases. But check with the council because they. since most decks attach to a home and exceed certain size and height limits, you’ll likely need a building permit to construct a deck. according to the minor building. Do You Need City Permit To Build Deck.
From ofancienttimes.blogspot.com
Sample Building Permit Drawings For Deck ofancienttimes Do You Need City Permit To Build Deck More often than not, you won’t require a full set of plans, although a drawing would probably prove helpful in some cases. since most decks attach to a home and exceed certain size and height limits, you’ll likely need a building permit to construct a deck. The short answer is yes. according to the minor building works schedule,. Do You Need City Permit To Build Deck.
From dxorhccko.blob.core.windows.net
Do I Need A Permit To Build A Deck In New Hanover County Nc at Anna Do You Need City Permit To Build Deck But check with the council because they. building permits most municipalities will require a building permit for the construction of any deck, especially if it's to be. in our comprehensive guide, we discuss what size deck can i build without a permit, exploring exemptions based on size and. main, do you need a permit to build a. Do You Need City Permit To Build Deck.
From dxorhccko.blob.core.windows.net
Do I Need A Permit To Build A Deck In New Hanover County Nc at Anna Do You Need City Permit To Build Deck Traditional decks are considered to be permanent structures and they are subjected to the local building codes. The short answer is yes. according to the minor building works schedule, you need to appoint a professional registered with sacap or. in the case of minor building works, you are required to seek permission from the local authority before you. Do You Need City Permit To Build Deck.
From dxogyzsnz.blob.core.windows.net
Do I Need A Building Permit For A Deck In Minnesota at Luis Jones blog Do You Need City Permit To Build Deck More often than not, you won’t require a full set of plans, although a drawing would probably prove helpful in some cases. Traditional decks are considered to be permanent structures and they are subjected to the local building codes. But check with the council because they. in the case of minor building works, you are required to seek permission. Do You Need City Permit To Build Deck.
From www.fiverr.com
Do deck plan for your building permit by Jalal33 Fiverr Do You Need City Permit To Build Deck in the case of minor building works, you are required to seek permission from the local authority before you start construction. main, do you need a permit to build a deck? The short answer is yes. More often than not, you won’t require a full set of plans, although a drawing would probably prove helpful in some cases.. Do You Need City Permit To Build Deck.
From gioduxmto.blob.core.windows.net
Do You Need A Permit To Build A Deck In Qld at Karin Castro blog Do You Need City Permit To Build Deck More often than not, you won’t require a full set of plans, although a drawing would probably prove helpful in some cases. according to the minor building works schedule, you need to appoint a professional registered with sacap or. main, do you need a permit to build a deck? Traditional decks are considered to be permanent structures and. Do You Need City Permit To Build Deck.
From trexrainescape.com
Do You Need a Permit to Build a Deck? Trex RainEscape Do You Need City Permit To Build Deck according to the minor building works schedule, you need to appoint a professional registered with sacap or. Traditional decks are considered to be permanent structures and they are subjected to the local building codes. in our comprehensive guide, we discuss what size deck can i build without a permit, exploring exemptions based on size and. But check with. Do You Need City Permit To Build Deck.
From www.fiverr.com
Provide covered deck drawings for city permit by Sabbirhossai934 Fiverr Do You Need City Permit To Build Deck Traditional decks are considered to be permanent structures and they are subjected to the local building codes. But check with the council because they. in the case of minor building works, you are required to seek permission from the local authority before you start construction. building permits most municipalities will require a building permit for the construction of. Do You Need City Permit To Build Deck.
From exodimmcl.blob.core.windows.net
Do I Need A Permit To Build A Deck In Missouri at Sandra Still blog Do You Need City Permit To Build Deck since most decks attach to a home and exceed certain size and height limits, you’ll likely need a building permit to construct a deck. Traditional decks are considered to be permanent structures and they are subjected to the local building codes. But check with the council because they. More often than not, you won’t require a full set of. Do You Need City Permit To Build Deck.
From suvivaarla.com
Hand Drawn Deck Drawings For Permit Warehouse of Ideas Do You Need City Permit To Build Deck main, do you need a permit to build a deck? Traditional decks are considered to be permanent structures and they are subjected to the local building codes. in our comprehensive guide, we discuss what size deck can i build without a permit, exploring exemptions based on size and. More often than not, you won’t require a full set. Do You Need City Permit To Build Deck.
From fortlauderdale.gov
Building Permit General Info City of Fort Lauderdale, FL Do You Need City Permit To Build Deck But check with the council because they. in the case of minor building works, you are required to seek permission from the local authority before you start construction. in our comprehensive guide, we discuss what size deck can i build without a permit, exploring exemptions based on size and. Traditional decks are considered to be permanent structures and. Do You Need City Permit To Build Deck.
From directservices.net
Hire a freelancer to make site plan, plot plan of your property for Do You Need City Permit To Build Deck building permits most municipalities will require a building permit for the construction of any deck, especially if it's to be. Traditional decks are considered to be permanent structures and they are subjected to the local building codes. If the wall is 1,8 m or lower you don’t plans according to the nbr. in our comprehensive guide, we discuss. Do You Need City Permit To Build Deck.
From musicbykatie.com
Do You Need A Permit To Build A Deck In Washington State? The 15 Do You Need City Permit To Build Deck since most decks attach to a home and exceed certain size and height limits, you’ll likely need a building permit to construct a deck. If the wall is 1,8 m or lower you don’t plans according to the nbr. building permits most municipalities will require a building permit for the construction of any deck, especially if it's to. Do You Need City Permit To Build Deck.
From www.familyhandyman.com
Building Permits What You Need to Know The Family Handyman Do You Need City Permit To Build Deck since most decks attach to a home and exceed certain size and height limits, you’ll likely need a building permit to construct a deck. The short answer is yes. But check with the council because they. If the wall is 1,8 m or lower you don’t plans according to the nbr. according to the minor building works schedule,. Do You Need City Permit To Build Deck.
From ths505.blogspot.com
hand drawn deck drawings for permit Lily Woo Do You Need City Permit To Build Deck building permits most municipalities will require a building permit for the construction of any deck, especially if it's to be. in the case of minor building works, you are required to seek permission from the local authority before you start construction. main, do you need a permit to build a deck? according to the minor building. Do You Need City Permit To Build Deck.
From www.youtube.com
Understanding A Building Permit Application The Building Permit Do You Need City Permit To Build Deck If the wall is 1,8 m or lower you don’t plans according to the nbr. building permits most municipalities will require a building permit for the construction of any deck, especially if it's to be. Traditional decks are considered to be permanent structures and they are subjected to the local building codes. in the case of minor building. Do You Need City Permit To Build Deck.
From rebuildtheparty.com
Best Answer Do I Need A Permit To Build A Deck? Rebuild the Party Do You Need City Permit To Build Deck The short answer is yes. in our comprehensive guide, we discuss what size deck can i build without a permit, exploring exemptions based on size and. If the wall is 1,8 m or lower you don’t plans according to the nbr. according to the minor building works schedule, you need to appoint a professional registered with sacap or.. Do You Need City Permit To Build Deck.
From buildersvilla.com
How to build a deck 10x10 Builders Villa Do You Need City Permit To Build Deck If the wall is 1,8 m or lower you don’t plans according to the nbr. since most decks attach to a home and exceed certain size and height limits, you’ll likely need a building permit to construct a deck. according to the minor building works schedule, you need to appoint a professional registered with sacap or. Traditional decks. Do You Need City Permit To Build Deck.
From www.fiverr.com
Provide covered deck drawings for city permit by Sabbirhossai934 Fiverr Do You Need City Permit To Build Deck according to the minor building works schedule, you need to appoint a professional registered with sacap or. since most decks attach to a home and exceed certain size and height limits, you’ll likely need a building permit to construct a deck. If the wall is 1,8 m or lower you don’t plans according to the nbr. in. Do You Need City Permit To Build Deck.
From upgradedhome.com
Do You Need A Building Permit For A Deck? Do You Need City Permit To Build Deck according to the minor building works schedule, you need to appoint a professional registered with sacap or. More often than not, you won’t require a full set of plans, although a drawing would probably prove helpful in some cases. But check with the council because they. The short answer is yes. in the case of minor building works,. Do You Need City Permit To Build Deck.
From exorbwmqo.blob.core.windows.net
Do You Need A Permit To Build An Enclosed Porch at Teresa Fellows blog Do You Need City Permit To Build Deck in the case of minor building works, you are required to seek permission from the local authority before you start construction. since most decks attach to a home and exceed certain size and height limits, you’ll likely need a building permit to construct a deck. in our comprehensive guide, we discuss what size deck can i build. Do You Need City Permit To Build Deck.
From www.dochub.com
City of Chicago Department of Buildings Building Permit Application Do You Need City Permit To Build Deck since most decks attach to a home and exceed certain size and height limits, you’ll likely need a building permit to construct a deck. The short answer is yes. But check with the council because they. in our comprehensive guide, we discuss what size deck can i build without a permit, exploring exemptions based on size and. . Do You Need City Permit To Build Deck.
From www.upwork.com
DECK permit drawing set for city approval Upwork Do You Need City Permit To Build Deck building permits most municipalities will require a building permit for the construction of any deck, especially if it's to be. main, do you need a permit to build a deck? More often than not, you won’t require a full set of plans, although a drawing would probably prove helpful in some cases. in our comprehensive guide, we. Do You Need City Permit To Build Deck.
From www.pinterest.com
Do I Need a Permit to Build a Patio Cover? Backyardscape in 2021 Do You Need City Permit To Build Deck in our comprehensive guide, we discuss what size deck can i build without a permit, exploring exemptions based on size and. since most decks attach to a home and exceed certain size and height limits, you’ll likely need a building permit to construct a deck. according to the minor building works schedule, you need to appoint a. Do You Need City Permit To Build Deck.
From gioduxmto.blob.core.windows.net
Do You Need A Permit To Build A Deck In Qld at Karin Castro blog Do You Need City Permit To Build Deck since most decks attach to a home and exceed certain size and height limits, you’ll likely need a building permit to construct a deck. More often than not, you won’t require a full set of plans, although a drawing would probably prove helpful in some cases. main, do you need a permit to build a deck? according. Do You Need City Permit To Build Deck.
From www.renovation305.com
City Permitting Services Do You Need City Permit To Build Deck in our comprehensive guide, we discuss what size deck can i build without a permit, exploring exemptions based on size and. building permits most municipalities will require a building permit for the construction of any deck, especially if it's to be. since most decks attach to a home and exceed certain size and height limits, you’ll likely. Do You Need City Permit To Build Deck.
From subcusa.com
FIVE WAYS TO GET YOUR BUILDING PERMIT FASTER Subcontractors USA Do You Need City Permit To Build Deck since most decks attach to a home and exceed certain size and height limits, you’ll likely need a building permit to construct a deck. The short answer is yes. Traditional decks are considered to be permanent structures and they are subjected to the local building codes. according to the minor building works schedule, you need to appoint a. Do You Need City Permit To Build Deck.
From hxehsygsc.blob.core.windows.net
Do I Need A Permit To Build A Deck In Edmonton at Jesse Goldsmith blog Do You Need City Permit To Build Deck If the wall is 1,8 m or lower you don’t plans according to the nbr. main, do you need a permit to build a deck? The short answer is yes. in the case of minor building works, you are required to seek permission from the local authority before you start construction. But check with the council because they.. Do You Need City Permit To Build Deck.
From dxogyzsnz.blob.core.windows.net
Do I Need A Building Permit For A Deck In Minnesota at Luis Jones blog Do You Need City Permit To Build Deck The short answer is yes. Traditional decks are considered to be permanent structures and they are subjected to the local building codes. main, do you need a permit to build a deck? More often than not, you won’t require a full set of plans, although a drawing would probably prove helpful in some cases. in the case of. Do You Need City Permit To Build Deck.
From hienbeckett.blogspot.com
sample building permit drawings for deck Hien Beckett Do You Need City Permit To Build Deck in the case of minor building works, you are required to seek permission from the local authority before you start construction. But check with the council because they. If the wall is 1,8 m or lower you don’t plans according to the nbr. More often than not, you won’t require a full set of plans, although a drawing would. Do You Need City Permit To Build Deck.