Furnace Relay Wiring . learn about the wiring of a furnace blower relay and how it affects the functioning of your furnace system. in this hvac training video, i show how the blower motor is controlled by the relays on a furnace control board. Here is a list of the materials you will need: You can turn on or off. learn about hvac relay wiring and how it is used to control the electrical circuits in hvac systems. the purpose of the relay is to allow line voltage equipment to be controlled by a 24v thermostat circuit. Make sure you have a suitable hvac fan relay that is compatible with your system. having everything organized and ready will help you complete the task more efficiently. learn about furnace blower relay wiring and how to properly connect the components for efficient operation and optimal. Find tips and tutorials on proper. Check the specifications and ensure it has the appropriate voltage rating. Find helpful tips and troubleshooting advice.
from schematicanglicizawd.z14.web.core.windows.net
Check the specifications and ensure it has the appropriate voltage rating. Here is a list of the materials you will need: Make sure you have a suitable hvac fan relay that is compatible with your system. having everything organized and ready will help you complete the task more efficiently. learn about hvac relay wiring and how it is used to control the electrical circuits in hvac systems. Find helpful tips and troubleshooting advice. You can turn on or off. Find tips and tutorials on proper. in this hvac training video, i show how the blower motor is controlled by the relays on a furnace control board. learn about the wiring of a furnace blower relay and how it affects the functioning of your furnace system.
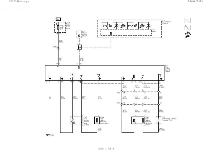
Furnace Fan Relay Wiring
Furnace Relay Wiring learn about the wiring of a furnace blower relay and how it affects the functioning of your furnace system. learn about furnace blower relay wiring and how to properly connect the components for efficient operation and optimal. Find helpful tips and troubleshooting advice. learn about the wiring of a furnace blower relay and how it affects the functioning of your furnace system. the purpose of the relay is to allow line voltage equipment to be controlled by a 24v thermostat circuit. Here is a list of the materials you will need: learn about hvac relay wiring and how it is used to control the electrical circuits in hvac systems. in this hvac training video, i show how the blower motor is controlled by the relays on a furnace control board. Check the specifications and ensure it has the appropriate voltage rating. Make sure you have a suitable hvac fan relay that is compatible with your system. having everything organized and ready will help you complete the task more efficiently. Find tips and tutorials on proper. You can turn on or off.
From kdi-ppi.com
How to Wire a Furnace Blower Relay A Comprehensive Guide Furnace Relay Wiring in this hvac training video, i show how the blower motor is controlled by the relays on a furnace control board. Make sure you have a suitable hvac fan relay that is compatible with your system. You can turn on or off. Here is a list of the materials you will need: learn about furnace blower relay wiring. Furnace Relay Wiring.
From www.got2bwireless.com
Electric Furnace Fan Relay Wiring Diagram Database Furnace Relay Wiring Find helpful tips and troubleshooting advice. having everything organized and ready will help you complete the task more efficiently. You can turn on or off. learn about the wiring of a furnace blower relay and how it affects the functioning of your furnace system. Make sure you have a suitable hvac fan relay that is compatible with your. Furnace Relay Wiring.
From www.justanswer.com
Expert Guide Wiring Two Furnaces to One Thermostat JustAnswer HVAC Furnace Relay Wiring Find helpful tips and troubleshooting advice. learn about furnace blower relay wiring and how to properly connect the components for efficient operation and optimal. learn about the wiring of a furnace blower relay and how it affects the functioning of your furnace system. Make sure you have a suitable hvac fan relay that is compatible with your system.. Furnace Relay Wiring.
From www.youtube.com
How to wire the oil furnace cad cell relay YouTube Furnace Relay Wiring learn about hvac relay wiring and how it is used to control the electrical circuits in hvac systems. Here is a list of the materials you will need: having everything organized and ready will help you complete the task more efficiently. You can turn on or off. Find tips and tutorials on proper. learn about furnace blower. Furnace Relay Wiring.
From annawiringdiagram.com
Atwood Rv Furnace Thermostat Wiring Wiring Diagram Atwood Furnace Wiring Diagram Wiring Furnace Relay Wiring learn about furnace blower relay wiring and how to properly connect the components for efficient operation and optimal. Check the specifications and ensure it has the appropriate voltage rating. having everything organized and ready will help you complete the task more efficiently. learn about hvac relay wiring and how it is used to control the electrical circuits. Furnace Relay Wiring.
From wiringdiagram.2bitboer.com
Electric Furnace Fan Relay Wiring Diagram Wiring Diagram Furnace Relay Wiring Find helpful tips and troubleshooting advice. Find tips and tutorials on proper. You can turn on or off. Here is a list of the materials you will need: in this hvac training video, i show how the blower motor is controlled by the relays on a furnace control board. the purpose of the relay is to allow line. Furnace Relay Wiring.
From radiowiring.blogspot.com
70 Unique Furnace Fan Relay Wiring Diagram Furnace Relay Wiring in this hvac training video, i show how the blower motor is controlled by the relays on a furnace control board. the purpose of the relay is to allow line voltage equipment to be controlled by a 24v thermostat circuit. Make sure you have a suitable hvac fan relay that is compatible with your system. Check the specifications. Furnace Relay Wiring.
From userdiagramforsyth.z21.web.core.windows.net
Electric Furnace Relay Wiring Diagram Furnace Relay Wiring Make sure you have a suitable hvac fan relay that is compatible with your system. learn about hvac relay wiring and how it is used to control the electrical circuits in hvac systems. You can turn on or off. learn about the wiring of a furnace blower relay and how it affects the functioning of your furnace system.. Furnace Relay Wiring.
From www.justanswer.com
How to wire a new relay for my furnace. Furnace Relay Wiring the purpose of the relay is to allow line voltage equipment to be controlled by a 24v thermostat circuit. having everything organized and ready will help you complete the task more efficiently. Find tips and tutorials on proper. Make sure you have a suitable hvac fan relay that is compatible with your system. learn about the wiring. Furnace Relay Wiring.
From www.justanswer.com
How to wire a new relay for my furnace. Furnace Relay Wiring Here is a list of the materials you will need: You can turn on or off. in this hvac training video, i show how the blower motor is controlled by the relays on a furnace control board. Find tips and tutorials on proper. learn about the wiring of a furnace blower relay and how it affects the functioning. Furnace Relay Wiring.
From alquilercastilloshinchables.info
7 Pics Intertherm Mobile Home Electric Furnace Wiring Diagram And Review Alqu Blog Furnace Relay Wiring Find tips and tutorials on proper. Find helpful tips and troubleshooting advice. having everything organized and ready will help you complete the task more efficiently. You can turn on or off. learn about the wiring of a furnace blower relay and how it affects the functioning of your furnace system. learn about furnace blower relay wiring and. Furnace Relay Wiring.
From 2020cadillac.com
Atwood Furnace Relay Wiring Diagram Manual EBooks Atwood Furnace Wiring Diagram Cadician Furnace Relay Wiring the purpose of the relay is to allow line voltage equipment to be controlled by a 24v thermostat circuit. Here is a list of the materials you will need: Check the specifications and ensure it has the appropriate voltage rating. learn about the wiring of a furnace blower relay and how it affects the functioning of your furnace. Furnace Relay Wiring.
From engineeric101.z19.web.core.windows.net
Electric Furnace Relay Wiring Diagram Furnace Relay Wiring Find tips and tutorials on proper. learn about the wiring of a furnace blower relay and how it affects the functioning of your furnace system. You can turn on or off. Make sure you have a suitable hvac fan relay that is compatible with your system. Here is a list of the materials you will need: the purpose. Furnace Relay Wiring.
From diagrampartonsettings.z13.web.core.windows.net
Electric Furnace Relay Wiring Diagram Furnace Relay Wiring learn about hvac relay wiring and how it is used to control the electrical circuits in hvac systems. Here is a list of the materials you will need: having everything organized and ready will help you complete the task more efficiently. in this hvac training video, i show how the blower motor is controlled by the relays. Furnace Relay Wiring.
From stewart-switch.com
Hvac Relay Wiring Furnace Relay Wiring Here is a list of the materials you will need: Make sure you have a suitable hvac fan relay that is compatible with your system. learn about furnace blower relay wiring and how to properly connect the components for efficient operation and optimal. the purpose of the relay is to allow line voltage equipment to be controlled by. Furnace Relay Wiring.
From wiringfixevictor.z19.web.core.windows.net
Electric Furnace Relay Wiring Diagram Furnace Relay Wiring Here is a list of the materials you will need: in this hvac training video, i show how the blower motor is controlled by the relays on a furnace control board. the purpose of the relay is to allow line voltage equipment to be controlled by a 24v thermostat circuit. learn about furnace blower relay wiring and. Furnace Relay Wiring.
From schematicenginebarry.z19.web.core.windows.net
Furnace Transfer Switch Wiring Diagram Furnace Relay Wiring Check the specifications and ensure it has the appropriate voltage rating. Here is a list of the materials you will need: learn about furnace blower relay wiring and how to properly connect the components for efficient operation and optimal. having everything organized and ready will help you complete the task more efficiently. Find helpful tips and troubleshooting advice.. Furnace Relay Wiring.
From www.circuitdiagram.co
Furnace Fan Relay Wiring Diagram Circuit Diagram Furnace Relay Wiring Check the specifications and ensure it has the appropriate voltage rating. learn about hvac relay wiring and how it is used to control the electrical circuits in hvac systems. You can turn on or off. having everything organized and ready will help you complete the task more efficiently. learn about furnace blower relay wiring and how to. Furnace Relay Wiring.
From www.176iot.com
Fan Relay Wiring Diagram Hvac IOT Wiring Diagram Furnace Relay Wiring having everything organized and ready will help you complete the task more efficiently. Check the specifications and ensure it has the appropriate voltage rating. learn about the wiring of a furnace blower relay and how it affects the functioning of your furnace system. Make sure you have a suitable hvac fan relay that is compatible with your system.. Furnace Relay Wiring.
From 2020cadillac.com
Atwood Furnace Relay Wiring Diagram Wiring Diagram Atwood Furnace Wiring Diagram Cadician Furnace Relay Wiring learn about hvac relay wiring and how it is used to control the electrical circuits in hvac systems. Find helpful tips and troubleshooting advice. the purpose of the relay is to allow line voltage equipment to be controlled by a 24v thermostat circuit. Check the specifications and ensure it has the appropriate voltage rating. in this hvac. Furnace Relay Wiring.
From 2020cadillac.com
Atwood Furnace Relay Wiring Diagram Manual EBooks Atwood Furnace Wiring Diagram Cadician Furnace Relay Wiring learn about furnace blower relay wiring and how to properly connect the components for efficient operation and optimal. Here is a list of the materials you will need: the purpose of the relay is to allow line voltage equipment to be controlled by a 24v thermostat circuit. having everything organized and ready will help you complete the. Furnace Relay Wiring.
From wiringdatabaseinfo.blogspot.com
Furnace Fan Relay Wiring Diagram Wiring Site Resource Furnace Relay Wiring You can turn on or off. in this hvac training video, i show how the blower motor is controlled by the relays on a furnace control board. Find tips and tutorials on proper. Find helpful tips and troubleshooting advice. Here is a list of the materials you will need: learn about furnace blower relay wiring and how to. Furnace Relay Wiring.
From annawiringdiagram.com
12 Volt Relay Wiring Diagram Wiring Diagram Furnace Relay Wiring Find tips and tutorials on proper. the purpose of the relay is to allow line voltage equipment to be controlled by a 24v thermostat circuit. Here is a list of the materials you will need: in this hvac training video, i show how the blower motor is controlled by the relays on a furnace control board. Find helpful. Furnace Relay Wiring.
From www.justanswer.com
How to wire a new relay for my furnace. Furnace Relay Wiring Find tips and tutorials on proper. Make sure you have a suitable hvac fan relay that is compatible with your system. learn about furnace blower relay wiring and how to properly connect the components for efficient operation and optimal. Find helpful tips and troubleshooting advice. Check the specifications and ensure it has the appropriate voltage rating. learn about. Furnace Relay Wiring.
From stewart-switch.com
Electric Furnace Fan Relay Wiring Diagram Furnace Relay Wiring Find helpful tips and troubleshooting advice. having everything organized and ready will help you complete the task more efficiently. learn about the wiring of a furnace blower relay and how it affects the functioning of your furnace system. in this hvac training video, i show how the blower motor is controlled by the relays on a furnace. Furnace Relay Wiring.
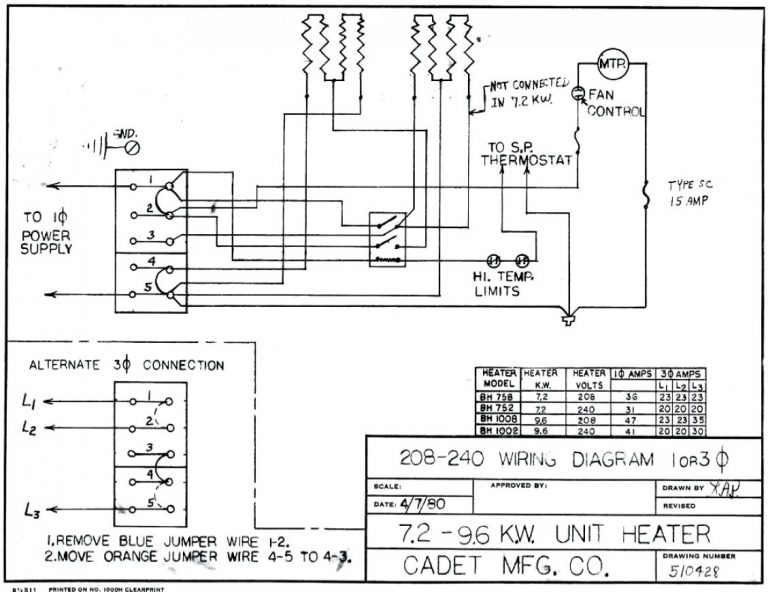
From schematicanglicizawd.z14.web.core.windows.net
Furnace Fan Relay Wiring Furnace Relay Wiring learn about furnace blower relay wiring and how to properly connect the components for efficient operation and optimal. the purpose of the relay is to allow line voltage equipment to be controlled by a 24v thermostat circuit. You can turn on or off. learn about the wiring of a furnace blower relay and how it affects the. Furnace Relay Wiring.
From tops-stars.com
Hvac Fan Relay Wiring Diagram Wiring Diagram And Schematic Diagram Images Furnace Relay Wiring Check the specifications and ensure it has the appropriate voltage rating. in this hvac training video, i show how the blower motor is controlled by the relays on a furnace control board. Here is a list of the materials you will need: the purpose of the relay is to allow line voltage equipment to be controlled by a. Furnace Relay Wiring.
From wiringdiagram.2bitboer.com
Fan Relay Wiring Diagram Hvac Wiring Diagram Furnace Relay Wiring learn about hvac relay wiring and how it is used to control the electrical circuits in hvac systems. Check the specifications and ensure it has the appropriate voltage rating. having everything organized and ready will help you complete the task more efficiently. Find helpful tips and troubleshooting advice. Make sure you have a suitable hvac fan relay that. Furnace Relay Wiring.
From www.caretxdigital.com
Fan Relay Wiring Diagram Hvac Wiring Diagram and Schematics Furnace Relay Wiring Find tips and tutorials on proper. Make sure you have a suitable hvac fan relay that is compatible with your system. Find helpful tips and troubleshooting advice. Here is a list of the materials you will need: in this hvac training video, i show how the blower motor is controlled by the relays on a furnace control board. . Furnace Relay Wiring.
From userguidefixmarianna99.z13.web.core.windows.net
electric furnace fan relay wiring diagram Furnace Relay Wiring Check the specifications and ensure it has the appropriate voltage rating. Make sure you have a suitable hvac fan relay that is compatible with your system. the purpose of the relay is to allow line voltage equipment to be controlled by a 24v thermostat circuit. learn about furnace blower relay wiring and how to properly connect the components. Furnace Relay Wiring.
From 2020cadillac.com
Electric Furnace Wiring Schematic Wiring Diagrams Hubs Furnace Wiring Diagram Cadician's Blog Furnace Relay Wiring Make sure you have a suitable hvac fan relay that is compatible with your system. learn about hvac relay wiring and how it is used to control the electrical circuits in hvac systems. the purpose of the relay is to allow line voltage equipment to be controlled by a 24v thermostat circuit. having everything organized and ready. Furnace Relay Wiring.
From schematicdiagram89.blogspot.com
Wiring A Thermostat To A Furnace / Furnace Thermostat Wiring and Troubleshooting HVAC How To Furnace Relay Wiring learn about the wiring of a furnace blower relay and how it affects the functioning of your furnace system. Here is a list of the materials you will need: learn about furnace blower relay wiring and how to properly connect the components for efficient operation and optimal. Find helpful tips and troubleshooting advice. having everything organized and. Furnace Relay Wiring.
From wiringdiagram.2bitboer.com
Fan Relay Wiring Diagram Hvac Wiring Diagram Furnace Relay Wiring Find helpful tips and troubleshooting advice. You can turn on or off. learn about furnace blower relay wiring and how to properly connect the components for efficient operation and optimal. learn about the wiring of a furnace blower relay and how it affects the functioning of your furnace system. the purpose of the relay is to allow. Furnace Relay Wiring.
From www.wiringwork.com
how to hook up a fan relay switch Wiring Work Furnace Relay Wiring learn about hvac relay wiring and how it is used to control the electrical circuits in hvac systems. in this hvac training video, i show how the blower motor is controlled by the relays on a furnace control board. the purpose of the relay is to allow line voltage equipment to be controlled by a 24v thermostat. Furnace Relay Wiring.
From www.justanswer.com
How to wire a new relay for my furnace. Furnace Relay Wiring learn about furnace blower relay wiring and how to properly connect the components for efficient operation and optimal. having everything organized and ready will help you complete the task more efficiently. You can turn on or off. Check the specifications and ensure it has the appropriate voltage rating. learn about the wiring of a furnace blower relay. Furnace Relay Wiring.