Gdot Pavement Design Checklist . Typically for gdot projects, the design year is 20 years from the base year. Attached for your information and routing for approval are revised guidelines for pavement sections for minor projects. Pavement design package shall be one combined pdf, in the order listed below, and submitted in accordance with the projectwise pavement. View the gdot design policy manual, plan presentation guidelines (ppg) and plan development process (pdp) documents. The following checklist shall be completed by the design phase leader and submitted when a final field plan review. Base year and the design life. The gdot design policy manual is maintained by the office of design policy & support. To submit questions or comments.
from rccpavementcouncil.org
Typically for gdot projects, the design year is 20 years from the base year. View the gdot design policy manual, plan presentation guidelines (ppg) and plan development process (pdp) documents. To submit questions or comments. Attached for your information and routing for approval are revised guidelines for pavement sections for minor projects. Pavement design package shall be one combined pdf, in the order listed below, and submitted in accordance with the projectwise pavement. The gdot design policy manual is maintained by the office of design policy & support. Base year and the design life. The following checklist shall be completed by the design phase leader and submitted when a final field plan review.
I285 GDOT RCC Pavement Council
Gdot Pavement Design Checklist To submit questions or comments. To submit questions or comments. View the gdot design policy manual, plan presentation guidelines (ppg) and plan development process (pdp) documents. Attached for your information and routing for approval are revised guidelines for pavement sections for minor projects. Base year and the design life. Typically for gdot projects, the design year is 20 years from the base year. Pavement design package shall be one combined pdf, in the order listed below, and submitted in accordance with the projectwise pavement. The gdot design policy manual is maintained by the office of design policy & support. The following checklist shall be completed by the design phase leader and submitted when a final field plan review.
From www.researchgate.net
Pavement Preservation Checklist Series (Newman 2010) Download Table Gdot Pavement Design Checklist Base year and the design life. The gdot design policy manual is maintained by the office of design policy & support. Pavement design package shall be one combined pdf, in the order listed below, and submitted in accordance with the projectwise pavement. To submit questions or comments. The following checklist shall be completed by the design phase leader and submitted. Gdot Pavement Design Checklist.
From rccpavementcouncil.org
I285 GDOT RCC Pavement Council Gdot Pavement Design Checklist To submit questions or comments. Attached for your information and routing for approval are revised guidelines for pavement sections for minor projects. The following checklist shall be completed by the design phase leader and submitted when a final field plan review. Base year and the design life. Typically for gdot projects, the design year is 20 years from the base. Gdot Pavement Design Checklist.
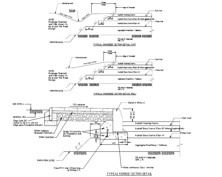
From www.scribd.com
Pavement Edge Section Detail PDF Gdot Pavement Design Checklist The following checklist shall be completed by the design phase leader and submitted when a final field plan review. Attached for your information and routing for approval are revised guidelines for pavement sections for minor projects. Typically for gdot projects, the design year is 20 years from the base year. View the gdot design policy manual, plan presentation guidelines (ppg). Gdot Pavement Design Checklist.
From www.woodcenter.org
FHWA Publishes Pavement Preservation Checklists Institute for Gdot Pavement Design Checklist Base year and the design life. To submit questions or comments. The following checklist shall be completed by the design phase leader and submitted when a final field plan review. View the gdot design policy manual, plan presentation guidelines (ppg) and plan development process (pdp) documents. Pavement design package shall be one combined pdf, in the order listed below, and. Gdot Pavement Design Checklist.
From www.templateroller.com
(United States) Gdot Ecology Consultant Document Submittal Gdot Pavement Design Checklist Attached for your information and routing for approval are revised guidelines for pavement sections for minor projects. Base year and the design life. Pavement design package shall be one combined pdf, in the order listed below, and submitted in accordance with the projectwise pavement. To submit questions or comments. Typically for gdot projects, the design year is 20 years from. Gdot Pavement Design Checklist.
From www.researchgate.net
Asphalt pavement inspection sheet for Sample No. 278, AlFiush Road Gdot Pavement Design Checklist To submit questions or comments. Pavement design package shall be one combined pdf, in the order listed below, and submitted in accordance with the projectwise pavement. Base year and the design life. The following checklist shall be completed by the design phase leader and submitted when a final field plan review. Typically for gdot projects, the design year is 20. Gdot Pavement Design Checklist.
From docslib.org
GDOT Bridge and Structures Design Manual DocsLib Gdot Pavement Design Checklist Base year and the design life. Pavement design package shall be one combined pdf, in the order listed below, and submitted in accordance with the projectwise pavement. Typically for gdot projects, the design year is 20 years from the base year. The following checklist shall be completed by the design phase leader and submitted when a final field plan review.. Gdot Pavement Design Checklist.
From studylib.net
Pervious pavement checklist Gdot Pavement Design Checklist Pavement design package shall be one combined pdf, in the order listed below, and submitted in accordance with the projectwise pavement. View the gdot design policy manual, plan presentation guidelines (ppg) and plan development process (pdp) documents. Typically for gdot projects, the design year is 20 years from the base year. The following checklist shall be completed by the design. Gdot Pavement Design Checklist.
From dokumen.tips
(PDF) Pavement Preservation in Practices in GDOT (cont Gdot Pavement Design Checklist View the gdot design policy manual, plan presentation guidelines (ppg) and plan development process (pdp) documents. To submit questions or comments. Base year and the design life. Pavement design package shall be one combined pdf, in the order listed below, and submitted in accordance with the projectwise pavement. Typically for gdot projects, the design year is 20 years from the. Gdot Pavement Design Checklist.
From www.scribd.com
02 Checklist For Interlocking Precast Concrete Pavers and Kerbstones Gdot Pavement Design Checklist Pavement design package shall be one combined pdf, in the order listed below, and submitted in accordance with the projectwise pavement. The gdot design policy manual is maintained by the office of design policy & support. Base year and the design life. To submit questions or comments. View the gdot design policy manual, plan presentation guidelines (ppg) and plan development. Gdot Pavement Design Checklist.
From www.scribd.com
GDOT Roundabout Checklist Concept PDF Traffic Feasibility Study Gdot Pavement Design Checklist The following checklist shall be completed by the design phase leader and submitted when a final field plan review. View the gdot design policy manual, plan presentation guidelines (ppg) and plan development process (pdp) documents. Attached for your information and routing for approval are revised guidelines for pavement sections for minor projects. Base year and the design life. The gdot. Gdot Pavement Design Checklist.
From www.scribd.com
Paving Checklist Road Surface Building Engineering Gdot Pavement Design Checklist Typically for gdot projects, the design year is 20 years from the base year. Base year and the design life. Pavement design package shall be one combined pdf, in the order listed below, and submitted in accordance with the projectwise pavement. View the gdot design policy manual, plan presentation guidelines (ppg) and plan development process (pdp) documents. The gdot design. Gdot Pavement Design Checklist.
From docslib.org
GDOT Signing and Marking Design Guidelines DocsLib Gdot Pavement Design Checklist The gdot design policy manual is maintained by the office of design policy & support. Pavement design package shall be one combined pdf, in the order listed below, and submitted in accordance with the projectwise pavement. Base year and the design life. To submit questions or comments. View the gdot design policy manual, plan presentation guidelines (ppg) and plan development. Gdot Pavement Design Checklist.
From docslib.org
GDOT Roundabout Design Guide DocsLib Gdot Pavement Design Checklist Attached for your information and routing for approval are revised guidelines for pavement sections for minor projects. To submit questions or comments. The following checklist shall be completed by the design phase leader and submitted when a final field plan review. Typically for gdot projects, the design year is 20 years from the base year. Pavement design package shall be. Gdot Pavement Design Checklist.
From www.scribd.com
Checklist For Pavement Design ReportSuratOlpadSahol Road PDF Gdot Pavement Design Checklist View the gdot design policy manual, plan presentation guidelines (ppg) and plan development process (pdp) documents. Pavement design package shall be one combined pdf, in the order listed below, and submitted in accordance with the projectwise pavement. The following checklist shall be completed by the design phase leader and submitted when a final field plan review. To submit questions or. Gdot Pavement Design Checklist.
From studylib.net
9A1 Pavement Design Checklist Gdot Pavement Design Checklist Typically for gdot projects, the design year is 20 years from the base year. Pavement design package shall be one combined pdf, in the order listed below, and submitted in accordance with the projectwise pavement. The gdot design policy manual is maintained by the office of design policy & support. Attached for your information and routing for approval are revised. Gdot Pavement Design Checklist.
From www.apsed.in
Important Tests on Pavement Materials Tests on Aggregate Gdot Pavement Design Checklist The gdot design policy manual is maintained by the office of design policy & support. Typically for gdot projects, the design year is 20 years from the base year. Pavement design package shall be one combined pdf, in the order listed below, and submitted in accordance with the projectwise pavement. Base year and the design life. View the gdot design. Gdot Pavement Design Checklist.
From schematicmraofvao9.z21.web.core.windows.net
Fdot Flexible Pavement Design Manual Gdot Pavement Design Checklist View the gdot design policy manual, plan presentation guidelines (ppg) and plan development process (pdp) documents. Attached for your information and routing for approval are revised guidelines for pavement sections for minor projects. Pavement design package shall be one combined pdf, in the order listed below, and submitted in accordance with the projectwise pavement. The gdot design policy manual is. Gdot Pavement Design Checklist.
From www.templateroller.com
DA Form 5146r Fill Out, Sign Online and Download Fillable PDF Gdot Pavement Design Checklist Typically for gdot projects, the design year is 20 years from the base year. Attached for your information and routing for approval are revised guidelines for pavement sections for minor projects. To submit questions or comments. The following checklist shall be completed by the design phase leader and submitted when a final field plan review. The gdot design policy manual. Gdot Pavement Design Checklist.
From www.pinterest.com
Road Pavement Construction Inspection Checklist Method Statement HQ Gdot Pavement Design Checklist View the gdot design policy manual, plan presentation guidelines (ppg) and plan development process (pdp) documents. Pavement design package shall be one combined pdf, in the order listed below, and submitted in accordance with the projectwise pavement. The gdot design policy manual is maintained by the office of design policy & support. Typically for gdot projects, the design year is. Gdot Pavement Design Checklist.
From www.researchgate.net
Copy of the GDOT Flexible Pavement Condition Survey Deduct Value Charts Gdot Pavement Design Checklist To submit questions or comments. The gdot design policy manual is maintained by the office of design policy & support. Pavement design package shall be one combined pdf, in the order listed below, and submitted in accordance with the projectwise pavement. Typically for gdot projects, the design year is 20 years from the base year. Attached for your information and. Gdot Pavement Design Checklist.
From www.scribd.com
Checklist For Concrete Road Pavement PDF Road Concrete Gdot Pavement Design Checklist Base year and the design life. Attached for your information and routing for approval are revised guidelines for pavement sections for minor projects. View the gdot design policy manual, plan presentation guidelines (ppg) and plan development process (pdp) documents. Pavement design package shall be one combined pdf, in the order listed below, and submitted in accordance with the projectwise pavement.. Gdot Pavement Design Checklist.
From www.studocu.com
Drawing Checklist (Boundy 8th edition) DRAWING CHECKLIST READING Gdot Pavement Design Checklist To submit questions or comments. Pavement design package shall be one combined pdf, in the order listed below, and submitted in accordance with the projectwise pavement. Attached for your information and routing for approval are revised guidelines for pavement sections for minor projects. Typically for gdot projects, the design year is 20 years from the base year. Base year and. Gdot Pavement Design Checklist.
From www.files.construction
QAQC Checklist Block (Masonry) Walls Construction Documents And Gdot Pavement Design Checklist The following checklist shall be completed by the design phase leader and submitted when a final field plan review. Base year and the design life. The gdot design policy manual is maintained by the office of design policy & support. To submit questions or comments. View the gdot design policy manual, plan presentation guidelines (ppg) and plan development process (pdp). Gdot Pavement Design Checklist.
From www.semanticscholar.org
Table 211 from Developing a GDOT Pavement Marking Handbook Using Field Gdot Pavement Design Checklist Base year and the design life. To submit questions or comments. Typically for gdot projects, the design year is 20 years from the base year. View the gdot design policy manual, plan presentation guidelines (ppg) and plan development process (pdp) documents. Pavement design package shall be one combined pdf, in the order listed below, and submitted in accordance with the. Gdot Pavement Design Checklist.
From issuu.com
Signage & Pavement Marking Plan by King of Prussia District Issuu Gdot Pavement Design Checklist To submit questions or comments. Typically for gdot projects, the design year is 20 years from the base year. Pavement design package shall be one combined pdf, in the order listed below, and submitted in accordance with the projectwise pavement. View the gdot design policy manual, plan presentation guidelines (ppg) and plan development process (pdp) documents. Base year and the. Gdot Pavement Design Checklist.
From www.pinterest.co.kr
Inspection Checklist for Concrete Placement Pre, Post and during Gdot Pavement Design Checklist Attached for your information and routing for approval are revised guidelines for pavement sections for minor projects. Pavement design package shall be one combined pdf, in the order listed below, and submitted in accordance with the projectwise pavement. The following checklist shall be completed by the design phase leader and submitted when a final field plan review. View the gdot. Gdot Pavement Design Checklist.
From www.sunlandasphalt.com
Summer Pavement Maintenance Checklist Sunland Asphalt Gdot Pavement Design Checklist Typically for gdot projects, the design year is 20 years from the base year. The following checklist shall be completed by the design phase leader and submitted when a final field plan review. To submit questions or comments. Attached for your information and routing for approval are revised guidelines for pavement sections for minor projects. Base year and the design. Gdot Pavement Design Checklist.
From www.studocu.com
Rebar Chart gdot scales for bridge design CE 6107 Studocu Gdot Pavement Design Checklist To submit questions or comments. Pavement design package shall be one combined pdf, in the order listed below, and submitted in accordance with the projectwise pavement. Base year and the design life. The gdot design policy manual is maintained by the office of design policy & support. Typically for gdot projects, the design year is 20 years from the base. Gdot Pavement Design Checklist.
From www.scribd.com
Drawing Checklist.pdf Basement Roof Free 30day Trial Scribd Gdot Pavement Design Checklist Base year and the design life. To submit questions or comments. Attached for your information and routing for approval are revised guidelines for pavement sections for minor projects. Pavement design package shall be one combined pdf, in the order listed below, and submitted in accordance with the projectwise pavement. Typically for gdot projects, the design year is 20 years from. Gdot Pavement Design Checklist.
From www.scribd.com
GDOTDPM Design Policy Manual PDF PDF Traffic Cycling Gdot Pavement Design Checklist To submit questions or comments. Typically for gdot projects, the design year is 20 years from the base year. The gdot design policy manual is maintained by the office of design policy & support. Base year and the design life. View the gdot design policy manual, plan presentation guidelines (ppg) and plan development process (pdp) documents. Pavement design package shall. Gdot Pavement Design Checklist.
From www.templateroller.com
(United States) Gdot Ord Design Data Quality Assurance Gdot Pavement Design Checklist The gdot design policy manual is maintained by the office of design policy & support. Base year and the design life. View the gdot design policy manual, plan presentation guidelines (ppg) and plan development process (pdp) documents. Attached for your information and routing for approval are revised guidelines for pavement sections for minor projects. Pavement design package shall be one. Gdot Pavement Design Checklist.
From www.slideserve.com
PPT Gene Skok (UofM) Shongtao Dai (MnDOT) 12 th Minnesota Pavement Gdot Pavement Design Checklist Pavement design package shall be one combined pdf, in the order listed below, and submitted in accordance with the projectwise pavement. The following checklist shall be completed by the design phase leader and submitted when a final field plan review. Typically for gdot projects, the design year is 20 years from the base year. View the gdot design policy manual,. Gdot Pavement Design Checklist.
From www.semanticscholar.org
Table 211 from Developing a GDOT Pavement Marking Handbook Using Field Gdot Pavement Design Checklist The gdot design policy manual is maintained by the office of design policy & support. Attached for your information and routing for approval are revised guidelines for pavement sections for minor projects. Typically for gdot projects, the design year is 20 years from the base year. To submit questions or comments. View the gdot design policy manual, plan presentation guidelines. Gdot Pavement Design Checklist.
From www.semanticscholar.org
Table 211 from Developing a GDOT Pavement Marking Handbook Using Field Gdot Pavement Design Checklist To submit questions or comments. View the gdot design policy manual, plan presentation guidelines (ppg) and plan development process (pdp) documents. Base year and the design life. The following checklist shall be completed by the design phase leader and submitted when a final field plan review. The gdot design policy manual is maintained by the office of design policy &. Gdot Pavement Design Checklist.