Height Of Wall Mixer Above Basin . Vanity height should be 850mm to 900mm; water taps labeled as low and medium spouts are with the ranges of 12cm to 15cm and 15cm to 25cm for low to. wall hung tap ware should have the spout sitting approximately 100mm to 150mm above the basin. discover how to precisely define wall mounted faucet height in your projects, with practical advice useful to all construction industry. height measurements for bathrooms. if your basin taps are integrated into the unit, the height is decided for you. Flaminia offers various lines of taps, available in the wall.
from fyoynjlab.blob.core.windows.net
if your basin taps are integrated into the unit, the height is decided for you. discover how to precisely define wall mounted faucet height in your projects, with practical advice useful to all construction industry. Flaminia offers various lines of taps, available in the wall. Vanity height should be 850mm to 900mm; height measurements for bathrooms. wall hung tap ware should have the spout sitting approximately 100mm to 150mm above the basin. water taps labeled as low and medium spouts are with the ranges of 12cm to 15cm and 15cm to 25cm for low to.
Average Bath Height Australia at Clyde Jones blog
Height Of Wall Mixer Above Basin Vanity height should be 850mm to 900mm; Flaminia offers various lines of taps, available in the wall. water taps labeled as low and medium spouts are with the ranges of 12cm to 15cm and 15cm to 25cm for low to. discover how to precisely define wall mounted faucet height in your projects, with practical advice useful to all construction industry. Vanity height should be 850mm to 900mm; wall hung tap ware should have the spout sitting approximately 100mm to 150mm above the basin. if your basin taps are integrated into the unit, the height is decided for you. height measurements for bathrooms.
From www.handsfreehygiene.com.au
Sensor Tap Tube Design Wall Mounted Hands Free Hygiene Height Of Wall Mixer Above Basin wall hung tap ware should have the spout sitting approximately 100mm to 150mm above the basin. discover how to precisely define wall mounted faucet height in your projects, with practical advice useful to all construction industry. water taps labeled as low and medium spouts are with the ranges of 12cm to 15cm and 15cm to 25cm for. Height Of Wall Mixer Above Basin.
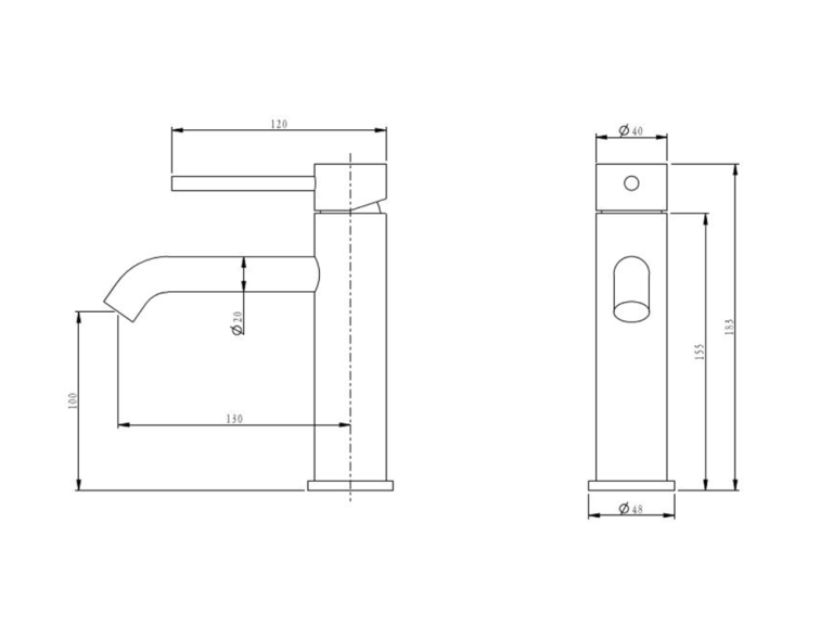
From www.waterware.co.nz
Pioneer Standard Height Basin Mixer Matte Black Waterware Height Of Wall Mixer Above Basin if your basin taps are integrated into the unit, the height is decided for you. discover how to precisely define wall mounted faucet height in your projects, with practical advice useful to all construction industry. water taps labeled as low and medium spouts are with the ranges of 12cm to 15cm and 15cm to 25cm for low. Height Of Wall Mixer Above Basin.
From stylesourcebook.com.au
Elysian Basin Mixer Extended Brushed Copper by ABI Interiors Pty Ltd Height Of Wall Mixer Above Basin Flaminia offers various lines of taps, available in the wall. Vanity height should be 850mm to 900mm; discover how to precisely define wall mounted faucet height in your projects, with practical advice useful to all construction industry. if your basin taps are integrated into the unit, the height is decided for you. wall hung tap ware should. Height Of Wall Mixer Above Basin.
From exymdjdzs.blob.core.windows.net
Wall Hung Basin Height at Judith Autrey blog Height Of Wall Mixer Above Basin if your basin taps are integrated into the unit, the height is decided for you. Flaminia offers various lines of taps, available in the wall. wall hung tap ware should have the spout sitting approximately 100mm to 150mm above the basin. height measurements for bathrooms. discover how to precisely define wall mounted faucet height in your. Height Of Wall Mixer Above Basin.
From www.qssupplies.co.uk
Grohe Eurocube Wall Mounted 2 Hole Chrome Basin Mixer Tap Height Of Wall Mixer Above Basin height measurements for bathrooms. wall hung tap ware should have the spout sitting approximately 100mm to 150mm above the basin. discover how to precisely define wall mounted faucet height in your projects, with practical advice useful to all construction industry. water taps labeled as low and medium spouts are with the ranges of 12cm to 15cm. Height Of Wall Mixer Above Basin.
From www.pinterest.com
Wall Mounted Nice No Tap Hole 38.5cm x 30cm White Contemporary Height Of Wall Mixer Above Basin Flaminia offers various lines of taps, available in the wall. Vanity height should be 850mm to 900mm; discover how to precisely define wall mounted faucet height in your projects, with practical advice useful to all construction industry. if your basin taps are integrated into the unit, the height is decided for you. wall hung tap ware should. Height Of Wall Mixer Above Basin.
From www.waterware.co.nz
Pioneer Standard Height Basin Mixer Antique Copper Waterware Height Of Wall Mixer Above Basin water taps labeled as low and medium spouts are with the ranges of 12cm to 15cm and 15cm to 25cm for low to. Vanity height should be 850mm to 900mm; discover how to precisely define wall mounted faucet height in your projects, with practical advice useful to all construction industry. Flaminia offers various lines of taps, available in. Height Of Wall Mixer Above Basin.
From qebs.com.au
Wall Basin Mixers — QEBS Height Of Wall Mixer Above Basin if your basin taps are integrated into the unit, the height is decided for you. Vanity height should be 850mm to 900mm; height measurements for bathrooms. discover how to precisely define wall mounted faucet height in your projects, with practical advice useful to all construction industry. wall hung tap ware should have the spout sitting approximately. Height Of Wall Mixer Above Basin.
From fyouxdhua.blob.core.windows.net
Wall Hung Basin Waste Height at Kirk Large blog Height Of Wall Mixer Above Basin water taps labeled as low and medium spouts are with the ranges of 12cm to 15cm and 15cm to 25cm for low to. if your basin taps are integrated into the unit, the height is decided for you. height measurements for bathrooms. wall hung tap ware should have the spout sitting approximately 100mm to 150mm above. Height Of Wall Mixer Above Basin.
From www.hardwareconnection.co.za
Montana Wall Mounted Sink Mixer With Swivel Spout, Chrome Plated DZR Height Of Wall Mixer Above Basin water taps labeled as low and medium spouts are with the ranges of 12cm to 15cm and 15cm to 25cm for low to. if your basin taps are integrated into the unit, the height is decided for you. height measurements for bathrooms. discover how to precisely define wall mounted faucet height in your projects, with practical. Height Of Wall Mixer Above Basin.
From www.tapsempire.co.uk
Synergy Tec Studio G Black Dual Wall Mounted Basin Mixer Height Of Wall Mixer Above Basin height measurements for bathrooms. water taps labeled as low and medium spouts are with the ranges of 12cm to 15cm and 15cm to 25cm for low to. wall hung tap ware should have the spout sitting approximately 100mm to 150mm above the basin. Vanity height should be 850mm to 900mm; if your basin taps are integrated. Height Of Wall Mixer Above Basin.
From fyokzdcwf.blob.core.windows.net
Standard Height Of Table Top Basin at Irving Parker blog Height Of Wall Mixer Above Basin height measurements for bathrooms. wall hung tap ware should have the spout sitting approximately 100mm to 150mm above the basin. Vanity height should be 850mm to 900mm; if your basin taps are integrated into the unit, the height is decided for you. Flaminia offers various lines of taps, available in the wall. water taps labeled as. Height Of Wall Mixer Above Basin.
From www.homelava.com
Wall Mounted Basin Mixer Tap Waterfall Bathroom Countertop Faucet Height Of Wall Mixer Above Basin Vanity height should be 850mm to 900mm; discover how to precisely define wall mounted faucet height in your projects, with practical advice useful to all construction industry. height measurements for bathrooms. wall hung tap ware should have the spout sitting approximately 100mm to 150mm above the basin. if your basin taps are integrated into the unit,. Height Of Wall Mixer Above Basin.
From exymdjdzs.blob.core.windows.net
Wall Hung Basin Height at Judith Autrey blog Height Of Wall Mixer Above Basin Vanity height should be 850mm to 900mm; Flaminia offers various lines of taps, available in the wall. discover how to precisely define wall mounted faucet height in your projects, with practical advice useful to all construction industry. wall hung tap ware should have the spout sitting approximately 100mm to 150mm above the basin. water taps labeled as. Height Of Wall Mixer Above Basin.
From exyuewhtw.blob.core.windows.net
Vanity Basin Heights at Stephanie Houston blog Height Of Wall Mixer Above Basin wall hung tap ware should have the spout sitting approximately 100mm to 150mm above the basin. Vanity height should be 850mm to 900mm; Flaminia offers various lines of taps, available in the wall. height measurements for bathrooms. discover how to precisely define wall mounted faucet height in your projects, with practical advice useful to all construction industry.. Height Of Wall Mixer Above Basin.
From www.waterware.co.nz
Pioneer Standard Height Basin Mixer Brushed Gold Waterware Height Of Wall Mixer Above Basin water taps labeled as low and medium spouts are with the ranges of 12cm to 15cm and 15cm to 25cm for low to. if your basin taps are integrated into the unit, the height is decided for you. discover how to precisely define wall mounted faucet height in your projects, with practical advice useful to all construction. Height Of Wall Mixer Above Basin.
From exygmnrnw.blob.core.windows.net
How To Measure A Sink Basin at Robert Moses blog Height Of Wall Mixer Above Basin height measurements for bathrooms. water taps labeled as low and medium spouts are with the ranges of 12cm to 15cm and 15cm to 25cm for low to. wall hung tap ware should have the spout sitting approximately 100mm to 150mm above the basin. discover how to precisely define wall mounted faucet height in your projects, with. Height Of Wall Mixer Above Basin.
From www.theplumbette.com.au
What You Need to Know About In Wall Basin Mixers Height Of Wall Mixer Above Basin if your basin taps are integrated into the unit, the height is decided for you. discover how to precisely define wall mounted faucet height in your projects, with practical advice useful to all construction industry. Vanity height should be 850mm to 900mm; wall hung tap ware should have the spout sitting approximately 100mm to 150mm above the. Height Of Wall Mixer Above Basin.
From www.frontlinebathrooms.co.uk
Alto WallMounted Basin Mixer Height Of Wall Mixer Above Basin wall hung tap ware should have the spout sitting approximately 100mm to 150mm above the basin. water taps labeled as low and medium spouts are with the ranges of 12cm to 15cm and 15cm to 25cm for low to. Flaminia offers various lines of taps, available in the wall. Vanity height should be 850mm to 900mm; if. Height Of Wall Mixer Above Basin.
From alpinekb.com.au
Project Basin Mixer Bathroom Tapware Perth Height Of Wall Mixer Above Basin wall hung tap ware should have the spout sitting approximately 100mm to 150mm above the basin. water taps labeled as low and medium spouts are with the ranges of 12cm to 15cm and 15cm to 25cm for low to. height measurements for bathrooms. Flaminia offers various lines of taps, available in the wall. discover how to. Height Of Wall Mixer Above Basin.
From www.fantasticeng.com
standard height of bathroom fittings FantasticEng Height Of Wall Mixer Above Basin Flaminia offers various lines of taps, available in the wall. discover how to precisely define wall mounted faucet height in your projects, with practical advice useful to all construction industry. wall hung tap ware should have the spout sitting approximately 100mm to 150mm above the basin. Vanity height should be 850mm to 900mm; water taps labeled as. Height Of Wall Mixer Above Basin.
From www.linkedin.com
Choosing Basin Mixers with Comfort Heights A StepbyStep Guide for Height Of Wall Mixer Above Basin water taps labeled as low and medium spouts are with the ranges of 12cm to 15cm and 15cm to 25cm for low to. Flaminia offers various lines of taps, available in the wall. if your basin taps are integrated into the unit, the height is decided for you. Vanity height should be 850mm to 900mm; height measurements. Height Of Wall Mixer Above Basin.
From fyoynjlab.blob.core.windows.net
Average Bath Height Australia at Clyde Jones blog Height Of Wall Mixer Above Basin Vanity height should be 850mm to 900mm; height measurements for bathrooms. wall hung tap ware should have the spout sitting approximately 100mm to 150mm above the basin. if your basin taps are integrated into the unit, the height is decided for you. water taps labeled as low and medium spouts are with the ranges of 12cm. Height Of Wall Mixer Above Basin.
From exyxhgqkb.blob.core.windows.net
What Is The Correct Height For A Wall Oven at Barbara Perez blog Height Of Wall Mixer Above Basin Flaminia offers various lines of taps, available in the wall. water taps labeled as low and medium spouts are with the ranges of 12cm to 15cm and 15cm to 25cm for low to. Vanity height should be 850mm to 900mm; height measurements for bathrooms. if your basin taps are integrated into the unit, the height is decided. Height Of Wall Mixer Above Basin.
From exyomhyxh.blob.core.windows.net
Small Hand Wash Basin Size at Thomas Reynolds blog Height Of Wall Mixer Above Basin Flaminia offers various lines of taps, available in the wall. water taps labeled as low and medium spouts are with the ranges of 12cm to 15cm and 15cm to 25cm for low to. height measurements for bathrooms. discover how to precisely define wall mounted faucet height in your projects, with practical advice useful to all construction industry.. Height Of Wall Mixer Above Basin.
From www.indiamart.com
Stainless Steel Wall Mounted Basin Mixers, Packaging Type Box at Rs Height Of Wall Mixer Above Basin Vanity height should be 850mm to 900mm; height measurements for bathrooms. wall hung tap ware should have the spout sitting approximately 100mm to 150mm above the basin. if your basin taps are integrated into the unit, the height is decided for you. discover how to precisely define wall mounted faucet height in your projects, with practical. Height Of Wall Mixer Above Basin.
From www.waterware.co.nz
Pioneer Standard Height Basin Mixer Brushed Gold Waterware Height Of Wall Mixer Above Basin height measurements for bathrooms. discover how to precisely define wall mounted faucet height in your projects, with practical advice useful to all construction industry. if your basin taps are integrated into the unit, the height is decided for you. Flaminia offers various lines of taps, available in the wall. wall hung tap ware should have the. Height Of Wall Mixer Above Basin.
From www.tap-sensor.com
Wall Mounted Sensor Faucet Wall Mount Touchless Faucet KEGE Height Of Wall Mixer Above Basin water taps labeled as low and medium spouts are with the ranges of 12cm to 15cm and 15cm to 25cm for low to. Vanity height should be 850mm to 900mm; if your basin taps are integrated into the unit, the height is decided for you. Flaminia offers various lines of taps, available in the wall. height measurements. Height Of Wall Mixer Above Basin.
From giotbojwy.blob.core.windows.net
Wall Mounted Basin Units at Harrison Rios blog Height Of Wall Mixer Above Basin if your basin taps are integrated into the unit, the height is decided for you. Vanity height should be 850mm to 900mm; water taps labeled as low and medium spouts are with the ranges of 12cm to 15cm and 15cm to 25cm for low to. wall hung tap ware should have the spout sitting approximately 100mm to. Height Of Wall Mixer Above Basin.
From ezmakaan.com
Grohe BauClassic Basin Mixer Long Height Online Karachi Pakistan Height Of Wall Mixer Above Basin discover how to precisely define wall mounted faucet height in your projects, with practical advice useful to all construction industry. Flaminia offers various lines of taps, available in the wall. height measurements for bathrooms. wall hung tap ware should have the spout sitting approximately 100mm to 150mm above the basin. water taps labeled as low and. Height Of Wall Mixer Above Basin.
From gioitkdio.blob.core.windows.net
Best German Tap Brands at David Lamar blog Height Of Wall Mixer Above Basin Flaminia offers various lines of taps, available in the wall. wall hung tap ware should have the spout sitting approximately 100mm to 150mm above the basin. water taps labeled as low and medium spouts are with the ranges of 12cm to 15cm and 15cm to 25cm for low to. discover how to precisely define wall mounted faucet. Height Of Wall Mixer Above Basin.
From www.duravit.us
Architec Abovecounter basin 032050 Duravit Height Of Wall Mixer Above Basin if your basin taps are integrated into the unit, the height is decided for you. water taps labeled as low and medium spouts are with the ranges of 12cm to 15cm and 15cm to 25cm for low to. discover how to precisely define wall mounted faucet height in your projects, with practical advice useful to all construction. Height Of Wall Mixer Above Basin.
From www.waterware.co.nz
Pioneer Standard Height Basin Mixer Matte Black Waterware Height Of Wall Mixer Above Basin water taps labeled as low and medium spouts are with the ranges of 12cm to 15cm and 15cm to 25cm for low to. Vanity height should be 850mm to 900mm; wall hung tap ware should have the spout sitting approximately 100mm to 150mm above the basin. height measurements for bathrooms. if your basin taps are integrated. Height Of Wall Mixer Above Basin.
From exyugutyc.blob.core.windows.net
Height Of Handheld Shower at Tammy Mobley blog Height Of Wall Mixer Above Basin if your basin taps are integrated into the unit, the height is decided for you. water taps labeled as low and medium spouts are with the ranges of 12cm to 15cm and 15cm to 25cm for low to. wall hung tap ware should have the spout sitting approximately 100mm to 150mm above the basin. discover how. Height Of Wall Mixer Above Basin.
From www.amazon.in
ALTON Edge Single Lever Basin Mixer with Exposed Parts with Concealed Height Of Wall Mixer Above Basin discover how to precisely define wall mounted faucet height in your projects, with practical advice useful to all construction industry. Flaminia offers various lines of taps, available in the wall. height measurements for bathrooms. water taps labeled as low and medium spouts are with the ranges of 12cm to 15cm and 15cm to 25cm for low to.. Height Of Wall Mixer Above Basin.