Framing Cut List . If you’re cutting studs or headers and cripples,. — this calculator attempts to generate the most efficient cut list for a given set of pieces. — fortunately, we've put together this guide to help you create an accurate framing takeoff estimate for your next. lines on the floor before cutting any wall plates, then cut every wall plate in the house before framing. Note my use of the. — a lumber takeoff, often called a framing takeoff, refers to the count of the lumber or wood elements used in a construction project. used correctly, a woodworker's cut list can be a great aid in part layout, confirming key dimensions, and estimating lumber needs. — if your component definitions include a word from the part words list, they’ll show up here. — to estimate the framing materials for each window and door opening, use the total width of the opening plus 7 inches. For example, for a 36.
from chieftalk.chiefarchitect.com
Note my use of the. used correctly, a woodworker's cut list can be a great aid in part layout, confirming key dimensions, and estimating lumber needs. For example, for a 36. — a lumber takeoff, often called a framing takeoff, refers to the count of the lumber or wood elements used in a construction project. — if your component definitions include a word from the part words list, they’ll show up here. — fortunately, we've put together this guide to help you create an accurate framing takeoff estimate for your next. If you’re cutting studs or headers and cripples,. lines on the floor before cutting any wall plates, then cut every wall plate in the house before framing. — to estimate the framing materials for each window and door opening, use the total width of the opening plus 7 inches. — this calculator attempts to generate the most efficient cut list for a given set of pieces.
How Do We Get a Material List for Framing a Remodel General Q & A
Framing Cut List — a lumber takeoff, often called a framing takeoff, refers to the count of the lumber or wood elements used in a construction project. — fortunately, we've put together this guide to help you create an accurate framing takeoff estimate for your next. lines on the floor before cutting any wall plates, then cut every wall plate in the house before framing. — if your component definitions include a word from the part words list, they’ll show up here. — this calculator attempts to generate the most efficient cut list for a given set of pieces. For example, for a 36. If you’re cutting studs or headers and cripples,. — to estimate the framing materials for each window and door opening, use the total width of the opening plus 7 inches. Note my use of the. — a lumber takeoff, often called a framing takeoff, refers to the count of the lumber or wood elements used in a construction project. used correctly, a woodworker's cut list can be a great aid in part layout, confirming key dimensions, and estimating lumber needs.
From forums.autodesk.com
framing cut pattern in plan Autodesk Community Framing Cut List — if your component definitions include a word from the part words list, they’ll show up here. — fortunately, we've put together this guide to help you create an accurate framing takeoff estimate for your next. used correctly, a woodworker's cut list can be a great aid in part layout, confirming key dimensions, and estimating lumber needs.. Framing Cut List.
From nationalcustommillwork.com
Cut List Tool National Custom Millwork Framing Cut List Note my use of the. — a lumber takeoff, often called a framing takeoff, refers to the count of the lumber or wood elements used in a construction project. used correctly, a woodworker's cut list can be a great aid in part layout, confirming key dimensions, and estimating lumber needs. — this calculator attempts to generate the. Framing Cut List.
From bowenolon1951.blogspot.com
Shop Drawings Cut Lists Mechanical Plan Bowen Olon1951 Framing Cut List used correctly, a woodworker's cut list can be a great aid in part layout, confirming key dimensions, and estimating lumber needs. — fortunately, we've put together this guide to help you create an accurate framing takeoff estimate for your next. — this calculator attempts to generate the most efficient cut list for a given set of pieces.. Framing Cut List.
From www.cimtechsoftware.com
Cut List Framing Cut List If you’re cutting studs or headers and cripples,. For example, for a 36. lines on the floor before cutting any wall plates, then cut every wall plate in the house before framing. — to estimate the framing materials for each window and door opening, use the total width of the opening plus 7 inches. — a lumber. Framing Cut List.
From www.popularwoodworking.com
CutlistMaking Tips in SketchUp for Woodworkers Popular Woodworking Framing Cut List lines on the floor before cutting any wall plates, then cut every wall plate in the house before framing. — to estimate the framing materials for each window and door opening, use the total width of the opening plus 7 inches. If you’re cutting studs or headers and cripples,. — fortunately, we've put together this guide to. Framing Cut List.
From simplydeck.com
Framing Chart Simplydeck Framing Cut List lines on the floor before cutting any wall plates, then cut every wall plate in the house before framing. — fortunately, we've put together this guide to help you create an accurate framing takeoff estimate for your next. — if your component definitions include a word from the part words list, they’ll show up here. used. Framing Cut List.
From www.familyhandyman.com
20 Common House Framing Terms You Should Know The Family Handyman Framing Cut List lines on the floor before cutting any wall plates, then cut every wall plate in the house before framing. — to estimate the framing materials for each window and door opening, use the total width of the opening plus 7 inches. — if your component definitions include a word from the part words list, they’ll show up. Framing Cut List.
From www.sawinery.net
A Guide on Woodworking Cut Lists [2024] Framing Cut List used correctly, a woodworker's cut list can be a great aid in part layout, confirming key dimensions, and estimating lumber needs. — if your component definitions include a word from the part words list, they’ll show up here. Note my use of the. If you’re cutting studs or headers and cripples,. — a lumber takeoff, often called. Framing Cut List.
From howtospecialist.com
Cut list 2 HowToSpecialist How to Build, Step by Step DIY Plans Framing Cut List used correctly, a woodworker's cut list can be a great aid in part layout, confirming key dimensions, and estimating lumber needs. — fortunately, we've put together this guide to help you create an accurate framing takeoff estimate for your next. Note my use of the. lines on the floor before cutting any wall plates, then cut every. Framing Cut List.
From www.youtube.com
Lumber Takeoff Template & Framers CutSheet YouTube Framing Cut List — a lumber takeoff, often called a framing takeoff, refers to the count of the lumber or wood elements used in a construction project. used correctly, a woodworker's cut list can be a great aid in part layout, confirming key dimensions, and estimating lumber needs. — this calculator attempts to generate the most efficient cut list for. Framing Cut List.
From strucsoftsolutions.com
A Guide to Wood Framing Software Strucsoft Solutions Framing Cut List lines on the floor before cutting any wall plates, then cut every wall plate in the house before framing. — if your component definitions include a word from the part words list, they’ll show up here. — this calculator attempts to generate the most efficient cut list for a given set of pieces. For example, for a. Framing Cut List.
From www.arcat.com
ColdFormed Metal Framing Metals BIM Objects Revit Families ARCAT Framing Cut List If you’re cutting studs or headers and cripples,. — to estimate the framing materials for each window and door opening, use the total width of the opening plus 7 inches. — this calculator attempts to generate the most efficient cut list for a given set of pieces. For example, for a 36. used correctly, a woodworker's cut. Framing Cut List.
From www.dochub.com
Framing checklist Fill out & sign online DocHub Framing Cut List For example, for a 36. Note my use of the. — if your component definitions include a word from the part words list, they’ll show up here. — fortunately, we've put together this guide to help you create an accurate framing takeoff estimate for your next. — this calculator attempts to generate the most efficient cut list. Framing Cut List.
From www.stkittsvilla.com
Home Contact Us Privacy Policy Terms Of Service Disclaimers Framing Cut List — this calculator attempts to generate the most efficient cut list for a given set of pieces. used correctly, a woodworker's cut list can be a great aid in part layout, confirming key dimensions, and estimating lumber needs. Note my use of the. — fortunately, we've put together this guide to help you create an accurate framing. Framing Cut List.
From www.template.net
Construction Framing Checklist Template in Google Docs, Word Download Framing Cut List Note my use of the. lines on the floor before cutting any wall plates, then cut every wall plate in the house before framing. For example, for a 36. used correctly, a woodworker's cut list can be a great aid in part layout, confirming key dimensions, and estimating lumber needs. If you’re cutting studs or headers and cripples,.. Framing Cut List.
From viewfloor.co
How To Create A Floor Framing Plan In Revit Family Viewfloor.co Framing Cut List — a lumber takeoff, often called a framing takeoff, refers to the count of the lumber or wood elements used in a construction project. — this calculator attempts to generate the most efficient cut list for a given set of pieces. lines on the floor before cutting any wall plates, then cut every wall plate in the. Framing Cut List.
From chieftalk.chiefarchitect.com
How Do We Get a Material List for Framing a Remodel General Q & A Framing Cut List — this calculator attempts to generate the most efficient cut list for a given set of pieces. If you’re cutting studs or headers and cripples,. lines on the floor before cutting any wall plates, then cut every wall plate in the house before framing. Note my use of the. — to estimate the framing materials for each. Framing Cut List.
From cutlistevo.com
Cutlist Optimizer V2 Framing Cut List — a lumber takeoff, often called a framing takeoff, refers to the count of the lumber or wood elements used in a construction project. lines on the floor before cutting any wall plates, then cut every wall plate in the house before framing. — if your component definitions include a word from the part words list, they’ll. Framing Cut List.
From www.pro100usa.com
Cut List Framing Cut List Note my use of the. — this calculator attempts to generate the most efficient cut list for a given set of pieces. used correctly, a woodworker's cut list can be a great aid in part layout, confirming key dimensions, and estimating lumber needs. For example, for a 36. lines on the floor before cutting any wall plates,. Framing Cut List.
From cutlistplus.com
CutList Plus Cutting Diagram Software Sheet Layout Optimizer for Framing Cut List — this calculator attempts to generate the most efficient cut list for a given set of pieces. — to estimate the framing materials for each window and door opening, use the total width of the opening plus 7 inches. — a lumber takeoff, often called a framing takeoff, refers to the count of the lumber or wood. Framing Cut List.
From rocksolidrustic.com
Tips to Framing a Bar with Cut List Rock Solid Rustic Framing Cut List used correctly, a woodworker's cut list can be a great aid in part layout, confirming key dimensions, and estimating lumber needs. If you’re cutting studs or headers and cripples,. For example, for a 36. — to estimate the framing materials for each window and door opening, use the total width of the opening plus 7 inches. —. Framing Cut List.
From www.remodeling.hw.net
Top Framing Tools Remodeling Framing Cut List — fortunately, we've put together this guide to help you create an accurate framing takeoff estimate for your next. lines on the floor before cutting any wall plates, then cut every wall plate in the house before framing. — this calculator attempts to generate the most efficient cut list for a given set of pieces. Note my. Framing Cut List.
From craftsmanengineering.com
Board Stock Cut List Craftsman Woodworks Engineering Services Framing Cut List — this calculator attempts to generate the most efficient cut list for a given set of pieces. — if your component definitions include a word from the part words list, they’ll show up here. Note my use of the. lines on the floor before cutting any wall plates, then cut every wall plate in the house before. Framing Cut List.
From rocksolidrustic.com
Tips to Framing a Bar with Cut List Rock Solid Rustic Framing Cut List — this calculator attempts to generate the most efficient cut list for a given set of pieces. If you’re cutting studs or headers and cripples,. used correctly, a woodworker's cut list can be a great aid in part layout, confirming key dimensions, and estimating lumber needs. — if your component definitions include a word from the part. Framing Cut List.
From www.youtube.com
SolidWorks Weldments Tutorial 2D Drawing & Welding Cut List Part 2 Framing Cut List — this calculator attempts to generate the most efficient cut list for a given set of pieces. — if your component definitions include a word from the part words list, they’ll show up here. For example, for a 36. used correctly, a woodworker's cut list can be a great aid in part layout, confirming key dimensions, and. Framing Cut List.
From www.resnooze.com
Kitchen Cut List Excel Template Framing Cut List lines on the floor before cutting any wall plates, then cut every wall plate in the house before framing. — fortunately, we've put together this guide to help you create an accurate framing takeoff estimate for your next. Note my use of the. — to estimate the framing materials for each window and door opening, use the. Framing Cut List.
From wooddesigner.org
Cutting list optimizer for professional WOOD DESIGNER Framing Cut List used correctly, a woodworker's cut list can be a great aid in part layout, confirming key dimensions, and estimating lumber needs. Note my use of the. — to estimate the framing materials for each window and door opening, use the total width of the opening plus 7 inches. lines on the floor before cutting any wall plates,. Framing Cut List.
From beyondthedraftingboard.blogspot.com
Beyond the Drafting Board Creating a Material Cut List for Your Framing Cut List used correctly, a woodworker's cut list can be a great aid in part layout, confirming key dimensions, and estimating lumber needs. If you’re cutting studs or headers and cripples,. — this calculator attempts to generate the most efficient cut list for a given set of pieces. — to estimate the framing materials for each window and door. Framing Cut List.
From www.pro100usa.com
Cut List Framing Cut List — to estimate the framing materials for each window and door opening, use the total width of the opening plus 7 inches. For example, for a 36. — if your component definitions include a word from the part words list, they’ll show up here. — a lumber takeoff, often called a framing takeoff, refers to the count. Framing Cut List.
From webframes.org
Picture Framing Costs Calculator Framing Cut List — to estimate the framing materials for each window and door opening, use the total width of the opening plus 7 inches. lines on the floor before cutting any wall plates, then cut every wall plate in the house before framing. — this calculator attempts to generate the most efficient cut list for a given set of. Framing Cut List.
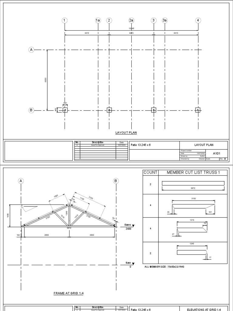
From www.scribd.com
Layout Plan and Elevations for a Patio Cover Showing Truss Framing Framing Cut List Note my use of the. — a lumber takeoff, often called a framing takeoff, refers to the count of the lumber or wood elements used in a construction project. — to estimate the framing materials for each window and door opening, use the total width of the opening plus 7 inches. used correctly, a woodworker's cut list. Framing Cut List.
From www.scribd.com
Cutting Listsample Only Framing Cut List — this calculator attempts to generate the most efficient cut list for a given set of pieces. For example, for a 36. lines on the floor before cutting any wall plates, then cut every wall plate in the house before framing. If you’re cutting studs or headers and cripples,. — a lumber takeoff, often called a framing. Framing Cut List.
From cadbooster.com
Drew update flat patterns and cut lists CAD Booster Framing Cut List — fortunately, we've put together this guide to help you create an accurate framing takeoff estimate for your next. — a lumber takeoff, often called a framing takeoff, refers to the count of the lumber or wood elements used in a construction project. For example, for a 36. — this calculator attempts to generate the most efficient. Framing Cut List.
From www.youtube.com
Group Schedule Labels For Your Cut Lists Revit Framing Software YouTube Framing Cut List — fortunately, we've put together this guide to help you create an accurate framing takeoff estimate for your next. — if your component definitions include a word from the part words list, they’ll show up here. — this calculator attempts to generate the most efficient cut list for a given set of pieces. For example, for a. Framing Cut List.
From www.studio711.com
Cut List Generator Studio711 Framing Cut List If you’re cutting studs or headers and cripples,. For example, for a 36. Note my use of the. used correctly, a woodworker's cut list can be a great aid in part layout, confirming key dimensions, and estimating lumber needs. — a lumber takeoff, often called a framing takeoff, refers to the count of the lumber or wood elements. Framing Cut List.