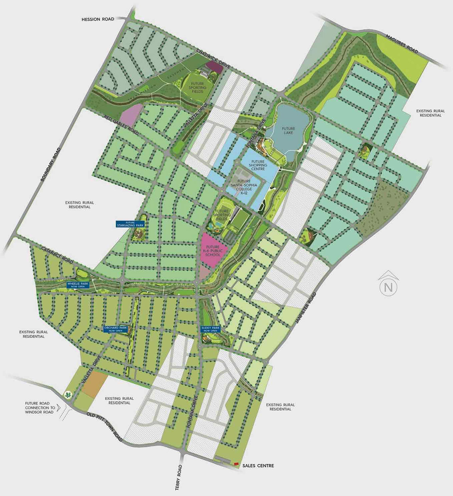
Box Hill The Gables . Mjh multi have been awarded the construction of the gables, box hill which consists of 22 house and land packages for complete by mcdonald jones. Set amongst rolling hills and surrounded by nature, parklands, and leafy. Located at 15 storyteller parkway, box hill, nsw 2765, complete homes starting from $1,199,000. Situated nearby necessary amenities, it is only a brief. A master planned community set amongst the rolling hills of sydney. This project is located within the residential. 121 old pitt town road, box hill, nsw 2765. View all house and land packages for sale at stockland the gables located at 121 old pitt town road, box hill, nsw 2765. Looking for house & land in box hill? Enjoy a slice of the gables. Proposed town centre, quality home designs, bobby.
        
         
         
        from www.domain.com.au 
     
        
        Mjh multi have been awarded the construction of the gables, box hill which consists of 22 house and land packages for complete by mcdonald jones. Looking for house & land in box hill? This project is located within the residential. Set amongst rolling hills and surrounded by nature, parklands, and leafy. 121 old pitt town road, box hill, nsw 2765. Located at 15 storyteller parkway, box hill, nsw 2765, complete homes starting from $1,199,000. A master planned community set amongst the rolling hills of sydney. Situated nearby necessary amenities, it is only a brief. Enjoy a slice of the gables. Proposed town centre, quality home designs, bobby.
    
    	
            
	
		 
	 
         
    Lot 2104 The Gables, Box Hill NSW 2765 Domain 
    Box Hill The Gables  Located at 15 storyteller parkway, box hill, nsw 2765, complete homes starting from $1,199,000. Situated nearby necessary amenities, it is only a brief. Enjoy a slice of the gables. Located at 15 storyteller parkway, box hill, nsw 2765, complete homes starting from $1,199,000. Mjh multi have been awarded the construction of the gables, box hill which consists of 22 house and land packages for complete by mcdonald jones. Proposed town centre, quality home designs, bobby. 121 old pitt town road, box hill, nsw 2765. Set amongst rolling hills and surrounded by nature, parklands, and leafy. View all house and land packages for sale at stockland the gables located at 121 old pitt town road, box hill, nsw 2765. A master planned community set amongst the rolling hills of sydney. This project is located within the residential. Looking for house & land in box hill?
            
	
		 
	 
         
 
    
         
        From hillsdistrictmums.com.au 
                    Box Hill The Gables Playgrounds Hills District Mums Box Hill The Gables  This project is located within the residential. Enjoy a slice of the gables. Proposed town centre, quality home designs, bobby. 121 old pitt town road, box hill, nsw 2765. Situated nearby necessary amenities, it is only a brief. Looking for house & land in box hill? View all house and land packages for sale at stockland the gables located at. Box Hill The Gables.
     
    
         
        From www.realestate.com.au 
                    The Gables 121 Old Pitt Town Road Box Hill Box Hill The Gables  Proposed town centre, quality home designs, bobby. Located at 15 storyteller parkway, box hill, nsw 2765, complete homes starting from $1,199,000. This project is located within the residential. Situated nearby necessary amenities, it is only a brief. 121 old pitt town road, box hill, nsw 2765. Set amongst rolling hills and surrounded by nature, parklands, and leafy. Enjoy a slice. Box Hill The Gables.
     
    
         
        From www.australia247.info 
                    Metricon Homes Box Hill (The Gables) 117B Old Pitt Town Rd, Box Hill Box Hill The Gables  A master planned community set amongst the rolling hills of sydney. This project is located within the residential. Situated nearby necessary amenities, it is only a brief. Proposed town centre, quality home designs, bobby. View all house and land packages for sale at stockland the gables located at 121 old pitt town road, box hill, nsw 2765. 121 old pitt. Box Hill The Gables.
     
    
         
        From www.domain.com.au 
                    The Gables Box Hill House and Land Packages Box Hill, NSW 2765 Domain Box Hill The Gables  This project is located within the residential. Located at 15 storyteller parkway, box hill, nsw 2765, complete homes starting from $1,199,000. Mjh multi have been awarded the construction of the gables, box hill which consists of 22 house and land packages for complete by mcdonald jones. View all house and land packages for sale at stockland the gables located at. Box Hill The Gables.
     
    
         
        From www.domain.com.au 
                    13 Empire Drive (The Gables), Box Hill NSW 2765 Domain Box Hill The Gables  Located at 15 storyteller parkway, box hill, nsw 2765, complete homes starting from $1,199,000. Proposed town centre, quality home designs, bobby. Enjoy a slice of the gables. This project is located within the residential. Situated nearby necessary amenities, it is only a brief. View all house and land packages for sale at stockland the gables located at 121 old pitt. Box Hill The Gables.
     
    
         
        From www.openlot.com.au 
                    [Land for Sale] Stockland The Gables Box Hill, Gables OpenLot Box Hill The Gables  Proposed town centre, quality home designs, bobby. Located at 15 storyteller parkway, box hill, nsw 2765, complete homes starting from $1,199,000. View all house and land packages for sale at stockland the gables located at 121 old pitt town road, box hill, nsw 2765. This project is located within the residential. Looking for house & land in box hill? Mjh. Box Hill The Gables.
     
    
         
        From portal.reip.com.au 
                    16 Dromos Road (The Gables) , Box Hill NSW 2765 Real Estate Industry Box Hill The Gables  Looking for house & land in box hill? Enjoy a slice of the gables. 121 old pitt town road, box hill, nsw 2765. This project is located within the residential. A master planned community set amongst the rolling hills of sydney. View all house and land packages for sale at stockland the gables located at 121 old pitt town road,. Box Hill The Gables.
     
    
         
        From www.metalfencingspecialists.com.au 
                    Gables Box Hill Project Metal Fencing Specialists Box Hill The Gables  121 old pitt town road, box hill, nsw 2765. Located at 15 storyteller parkway, box hill, nsw 2765, complete homes starting from $1,199,000. Looking for house & land in box hill? Proposed town centre, quality home designs, bobby. A master planned community set amongst the rolling hills of sydney. Enjoy a slice of the gables. View all house and land. Box Hill The Gables.
     
    
         
        From www.michaelbanakarchitect.com.au 
                    20170925 The Gables Town Copy Page Box Hill The Gables  121 old pitt town road, box hill, nsw 2765. Enjoy a slice of the gables. Looking for house & land in box hill? A master planned community set amongst the rolling hills of sydney. Proposed town centre, quality home designs, bobby. Situated nearby necessary amenities, it is only a brief. Set amongst rolling hills and surrounded by nature, parklands, and. Box Hill The Gables.
     
    
         
        From www.domain.com.au 
                    Lot 2102 The Gables, Box Hill NSW 2765 Domain Box Hill The Gables  Situated nearby necessary amenities, it is only a brief. Set amongst rolling hills and surrounded by nature, parklands, and leafy. Proposed town centre, quality home designs, bobby. View all house and land packages for sale at stockland the gables located at 121 old pitt town road, box hill, nsw 2765. Enjoy a slice of the gables. 121 old pitt town. Box Hill The Gables.
     
    
         
        From www.michaelbanakarchitect.com.au 
                    20170925 The Gables Town Copy Page Box Hill The Gables  121 old pitt town road, box hill, nsw 2765. Proposed town centre, quality home designs, bobby. Situated nearby necessary amenities, it is only a brief. Enjoy a slice of the gables. Set amongst rolling hills and surrounded by nature, parklands, and leafy. This project is located within the residential. Looking for house & land in box hill? A master planned. Box Hill The Gables.
     
    
         
        From www.completebymjh.com.au 
                    Call The Gables, Box Hill Home Complete by McDonald Jones Box Hill The Gables  121 old pitt town road, box hill, nsw 2765. Mjh multi have been awarded the construction of the gables, box hill which consists of 22 house and land packages for complete by mcdonald jones. This project is located within the residential. View all house and land packages for sale at stockland the gables located at 121 old pitt town road,. Box Hill The Gables.
     
    
         
        From www.domain.com.au 
                    32 Empire Drive, Gables, Box Hill NSW 2765 Domain Box Hill The Gables  Set amongst rolling hills and surrounded by nature, parklands, and leafy. Looking for house & land in box hill? 121 old pitt town road, box hill, nsw 2765. Enjoy a slice of the gables. Located at 15 storyteller parkway, box hill, nsw 2765, complete homes starting from $1,199,000. Mjh multi have been awarded the construction of the gables, box hill. Box Hill The Gables.
     
    
         
        From www.domain.com.au 
                    Sold 11 Pilaster Street (The Gables), Box Hill NSW 2765 on 20 Oct 2023 Box Hill The Gables  Enjoy a slice of the gables. Looking for house & land in box hill? 121 old pitt town road, box hill, nsw 2765. View all house and land packages for sale at stockland the gables located at 121 old pitt town road, box hill, nsw 2765. Located at 15 storyteller parkway, box hill, nsw 2765, complete homes starting from $1,199,000.. Box Hill The Gables.
     
    
         
        From www.domain.com.au 
                    Lot 2104 The Gables, Box Hill NSW 2765 Domain Box Hill The Gables  A master planned community set amongst the rolling hills of sydney. Enjoy a slice of the gables. Looking for house & land in box hill? Mjh multi have been awarded the construction of the gables, box hill which consists of 22 house and land packages for complete by mcdonald jones. Located at 15 storyteller parkway, box hill, nsw 2765, complete. Box Hill The Gables.
     
    
         
        From www.blossomproperties.com.au 
                    82 Sundowner Parkway (The Gables), Box Hill Blossom Properties Box Hill The Gables  View all house and land packages for sale at stockland the gables located at 121 old pitt town road, box hill, nsw 2765. Situated nearby necessary amenities, it is only a brief. This project is located within the residential. Mjh multi have been awarded the construction of the gables, box hill which consists of 22 house and land packages for. Box Hill The Gables.
     
    
         
        From hillsdistrictmums.com.au 
                    Box Hill The Gables Playgrounds Hills District Mums Box Hill The Gables  Looking for house & land in box hill? This project is located within the residential. Set amongst rolling hills and surrounded by nature, parklands, and leafy. Mjh multi have been awarded the construction of the gables, box hill which consists of 22 house and land packages for complete by mcdonald jones. Located at 15 storyteller parkway, box hill, nsw 2765,. Box Hill The Gables.
     
    
         
        From willowtreeplanning.com.au 
                    The Gables Box Hill North Masterplanned Community Willowtree Planning Box Hill The Gables  Located at 15 storyteller parkway, box hill, nsw 2765, complete homes starting from $1,199,000. A master planned community set amongst the rolling hills of sydney. This project is located within the residential. Situated nearby necessary amenities, it is only a brief. View all house and land packages for sale at stockland the gables located at 121 old pitt town road,. Box Hill The Gables.
     
    
         
        From www.realestate.com.au 
                    The Gables Box Hill NSW 2765 Residential Land for Sale 202036262 Box Hill The Gables  A master planned community set amongst the rolling hills of sydney. Mjh multi have been awarded the construction of the gables, box hill which consists of 22 house and land packages for complete by mcdonald jones. Situated nearby necessary amenities, it is only a brief. Located at 15 storyteller parkway, box hill, nsw 2765, complete homes starting from $1,199,000. Enjoy. Box Hill The Gables.
     
    
         
        From www.australia247.info 
                    Metricon Homes Box Hill (The Gables) 117B Old Pitt Town Rd, Box Hill Box Hill The Gables  Situated nearby necessary amenities, it is only a brief. Enjoy a slice of the gables. Looking for house & land in box hill? A master planned community set amongst the rolling hills of sydney. 121 old pitt town road, box hill, nsw 2765. Mjh multi have been awarded the construction of the gables, box hill which consists of 22 house. Box Hill The Gables.
     
    
         
        From www.blossomproperties.com.au 
                    82 Sundowner Parkway (The Gables), Box Hill Blossom Properties Box Hill The Gables  Set amongst rolling hills and surrounded by nature, parklands, and leafy. Mjh multi have been awarded the construction of the gables, box hill which consists of 22 house and land packages for complete by mcdonald jones. Looking for house & land in box hill? View all house and land packages for sale at stockland the gables located at 121 old. Box Hill The Gables.
     
    
         
        From www.metalfencingspecialists.com.au 
                    Gables Box Hill Project Metal Fencing Specialists Box Hill The Gables  This project is located within the residential. Enjoy a slice of the gables. Set amongst rolling hills and surrounded by nature, parklands, and leafy. Looking for house & land in box hill? Proposed town centre, quality home designs, bobby. 121 old pitt town road, box hill, nsw 2765. Situated nearby necessary amenities, it is only a brief. View all house. Box Hill The Gables.
     
    
         
        From www.parraparents.com.au 
                    Slidey Park (Photos Only) The Gables, Box Hill ParraParents Box Hill The Gables  Situated nearby necessary amenities, it is only a brief. 121 old pitt town road, box hill, nsw 2765. This project is located within the residential. Set amongst rolling hills and surrounded by nature, parklands, and leafy. A master planned community set amongst the rolling hills of sydney. Proposed town centre, quality home designs, bobby. Located at 15 storyteller parkway, box. Box Hill The Gables.
     
    
         
        From www.bellriverhomes.com.au 
                    The GablesBox Hill Bellriver Homes Box Hill The Gables  Located at 15 storyteller parkway, box hill, nsw 2765, complete homes starting from $1,199,000. Enjoy a slice of the gables. A master planned community set amongst the rolling hills of sydney. 121 old pitt town road, box hill, nsw 2765. Mjh multi have been awarded the construction of the gables, box hill which consists of 22 house and land packages. Box Hill The Gables.
     
    
         
        From www.parraparents.com.au 
                    Slidey Park (Photos Only) The Gables, Box Hill ParraParents Box Hill The Gables  A master planned community set amongst the rolling hills of sydney. View all house and land packages for sale at stockland the gables located at 121 old pitt town road, box hill, nsw 2765. Proposed town centre, quality home designs, bobby. This project is located within the residential. Set amongst rolling hills and surrounded by nature, parklands, and leafy. Looking. Box Hill The Gables.
     
    
         
        From www.bellriverhomes.com.au 
                    The GablesBox Hill Bellriver Homes Box Hill The Gables  Set amongst rolling hills and surrounded by nature, parklands, and leafy. Enjoy a slice of the gables. Looking for house & land in box hill? Located at 15 storyteller parkway, box hill, nsw 2765, complete homes starting from $1,199,000. 121 old pitt town road, box hill, nsw 2765. Situated nearby necessary amenities, it is only a brief. Proposed town centre,. Box Hill The Gables.
     
    
         
        From www.homeshelf.com.au 
                    New land estate The Gables Box Hill NSW 2765 Phone Box Hill The Gables  Set amongst rolling hills and surrounded by nature, parklands, and leafy. A master planned community set amongst the rolling hills of sydney. This project is located within the residential. Looking for house & land in box hill? Located at 15 storyteller parkway, box hill, nsw 2765, complete homes starting from $1,199,000. Mjh multi have been awarded the construction of the. Box Hill The Gables.
     
    
         
        From hillsdistrictmums.com.au 
                    Slidey Park Box Hill The Gables Hills District Mums Box Hill The Gables  121 old pitt town road, box hill, nsw 2765. View all house and land packages for sale at stockland the gables located at 121 old pitt town road, box hill, nsw 2765. Situated nearby necessary amenities, it is only a brief. A master planned community set amongst the rolling hills of sydney. Proposed town centre, quality home designs, bobby. Enjoy. Box Hill The Gables.
     
    
         
        From www.completebymjh.com.au 
                    Call The Gables, Box Hill Home Complete by McDonald Jones Box Hill The Gables  121 old pitt town road, box hill, nsw 2765. Looking for house & land in box hill? Situated nearby necessary amenities, it is only a brief. Mjh multi have been awarded the construction of the gables, box hill which consists of 22 house and land packages for complete by mcdonald jones. Set amongst rolling hills and surrounded by nature, parklands,. Box Hill The Gables.
     
    
         
        From www.domain.com.au 
                    3 Perlite Terrace (The Gables), Box Hill NSW 2765 Domain Box Hill The Gables  Located at 15 storyteller parkway, box hill, nsw 2765, complete homes starting from $1,199,000. Enjoy a slice of the gables. A master planned community set amongst the rolling hills of sydney. Proposed town centre, quality home designs, bobby. Mjh multi have been awarded the construction of the gables, box hill which consists of 22 house and land packages for complete. Box Hill The Gables.
     
    
         
        From www.haronrobson.com.au 
                    Haron Robson The Gables, Box Hill Box Hill The Gables  Set amongst rolling hills and surrounded by nature, parklands, and leafy. Situated nearby necessary amenities, it is only a brief. Mjh multi have been awarded the construction of the gables, box hill which consists of 22 house and land packages for complete by mcdonald jones. 121 old pitt town road, box hill, nsw 2765. Enjoy a slice of the gables.. Box Hill The Gables.
     
    
         
        From hillsdistrictmums.com.au 
                    Box Hill The Gables Playgrounds Hills District Mums Box Hill The Gables  Proposed town centre, quality home designs, bobby. View all house and land packages for sale at stockland the gables located at 121 old pitt town road, box hill, nsw 2765. Located at 15 storyteller parkway, box hill, nsw 2765, complete homes starting from $1,199,000. Set amongst rolling hills and surrounded by nature, parklands, and leafy. Enjoy a slice of the. Box Hill The Gables.
     
    
         
        From hillsdistrictmums.com.au 
                    Box Hill The Gables Playgrounds Hills District Mums Box Hill The Gables  Set amongst rolling hills and surrounded by nature, parklands, and leafy. Enjoy a slice of the gables. Mjh multi have been awarded the construction of the gables, box hill which consists of 22 house and land packages for complete by mcdonald jones. View all house and land packages for sale at stockland the gables located at 121 old pitt town. Box Hill The Gables.
     
    
         
        From hillsdistrictmums.com.au 
                    The Orchard Park Box Hill The Gables Hills District Mums Box Hill The Gables  A master planned community set amongst the rolling hills of sydney. Mjh multi have been awarded the construction of the gables, box hill which consists of 22 house and land packages for complete by mcdonald jones. 121 old pitt town road, box hill, nsw 2765. Situated nearby necessary amenities, it is only a brief. Set amongst rolling hills and surrounded. Box Hill The Gables.
     
    
         
        From oberonhomes.com.au 
                    THE GABLES, BOX HILL Oberon Homes Box Hill The Gables  121 old pitt town road, box hill, nsw 2765. Enjoy a slice of the gables. Mjh multi have been awarded the construction of the gables, box hill which consists of 22 house and land packages for complete by mcdonald jones. Situated nearby necessary amenities, it is only a brief. This project is located within the residential. Looking for house &. Box Hill The Gables.