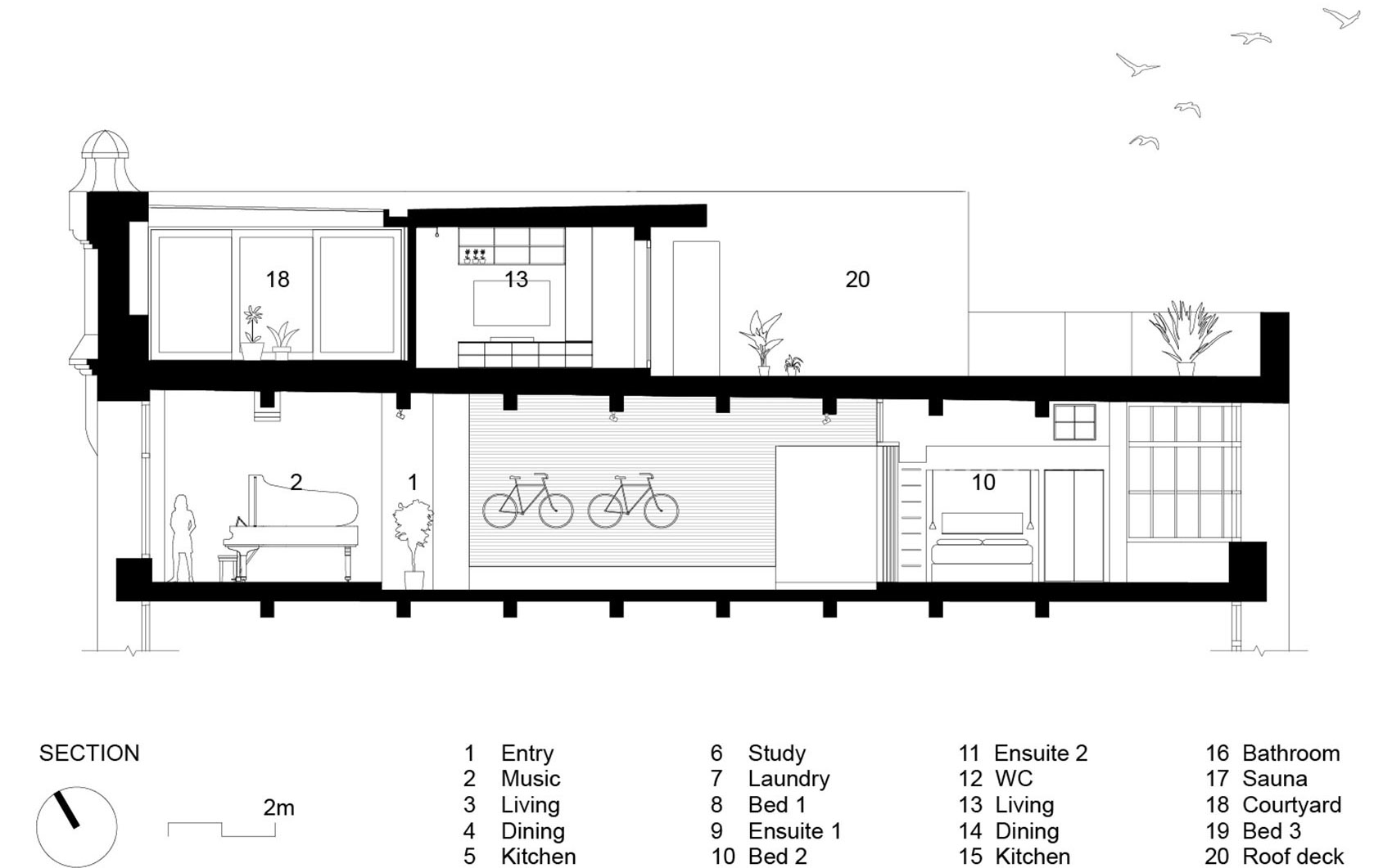
Surry Hills Apartment Design . image 4 of 24 from gallery of surry hills apartment / josephine hurley architecture. occupying the top level of a recognized heritage building in sydney, this spacious surry hills apartment is renovated. the surry hills apartment by josephine hurley architecture is a warehouse conversion that was completed in april. completed in 2015 in surry hills, australia. Rigorous, disciplined design with a surprising touch that lends a welcome sense of joy and artistry. This warehouse conversion is in one of sydney’s.
from www.arinteriors.com.au
image 4 of 24 from gallery of surry hills apartment / josephine hurley architecture. occupying the top level of a recognized heritage building in sydney, this spacious surry hills apartment is renovated. Rigorous, disciplined design with a surprising touch that lends a welcome sense of joy and artistry. This warehouse conversion is in one of sydney’s. completed in 2015 in surry hills, australia. the surry hills apartment by josephine hurley architecture is a warehouse conversion that was completed in april.
SURRY HILLS APARTMENT ONE Interior Design, Decoration & Styling Sydney
Surry Hills Apartment Design occupying the top level of a recognized heritage building in sydney, this spacious surry hills apartment is renovated. image 4 of 24 from gallery of surry hills apartment / josephine hurley architecture. This warehouse conversion is in one of sydney’s. occupying the top level of a recognized heritage building in sydney, this spacious surry hills apartment is renovated. completed in 2015 in surry hills, australia. the surry hills apartment by josephine hurley architecture is a warehouse conversion that was completed in april. Rigorous, disciplined design with a surprising touch that lends a welcome sense of joy and artistry.
From www.gooood.cn
Surry Hills Apartment by Josephine Hurley Architecture 谷德设计网 Surry Hills Apartment Design occupying the top level of a recognized heritage building in sydney, this spacious surry hills apartment is renovated. completed in 2015 in surry hills, australia. This warehouse conversion is in one of sydney’s. Rigorous, disciplined design with a surprising touch that lends a welcome sense of joy and artistry. image 4 of 24 from gallery of surry. Surry Hills Apartment Design.
From www.gooood.cn
Surry Hills Apartment by Josephine Hurley Architecture 谷德设计网 Surry Hills Apartment Design This warehouse conversion is in one of sydney’s. image 4 of 24 from gallery of surry hills apartment / josephine hurley architecture. the surry hills apartment by josephine hurley architecture is a warehouse conversion that was completed in april. occupying the top level of a recognized heritage building in sydney, this spacious surry hills apartment is renovated.. Surry Hills Apartment Design.
From ptiarchitecture.com.au
Golf House Apartments, Surry Hills PTI Architecture Surry Hills Apartment Design This warehouse conversion is in one of sydney’s. the surry hills apartment by josephine hurley architecture is a warehouse conversion that was completed in april. image 4 of 24 from gallery of surry hills apartment / josephine hurley architecture. occupying the top level of a recognized heritage building in sydney, this spacious surry hills apartment is renovated.. Surry Hills Apartment Design.
From www.pinterest.com.au
Surry Hills Apartment est living Surry hills, Architecture Surry Hills Apartment Design image 4 of 24 from gallery of surry hills apartment / josephine hurley architecture. Rigorous, disciplined design with a surprising touch that lends a welcome sense of joy and artistry. the surry hills apartment by josephine hurley architecture is a warehouse conversion that was completed in april. This warehouse conversion is in one of sydney’s. completed in. Surry Hills Apartment Design.
From divisare.com
Plus Minus Design, Jason Lam · Surry Hills Apartment · Divisare Surry Hills Apartment Design the surry hills apartment by josephine hurley architecture is a warehouse conversion that was completed in april. occupying the top level of a recognized heritage building in sydney, this spacious surry hills apartment is renovated. completed in 2015 in surry hills, australia. This warehouse conversion is in one of sydney’s. Rigorous, disciplined design with a surprising touch. Surry Hills Apartment Design.
From www.gooood.cn
Surry Hills Apartment by Josephine Hurley Architecture 谷德设计网 Surry Hills Apartment Design This warehouse conversion is in one of sydney’s. completed in 2015 in surry hills, australia. occupying the top level of a recognized heritage building in sydney, this spacious surry hills apartment is renovated. image 4 of 24 from gallery of surry hills apartment / josephine hurley architecture. Rigorous, disciplined design with a surprising touch that lends a. Surry Hills Apartment Design.
From www.pinterest.com
Gallery of Surry Hills Apartment / Josephine Hurley Architecture 22 Surry Hills Apartment Design image 4 of 24 from gallery of surry hills apartment / josephine hurley architecture. completed in 2015 in surry hills, australia. This warehouse conversion is in one of sydney’s. the surry hills apartment by josephine hurley architecture is a warehouse conversion that was completed in april. occupying the top level of a recognized heritage building in. Surry Hills Apartment Design.
From popovbass.com.au
Surry Hills Apartment Interiors PopovBass Surry Hills Apartment Design the surry hills apartment by josephine hurley architecture is a warehouse conversion that was completed in april. This warehouse conversion is in one of sydney’s. Rigorous, disciplined design with a surprising touch that lends a welcome sense of joy and artistry. completed in 2015 in surry hills, australia. occupying the top level of a recognized heritage building. Surry Hills Apartment Design.
From www.gooood.cn
Surry Hills Apartment by Josephine Hurley Architecture 谷德设计网 Surry Hills Apartment Design This warehouse conversion is in one of sydney’s. occupying the top level of a recognized heritage building in sydney, this spacious surry hills apartment is renovated. the surry hills apartment by josephine hurley architecture is a warehouse conversion that was completed in april. completed in 2015 in surry hills, australia. Rigorous, disciplined design with a surprising touch. Surry Hills Apartment Design.
From www.gooood.cn
Surry Hills Apartment by Josephine Hurley Architecture 谷德设计网 Surry Hills Apartment Design the surry hills apartment by josephine hurley architecture is a warehouse conversion that was completed in april. completed in 2015 in surry hills, australia. Rigorous, disciplined design with a surprising touch that lends a welcome sense of joy and artistry. This warehouse conversion is in one of sydney’s. occupying the top level of a recognized heritage building. Surry Hills Apartment Design.
From sjb.com.au
Surry Hills Village SJB Surry Hills Apartment Design occupying the top level of a recognized heritage building in sydney, this spacious surry hills apartment is renovated. This warehouse conversion is in one of sydney’s. completed in 2015 in surry hills, australia. Rigorous, disciplined design with a surprising touch that lends a welcome sense of joy and artistry. the surry hills apartment by josephine hurley architecture. Surry Hills Apartment Design.
From www.homedsgn.com
Josephine Hurley Architecture Designs a Contemporary Apartment in Surry Surry Hills Apartment Design This warehouse conversion is in one of sydney’s. completed in 2015 in surry hills, australia. the surry hills apartment by josephine hurley architecture is a warehouse conversion that was completed in april. image 4 of 24 from gallery of surry hills apartment / josephine hurley architecture. occupying the top level of a recognized heritage building in. Surry Hills Apartment Design.
From divisare.com
Plus Minus Design, Jason Lam · Surry Hills Apartment · Divisare Surry Hills Apartment Design the surry hills apartment by josephine hurley architecture is a warehouse conversion that was completed in april. occupying the top level of a recognized heritage building in sydney, this spacious surry hills apartment is renovated. Rigorous, disciplined design with a surprising touch that lends a welcome sense of joy and artistry. completed in 2015 in surry hills,. Surry Hills Apartment Design.
From divisare.com
Plus Minus Design, Jason Lam · Surry Hills Apartment · Divisare Surry Hills Apartment Design the surry hills apartment by josephine hurley architecture is a warehouse conversion that was completed in april. image 4 of 24 from gallery of surry hills apartment / josephine hurley architecture. Rigorous, disciplined design with a surprising touch that lends a welcome sense of joy and artistry. occupying the top level of a recognized heritage building in. Surry Hills Apartment Design.
From www.pinterest.com
Buyer pays 2.65 million for new twobedroom Surry Hills unit Surry Hills Apartment Design occupying the top level of a recognized heritage building in sydney, this spacious surry hills apartment is renovated. This warehouse conversion is in one of sydney’s. completed in 2015 in surry hills, australia. the surry hills apartment by josephine hurley architecture is a warehouse conversion that was completed in april. Rigorous, disciplined design with a surprising touch. Surry Hills Apartment Design.
From www.architectureanddesign.com.au
Iconic Surry Hills Village redevelopment gets the goahead Surry Hills Apartment Design occupying the top level of a recognized heritage building in sydney, this spacious surry hills apartment is renovated. Rigorous, disciplined design with a surprising touch that lends a welcome sense of joy and artistry. completed in 2015 in surry hills, australia. the surry hills apartment by josephine hurley architecture is a warehouse conversion that was completed in. Surry Hills Apartment Design.
From divisare.com
Plus Minus Design, Jason Lam · Surry Hills Apartment · Divisare Surry Hills Apartment Design occupying the top level of a recognized heritage building in sydney, this spacious surry hills apartment is renovated. Rigorous, disciplined design with a surprising touch that lends a welcome sense of joy and artistry. This warehouse conversion is in one of sydney’s. image 4 of 24 from gallery of surry hills apartment / josephine hurley architecture. completed. Surry Hills Apartment Design.
From www.gooood.cn
Surry Hills Apartment by Josephine Hurley Architecture 谷德设计网 Surry Hills Apartment Design Rigorous, disciplined design with a surprising touch that lends a welcome sense of joy and artistry. image 4 of 24 from gallery of surry hills apartment / josephine hurley architecture. This warehouse conversion is in one of sydney’s. the surry hills apartment by josephine hurley architecture is a warehouse conversion that was completed in april. completed in. Surry Hills Apartment Design.
From www.arinteriors.com.au
SURRY HILLS APARTMENT TWO Interior Design, Decoration & Styling Sydney Surry Hills Apartment Design the surry hills apartment by josephine hurley architecture is a warehouse conversion that was completed in april. image 4 of 24 from gallery of surry hills apartment / josephine hurley architecture. Rigorous, disciplined design with a surprising touch that lends a welcome sense of joy and artistry. occupying the top level of a recognized heritage building in. Surry Hills Apartment Design.
From www.arinteriors.com.au
SURRY HILLS APARTMENT ONE Interior Design, Decoration & Styling Sydney Surry Hills Apartment Design Rigorous, disciplined design with a surprising touch that lends a welcome sense of joy and artistry. the surry hills apartment by josephine hurley architecture is a warehouse conversion that was completed in april. image 4 of 24 from gallery of surry hills apartment / josephine hurley architecture. completed in 2015 in surry hills, australia. occupying the. Surry Hills Apartment Design.
From www.arinteriors.com.au
SURRY HILLS APARTMENT ONE Interior Design, Decoration & Styling Sydney Surry Hills Apartment Design occupying the top level of a recognized heritage building in sydney, this spacious surry hills apartment is renovated. image 4 of 24 from gallery of surry hills apartment / josephine hurley architecture. This warehouse conversion is in one of sydney’s. the surry hills apartment by josephine hurley architecture is a warehouse conversion that was completed in april.. Surry Hills Apartment Design.
From www.arinteriors.com.au
SURRY HILLS APARTMENT TWO Interior Design, Decoration & Styling Sydney Surry Hills Apartment Design Rigorous, disciplined design with a surprising touch that lends a welcome sense of joy and artistry. the surry hills apartment by josephine hurley architecture is a warehouse conversion that was completed in april. image 4 of 24 from gallery of surry hills apartment / josephine hurley architecture. This warehouse conversion is in one of sydney’s. occupying the. Surry Hills Apartment Design.
From www.pinterest.com
House tour the Surry Hills apartment redefining small space decorating Surry Hills Apartment Design the surry hills apartment by josephine hurley architecture is a warehouse conversion that was completed in april. image 4 of 24 from gallery of surry hills apartment / josephine hurley architecture. This warehouse conversion is in one of sydney’s. Rigorous, disciplined design with a surprising touch that lends a welcome sense of joy and artistry. completed in. Surry Hills Apartment Design.
From www.domain.com.au
Surry Hills NSW 2010 2 beds apartment for Sale, 1,645,000 Surry Hills Apartment Design the surry hills apartment by josephine hurley architecture is a warehouse conversion that was completed in april. completed in 2015 in surry hills, australia. This warehouse conversion is in one of sydney’s. Rigorous, disciplined design with a surprising touch that lends a welcome sense of joy and artistry. occupying the top level of a recognized heritage building. Surry Hills Apartment Design.
From www.pinterest.com
Surry Hills Apartments Winner of selected design competition Design Surry Hills Apartment Design This warehouse conversion is in one of sydney’s. completed in 2015 in surry hills, australia. occupying the top level of a recognized heritage building in sydney, this spacious surry hills apartment is renovated. the surry hills apartment by josephine hurley architecture is a warehouse conversion that was completed in april. Rigorous, disciplined design with a surprising touch. Surry Hills Apartment Design.
From divisare.com
Plus Minus Design, Jason Lam · Surry Hills Apartment · Divisare Surry Hills Apartment Design Rigorous, disciplined design with a surprising touch that lends a welcome sense of joy and artistry. occupying the top level of a recognized heritage building in sydney, this spacious surry hills apartment is renovated. completed in 2015 in surry hills, australia. the surry hills apartment by josephine hurley architecture is a warehouse conversion that was completed in. Surry Hills Apartment Design.
From ptiarchitecture.com.au
Adge Apartment Hotel, Surry Hills PTI Architecture Surry Hills Apartment Design the surry hills apartment by josephine hurley architecture is a warehouse conversion that was completed in april. completed in 2015 in surry hills, australia. This warehouse conversion is in one of sydney’s. image 4 of 24 from gallery of surry hills apartment / josephine hurley architecture. Rigorous, disciplined design with a surprising touch that lends a welcome. Surry Hills Apartment Design.
From www.pinterest.com
Completed in 2015 in Surry Hills, Australia. Images by Tom Ferguson Surry Hills Apartment Design the surry hills apartment by josephine hurley architecture is a warehouse conversion that was completed in april. This warehouse conversion is in one of sydney’s. Rigorous, disciplined design with a surprising touch that lends a welcome sense of joy and artistry. occupying the top level of a recognized heritage building in sydney, this spacious surry hills apartment is. Surry Hills Apartment Design.
From divisare.com
Plus Minus Design, Jason Lam · Surry Hills Apartment · Divisare Surry Hills Apartment Design completed in 2015 in surry hills, australia. occupying the top level of a recognized heritage building in sydney, this spacious surry hills apartment is renovated. This warehouse conversion is in one of sydney’s. image 4 of 24 from gallery of surry hills apartment / josephine hurley architecture. Rigorous, disciplined design with a surprising touch that lends a. Surry Hills Apartment Design.
From www.gooood.cn
Surry Hills Apartment by Josephine Hurley Architecture 谷德设计网 Surry Hills Apartment Design the surry hills apartment by josephine hurley architecture is a warehouse conversion that was completed in april. This warehouse conversion is in one of sydney’s. Rigorous, disciplined design with a surprising touch that lends a welcome sense of joy and artistry. image 4 of 24 from gallery of surry hills apartment / josephine hurley architecture. occupying the. Surry Hills Apartment Design.
From www.homedsgn.com
Josephine Hurley Architecture Designs a Contemporary Apartment in Surry Surry Hills Apartment Design image 4 of 24 from gallery of surry hills apartment / josephine hurley architecture. completed in 2015 in surry hills, australia. This warehouse conversion is in one of sydney’s. the surry hills apartment by josephine hurley architecture is a warehouse conversion that was completed in april. occupying the top level of a recognized heritage building in. Surry Hills Apartment Design.
From divisare.com
Plus Minus Design, Jason Lam · Surry Hills Apartment · Divisare Surry Hills Apartment Design image 4 of 24 from gallery of surry hills apartment / josephine hurley architecture. Rigorous, disciplined design with a surprising touch that lends a welcome sense of joy and artistry. occupying the top level of a recognized heritage building in sydney, this spacious surry hills apartment is renovated. the surry hills apartment by josephine hurley architecture is. Surry Hills Apartment Design.
From www.homedsgn.com
Josephine Hurley Architecture Designs a Contemporary Apartment in Surry Surry Hills Apartment Design the surry hills apartment by josephine hurley architecture is a warehouse conversion that was completed in april. completed in 2015 in surry hills, australia. This warehouse conversion is in one of sydney’s. Rigorous, disciplined design with a surprising touch that lends a welcome sense of joy and artistry. image 4 of 24 from gallery of surry hills. Surry Hills Apartment Design.
From www.homedsgn.com
Josephine Hurley Architecture Designs a Contemporary Apartment in Surry Surry Hills Apartment Design occupying the top level of a recognized heritage building in sydney, this spacious surry hills apartment is renovated. the surry hills apartment by josephine hurley architecture is a warehouse conversion that was completed in april. Rigorous, disciplined design with a surprising touch that lends a welcome sense of joy and artistry. This warehouse conversion is in one of. Surry Hills Apartment Design.
From www.designboom.com
the brief was to breathe new life into the 300squaremeter space as an Surry Hills Apartment Design Rigorous, disciplined design with a surprising touch that lends a welcome sense of joy and artistry. occupying the top level of a recognized heritage building in sydney, this spacious surry hills apartment is renovated. image 4 of 24 from gallery of surry hills apartment / josephine hurley architecture. completed in 2015 in surry hills, australia. This warehouse. Surry Hills Apartment Design.