Capers Hall The Citadel Address . Now, as the campus is in another. The new building will have smart classrooms, lecture studios, an auditorium and more. Now, the construction of capers hall is the largest project in the history of the citadel. Capers hall is home to the school of humanities and social. Woolpert is the project architect for a new replacement of capers hall at the citadel, the military college of south carolina. Capers hall, the citadel’s new humanities and social sciences building, will be set to open next week, filled with numerous amenities for cadets, faculty and the community. After 69 years, capers hall, a historic building on the citadel campus, was torn down to make way for a modern facility for the school of humanities and social. The citadel started demolishing its largest and most historic academic buildings on campus to make space for a new, updated space to be used by cadets in 2023.
from today.citadel.edu
Now, as the campus is in another. Capers hall is home to the school of humanities and social. The citadel started demolishing its largest and most historic academic buildings on campus to make space for a new, updated space to be used by cadets in 2023. Woolpert is the project architect for a new replacement of capers hall at the citadel, the military college of south carolina. The new building will have smart classrooms, lecture studios, an auditorium and more. Capers hall, the citadel’s new humanities and social sciences building, will be set to open next week, filled with numerous amenities for cadets, faculty and the community. Now, the construction of capers hall is the largest project in the history of the citadel. After 69 years, capers hall, a historic building on the citadel campus, was torn down to make way for a modern facility for the school of humanities and social.
Demolition portion of Capers Hall Replacement Project is underway at
Capers Hall The Citadel Address Capers hall is home to the school of humanities and social. Capers hall is home to the school of humanities and social. Capers hall, the citadel’s new humanities and social sciences building, will be set to open next week, filled with numerous amenities for cadets, faculty and the community. Now, as the campus is in another. After 69 years, capers hall, a historic building on the citadel campus, was torn down to make way for a modern facility for the school of humanities and social. The new building will have smart classrooms, lecture studios, an auditorium and more. Now, the construction of capers hall is the largest project in the history of the citadel. Woolpert is the project architect for a new replacement of capers hall at the citadel, the military college of south carolina. The citadel started demolishing its largest and most historic academic buildings on campus to make space for a new, updated space to be used by cadets in 2023.
From today.citadel.edu
The Citadel prepares to replace Capers Hall The Citadel Today Capers Hall The Citadel Address Capers hall is home to the school of humanities and social. Now, as the campus is in another. After 69 years, capers hall, a historic building on the citadel campus, was torn down to make way for a modern facility for the school of humanities and social. Now, the construction of capers hall is the largest project in the history. Capers Hall The Citadel Address.
From www.citadel.edu
New Capers Hall Photos Capers Hall Capers Hall The Citadel Address After 69 years, capers hall, a historic building on the citadel campus, was torn down to make way for a modern facility for the school of humanities and social. Now, the construction of capers hall is the largest project in the history of the citadel. The citadel started demolishing its largest and most historic academic buildings on campus to make. Capers Hall The Citadel Address.
From www.citadel.edu
New Capers Hall Photos Capers Hall Capers Hall The Citadel Address Woolpert is the project architect for a new replacement of capers hall at the citadel, the military college of south carolina. The new building will have smart classrooms, lecture studios, an auditorium and more. Now, as the campus is in another. After 69 years, capers hall, a historic building on the citadel campus, was torn down to make way for. Capers Hall The Citadel Address.
From today.citadel.edu
A visit to the past as the Capers Hall Replacement Project wraps up Capers Hall The Citadel Address The citadel started demolishing its largest and most historic academic buildings on campus to make space for a new, updated space to be used by cadets in 2023. The new building will have smart classrooms, lecture studios, an auditorium and more. After 69 years, capers hall, a historic building on the citadel campus, was torn down to make way for. Capers Hall The Citadel Address.
From www.citadel.edu
New Capers Hall Photos Capers Hall Capers Hall The Citadel Address Now, the construction of capers hall is the largest project in the history of the citadel. Capers hall is home to the school of humanities and social. Now, as the campus is in another. Capers hall, the citadel’s new humanities and social sciences building, will be set to open next week, filled with numerous amenities for cadets, faculty and the. Capers Hall The Citadel Address.
From today.citadel.edu
A visit to the past as the Capers Hall Replacement Project wraps up Capers Hall The Citadel Address After 69 years, capers hall, a historic building on the citadel campus, was torn down to make way for a modern facility for the school of humanities and social. Now, the construction of capers hall is the largest project in the history of the citadel. Woolpert is the project architect for a new replacement of capers hall at the citadel,. Capers Hall The Citadel Address.
From today.citadel.edu
Capers Hall to be demolished this year The Citadel Today Capers Hall The Citadel Address Now, the construction of capers hall is the largest project in the history of the citadel. Capers hall, the citadel’s new humanities and social sciences building, will be set to open next week, filled with numerous amenities for cadets, faculty and the community. After 69 years, capers hall, a historic building on the citadel campus, was torn down to make. Capers Hall The Citadel Address.
From www.citadel.edu
Capers Hall Capers Hall The Citadel Address The new building will have smart classrooms, lecture studios, an auditorium and more. Capers hall is home to the school of humanities and social. After 69 years, capers hall, a historic building on the citadel campus, was torn down to make way for a modern facility for the school of humanities and social. Woolpert is the project architect for a. Capers Hall The Citadel Address.
From www.citadel.edu
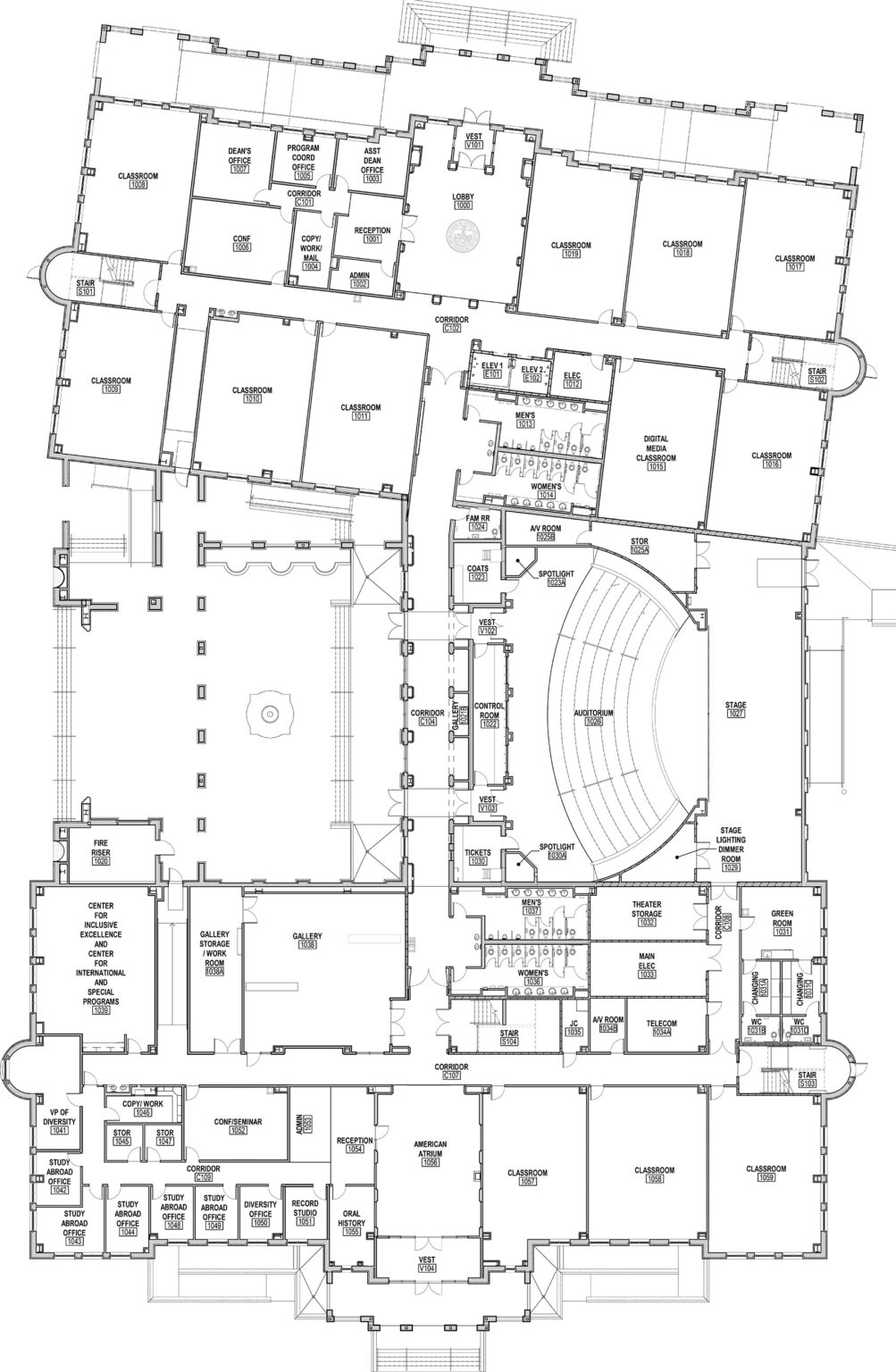
Floor Plans Capers Hall Capers Hall The Citadel Address Now, as the campus is in another. After 69 years, capers hall, a historic building on the citadel campus, was torn down to make way for a modern facility for the school of humanities and social. Woolpert is the project architect for a new replacement of capers hall at the citadel, the military college of south carolina. Capers hall, the. Capers Hall The Citadel Address.
From www.dwginc.com
Capers Hall at the Citadel is beginning its demolition! — DWG Capers Hall The Citadel Address The new building will have smart classrooms, lecture studios, an auditorium and more. Now, as the campus is in another. Capers hall, the citadel’s new humanities and social sciences building, will be set to open next week, filled with numerous amenities for cadets, faculty and the community. After 69 years, capers hall, a historic building on the citadel campus, was. Capers Hall The Citadel Address.
From today.citadel.edu
A visit to the past as the Capers Hall Replacement Project wraps up Capers Hall The Citadel Address After 69 years, capers hall, a historic building on the citadel campus, was torn down to make way for a modern facility for the school of humanities and social. Now, as the campus is in another. Now, the construction of capers hall is the largest project in the history of the citadel. The citadel started demolishing its largest and most. Capers Hall The Citadel Address.
From today.citadel.edu
Demolition portion of Capers Hall Replacement Project is underway at Capers Hall The Citadel Address The new building will have smart classrooms, lecture studios, an auditorium and more. Now, as the campus is in another. Capers hall is home to the school of humanities and social. After 69 years, capers hall, a historic building on the citadel campus, was torn down to make way for a modern facility for the school of humanities and social.. Capers Hall The Citadel Address.
From www.citadel.edu
New Capers Hall Photos Capers Hall Capers Hall The Citadel Address Now, the construction of capers hall is the largest project in the history of the citadel. After 69 years, capers hall, a historic building on the citadel campus, was torn down to make way for a modern facility for the school of humanities and social. The new building will have smart classrooms, lecture studios, an auditorium and more. Capers hall,. Capers Hall The Citadel Address.
From woolpert.com
The CitadelCapers Hall Woolpert Capers Hall The Citadel Address The citadel started demolishing its largest and most historic academic buildings on campus to make space for a new, updated space to be used by cadets in 2023. Woolpert is the project architect for a new replacement of capers hall at the citadel, the military college of south carolina. After 69 years, capers hall, a historic building on the citadel. Capers Hall The Citadel Address.
From today.citadel.edu
Capers Hall Replacement Project made possible by help from hundreds of Capers Hall The Citadel Address The citadel started demolishing its largest and most historic academic buildings on campus to make space for a new, updated space to be used by cadets in 2023. Now, as the campus is in another. Woolpert is the project architect for a new replacement of capers hall at the citadel, the military college of south carolina. After 69 years, capers. Capers Hall The Citadel Address.
From today.citadel.edu
Work on replacement for Capers Hall brings research home for longtime Capers Hall The Citadel Address Capers hall is home to the school of humanities and social. The new building will have smart classrooms, lecture studios, an auditorium and more. After 69 years, capers hall, a historic building on the citadel campus, was torn down to make way for a modern facility for the school of humanities and social. Now, the construction of capers hall is. Capers Hall The Citadel Address.
From www.citadel.edu
Floor Plans Capers Hall Capers Hall The Citadel Address The citadel started demolishing its largest and most historic academic buildings on campus to make space for a new, updated space to be used by cadets in 2023. After 69 years, capers hall, a historic building on the citadel campus, was torn down to make way for a modern facility for the school of humanities and social. Now, the construction. Capers Hall The Citadel Address.
From www.citadel.edu
New Capers Hall Photos Capers Hall Capers Hall The Citadel Address Now, the construction of capers hall is the largest project in the history of the citadel. Capers hall, the citadel’s new humanities and social sciences building, will be set to open next week, filled with numerous amenities for cadets, faculty and the community. Now, as the campus is in another. Woolpert is the project architect for a new replacement of. Capers Hall The Citadel Address.
From creechassociates.com
The Citadel Capers Hall Classroom Building Creech & Associates Capers Hall The Citadel Address The new building will have smart classrooms, lecture studios, an auditorium and more. The citadel started demolishing its largest and most historic academic buildings on campus to make space for a new, updated space to be used by cadets in 2023. Capers hall, the citadel’s new humanities and social sciences building, will be set to open next week, filled with. Capers Hall The Citadel Address.
From today.citadel.edu
Capers Hall ribboncutting ceremony marks a milestone at The Citadel Capers Hall The Citadel Address The citadel started demolishing its largest and most historic academic buildings on campus to make space for a new, updated space to be used by cadets in 2023. After 69 years, capers hall, a historic building on the citadel campus, was torn down to make way for a modern facility for the school of humanities and social. Now, the construction. Capers Hall The Citadel Address.
From creechassociates.com
The Citadel Capers Hall Classroom Building Creech & Associates Capers Hall The Citadel Address Now, the construction of capers hall is the largest project in the history of the citadel. Capers hall, the citadel’s new humanities and social sciences building, will be set to open next week, filled with numerous amenities for cadets, faculty and the community. Capers hall is home to the school of humanities and social. Now, as the campus is in. Capers Hall The Citadel Address.
From www.citadel.edu
New Capers Hall Photos Capers Hall Capers Hall The Citadel Address Capers hall is home to the school of humanities and social. The citadel started demolishing its largest and most historic academic buildings on campus to make space for a new, updated space to be used by cadets in 2023. Now, the construction of capers hall is the largest project in the history of the citadel. Woolpert is the project architect. Capers Hall The Citadel Address.
From www.youtube.com
The Citadel Capers Hall Replacement Live Stream YouTube Capers Hall The Citadel Address Capers hall is home to the school of humanities and social. Now, as the campus is in another. The citadel started demolishing its largest and most historic academic buildings on campus to make space for a new, updated space to be used by cadets in 2023. Woolpert is the project architect for a new replacement of capers hall at the. Capers Hall The Citadel Address.
From woolpert.com
The CitadelCapers Hall Woolpert Capers Hall The Citadel Address Now, as the campus is in another. Capers hall, the citadel’s new humanities and social sciences building, will be set to open next week, filled with numerous amenities for cadets, faculty and the community. After 69 years, capers hall, a historic building on the citadel campus, was torn down to make way for a modern facility for the school of. Capers Hall The Citadel Address.
From www.youtube.com
VIDEO Citadel’s new 67M Capers Hall to open for classes next week Capers Hall The Citadel Address Now, as the campus is in another. Capers hall, the citadel’s new humanities and social sciences building, will be set to open next week, filled with numerous amenities for cadets, faculty and the community. Capers hall is home to the school of humanities and social. The new building will have smart classrooms, lecture studios, an auditorium and more. After 69. Capers Hall The Citadel Address.
From www.postandcourier.com
Behre The Citadel can demolish Capers Hall but still should preserve Capers Hall The Citadel Address Capers hall is home to the school of humanities and social. After 69 years, capers hall, a historic building on the citadel campus, was torn down to make way for a modern facility for the school of humanities and social. Woolpert is the project architect for a new replacement of capers hall at the citadel, the military college of south. Capers Hall The Citadel Address.
From today.citadel.edu
Work on replacement for Capers Hall brings research home for longtime Capers Hall The Citadel Address Woolpert is the project architect for a new replacement of capers hall at the citadel, the military college of south carolina. Now, as the campus is in another. Capers hall, the citadel’s new humanities and social sciences building, will be set to open next week, filled with numerous amenities for cadets, faculty and the community. The citadel started demolishing its. Capers Hall The Citadel Address.
From woolpert.com
Woolpert Designs Iconic Replacement for Capers Hall at The Citadel Capers Hall The Citadel Address The citadel started demolishing its largest and most historic academic buildings on campus to make space for a new, updated space to be used by cadets in 2023. Woolpert is the project architect for a new replacement of capers hall at the citadel, the military college of south carolina. Capers hall, the citadel’s new humanities and social sciences building, will. Capers Hall The Citadel Address.
From www.serviceacademyforums.com
The Citadel New Capers Hall Opens this Fall Semester United States Capers Hall The Citadel Address Capers hall, the citadel’s new humanities and social sciences building, will be set to open next week, filled with numerous amenities for cadets, faculty and the community. The citadel started demolishing its largest and most historic academic buildings on campus to make space for a new, updated space to be used by cadets in 2023. After 69 years, capers hall,. Capers Hall The Citadel Address.
From www.citadel.edu
Capers Hall Capers Hall The Citadel Address Capers hall, the citadel’s new humanities and social sciences building, will be set to open next week, filled with numerous amenities for cadets, faculty and the community. Woolpert is the project architect for a new replacement of capers hall at the citadel, the military college of south carolina. Now, as the campus is in another. Capers hall is home to. Capers Hall The Citadel Address.
From www.citadel.edu
Floor Plans Capers Hall Capers Hall The Citadel Address The citadel started demolishing its largest and most historic academic buildings on campus to make space for a new, updated space to be used by cadets in 2023. The new building will have smart classrooms, lecture studios, an auditorium and more. Capers hall is home to the school of humanities and social. Now, the construction of capers hall is the. Capers Hall The Citadel Address.
From today.citadel.edu
A visit to the past as the Capers Hall Replacement Project wraps up Capers Hall The Citadel Address Capers hall, the citadel’s new humanities and social sciences building, will be set to open next week, filled with numerous amenities for cadets, faculty and the community. The citadel started demolishing its largest and most historic academic buildings on campus to make space for a new, updated space to be used by cadets in 2023. After 69 years, capers hall,. Capers Hall The Citadel Address.
From today.citadel.edu
Citadel begins demolishing historic Capers Hall and will construct a Capers Hall The Citadel Address Woolpert is the project architect for a new replacement of capers hall at the citadel, the military college of south carolina. Now, the construction of capers hall is the largest project in the history of the citadel. The citadel started demolishing its largest and most historic academic buildings on campus to make space for a new, updated space to be. Capers Hall The Citadel Address.
From www.counton2.com
Demolition to begin Tuesday on Capers Hall at The Citadel WCBD News 2 Capers Hall The Citadel Address After 69 years, capers hall, a historic building on the citadel campus, was torn down to make way for a modern facility for the school of humanities and social. Capers hall is home to the school of humanities and social. The new building will have smart classrooms, lecture studios, an auditorium and more. Now, the construction of capers hall is. Capers Hall The Citadel Address.
From www.dwginc.com
Capers Hall at the Citadel is beginning its demolition! — DWG Capers Hall The Citadel Address After 69 years, capers hall, a historic building on the citadel campus, was torn down to make way for a modern facility for the school of humanities and social. The citadel started demolishing its largest and most historic academic buildings on campus to make space for a new, updated space to be used by cadets in 2023. The new building. Capers Hall The Citadel Address.