Storage Office Dimensions . In this guide, we'll cover the average office size, standard office dimensions, and factors to consider when determining the right space for. View recommended spaces and seamlessly manage your office space search using the. Choosing the right office space size is a crucial decision for any business. Wondering how much office space you need? Office dimensions guide with standard & average office sizes, cubicle & minimum office measurements, and how big an office should be. It impacts everything from employee productivity and morale to. The first and most fundamental consideration is how much office space should be allocated per person in your office. How much space is required per person in an office? Our office space calculator makes it easy to determine how much space you need. Learn about standard office dimensions, average square footage per employee,. Discover the key factors to consider when determining the optimal office space size for your business.
from gsa.theofficeleader.com
In this guide, we'll cover the average office size, standard office dimensions, and factors to consider when determining the right space for. How much space is required per person in an office? Wondering how much office space you need? Our office space calculator makes it easy to determine how much space you need. The first and most fundamental consideration is how much office space should be allocated per person in your office. View recommended spaces and seamlessly manage your office space search using the. Office dimensions guide with standard & average office sizes, cubicle & minimum office measurements, and how big an office should be. It impacts everything from employee productivity and morale to. Learn about standard office dimensions, average square footage per employee,. Choosing the right office space size is a crucial decision for any business.
The Office Leader. Office Space Planning, 5 Person L Shape Office Desk
Storage Office Dimensions View recommended spaces and seamlessly manage your office space search using the. Office dimensions guide with standard & average office sizes, cubicle & minimum office measurements, and how big an office should be. Choosing the right office space size is a crucial decision for any business. How much space is required per person in an office? It impacts everything from employee productivity and morale to. Learn about standard office dimensions, average square footage per employee,. View recommended spaces and seamlessly manage your office space search using the. The first and most fundamental consideration is how much office space should be allocated per person in your office. Discover the key factors to consider when determining the optimal office space size for your business. Wondering how much office space you need? Our office space calculator makes it easy to determine how much space you need. In this guide, we'll cover the average office size, standard office dimensions, and factors to consider when determining the right space for.
From hodeby.com
The Ultimate Guide to Room Sizes and Layouts Hodeby Storage Office Dimensions It impacts everything from employee productivity and morale to. Wondering how much office space you need? View recommended spaces and seamlessly manage your office space search using the. Our office space calculator makes it easy to determine how much space you need. Office dimensions guide with standard & average office sizes, cubicle & minimum office measurements, and how big an. Storage Office Dimensions.
From www.cubicles.com
Work Cubicles Non Powered Office Workstation Non Powered with Storage Storage Office Dimensions How much space is required per person in an office? The first and most fundamental consideration is how much office space should be allocated per person in your office. Office dimensions guide with standard & average office sizes, cubicle & minimum office measurements, and how big an office should be. In this guide, we'll cover the average office size, standard. Storage Office Dimensions.
From www.mobilemodularcontainers.com
40x8 Office and Storage Container Combo Storage Office Dimensions Learn about standard office dimensions, average square footage per employee,. It impacts everything from employee productivity and morale to. Office dimensions guide with standard & average office sizes, cubicle & minimum office measurements, and how big an office should be. The first and most fundamental consideration is how much office space should be allocated per person in your office. Choosing. Storage Office Dimensions.
From www.pinterest.com
Floor plan of studio and work/storage room Floor plans, Craft studio Storage Office Dimensions Choosing the right office space size is a crucial decision for any business. Learn about standard office dimensions, average square footage per employee,. Discover the key factors to consider when determining the optimal office space size for your business. In this guide, we'll cover the average office size, standard office dimensions, and factors to consider when determining the right space. Storage Office Dimensions.
From benchwooden.blogspot.com
news Storage Office Dimensions Discover the key factors to consider when determining the optimal office space size for your business. Wondering how much office space you need? In this guide, we'll cover the average office size, standard office dimensions, and factors to consider when determining the right space for. Learn about standard office dimensions, average square footage per employee,. How much space is required. Storage Office Dimensions.
From www.pinterest.com
Different Table Desk Workstation Workplace Size Dimension (729676 Storage Office Dimensions Learn about standard office dimensions, average square footage per employee,. Our office space calculator makes it easy to determine how much space you need. Wondering how much office space you need? Office dimensions guide with standard & average office sizes, cubicle & minimum office measurements, and how big an office should be. How much space is required per person in. Storage Office Dimensions.
From www.pinterest.com.mx
Standard Office Desk Dimensions for Large Home Office Furniture Storage Office Dimensions The first and most fundamental consideration is how much office space should be allocated per person in your office. Choosing the right office space size is a crucial decision for any business. How much space is required per person in an office? Learn about standard office dimensions, average square footage per employee,. Wondering how much office space you need? In. Storage Office Dimensions.
From www.dimensions.com
Office Workstations Cubicles Dimensions & Drawings Storage Office Dimensions How much space is required per person in an office? Discover the key factors to consider when determining the optimal office space size for your business. It impacts everything from employee productivity and morale to. Learn about standard office dimensions, average square footage per employee,. Wondering how much office space you need? Choosing the right office space size is a. Storage Office Dimensions.
From www.statestoragemagnolia.com
Magnolia Parkway Storage Help Center Storage Office Dimensions Our office space calculator makes it easy to determine how much space you need. Office dimensions guide with standard & average office sizes, cubicle & minimum office measurements, and how big an office should be. Learn about standard office dimensions, average square footage per employee,. View recommended spaces and seamlessly manage your office space search using the. Discover the key. Storage Office Dimensions.
From www.cintronbeveragegroup.com
Office Storage Dimensions Storage Office Dimensions The first and most fundamental consideration is how much office space should be allocated per person in your office. How much space is required per person in an office? It impacts everything from employee productivity and morale to. Choosing the right office space size is a crucial decision for any business. Discover the key factors to consider when determining the. Storage Office Dimensions.
From www.storagedepotgainesville.com
Online Storage Calculator Choose the Right Size Storage Unit Storage Office Dimensions It impacts everything from employee productivity and morale to. View recommended spaces and seamlessly manage your office space search using the. Wondering how much office space you need? In this guide, we'll cover the average office size, standard office dimensions, and factors to consider when determining the right space for. The first and most fundamental consideration is how much office. Storage Office Dimensions.
From www.archiproducts.com
BASIC Office storage unit By MDD Storage Office Dimensions The first and most fundamental consideration is how much office space should be allocated per person in your office. View recommended spaces and seamlessly manage your office space search using the. In this guide, we'll cover the average office size, standard office dimensions, and factors to consider when determining the right space for. Learn about standard office dimensions, average square. Storage Office Dimensions.
From www.macrack.com.au
Warehouse Layout & Design Solutions Macrack Storage Office Dimensions It impacts everything from employee productivity and morale to. In this guide, we'll cover the average office size, standard office dimensions, and factors to consider when determining the right space for. Our office space calculator makes it easy to determine how much space you need. The first and most fundamental consideration is how much office space should be allocated per. Storage Office Dimensions.
From www.stkittsvilla.com
File Dimensions And Guidelines With Drawings Homenish Storage Office Dimensions View recommended spaces and seamlessly manage your office space search using the. How much space is required per person in an office? Our office space calculator makes it easy to determine how much space you need. It impacts everything from employee productivity and morale to. In this guide, we'll cover the average office size, standard office dimensions, and factors to. Storage Office Dimensions.
From www.dimensions.com
Office Workstations Cubicles Dimensions & Drawings Storage Office Dimensions Learn about standard office dimensions, average square footage per employee,. Wondering how much office space you need? In this guide, we'll cover the average office size, standard office dimensions, and factors to consider when determining the right space for. How much space is required per person in an office? It impacts everything from employee productivity and morale to. View recommended. Storage Office Dimensions.
From gsa.theofficeleader.com
The Office Leader. Office Space Planning, 3 Person L Shape Office Desk Storage Office Dimensions The first and most fundamental consideration is how much office space should be allocated per person in your office. How much space is required per person in an office? Office dimensions guide with standard & average office sizes, cubicle & minimum office measurements, and how big an office should be. Wondering how much office space you need? Our office space. Storage Office Dimensions.
From earthangroup.com.au
3 Types of Office Storage Earthan Group Storage Office Dimensions In this guide, we'll cover the average office size, standard office dimensions, and factors to consider when determining the right space for. Choosing the right office space size is a crucial decision for any business. It impacts everything from employee productivity and morale to. Learn about standard office dimensions, average square footage per employee,. Wondering how much office space you. Storage Office Dimensions.
From utilidadestrueno.blogspot.com
Valley Vertical File Ohio Hardwood Furniture Storage Office Dimensions View recommended spaces and seamlessly manage your office space search using the. How much space is required per person in an office? Learn about standard office dimensions, average square footage per employee,. Our office space calculator makes it easy to determine how much space you need. Office dimensions guide with standard & average office sizes, cubicle & minimum office measurements,. Storage Office Dimensions.
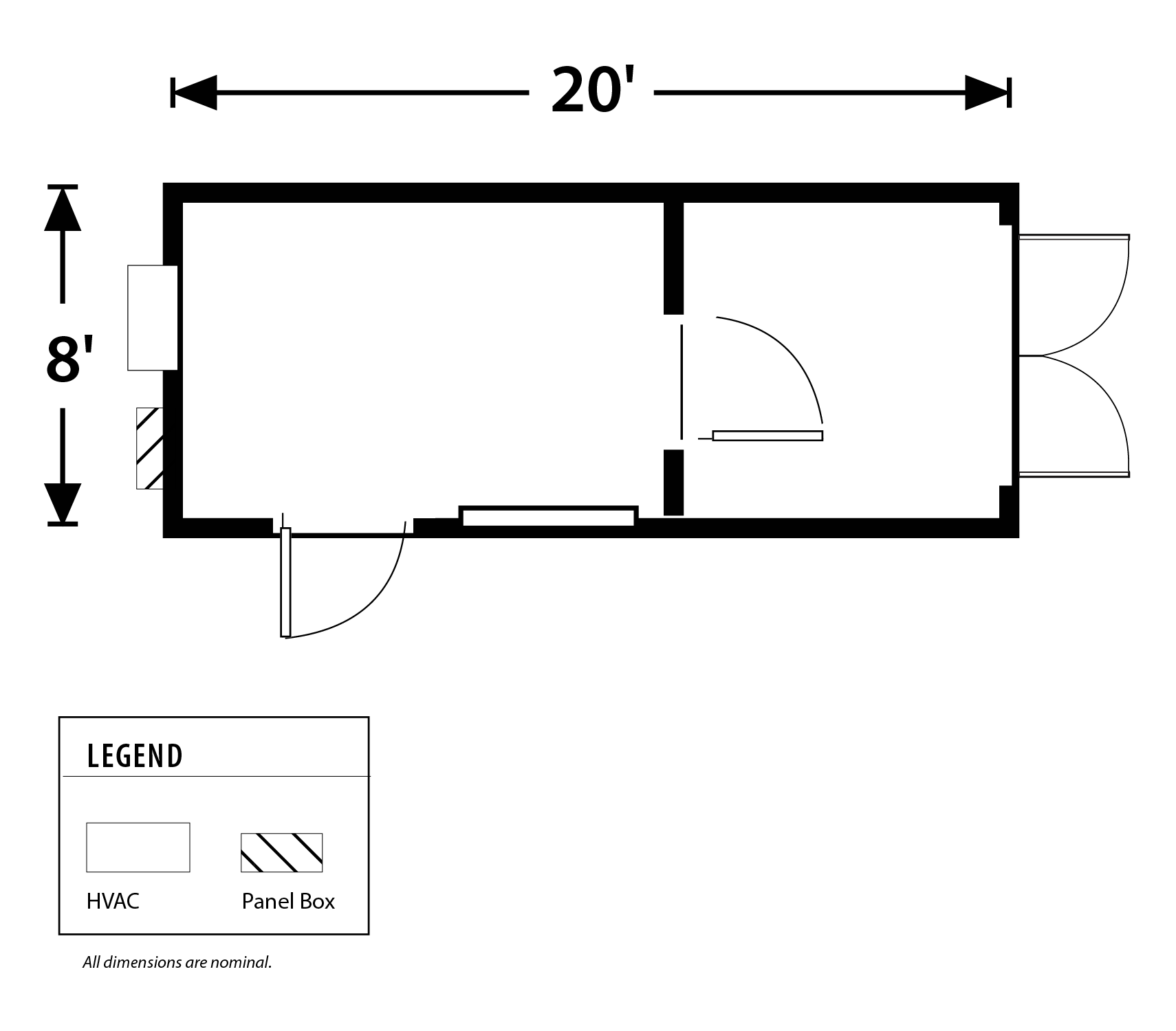
From www.mobilemodularcontainers.com
8x20 Portable Office and Storage Combo Container MMPS Storage Office Dimensions Office dimensions guide with standard & average office sizes, cubicle & minimum office measurements, and how big an office should be. Choosing the right office space size is a crucial decision for any business. How much space is required per person in an office? Wondering how much office space you need? Our office space calculator makes it easy to determine. Storage Office Dimensions.
From www.dimensions.guide
Office Single Workstation Dimensions & Drawings Dimensions.Guide Storage Office Dimensions Learn about standard office dimensions, average square footage per employee,. Discover the key factors to consider when determining the optimal office space size for your business. The first and most fundamental consideration is how much office space should be allocated per person in your office. Office dimensions guide with standard & average office sizes, cubicle & minimum office measurements, and. Storage Office Dimensions.
From designingidea.com
Office Dimensions (Standard & Average Room Sizes) Designing Idea Storage Office Dimensions How much space is required per person in an office? Discover the key factors to consider when determining the optimal office space size for your business. View recommended spaces and seamlessly manage your office space search using the. It impacts everything from employee productivity and morale to. Wondering how much office space you need? The first and most fundamental consideration. Storage Office Dimensions.
From www.cubicles.com
EZ Cubicle Desks for 4 Cubicle Desks For Small Spaces 24x60 Storage Office Dimensions The first and most fundamental consideration is how much office space should be allocated per person in your office. Learn about standard office dimensions, average square footage per employee,. View recommended spaces and seamlessly manage your office space search using the. Office dimensions guide with standard & average office sizes, cubicle & minimum office measurements, and how big an office. Storage Office Dimensions.
From ubicaciondepersonas.cdmx.gob.mx
Office Dimensions ubicaciondepersonas.cdmx.gob.mx Storage Office Dimensions How much space is required per person in an office? In this guide, we'll cover the average office size, standard office dimensions, and factors to consider when determining the right space for. It impacts everything from employee productivity and morale to. Wondering how much office space you need? Our office space calculator makes it easy to determine how much space. Storage Office Dimensions.
From www.cintronbeveragegroup.com
Office Dimensions Personal Locker Storage www Storage Office Dimensions Choosing the right office space size is a crucial decision for any business. View recommended spaces and seamlessly manage your office space search using the. Discover the key factors to consider when determining the optimal office space size for your business. In this guide, we'll cover the average office size, standard office dimensions, and factors to consider when determining the. Storage Office Dimensions.
From leedyinteriors.com
officedeskdimensionsstandardtopdelectabletypicalheightexecutive Storage Office Dimensions How much space is required per person in an office? View recommended spaces and seamlessly manage your office space search using the. In this guide, we'll cover the average office size, standard office dimensions, and factors to consider when determining the right space for. Wondering how much office space you need? Our office space calculator makes it easy to determine. Storage Office Dimensions.
From gsa.theofficeleader.com
The Office Leader. Office Space Planning, 5 Person L Shape Office Desk Storage Office Dimensions Wondering how much office space you need? Choosing the right office space size is a crucial decision for any business. The first and most fundamental consideration is how much office space should be allocated per person in your office. Office dimensions guide with standard & average office sizes, cubicle & minimum office measurements, and how big an office should be.. Storage Office Dimensions.
From www.cubicles.com
EZ Work Cubicle for 1 Office Workstation Furniture with Storage 24x60 Storage Office Dimensions Wondering how much office space you need? View recommended spaces and seamlessly manage your office space search using the. How much space is required per person in an office? Choosing the right office space size is a crucial decision for any business. It impacts everything from employee productivity and morale to. Our office space calculator makes it easy to determine. Storage Office Dimensions.
From www.dimensions.com
Office Workstations Cubicles Dimensions & Drawings Storage Office Dimensions The first and most fundamental consideration is how much office space should be allocated per person in your office. Wondering how much office space you need? View recommended spaces and seamlessly manage your office space search using the. How much space is required per person in an office? Office dimensions guide with standard & average office sizes, cubicle & minimum. Storage Office Dimensions.
From www.dimensions.com
Storage Office Dimensions & Drawings Storage Office Dimensions It impacts everything from employee productivity and morale to. View recommended spaces and seamlessly manage your office space search using the. Choosing the right office space size is a crucial decision for any business. Learn about standard office dimensions, average square footage per employee,. Office dimensions guide with standard & average office sizes, cubicle & minimum office measurements, and how. Storage Office Dimensions.
From www.dimensions.com
Shelves Shelving Dimensions & Drawings Storage Office Dimensions Our office space calculator makes it easy to determine how much space you need. Office dimensions guide with standard & average office sizes, cubicle & minimum office measurements, and how big an office should be. Choosing the right office space size is a crucial decision for any business. How much space is required per person in an office? In this. Storage Office Dimensions.
From ubicaciondepersonas.cdmx.gob.mx
Office Cupboard Dimensions ubicaciondepersonas.cdmx.gob.mx Storage Office Dimensions Discover the key factors to consider when determining the optimal office space size for your business. Wondering how much office space you need? How much space is required per person in an office? Choosing the right office space size is a crucial decision for any business. View recommended spaces and seamlessly manage your office space search using the. It impacts. Storage Office Dimensions.
From www.cintronbeveragegroup.com
Office Storage Size Storage Office Dimensions Discover the key factors to consider when determining the optimal office space size for your business. Office dimensions guide with standard & average office sizes, cubicle & minimum office measurements, and how big an office should be. How much space is required per person in an office? The first and most fundamental consideration is how much office space should be. Storage Office Dimensions.
From www.cintronbeveragegroup.com
Office Dimensions Storage Office Dimensions View recommended spaces and seamlessly manage your office space search using the. Office dimensions guide with standard & average office sizes, cubicle & minimum office measurements, and how big an office should be. Choosing the right office space size is a crucial decision for any business. In this guide, we'll cover the average office size, standard office dimensions, and factors. Storage Office Dimensions.
From decoratedoffice.com
Office Storage Unit Decorated Office Storage Office Dimensions The first and most fundamental consideration is how much office space should be allocated per person in your office. Our office space calculator makes it easy to determine how much space you need. Learn about standard office dimensions, average square footage per employee,. It impacts everything from employee productivity and morale to. Office dimensions guide with standard & average office. Storage Office Dimensions.
From www.dimensions.com
Storage Office Dimensions & Drawings Storage Office Dimensions Choosing the right office space size is a crucial decision for any business. It impacts everything from employee productivity and morale to. Learn about standard office dimensions, average square footage per employee,. Wondering how much office space you need? Our office space calculator makes it easy to determine how much space you need. Office dimensions guide with standard & average. Storage Office Dimensions.