Prince Edward Island Property Assessment . The provincial government has invested extensively in gis projects to address the administration and management of property, infrastructure, and. You will find an overview of administrative processes, taxpayer obligations. Look up the property id here. Geolinc plus is online system that provides access to assessment, tax, registry, and property mapping information for any parcel of land in prince edward. Tax administration and property records provides general information on property tax and consumption tax. Search property assessment and tax information by parcel number, owner name, or civic address search registry documents search documents in.
from www.templateroller.com
Search property assessment and tax information by parcel number, owner name, or civic address search registry documents search documents in. You will find an overview of administrative processes, taxpayer obligations. Geolinc plus is online system that provides access to assessment, tax, registry, and property mapping information for any parcel of land in prince edward. Look up the property id here. Tax administration and property records provides general information on property tax and consumption tax. The provincial government has invested extensively in gis projects to address the administration and management of property, infrastructure, and.
Prince Edward Island Canada Application for an Environmental Impact
Prince Edward Island Property Assessment Look up the property id here. You will find an overview of administrative processes, taxpayer obligations. Geolinc plus is online system that provides access to assessment, tax, registry, and property mapping information for any parcel of land in prince edward. Search property assessment and tax information by parcel number, owner name, or civic address search registry documents search documents in. Look up the property id here. The provincial government has invested extensively in gis projects to address the administration and management of property, infrastructure, and. Tax administration and property records provides general information on property tax and consumption tax.
From www.templateroller.com
Prince Edward Island Canada Authorization to Send Assessment Notice and Prince Edward Island Property Assessment Geolinc plus is online system that provides access to assessment, tax, registry, and property mapping information for any parcel of land in prince edward. The provincial government has invested extensively in gis projects to address the administration and management of property, infrastructure, and. Tax administration and property records provides general information on property tax and consumption tax. Look up the. Prince Edward Island Property Assessment.
From storage.googleapis.com
Prince Edward Island Property Tax Payment Prince Edward Island Property Assessment Tax administration and property records provides general information on property tax and consumption tax. Look up the property id here. Search property assessment and tax information by parcel number, owner name, or civic address search registry documents search documents in. You will find an overview of administrative processes, taxpayer obligations. The provincial government has invested extensively in gis projects to. Prince Edward Island Property Assessment.
From www.templateroller.com
Prince Edward Island Canada Application for an Environmental Impact Prince Edward Island Property Assessment The provincial government has invested extensively in gis projects to address the administration and management of property, infrastructure, and. Search property assessment and tax information by parcel number, owner name, or civic address search registry documents search documents in. Tax administration and property records provides general information on property tax and consumption tax. Look up the property id here. Geolinc. Prince Edward Island Property Assessment.
From www.templateroller.com
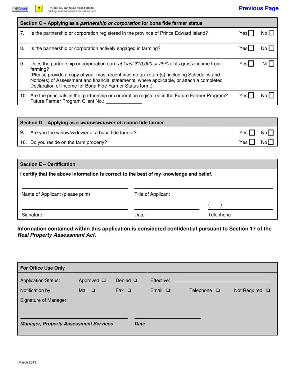
Prince Edward Island Canada Application for Bona Fide Farmer Status Prince Edward Island Property Assessment Tax administration and property records provides general information on property tax and consumption tax. The provincial government has invested extensively in gis projects to address the administration and management of property, infrastructure, and. You will find an overview of administrative processes, taxpayer obligations. Geolinc plus is online system that provides access to assessment, tax, registry, and property mapping information for. Prince Edward Island Property Assessment.
From sunburycove.com
Prince Edward Island Real Estate Prince Edward Island Property Assessment You will find an overview of administrative processes, taxpayer obligations. Search property assessment and tax information by parcel number, owner name, or civic address search registry documents search documents in. Tax administration and property records provides general information on property tax and consumption tax. Look up the property id here. The provincial government has invested extensively in gis projects to. Prince Edward Island Property Assessment.
From creastats.crea.ca
Prince Edward Island Real Estate Association CREA Statistics Prince Edward Island Property Assessment Geolinc plus is online system that provides access to assessment, tax, registry, and property mapping information for any parcel of land in prince edward. Look up the property id here. Search property assessment and tax information by parcel number, owner name, or civic address search registry documents search documents in. The provincial government has invested extensively in gis projects to. Prince Edward Island Property Assessment.
From www.templateroller.com
Prince Edward Island Canada Registering for Municipal Assessment and Prince Edward Island Property Assessment You will find an overview of administrative processes, taxpayer obligations. Look up the property id here. Tax administration and property records provides general information on property tax and consumption tax. Geolinc plus is online system that provides access to assessment, tax, registry, and property mapping information for any parcel of land in prince edward. The provincial government has invested extensively. Prince Edward Island Property Assessment.
From tonsoffacts.com
18 Awesome And Fun Facts About Victoria, Prince Edward Island, Canada Prince Edward Island Property Assessment You will find an overview of administrative processes, taxpayer obligations. Geolinc plus is online system that provides access to assessment, tax, registry, and property mapping information for any parcel of land in prince edward. Tax administration and property records provides general information on property tax and consumption tax. Look up the property id here. The provincial government has invested extensively. Prince Edward Island Property Assessment.
From leadingestates.com
Kingfisher Beach House, Prince Edward Island, Canada Leading Estates Prince Edward Island Property Assessment Look up the property id here. You will find an overview of administrative processes, taxpayer obligations. Search property assessment and tax information by parcel number, owner name, or civic address search registry documents search documents in. Tax administration and property records provides general information on property tax and consumption tax. Geolinc plus is online system that provides access to assessment,. Prince Edward Island Property Assessment.
From exoyutrgz.blob.core.windows.net
Prince Edward County Va Property Assessments at Craig Klein blog Prince Edward Island Property Assessment Look up the property id here. Tax administration and property records provides general information on property tax and consumption tax. You will find an overview of administrative processes, taxpayer obligations. Search property assessment and tax information by parcel number, owner name, or civic address search registry documents search documents in. The provincial government has invested extensively in gis projects to. Prince Edward Island Property Assessment.
From sunburycove.com
Prince Edward Island Real Estate Prince Edward Island Property Assessment Look up the property id here. The provincial government has invested extensively in gis projects to address the administration and management of property, infrastructure, and. Search property assessment and tax information by parcel number, owner name, or civic address search registry documents search documents in. Tax administration and property records provides general information on property tax and consumption tax. Geolinc. Prince Edward Island Property Assessment.
From www.youtube.com
Prince Edward Island Real Estate Perc Tests Percolation Tests PEI Prince Edward Island Property Assessment Geolinc plus is online system that provides access to assessment, tax, registry, and property mapping information for any parcel of land in prince edward. Look up the property id here. You will find an overview of administrative processes, taxpayer obligations. The provincial government has invested extensively in gis projects to address the administration and management of property, infrastructure, and. Tax. Prince Edward Island Property Assessment.
From www.researchgate.net
Map of all Prince Edward Island sites used in this study. Study sites Prince Edward Island Property Assessment Tax administration and property records provides general information on property tax and consumption tax. Search property assessment and tax information by parcel number, owner name, or civic address search registry documents search documents in. You will find an overview of administrative processes, taxpayer obligations. The provincial government has invested extensively in gis projects to address the administration and management of. Prince Edward Island Property Assessment.
From livingcost.org
Cost of Living in Prince Edward Island 1 cities compared Prince Edward Island Property Assessment Search property assessment and tax information by parcel number, owner name, or civic address search registry documents search documents in. Geolinc plus is online system that provides access to assessment, tax, registry, and property mapping information for any parcel of land in prince edward. The provincial government has invested extensively in gis projects to address the administration and management of. Prince Edward Island Property Assessment.
From sunburycove.com
Prince Edward Island Real Estate Prince Edward Island Property Assessment Geolinc plus is online system that provides access to assessment, tax, registry, and property mapping information for any parcel of land in prince edward. Tax administration and property records provides general information on property tax and consumption tax. Search property assessment and tax information by parcel number, owner name, or civic address search registry documents search documents in. The provincial. Prince Edward Island Property Assessment.
From www.youtube.com
Prince Edward Island Real Estate Property Taxes Shorts YouTube Prince Edward Island Property Assessment You will find an overview of administrative processes, taxpayer obligations. The provincial government has invested extensively in gis projects to address the administration and management of property, infrastructure, and. Tax administration and property records provides general information on property tax and consumption tax. Geolinc plus is online system that provides access to assessment, tax, registry, and property mapping information for. Prince Edward Island Property Assessment.
From sunburycove.com
Prince Edward Island Real Estate Prince Edward Island Property Assessment Search property assessment and tax information by parcel number, owner name, or civic address search registry documents search documents in. Look up the property id here. The provincial government has invested extensively in gis projects to address the administration and management of property, infrastructure, and. Geolinc plus is online system that provides access to assessment, tax, registry, and property mapping. Prince Edward Island Property Assessment.
From sunburycove.com
Prince Edward Island Real Estate Prince Edward Island Property Assessment Search property assessment and tax information by parcel number, owner name, or civic address search registry documents search documents in. Geolinc plus is online system that provides access to assessment, tax, registry, and property mapping information for any parcel of land in prince edward. Tax administration and property records provides general information on property tax and consumption tax. Look up. Prince Edward Island Property Assessment.
From exoyutrgz.blob.core.windows.net
Prince Edward County Va Property Assessments at Craig Klein blog Prince Edward Island Property Assessment You will find an overview of administrative processes, taxpayer obligations. Search property assessment and tax information by parcel number, owner name, or civic address search registry documents search documents in. Look up the property id here. The provincial government has invested extensively in gis projects to address the administration and management of property, infrastructure, and. Geolinc plus is online system. Prince Edward Island Property Assessment.
From creastats.crea.ca
Prince Edward Island Real Estate Association CREA Statistics Prince Edward Island Property Assessment Tax administration and property records provides general information on property tax and consumption tax. The provincial government has invested extensively in gis projects to address the administration and management of property, infrastructure, and. Geolinc plus is online system that provides access to assessment, tax, registry, and property mapping information for any parcel of land in prince edward. Search property assessment. Prince Edward Island Property Assessment.
From sunburycove.com
Prince Edward Island Real Estate Prince Edward Island Property Assessment Tax administration and property records provides general information on property tax and consumption tax. You will find an overview of administrative processes, taxpayer obligations. The provincial government has invested extensively in gis projects to address the administration and management of property, infrastructure, and. Look up the property id here. Search property assessment and tax information by parcel number, owner name,. Prince Edward Island Property Assessment.
From sunburycove.com
Sunbury Cove Estates, Prince Edward Island Real Estate Prince Edward Island Property Assessment You will find an overview of administrative processes, taxpayer obligations. Look up the property id here. Tax administration and property records provides general information on property tax and consumption tax. Search property assessment and tax information by parcel number, owner name, or civic address search registry documents search documents in. The provincial government has invested extensively in gis projects to. Prince Edward Island Property Assessment.
From sunburycove.com
Prince Edward Island Real Estate Prince Edward Island Property Assessment The provincial government has invested extensively in gis projects to address the administration and management of property, infrastructure, and. Search property assessment and tax information by parcel number, owner name, or civic address search registry documents search documents in. Tax administration and property records provides general information on property tax and consumption tax. Look up the property id here. You. Prince Edward Island Property Assessment.
From creastats.crea.ca
Prince Edward Island Real Estate Association CREA Statistics Prince Edward Island Property Assessment The provincial government has invested extensively in gis projects to address the administration and management of property, infrastructure, and. Tax administration and property records provides general information on property tax and consumption tax. Search property assessment and tax information by parcel number, owner name, or civic address search registry documents search documents in. You will find an overview of administrative. Prince Edward Island Property Assessment.
From www.youtube.com
(SOLD ) Prince Edward Island Real Estate Oceanfront Waterfront Acreage Prince Edward Island Property Assessment The provincial government has invested extensively in gis projects to address the administration and management of property, infrastructure, and. Tax administration and property records provides general information on property tax and consumption tax. Geolinc plus is online system that provides access to assessment, tax, registry, and property mapping information for any parcel of land in prince edward. Search property assessment. Prince Edward Island Property Assessment.
From www.templateroller.com
Prince Edward Island Canada Application for Bona Fide Farmer Status Prince Edward Island Property Assessment Geolinc plus is online system that provides access to assessment, tax, registry, and property mapping information for any parcel of land in prince edward. The provincial government has invested extensively in gis projects to address the administration and management of property, infrastructure, and. You will find an overview of administrative processes, taxpayer obligations. Search property assessment and tax information by. Prince Edward Island Property Assessment.
From sunburycove.com
Prince Edward Island Real Estate Prince Edward Island Property Assessment Search property assessment and tax information by parcel number, owner name, or civic address search registry documents search documents in. The provincial government has invested extensively in gis projects to address the administration and management of property, infrastructure, and. Look up the property id here. Tax administration and property records provides general information on property tax and consumption tax. You. Prince Edward Island Property Assessment.
From sunburycove.com
Prince Edward Island Real Estate Prince Edward Island Property Assessment Look up the property id here. Geolinc plus is online system that provides access to assessment, tax, registry, and property mapping information for any parcel of land in prince edward. Search property assessment and tax information by parcel number, owner name, or civic address search registry documents search documents in. Tax administration and property records provides general information on property. Prince Edward Island Property Assessment.
From sunburycove.com
Prince Edward Island Real Estate Prince Edward Island Property Assessment Geolinc plus is online system that provides access to assessment, tax, registry, and property mapping information for any parcel of land in prince edward. Look up the property id here. Tax administration and property records provides general information on property tax and consumption tax. Search property assessment and tax information by parcel number, owner name, or civic address search registry. Prince Edward Island Property Assessment.
From www.youtube.com
Prince Edward Island Real Estate Property Taxes Resident Discounts and Prince Edward Island Property Assessment Tax administration and property records provides general information on property tax and consumption tax. Geolinc plus is online system that provides access to assessment, tax, registry, and property mapping information for any parcel of land in prince edward. You will find an overview of administrative processes, taxpayer obligations. The provincial government has invested extensively in gis projects to address the. Prince Edward Island Property Assessment.
From www.templateroller.com
Prince Edward Island Canada Application for Bona Fide Farmer Status Prince Edward Island Property Assessment Geolinc plus is online system that provides access to assessment, tax, registry, and property mapping information for any parcel of land in prince edward. The provincial government has invested extensively in gis projects to address the administration and management of property, infrastructure, and. Tax administration and property records provides general information on property tax and consumption tax. Look up the. Prince Edward Island Property Assessment.
From www.youtube.com
Prince Edward Island Property Taxes Reassessments Reductions Increases Prince Edward Island Property Assessment Geolinc plus is online system that provides access to assessment, tax, registry, and property mapping information for any parcel of land in prince edward. The provincial government has invested extensively in gis projects to address the administration and management of property, infrastructure, and. You will find an overview of administrative processes, taxpayer obligations. Search property assessment and tax information by. Prince Edward Island Property Assessment.
From www.templateroller.com
Prince Edward Island Canada Project Registration and Assessment Form Prince Edward Island Property Assessment Look up the property id here. The provincial government has invested extensively in gis projects to address the administration and management of property, infrastructure, and. Search property assessment and tax information by parcel number, owner name, or civic address search registry documents search documents in. You will find an overview of administrative processes, taxpayer obligations. Tax administration and property records. Prince Edward Island Property Assessment.
From cdnsciencepub.com
Changes in soil organic matter over 18 yr in Prince Edward Island, Canada Prince Edward Island Property Assessment Look up the property id here. The provincial government has invested extensively in gis projects to address the administration and management of property, infrastructure, and. Geolinc plus is online system that provides access to assessment, tax, registry, and property mapping information for any parcel of land in prince edward. You will find an overview of administrative processes, taxpayer obligations. Tax. Prince Edward Island Property Assessment.
From sunburycove.com
Prince Edward Island Real Estate Prince Edward Island Property Assessment Tax administration and property records provides general information on property tax and consumption tax. Look up the property id here. Search property assessment and tax information by parcel number, owner name, or civic address search registry documents search documents in. Geolinc plus is online system that provides access to assessment, tax, registry, and property mapping information for any parcel of. Prince Edward Island Property Assessment.