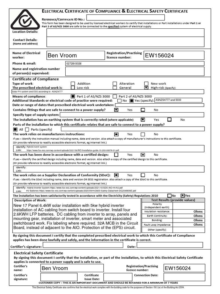
Electrical Coc Process . The reticulation certificate is blue. Electrical contractors, and workers completing work on behalf of an electrical contractor, must provide their customers with either a:. Regular electrical of compliance and sub reticulation. A guide to the electrical certificate of compliance in south africa for renters, owners, managers and electrical contractors. This form has been designed to be used by licensed electrical workers to certify that installations or part installations under part 1 or part 2 of as/nzs 3000 are safe to be connected. What is a certificate of conformity? In addition, the single page coc/test report has been divided into two parts: Overcoming the common coc challenges. An electrical contractor or worker who conducts electrical work must complete a coc that certifies that the electrical work was. An electrical certificate of compliance (ecoc) or coc certificate (coc) is a legal document also known as a compliance certificate which. Navigate the legal & regulatory landscape.
from dokumen.tips
What is a certificate of conformity? An electrical contractor or worker who conducts electrical work must complete a coc that certifies that the electrical work was. An electrical certificate of compliance (ecoc) or coc certificate (coc) is a legal document also known as a compliance certificate which. This form has been designed to be used by licensed electrical workers to certify that installations or part installations under part 1 or part 2 of as/nzs 3000 are safe to be connected. The reticulation certificate is blue. Navigate the legal & regulatory landscape. In addition, the single page coc/test report has been divided into two parts: Electrical contractors, and workers completing work on behalf of an electrical contractor, must provide their customers with either a:. Overcoming the common coc challenges. A guide to the electrical certificate of compliance in south africa for renters, owners, managers and electrical contractors.
(PDF) Commissioning process and sign off Home SSEG Municipal
Electrical Coc Process Electrical contractors, and workers completing work on behalf of an electrical contractor, must provide their customers with either a:. Overcoming the common coc challenges. A guide to the electrical certificate of compliance in south africa for renters, owners, managers and electrical contractors. An electrical contractor or worker who conducts electrical work must complete a coc that certifies that the electrical work was. Regular electrical of compliance and sub reticulation. What is a certificate of conformity? Navigate the legal & regulatory landscape. The reticulation certificate is blue. Electrical contractors, and workers completing work on behalf of an electrical contractor, must provide their customers with either a:. An electrical certificate of compliance (ecoc) or coc certificate (coc) is a legal document also known as a compliance certificate which. This form has been designed to be used by licensed electrical workers to certify that installations or part installations under part 1 or part 2 of as/nzs 3000 are safe to be connected. In addition, the single page coc/test report has been divided into two parts:
From www.researchgate.net
(a) Schematic diagram of the synthesis process of CoC. (b 1−4) SEM Electrical Coc Process What is a certificate of conformity? In addition, the single page coc/test report has been divided into two parts: An electrical certificate of compliance (ecoc) or coc certificate (coc) is a legal document also known as a compliance certificate which. An electrical contractor or worker who conducts electrical work must complete a coc that certifies that the electrical work was.. Electrical Coc Process.
From www.electricianpros.co.za
Electrical Certificate of Compliance Book your Electrical COC today Electrical Coc Process Regular electrical of compliance and sub reticulation. The reticulation certificate is blue. This form has been designed to be used by licensed electrical workers to certify that installations or part installations under part 1 or part 2 of as/nzs 3000 are safe to be connected. Overcoming the common coc challenges. An electrical certificate of compliance (ecoc) or coc certificate (coc). Electrical Coc Process.
From intelproelectric.co.za
Home [intelproelectric.co.za] Electrical Coc Process What is a certificate of conformity? Navigate the legal & regulatory landscape. A guide to the electrical certificate of compliance in south africa for renters, owners, managers and electrical contractors. Regular electrical of compliance and sub reticulation. In addition, the single page coc/test report has been divided into two parts: Electrical contractors, and workers completing work on behalf of an. Electrical Coc Process.
From www.researchgate.net
Flowchart the procedures for CoC certification. Download Scientific Electrical Coc Process An electrical certificate of compliance (ecoc) or coc certificate (coc) is a legal document also known as a compliance certificate which. What is a certificate of conformity? The reticulation certificate is blue. Overcoming the common coc challenges. Electrical contractors, and workers completing work on behalf of an electrical contractor, must provide their customers with either a:. This form has been. Electrical Coc Process.
From cocelectrical.com.sg
COC Electrical & Automation Pte Ltd is a Total Solution supplier in Electrical Coc Process In addition, the single page coc/test report has been divided into two parts: An electrical certificate of compliance (ecoc) or coc certificate (coc) is a legal document also known as a compliance certificate which. An electrical contractor or worker who conducts electrical work must complete a coc that certifies that the electrical work was. Overcoming the common coc challenges. Navigate. Electrical Coc Process.
From e-coc.org
Concept eCoC DIN SPEC 9012 Electrical Coc Process Regular electrical of compliance and sub reticulation. The reticulation certificate is blue. An electrical contractor or worker who conducts electrical work must complete a coc that certifies that the electrical work was. This form has been designed to be used by licensed electrical workers to certify that installations or part installations under part 1 or part 2 of as/nzs 3000. Electrical Coc Process.
From www.scribd.com
Electrical Coc and ESC Combined 2 PDF Electrical Wiring Safety Electrical Coc Process Regular electrical of compliance and sub reticulation. This form has been designed to be used by licensed electrical workers to certify that installations or part installations under part 1 or part 2 of as/nzs 3000 are safe to be connected. In addition, the single page coc/test report has been divided into two parts: Overcoming the common coc challenges. Electrical contractors,. Electrical Coc Process.
From www.researchgate.net
Process of distributed COC mechanism Download Scientific Diagram Electrical Coc Process In addition, the single page coc/test report has been divided into two parts: Electrical contractors, and workers completing work on behalf of an electrical contractor, must provide their customers with either a:. An electrical contractor or worker who conducts electrical work must complete a coc that certifies that the electrical work was. This form has been designed to be used. Electrical Coc Process.
From rhulanitheelectrician.blogspot.com
Why do I need an electrical certificate COC? Electrical Coc Process What is a certificate of conformity? Overcoming the common coc challenges. An electrical contractor or worker who conducts electrical work must complete a coc that certifies that the electrical work was. In addition, the single page coc/test report has been divided into two parts: Electrical contractors, and workers completing work on behalf of an electrical contractor, must provide their customers. Electrical Coc Process.
From www.youtube.com
Coc level_3 for Electrical installation YouTube Electrical Coc Process An electrical contractor or worker who conducts electrical work must complete a coc that certifies that the electrical work was. Navigate the legal & regulatory landscape. In addition, the single page coc/test report has been divided into two parts: The reticulation certificate is blue. An electrical certificate of compliance (ecoc) or coc certificate (coc) is a legal document also known. Electrical Coc Process.
From www.bansarchina.com
What is COC Certificate The Ultimate FAQ Guide Bansar China Electrical Coc Process Electrical contractors, and workers completing work on behalf of an electrical contractor, must provide their customers with either a:. An electrical contractor or worker who conducts electrical work must complete a coc that certifies that the electrical work was. Overcoming the common coc challenges. In addition, the single page coc/test report has been divided into two parts: What is a. Electrical Coc Process.
From www.nnph.org
WoodBurning Devices Electrical Coc Process An electrical contractor or worker who conducts electrical work must complete a coc that certifies that the electrical work was. An electrical certificate of compliance (ecoc) or coc certificate (coc) is a legal document also known as a compliance certificate which. Regular electrical of compliance and sub reticulation. A guide to the electrical certificate of compliance in south africa for. Electrical Coc Process.
From www.researchgate.net
Flowchart the procedures for CoC certification. Download Scientific Electrical Coc Process A guide to the electrical certificate of compliance in south africa for renters, owners, managers and electrical contractors. Electrical contractors, and workers completing work on behalf of an electrical contractor, must provide their customers with either a:. In addition, the single page coc/test report has been divided into two parts: Regular electrical of compliance and sub reticulation. This form has. Electrical Coc Process.
From hottools.co.za
Electrical Contractor Test Kit COC Major Tech Hot Tools Electrical Coc Process An electrical contractor or worker who conducts electrical work must complete a coc that certifies that the electrical work was. The reticulation certificate is blue. A guide to the electrical certificate of compliance in south africa for renters, owners, managers and electrical contractors. Overcoming the common coc challenges. In addition, the single page coc/test report has been divided into two. Electrical Coc Process.
From www.scribd.com
COCelectricaltemplate PDF Power Inverter Power (Physics) Electrical Coc Process Navigate the legal & regulatory landscape. The reticulation certificate is blue. A guide to the electrical certificate of compliance in south africa for renters, owners, managers and electrical contractors. Electrical contractors, and workers completing work on behalf of an electrical contractor, must provide their customers with either a:. In addition, the single page coc/test report has been divided into two. Electrical Coc Process.
From evoltaze.co.za
COC Evoltaze Electrical Coc Process An electrical certificate of compliance (ecoc) or coc certificate (coc) is a legal document also known as a compliance certificate which. This form has been designed to be used by licensed electrical workers to certify that installations or part installations under part 1 or part 2 of as/nzs 3000 are safe to be connected. A guide to the electrical certificate. Electrical Coc Process.
From titanelectrical.co.za
Our COC Process Titan Electrical Electrical Coc Process An electrical certificate of compliance (ecoc) or coc certificate (coc) is a legal document also known as a compliance certificate which. An electrical contractor or worker who conducts electrical work must complete a coc that certifies that the electrical work was. A guide to the electrical certificate of compliance in south africa for renters, owners, managers and electrical contractors. The. Electrical Coc Process.
From www.scribd.com
Coc Electrical PDF Electrical Wiring Components Electrical Coc Process The reticulation certificate is blue. This form has been designed to be used by licensed electrical workers to certify that installations or part installations under part 1 or part 2 of as/nzs 3000 are safe to be connected. Overcoming the common coc challenges. In addition, the single page coc/test report has been divided into two parts: What is a certificate. Electrical Coc Process.
From www.scribd.com
Coc Electrical Works PDF Engineering Electrical Coc Process Overcoming the common coc challenges. This form has been designed to be used by licensed electrical workers to certify that installations or part installations under part 1 or part 2 of as/nzs 3000 are safe to be connected. In addition, the single page coc/test report has been divided into two parts: An electrical certificate of compliance (ecoc) or coc certificate. Electrical Coc Process.
From intelproelectric.co.za
Home [intelproelectric.co.za] Electrical Coc Process A guide to the electrical certificate of compliance in south africa for renters, owners, managers and electrical contractors. Electrical contractors, and workers completing work on behalf of an electrical contractor, must provide their customers with either a:. This form has been designed to be used by licensed electrical workers to certify that installations or part installations under part 1 or. Electrical Coc Process.
From quicklist.co.za
Electrical Complience Certificate COC Quick List Electrical Coc Process Regular electrical of compliance and sub reticulation. Navigate the legal & regulatory landscape. Electrical contractors, and workers completing work on behalf of an electrical contractor, must provide their customers with either a:. The reticulation certificate is blue. This form has been designed to be used by licensed electrical workers to certify that installations or part installations under part 1 or. Electrical Coc Process.
From www.researchgate.net
The process of DRLbased COC framework Download Scientific Diagram Electrical Coc Process The reticulation certificate is blue. This form has been designed to be used by licensed electrical workers to certify that installations or part installations under part 1 or part 2 of as/nzs 3000 are safe to be connected. Overcoming the common coc challenges. Regular electrical of compliance and sub reticulation. Electrical contractors, and workers completing work on behalf of an. Electrical Coc Process.
From titanelectrical.co.za
Our COC Process Titan Electrical Electrical Coc Process Electrical contractors, and workers completing work on behalf of an electrical contractor, must provide their customers with either a:. The reticulation certificate is blue. A guide to the electrical certificate of compliance in south africa for renters, owners, managers and electrical contractors. What is a certificate of conformity? Regular electrical of compliance and sub reticulation. Overcoming the common coc challenges.. Electrical Coc Process.
From studylib.net
Certificate of Compliance (CoC) electrical safety Electrical Coc Process Navigate the legal & regulatory landscape. The reticulation certificate is blue. An electrical certificate of compliance (ecoc) or coc certificate (coc) is a legal document also known as a compliance certificate which. What is a certificate of conformity? This form has been designed to be used by licensed electrical workers to certify that installations or part installations under part 1. Electrical Coc Process.
From apkpure.com
SmartCert Electrical COC APK for Android Download Electrical Coc Process What is a certificate of conformity? An electrical contractor or worker who conducts electrical work must complete a coc that certifies that the electrical work was. This form has been designed to be used by licensed electrical workers to certify that installations or part installations under part 1 or part 2 of as/nzs 3000 are safe to be connected. Electrical. Electrical Coc Process.
From www.scribd.com
COC Electrical PDF Identity Document Document Electrical Coc Process Regular electrical of compliance and sub reticulation. Overcoming the common coc challenges. A guide to the electrical certificate of compliance in south africa for renters, owners, managers and electrical contractors. The reticulation certificate is blue. What is a certificate of conformity? An electrical certificate of compliance (ecoc) or coc certificate (coc) is a legal document also known as a compliance. Electrical Coc Process.
From dokumen.tips
(PDF) Commissioning process and sign off Home SSEG Municipal Electrical Coc Process The reticulation certificate is blue. What is a certificate of conformity? Regular electrical of compliance and sub reticulation. Overcoming the common coc challenges. An electrical contractor or worker who conducts electrical work must complete a coc that certifies that the electrical work was. A guide to the electrical certificate of compliance in south africa for renters, owners, managers and electrical. Electrical Coc Process.
From www.coc-certificates.co.za
coccertificates Electricians24Hours Electrical Coc Process Regular electrical of compliance and sub reticulation. What is a certificate of conformity? In addition, the single page coc/test report has been divided into two parts: An electrical contractor or worker who conducts electrical work must complete a coc that certifies that the electrical work was. This form has been designed to be used by licensed electrical workers to certify. Electrical Coc Process.
From www.slideserve.com
PPT Houston/Harris County CoC Meeting PowerPoint Presentation, free Electrical Coc Process Regular electrical of compliance and sub reticulation. Overcoming the common coc challenges. What is a certificate of conformity? In addition, the single page coc/test report has been divided into two parts: An electrical contractor or worker who conducts electrical work must complete a coc that certifies that the electrical work was. An electrical certificate of compliance (ecoc) or coc certificate. Electrical Coc Process.
From www.scribd.com
CPS SCA50 60KTL DO 480 NRTL CSA CoC PDF Electrical Grid Electrical Coc Process What is a certificate of conformity? The reticulation certificate is blue. Overcoming the common coc challenges. An electrical certificate of compliance (ecoc) or coc certificate (coc) is a legal document also known as a compliance certificate which. An electrical contractor or worker who conducts electrical work must complete a coc that certifies that the electrical work was. Regular electrical of. Electrical Coc Process.
From www.scribd.com
222 COC Guidelines Electrical Grid Regulatory Compliance Electrical Coc Process This form has been designed to be used by licensed electrical workers to certify that installations or part installations under part 1 or part 2 of as/nzs 3000 are safe to be connected. Overcoming the common coc challenges. An electrical certificate of compliance (ecoc) or coc certificate (coc) is a legal document also known as a compliance certificate which. The. Electrical Coc Process.
From gropower.co.za
COC » Gro Power Electrical Coc Process Navigate the legal & regulatory landscape. Overcoming the common coc challenges. Regular electrical of compliance and sub reticulation. An electrical contractor or worker who conducts electrical work must complete a coc that certifies that the electrical work was. This form has been designed to be used by licensed electrical workers to certify that installations or part installations under part 1. Electrical Coc Process.
From rietpanconstruction.co.za
UNDERSTANDING THE NEW ELECTRICAL CERTIFICATE OF COMPLIANCE Rietpan Electrical Coc Process Overcoming the common coc challenges. In addition, the single page coc/test report has been divided into two parts: What is a certificate of conformity? Navigate the legal & regulatory landscape. An electrical certificate of compliance (ecoc) or coc certificate (coc) is a legal document also known as a compliance certificate which. A guide to the electrical certificate of compliance in. Electrical Coc Process.
From cocelectrical.com
Electrical Certificate Of Compliance COC ELECTRICAL 071 177 1234 Electrical Coc Process Overcoming the common coc challenges. Regular electrical of compliance and sub reticulation. The reticulation certificate is blue. An electrical certificate of compliance (ecoc) or coc certificate (coc) is a legal document also known as a compliance certificate which. Navigate the legal & regulatory landscape. In addition, the single page coc/test report has been divided into two parts: An electrical contractor. Electrical Coc Process.
From farmstylegroup.co.za
Electrical and COCs Farmstyle Construction Group Electrical Coc Process What is a certificate of conformity? This form has been designed to be used by licensed electrical workers to certify that installations or part installations under part 1 or part 2 of as/nzs 3000 are safe to be connected. An electrical certificate of compliance (ecoc) or coc certificate (coc) is a legal document also known as a compliance certificate which.. Electrical Coc Process.