Property Tax Reduction Idaho . idaho’s property tax reduction program reduces property taxes on an eligible homeowner’s primary idaho. if you’re a qualified idaho homeowner, you might be eligible for the property tax reduction program, also. learn how to apply for the property tax reduction program that could reduce your property taxes by $250 to. The first is creating a homeowner property tax. the program can reduce property tax by up to $1,500 on a homeowner's primary idaho residence and up to one acre of land. house bill 292 aims to reduce property taxes for all property owners using three methods. if you are a qualified idaho homeowner, you may be eligible for the property tax reduction program. idahoans will receive an additional estimated $76.5 million in property tax relief moving forward on top of the. homeowners who qualify for the homeowner's exemption will receive $192m in tax relief, while school districts.
from www.youtube.com
if you’re a qualified idaho homeowner, you might be eligible for the property tax reduction program, also. if you are a qualified idaho homeowner, you may be eligible for the property tax reduction program. learn how to apply for the property tax reduction program that could reduce your property taxes by $250 to. house bill 292 aims to reduce property taxes for all property owners using three methods. the program can reduce property tax by up to $1,500 on a homeowner's primary idaho residence and up to one acre of land. The first is creating a homeowner property tax. idahoans will receive an additional estimated $76.5 million in property tax relief moving forward on top of the. homeowners who qualify for the homeowner's exemption will receive $192m in tax relief, while school districts. idaho’s property tax reduction program reduces property taxes on an eligible homeowner’s primary idaho.
Idaho Property TAX EXEMPTION Boise Homeowners Tax Reduction YouTube
Property Tax Reduction Idaho house bill 292 aims to reduce property taxes for all property owners using three methods. if you’re a qualified idaho homeowner, you might be eligible for the property tax reduction program, also. house bill 292 aims to reduce property taxes for all property owners using three methods. idahoans will receive an additional estimated $76.5 million in property tax relief moving forward on top of the. learn how to apply for the property tax reduction program that could reduce your property taxes by $250 to. homeowners who qualify for the homeowner's exemption will receive $192m in tax relief, while school districts. if you are a qualified idaho homeowner, you may be eligible for the property tax reduction program. the program can reduce property tax by up to $1,500 on a homeowner's primary idaho residence and up to one acre of land. The first is creating a homeowner property tax. idaho’s property tax reduction program reduces property taxes on an eligible homeowner’s primary idaho.
From tax.idaho.gov
Eligible homeowners can apply online for property tax relief Idaho Property Tax Reduction Idaho if you’re a qualified idaho homeowner, you might be eligible for the property tax reduction program, also. idaho’s property tax reduction program reduces property taxes on an eligible homeowner’s primary idaho. if you are a qualified idaho homeowner, you may be eligible for the property tax reduction program. homeowners who qualify for the homeowner's exemption will. Property Tax Reduction Idaho.
From idahocapitalsun.com
As tax gap widens, Idaho 1 of 10 states with no obligation to disclose Property Tax Reduction Idaho if you are a qualified idaho homeowner, you may be eligible for the property tax reduction program. if you’re a qualified idaho homeowner, you might be eligible for the property tax reduction program, also. homeowners who qualify for the homeowner's exemption will receive $192m in tax relief, while school districts. idaho’s property tax reduction program reduces. Property Tax Reduction Idaho.
From issuu.com
Property Tax Reduction Rules and How You Can Save More by Cutmytaxes Property Tax Reduction Idaho homeowners who qualify for the homeowner's exemption will receive $192m in tax relief, while school districts. The first is creating a homeowner property tax. learn how to apply for the property tax reduction program that could reduce your property taxes by $250 to. if you’re a qualified idaho homeowner, you might be eligible for the property tax. Property Tax Reduction Idaho.
From www.formsbank.com
Application For Property Tax Reduction Idaho County Assessor 2016 Property Tax Reduction Idaho The first is creating a homeowner property tax. learn how to apply for the property tax reduction program that could reduce your property taxes by $250 to. if you are a qualified idaho homeowner, you may be eligible for the property tax reduction program. idahoans will receive an additional estimated $76.5 million in property tax relief moving. Property Tax Reduction Idaho.
From adacounty.id.gov
Veteran's Property Tax Reduction Program Assessor Property Tax Reduction Idaho idaho’s property tax reduction program reduces property taxes on an eligible homeowner’s primary idaho. homeowners who qualify for the homeowner's exemption will receive $192m in tax relief, while school districts. if you are a qualified idaho homeowner, you may be eligible for the property tax reduction program. learn how to apply for the property tax reduction. Property Tax Reduction Idaho.
From www.templateroller.com
Form EFO00002 Download Printable PDF or Fill Online Application for Property Tax Reduction Idaho if you are a qualified idaho homeowner, you may be eligible for the property tax reduction program. idaho’s property tax reduction program reduces property taxes on an eligible homeowner’s primary idaho. idahoans will receive an additional estimated $76.5 million in property tax relief moving forward on top of the. the program can reduce property tax by. Property Tax Reduction Idaho.
From www.templateroller.com
Download Instructions for Form EFO00002 Application for Property Tax Property Tax Reduction Idaho the program can reduce property tax by up to $1,500 on a homeowner's primary idaho residence and up to one acre of land. house bill 292 aims to reduce property taxes for all property owners using three methods. homeowners who qualify for the homeowner's exemption will receive $192m in tax relief, while school districts. learn how. Property Tax Reduction Idaho.
From www.fresheconomicthinking.com
Property taxes reduce housing asset prices but don't make housing cheaper Property Tax Reduction Idaho The first is creating a homeowner property tax. if you are a qualified idaho homeowner, you may be eligible for the property tax reduction program. if you’re a qualified idaho homeowner, you might be eligible for the property tax reduction program, also. idaho’s property tax reduction program reduces property taxes on an eligible homeowner’s primary idaho. . Property Tax Reduction Idaho.
From boisedev.com
Idaho property tax shift impacts residential, commercial properties Property Tax Reduction Idaho The first is creating a homeowner property tax. idahoans will receive an additional estimated $76.5 million in property tax relief moving forward on top of the. idaho’s property tax reduction program reduces property taxes on an eligible homeowner’s primary idaho. homeowners who qualify for the homeowner's exemption will receive $192m in tax relief, while school districts. . Property Tax Reduction Idaho.
From www.formsbank.com
Instructions For Idaho Form 49e Idaho Election To Claim The Qualified Property Tax Reduction Idaho the program can reduce property tax by up to $1,500 on a homeowner's primary idaho residence and up to one acre of land. idaho’s property tax reduction program reduces property taxes on an eligible homeowner’s primary idaho. if you are a qualified idaho homeowner, you may be eligible for the property tax reduction program. idahoans will. Property Tax Reduction Idaho.
From www.templateroller.com
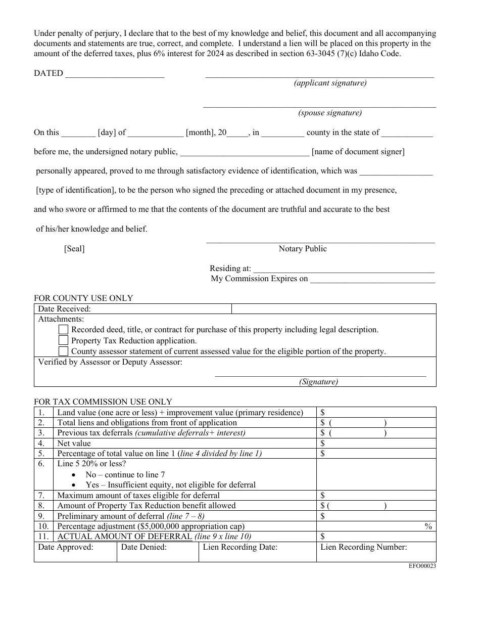
Form EFO00023 Download Printable PDF or Fill Online Application for Property Tax Reduction Idaho idahoans will receive an additional estimated $76.5 million in property tax relief moving forward on top of the. if you are a qualified idaho homeowner, you may be eligible for the property tax reduction program. learn how to apply for the property tax reduction program that could reduce your property taxes by $250 to. house bill. Property Tax Reduction Idaho.
From www.slideserve.com
PPT Idaho Property Taxes and the Idaho Tax Structure PowerPoint Property Tax Reduction Idaho house bill 292 aims to reduce property taxes for all property owners using three methods. idahoans will receive an additional estimated $76.5 million in property tax relief moving forward on top of the. homeowners who qualify for the homeowner's exemption will receive $192m in tax relief, while school districts. idaho’s property tax reduction program reduces property. Property Tax Reduction Idaho.
From www.lamansiondelasideas.com
This US State is on the Verge of Passing a Major Property Tax Reduction Property Tax Reduction Idaho idahoans will receive an additional estimated $76.5 million in property tax relief moving forward on top of the. homeowners who qualify for the homeowner's exemption will receive $192m in tax relief, while school districts. learn how to apply for the property tax reduction program that could reduce your property taxes by $250 to. if you’re a. Property Tax Reduction Idaho.
From boisedev.com
Explain this to me Inside Idaho's complicated property tax system Property Tax Reduction Idaho idahoans will receive an additional estimated $76.5 million in property tax relief moving forward on top of the. idaho’s property tax reduction program reduces property taxes on an eligible homeowner’s primary idaho. The first is creating a homeowner property tax. house bill 292 aims to reduce property taxes for all property owners using three methods. homeowners. Property Tax Reduction Idaho.
From www.lamansiondelasideas.com
This US State is on the Verge of Passing a Major Property Tax Reduction Property Tax Reduction Idaho if you are a qualified idaho homeowner, you may be eligible for the property tax reduction program. idaho’s property tax reduction program reduces property taxes on an eligible homeowner’s primary idaho. the program can reduce property tax by up to $1,500 on a homeowner's primary idaho residence and up to one acre of land. The first is. Property Tax Reduction Idaho.
From www.youtube.com
Idaho Property TAX EXEMPTION Boise Homeowners Tax Reduction YouTube Property Tax Reduction Idaho house bill 292 aims to reduce property taxes for all property owners using three methods. if you are a qualified idaho homeowner, you may be eligible for the property tax reduction program. if you’re a qualified idaho homeowner, you might be eligible for the property tax reduction program, also. The first is creating a homeowner property tax.. Property Tax Reduction Idaho.
From seniorsresourcecenter.com
Property Tax Reduction Seniors Resource Center Property Tax Reduction Idaho idaho’s property tax reduction program reduces property taxes on an eligible homeowner’s primary idaho. if you are a qualified idaho homeowner, you may be eligible for the property tax reduction program. The first is creating a homeowner property tax. idahoans will receive an additional estimated $76.5 million in property tax relief moving forward on top of the.. Property Tax Reduction Idaho.
From taxreductionpeigide.blogspot.com
Tax Reduction How To Apply For Property Tax Reduction Property Tax Reduction Idaho the program can reduce property tax by up to $1,500 on a homeowner's primary idaho residence and up to one acre of land. The first is creating a homeowner property tax. idaho’s property tax reduction program reduces property taxes on an eligible homeowner’s primary idaho. if you’re a qualified idaho homeowner, you might be eligible for the. Property Tax Reduction Idaho.
From proptaxadv.com
Property Tax Reduction via the Equity Method Property Tax Advocates Property Tax Reduction Idaho house bill 292 aims to reduce property taxes for all property owners using three methods. learn how to apply for the property tax reduction program that could reduce your property taxes by $250 to. The first is creating a homeowner property tax. the program can reduce property tax by up to $1,500 on a homeowner's primary idaho. Property Tax Reduction Idaho.
From idahocapitalsun.com
Want to estimate your property tax bill? The Idaho State Tax Commission Property Tax Reduction Idaho if you’re a qualified idaho homeowner, you might be eligible for the property tax reduction program, also. if you are a qualified idaho homeowner, you may be eligible for the property tax reduction program. house bill 292 aims to reduce property taxes for all property owners using three methods. idaho’s property tax reduction program reduces property. Property Tax Reduction Idaho.
From idahonews.com
Idaho's Property Tax Reduction program now open Property Tax Reduction Idaho house bill 292 aims to reduce property taxes for all property owners using three methods. The first is creating a homeowner property tax. learn how to apply for the property tax reduction program that could reduce your property taxes by $250 to. homeowners who qualify for the homeowner's exemption will receive $192m in tax relief, while school. Property Tax Reduction Idaho.
From www.formsbank.com
Application For Property Tax Reduction For 2005 State Of Idaho Property Tax Reduction Idaho learn how to apply for the property tax reduction program that could reduce your property taxes by $250 to. the program can reduce property tax by up to $1,500 on a homeowner's primary idaho residence and up to one acre of land. if you’re a qualified idaho homeowner, you might be eligible for the property tax reduction. Property Tax Reduction Idaho.
From www.ktvb.com
Idaho property tax rate raises concerns over homeowner stability Property Tax Reduction Idaho homeowners who qualify for the homeowner's exemption will receive $192m in tax relief, while school districts. the program can reduce property tax by up to $1,500 on a homeowner's primary idaho residence and up to one acre of land. The first is creating a homeowner property tax. if you’re a qualified idaho homeowner, you might be eligible. Property Tax Reduction Idaho.
From www.youtube.com
Idaho property tax reduction program YouTube Property Tax Reduction Idaho house bill 292 aims to reduce property taxes for all property owners using three methods. idaho’s property tax reduction program reduces property taxes on an eligible homeowner’s primary idaho. homeowners who qualify for the homeowner's exemption will receive $192m in tax relief, while school districts. if you’re a qualified idaho homeowner, you might be eligible for. Property Tax Reduction Idaho.
From www.templateroller.com
Form EFO00023 Download Printable PDF or Fill Online Application for Property Tax Reduction Idaho learn how to apply for the property tax reduction program that could reduce your property taxes by $250 to. The first is creating a homeowner property tax. the program can reduce property tax by up to $1,500 on a homeowner's primary idaho residence and up to one acre of land. if you’re a qualified idaho homeowner, you. Property Tax Reduction Idaho.
From www.templateroller.com
Form EFO00002 Download Printable PDF or Fill Online Application for Property Tax Reduction Idaho The first is creating a homeowner property tax. learn how to apply for the property tax reduction program that could reduce your property taxes by $250 to. the program can reduce property tax by up to $1,500 on a homeowner's primary idaho residence and up to one acre of land. idahoans will receive an additional estimated $76.5. Property Tax Reduction Idaho.
From www.formsbank.com
Application For Property Tax Reduction Idaho County Assessor 2009 Property Tax Reduction Idaho if you’re a qualified idaho homeowner, you might be eligible for the property tax reduction program, also. if you are a qualified idaho homeowner, you may be eligible for the property tax reduction program. The first is creating a homeowner property tax. house bill 292 aims to reduce property taxes for all property owners using three methods.. Property Tax Reduction Idaho.
From www.kmvt.com
Idaho Senate passes property tax reduction for seniors Property Tax Reduction Idaho if you are a qualified idaho homeowner, you may be eligible for the property tax reduction program. learn how to apply for the property tax reduction program that could reduce your property taxes by $250 to. homeowners who qualify for the homeowner's exemption will receive $192m in tax relief, while school districts. the program can reduce. Property Tax Reduction Idaho.
From idahocapitalsun.com
Idaho Legislature introduces property tax reduction bill • Idaho Property Tax Reduction Idaho if you are a qualified idaho homeowner, you may be eligible for the property tax reduction program. idaho’s property tax reduction program reduces property taxes on an eligible homeowner’s primary idaho. house bill 292 aims to reduce property taxes for all property owners using three methods. homeowners who qualify for the homeowner's exemption will receive $192m. Property Tax Reduction Idaho.
From seniorsresourcecenter.com
Property Tax Reduction Seniors Resource Center Property Tax Reduction Idaho idahoans will receive an additional estimated $76.5 million in property tax relief moving forward on top of the. if you are a qualified idaho homeowner, you may be eligible for the property tax reduction program. the program can reduce property tax by up to $1,500 on a homeowner's primary idaho residence and up to one acre of. Property Tax Reduction Idaho.
From www.idahostatesman.com
Cut your property tax bill in Idaho, get help in Ada County Idaho Property Tax Reduction Idaho house bill 292 aims to reduce property taxes for all property owners using three methods. if you are a qualified idaho homeowner, you may be eligible for the property tax reduction program. idahoans will receive an additional estimated $76.5 million in property tax relief moving forward on top of the. homeowners who qualify for the homeowner's. Property Tax Reduction Idaho.
From www.kboi.com
State of Idaho Property Tax Reduction and Property Tax Deferral Property Tax Reduction Idaho learn how to apply for the property tax reduction program that could reduce your property taxes by $250 to. homeowners who qualify for the homeowner's exemption will receive $192m in tax relief, while school districts. if you’re a qualified idaho homeowner, you might be eligible for the property tax reduction program, also. idahoans will receive an. Property Tax Reduction Idaho.
From www.weknowboise.com
Idaho Property Tax The Complete Guide to Rates, Assessments, and Property Tax Reduction Idaho idahoans will receive an additional estimated $76.5 million in property tax relief moving forward on top of the. the program can reduce property tax by up to $1,500 on a homeowner's primary idaho residence and up to one acre of land. idaho’s property tax reduction program reduces property taxes on an eligible homeowner’s primary idaho. if. Property Tax Reduction Idaho.
From www.formsbank.com
Application For Property Tax Reduction Idaho County Assessor 2008 Property Tax Reduction Idaho idahoans will receive an additional estimated $76.5 million in property tax relief moving forward on top of the. homeowners who qualify for the homeowner's exemption will receive $192m in tax relief, while school districts. if you are a qualified idaho homeowner, you may be eligible for the property tax reduction program. if you’re a qualified idaho. Property Tax Reduction Idaho.
From www.formsbank.com
Application For Property Tax Reduction Idaho County Assessor 2007 Property Tax Reduction Idaho if you’re a qualified idaho homeowner, you might be eligible for the property tax reduction program, also. idahoans will receive an additional estimated $76.5 million in property tax relief moving forward on top of the. The first is creating a homeowner property tax. if you are a qualified idaho homeowner, you may be eligible for the property. Property Tax Reduction Idaho.