Putnam County Ny Building Permit Application . Looking for building permits, zoning & inspections in putnam county, ny? Welcome to the putnam county building department construction permit portal. Click an application below to download it. Inspects buildings and structures in the process of construction or repair for compliance with approved plans and specifications and all requirements of. Quickly access information about 5 building depts near you! Gml §239 requires that all towns and villages in putnam county refer development applications, proposed zoning changes, and comprehensive. Print out and complete the form, and then return it to the building department. On this page you will be able to learn when you need a permit, submittal. Building permits are required for new construction, additions, alterations, decks, pools/hot tubs, tool sheds, garages, fireplaces, wood stoves,. Information on weights and measures, food safety & inspection, milk control & dairy services, kosher law enforcement and the new york state fair.
from studylib.net
Inspects buildings and structures in the process of construction or repair for compliance with approved plans and specifications and all requirements of. Quickly access information about 5 building depts near you! Looking for building permits, zoning & inspections in putnam county, ny? Building permits are required for new construction, additions, alterations, decks, pools/hot tubs, tool sheds, garages, fireplaces, wood stoves,. Click an application below to download it. On this page you will be able to learn when you need a permit, submittal. Welcome to the putnam county building department construction permit portal. Information on weights and measures, food safety & inspection, milk control & dairy services, kosher law enforcement and the new york state fair. Gml §239 requires that all towns and villages in putnam county refer development applications, proposed zoning changes, and comprehensive. Print out and complete the form, and then return it to the building department.
Building Permit Application Form
Putnam County Ny Building Permit Application Click an application below to download it. Information on weights and measures, food safety & inspection, milk control & dairy services, kosher law enforcement and the new york state fair. Looking for building permits, zoning & inspections in putnam county, ny? Quickly access information about 5 building depts near you! Print out and complete the form, and then return it to the building department. Welcome to the putnam county building department construction permit portal. Inspects buildings and structures in the process of construction or repair for compliance with approved plans and specifications and all requirements of. Gml §239 requires that all towns and villages in putnam county refer development applications, proposed zoning changes, and comprehensive. Building permits are required for new construction, additions, alterations, decks, pools/hot tubs, tool sheds, garages, fireplaces, wood stoves,. Click an application below to download it. On this page you will be able to learn when you need a permit, submittal.
From www.formsbank.com
Putnam County Zoning Sign Permit Application Form printable pdf download Putnam County Ny Building Permit Application Welcome to the putnam county building department construction permit portal. On this page you will be able to learn when you need a permit, submittal. Building permits are required for new construction, additions, alterations, decks, pools/hot tubs, tool sheds, garages, fireplaces, wood stoves,. Click an application below to download it. Quickly access information about 5 building depts near you! Looking. Putnam County Ny Building Permit Application.
From www.templateroller.com
Putnam County, New York Waste Hauler Permit Application for Collection Putnam County Ny Building Permit Application Click an application below to download it. Looking for building permits, zoning & inspections in putnam county, ny? Building permits are required for new construction, additions, alterations, decks, pools/hot tubs, tool sheds, garages, fireplaces, wood stoves,. Print out and complete the form, and then return it to the building department. Inspects buildings and structures in the process of construction or. Putnam County Ny Building Permit Application.
From www.uslegalforms.com
NY Residential Building Permit Application Town of Beekman Fill and Putnam County Ny Building Permit Application Building permits are required for new construction, additions, alterations, decks, pools/hot tubs, tool sheds, garages, fireplaces, wood stoves,. Gml §239 requires that all towns and villages in putnam county refer development applications, proposed zoning changes, and comprehensive. Quickly access information about 5 building depts near you! Print out and complete the form, and then return it to the building department.. Putnam County Ny Building Permit Application.
From studylib.net
Building Permit Application Putnam County Ny Building Permit Application Print out and complete the form, and then return it to the building department. Click an application below to download it. Building permits are required for new construction, additions, alterations, decks, pools/hot tubs, tool sheds, garages, fireplaces, wood stoves,. Gml §239 requires that all towns and villages in putnam county refer development applications, proposed zoning changes, and comprehensive. Quickly access. Putnam County Ny Building Permit Application.
From www.dochub.com
New york building permit search Fill out & sign online DocHub Putnam County Ny Building Permit Application Click an application below to download it. Looking for building permits, zoning & inspections in putnam county, ny? Inspects buildings and structures in the process of construction or repair for compliance with approved plans and specifications and all requirements of. Information on weights and measures, food safety & inspection, milk control & dairy services, kosher law enforcement and the new. Putnam County Ny Building Permit Application.
From www.formsbank.com
Fillable Building Permit Application Form printable pdf download Putnam County Ny Building Permit Application Gml §239 requires that all towns and villages in putnam county refer development applications, proposed zoning changes, and comprehensive. Welcome to the putnam county building department construction permit portal. Inspects buildings and structures in the process of construction or repair for compliance with approved plans and specifications and all requirements of. Building permits are required for new construction, additions, alterations,. Putnam County Ny Building Permit Application.
From www.templateroller.com
Warren county, New York Application for a Building Permit Fill Out Putnam County Ny Building Permit Application Building permits are required for new construction, additions, alterations, decks, pools/hot tubs, tool sheds, garages, fireplaces, wood stoves,. Information on weights and measures, food safety & inspection, milk control & dairy services, kosher law enforcement and the new york state fair. Looking for building permits, zoning & inspections in putnam county, ny? Print out and complete the form, and then. Putnam County Ny Building Permit Application.
From fity.club
Building Permits Putnam County Ny Building Permit Application Welcome to the putnam county building department construction permit portal. Click an application below to download it. Inspects buildings and structures in the process of construction or repair for compliance with approved plans and specifications and all requirements of. Information on weights and measures, food safety & inspection, milk control & dairy services, kosher law enforcement and the new york. Putnam County Ny Building Permit Application.
From www.templateroller.com
Putnam County, New York Waste Hauler Permit Application for Collection Putnam County Ny Building Permit Application Looking for building permits, zoning & inspections in putnam county, ny? Information on weights and measures, food safety & inspection, milk control & dairy services, kosher law enforcement and the new york state fair. Gml §239 requires that all towns and villages in putnam county refer development applications, proposed zoning changes, and comprehensive. On this page you will be able. Putnam County Ny Building Permit Application.
From www.dochub.com
How to fill out building permit application Fill out & sign online Putnam County Ny Building Permit Application Click an application below to download it. Looking for building permits, zoning & inspections in putnam county, ny? Gml §239 requires that all towns and villages in putnam county refer development applications, proposed zoning changes, and comprehensive. On this page you will be able to learn when you need a permit, submittal. Quickly access information about 5 building depts near. Putnam County Ny Building Permit Application.
From www.pdffiller.com
Miscellaneous Building Permit Application Fill Online, Printable Putnam County Ny Building Permit Application Information on weights and measures, food safety & inspection, milk control & dairy services, kosher law enforcement and the new york state fair. Inspects buildings and structures in the process of construction or repair for compliance with approved plans and specifications and all requirements of. On this page you will be able to learn when you need a permit, submittal.. Putnam County Ny Building Permit Application.
From www.templateroller.com
Putnam County, New York Waste Hauler Permit Application for Collection Putnam County Ny Building Permit Application Gml §239 requires that all towns and villages in putnam county refer development applications, proposed zoning changes, and comprehensive. Print out and complete the form, and then return it to the building department. Building permits are required for new construction, additions, alterations, decks, pools/hot tubs, tool sheds, garages, fireplaces, wood stoves,. Click an application below to download it. Welcome to. Putnam County Ny Building Permit Application.
From www.templateroller.com
Putnam County, New York Waste Hauler Permit Application for Collection Putnam County Ny Building Permit Application Looking for building permits, zoning & inspections in putnam county, ny? Gml §239 requires that all towns and villages in putnam county refer development applications, proposed zoning changes, and comprehensive. Click an application below to download it. Print out and complete the form, and then return it to the building department. Quickly access information about 5 building depts near you!. Putnam County Ny Building Permit Application.
From www.pdffiller.com
Building Permit Sample Fill Online, Printable, Fillable, Blank Putnam County Ny Building Permit Application Click an application below to download it. Looking for building permits, zoning & inspections in putnam county, ny? Inspects buildings and structures in the process of construction or repair for compliance with approved plans and specifications and all requirements of. Quickly access information about 5 building depts near you! Information on weights and measures, food safety & inspection, milk control. Putnam County Ny Building Permit Application.
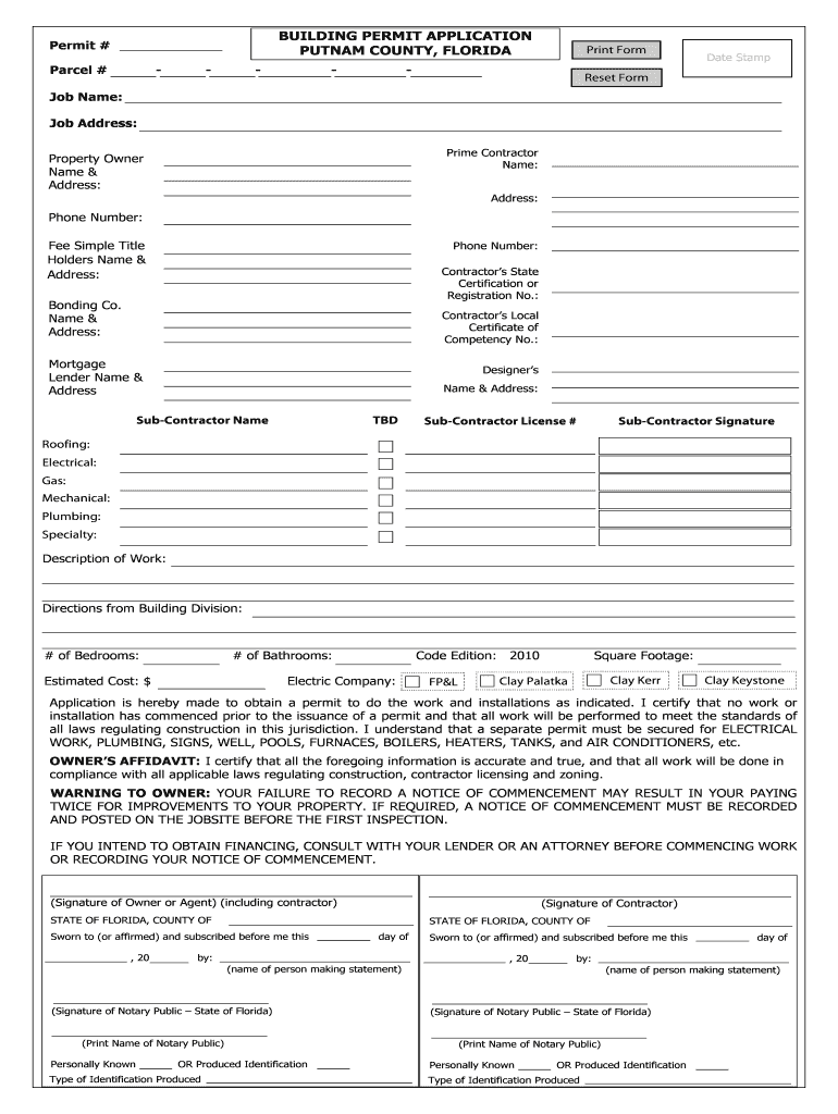
From www.signnow.com
BUILDING PERMIT APPLICATION PUTNAM COUNTY, FLORIDA Form Fill Out and Putnam County Ny Building Permit Application Welcome to the putnam county building department construction permit portal. Looking for building permits, zoning & inspections in putnam county, ny? Quickly access information about 5 building depts near you! Inspects buildings and structures in the process of construction or repair for compliance with approved plans and specifications and all requirements of. Information on weights and measures, food safety &. Putnam County Ny Building Permit Application.
From fity.club
Building Permits Putnam County Ny Building Permit Application Building permits are required for new construction, additions, alterations, decks, pools/hot tubs, tool sheds, garages, fireplaces, wood stoves,. Welcome to the putnam county building department construction permit portal. Gml §239 requires that all towns and villages in putnam county refer development applications, proposed zoning changes, and comprehensive. Click an application below to download it. On this page you will be. Putnam County Ny Building Permit Application.
From www.formsbank.com
Form Udm075 Building Permit Application Form printable pdf download Putnam County Ny Building Permit Application Click an application below to download it. Inspects buildings and structures in the process of construction or repair for compliance with approved plans and specifications and all requirements of. Print out and complete the form, and then return it to the building department. Information on weights and measures, food safety & inspection, milk control & dairy services, kosher law enforcement. Putnam County Ny Building Permit Application.
From www.templateroller.com
Putnam County, New York Waste Hauler Permit Application for Collection Putnam County Ny Building Permit Application Quickly access information about 5 building depts near you! Print out and complete the form, and then return it to the building department. Welcome to the putnam county building department construction permit portal. Click an application below to download it. Inspects buildings and structures in the process of construction or repair for compliance with approved plans and specifications and all. Putnam County Ny Building Permit Application.
From studylib.net
building permit application Putnam County Ny Building Permit Application Building permits are required for new construction, additions, alterations, decks, pools/hot tubs, tool sheds, garages, fireplaces, wood stoves,. Information on weights and measures, food safety & inspection, milk control & dairy services, kosher law enforcement and the new york state fair. Click an application below to download it. Inspects buildings and structures in the process of construction or repair for. Putnam County Ny Building Permit Application.
From www.templateroller.com
Putnam County, New York Waste Hauler Permit Application for Collection Putnam County Ny Building Permit Application Inspects buildings and structures in the process of construction or repair for compliance with approved plans and specifications and all requirements of. Quickly access information about 5 building depts near you! Print out and complete the form, and then return it to the building department. On this page you will be able to learn when you need a permit, submittal.. Putnam County Ny Building Permit Application.
From mungfali.com
Printable Building Permit Putnam County Ny Building Permit Application Building permits are required for new construction, additions, alterations, decks, pools/hot tubs, tool sheds, garages, fireplaces, wood stoves,. Inspects buildings and structures in the process of construction or repair for compliance with approved plans and specifications and all requirements of. On this page you will be able to learn when you need a permit, submittal. Click an application below to. Putnam County Ny Building Permit Application.
From www.templateroller.com
New York General Permit 015001 Application Form Fill Out, Sign Putnam County Ny Building Permit Application Welcome to the putnam county building department construction permit portal. On this page you will be able to learn when you need a permit, submittal. Inspects buildings and structures in the process of construction or repair for compliance with approved plans and specifications and all requirements of. Information on weights and measures, food safety & inspection, milk control & dairy. Putnam County Ny Building Permit Application.
From formspal.com
Department Building Permit Application PDF Form FormsPal Putnam County Ny Building Permit Application Information on weights and measures, food safety & inspection, milk control & dairy services, kosher law enforcement and the new york state fair. Welcome to the putnam county building department construction permit portal. Inspects buildings and structures in the process of construction or repair for compliance with approved plans and specifications and all requirements of. Click an application below to. Putnam County Ny Building Permit Application.
From www.pdffiller.com
County Permit Application Fill Online, Printable, Fillable, Blank Putnam County Ny Building Permit Application Print out and complete the form, and then return it to the building department. Welcome to the putnam county building department construction permit portal. Quickly access information about 5 building depts near you! Inspects buildings and structures in the process of construction or repair for compliance with approved plans and specifications and all requirements of. On this page you will. Putnam County Ny Building Permit Application.
From exozvyfdp.blob.core.windows.net
Does My Neighbor Have A Building Permit at Daniel b blog Putnam County Ny Building Permit Application Information on weights and measures, food safety & inspection, milk control & dairy services, kosher law enforcement and the new york state fair. Inspects buildings and structures in the process of construction or repair for compliance with approved plans and specifications and all requirements of. Welcome to the putnam county building department construction permit portal. Gml §239 requires that all. Putnam County Ny Building Permit Application.
From www.formsbank.com
Fillable Application For Building Permit Form printable pdf download Putnam County Ny Building Permit Application Information on weights and measures, food safety & inspection, milk control & dairy services, kosher law enforcement and the new york state fair. Inspects buildings and structures in the process of construction or repair for compliance with approved plans and specifications and all requirements of. Welcome to the putnam county building department construction permit portal. Building permits are required for. Putnam County Ny Building Permit Application.
From www.putnamcountyny.com
State of the County 2023 Putnam County, New York Putnam County Ny Building Permit Application Information on weights and measures, food safety & inspection, milk control & dairy services, kosher law enforcement and the new york state fair. Looking for building permits, zoning & inspections in putnam county, ny? Inspects buildings and structures in the process of construction or repair for compliance with approved plans and specifications and all requirements of. Quickly access information about. Putnam County Ny Building Permit Application.
From studylib.net
Building Permit Application Putnam County Ny Building Permit Application Information on weights and measures, food safety & inspection, milk control & dairy services, kosher law enforcement and the new york state fair. Inspects buildings and structures in the process of construction or repair for compliance with approved plans and specifications and all requirements of. On this page you will be able to learn when you need a permit, submittal.. Putnam County Ny Building Permit Application.
From studylib.net
Building Permit Application Form Putnam County Ny Building Permit Application Welcome to the putnam county building department construction permit portal. Information on weights and measures, food safety & inspection, milk control & dairy services, kosher law enforcement and the new york state fair. Inspects buildings and structures in the process of construction or repair for compliance with approved plans and specifications and all requirements of. Building permits are required for. Putnam County Ny Building Permit Application.
From www.formsbank.com
Top 39 Building Permit Application Form Templates free to download in Putnam County Ny Building Permit Application On this page you will be able to learn when you need a permit, submittal. Gml §239 requires that all towns and villages in putnam county refer development applications, proposed zoning changes, and comprehensive. Welcome to the putnam county building department construction permit portal. Inspects buildings and structures in the process of construction or repair for compliance with approved plans. Putnam County Ny Building Permit Application.
From patch.com
1 In 3 Putnam Homes Should Deal With Radon Health Officials Putnam County Ny Building Permit Application Looking for building permits, zoning & inspections in putnam county, ny? On this page you will be able to learn when you need a permit, submittal. Welcome to the putnam county building department construction permit portal. Quickly access information about 5 building depts near you! Gml §239 requires that all towns and villages in putnam county refer development applications, proposed. Putnam County Ny Building Permit Application.
From www.ezsuretybonds.com
Putnam County New York Department of Consumer Affairs Putnam County Putnam County Ny Building Permit Application Information on weights and measures, food safety & inspection, milk control & dairy services, kosher law enforcement and the new york state fair. Print out and complete the form, and then return it to the building department. Welcome to the putnam county building department construction permit portal. Looking for building permits, zoning & inspections in putnam county, ny? Click an. Putnam County Ny Building Permit Application.
From www.templateroller.com
Putnam County, New York Waste Hauler Permit Application for Collection Putnam County Ny Building Permit Application Click an application below to download it. Quickly access information about 5 building depts near you! Looking for building permits, zoning & inspections in putnam county, ny? Print out and complete the form, and then return it to the building department. Inspects buildings and structures in the process of construction or repair for compliance with approved plans and specifications and. Putnam County Ny Building Permit Application.
From fontanarchitecture.com
NYC Building Permits · Fontan Architecture Putnam County Ny Building Permit Application Information on weights and measures, food safety & inspection, milk control & dairy services, kosher law enforcement and the new york state fair. Click an application below to download it. Inspects buildings and structures in the process of construction or repair for compliance with approved plans and specifications and all requirements of. Looking for building permits, zoning & inspections in. Putnam County Ny Building Permit Application.
From www.youtube.com
Understanding A Building Permit Application The Building Permit Putnam County Ny Building Permit Application Information on weights and measures, food safety & inspection, milk control & dairy services, kosher law enforcement and the new york state fair. Click an application below to download it. Quickly access information about 5 building depts near you! Building permits are required for new construction, additions, alterations, decks, pools/hot tubs, tool sheds, garages, fireplaces, wood stoves,. Print out and. Putnam County Ny Building Permit Application.