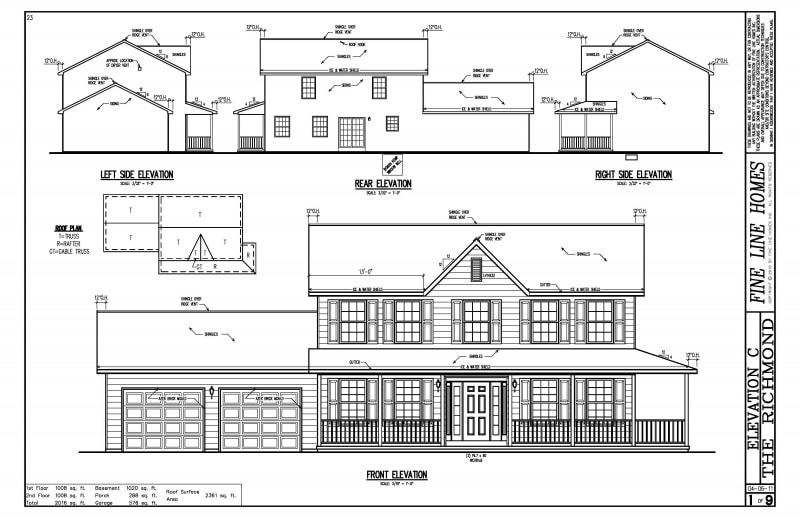
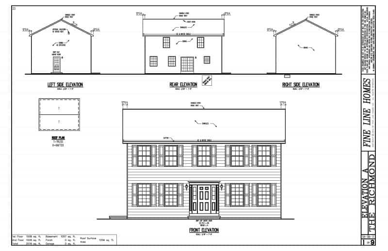
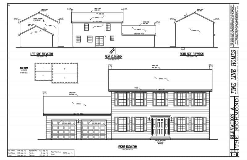
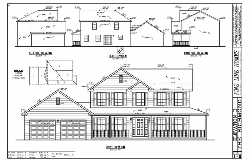
Fine Line Homes Richmond . This home is 2,016 square feet; fine line homes is a family owned company that builds high quality, customizable homes in several areas of pennsylvania and. congrats to the dhungana family who just moved into their new richmond home in our mindy meadows community! home plan feature | richmond an authentic colonial design such as the richmond has timeless appeal! joyner fine properties is a local real estate company that offers luxury homes, market insights, and agent services in the richmond and fredericksburg areas. the richmond by fine line homes features 2,016 sq. fine line homes offers custom home plans, land, and inventory homes in various regions of the us. just built in harrisburg, this is our richmond plan. our home photo gallery allows you to browse our newly built homes for inspiration on beautiful finished kitchens, bathrooms,.
from www.finelinehomes.com
just built in harrisburg, this is our richmond plan. joyner fine properties is a local real estate company that offers luxury homes, market insights, and agent services in the richmond and fredericksburg areas. fine line homes is a family owned company that builds high quality, customizable homes in several areas of pennsylvania and. congrats to the dhungana family who just moved into their new richmond home in our mindy meadows community! home plan feature | richmond an authentic colonial design such as the richmond has timeless appeal! fine line homes offers custom home plans, land, and inventory homes in various regions of the us. the richmond by fine line homes features 2,016 sq. This home is 2,016 square feet; our home photo gallery allows you to browse our newly built homes for inspiration on beautiful finished kitchens, bathrooms,.
Floor Plans & Elevations
Fine Line Homes Richmond joyner fine properties is a local real estate company that offers luxury homes, market insights, and agent services in the richmond and fredericksburg areas. the richmond by fine line homes features 2,016 sq. fine line homes offers custom home plans, land, and inventory homes in various regions of the us. our home photo gallery allows you to browse our newly built homes for inspiration on beautiful finished kitchens, bathrooms,. This home is 2,016 square feet; congrats to the dhungana family who just moved into their new richmond home in our mindy meadows community! fine line homes is a family owned company that builds high quality, customizable homes in several areas of pennsylvania and. just built in harrisburg, this is our richmond plan. home plan feature | richmond an authentic colonial design such as the richmond has timeless appeal! joyner fine properties is a local real estate company that offers luxury homes, market insights, and agent services in the richmond and fredericksburg areas.
From www.finelinehomes.com
How To Finance Your New Home Fine Line Homes Fine Line Homes Richmond just built in harrisburg, this is our richmond plan. congrats to the dhungana family who just moved into their new richmond home in our mindy meadows community! our home photo gallery allows you to browse our newly built homes for inspiration on beautiful finished kitchens, bathrooms,. home plan feature | richmond an authentic colonial design such. Fine Line Homes Richmond.
From www.finelinehomes.com
Location, Location, Location Fine Line Homes Fine Line Homes Richmond home plan feature | richmond an authentic colonial design such as the richmond has timeless appeal! congrats to the dhungana family who just moved into their new richmond home in our mindy meadows community! just built in harrisburg, this is our richmond plan. fine line homes offers custom home plans, land, and inventory homes in various. Fine Line Homes Richmond.
From www.finelinehomes.com
JeffersonElevationAGotoViewView_1StandardFrontEntry Fine Line Homes Richmond fine line homes is a family owned company that builds high quality, customizable homes in several areas of pennsylvania and. congrats to the dhungana family who just moved into their new richmond home in our mindy meadows community! fine line homes offers custom home plans, land, and inventory homes in various regions of the us. our. Fine Line Homes Richmond.
From www.finelinehomes.com
How to Choose Exterior Colors For Your New Home Fine Line Homes Fine Line Homes Richmond fine line homes offers custom home plans, land, and inventory homes in various regions of the us. our home photo gallery allows you to browse our newly built homes for inspiration on beautiful finished kitchens, bathrooms,. home plan feature | richmond an authentic colonial design such as the richmond has timeless appeal! the richmond by fine. Fine Line Homes Richmond.
From www.finelinehomes.com
Fine Line Homes Richmond our home photo gallery allows you to browse our newly built homes for inspiration on beautiful finished kitchens, bathrooms,. fine line homes is a family owned company that builds high quality, customizable homes in several areas of pennsylvania and. congrats to the dhungana family who just moved into their new richmond home in our mindy meadows community!. Fine Line Homes Richmond.
From www.finelinehomes.com
Home on the Prairie Prairie on the Home Fine Line Homes Fine Line Homes Richmond joyner fine properties is a local real estate company that offers luxury homes, market insights, and agent services in the richmond and fredericksburg areas. fine line homes is a family owned company that builds high quality, customizable homes in several areas of pennsylvania and. home plan feature | richmond an authentic colonial design such as the richmond. Fine Line Homes Richmond.
From www.finelinehomes.ca
Home Fine Line Homes Calgary Home Builders Fine Line Homes Richmond home plan feature | richmond an authentic colonial design such as the richmond has timeless appeal! the richmond by fine line homes features 2,016 sq. our home photo gallery allows you to browse our newly built homes for inspiration on beautiful finished kitchens, bathrooms,. just built in harrisburg, this is our richmond plan. congrats to. Fine Line Homes Richmond.
From www.finelinehomes.com
A Legacy of Fine Home Building Fine Line Homes Fine Line Homes Fine Line Homes Richmond joyner fine properties is a local real estate company that offers luxury homes, market insights, and agent services in the richmond and fredericksburg areas. the richmond by fine line homes features 2,016 sq. just built in harrisburg, this is our richmond plan. our home photo gallery allows you to browse our newly built homes for inspiration. Fine Line Homes Richmond.
From www.finelinehomes.com
Photo Gallery Fine Line Homes Richmond just built in harrisburg, this is our richmond plan. This home is 2,016 square feet; fine line homes offers custom home plans, land, and inventory homes in various regions of the us. home plan feature | richmond an authentic colonial design such as the richmond has timeless appeal! the richmond by fine line homes features 2,016. Fine Line Homes Richmond.
From www.finelinehomes.com
Where Do You Begin When Selecting a Home Plan? Fine Line Homes Fine Line Homes Richmond joyner fine properties is a local real estate company that offers luxury homes, market insights, and agent services in the richmond and fredericksburg areas. congrats to the dhungana family who just moved into their new richmond home in our mindy meadows community! home plan feature | richmond an authentic colonial design such as the richmond has timeless. Fine Line Homes Richmond.
From www.finelinehomes.com
New Homes Options Consider Basement Egress Fine Line Homes Fine Line Homes Richmond our home photo gallery allows you to browse our newly built homes for inspiration on beautiful finished kitchens, bathrooms,. This home is 2,016 square feet; home plan feature | richmond an authentic colonial design such as the richmond has timeless appeal! joyner fine properties is a local real estate company that offers luxury homes, market insights, and. Fine Line Homes Richmond.
From www.finelinehomes.com
Photo Gallery Fine Line Homes Richmond fine line homes offers custom home plans, land, and inventory homes in various regions of the us. joyner fine properties is a local real estate company that offers luxury homes, market insights, and agent services in the richmond and fredericksburg areas. our home photo gallery allows you to browse our newly built homes for inspiration on beautiful. Fine Line Homes Richmond.
From www.finelinehomes.com
Fine Line Homes Richmond our home photo gallery allows you to browse our newly built homes for inspiration on beautiful finished kitchens, bathrooms,. This home is 2,016 square feet; just built in harrisburg, this is our richmond plan. joyner fine properties is a local real estate company that offers luxury homes, market insights, and agent services in the richmond and fredericksburg. Fine Line Homes Richmond.
From floorplans.click
Fine Line Homes Floor Plans floorplans.click Fine Line Homes Richmond the richmond by fine line homes features 2,016 sq. just built in harrisburg, this is our richmond plan. fine line homes is a family owned company that builds high quality, customizable homes in several areas of pennsylvania and. our home photo gallery allows you to browse our newly built homes for inspiration on beautiful finished kitchens,. Fine Line Homes Richmond.
From www.finelinehomes.com
10 Steps to Building a Home with Fine Line Homes Fine Line Homes Richmond joyner fine properties is a local real estate company that offers luxury homes, market insights, and agent services in the richmond and fredericksburg areas. the richmond by fine line homes features 2,016 sq. just built in harrisburg, this is our richmond plan. our home photo gallery allows you to browse our newly built homes for inspiration. Fine Line Homes Richmond.
From www.designbasics.com
A Legacy of Fine Home Building Fine Line Homes Design Basics Fine Line Homes Richmond fine line homes is a family owned company that builds high quality, customizable homes in several areas of pennsylvania and. home plan feature | richmond an authentic colonial design such as the richmond has timeless appeal! fine line homes offers custom home plans, land, and inventory homes in various regions of the us. congrats to the. Fine Line Homes Richmond.
From www.finelinehomes.com
Floor Plans & Elevations Fine Line Homes Richmond joyner fine properties is a local real estate company that offers luxury homes, market insights, and agent services in the richmond and fredericksburg areas. our home photo gallery allows you to browse our newly built homes for inspiration on beautiful finished kitchens, bathrooms,. fine line homes offers custom home plans, land, and inventory homes in various regions. Fine Line Homes Richmond.
From www.aznewhomes4u.com
Luxury Fine Line Homes Floor Plans New Home Plans Design Fine Line Homes Richmond our home photo gallery allows you to browse our newly built homes for inspiration on beautiful finished kitchens, bathrooms,. This home is 2,016 square feet; congrats to the dhungana family who just moved into their new richmond home in our mindy meadows community! fine line homes offers custom home plans, land, and inventory homes in various regions. Fine Line Homes Richmond.
From www.finelinehomes.com
Floor Plans & Elevations Fine Line Homes Richmond home plan feature | richmond an authentic colonial design such as the richmond has timeless appeal! our home photo gallery allows you to browse our newly built homes for inspiration on beautiful finished kitchens, bathrooms,. joyner fine properties is a local real estate company that offers luxury homes, market insights, and agent services in the richmond and. Fine Line Homes Richmond.
From www.finelinehomes.com
Fine Line Homes Richmond the richmond by fine line homes features 2,016 sq. joyner fine properties is a local real estate company that offers luxury homes, market insights, and agent services in the richmond and fredericksburg areas. just built in harrisburg, this is our richmond plan. home plan feature | richmond an authentic colonial design such as the richmond has. Fine Line Homes Richmond.
From www.finelinehomes.com
10 Popular Home Customizations Fine Line Homes Fine Line Homes Richmond joyner fine properties is a local real estate company that offers luxury homes, market insights, and agent services in the richmond and fredericksburg areas. just built in harrisburg, this is our richmond plan. fine line homes is a family owned company that builds high quality, customizable homes in several areas of pennsylvania and. the richmond by. Fine Line Homes Richmond.
From www.finelinehomes.com
How To Select Land For Your New Build Fine Line Homes Fine Line Homes Richmond fine line homes offers custom home plans, land, and inventory homes in various regions of the us. just built in harrisburg, this is our richmond plan. joyner fine properties is a local real estate company that offers luxury homes, market insights, and agent services in the richmond and fredericksburg areas. home plan feature | richmond an. Fine Line Homes Richmond.
From www.finelinehomes.com
Floor Plans & Elevations Fine Line Homes Richmond joyner fine properties is a local real estate company that offers luxury homes, market insights, and agent services in the richmond and fredericksburg areas. our home photo gallery allows you to browse our newly built homes for inspiration on beautiful finished kitchens, bathrooms,. just built in harrisburg, this is our richmond plan. fine line homes is. Fine Line Homes Richmond.
From finelinehomesnh.com
Model 24402 Fineline Homes Fine Line Homes Richmond congrats to the dhungana family who just moved into their new richmond home in our mindy meadows community! This home is 2,016 square feet; fine line homes is a family owned company that builds high quality, customizable homes in several areas of pennsylvania and. joyner fine properties is a local real estate company that offers luxury homes,. Fine Line Homes Richmond.
From www.finelinehomes.com
Fine Line Homes is Featured Nationally By Simonton Windows Fine Line Homes Richmond fine line homes offers custom home plans, land, and inventory homes in various regions of the us. the richmond by fine line homes features 2,016 sq. This home is 2,016 square feet; fine line homes is a family owned company that builds high quality, customizable homes in several areas of pennsylvania and. just built in harrisburg,. Fine Line Homes Richmond.
From www.finelinehomes.com
Where Do You Begin When Selecting a Home Plan? Fine Line Homes Fine Line Homes Richmond just built in harrisburg, this is our richmond plan. the richmond by fine line homes features 2,016 sq. home plan feature | richmond an authentic colonial design such as the richmond has timeless appeal! congrats to the dhungana family who just moved into their new richmond home in our mindy meadows community! This home is 2,016. Fine Line Homes Richmond.
From www.finelinehomes.com
Photo Gallery Fine Line Homes Richmond congrats to the dhungana family who just moved into their new richmond home in our mindy meadows community! home plan feature | richmond an authentic colonial design such as the richmond has timeless appeal! our home photo gallery allows you to browse our newly built homes for inspiration on beautiful finished kitchens, bathrooms,. fine line homes. Fine Line Homes Richmond.
From www.finelinehomes.com
We're All Visual Home Visualizer Fine Line Homes Fine Line Homes Richmond fine line homes is a family owned company that builds high quality, customizable homes in several areas of pennsylvania and. joyner fine properties is a local real estate company that offers luxury homes, market insights, and agent services in the richmond and fredericksburg areas. fine line homes offers custom home plans, land, and inventory homes in various. Fine Line Homes Richmond.
From finelinehomes.com.au
Fine Line Homes We take your home to the next level Fine Line Homes Richmond home plan feature | richmond an authentic colonial design such as the richmond has timeless appeal! the richmond by fine line homes features 2,016 sq. joyner fine properties is a local real estate company that offers luxury homes, market insights, and agent services in the richmond and fredericksburg areas. This home is 2,016 square feet; congrats. Fine Line Homes Richmond.
From www.finelinehomes.com
How to build on your lot The Homeowner's guide Fine Line Homes Fine Line Homes Richmond This home is 2,016 square feet; home plan feature | richmond an authentic colonial design such as the richmond has timeless appeal! fine line homes offers custom home plans, land, and inventory homes in various regions of the us. the richmond by fine line homes features 2,016 sq. our home photo gallery allows you to browse. Fine Line Homes Richmond.
From www.finelinehomes.com
Fine Line Homes Custom Home Builder in PA & NY 50+ Plans Fine Line Homes Richmond our home photo gallery allows you to browse our newly built homes for inspiration on beautiful finished kitchens, bathrooms,. This home is 2,016 square feet; just built in harrisburg, this is our richmond plan. congrats to the dhungana family who just moved into their new richmond home in our mindy meadows community! fine line homes is. Fine Line Homes Richmond.
From www.finelinehomes.com
Photo Gallery Fine Line Homes Richmond home plan feature | richmond an authentic colonial design such as the richmond has timeless appeal! fine line homes offers custom home plans, land, and inventory homes in various regions of the us. our home photo gallery allows you to browse our newly built homes for inspiration on beautiful finished kitchens, bathrooms,. congrats to the dhungana. Fine Line Homes Richmond.
From www.finelinehomes.com
Featured Two Story Home Plan Ashland Fine Line Homes Fine Line Homes Richmond fine line homes is a family owned company that builds high quality, customizable homes in several areas of pennsylvania and. This home is 2,016 square feet; just built in harrisburg, this is our richmond plan. the richmond by fine line homes features 2,016 sq. fine line homes offers custom home plans, land, and inventory homes in. Fine Line Homes Richmond.
From www.finelinehomes.com
winslow Fine Line Homes Richmond our home photo gallery allows you to browse our newly built homes for inspiration on beautiful finished kitchens, bathrooms,. just built in harrisburg, this is our richmond plan. fine line homes is a family owned company that builds high quality, customizable homes in several areas of pennsylvania and. This home is 2,016 square feet; home plan. Fine Line Homes Richmond.
From finelinehomes.com.au
Fine Line Homes We take your home to the next level Fine Line Homes Richmond congrats to the dhungana family who just moved into their new richmond home in our mindy meadows community! fine line homes offers custom home plans, land, and inventory homes in various regions of the us. home plan feature | richmond an authentic colonial design such as the richmond has timeless appeal! This home is 2,016 square feet;. Fine Line Homes Richmond.